Skip to main content

Portfolio

Page 1


Hui Yi Pan

PROJECT 01

The FATE of Central Market

___what else we can do apart from renewing the city?

The topic I am about to explore is whether, in a mainstream society, people can adopt more inclusive and diverse perspectives to approach various definitions without being confined by them.

For this reason, I chose a location in Taichung, the city where I have lived for four and a half years. This site, situated in the heart of the city, once flourished but now faces the prospect of urban renewal and eventual abandonment in the context of modern societal trends.

I aim to partially preserve this space by introducing luxury boutiques into the aging structure. Through this combination of old and new, I intend to create strong tension between harmony and discord, presenting a stark contrast to mainstream societal norms.

Site Strategy

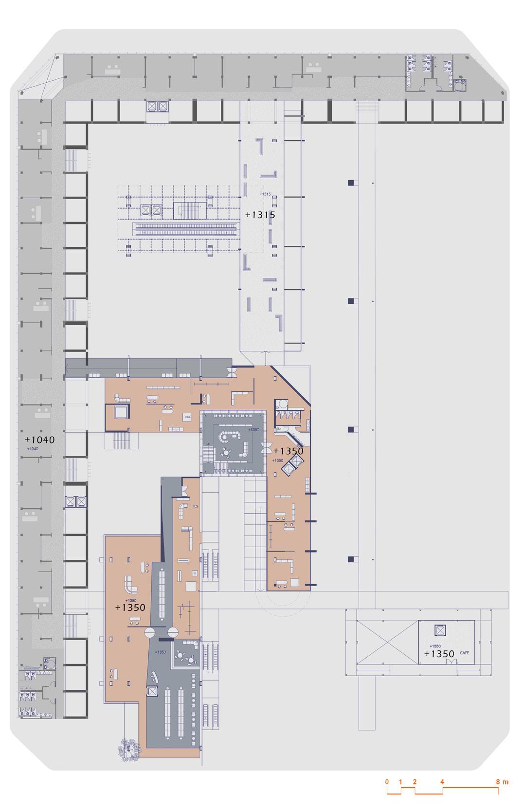
Central Market

The original structure on the site features a striking L-shaped volume that defines the entire urban block.

The surrounding roads, except for those on the northern side, are extremely narrow, reflecting its location within a densely packed urban block.

usual types strategy

Grand Entry

Solid Volume and Centralized

Enclosed Circulation

Lined-Up Units

conceptual seciton

Alleyway Entry

visitors need to navigate through winding paths, rather than entering from a grand facade.

In contrast to the mainstream design of large shopping malls, I aim to preserve more of the original character and spatial form of the local market. This approach seeks to create a more accessible and diverse activity space, unbound by a singular typology.

By referencing the layouts of most contemporary malls, I intend to develop a shopping space which is similar to alleyway walking, interwoven with various functions and experiences.

Multi-Point Visibility

creating a decentralized layout that allows for multiple sightlines.

Market and Alleyway circulation

maintaining a connection with the outside environment.

Blurred Boundaries

a library blurs the singular commercial function of the space.

conceptual models

Reconstruction Phase

The right side of the site is designed to create as much open space as possible for public activities, reducing the density of the crowded urban block.

The L-shaped volume on the left retains the original building structure, with some original walls modified. The ordinary lives and the newly introduced luxury boutiques coexist in a layout that ensures mutual independence without interference. These two contrasting states appear to coexist, yet people are free to move between them seamlessly.

original (demolish)
(remaining)
towers (A, B, C)

Past & Future / Material

The public open space inside is simultaneously framed and sheltered by the L-shaped volume, enhancing its sense of enclosure and cohesion The building facade utilizes a highly transparent metal mesh to blur the boundaries of internal activities. The circulation paths of the bookstore and the boutique continuously intersect, when browsing the bookstore is simultaneously browsing the boutique.

People move continuously between the old and new structures, creating a dynamic interaction. While the old market may no longer be functional, reinterpreting its original spatial dimensions becomes an act of memory and exhibition.

The design utilizes steel construction to achieve clean, minimalist lines. A deliberate contrast is established at the juncture of old and new, highlighting the tectonic evolution between different periods. By leaving the structure exposed, it transcends its functional role to become the building's facade.

PROJECT 02

The way to memory METAL

___the future of the ancient metal industry street

In modern times, metal on this site is often relegated to the role of an accessory, which stands in stark contrast to its historical significance as a symbol of prosperity.

Therefore, I aim to rediscover the unique materiality of metal, allowing its role to re-emerge in the urban context. The goal is not to revive the industry but to find a way to commemorate the past we once shared with metal.

Origin

Fengshan was once a key military hub in southern Taiwan, where metal was widely used to make weapons and tools.

In the past, people relied on the Fengshan River to transport imported metals from the port to the old town. Over time, the coastline expanded, and the river became silted, losing its role in transportation. As a result, the skills of forging metal declined, and the old city gradually disappeared into the modern city.

The Role of Metal beyond the city

addition

attached to the building

construction in alleyways

people extend the eaves from the building to create space.

Exploring the Characteristics of Metal

Heat and Fire

-random free forms (difficult to control)

-softness (at high temperature, metal becomes pliable that will cause wrinkles.)

unharmony border

a strange element in the urban texture

Melting, Casting, Fluidity

symbolizing how it weaves through streets and alleys, seamlessly blending into everyday life.

Thin Metal Sheets

they are easy to bending, and deformation through bending enhances their rigidity.

Metal Metality - Folding

prototype attempt prototype 1

2

By experimenting with various processing techniques, I explored how metal changes in different conditions. The aim was to identify the key qualities of metal while simultaneously responding to the environmental context.

Metal’s most important traits are its sharpness, clarity, and ability to form spatial structures in a lightweight.

The use of triangles highlights the sharpness of metal while also forming a strong structure. Following the surrounding urban layout, the design develops from the northwest to the southeast, with metal workshops on the bridge, offering residents more opportunities to work with metal.

Walking on the bridge, people will experience the unique property of metal.

PROJECT 03

Reclaim the center of Tunghai University

___combines arts, plaza and student activities

The site is located on the campus of the university I attend. This design focuses on Mingxian Hall and its surroundings. Due to additions over different periods, the area’s layout is chaotic. Mingxian Hall, once the busiest gathering spot on campus decades ago, is now underused due to the increase in student numbers.

The reconstruction includes adding a museum, art gallery, bookstore, and rebuilding the student restaurant. The area will be redesigned with a public open plaza to create better public spaces for campus activities.

Site Analysis

By analyzing the figure-ground patterns of cities worldwide, I found that a university campus can also be considered a micro-city.

From a figure-ground perspective, the campus layout has an enclosing characteristic, similar to the traditional Chinese central courtyard. For the renovation of the area around Mingxian Hall, I aim to incorporate this pattern to align with the existing campus layout.

Strategy

The design redefines Mingxian Hall's importance as the center of the area. The layout starts from Mingxian Hall, creating a continuous loop.

Moving down along the slope, people can view Mingxian Hall from different heights while experiencing the large plaza shaped by the surrounding buildings. This design not only surrounds Mingxian Hall but also creates an open, flowing public space.

Luce Chapel
Mingxian Hall
Tunghai University
aa' Section
Mingxian hall
sunken plaza

PROJECT 04

When CITY becomes a flat image

___replanning of Fuxing park and its surroundings

The site is located in a busy commercial area, surrounded by a residential neighborhood with high daily activity.

I plan to transform the existing parking lot into a youth rental housing, connecting it to the park. I also redesign the park, and incorporate mixed-use spaces, extending and creating more public activities to the larger area.

By extending the park into the youth rental housing and activating public spaces on the ground floor, the project will strengthen the connection between the city and its surrounding.

The complex buildings (redesign of the park) focus on its relationship with the city and surrounding environment. By designing interactions at different heights, the public spaces are maximized and the activities will happen at not just the same level.

A Youth rental housing

"I can see you, but we all have our own space."

The youth rental housing provides short-term accommodation for people under 35. Unlike long-term residents, I focus on the relationships between individuals. The aim is to allow personal space to be slightly expressed without disturbing others. Each unit has two floors, offering spacious public areas. The design alternates between two types of units.

Mixed-use building

The design uses many parallel walls of varying thicknesses to create different size of walkway with a view at the end of it. This allows people's experience to avoid being confined to a closed loop.People are able to see different views of the city from various heights and perspectives.The ground floor links the rental housing with the park, extending activities into the nearby residential area and highlighting the river’s proximity.

HOUSING SHOPS / OFFICE / GYM / GALLERY

Urban Observation

1.Working Experience - REPLAN

Former railway dormitories - low density area

Revitalized former railway dormitories by introducing commercial functions while preserving historical remnants. My core contributions involved architectural drafting and the conceptual development of analytical diagrams to articulate the project's spatial logic.

2.Italy Workshop - COLLAGE PODIUM

The research covers its function as the structural base of a city, its transition into a sacred raised platform, and how grade changes are used to generate the city's spatial hierarchy.

Environment & Pavement

1.Working Experience - environment and meterial discussion

pavement & surface & path

This project focus on ground-floor public spaces for a residential building, and I primarily assisted with paving materiality, pool design, and rest areas. Moreover, this allow me to explore the interplay between softscape (planting) and hardscape materials.

(part of the models were made from the other company)

(drew by me, reviewed by architect))

structure with new facade low-intensity (heritage) & high-intensity

podium research collage master plan

Body & Environment sketchbook

Cross Paths

A reverse staircase is inserted into the path, creating a spatial illusion. People on opposite sides of the handrail are always at different heights, so they will never cross paths.

case study - bridge typology site element and visual guidance

Hui Yi Pan

Turn static files into dynamic content formats.

Create a flipbook