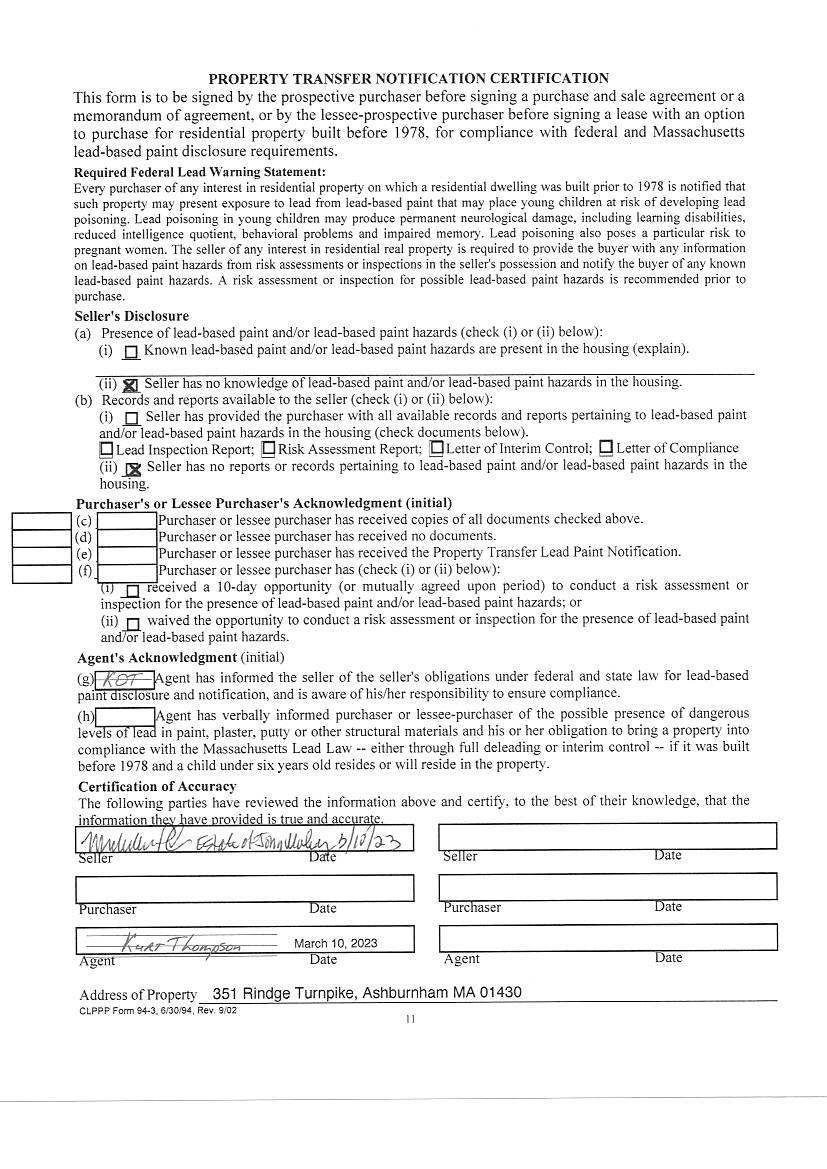
Showing Book 351 Rindge Turnpike Ashburnham

Page 1

351 Rindge Tpke, Ashburnham, MA 2 bed | 2 bath | 1,110 sqft Ful ll your dream of owning a waterfront homeThis 2 Bed, 2 Bath cottage on Ward Pond in Ashburnham MA is a charming retreat in need of renovation to restore its former glory. Buyer responsible for smoke certi cate and Title 5 if needed. Kurt Thompson kurt@homesjustforyou.com 978-833-3569 SEE THE PRICE AND MORE PHOTOS: https://rem.ax/351Rindge The HomesJustFotYou Team at RE/MAX Liberty, 23 Village Inn Rd., Westminster MA 01473

351 Rindge Turnpike, Ashburnham MA 01430

Direct Access to Ward Pond

Westerly rear direction for beautiful sunset views

Close to NH for outdoor activities and tax free shopping

Large Deck for relaxation or entertaining

Picture windows with gorgeous natural views

Some replacement windows installed

Newer panel and circuit breakers installed

Garage remodeled into additional living space with bathroom

Off Street Parking

Storage shed

All appliances and chattell on the property to convey

See below

Attached deed is correct deed. Room count does not match public record. Foundation material per home inspection. Water test not possible. Smoke certification and Title V are buyer responsibility. Please see Home Inspection report for potential repair items. All appliances and chattel to convey as is.

Remarks

Fulfill your dream of owning a waterfront home! This 2 Bed, 2 Bath cottage on Ward Pond in Ashburnham MA is a charming retreat in need of renovation to restore its former glory. With direct access to the water, the property boasts a large deck that overlooks the picturesque pond and provides the perfect spot for outdoor relaxation and entertainment. Inside, the cottage features picture windows that let in natural light and provide stunning views of the surrounding beauty. The main living area is centered around a cozy wood stove that adds warmth and ambiance to the space. The cottage also includes additional finished space on the lower level. Located near the NH border, this property is ideal for outdoor enthusiasts and frugal shoppers. Although in need of renovation, this hidden gem has the potential to become a dream home or a vacation getaway. View this home in 3D, visit our open house or call your agent for a private showing today!

Zones: None

Attached deed is correct deed. Room count does not match public record. Foundation material per home inspection. Water test not possible. Smoke certification and Title V are buyer responsibility. Please see Home Inspection report for potential repair items. All appliances and chattel to convey as is

RoomLevels,DimensionsandFeatures

RoomLevelSizeFeatures

Living Room: 119X13Wood / Coal / Pellet Stove, Closet, Flooring - Hardwood, Window(s) - Picture, Lighting - Sconce, Lighting - Overhead

Family Room: 119X9Fireplace, Flooring - Laminate, Exterior Access, Lighting - Sconce

Main Bedroom: 110X9Closet, Flooring - Hardwood, Lighting - Sconce

Bedroom 2: 18X8Closet, Flooring - Hardwood, Lighting - Sconce

Bath 1: 17X5Bathroom - Full, Flooring - Stone/Ceramic Tile, Lighting - Sconce, Lighting - Overhead

Bath 2: 111X5Bathroom - Full, Flooring - Stone/Ceramic Tile, Dryer Hookup - Electric, Washer Hookup, Lighting - Sconce, Lighting - Overhead

Kitchen: B11X9Flooring - Vinyl, Countertops - Stone/Granite/Solid, Exterior Access, Slider, Stainless Steel Appliances, Lighting - Overhead

Living/Dining Rm Combo: B10X9Flooring - Laminate, Lighting - Overhead

Bedroom: B10X8Closet, Flooring - Wall to Wall Carpet, Lighting - Overhead

Bathroom: B5X4Bathroom - Full, Flooring - Stone/Ceramic Tile, Lighting - Sconce

Room: 112X11Ceiling Fan(s), Closet, Flooring - Wood, Exterior Access, Lighting - Overhead

See Submitting a Complete Offer and all other docs attached at the "paper clip". Attached deed is correct deed. First showings at open house. Need Supra e-key for private

See Home Inspection report for potential repair items. Buyer to complete their own due diligence regarding condition!!!

The information in this listing was gathered from third-party sources including the seller and public records.

Information Network, Inc., and its subscribers disclaim any and all representations or warranties as to the accuracy of this information.

PropertyInformation Approx. Living Area Total: 1,110 SqFt Living Area Includes Below-Grade SqFt: No Living Area Source: Public Record Approx. Above Grade: 1,110 SqFt Approx. Below Grade: 432 SqFt Living Area Disclosures: 432 sq ft of living area in finished raised basement per
Cool
Parking Spaces:
Off-Street,
Garage
Disclosures:
property record card Heat Zones: Forced Air, Electric, Wood Stove
2
Paved Driveway
Spaces: 0
Features Appliances: Range, Microwave, Refrigerator, Washer
Dryer Combo Area Amenities: Walk/Jog Trails, Conservation Area, House of Worship, Private School, Public School Basement: Yes Partial, Finished, Walk Out, Exterior Access Beach: Yes Lake/Pond, Direct Access, Frontage Beach Ownership: Private Beach - Miles to: 0 to 1/10 Mile Construction: Frame Electric: Circuit Breakers, 200 Amps Exterior: Vinyl Exterior Features: Deck - Wood, Gutters, Storage Shed, Satellite Dish, Stone Wall Flooring: Tile, Vinyl, Wall to Wall Carpet, Hardwood Foundation Size: 41 X 24 Foundation Description: Other (See Remarks) Hot Water: Electric, Tank Insulation: Unknown Interior Features: Cable Available, Internet Available - Broadband Lot Description: Wooded, Paved Drive, Level, Sloping Road Type: Public, Paved, Publicly Maint. Roof Material: Asphalt/Fiberglass Shingles Sewer Utilities: Private Sewerage - Title 5: Buyer's Responsibility Utility Connections: for Electric Range, for Electric Oven, for Electric Dryer Water Utilities: Private Water Waterfront: Yes Pond Water View: Yes Pond OtherPropertyInfo Adult Community: No Disclosure Declaration: No Exclusions: Facing Direction: Northwest Green Certified: No Home Own Assn: Unknown Lead Paint: Unknown UFFI: Unknown Warranty Features: No Year Built: 1920 Source: Public Record Year Built Description: Unknown/Mixed Year Round: Yes Short Sale w/Lndr. App. Req: No Lender Owned: No TaxInformation Pin #: M:0071 B:000011 Assessed: $188,600 Tax: $3,121 Tax Year: 2023 Book: 8505 Page: 250 Cert: 000000002648 Zoning Code: RB Map: 71 Block: 11 Lot:0 Compensation Sub-Agent: Not Offered Buyer Agent: 2.0% Facilitator: 2.0% Compensation Based On: Net Sale Price Office/AgentInformation Listing Office: RE/MAX Liberty (978) 786-5160 Listing Agent: Kurt Thompson (978) 833-3569 Team Member(s):HomesJustForYou Team - Leominster (978) 786-5160;Thomas
951-2803 Sale Office: Sale Agent: Listing Agreement Type:
Right to Sell,
w/Var.Rate
Entry Only: No Showing: Sub-Agent: Sub-Agency Relationship Not Offered Showing: Buyer-Agent: Lock Box, Appointment Required, Schedule with ShowingTime Showing: Facilitator: Lock Box, Appointment Required, Schedule with ShowingTime Special Showing Instructions: First showings at open house.
Supra
private showings. FirmRemarks
Bonus
/
Blake (508)
Exclusive
ER
Comm.
Need
e-key for
showings.
MarketInformation Listing Date: 3/28/2023 Listing Market Time: MLS# has been on for 0 day(s) Days on Market: Property has been on the market for a total of 0 day(s) Office Market Time: Office has listed this property for 0 day(s) Expiration Date: Cash Paid for Upgrades: Original Price: $219,900 Seller Concessions at Closing: Off Market Date: Sale Date:
MLS Property
Content ©2023 MLS Property Information Network, Inc. Exterior - Front MLS#73092038- New SingleFamily-Detached 351 Rindge Tpke Ashburnham, MA 01430-1134 Worcester County List Price: $219,900 Style: Cottage Total Rooms: 5 Color: White Bedrooms: 2 Grade School: Bathrooms: 1f 1h Middle School: Main Bath: High School: Fireplaces: 1 Approx. Acres: 0.06 (2,600 SqFt) Approx. Street Frontage: Handicap Access/Features: No Directions: Route 119 to Route 101 (Ashby Road) to Rindge Turnpike
351 Rindge Turnpike
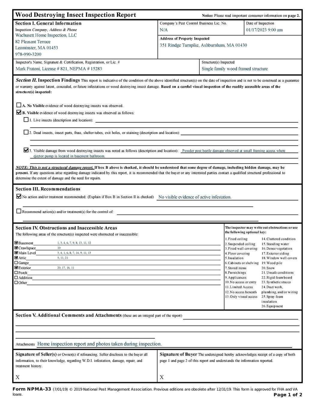
Parker Wachusett Home Inspection, LLC Page 1 of 38 WACHUSETT HOME INSPECTION, LLC 978-990-3200 mark@wachusettinspection.com http://www.wachusettinspection.com/ HOME INSPECTION REPORT 351 Rindge Turnpike Ashburnham, MA 01430 Michelle Parker JANUARY 17, 2023 Inspector Mark Fratoni License # 821 (978) 990-3200 mark@wachusettinspection.com
Michelle
351 Rindge Turnpike Michelle Parker Wachusett Home Inspection, LLC Page 2 of 38 TABLE OF CONTENTS 1: Inspection Details 2: Roo ng 3: Exterior 4: Structural Components 5: Plumbing 6: Heating 7: Electrical 8: Interiors 9: Built-in Appliances 10: Insulation and Ventilation 5 6 11 15 18 23 24 31 35 36

This con dential home inspection report is for the exclusive use of the client and may not be transferred, assigned, sold, or relied upon by any third party. The results of the inspection and information contained in this report are based on observations of visible and accessible areas on the date of inspection. This report is not a guarantee or warranty against future defects in an inspected property.

351 Rindge Turnpike Michelle Parker Wachusett Home Inspection, LLC Page 3 of 38

2.2.1 Roo ng - Roof Drainage Systems: Downspout locations

2.2.2 Roo ng - Roof Drainage Systems: Gutters

2.3.1 Roo ng - Visible Roof Flashings : Front chimney penetration

2.4.1 Roo ng - Skylights, Chimneys & Roof Penetrations: Masonry chimneys

3.1.1 Exterior - Vegetation, Grading, Drainage & Retaining Walls: Overgrown vegetation

3.1.2 Exterior - Vegetation, Grading, Drainage & Retaining Walls: Ground contact with siding

3.2.1 Exterior - Siding, Flashing & Trim: Siding

3.2.2 Exterior - Siding, Flashing & Trim: Front veneer

3.2.3 Exterior - Siding, Flashing & Trim: Window trims/sills

3.3.1 Exterior - Exterior Doors: Exterior doors

3.4.1 Exterior - Decks, Balconies, Porches & Steps: Deck

4.1.1 Structural Components - Foundation, Basement & Crawlspaces: Possible mold

4.5.1 Structural Components - Roof Structure & Attic: Possible sagging roof structure

5.3.1 Plumbing - Drain, Waste, & Vent Systems: Plumbing drain/waste/vent system

5.4.1 Plumbing - Water Heater: Water heater

5.9.1 Plumbing - Well System: Well

6.1.1 Heating - Heating Equipment: In-wall electric heaters

6.2.1 Heating - Distribution Systems: Heat

7.1.1 Electrical - Service Entrance Conductors: Service entrance

7.2.1 Electrical - Service and Grounding Equipment, Main Overcurrent Device, Main and Distribution

Panels: Electrical panel

7.5.1 Electrical - Polarity and Grounding of Receptacles: Improperly wired receptacles

7.6.1 Electrical - GFCI & AFCI: Additional GFCI protection; recommended upgrade

7.7.1 Electrical - Miscellaneous: Number of receptacles

7.7.2 Electrical - Miscellaneous: Unsafe conditions

8.1.1 Interiors - Walls: Possible water damage

8.3.1 Interiors - Floors: Front left entry/"kitchen" area

8.3.2 Interiors - Floors: Front bathroom oor

8.5.1 Interiors - Doors: Missing door noted

8.6.1 Interiors - Windows: Windows

9.3.1 Built-in Appliances - Range/Oven/Cooktop: Multiple electric ranges

10.1.1 Insulation and Ventilation - Attic Insulation: Air bypasses

351 Rindge Turnpike Michelle Parker Wachusett Home Inspection, LLC Page 4 of 38
SUMMARY

10.1.2 Insulation and Ventilation - Attic Insulation: Inadequate insulation

10.3.1 Insulation and Ventilation - Exhaust Systems: Clothes dryer duct work

10.3.2 Insulation and Ventilation - Exhaust Systems: Bath fans

1: INSPECTION DETAILS

section-ODg3YTcyZjMtODFlMS00YzYyLWJjNzYtYjQwYWNhNDIxNWJj

Information

Approximate Year Built 1920 (public record)

In Attendance Client, Inspector (Mark Fratoni Lic. #821)

Style Cottage Temperature (approximate) 36 Fahrenheit (F)

Weather Conditions Clear, Recent snow, Snow cover present

Limitations

General SHED

The shed(s) was not inspected.

General SMOKE DETECTORS

Occupancy

Vacant, Furnished, Cluttered condition

Type of Building Detached, Single Family

Start Time: 9am Stop Time: 12pm

Smoke and carbon monoxide detectors are not inspected.

General ACCESSIBILITY LIMITATIONS

Limitations stated in the wood destroying insect report also apply to the home inspection report.

General TIMING

Understand that a home inspection is a snapshot in time and may not reveal problems that only occur under speci c conditions not present at the time of inspection, or were not visible at the time of inspection.

351 Rindge Turnpike Michelle Parker Wachusett Home Inspection, LLC Page 5 of 38

General DIY WORK

Evidence of DIY work was observed in several areas. Understand that you may uncover improper installations that were not visible at the time of inspection.

General WOOD STOVE

I cannot adequately inspect wood stoves due to lack of access to critical components without disassembly. I highly recommend having a chimney sweep inspect prior to use.

General NO WATER

The well pump was disconnected. No water was available. The plumbing system cannot be adequately inspected without water pressure. Any notes made about the plumbing system are purely visual and done so as a courtesy.

2: ROOFING

section-OTlmZjljNzAtOWU5OC00ZDY5LWJjOTgtNTc5ZDMxYzQyZjY3

2.4Skylights,

2.5Active

Information

Inspection Method

N/A

Roof Drainage Systems: Gutter

Material

Aluminum, Partial

IN = InspectedNI = Not InspectedNP = Not PresentAOC = Area of Concern

Roof Type/Style

Gable, Combination

Visible Roof Flashings : Materials

Lead, Metal, Rubber

Roof Drainage Systems: Properly Terminating Downspouts

Roof Covering Materials:

Material(s) Visible

Asphalt Composition Shingles

Skylights, Chimneys & Roof

Penetrations: Chimney Materials

Masonry

Gutters collect vast amounts of water from roof systems and funnel it into downspouts. Downspouts should be terminated to a point where discharged water ows away from the home and does not collect near a foundation. Improperly terminated downspouts can lead to moisture intrusion (this is a common contributing factor to wet basements), as well as foundation damage. Oftentimes routing downspouts to underground piping is the most e ective way to do this.

Roof Drainage Systems: Gutter Maintenance

351 Rindge Turnpike Michelle Parker Wachusett Home Inspection, LLC Page 6 of 38
INNINPAOC
X
2.1Roof Covering Materials
Systems XX
2.2Roof Drainage
Flashings XX
Chimneys
Penetrations XX
2.3Visible Roof
& Roof
Leaks XX

While gutters are a recommended upgrade to most homes, they should be properly maintained or they may do more harm than good. Routine issues with gutter systems include debris buildup (typically leaves), loose attachment, missing downspout extensions, improper downspout termination points, improperly pitched gutters, and leaking seams. Understand that a clogged gutter will backup and dump a lot of water in one place on the ground (similar to improperly terminated downspouts).

Clogged gutters can also damage siding, trim, window sills, and framing if the water ows over the backside of the gutter that is fastened to the roof assembly. Oftentimes this damage is di cult to detect until the gutter is removed or the damage becomes widespread.

Limitations

General

LIMITED VIEWING ANGLES

General SNOW COVER

Roof Covering Materials

SNOW COVERED

Snow covered roofs cannot be adequately evaluated and are not inspected.

Roof Drainage Systems

FUNCTION NOT VERIFIED

The conditions at the time of inspection were not conducive to observing functional ow of the gutter system. Understand that gutters require regular maintenance to ensure water ows freely to a proper discharge point.

Visible Roof Flashings

FLASHINGS NOT VISIBLE

Understand that many ashings are hidden/covered by other materials and in many cases the inspector cannot con rm the presence or condition of ashings. Exposed ashings in readily accessible areas are typically what the inspector is commenting on.

Visible Roof Flashings

SNOW COVER

351 Rindge Turnpike Michelle Parker Wachusett Home Inspection, LLC Page 7 of 38

Skylights, Chimneys & Roof Penetrations CHIMNEY INTERIOR

Understand that home inspectors cannot see inside of chimneys to e ectively evaluate the presence or condition of ue liners, or verify the absence of obstructions. Evaluation by a quali ed chimney sweep is recommended as part of your due diligence.

Areas of concern

2.2.1 Roof Drainage Systems DOWNSPOUT LOCATIONS

Understand that gutters collect large volumes of water and discharge it to a relatively small location via downspouts. Ensure that downspouts are terminated to a location well away from the foundation. Water collecting near foundations contributes to issues with water intrusion into basements and crawlspaces, and foundation damage. Oftentimes underground piping is the best way e ectively transport roof water to an ideal location.

Recommendation

Contact a quali ed professional.

2.2.2 Roof Drainage Systems GUTTERS

The gutters were in poor overall condition due to mechanical damage and missing components.

Recommendation

Contact a quali ed professional.

351 Rindge Turnpike Michelle Parker Wachusett Home Inspection, LLC Page 8 of 38

2.3.1 Visible Roof Flashings

FRONT CHIMNEY PENETRATION

High moisture was detected and water staining was observed, indicating leakage. This is likely a ashing issue that should be investigated further.

Recommendation

Contact a quali ed professional.

351 Rindge Turnpike
Parker Wachusett Home Inspection, LLC Page 9 of 38
Michelle

2.4.1 Skylights, Chimneys & Roof Penetrations MASONRY CHIMNEYS

The chimneys should be evaluated further to determine the scope of repair needed prior to use. The rear chimney appeared to have a signi cant amount of creosote build-up pouring out of the clean-out access in the nished basement. The crown on this chimney also had a large gap between the ue liner (visible at the top, see photo).

The front chimney had combustible material installed at the top of the chimnney and will likely need a proper crown built. The replace was cracked and displaced for unknown reasons (the base of the chimney was not accessible).

The wood stoves were not inspected, but damage was readily apparent at the front stove.

Recommendation

Contact a quali ed professional.

351 Rindge Turnpike
Wachusett Home Inspection, LLC Page 10 of 38
Michelle Parker

section-OTIyNTg3MjYtOGQ0OC00YWQ5LWJmYzItMGIxM2IzNDI5YjRj

Limitations

Siding, Flashing & Trim FLASHINGS NOT VISIBLE

Understand that many ashings are hidden/covered by other materials and in many cases the inspector cannot con rm the presence or condition of ashings. Exposed ashings in readily accessible areas are typically what the inspector is commenting on.

Siding, Flashing & Trim

MULTIPLE LAYERS OF SIDING MATERIAL

The inspector was not able to positively identify underlying siding materials.

Decks, Balconies, Porches & Steps SNOW COVER

Decks, Balconies, Porches & Steps LIMITED ACCESS BENEATH DECK

351 Rindge Turnpike Michelle Parker Wachusett Home Inspection, LLC Page 11 of 38
& Trim: Siding Material
Multiple layers of siding material
Flashing & Trim: Trim Material Vinyl, Wood, Other
Balconies, Porches & Steps: Structures
framed deck with composite decking Walkways, Patios & Driveways: Driveway Material N/A 3: EXTERIOR INNINPAOC 3.1Vegetation, Grading, Drainage & Retaining Walls XX 3.2Siding, Flashing & Trim X 3.3Exterior Doors XX 3.4Decks, Balconies, Porches & Steps XX 3.5Walkways, Patios & Driveways X 3.6Window Wells and Areaways X 3.7Exterior Window Components XX IN = InspectedNI = Not InspectedNP = Not PresentAOC = Area of Concern Information
Siding, Flashing
Vinyl,
Siding,
Decks,
Wood

Decks, Balconies, Porches & Steps

NO ACCESS TO DECK ATTACHMENT POINT(S)

Walkways, Patios & Driveways

SNOW COVER

Walkways, Patios & Driveways

OVERGROWN VEGETATION

Areas of concern

3.1.1 Vegetation, Grading, Drainage & Retaining Walls

OVERGROWN VEGETATION

Vegetation should not be in contact with the structure, or placed too close to the structure. Trim or remove as needed.

Recommendation

Contact a quali ed professional.

3.1.2 Vegetation, Grading, Drainage & Retaining Walls

GROUND

SEVERAL

CONTACT WITH SIDING

Be sure to keep the soil level below the siding material. Ground contact can allow moisture and wood destroying insects access behind the siding and into the framing materials.

Understand concealed damage may exist in these locations.

Recommendation

Contact a quali ed professional.

351 Rindge Turnpike Michelle Parker Wachusett Home Inspection, LLC Page 12 of 38

3.2.1 Siding, Flashing & Trim SIDING

The vinyl siding was in poor overall condition due to missing sections, incomplete work, and generally low installation quality.

Recommendation

Contact a quali ed professional.

351 Rindge Turnpike
Parker Wachusett Home Inspection, LLC Page 13 of 38
Michelle

3.2.2 Siding, Flashing & Trim FRONT VENEER

The veneer was poorly installed, not well adhered, and showed evidence of poor installation practices that may lead to rot.

Recommendation

Contact a quali ed professional.

3.2.3 Siding, Flashing & Trim WINDOW TRIMS/SILLS

In many areas the window trims were not installed in a good and workmanlike manner, and showed evidence of deferred maintenance.

Recommendation

Contact a quali ed professional.

351 Rindge Turnpike
Parker Wachusett Home Inspection, LLC Page 14 of 38
Michelle

3.3.1

Exterior

Doors EXTERIOR DOORS

The exterior doors showed signs of aging/time/wear.

Recommendation

Contact a quali ed professional.

3.4.1 Decks, Balconies, Porches & Steps DECK

The deck stairs were unsafe and should not be used until they are replaced.

Recommendation

Contact a quali ed professional.

4: STRUCTURAL COMPONENTS

section-MGNlZWEzMTgtN2U5My00ZWRkLTk2MDQtMzlkNjM0ODA3ZDNl

Information

Foundation, Basement & Crawlspaces: Foundation Wall Material(s)

Stone and mortar, Concrete, Unknown due to limited access and nish materials

Materials are noted in accessible areas.

Floor Structure: Sub- oor Not accessible

Roof Structure & Attic: Material Planks, Plywood

Acess

Foundation, Basement & Crawlspaces: Basement/Crawlspace Floor Partial wood frame, Unknown due to nish materials

Floor Structure: Material Not accessible

Wall Structure: Material Conventionally framed, Not accessible

Ceiling Structure: Material Conventionally framed

351 Rindge Turnpike Michelle Parker Wachusett Home Inspection, LLC Page 15 of 38
INNINPAOC
XX
Structure X
Structure X
Structure X 4.5Roof Structure & Attic XX IN = InspectedNI = Not InspectedNP = Not PresentAOC = Area of Concern
4.1Foundation, Basement & Crawlspaces
4.2Floor
4.3Wall
4.4Ceiling

Partial Attic Access, Partial Basement

The inspector did not access spaces that compromised personal safety, or the safety of the structure.

Limitations

General LIMITED ACCESS - FINISHED BASEMENT

Finished walls and ceilings prevented/reduced access to electrical, framing, plumbing, and foundation walls. Finished basements also reduce access for wood destroying insect inspections.

General NO ACCESS TO CRAWL SPACE AREAS

Foundation, Basement & Crawlspaces

LIMITED ACCESS

Foundation, Basement & Crawlspaces

PYRRHOTITE

Pyrrhotite and other concrete contaminants are beyond the scope of a home inspection. Unless visual evidence of problems associated with crumbling concrete are visible and readily accessible at the time of inspection I have no way to know if this is a problem or may be a problem in the future. Common stress cracks, settling cracks, shrinkage cracks, etc., are not considered evidence of crumbling concrete without other supporting indicators.

If you are concerned about this for any reason, having an engineering rm perform a core test of the concrete is the most sure way to identify this problem that I'm aware of.

Foundation, Basement & Crawlspaces

FOUNDATION FOOTINGS AND DEPTH

I cannot determine the presence or integrity of foundation footings (they are buried), the presence or integrity of foundation drainage systems, or the depth of foundations/footings (i.e. shallow foundations).

Floor Structure

FINISHED BASEMENT

Floor Structure

NO CRAWLSPACE ACCESS

351 Rindge Turnpike Michelle Parker Wachusett Home Inspection, LLC Page 16 of 38

Wall Structure

NOT ACCESSIBLE

Ceiling Structure

LIMITED ACCESS

Roof Structure & Attic

LIMITED ACCESS

Roof Structure & Attic

SNOW COVER

Areas of concern

4.1.1 Foundation, Basement & Crawlspaces POSSIBLE MOLD

The basement bathroom walls and cabinitry was damaged by possible mold. Microbial growth is an indicator of excessive moisture that should be investigated further. Consult with a mold specialist.

Recommendation

Contact a quali ed professional.

351 Rindge Turnpike Michelle Parker Wachusett Home Inspection, LLC Page 17 of 38

SAGGING ROOF STRUCTURE

Unfortunately the snow covered roof could not be seen clearly to verify, but it appeared that the right side middle section of the roof may be sagging. What appeared to be an e ort to reinforce this area was noted in the attic space. Have a qual ed carpenter determine if repair/stabilization is required.  Recommendation

Contact a quali ed professional.

section-MGZlNjNlNWUtMTI1NC00ZjU4LWFjMTAtN2UwZDU3YTk2OTJk

351 Rindge Turnpike Michelle Parker Wachusett Home Inspection, LLC Page 18 of 38 Filters None Main Fuel Shut-O (Location) N/A Main Water Shut-O Device (Location) Utility room 5: PLUMBING INNINPAOC 5.1Fixtures / Faucets X 5.2Distribution Pipes X 5.3Drain, Waste, & Vent Systems XX 5.4Water Heater XX 5.5Vents, Flues, & Chimneys X 5.6Sump Pumps / Sewage Ejectors X 5.7Fuel Storage & Distribution Systems X 5.8Miscellaneous X 5.9Well System XX IN = InspectedNI = Not InspectedNP = Not PresentAOC = Area of Concern Information 4.5.1 Roof Structure & Attic POSSIBLE

Material - Distribution

Copper, Pex

Water Source

Well, Well Head Located

Material - Drain Pipes ABS (plastic), PVC (plastic)

Water Heater: Capacity 50 Gallons

Water Heater: Power/Fuel Source Electric Water Heater: Location Utility Room

Water Heater: Flue n/a

Water quality (private water source)

Material - Water Service

Appeared to be polyethylene

Water Heater: Approximate Age 2019

Water Heater: Temperature Pressure Relief Valve Installed

Understand that you are responsible for the quality of your drinking water. Routine water quality testing is recommended.

Drain, Waste, & Vent Systems: Consider sewer scoping

Consider having a plumber use a camera to scope the underground portion of the waste pipe to determine it's condition.

Limitations

General FINISHED BASEMENT

General WATER AND SEWER SERVICE PIPES

Buried pipes, tanks, and pumps are not accessible and are not inspected.

General SEPTIC SYSTEM

Septic systems and associated components are not inspected, and should be evaluated by a Massachusetts certi ed septic inspector.

General LIMITED ACCESS

General NO WATER PRESSURE/SUPPLY

351 Rindge Turnpike Michelle Parker Wachusett Home Inspection, LLC Page 19 of 38

Fixtures / Faucets

NO WATER

Distribution Pipes

NO WATER Water Heater

NO WATER Sump Pumps / Sewage Ejectors

SEWER EJECTION PUMP

Not inspected due to lack of access (sealed unit) and lack of water.

Areas of concern

351 Rindge Turnpike Michelle Parker Wachusett Home Inspection, LLC Page 20 of 38

5.3.1 Drain, Waste, & Vent Systems

PLUMBING DRAIN/WASTE/VENT

SYSTEM

The drain system was not piped in a good and workmanlike manner and will likely need to be re-piped for proper drain and sanitary function.

Recommendation

Contact a quali ed professional.

351 Rindge Turnpike
Wachusett Home Inspection, LLC Page 21 of 38
Michelle Parker

5.4.1 Water Heater WATER HEATER

The water heater appeared to be energized with no water and may be damaged. The temperature/pressure relief valve was not piped properly.

The water heater/utility room was not well insulated or heated and may be problematic (potential to freeze pipes) if the home is used year-round.

Recommendation

Contact a quali ed professional.

351 Rindge Turnpike Michelle Parker Wachusett Home Inspection, LLC Page 22 of 38

The well cap was not su cient to keep contaminants from entering the well. Debris and possible contaminants were observed inside the well. The well pump was corroded and disconnected.

Recommendation

Contact a quali ed professional.

section-OGZmZjJlMGQtZjdkYi00MTJlLTkwMmEtOThmN2Y2MzAzZTY2

Areas of concern

351 Rindge Turnpike Michelle Parker Wachusett Home Inspection, LLC Page 23 of 38 Heating Equipment: Brand N/A Heating Equipment: Energy Source Electric Heating Equipment: Heat Type In-wall electric heaters Distribution Systems: Type of Heat Distribution Partial electric heat 6: HEATING INNINPAOC 6.1Heating Equipment XXX 6.2Distribution Systems XX 6.3Vents, Flues & Chimneys X IN = InspectedNI = Not InspectedNP = Not PresentAOC = Area of Concern Information
5.9.1 Well System WELL

IN-WALL ELECTRIC HEATERS

Several rooms had electric heat sources that were in various states of disrepair.  Recommendation

Contact a quali ed professional.

6.2.1 Distribution Systems

Many areas of the home were without a permanent dependable heat source.

Recommendation

Contact a quali ed professional.

section-NmJkN2Q1NDgtNWFmYS00MDRkLWI3OWQtN2VlYWY2MGQwYzE1

351 Rindge Turnpike Michelle Parker Wachusett Home Inspection, LLC Page 24 of 38 7: ELECTRICAL INNINPAOC 7.1Service Entrance Conductors XX 7.2 Service and Grounding Equipment, Main Overcurrent Device, Main and Distribution Panels XX 7.3 Branch Circuit Conductors, Overcurrent Devices and Compatibility of Their Amperage & Voltage X 7.4Connected Devices and Fixtures XX 7.5Polarity and Grounding of Receptacles XX 7.6GFCI & AFCI XX 7.7Miscellaneous XX IN = InspectedNI = Not InspectedNP = Not PresentAOC = Area of Concern Information
6.1.1 Heating Equipment
HEAT

Branch Wire 15 and 20 AMP Copper, What appeared to be tinned copper

Service and Grounding Equipment, Main Overcurrent Device, Main and Distribution Panels: Panel Capacity

100 AMP

Mixed age system

Wiring Method

NM (non-metallic sheathed cable), Armored Cable

Service and Grounding Equipment, Main Overcurrent Device, Main and Distribution Panels: Panel Locations

Interior

Service Entrance Conductors:

Electrical Service Conductors

Overhead, Aluminum, 120 Volts, 240 Volts

Service and Grounding Equipment, Main Overcurrent Device, Main and Distribution

Panels: Panel Type

Circuit Breaker

Mixed age systems are common in older homes, and may require periodic updating.

Limitations

General CONNECTIONS

Understand that there are many connections at switches, outlets, junction boxes, etc., throughout the home that are not accessible to the inspector.

General KNOB AND TUBE REMNANTS

I cannot guarantee that live knob and tube wiring is non-existent in the house, regardless of the fact that no energized knob and tube wiring was found in accessible areas. It is not uncommon to discover live knob and tube wiring concealed inside walls and ceilings in an old house.

Branch Circuit Conductors, Overcurrent Devices and Compatibility of Their Amperage & Voltage LIMITED ACCESS

Polarity and Grounding of Receptacles CHECKING RECEPTACLES

I test a representative sample of receptacles throughout the home with the goal of uncovering widespread issues. Every receptacle is not checked, particularly in furnished homes.

Areas of concern

351 Rindge Turnpike Michelle Parker Wachusett Home Inspection, LLC Page 25 of 38

7.1.1 Service Entrance Conductors

SERVICE ENTRANCE

The electrical service was too low and should be raised to safe height. The service entrance cable was frayed and may need to be replaced. The service was not properly attached to the home.

Recommendation

Contact a quali ed professional.

351 Rindge Turnpike
Parker Wachusett Home Inspection, LLC Page 26 of 38
Michelle

7.2.1 Service and Grounding Equipment, Main Overcurrent Device, Main and Distribution Panels

ELECTRICAL PANEL

The electrical panel disconnect appeared to be oversized for the service entrance cable. The service entrance cable did not enter the panel safely (no bushing/strain relief).

The circuits were not identi ed/labeled.

Recommendation

Contact a quali ed professional.

351 Rindge Turnpike
Parker Wachusett Home Inspection, LLC Page 27 of 38
Michelle

7.5.1 Polarity and Grounding of Receptacles

IMPROPERLY WIRED RECEPTACLES

Improperly wired receptacles were observed sporadically throughout the home, indicating unprofessional work that should be investigated further.

Recommendation

Contact a quali ed professional.

351 Rindge Turnpike
Wachusett Home Inspection, LLC Page 28 of 38
Michelle Parker

7.6.1 GFCI & AFCI

ADDITIONAL GFCI PROTECTION; RECOMMENDED UPGRADE

Current safety standards recommend that GFCI devices protect basement receptacles, kitchen areas, bathrooms, exterior receptacles, laundry areas, and other areas where people are at a higher risk for electrocution. Consider having an electrician update to the latest standards.

(GFCI (ground fault circuit interruption) technology protects people from electrocution)

Recommendation

Contact a quali ed professional.

7.7.1 Miscellaneous NUMBER OF RECEPTACLES

As is common in older homes few receptacles were installed as compared to modern standards.This con guration often leads to the use of extension cords and power strips, which can be unsafe.

Recommendation

Contact a quali ed professional.

351 Rindge Turnpike Michelle Parker Wachusett Home Inspection, LLC Page 29 of 38

UNSAFE CONDITIONS

Evidence of unprofessional work and generallly unsafe installation practices were observed throughout the accessible areas of the home. Have an electrician comb through the electrical system and provide a scope of repair prior, which may be signi cant.

Recommendation

Contact a quali ed professional.

351 Rindge Turnpike
Wachusett Home Inspection, LLC Page 30 of 38
Michelle Parker
7.7.2 Miscellaneous

8: INTERIORS

section-OWY2MjkyNjctMTRlNi00MDA5LWIzN2ItZDdmZjk5MDI0MjMw

Information

Walls: Wall Material Gypsum board/plaster

Floors: Floor Coverings

Tile, Vinyl, Wood

Windows: Mixed Age/Model

Windows

Cosmetic defects

Ceilings: Ceiling Material Gypsum board/plaster

Windows: Window Type Double hung thermal pane windows, Wood framed windows

Ceilings: Minor ceiling cracks noted.

Windows: Window Manufacturer Unknown

Cosmetic defects inside the home are generally not reported on as they should be readily apparent to the untrained eye. Occasionally cosmetic defects are pointed out, particularly if they are part of what may be a larger problem.

Areas of concern

351 Rindge Turnpike Michelle Parker Wachusett Home Inspection, LLC Page 31 of 38
INNINPAOC 8.1Walls XX 8.2Ceilings X 8.3Floors XX 8.4Steps, Stairways & Railings X 8.5Doors XX 8.6Windows XX IN = InspectedNI = Not InspectedNP = Not PresentAOC = Area of Concern

8.1.1 Walls

POSSIBLE WATER DAMAGE

Staining and possible mold was observed on the wall paneling in the front left room. The moisture source was not readily apparent and should be investigated further.

Recommendation

Contact a quali ed professional.

351 Rindge Turnpike
Parker Wachusett Home Inspection, LLC Page 32 of 38
Michelle

8.3.1 Floors

FRONT LEFT ENTRY/"KITCHEN" AREA

The ooring was damaged and the sub oor had high moisture levels. Understand further concealed damage likely exists in this area (I had no access to framing beneath to investigate further).

Recommendation

Contact a quali ed professional.

351 Rindge Turnpike
Parker Wachusett Home Inspection, LLC Page 33 of 38
Michelle

8.3.2 Floors

FRONT BATHROOM FLOOR

Cracked and loose tiles were noted in this area.

Recommendation

Contact a quali ed professional.

8.5.1 Doors

MISSING DOOR NOTED

Recommendation

Contact a quali ed professional.

351 Rindge Turnpike
Wachusett Home Inspection, LLC Page 34 of 38
Michelle Parker

8.6.1

The windows were in overall poor condition due to time and wear related issues such as di cult operation, broken components, failed thermal seals, etc.

Recommendation

Contact a quali ed professional.

section-OTk0MmEzZDQtNmI5MC00ODU0LWFiNmQtM2U2NmI3MzI2MjM2

Information

Limitations

Dishwasher

PARTIAL CYCLE

I started a normal wash cycle to ensure the unit lled with water and ran, and canceled the cycle to ensure the machine drained and was not left running. The machine was not run through a full cycle.

351 Rindge Turnpike Michelle Parker Wachusett Home Inspection, LLC Page 35 of 38 Range/Oven/Cooktop: Range/Oven Energy Source Electric Range/Oven/Cooktop: Exhaust Hood Type None 9: BUILT-IN APPLIANCES INNINPAOC 9.1Dishwasher X 9.2Refrigerator X 9.3Range/Oven/Cooktop XX 9.4Garbage Disposal X IN = InspectedNI = Not InspectedNP = Not PresentAOC = Area of Concern
Windows WINDOWS

Areas of concern

9.3.1 Range/Oven/Cooktop MULTIPLE

ELECTRIC RANGES

Multiple electric ranges were installed, but there did not appear to be an adequate number/type of circuits in the electrical panel to support more than one range. Further investigation is recommended.

Recommendation

Contact a quali ed professional.

10: INSULATION AND VENTILATION

section-ZDM0ZWY3YWQtM2YwZi00YWMyLWFmMjEtNGM4YzA1NGEyNjkw

INNINPAOC

10.1Attic Insulation XX

10.2Ventilation X

10.3Exhaust Systems XX

IN = InspectedNI = Not InspectedNP = Not PresentAOC = Area of Concern

Information

Dryer Power Source

240 electric, Older style three prong plug

Exhaust Systems: Exhaust Fans Bath fans, Clothes dryer

Dryer ductwork

Attic Insulation: Insulation Type Fibrous batts

Exhaust Systems: Fans Exhausted To Exterior? No

Flexible vent (recommend upgrading)

Ventilation: Ventilation Type Ridge Vents, Turbines, Thermostatically Controlled Fan

Smooth rigid metal tubing is the recommended dryer duct material. Only use exible joints where necessary.

Dryer Lint

Be sure to keep your clothes dryer venting system clean. Dryer lint buildup causes many preventable res each year.

Dryer receptacle upgrade

Four prong receptacles are safer than three prong receptacles. Consider upgrading your dryer receptacle if it's an older three prong type.

Ventilation: Mass Save

Consider having a free energy audit performed by MassSave (if available in this area) to learn more about the current insulation and ventilation throughout the home (particularly in areas we can't see, such as inside walls).

Ventilation: Ventilation

No evidence of inadequate ventilation was observed at the time of inspection.

Ventilation: Inspect regularly

Attic spaces should be inspected routinely as part of home maintenance in other to catch emerging problems early.

351 Rindge Turnpike Michelle Parker Wachusett Home Inspection, LLC Page 36 of 38

Limitations

General INSULATION

Understand that the inspector can only evaluate insulation in readily accessible areas, such as open attics, and not inside wall cavities.

Attic Insulation

LIMITED ACCESS

Attic Insulation

WALL INSULATION UNKNOWN

Attic Insulation

ATTIC INSULATION

I did not dig through or otherwise disturb the insulation to determine if other forms/types of insulation existed below the visible top layer.

Ventilation

THERMOSTATICALLY CONTROLLED FAN

Thermostatically controlled attic vent fans are not inspected.

Areas of concern

10.1.1 Attic Insulation

AIR BYPASSES

Several areas where conditioned air could escape to the unconditioned attic were observed. An insulation contractor should perform air sealing as needed throughout the attic space(s). Consider having a free energy audit by MassSave (if available in this location), as they may do this work at no cost.

Note: Air bypasses cause signi cant energy loss and are a common contributor to moisture/mold issues in unconditioned attics.

Recommendation

Contact a quali ed professional.

351 Rindge Turnpike Michelle Parker Wachusett Home Inspection, LLC Page 37 of 38

10.1.2 Attic Insulation

INADEQUATE INSULATION

The attic insulation depth was minimal and should be improved.

Recommendation

Contact a quali ed professional.

10.3.1 Exhaust Systems CLOTHES DRYER DUCT WORK

Clothes dryers should be vented directly to the exterior through 4 inch rigid metal ductwork. Flexible connections should be limited to the point of connection at the appliance, if they are necessary at all, and should be constructed of high quality material.

Recommendation

Contact a quali ed professional.

10.3.2 Exhaust Systems BATH FANS

Bathroom fans should vent directly to the exterior via the shortest route possible.

Recommendation

Contact a quali ed professional.

351 Rindge Turnpike Michelle Parker Wachusett Home Inspection, LLC Page 38 of 38

Turn static files into dynamic content formats.

Create a flipbook
Issuu converts static files into: digital portfolios, online yearbooks, online catalogs, digital photo albums and more. Sign up and create your flipbook.
Showing Book 351 Rindge Turnpike Ashburnham by RE/MAX Liberty - Issuu