LIBRETO DE INTERIORISMO

Page 1

LIBRERTO DE INTERIORISMO

Estefanía Ruiz Velázquez 2005814 Adrián Israel Martínez Escalante 1855717

CONCEPTO

El concepto de diseño busca fusionar la robustez y funcionalidad de la arquitectura industrial con un ambiente universitario acogedor, utilizando materiales como acero expuesto, concreto visto y ladrillo, que aportan durabilidad y autenticidad. La inclusión de madera recuperada y amplias superficies de vidrio equilibra la frialdad de los materiales industriales, proporcionando calidez y luminosidad. Además, la incorporación de vegetación es fundamental para contrarrestar la alta contaminación de la zona, creando un microclima saludable y agradable. Este enfoque no solo fomenta la creatividad y la colaboración entre los estudiantes, sino que también ofrece una atmósfera hogareña y reconfortante, propiciando un sentido de comunidad y pertenencia, al tiempo que mejora la calidad del aire y el bienestar general.

RECEPCION COMEDOR COCINA

Iluminación indirecta con luminarias empotradas

Iluminación directa con candil.

2 3 1 1 2 3
Cerámico en piso tipo madera Vigas de Madera en techo

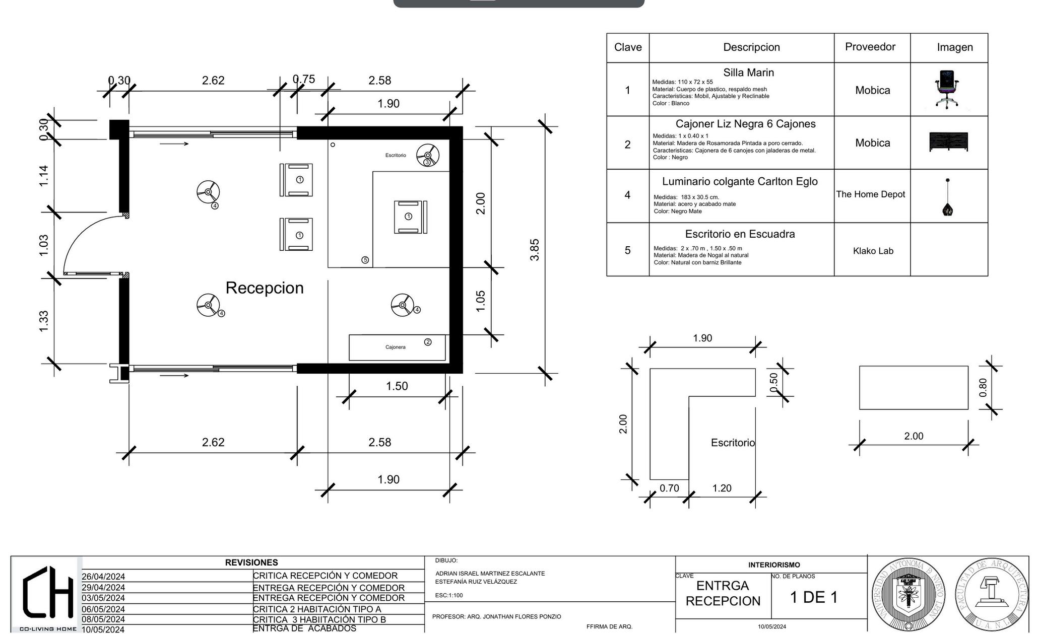
Escritorio en Escuadra

Medidas: 2 x .70 m , 1.50 x .50 m

Material: Madera de Nogal al natural

Color: Natural con barniz Brillante

MOBILIARIO

RECEPCION

Silla Marin

Medidas: 1 x 0.40 x 1

Material: Madera de Rosamorada Pintada a poro cerrado.

Caracteristicas: Cajonera de 6 canojes con jaladeras de metal.

Color : Negro

Cajoner Liz Negra 6 Cajones

Medidas: 110 x 72 x 55

Material: Cuerpo de plastico, respaldo mesh

Caracteristicas: Mobil, Ajustable y Reclinable

Color : Blanco

Iluminación indirecta con luminarias empotradas

Iluminación directa con candil.

Cerámico en piso tipo madera

Losacero expuesta en techo

Muros de Ladrillo sin recubrimiento

Fijos de Cristal de piso a techo

Madera Acero Vidrio 1 3 2 Ladrillo 4 4
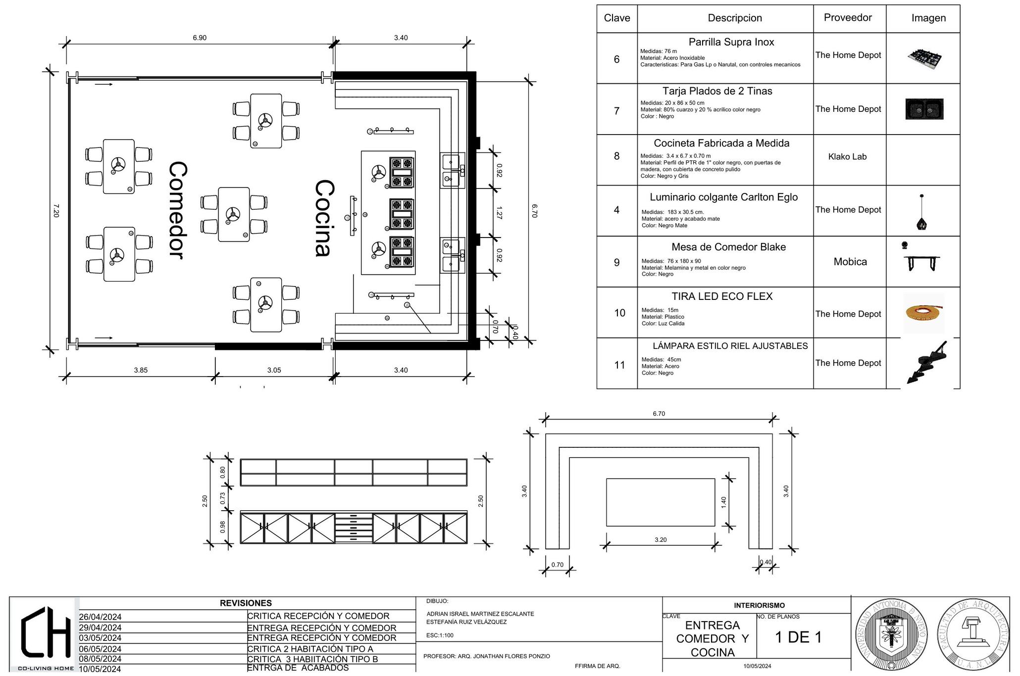
COMEDOR

Iluminación indirecta con luminarias empotradas Iluminación directa con luminarias ajustables, con riel

Cerámico en piso tipo madera

Piso de concreto Pulido Losacero expuesta en techo

Muros de Ladrillo sin recubrimiento

Fijos de Cristal de piso a techo

1 2 3 Madera Acero Ladrillo Cristal 4 Concreto pulido 5 3 5 1 2
COCINA

Parrilla Supra Inox

Medidas: 76 m

Material: Acero

Inoxidable

Caracteristicas:

Para Gas Lp o

Narutal, con controles mecanicos

MOBILIARIO

COCINA Y COMEDOR

Tarja Plados de 2 Tinas

Medidas: 20 x 86 x

50 cm

Material: 80% cuarzo y 20 % acrílico

color negro

Color : Negro

Silla Tulipe SPR Mesa de Comedor Blake

Medidas: 48 x 83 x 48.5 cm

Material:

Polipropileno, metal lacado

Color : Blanco

Medidas: 76 x 180 x

90

Material: Melamina y metal en color negro

Color: Negro

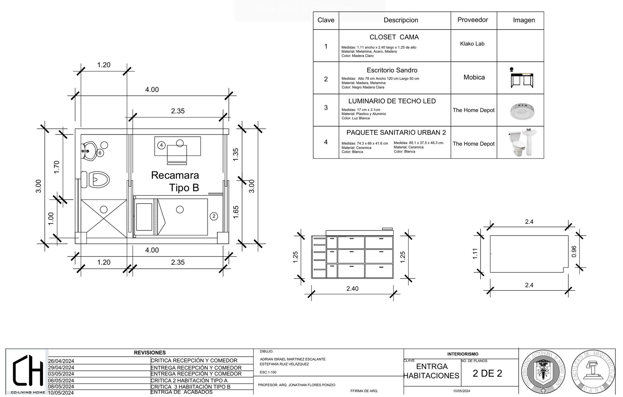
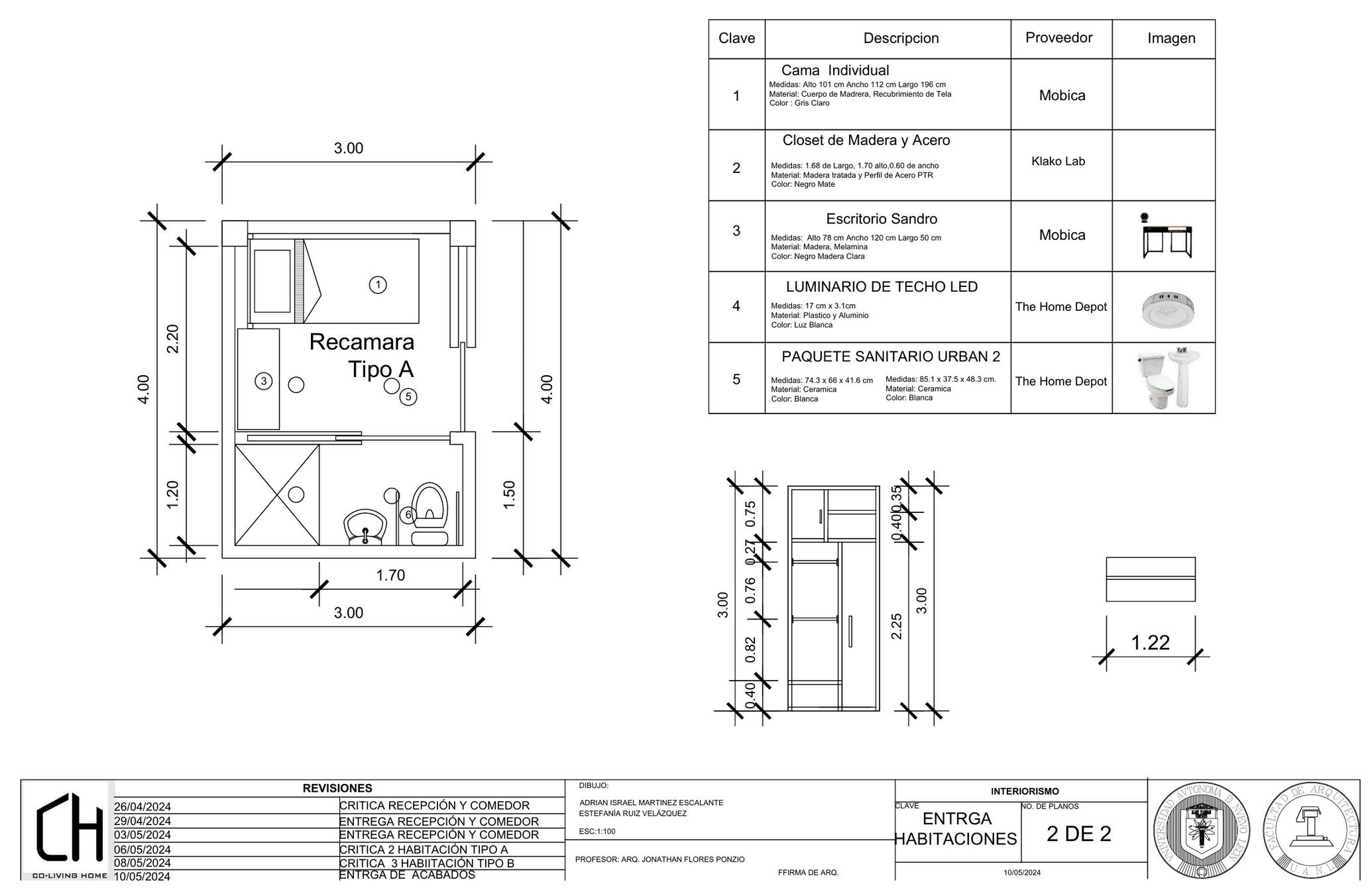
HABITACION TIPO A HABITACION TIPO B

Iluminación indirecta con luminarias empotradas

Cerámico en piso tipo madera

Cielo con Plafón

Muros de Ladrillo sin recubrimiento

Base de cama - Clóset

Sistema de puerta con riel oculta en miro

1 2 3 4 4 3 1 2 HABITACION TIPO A Madera Acero Ladrillo Concreto Cristal 4 5 5

Iluminación indirecta con luminarias empotradas Cerámico en piso tipo madera

Cielo con Plafón

Muros de Ladrillo sin recubrimiento

Base de cama - Clóset

Sistema de puerta con riel oculta en miro

4 3 1 2 HABITACION TIPO B 1 2 3 Madera Acero Ladrillo 4
Concreto

MOBILIARIO

HABITACION TIPO A Y B

Escritorio Sandro Retrete Lavabo

Medidas: Alto 78 cm Ancho 120 cm

Largo 50 cm

Material: Madera, Melamina

Color: Negro Madera Clara

Closet de Madera y Acero

Medidas: 1.68 de Largo, 1.70

alto,0.60 de ancho

Material: Madera tratada y Perfil de Acero PTR

Color: Negro Mate

Medidas: 74.3 x 66 x 41.6 cm

Material: Ceramica

Color: Blanca

Medidas: 85.1 x 37.5 x 48.3 cm.

Material: Ceramica

Color: Blanca

Closet cama

Medidas: 1.11 ancho x 2.40

largo x 1.25 de alto

Material: Melamina, Acero, Madera

Color: Madera Claro

Cama individual

Medidas: 1.11 ancho x 2.40

largo x 1.25 de alto

Material: Melamina, Acero, Madera

Color: Madera Claro

1

Turn static files into dynamic content formats.

Create a flipbook
Issuu converts static files into: digital portfolios, online yearbooks, online catalogs, digital photo albums and more. Sign up and create your flipbook.