Jennifer Hojung Kim Portfolio

Page 1

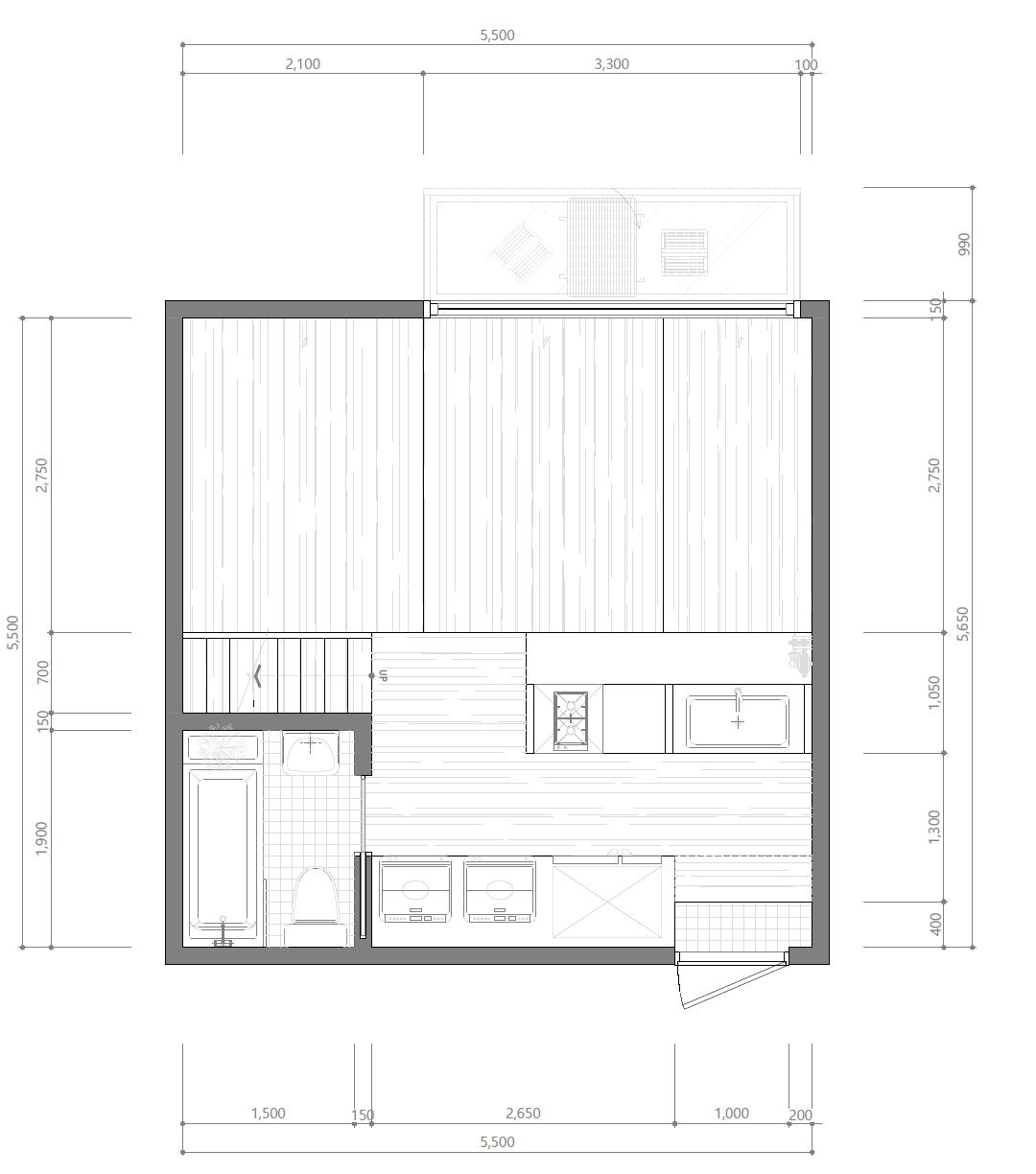
Jennifer’s Studio

PROJECT: Floor Plan

MADE BY: Jennifer Kim

PROJECT

ADDRESS: Providence, RI

SCALE:

PROJECT no. : P001

DATE: 06.01.23-08.31-24

DRAWING no. :

N
A001

PROFILE

Jennifer Kim

Bachelor of Architecture

Experienced architecture professional with a proven track record of delivering innovative and visually compelling design solutions. Possessing a blend of creative flair and technical expertise, adept at leveraging cutting-edge software tools and industry best practices to streamline project workflows. Strong communication and collaboration skills, demonstrated through successful cross-functional teamwork. Passionate about creating spaces that inspire and enhance the human experience. Ready to contribute design excellence and strategic insight.

EDUCATION

RHODE ISLAND SCHOOL OF DESIGN, US | September ‘19 - June ‘24

Bachelor of Architecture

RISD-BROWN Golf Club Communication Officer | September ‘21- September ‘22

WORK EXPERIENCE

Internship at SKM Architects - Seoul, South Korea | June ‘23 - August ‘23

• Produced schematic diagrams crucial for external meetings and prestigious architectural competitions, demonstrating proficiency in visual communication and design thinking.

• Enhanced project efficiency by meticulously editing 3D model files using Sketchup, ensuring accuracy and relevance in a fast-paced architectural environment.

Internship at JOHO ARCHITECTURE - Seoul, South Korea | June ‘22 - August ‘22

• Spearheaded the creation of comprehensive diagrammatic drawing sets for high-profile projects, strategically tailored for publication on esteemed platforms like ArchDaily, showcasing adeptness in project documentation and presentation.

• Facilitated seamless communication by translating and refining text documents for external presentations, ensuring clarity and consistency in messaging across diverse audiences.

• Demonstrated organizational prowess by crafting intricate scale models and managing exhibitions, including showcasing at the prestigious Future Architecture exhibition, showcasing strong project management and presentation skills.

Department position at WEBSITE & SOCIAL MEDIA COORDINATOR - Providence, US | September ‘22 - June ‘23

• Collaborated closely with department professors to conceptualize and execute engaging content for departmental social media platforms, amplifying outreach and engagement within the academic community.

FINE ARTS TUTOR - Remote instruction | December ‘20 - September ‘22

Privately employed tutor

• Guided students in fine arts portfolio development, resulting in selections for solo exhibition finalist at Art Show International Gallery, highlighting exceptional teaching abilities and student success.

Part-Time Primary School Tutor at GENIUS AVENUE PARK - Seoul, South Korea | June ‘22

• Designed and implemented comprehensive weekly teaching plans for students in grades K to 5, focusing on advanced English grammar, writing, and reading skills, demonstrating a commitment to academic excellence and student development.

CAD Lab Monitor | September ‘23 - Curr.

• Diligently managed CAD lab operations, including monitoring print machines and inventory management, ensuring smooth workflow and resource optimization.

LASER MONITOR - Providence, US | February ‘22 - June ‘23

• Implemented stringent safety protocols and rectified file formats as a Laser Monitor, ensuring compliance with safety standards and efficient utilization of resources.

jen@hojungkk.com

hojungkk.cargo.site linkedin.com/hojungkk

SKILLS & EXPERTISE

2D

Adobe Photoshop

Adobe Illustrator

Adobe Indesign

AutoCAD

Digital Photography

Figma

Laser Cutting

3D

Casting Enscape Model Making

Sketchup

Rhinoceros 3D

VRay Render Woodworking

As an architecture student, I am dedicated to creating sustainable and livable spaces that not only meet the needs of their users but also enhance the surrounding community. With a strong background in design and computeraided design, I am passionate about using my skills to find unique solutions for each project. I strive to understand the unique needs and preferences of each stakeholder and to communicate my vision through detailed drawings and models. My technical skills are matched by my ability to think creatively and I am excited to continue to grow as a designer and make a positive impact in the field of architecture.

1 3 5 2 4 6

Table of Contents

page no.

title project typ.

pg 7--15

pg 16--23

pg 24--29

pg 30--37

pg 38--43

pg 44--51

Web Path

Flood Resilience

Met Lounge competition urban ecologies interior design

Brine Treatment border architecture

Angler Lamp furniture

Share A Space ui/ux

05

Web Path

The web project is a neighborhood research project focused on addressing the affordable housing crisis in the West End of Providence. The project team identified a key site located on the intersection of Wilson and Fuller Street, which is currently occupied by a homeless camp. The team’s goal is to design an apartment complex that addresses the needs of low-income individuals, particularly young employed or unemployed adults. The complex will consist of 24 units to accommodate this population, providing safe, affordable and sustainable housing.

in collaboration with Michael Hothan and Ashur Clark
Web Path 07

“Affordable housing is not a ‘niche’ or a ‘specialty.’ It’s not a ‘poor relation’ of conventional housing. It’s a fundamental right and an essential component of any civilized society.” - Richard Rogers,

One of the key focus of the project was to improve the residents’ mental wellbeing. The design process was guided by the principle of creating spaces that foster a sense of community, connection and tranquility. The design features multiple communal spaces, including a community garden, shared living room, and a rooftop terrace.

Additionally, the project team also developed a master plan that includes pathways connecting various programs and community resources. These paths have been designed to incorporate pocket spaces for vegetation, creating a sense of greenery and tranquility. These pathways also promote walkability, encouraging residents to explore the neighborhood and foster a sense of community engagement. The project is aimed to not only provide housing for the low-income individuals but also help improving the community and overall wellbeing of the neighborhood.

1. Typical Path 3. Paths with ADA-friendly ramps 5. Open paths and community 2. Path connecting to different areas 6. Path extended to community areas
Web Path 09
4. Outdoor resting areas

The path feeds into various units, with the primary housing at the intersection of Warren and Fuller St. This is where both the homeless population and low income individuals, especially young employed or unemployed adults like ourselves, reside as well as vital support centers to prioritize their wellbeing. There are 24 units in total. The external path flows into the central housing complex where it circulates into the courtyard and through a corridor which feeds into Fuller St. The language of the path feeds into how the units are laid out. Units generally engage public spaces through direct entrance from the path or the public street. In upper floors many of the units open to a balcony or corridor which engages the courtyard below.

The ground floor supports ADA groups and utilizes entrances open to communal and public spaces to enhance neighbor interaction. In the section model the left unit engages Warren st. while the right unit engages the courtyard and the path.

Therefore, there are connections of houses to programs, walkways to nature, extension of borders, and sidewalks to roads.

Web Path 11
INTERIOR MODEL
Ground Floor Plan Web Path 13
Web Path 15

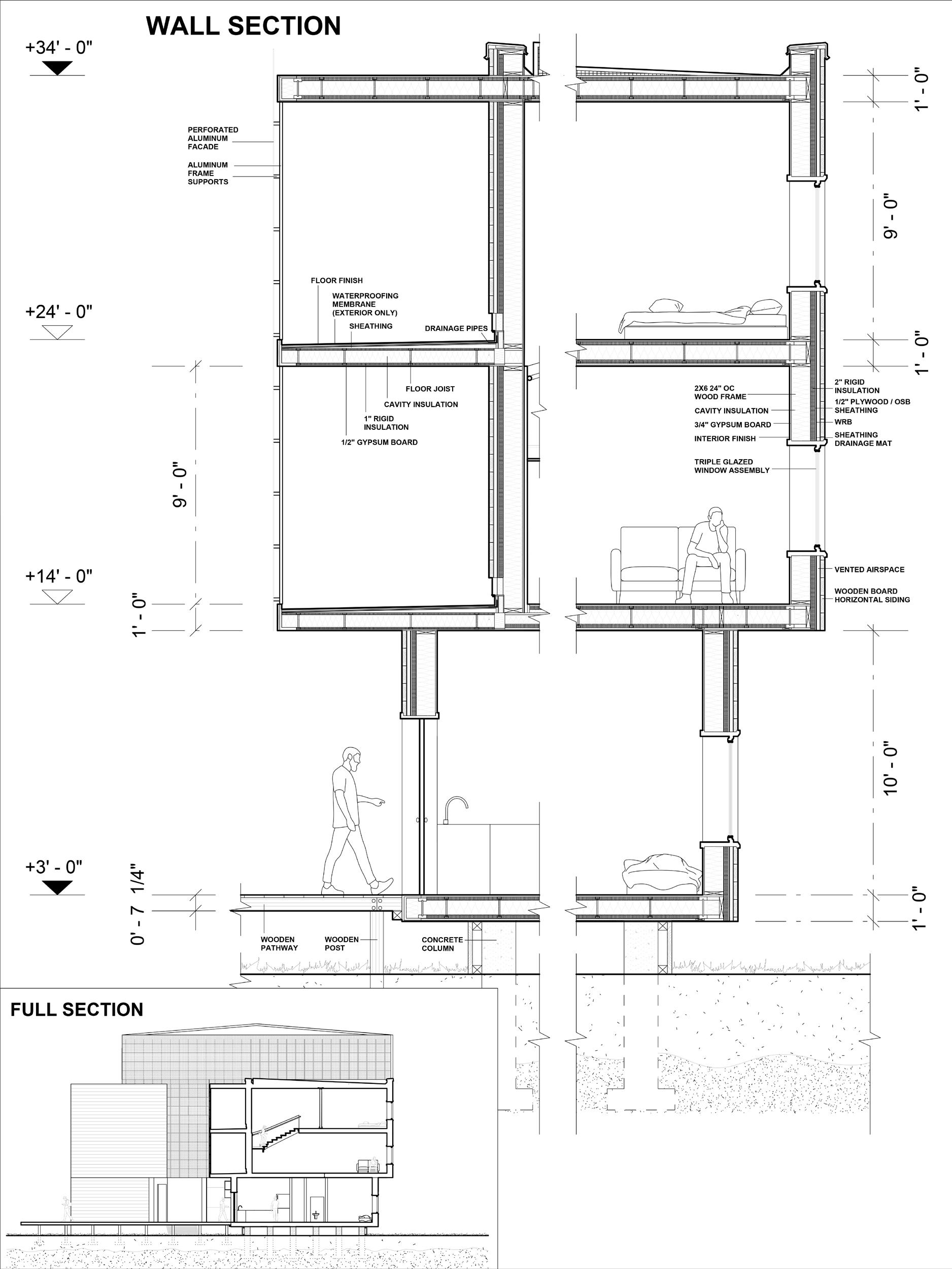
Flood Resilience

in collaboration with Changsong Li and Donghyun Kim

Han River wraps around Seoul, and the houses with views to this body of river are reserved for the high class.

The problem at stake for housing, or providing housing of value for the middle class has been difficult as various factors such as changes in housing policies which affect ownership and increase in the housing market.

Flood Resilience 17

HAN RIVER DIVIDES SEOUL AND FLOODS DURING THE MONSOON SEASON. TO SOLVE FLOODING, ELEVATED HOUSING IS INCORPORATED TO THE VACANT ARTIFICIAL PARK.

01. FLOODING

Affordable housing has been an issue that has only been ongoing. In order to solve homelessness and affordability issues, micro-housing is one possible solution.

South Korea especially faces this global issue. Despite the minimum wage rise and many pro-housing legislations, the houses are still unaffordable to the greater community.

The primary objective of this project was to develop a design strategy for areas that are highly susceptible to flooding, in anticipation of the increased frequency of this phenomenon as a result of climate change.

Keeping mind of the monsoon season in the hot summers, the water system is accommodated by the rise of the pathways. This allows access for water to flow underneath.

The layout is modular with systematic furniture units that can be retracted. The floor mimics a sliding door that can maximize the living area space in the daytime, which can become a sleeping area.

The roof is added to provide views of the river, solar panels provide eco-efficient energy for the housing structure.

Flood Resilience 19

1 solar panel

2 roof top garden

3 study zone

4 kitchen

5 ceiling embedded furniture

6 slidingg floor plate

-----------------------------------------1 -----------------------------------------2 ---------------------------------------------3 ---------------------------------------------4 -----------------------------------------------5 -----------------------------------------------6

The repetition of box-like structures is an efficient solution for affordable housing issues as it reduces costs associated with design, construction, and maintenance. Standardized units can be replicated quickly, using efficient methods such as prefabrication and modular construction. This can increase speed of construction, decrease the need for skilled labor, and lead to economies of scale. Additionally, this simple design enables easy maintenance and repair, making it a cost-effective solution in the long-term.

Flood Resilience 21
Flood Resilience 23

Brine Treatment Plant Regeneration

At the immediate site is the Kay Bailey Hutchinson Desalination Plant, where fresh water is produced daily for the East El Paso, TX. Through processes such as reverse osmosis, millions of gallon of brackish water is filtered and separated into drinking water and brine concentration. This brine concentration, proved to be toxic to plants and soil is disposed temporarily at the immediate site, adjacent to the plant.

Brine Treatment Plant Regeneration 25

Brine is a contaminant, unless treated otherwise; into a resource.

By treating the brine, this can be a source of new energy for the greater region. It has the opportunity to produce or be:

1. sodium sulfur batteries: which can be used as a medium to power houses or cars

2. clean brine: which can be extracted as power sources

The development of a specialized device was designed to accurately measure the range of impact caused by the brine contaminant at the site. To conduct our experiments, we established the control variable as the brine collected from the nearby brine pond, while the variables consisted of soil samples gathered not only from the intervention site itself but also from several surrounding parks in the area.

The intervention of the device not only tackles the harmful effects of brine on the soil but also addresses the significant amount of brackish water processed at the plant. By converting the brine into valuable products such as sodium sulfur batteries and salt blocks, the project not only reduces environmental harm but also generates electricity and provides locally sourced building materials. This multifaceted approach not only contributes to a reduced carbon footprint but also creates job opportunities and fosters economic growth.

From the results, the step forward then was to design a treatment plant to foster the community and approach a solution to solve the envrionmental impact.

Brine Treatment Plant Regeneration 27
Kay Bailey Hutchison Desalination Plant 31.805653448848343, -106.328172676166 Brine Treatment Plant Regeneration 29

Met Lounge

The Met Lounge is a small lounge in the center of the freshmen dormitories at Rhode Island School of Design. Before Covid, it was a place for students to socialize and study. Currently, it is the least favorite among students as a go-to place as the space is not cohesiive. The design strategy was to make the place more friendly, in considering user flow and sub-dividing the spaces through furniture and a warm color scheme.

Met Lounge 31
Met Lounge 31
35 Met Lounge
Met Lounge 37

Angler Lamp

The designed lamp is inspired by one of the articulate pieces of the Mid-Century-the Flor Arco Floor lamp, as well as my personal interest---the anglerfish. The hanging bulb desrives from its protruding lighting appendage. The curving ‘arm’ mimics a construction crane. In contrast to the heavy base of the original piece, I re-imagined a typical floor lamp using a lighter base language. The protuding arm is to account for different needs for lighting, in contrast to many floor lamps which is unable to hover.

39 Angler Lamp

ANGLER LAMP

floor lamp
Mid Century Furniture
Mid-Century
characteristics.
2023
JENNIFER
design
Making Floor lamp derivative of
design
Inspired by the crane and the...anglerfish.
41
01 Angler Lamp
x2 x5 x4 x2 x2 x4 x1 x1 x1 x1 x32 x8 x1 x3 x1

Share a Space

Share A Space offers a virtual market for spare space that appeals to college students for cost, accessibility, safe appeal. It also offers both institutions and homeowners easily repurpose spaces which can now bring revenue. It is an easy, affordable, and accessible alternative to storage unit for students while homeowners can make more efficient use of spare space and earn extra money.

Share a Space 45
Share a Space 47

Heading1

Heading2

Heading3

Readability: Inter is designed specifically for digital use, and its clean, modern lines make it easy to read on screens of all sizes.

Clarity: Inter has a clear, open design that allows for easy recognition of letterforms, making it particularly well-suited for use in small sizes or on low-resolution displays.

Blue makes you feel safe and relaxed. Blue evokes feelings of calmness and spirituality as well as security and trust. Seeing the color blue causes the body to create chemicals that are calming. Great examples are social sites like Facebook and Twitter, which use blues.

36A2DC FFFFFF -
E58B07 000000
Paragraph icon
Share a Space 49
Share a Space 51

Turn static files into dynamic content formats.

Create a flipbook
Issuu converts static files into: digital portfolios, online yearbooks, online catalogs, digital photo albums and more. Sign up and create your flipbook.