Hoje Macau 26 JUNHO 2023 #5277

Page 1

Trabalhos esforçados

Cortes salariais sem reposição, longos períodos de laboração e ausência de perspectivas de subida na carreira, fazem com que muitos dos trabalhadores de Macau atravessem actualmente uma situação stressante e se debatam com dificuldades económicas. As conclusões fazem parte de um inquérito realizado pela FAOM, entre Abril e Maio, que contou com a participação de 435 trabalhadores.

www.hojemacau.com.mo • facebook/hojemacau • twitter/hojemacau DIRECTOR CARLOS MORAIS JOSÉ MOP$10 SEGUNDA-FEIRA 26 DE JUNHO DE 2023 • ANO XXI • Nº5277 ECONOMIA INFLAÇÃO AO RUBRO ELEIÇÕES EXCLUSÃO
IC | ESPECTÁCULOS O ESPÍRITO
PÁGINA 5 LIVROS LETRAS E JUÍZOS ÚLTIMA PÁGINA 2 EVENTOS CHINA
GLOBAIS PÁGINAS 10-11 PÁGINA 4 PORTUGAL | CHINA TUDO EM ORDEM PÁGINA 3 A ARQUITECTURA TRADICIONAL NA CHINA Cláudia Ribeiro AP
DE PARTES
DE HAINAN
COMPROMISSOS

ELEIÇÕES GOVERNO DIZ QUE RECURSO DE EXCLUSÃO AMEAÇA SEGURANÇA NACIONAL

Sem mais volta a dar

INUNDAÇÕES RON LAM PEDE MEDIDAS EM LOCAIS CRÍTICOS

AS autoridades afirmaram na sexta-feira que autorizar o recurso dos candidatos excluídos das eleições por serem tidos como ‘antipatriotas’ constituiria “uma ameaça à segurança nacional”.

A proposta do Governo de revisão da lei eleitoral prevê que não é permitido apresentar reclamação nem interpor recurso contencioso junto dos tribunais, sendo que a desqualificação é válida para “pelo menos cinco anos”, disse o secretário para a Administração e Justiça, André Cheong.

Durante uma sessão na Assembleia Legislativa (AL), no âmbito de uma consulta pública a decorrer até 29 de Julho, um assessor do secretário, Wu Ka Wai, alegou que tornar públicas, em tribunal, as razões para a exclusão de um candidato, colocaria em perigo a segurança do Estado chinês.

A única voz que questionou a opção, o deputado Ron Lam, defendeu que deveria ser mantido o direito de recurso, “até porque esta é a melhor forma de assegurar um equilíbrio entre a segurança nacional e a protecção dos candidatos”.

Todos os outros 14 deputados que pediram a palavra na sessão de sexta-feira demonstraram “apoio pleno” à revisão eleitoral, incluindo a criminalização do “incitamento público ao acto de não votar, votar em branco ou nulo”.

Caça ao internauta

Wu Ka Wai disse ainda que será crime fazer este tipo de apelo “através de redes sociais” ou ao

“reencaminhar mensagens electrónicas” e defendeu que o incitamento iria “influenciar a ordem eleitoral e afectar as eleições”.

O assessor sublinhou também que os autores de apelos que se encontrem fora de Macau poderão ser alvo de um pedido de extradição: “A internet não é um lugar fora da lei”.

O jurista António Katchi disse à Lusa que a proposta é “uma restrição inconstitucional da liberdade de expressão”.

O português defendeu que “não faz sentido proibir, muito menos criminalizar, o incitamento à prática de actos lícitos” e que apelar à abstenção, o voto em branco e o voto nulo “mais justificável se torna, quando há candidatos excluídos por razões políticas”.

Em 2021, a Comissão Eleitoral de Macau excluiu cinco listas e 20 candidatos das eleições para a AL, 15 dos quais associados ao campo

Um assessor de André Cheong sublinhou que os autores de apelos ao voto nulo ou branco que se encontrem fora de Macau poderão ser alvo de um pedido de extradição

pró-democracia, por não serem “fiéis” ao território e à China. Macau registou então a mais alta taxa de abstenção (quase 58 por cento) nas eleições para a AL desde que foi criada a região chinesa. As autoridades justificaram a situação com as restrições pandémicas e o mau tempo sentido no território.

Mais crimes Por sua vez, o deputado Ip Sio Kai defendeu que a revisão da

lei eleitoral deveria incluir o desrespeito pelo hino, bandeira e exército chineses como razões para a exclusão. A lei do hino e da bandeira nacional, revista em Macau em 2019, prevê uma pena de prisão até três anos para quem “pública e intencionalmente, ultrajar os símbolos e representações nacionais” da China.

André Cheong defendeu que os critérios aplicados nas últimas eleições “surtiram efeito”, mas admitiu “uma insuficiência notória dos mecanismos de verificação dos candidatos”.

As alterações, que seguem o regime eleitoral de Hong Kong, prevêem que a verificação “da existência de violação do dever de defesa ou de fidelidade” por parte dos candidatos a chefe do Governo e deputados passe a ser feita pela Comissão de Defesa da Segurança do Estado.

Odeputado

Ron Lam pediu ao Governo para tomar medidas que resolvam o problema das inundações nas zonas críticas da cidade, nomeadamente na área do templo de Lin Fong, na Avenida do Almirante Lacerda, e na estrada em frente ao Canídromo.

Face ao aproximar de mais uma época de inundações, Ron Lam questionou se o Governo fez um estudo sobre os factores que levam ao surgimento do fenómeno nas zonas críticas e como este pode ser resolvido.

O legislador perguntou também se a estação elevatória de águas pluviais no sul do Porto Interior está terminada e como vai contribuir para reduzir as inundações. No caso de a estação não estar terminada, Lam pede medidas temporárias para evitar ou reduzir o impacto das inundações.

A interpelação serviu igualmente para o deputado questionar os procedimentos dos mecanismos de resposta às cheias. Em causa, estão os acontecimentos de 14 de Junho, quando a chuva intensa causou inundações na Rua da Ponte Negra, na Taipa. Ron Lam considerou que a drenagem do local foi demasiado lenta, pelo que quer perceber o que levou a esta demora.

Por outro lado, Ron Lam recordou que o Governo prometeu um estudo de viabilidade sobre a construção de estação elevatória de água pluviais na Estrada da Baía de Nossa Senhora da Esperança, no Cotai. Agora, o deputado quer saber quando é que a futura obra vai ser terminada e qual a capacidade de armazenamento de água.

Economia Ella Lei insiste na qualidade de vida

A deputada Ella Lei defende que o Governo tem de garantir o bem-estar da população e a manutenção da qualidade dos serviços sociais, apesar da “limitação orçamental”. Neste sentido, a membro da Assembleia Legislativa pediu para que sejam disponibilizados mais apoios financeiros aos residentes para estes poderem lidar “com a crescente pressão económica”. No comunicado, a deputada dos Operários explicou que actualmente os residentes estão a enfrentar várias dificuldades, relacionadas com o desemprego, inflação, subida de juros e envelhecimento, que têm levado a uma maior procura dos serviços sociais. Ella Lei apontou ainda que o défice financeiro também afectou os apoios sociais prestados aos idosos, e deu o exemplo do Governo não ter injectado dinheiro no Fundo de Segurança Social nos últimos anos. No mesmo sentido, a deputada criticou o Governo por não actualizar os valores de vários apoios sociais desde 2020.

2 política www.hojemacau.com.mo 26.6.2023 segunda-feira
O Governo afasta a hipótese de permitir que os candidatos proibidos de participar nas eleições possam recorrer da decisão para os tribunais, por considerar que isso “ameaça a segurança nacional”

Medicina Veterinária Concluído regulamento do Conselho

O diploma que regula o Conselho dos Profissionais de Medicina Veterinária foi terminado e deve ser publicado no Boletim Oficial da RAEM nos próximos dias. De acordo com a conferência de imprensa de sexta-feira do Conselho Executivo, o regulamento administrativo vai complementar a lei do atendimento clínico veterinário e da actividade comercial de animais e define as competências específicas do presidente do conselho, os deveres dos membros, assim como definir o funcionamento do conselho. Como acontece neste tipo de apresentação, o conteúdo é sempre escasso e muitos pontos não são mencionados, mas foi adiantado que “as sessões ordinárias realizam-se, pelo menos, quatro vezes por ano e o presidente pode convidar especialistas e académicos para assistir às reuniões, sempre que julgue necessário”. O regulamento vai entrar em vigor no próximo mês.

Fórum Macau

Delegação foi ao Brasil

Uma delegação do Secretariado Permanente do Fórum de Macau, chefiada pelo seu Secretário-Geral, Dr. Ji Xianzheng, fez uma deslocação ao Brasil, entre 18 e 20 de Junho, onde se encontrou com os representantes chineses no território. A informação foi divulgada através de um comunicado, em que apesar dos encontros com representantes do Brasil, o destaque é dado às reuniões com o embaixador da China no Brasil, Zhu Qingqiao, e com a Cônsul Geral da China no Rio de Janeiro, Tian Min. “As partes trocaram impressões sobre várias questões de interesse, designadamente a implementação do Plano de Acção da Conferência Ministerial do Fórum de Macau, e os trabalhos preparativos da 6.ª Conferência Ministerial, entre outras”, pode ler-se. “Paralelamente, a delegação visitou várias instituições braisileiras, entre as quais a Fundação Biblioteca Nacional do Brasil, a Escola de Comunicação, Mídia e Informação da Fundação Getúlio Vargas, e a Incubadora Gênesis da Pontifícia Universidade Católica do Rio de Janeiro, entre outras”, foi acrescentado.

Desenvolvimento Contínuo 5.ª fase do Programa para breve

O Governo vai lançar a 5.ª fase do Programa de Desenvolvimento e Aperfeiçoamento Contínuo, que vai decorrer entre este ano e 2026. A informação foi divulgada na sexta-feira, depois de um encontro do Conselho Executivo. O programa abrange os residentes que tenham completado 15 anos, até ao dia 31 de Dezembro, em qualquer um dos anos de 2023 a 2026, que ficam automaticamente habilitados a recorrer ao mesmo. O montante máximo do subsídio para cada residente é de 6 mil patacas e o âmbito do financiamento abrange cursos do ensino superior, cursos de educação contínua e exames de credenciação, organizados por instituições locais e do exterior. A nova fase tem uma novidade, uma vez que no que diz respeito aos cursos individuais, cursos práticos de condução e exames de credenciação, os candidatos passam a assumir o pagamento numa primeira fase e só depois podem pedir o subsídio.

Desenvolvimento Económico

Alteradas funções do Conselho

O Governo aprovou um regulamento para alterar as funções do Conselho para o Desenvolvimento Económico com o objectivo de dotar o órgão de funções consultivas. O objectivo da alteração, de acordo com um comunicado do Conselho Executivo, para por dotar o Conselho para o Desenvolvimento Económico das “ferramentas” para promover a “concretização das estratégias para desenvolver a diversificação adequada 1+4”. Segundo o Governo, as alterações vão ainda permitir “ajustar a constituição das estruturas e secções para estudos de políticas do Conselho”, e criar maior “agilidade, de modo a que o conselho proceda aos estudos e apresente propostas e opiniões em torno da diversificação adequada da economia e do desenvolvimento das indústrias emergentes prioritárias”.

Oprimeiro-ministro salientou que a China está a respeitar os acordos firmados com Portugal sobre a Região Administrativa Especial de Macau e considerou que estão estabilizadas as relações diplomáticas “seculares” com este país.

A posição foi defendida por António Costa na Assembleia da República, na parte final do debate preparatório sobre o Conselho Europeu dos próximos dias 29 e 30, em Bruxelas, depois de questionado pelos deputados Miguel Santos (PSD) e Bernardo Blanco (Iniciativa Liberal) sobre as relações entre Portugal e a China.

Miguel Santos pediu ao primeiro-ministro que detalhasse o que vai defender no Conselho Europeu quanto

PORTUGAL/CHINA ANTÓNIO COSTA AFIRMA

QUE O ACORDO SOBRE MACAU É RESPEITADO

De pedra e cal

O primeiro-ministro português, António Costa, afirmou que a República Popular da China tem respeitado os compromissos assumidos sobre Macau. Durante um debate na Assembleia da República, o governante português destacou a estabilidade das relações diplomáticas entre os dois países

às políticas comerciais com a China, enquanto Bernardo Blanco quis saber porque entende que Portugal deve aumentar a sua cooperação com este país, e se discorda que seja classificado pela União

Europeia como “rival estratégico”.

Questão de equilíbrio

Na resposta, António Costa advogou que “Portugal tem uma posição muito clara e estabilizada na sua política externa,

designadamente na sua relação com a China”.

“Temos uma relação secular com a China e entendemos que devemos ter com este país as melhores relações comerciais que sejam possíveis. Devemos ter

com a China uma relação de respeito mútuo”, afirmou, antes de mencionar o tratado bilateral de 1987 sobre Macau.

“Temos com a China um acordo específico relativamente à Região Administrativa Especial de Macau, que a China tem respeitado. E enquanto a China respeitar, respeitaremos a China nos mesmos termos que a China respeita Portugal e o acordo que estabeleceu com Portugal”, frisou o líder do executivo português. Ainda em matéria de política externa, em resposta à bancada do Partido Socialista,António Costa fez uma veemente defesa do apoio de Portugal e da União Europeia à Ucrânia na sua guerra contra a Rússia. “A vitória da Ucrânia será a vitória do direito internacional. A derrota da Ucrânia será a derrota do direito internacional”, acrescentou o governante.

política 3 www.hojemacau.com.mo segunda-feira 26.6.2023
António Costa advogou que “Portugal tem uma posição muito clara e estabilizada na sua política externa, designadamente na sua relação com a China”

EMPREGO TRABALHADORES SEM MELHORIAS LABORAIS

Cenário de crise

Um inquérito da FAOM revela que 65 por cento dos profissionais estão encalhados no emprego, sem perspectivas de evolução na carreira. Os resultados indicam que a recuperação económica não está a chegar aos assalariados

NO ano passado, mais de 90 por cento dos trabalhadores de Macau tiveram cortes nos salários ou viram os seus vencimentos congelados. A conclusão faz parte de um inquérito elaborado pela Federação das Associações dos Operários de Macau (FAOM), entre Abril e Maio, que contou com as respostas de 435 trabalhadores.

De acordo com os resultados apresentados, numa conferência de imprensa que contou com a presença do deputado Leong Sun Iok, 90 por cento dos inquiridos apontou ter os salários congelados ou ter sofrido cortes nos últimos dois anos, sem que tenha havido qualquer reposição do valor cortado.

Ao mesmo tempo, de acordo com as conclusões citadas pelo jornal Ou Mun, 70 por cento dos trabalhadores reconheceu ter um período laboral diário superior a oito horas, o que contribui para

que cerca de 50 por cento se considere numa situação profissional stressante.

As longas horas de trabalho não se reflectem em melhor perspectivas de carreira para grande parte dos profissionais. Segundo os resultados, 65 por cento considera que não existem perspectivas de mobilidade vertical profissional, o que significa que não têm perspectivas de promoção ou melhoria das condições profissionais.

Formações congeladas

As conclusões dos questionários apontam também que no último ano 75 por cento dos trabalhadores não recebeu qualquer tipo de formação nas empresas.

65%

Percentagem de trabalhadores sem perspectivas de mobilidade vertical profissional

SAÚDE QUINZE TRANSPLANTES NO EXTERIOR EM QUATRO ANOS

“ENTRE 2018 e 2022, a Junta para Serviços Médicos no Exterior dos Serviços de Saúde encaminhou 15 doentes para o exterior, para serem submetidos a transplantes hepáticos, cardíacos e renais”, indicou o director substituto dos Serviços de Saúde, Cheang Seng Ip, em resposta a uma interpelação escrita de Ron Lam.

O responsável dos Serviços de Saúde afirmou que, dos 15 doentes, “nove obtiveram sucesso na transplantação, um desistiu por iniciativa própria, três não necessitaram de se sujeitar à transplantação de órgãos após a avaliação realizada no hospital local”, enquanto os restantes dois pacientes continuavam à espera de vaga à altura da resposta de Cheang.

Os inquiridos identificam ainda os trabalhadores não-residentes como um factor de competição, que afecta negativamente as suas condições laborais. Cerca de 30 por cento dos trabalhadores vincou que as empresas contrataram trabalhadores não-residentes e 40 por cento defendeu ter visto a sua situação laboral afectada negativamente pela contratação de não-residentes.

Em relação a perspectivas profissionais, 20 por cento vincou sentir necessidade ou ter a intenção de mudar de emprego assim que possível e 30 por cento revelou ter planos para fazer formações e aumentar as suas valências profissionais.

Quando questionados sobre a possibilidade de o Governo implementar uma reforma laboral, metade dos inquiridos deixou o desejo de que Ho Iat Seng introduza melhorias através de legislação em matérias como as férias pagas, licença de maternidade, entre outras.

João Santos Filipe

ZONA A RETOMADA OBRA SUSPENSA APÓS MORTE DE TRABALHADOR

O responsável endereça ainda a natural escassez de órgãos em Macau. “Os Serviços de Saúde desenvolveram uma série de trabalhos de divulgação, incluindo a criação de um grupo de promoção de doação de órgãos, a criação de uma página electrónica específica e a distribuição de informações promocionais, de forma a incentivar a participação de um maior número de pessoas interessadas em se tornarem doadores.

Até 8 de Maio de 2023, o número total de pessoas registadas para a doação de órgãos em Macau é de 5.738, entre as quais 4.086 já concluíram as formalidades presencialmente”, afirmou Cheang Seng Ip.

Oestaleiro de obras de construção de habitações públicas do lote A2 da Zona A dos Novos Aterros Urbanos foi autorizado na passada sexta-feira a retomar os trabalhos, depois da suspensão motivada por um acidente de trabalho que resultou numa vítima mortal.

O acidente ocorreu no passado dia 15 de Junho e levou as autoridades a suspender “todos os trabalhos de execução” e a realizar trabalhos de verificação e reordenamento.

“Após a inspecção presencial e aprovadas as respectivas medidas de melhoramento de segurança por parte da Direcção dos Serviços para os Assuntos Laborais e pelo pessoal desta Direcção dos Serviços, foi hoje (sexta-feira) autorizada a

SMS PJ alerta para perigo de burlas

retoma dos trabalhos”, indicou a Direcção dos Serviços de Obras Públicas (DSOP).

O Governo indicou que, desde 19 de Junho, foram feitas inspecções a 41 estaleiros “para eliminar os potenciais problemas, com reforço da consciência sobre a segurança no local da obra”.

“A fim de garantir a fluidez do sistema de drenagem de água ao redor de cada um dos estaleiros, a DSOP procedeu aos trabalhos de verificação e de limpeza de esgotos antes da chegada da época de chuva” e contactou o “Instituto para os Assuntos Municipais no sentido de reforçar a comunicação e coordenação entre os serviços interdepartamentais”. J.L.

A Polícia Judiciária (PJ) deixou o alerta para SMS fraudulentos alegadamente enviados pelos Serviços de Correios a exigir aos destinatários dinheiro para resolver falsos problemas de entrega de produtos ou transporte. A mensagem foi divulgada através do Gabinete de Comunicação Social. “Estes SMS são um logro que têm por fim atrair os cidadãos a clicarem num link e ali prestarem vários dados como o número de cartão de crédito. A consequência final é o roubo de dados do cartão crédito e, por conseguinte, o prejuízo em dinheiro dos cidadãos”, pode ler-se no comunicado. “A PJ apela mais uma vez aos cidadãos para não clicarem qualquer link de fonte desconhecida, devendo confirmar a veracidade do SMS através do canal oficial”, foi acrescentado.

4 sociedade www.hojemacau.com.mo
26.6.2023 segunda-feira

Covid-19 Mais de 170 casos desde sexta-feira

Entre sexta-feira e sábado foram registados 174 casos de covid-19 no território, de acordo com o Centro de Coordenação de Contingência do Novo Tipo de Coronavírus. Na sexta-feira, o registo foi de 134, dos quais um precisou de internamento nas instalações de tratamento médico do Centro Hospitalar Conde de São Januário. No sábado, registaram-se 40 casos, com três internamentos nos hospitais. Segundo o Centro de Coordenação de Contingência do Novo Tipo de Coronavírus, em ambos os dias não houve qualquer caso mortal de covid-19.

Vacinas Administradas

300 doses por dia

O director dos Serviços de Saúde, Alvis Lo, revelou que actualmente são administradas entre 200 e 300 vacinas contra a covid-19 por dia, e que cerca de 75 por cento são vacinas bivalentes para a variante Ómicron. Em declarações citadas pelo jornal Ou Mun, o responsável afirmou que Macau tem em stock 30 mil vacinas bivalentes e voltou a apelar aos cidadãos que se vacinem, principalmente tendo em conta que é estimado o ressurgimento de uma nova vaga de infecções no Inverno. Alvis Lo referiu ainda que o Governo continua a observar a pesquisa científica e o desenvolvimento de vacinas no mundo, com vista a importar fármacos seguros e eficazes. Quanto à quantidade de médicos no território, o responsável indicou que a política que irá permitir aos médicos locais trabalhar em Hengqin, a partir de Agosto, não vai conduzir à escassez de profissionais no território, até porque nos próximos anos Macau poderá contar com mais alunos licenciados em medicina.

Consumo Cartão “subsídio de vida” acaba sexta-feira

O prazo de utilização do “Plano de subsídio de vida” termina na próxima sexta-feira, 30 de Junho. A Direcção dos Serviços de Economia e Desenvolvimento Tecnológico (DSEDT) emitiu um comunicado a apelar “aos residentes que tenham recebido o subsídio de vida para o utilizar atempadamente”, frisando que “o saldo remanescente não utilizado no prazo fixado será resposto nos cofres do Tesouro”. Após o termo do prazo de utilização do “Plano de subsídio de vida”, o montante carregado por conta própria dos residentes que tenham optado por receber o subsídio através do “cartão de consumo” pode ser utilizado nos estabelecimentos comerciais indicados. Além disso, a Macau Pass, S.A. irá prestar o serviço de conversão do cartão de consumo em cartão porta-moedas electrónico de uso corrente, os detalhes concretos do serviço de conversão vão ser divulgados posteriormente pela mesma sociedade.

INFLAÇÃO MAIO COM VALOR MAIS ELEVADO EM SETE MESES

Subida ao cume

Durante o passado mês de Maio, o índice de preços no consumidor subiu 0,9 por cento para o valor mais elevado em mais de um ano e meio. De acordo com os dados dos serviços de estatística, este foi o 18.º mês consecutivo de subida da taxa de inflação

Oíndice de preços no consumidor no passado mês de Maio aumentou 0,9 por cento em termos homólogos, registando o valor mais elevado desde Outubro de 2022, de acordo com dados oficiais divulgados na sexta-feira.

A inflação acelerou sobretudo devido à subida dos salários das empregadas domésticas e do preço das refeições em restaurantes e do vestuário, indicou o comunicado a Direcção dos Serviços de Estatística e Censos (DSEC).

Os dados revelam que os gastos das famílias de Macau com empregadas domésticas cresceram 6,4 por cento em comparação

com Maio de 2022. No final de Abril, a RAEM tinha quase 23.700 empregadas domésticas.

O preço das refeições adquiridas fora de casa subiu 2,9 por cento enquanto o custo do vestuário e calçado aumentou 4,1 por cento em termos homólogos, num mês que incluiu a chamada Semana Dourada do 1.º de Maio, um dos picos turísticos da China continental. Em termos mensais, durante o mês em análise, Macau

recebeu 2,2 milhões de turistas, mais 268,5 por cento do que no mesmo período do ano passado.

Educação e casa

Também os gastos das famílias do território com propinas do ensino superior subiram 16,2 por cento em termos homólogos.

Por outro lado, a DSEC estimou que o custo dos pagamentos das hipotecas imobiliárias diminuiu 2,1 por cento em Maio,

A inflação verificada em Maio culmina um período de 18 meses de subidas sucessivas de um ciclo iniciado em Dezembro de 2021, depois de três trimestres de deflação durante a pandemia

em comparação com igual mês de 2022.

A DSEC revelou que o índice de preços da secção dos produtos alimentares e bebidas não alcoólicas cresceu 0,38 por cento, em termos mensais, graças essencialmente ao acréscimo dos preços das refeições adquiridas fora de casa, da fruta e do peixe fresco. “Porém, o decréscimo dos preços dos produtos hortícolas atenuou parte do crescimento”, indicou o Governo.

No capítulo dos preços das secções dos transportes e das bebidas alcoólicas e tabaco diminuíram 1,34 por cento e 0,35 por cento, respectivamente, em termos mensais, em virtude da queda dos preços dos bilhetes de avião e das bebidas alcoólicas.

Recorde-se que a Autoridade Monetária de Macau aprovou em Maio um aumento de 0,25 pontos percentuais da principal taxa de juro de referência, a décima subida desde Março de 2022, seguindo a Reserva Federal norte-americana.

A inflação verificada em Maio culmina um período de 18 meses de subidas sucessivas de um ciclo iniciado em Dezembro de 2021, depois de três trimestres de deflação provocada pela paralisia económica resultante do combate à pandemia. João Luz com LUSA

sociedade 5 www.hojemacau.com.mo
segunda-feira 26.6.2023

O Museu de Macau vai acolher a mostra “Génese e Espírito - Exposição de Património

Cultural Intangível de Hainan”, que irá apresentar elementos artesanais de fiação, tingimento, tecelagem e bordado da etnia

Li e esculturas de coco de Hainan

IC

ACTIVIDADES

CULTURAIS CELEBRAM “GÉNESE E ESPÍRITO” DE HAINAN

Ailha mágica

O ciclo de actividades “Génese e Espírito – Mostra de Património Cultural Intangível de Hainan” irá marcar a agenda cultural do Verão, com música tradicional, dança, teatro, ópera e um desfile de trajes tradicionais da província insular de Hainan

Apartir de 1 de Julho, as múltiplas facetas da cultura da província de Hainan vão estar em destaque com um sortido variado de actividades e eventos apresentado pela cidade. Artes performativas como dança, teatro, ópera, música e demonstrações da

multiplicidade etnográfica que marcam a cultura da província de Hainan vão estar em destaque no ciclo “Génese e Espírito – Mostra de Património Cultural Intangível de Hainan” até Outubro.

A série de eventos arranca oficialmente na próxima sexta-feira, às 18h30, no Jardim da Fortaleza do

Monte, com uma cerimónia apresentada pelo Ministério da Cultura e Turismo e pela Secretaria para os Assuntos Sociais e Cultura do Governo da RAEM. A organização estará a cabo do Instituto Cultural (IC), Departamento de Turismo, Cultura, Rádio, Televisão e Desporto da Província de Hainan, em parceria com

o Centro de Protecção do Património Cultural Intangível da Província de Hainan e com o apoio do Galaxy Entertainment Group.

Após a cerimónia, a partir das 19h começam “espectáculos com características de Hainan, incluindo música tradicional, dança, teatro, ópera e um desfile de trajes tradicionais do grupo étnico

Óbito Actor Luís Aleluia morre aos 63 anos

O ator Luís Aleluia morreu sábado aos 63 anos, divulgou na sua página na rede social Facebook o humorista Herman José. “Soube da notícia agora. O querido Luís Aleluia foi distribuir gargalhadas para outra dimensão. Paz à sua alma. Era um homem bom, e um excelente comediante”, frisou Herman José na sua publicação. Luís Aleluia, nascido em 23 de Fevereiro de 1960 em Setúbal, teve várias participações em teatro e televisão, tendo ficado célebre pela interpretação como “Menino Tonecas” na Série da RTP, As Lições do Tonecas.

Li especialmente preparado, que oferecerá uma experiência física totalmente imersiva sob o tema “Luzes Cintilantes, Trajes Resplandecentes”. O IC aponta que o desfile irá permitir ao “público sentir o folclore e as artes tradicionais” da província, eventos que vão alargar o horário de abertura do Jardim da Fortaleza do Monte até às 20h.

Joias da coroa

De 1 de Julho a 8 de Outubro, o Museu de Macau vai acolher a mostra “Génese e Espírito - Exposição de Património Cultural Intangível de Hainan”, que irá “apresentar diferentes itens do património cultural intangível, tais como as técnicas artesanais de fiação, tingimento, tecelagem e bordado da etnia Li e as esculturas de coco de Hainan”. O IC indica que a exposição tem como objectivo “dar a conhecer aos residentes e turistas as técnicas artesanais particularmente encantadoras do património cultural intangível de Hainan”. No mesmo âmbito de apresentação de manifestações do património cultural da província do Interior da China, terá lugar no dia 1 de Julho, no Hotel Broadway e no Jardim do Mercado do Iao Hon, uma Feira Gastronómica. A juntar aos sabores de Hainan, serão ainda apresentadas actividades como “desfile de trajes tradicionais do grupo étnico Li, da ópera tradicional de Hainan Qiong, das músicas e danças de minorias étnicas, do teatro de marionetas e de outros espectáculos com características do sul do país”.

Mãos à obra

A série de actividades incluirá ainda demonstrações

de artesanato e workshops de experiência interactiva, que o IC aponta como exibições práticas da técnicas e artes do património cultural intangível de Hainan.

De 1 a 7 de Julho, na Casa de Lou Kau, serão organizadas actividades que vão proporcionar a introdução

6 eventos www.hojemacau.com.mo 26.6.2023 segunda-feira
Instituto Cultural “A província de Hainan é uma

a “experiências de aroma e de chá, designadamente a produção do pó de incenso, a criação de sachês e a experiência de técnicas tradicionais de processamento de chá do grupo étnico Li”. No próximo fim-de-semana, dias 1 e 2 de Julho, a Casa do Mandarim acolhe

uma série de workshops sobre “escultura de coco de Hainan, técnicas de produção de cerâmica do grupo étnico Li, técnicas de tecelagem de bambu do grupo étnico Li e técnicas de bordado e batique do grupo étnico Miao”. As inscrições para estas acti-

HOJE TERAPIA

Hemorróidas

Diversas plantas medicinais podem ser úteis para o tratamento das hemorróidas, sendo de realçar as plantas venotónicas. Estas, tonificam as paredes das veias, activando a circulação sanguínea no sistema venoso e descongestionando-o (ver Hoje Terapia “Insuficiência venosa crónica” e “Varizes”). São ainda úteis as plantas que desinflamam ou suavizam os tecidos (anti-inflamatórias ou emolientes), adstringem e secam a mucosa anal (adstringentes), detêm pequenos sangramentos (hemostáticas) ou são cicatrizantes. Além das já referidas, vamos conhecer Hoje algumas outras plantas:

(PARTE II)

vidades terminam hoje e podem ser feitas através da Conta Única.

“A província de Hainan é uma terra de encontro de culturas diversas, que serviu de berço a um rico e esplêndido conjunto de património cultural intangível”, apontou o IC. João Luz

Feno-grego (Alfarva, Alforba, Alforfa, Alforna, Alforva, Ervinha, Fenacho), Trigonella foenum-graecum, sementes: Não obstante o seu nome comum, o Feno-grego é proveniente do Médio Oriente, tendo sido introduzido na Europa Ocidental a partir da Idade Média. Assim ficou conhecido porque era amplamente cultivado nos países mediterrânicos, em particular na Grécia. Além de remédio, é usado como especiaria na cozinha indiana e como forragem para o gado. Trata-se de uma herbácea com cerca de 80 cm de altura, folhas trifoliadas e flores esbranquiçadas; os frutos são vagens estreitas, compridas e curvas, e encerram 10 a 20 sementes amarelas em forma de losango. Toda a planta emana um odor característico, não muito agradável. Referido no “Papiro de Ebers”, documento médico egípcio datado de 1500 a.C., enaltecido por Hipócrates (século V a.C.), e recomendado por Dioscórides (século I d.C.), o Feno-grego constitui uma das plantas medicinais mais antigas. Com acção emoliente e suavemente laxante, a planta atenua a inflamação e protege todas as mucosas digestivas, favorecendo a evacuação das fezes e melhorando a absorção dos alimentos. É recomendado para o tratamento das hemorróidas, por desinflamá-las e reduzir-lhes o tamanho. Pode ser aplicada a decocção em banhos de assento, ou as sementes dela resultantes em forma de cataplasma fria.

Noveleiro (Bola-de-neve, Rosas-de-gueldres), Viburnum opulus, cascas do caule: Arbusto muito ornamental, com 2 a 4 metros de altura, o Noveleiro encontra-se com frequência nos bosques das regiões frias e húmidas da Europa e América do Norte, sendo também cultivado em parques e jardins. Apresenta folhas dentadas, divididas em 3 a 5 lóbulos, e flores de cor branca reunidas num ramalhete esférico; os frutos, venenosos, são pequenas bagas de cor vermelha. Apesar de pouco usado pelos grandes médicos da Antiguidade Clássica, o Noveleiro foi um remédio tradicional dos povos indígenas da América do Norte. Tomado em decocção, exerce um efeito tónico sobre a circulação venosa, activando-a e descongestionando as varizes e as hemorróidas. A planta torna-se mais eficaz se for associada a outras com idênticas propriedades.

Silva (Sarça), Rubus fruticosus, folhas e rebentos: Dioscórides, brilhante médico e botânico grego do século I d.C., considerado o pai da fitoterapia, já recomendava as folhas da Silva para o tratamento das hemorróidas. Trata-se de um arbusto espinhoso, que pode alcançar 4 metros de altura, largamente disseminado por toda a Europa, onde cresce nas bermas dos caminhos, sebes e ribanceiras, oferecendo aos que por ela passam deliciosos frutos silvestres. Possui flores com cinco pétalas, de cor branca ou rosada, e os frutos, as Amoras, são constituídos por várias pequenas drupas avermelhadas, tornando-se negras com a maturação, contendo, cada uma, uma pequenina semente. A decocção das folhas e dos rebentos tenros, aplicada em banhos de assento ou compressas, exerce uma actividade adstringente e hemostática útil para o tratamento das hemorróidas, desinflamando-as e evitando que sangrem; pode ainda ser útil para a lavagem de feridas, úlceras da pele e furúnculos, favorecendo a sua cicatrização.

ADVERTÊNCIAS: Este artigo tem como objectivo apenas a divulgação e não deve substituir a consulta de um profissional de saúde, nem promover a auto-prescrição. Além disso, algumas plantas têm contra-indicações, efeitos adversos ou interacções com medicamentos.

eventos 7 www.hojemacau.com.mo segunda-feira 26.6.2023
terra de encontro de culturas diversas, que serviu de berço a um rico e esplêndido conjunto de património cultural intangível.”

Do Neolítico às dinastias Shang e Zhou

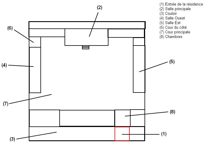
Os vestígios de habitações escavadas em locais do período neolítico de Yangshao (5000-3000 a.C.) mostram que eram amiúde construídas num nível subterrâneo. Algumas casas da aldeia de Banpo, em Shaanxi, na margem leste do Rio Amarelo, foram construídas cerca de sessenta a setenta centímetros abaixo da superfície do solo. As fundações eram de madeira. Umas casas eram quadradas, outras rectangulares ou circulares. No interior, já se encontravam colunas a suportar o tecto, que é mais imponente do que as paredes. No centro situava-se

A arquitectura tradicional

Cláudia

(Continuação da

uma lareira. A entrada ficava virada para sul. Todas as casas estavam interligadas através de trincheiras.

Na dinastia Shang (do séc. XVI ao séc. XI a.C.), os alicerces de grandes edifícios apresentavam uma disposição perimétrica de colunas e já se recorria aos dougong.

Na dinastia Zhou (1046 – 256 a.C.),  os edifícios já apresentavam a composição tradicional totalmente desenvolvida, ou seja, salões e colunas sobre plataformas e agrupados em torno de pátios, ou seja, o四合院 siheyuan, ou “pátio de quatro pavilhões unidos”, o modelo da construção no norte da China.

Um siheyuan simples consiste num complexo murado no qual o edifício prin-

cipal (dian 殿) se encontra rodeado por edifícios mais pequenos que giram em volta de um (ou mais) pátio. A entrada principal fica sempre voltada para o sul, de acordo com os princípios do fengshui. Quanto mais numerosa a família, maior o complexo, que pode ser ampliado com facilidade com a construção de mais pátios e pavilhões. Entrando pela porta principal depara-se com uma pequena sala destinada aos visitantes. Por trás surge o pátio frontal e, em torno deste, localizam-se os quartos, o escritório, o armazém. Quanto mais se penetra no complexo, mais privada se torna a área.

Foi a partir do séc. IX a. C. que os telhados adquiriram uma aparência ma-

jestosa, quando se começou a substituir as coberturas de colmo por telhas de terracota planas ou cilíndricas. As telhas eram mantidas no lugar de várias formas, por exemplo, coladas ao telhado de barro com a ajuda de saliências semelhantes a pregos (瓦顶 wading) ou anéis (瓦 環 wahuan) ou encaixadas umas nas outras. Eram muitas vezes decoradas com padrões de corda.

Bons exemplos da arquitectura Zhou

o complexo do

Fengchu conta com um pavilhão principal, dois pavilhões mais pequenos na rectaguarda, um grande pátio à frente e um menor atrás do

php?curid=29761425

26.6.2023 segunda-feira 8
são palácio-templo de Fengchu, em Shaanxi e de Zhaochen, não longe daquele. •Figura 16. Esquema de uma casa da aldeia neolítica de Banpo, na região da actual cidade de Xi’an. Extraído de Li Liu (2014) Archeology of Banpocun, in Claire Smith (ed.) Encyclopedia of Global Archaelogy, Springer, pp. 759–763. •Figura 17. Modelo de palácio da dinastia Shang. Ruínas e Museu Yin, Anyang, capital final da dinastia Shang. By Gary Todd from Xinzheng, China - Model of Shang Palace, CC0, https://commons.wikimedia.org/w/index. php?curid=10325227 •Figura 18. Modelo funerário em terracota de tipo siheyuan com porta central e defendido nos cantos. Descoberto em 1967 num túmulo do Reino de Wu, Período dos Três Reinos (220280 a. C.) da dinastia Zhou. Museu Nacional, Pequim. By Prof. Gary Lee Todd - [1], CC BY-SA 3.0, https://commons.wikimedia.org/w/index. •Figura 19. Modelo de siheyuan. By Pubuhan - Own work, CC BY-SA 3.0, https://commons.wikimedia.org/w/index.php?curid=481992 • Figura 20. Esquema de siheyuan com legenda em francês. Par Bryony Thorpe — Travail personnel, CC BY-SA 4.0, https://commons.wikimedia. org/w/index.php?curid=38108906

tradicional na China (4)

Ribeiro edição anterior)

salão principal e uma construção à entrada separada por um portão. As paredes dos edifícios em Fengchu e Zhaochen ou eram de terra batida ou feitas de tijolos de terracota. Alguns edifícios tinham colunas e dougong simples que sustentavam beirais salientes, para além das que sustentavam o centro da construção do telhado.

Encontrou-se jade branco esculpido nos edifícios de Zhaochen que pode ter sido usado como decoração das paredes. Quanto ao piso, em alguns edifícios era decorado com seixos de diferentes cores ou cascas de amêijoa em forma de discos dispostas em padrões decorativos ou gravadas com taotie (uma criatura mitológica muito representada nos recipientes de bronzes da época) ou padrões geométricos.

Dinastia Han

A dinastia Han (206 a.C. - 220 d.C.) deixou um legado precioso enquanto fonte de informação acerca da sua arquitectura: miniaturas em terracota de edifícios da época destinadas às sepulturas, os mingqi. Vêem-se exemplos de arquitectura civil e militar: casas em forma de complexo com diversas dependências e protegidas da rua por um muro alto; edifícios agrícolas cons-

truídos em torno de um pequeno pátio interior, por vezes com um complexo adjacente para animais; residências fortificadas com numerosos aposentos repartidos por vários andares; torres de vigia de vários pisos.

As casas das gentes comuns eram modestas e com telhados de colmo. A residências dos abastados e dos nobres e demais edifícios importantes encontravam-se dispostos em torno de um espaço amplo, contando com numerosos pátios separados uns dos outros por muros com aberturas. O salão de recepções no interior ficava orientado de modo que o eixo principal e a entrada se alinhassem com a abertura do portão exterior. Ao lado do salão figuravam edifícios de um ou mais pisos. Ao lado dos portões dos palácios e da entrada das grandes propriedades erguiam-se torres de vigia com quatro ou cinco andares. Nas dinastias Qin (21 a.C. e 206 a.C.) e Han, as paredes eram por vezes feitas de tijolos ocos, incisos com motivos geométricos ou zoomórficos. O chão era rebocado e pintado ou pavimentado com tijolos elaborados. Os edifícios importantes ostentavam cores vivas como vermelhão para colunas e balaustradas, amarelo para as telhas esmaltadas e verde para os sistemas complexos de dougong. A partir da dinastia Qin, a ornamentação dos telhados com figuras acentuou-se até ao séc. II d. C.

Dinastia Tang

Foi na dinastia Tang que o contorno do telhado foi assumindo cada vez mais a

forma curvilínea característica da China e da Ásia oriental, graças à introdução dos ang. A arquitectura Tang de palácios civis e imperiais e de mosteiros budistas sobreviveu no Japão, em Nara, que foram construídos à imagem da capital dos Tang e, muito provavelmente, por arquitectos chineses. Os templos Horyuji (séc. VII) e Kofukuji são uma cópia de templos de Chang’na

(hoje, Xi’an), a capital da dinastia Tang. Na China rareiam vestígios de edifícios construídos antes do final da dinastia Tang, como os acima mencionados templos Nanchansi, o edifício de madeira mais antigo da China, e o Foguansi, ambos em Wutaishan.

VIA do MEIO 26.6.2023 segunda-feira 9
(Continua)
• Figura 21. Esquema de siheyuan com legenda em chinês. Par Original téléversé par 用心阁 sur Wikipédia chinois. — Transféré de zh.wikipedia à Commons par Shizhao utilisant CommonsHelper., CC BY-SA 3.0, https://commons.wikimedia. org/w/index.php?curid=12020857 •Figura 22 Desenho de reconstrução de um grande complexo de casas com pátio em Fengchu, Qishan, província de Shaanxi, período Zhou Ocidental (1046-771 a.C.). In Liu X (2002) The Origins of Chinese Architecture, in X Fu et al., Chinese architecture, New Haven: Yale University Press, pp 11-31. • Figura 23. Modelo funerário em cerâmica de um palácio da dinastia Han que segue uma variante do siheyuan, c. séc. II a.C. - século II d.C., Museu Provincial de Henan, Zhengzhou.

TEMPERATURA ONDA DE CALOR RECORDE POR VÁRIOS DIAS

PEQUIM e algumas

regiões do norte da China estão a registar temperaturas recorde, acima dos 40 graus Celsius, tendo já levado as autoridades a apelar à população para que reduza o tempo ao ar livre.

Pelo terceiro dia consecutivo, o observatório de Nanjiao, no sul de Pequim, voltou a registar temperaturas acima dos 40 graus Celsius, segundo a Administração Meteorológica da China citada pela agência de notícias Associated Press (AP).

A situação repetiu-se também na província vizinha de Hebei e na cidade portuária de Tianjin, onde as temperaturas também subiram acima dos 40º C nos últimos dias, levando as autoridades a emitir alertas vermelhos para condições climatéricas extremas.

A AP recorda que Pequim registou na passada quinta-feira 41,1º C, valor que já foi considerado o

segundo mais quente de sempre, só ultrapassado pelo calor de 24 de Julho de 1999, quando os termómetros da capital chinesa chegaram ao máximo histórico de 41,9º C.

Os meteorologistas chineses afirmam que a actual vaga de calor foi causada por massas de ar quente associadas a cristas de alta pressão na atmosfera, agravadas por nuvens pouco densas e por longas horas de luz do dia na altura do solstício de Verão.

O tempo quente coincidiu com um feriado público de três dias, o Festival do Barco-Dragão, dedicado a comer bolinhos de arroz e a corridas de barcos impulsionados por equipas de remadores, afirma a AP.

As autoridades de Pequim apelaram aos residentes para que evitem fazer exercício ao ar livre durante longos períodos e para que tomem medidas para se protegerem do sol.

Hunan Mais de 276 mil pessoas afectadas por chuvas e inundações

As fortes chuvas e inundações dos últimos dias afectaram mais de 276 mil pessoas no centro da China, enquanto no sul várias províncias estão em alerta para possíveis transbordamentos de rios. Na província de Hunan, as chuvas danificaram 16.400 hectares de culturas e provocaram danos generalizados e desmoronamentos de casas, bem como torrentes nas montanhas e deslizamentos de terras, de acordo com as autoridades locais citadas pela agência de notícias

estatal, a Xinhua. Trata-se de uma das províncias centrais mais afectadas pelas chuvas deste ano, que provocaram o transbordamento de vários afluentes do rio Yangtze e obrigaram à retirada de 18.000 habitantes das suas casas. O Ministério dos Recursos Hídricos da China alertou para o facto de 16 rios do sul do país terem excedido o seu caudal máximo, na sua maioria afluentes de rios maiores que atravessam as províncias de Guangdong, Guangxi, Hunan, Jiangxi e Yunnan.

CIMEIRA DE

CHINA COMPROMETIDA NO COMBATE ÀS ALTERAÇÕES CLIMÁTICAS

Por uma boa

Numa conferência que juntou mais de 40 chefes de Estado e de Governo na cidade das luzes, Pequim, através do primeiro-ministro, Li Qiang, afirmou estar preparada para cooperar na luta global contra as alterações climáticas e a pobreza

AChina está preparada para assumir maiores compromissos na luta contra as alterações climáticas e a pobreza, bem como no alívio da dívida dos países pobres, anunciou na sexta-feira em Paris o primeiro-ministro chinês, Li Qiang. No encerramento da cimeira de Paris para um novo pacto financeiro global, Li afirmou que a China

AP 10 china www.hojemacau.com.mo 26.6.2023 segunda-feira
PARIS A China está preparada para “trabalhar com todas as partes interessadas, incluindo as instituições financeiras internacionais, os credores privados e outros”,

causa

acelerou os esforços para promover “uma produção e um estilo de vida com baixas emissões de carbono”.

“Nos últimos dez anos, a China registou um crescimento médio de 6,3 por cento, mas apenas 3 por cento de crescimento no consumo de energia”, afirmou, citado pela agência francesa AFP.

O primeiro-ministro chinês disse que a China, acusada de ser um dos maio-

Resposta dura

Condenada acusação de Washington contra empresas chinesas por tráfico de fentanil

PEQUIM condenou no sábado “veementemente” a decisão “ilegal” das autoridades norte-americanas de acusar quatro empresas chinesas e oito dos seus funcionários de levarem para os EUA os componentes necessários para o fabrico de fentanil, droga altamente viciante.

Dois dos oito empregados foram detidos no Havai e colocados sob custódia no âmbito de uma acção penal sem precedentes, anunciada na sexta-feira pelo Departamento de Justiça dos Estados Unidos (DoJ).

“Este é um exemplo típico de detenção arbitrária e de sanções unilaterais”, reagiu o Ministério dos Negócios Estrangeiros chinês num comunicado.

“Esta medida é totalmente ilegal e viola gravemente os direitos fundamentais dos cidadãos e das empresas chinesas. A China condena-o veementemente”, continuou o ministério.

ponentes de fentanil para o México, a principal fonte de drogas sintéticas vendidas nos Estados Unidos.

Durante uma visita a Pequim esta semana, o secretário de Estado norte-americano, Anthony Blinken, discutiu a questão com os dirigentes chineses.

Droga assassina

O fentanil, um opiáceo sintético 50 vezes mais forte que a heroína, é actualmente a principal causa de morte dos cidadãos norte-americanos com idades entre os 18 e os 49 anos.

A China proibiu as exportações de fentanil para os Estados Unidos em 2019, uma decisão saudada pelo Governo do então Presidente norte-americano, o Republicano Donald Trump.

res poluidores do mundo, diminuiu a quota do carvão.

Li disse que a China também está empenhada na cooperação global na luta contra a pobreza e na iniciativa de suspensão do serviço da dívida apoiada pelo G20 (grupo das maiores economias).

A China está preparada para “trabalhar com todas as partes interessadas, incluindo as instituições financeiras internacionais, os credores

privados e outros”, afirmou o chefe do Governo do país asiático.

Ajuste de contas

Este compromisso surge no momento em que os credores da Zâmbia anunciaram na passada quinta-feira que tinham chegado a um acordo para reestruturar parte da dívida do país da África Austral.

A Zâmbia, com quase 20 milhões de habitantes, entrou em incumprimento da dívida em 2020, e as negociações para resolver o problema estavam paradas devido a divergências entre os credores ocidentais e chineses. “A China está pronta a trabalhar com todas as partes envolvidas para garantir que as finanças mundiais se tornem justas e eficientes”, concluiu Li Qiang.

A presidência francesa organizou a cimeira para lan-

çar as bases de uma revisão da arquitectura financeira internacional que surgiu após a Segunda Guerra Mundial, com o objectivo de travar a pobreza e o aquecimento global.

Participam na cimeira cerca de quarenta chefes de Estado e de Governo, bem como os dirigentes das instituições internacionais.

Li Qiang está em Paris depois de ter visitado Berlim, na primeira deslocação ao estrangeiro desde que assumiu funções em Março.

De acordo com o DoJ, a Amarvel Biotech, uma das empresas chinesas visadas, é acusada de, sozinha, ter introduzido nos Estados Unidos mais de 200 quilos de precursores químicos “com o objectivo de fabricar mais de 50 quilos de fentanil, suficientes para matar 25 milhões de americanos”.

As três outras empresas visadas pelas autoridades americanas são a Anhui Rencheng Technology, a Anhui Moker New Material Technology e a Hefei GSK Trade.

Estas acusações “comprometem profundamente o estabelecimento da cooperação antidroga entre a China e os Estados Unidos”, afirmou o ministério chinês.

Os Estados Unidos intensificaram recentemente os seus esforços para travar a propagação das drogas sintéticas, responsáveis por centenas de milhares de mortes no seu território durante a última década.

Em particular, Washington está a visar empresas sediadas na China suspeitas de enviar com

Mas, segundo os especialistas, o país continuou a fornecer os precursores químicos do fentanil, sobretudo ao México e à América Central, onde cartéis produzem a droga antes de a exportarem para os Estados Unidos.

Pequim negou no passado qualquer responsabilidade na crise de sobredoses de fentanil, atribuindo a culpa à sociedade norte-americana e suas empresas farmacêuticas.

Nos Estados Unidos, as mortes relacionadas com sobredoses de opiáceos aumentaram nos últimos anos, passando de 69.000 em 2020 para 81.000 em 2021 e 110.000 em 2022.

Recentemente, Washington tinha já sancionado várias empresas chinesas acusadas de envolvimento no tráfico desta droga.

Também o Presidente mexicano, Andrés Manuel López Obrador, negou que no seu país exista um problema com o fentanil e acusou os Estados Unidos de não fazerem o suficiente para impedir o consumo dentro do seu próprio território.

china 11 www.hojemacau.com.mo segunda-feira 26.6.2023
E
POBREZA
afirmou o chefe do Governo do país asiático
Li afirmou que a China acelerou os esforços para promover “uma produção e um estilo de vida com baixas emissões de carbono”

DIRECÇÃO DOS SERVIÇOS DE FINANÇAS EDITAL IMPOSTO COMPLEMENTAR DE RENDIMENTOS

Faço saber, face ao disposto no n.º 1 do artigo 43.º do Regulamento do Imposto Complementar de Rendimentos, aprovado pela Lei n.º 21/78/M, de 9 de Setembro, que ao exame dos contribuintes referidos no n.º 3 do artigo 4.º, do mesmo Regulamento, com as alterações introduzidas pela Lei n.º 6/83/M, de 2 de Julho, estarão patentes os respectivos rendimentos colectáveis atribuídos pela Comissão de Fixação.

Poderão os contribuintes, 16 a 30 de Junho do corrente ano, reclamar para a Comissão de Revisão, caso não se conformem com o rendimento fixado, não terminando, porém, o prazo, sem que hajam decorridos vinte dias sobre a data do registo dos avisos postais enviados aos contribuintes.

Aos, 25 de Maio de 2023.

O Director dos Serviços, Iong Kong Lam

NOTIFICAÇÃO

Considerando que não se revelou possível contactar os interessados pessoalmente, por ofício, telefone ou outras formas, nos termos dos n.ºs 2 do artigo 72.º e 93.º do Código do Procedimento Administrativo, aprovado pelo Decreto-Lei n.º 57/99/M, notifica-se os indivíduos abaixos mencionados, para no prazo de 15 dias, a contar do dia seguinte da data da emissão do presente anúncio, comparecer no Departamento de Contratação de Trabalhadores Não Residentes, sito na Avenida do Dr. Rodrigo Rodrigues n.ºs 61A-640, Edifício Long Cheng, 9.º andar, em Macau, para tratar de assuntos do seu interesse e relacionados com autorização da contratação de trabalhadores não residentes, caso contrário a autorização será cancelada:

1. SOU WAI KEONG, proprietário do estabelecimento “宏遠清潔”;

2. CHAN NGAI PENG, proprietário do estabelecimento “九層塔外賣店”;

3. LOU KAI KAO, proprietário do estabelecimento “SAN SENG KEI MAO IEK HONG”.

Os indivíduos acima mencionados devem deslocar-se, durante as horas de expediente, ao endereço acima mencionado, para levantamento do ofício da audiência prévia, podendo ainda requerer, por escrito, a consulta do processo. Decorrido o prazo acima referido, sem que seja apresentada a defesa por escrito, é considerada como efectivamente feita a audiência acima referida.

20 de Junho de 2023.

MANDADO DE NOTIFICAÇÃO N.° 38/AI/2023

-----Atendendo à gravidade para o interesse público e não sendo possível proceder à respectiva notificação pessoal, pelo presente notifique-se a infractora XIONG HUA, portadora do Salvo Conduto para Deslocação a Hong Kong e Macau da RPC n.° CB5593xxx, que na sequência do Auto de Notícia n.° 6.1/DIAI/2021 levantado pela DST a 02.07.2021, e por despacho do signatário de 20.06.2023, exarado no Relatório n.° 127/DI/2023, de 09.06.2023, nos termos do n.° 1 do artigo 10.° e do n.° 1 do artigo 15.°, ambos da Lei n.° 3/2010, lhe foi determinada a aplicação de uma multa de $200.000,00 (duzentas mil patacas) por prestação de alojamento ilegal na fracção autónoma situada na Taipa, Rotunda do Estadio n.° 23, Mei Keng Fa Un, 16.° andar P.--------------------------------------------------------------------

-----O pagamento voluntário da multa deve ser efectuado no Departamento de Licenciamento e Inspecção destes Serviços, no prazo de 10 dias, contado a partir da presente publicação, de acordo com o disposto no n.° 1 do artigo 16.° da Lei n.° 3/2010, com nova redacção dada pela Lei n.° 3/2022, findo o qual será cobrada coercivamente através da Repartição de Execuções Fiscais, nos termos do n.° 2 do artigo 16.° do mesmo diploma.-----Da presente decisão cabe recurso contencioso para o Tribunal Administrativo conforme o disposto no artigo 20.° da Lei n.° 3/2010, com nova redacção dada pela Lei n.° 3/2022, a interpor no prazo de 60 dias, conforme o disposto na alínea b) do n.° 2 do artigo 25.° do Código do Processo Administrativo Contencioso, aprovado pelo Decreto-Lei n.° 110/99/M, de 13 de Dezembro.

-----Desta decisão pode a infractora, querendo, reclamar para o autor do acto, no prazo de 15 dias, sem efeito suspensivo, conforme o disposto no n.° 1 do artigo 148.°, artigo 149.° e n.° 2 do artigo 150.°, todos do Código do Procedimento Administrativo, aprovado pelo Decreto-Lei n.° 57/99/M, de 11 de Outubro.----------------------------------------------------------------

-----Há lugar à execução imediata da decisão caso esta não seja impugnada.

-----O processo administrativo pode ser consultado, dentro das horas normais de expediente, no Departamento de Licenciamento e Inspecção desta Direcção de Serviços, sito na Alameda Dr. Carlos d’Assumpção n.os 335-341, Edifício ‘‘Hot Line”(Centro “Hot Line”), 18.° andar, Macau.

-----Direcção dos Serviços de Turismo, aos 20 de Junho de 2023.

O Director dos Serviços, Subst.°, Cheng Wai Tong

ANÚNCIO

(Notificação da revogação de autorização de contratação de trabalhador não residente)

Considerando que não se revelou possível notificar o interessado, pessoalmente, por ofício ou telefone, nos termos do artigo 68.º e do n.º 2 do artigo 72.º do Código do Procedimento Administrativo, aprovado pelo Decreto-Lei n.º 57/99/M, notifica-se do acto administrativo o interessado abaixo mencionado:

1. SHRESTHA BHIMSEN, proprietário do estabelecimento “ESTABELECIMENTO DE COMIDAS JI TAI WANG” atendendo ao facto de não ter mantido ao serviço o número de trabalhadores residentes conforme requisito pela autorização de contratação, de acordo com o n.º 5 no artigo 3.º do Regulamento Administrativo n.º 13/2010 (Regulamentação das condições ou encargos a estabelecer na autorização de contratação de trabalhadores não residentes), através do Despacho n.º 15694/IMO/DSAL/2023, foi revogada a autorização de contratação de 8 trabalhadores não residentes não especializados, concedida pelo Despacho n.º 29720/IMO/ DSAL/2021.

O interessado acima mencionado pode, nas horas de expediente, deslocar-se ao Departamento de Contratação de Trabalhadores Não Residentes da DSAL, sito na Avenida do Dr. Rodrigo Rodrigues n.ºs 614A-640, Edifício Long Cheng, 9.º andar, Macau, para levantamento da cópia do despacho, podendo ainda requerer, por escrito, a consulta do processo.

Nos termos dos artigos 145.º, 149.º e 155.º do Código do Procedimento Administrativo, o interessado pode, sobre a decisão acima referida, interpor:

a) Reclamação para o autor do acto, devendo ser apresentada no prazo de 15 (quinze) dias a contar do dia seguinte ao da publicação do presente anúncio;

b) Recurso hierárquico necessário para o Secretário para a Economia e Finanças, devendo ser apresentado no prazo de 30 (trinta) dias a contar do dia seguinte ao da publicação do presente anúncio.

Mais se informa que a decisão administrativa acima referida não é susceptível de recurso contencioso.

20 de Junho de 2023.

ANÚNCIO

Considerando que não se revelou possível notificar os interessados, pessoalmente, por ofício ou telefone, nos termos do artigo 68.º e do n.º 2 do artigo 72.º do Código do Procedimento Administrativo, aprovado pelo Decreto-Lei n.º 57/99/M, notifica-se dos actos administrativos interessados abaixo mencionados, no n.º 3 do artigo 11.º da Lei n.º 21/2009 (Lei da contratação de trabalhadores não residentes), revogada a cláusula de renovação automática de autorização de contratação de trabalhadores domésticos não residentes autorizados dos seguintes indivíduos, ou seja, a referida autorização deixará de ser renovada automaticamente:

1. LEONG LAP WAI, n.º do despacho de autorização de contratação: 12293/IMO/DSAL/2018;

2. CHEONG SIO IN, n.º do despacho de autorização de contratação: 06685/IMO/GRH/2016.

Os interessados acima mencionados podem, nas horas de expediente, deslocar-se ao Departamento de Contratação de Trabalhadores Não Residentes da DSAL, sito na Avenida do Dr. Rodrigo Rodrigues n.ºs 614A-640, Edifício Long Cheng, 9.º andar, Macau, para levantamento da cópia do despacho, podendo ainda requerer, por escrito, a consulta do processo. Nos termos dos artigos 145.º, 149.º e 155.º do Código do Procedimento Administrativo, os interessados podem, sobre a decisão acima referida, interpor:

a) Reclamação para o autor do acto, devendo ser apresentada no prazo de 15 (quinze) dias a contar do dia seguinte ao da publicação do presente anúncio;

b) Recurso hierárquico necessário para o Secretário para a Economia e Finanças, devendo ser apresentado no prazo de 30 (trinta) dias a contar do dia seguinte ao da publicação do presente anúncio.

Mais se informa que as decisões administrativas acima referidas não são susceptíveis de recurso contencioso. 20 de Junho de 2023.

ANÚNCIO

【N.º 27/2023

Nos termos do n.º 2 do artigo 72.º do Código do Procedimento Administrativo, aprovado pelo Decreto-Lei n.º 57/99/M, de 11 de Outubro, usando das competências subdelegadas pela alínea 7) do n.º 2 do Despacho n.º 04/IH/2023, publicado no Boletim Oficial da Região Administrativa Especial de Macau n.º 3, II Série, de 18 de Janeiro de 2023, notifica-se, por este meio, o representante do agregado familiar da candidatura a habitação social abaixo indicado:

Nome N.º do boletim de candidatura N.º da proposta CHAN WAI LAM 31202004514 2818/DHP/ DHS/2023

Que o representante foi adquirente de habitação económica e também foi beneficiário da bonificação, estando estes factos abrangidos pelos requisitos impedientes da candidatura a habitação social, previstos nas alíneas 2) e 3) do n.º 1 do artigo 8.º da Lei n.º 17/2019 (Regime jurídico da habitação social). O Instituto de Habitação (IH) notificou, através de ofício, o representante, para a apresentação da contestação escrita, não a tendo apresentado dentro do prazo fixado.

Assim, de acordo com as alíneas 2) e 3) do n.º 1 do artigo 8.º e o n.º 2 do artigo 8.º da Lei n.º 17/2019 (Regime jurídico da habitação social), e por despacho do Secretário para os Transportes e Obras Públicas, exarado na proposta acima referida, não foi autorizado o pedido relativo à dispensa dos requisitos impedientes. Nos termos da alínea 1) do n.º 3 do artigo 6.º do Regulamento Administrativo n.º 30/2020 (Regulamentação do Regime jurídico da habitação social), o IH irá indeferir a respectiva candidatura a habitação social.

Caso não concorde com a decisão de não autorização da dispensa dos requisitos impedientes, pode apresentar reclamação ao Secretário para os Transportes e Obras Públicas, no prazo de 15 dias, a contar da data de publicação do presente anúncio, não tendo a reclamação efeito suspensivo, nos termos dos artigos 148.º e 149.º e n.º 2 do artigo 150.º do Código do Procedimento Administrativo, aprovado pelo Decreto-Lei n.º 57/99/M, de 11 de Outubro, ou pode interpor recurso contencioso para o Tribunal de Segunda Instância, no prazo de 30 dias, a contar da data de publicação do presente anúncio, nos termos do artigo 25.º do Código do Processo Administrativo Contencioso, aprovado pelo Decreto-Lei n.º 110/99/M, de 13 de Dezembro e da Lei n.º 9/1999 (Lei de Bases da Organização Judiciária), republicada pela Lei n.º 4/2019. Instituto de Habitação, aos 23 de Junho de 2023.

O Director da DSAL, Wong Chi Hong

O Director da DSAL, Wong Chi Hong

O Chefe do Departamento de Habitação Pública, Chan Wa Keong

12 publicidade 26.6.2023 segunda-feira www.hojemacau.com.mo
O Director da DSAL, Wong Chi Hong
N.º 07/DCTNR/2023 N.º 08/DCTNR/2023 N.º 09/DCTNR/2023

ÍNDIA AMAZON INVESTE 24 MIL ME ATÉ 2030

Marcar lugar

Odirector executivo da Amazon comprometeu-se a aumentar os investimentos da gigante norte-americana na Índia para 26.000 milhões de dólares até 2030, durante um encontro com o primeiro-ministro indiano na sexta-feira.

De acordo com um comunicado divulgado sábado pelo gabinete do primeiro-ministro indiano, Narendra Modi, o governante e Andrew R. Jassy “mantiveram conversações sobre a área do comércio electrónico” e “discutiram o potencial de uma maior colaboração com a Amazon no sector logístico na Índia”.

Por sua vez, o presidente executivo da Amazon avançou na rede social Twitter que, durante a reunião, foi discutido “o compromisso da Amazon de investir 26.000 milhões de dólares na Índia até 2030”.

“Trabalhando juntos, apoiaremos as novas empresas, criaremos empregos, possibilitaremos exporta -

TIMOR-LESTE PR ESPERA ACORDO COM ALEMANHA PARA TRABALHADORES TIMORENSES

OPresidente da República timorense espera que Timor-Leste e a Alemanha assinem ainda este ano um acordo entre governos para que mil timorenses possam ir para aquele país trabalhar e receber formação técnico-profissional.

José Ramos-Horta disse à Lusa que esse é um dos assuntos na agenda da sua curta visita a Berlim, no fim de semana, durante a qual se encontrou com as principais autoridades do país.

“A ideia de a Alemanha receber trabalhadores timorenses foi minha. Avancei com a vinda a Timor-Leste de um grupo de sete deputados federais alemães, representando todos os partidos políticos, e cumprindo uma promessa que me fizeram antes das eleições na Alemanha, em que se vencessem iriam retomar a cooperação bilateral com Timor-Leste, que foi, entretanto, terminada depois de 20 anos”, explicou.

PUB.

ções e capacitaremos pessoas e pequenas empresas para competirem globalmente”, acrescentou Jassy.

Os esforços da Amazon para fortalecer a sua presença no país asiático seguem-se ao investimento de 12.700 milhões de dólares até 2030 anunciado a 18 de Maio pelo maior provedor de serviços de computação em nuvem do mundo, a Amazon Web Services (AWS).

Ao interesse da Amazon em investir na Índia somam-se outras oportunidades de crescimento exploradas por Modi durante a sua visita aos EUA, onde manteve reuniões com o presidente executivo (CEO) da Google, o empresário indo-americano Sundar Pichai, o director executivo da Boeing, David L. Calhoun, e o fundador da Tesla e actual dono do Twitter, Elon Musk.

Agenda preenchida

O primeiro-ministro indiano terminou sábado a visita de Estado de quatro dias aos EUA, durante a qual se reuniu com o Presidente Joe Biden, participou num jantar na Casa Branca, interveio uma sessão conjunta do Congresso dos EUA e manteve encontros com mais de duas dezenas de líderes e empresários, incluindo economistas, académicos e especialistas em saúde.

Narendra Modi seguiu para o Egipto, onde se encontrou com o Presidente egípcio, Abdel Fattah El-Sisi.

“Durante a visita avancei com a proposta: quero 1.000 vistos de trabalho para timorenses trabalharem na Alemanha, com formação técnico-profissional a fazer parte do programa”, explicou.

“Gostaram da ideia e nesses meses tenho trabalhado com entidade alemães para ver como concretizar essa iniciativa, que está em bom caminho.

Esperamos assinar o acordo brevemente, depois da minha visita”, disse. Quando se concretizar, notou, será o primeiro acordo laboral de Timor-Leste com um país europeu, num programa “governo-governo, sem intermediários ou agências de emprego e que vai ser rigorosamente controlado pelos dois governos, para não haver abusos seja de quem for”.

região 13 segunda-feira 26.6.2023 www.hojemacau.com.mo
A empresa norte-americana reforça a sua posição no país dando seguimento ao investimento de 12.700 milhões de dólares até 2030 anunciado a 18 de Maio pelo maior provedor de serviços de computação em nuvem do mundo, a Amazon Web Services
“Trabalhando juntos, apoiaremos as novas empresas, criaremos empregos, possibilitaremos exportações e capacitaremos pessoas e pequenas empresas para competirem globalmente.”
ANDREW R. JASSY DIRECTOR EXECUTIVO DA AMAZON

H (Jason Statham) é um trabalhador durão de uma companhia de transporte de valores que surpreende os colegas durante um assalto à carrinha onde seguiam. Sem que fosse esperado, H começa a abater todos os ladrões com tiros certeiros na cabeça. Num filme cheio de acção, realizado por Guy Ritchie, o espectador fica a conhecer melhor a história traumática da personagem, que está longe de ser o homem que aparenta ser. João Santos Filipe

Propriedade Fábrica de Notícias, Lda Director Carlos Morais José Editores João Luz; José C. Mendes Redacção Andreia Sofia Silva; João Santos Filipe; Nunu Wu Colaboradores Anabela Canas; António Cabrita; Ana Jacinto Nunes; Amélia Vieira; Duarte Drumond Braga; José Simões Morais; Julie Oyang; Paulo Maia e Carmo; Rosa Coutinho Cabral; Rui Cascais; Sérgio Fonseca; Colunistas André Namora; David Chan; Olavo Rasquinho; Paul Chan Wai Chi; Paula Bicho; Tânia dos Santos Grafismo Paulo Borges, Rómulo Santos Agências Lusa; Xinhua Fotografia Hoje Macau; Lusa; GCS; Xinhua Secretária de redacção e Publicidade Madalena da Silva (publicidade@hojemacau.com.mo) Assistente de marketing Vincent Vong Impressão Tipografia Welfare Morada Pátio da Sé, n.º22, Edf. Tak Fok, R/C-B, Macau; Telefone 28752401 Fax 28752405; e-mail info@hojemacau.com.mo; Sítio www.hojemacau.com.mo

TEMPO AGUACEIROS OCASIONAIS MIN 27 MAX 32 HUM 70-95% UV 12 (EXTREMO) • EURO 8.80 BAHT 0.23 YUAN 1.13
www. hojemacau. com.mo SUDOKU SOLUÇÃO DO PROBLEMA 26 PROBLEMA 27 26 4561372 6175423 1327645 2634517 3412756 5743261 7256134 28 30 31 7234165 3167254 1542736 6753421 2316547 5421673 4675312 3451276 2174365 1563427 6217543 4326751 5732614 7645132 33 34 2367541 5743216 7614352 3521674 4275163 6152437 1436725 36 4375216 5214367 3762541 6431725 2546173 7123654 1657432 732 17 63 641 174 2 56 43 1 27 275 74 13 27 17 254 32 1 527 25 46 28 63 127 29 26 37 15 2 537 64 61 30 326 43 5 64 15 3 462 CINETEATRO CINEMA SHIN MASKED RIDER SALA 1 THE FLASH [B] Um filme de: Andy Muschictti Com: Ezra Miller, Michael Keaton, Sasha Calle, Michael Shannon 14.00, 16.30, 19.00, 21.30 SALA 2 SHIN MASKED RIDER [B] Um filme de: Hideaji Anno Com: Sosuke Ikematsu, Mineami Hamabe, Tasujo Emoto, NAnase Nishino 14.15, 19.15, 21.30 SPIDER-MANTM: ACROSS THE SPIDER-VERSE [B] FALADO EM CANTONENSE Um filme de: Joaquim Dos Santos, Kemp Powers, Justin K. Thompson 16.30 SALA 3 ANPANMAN: DOROIN AND THE TRADITIONAL CARNIVAL [A] FALADO EM CANTONENSE Um filme de: Hiroyuki Yano Com: 14.30, 16:00, 17.30 TRANSFORMERS: RISE OF THE BEASTS [B] Um filme de: Steven Caple Jr. Com: Anthony Ramos, Dominique Fishback, Tobe Nwigwe 19.15, 21.30 14 [f]utilidades 26.6.2023 segunda-feira www.hojemacau.com.mo PUB. Assine-o TELEFONE 28752401 | FAX 28752405 E-MAIL info@hojemacau.com.mo www.hojemacau.com.mo UM FILME HOJE UM HOMEM FURIOSO | GUY RITCHIE | 2021

O POVO NÃO ESTÁ CANSADO

UM AMIGO meu tem uma pequena fábrica de placas de contraplacados. Há dias, encontrámo-nos e a conversa percorreu vários continentes desde aquela loucura de irem ver os destroços do ‘Titanic’ a 3.800 metros de profundidade até às empregadas domésticas que cada vez são mais abusadas sexualmente para que possam obter um pecúlio extra dos patrões. No entanto, o principal da conversa situou-se na ideia peregrina que está em estudo nas hostes governamentais de se trabalhar apenas quatro dias por cada semana. O povo está cansado? Qual quê, qual carapuça. O meu amigo transmitiu-me que para o país andar para a frente, as fábricas e outras empresas até deviam trabalhar ao domingo. Aliás, algumas já o fazem, tal como hipermercados e centros comerciais. Antes, trabalhar aos domingos era um crime. Depois começaram a ficar de boca aberta ao verem as lojas dos chineses abertas ao domingo e agora uma grande parte de comerciantes já trabalham no “dia santo”...

O meu interlocutor explicou-me que a possível medida de trabalhar apenas quatro dias por semana, deve ser um caso para países ricos, muito desenvolvidos e que não tenham dívida externa. Se o pessoal começa a ter descanso três dias: sexta, sábado e domingo,

a sua opinião é que o país regressa à bancarrota. Para alguns patrões trata-se da sorte grande porque ao parar tudo, a despesa da água e da luz diminui substancialmente. E os trabalhadores? Passam a receber o mesmo salário? Esses, estão muito enganados com o tri-descanso. O dia em que não trabalham será para dormir até ao meio-dia, depois têm de limpar a casa, pôr a roupa a lavar, passar a ferro, limpar os vidros e as varandas, cortar a relva, arranjar o jardim, lavar o carro e por aí adiante. Não haverá descanso nenhum, e irão trabalhar muito mais do que se estivessem no escritório ou na fábrica.

A medida dos quatro dias de trabalho por semana tem os seus apoiantes, mas também existe um grande número de trabalhadores que acha não haver qualquer vantagem. E alguns até já me salientaram: “É pá, mas o que é que eu estou a fazer em casa ou no café? A olhar para a televisão e a engordar com o sedentarismo ou no café a aturar bêbedos?”. A opinião varia. A medida poderá ser implementada, mas quer-nos parecer que ao fim de um ano tudo voltará ao princípio. O pessoal está habituado a um certo ritmo de vida e não está interessado em nenhum tipo de pasmaceira ou de trabalho caseiro de borla.

Uma verdade é certa: o povo não está cansado de trabalhar, o povo está é cansado de ganhar mal...

Para os que apoiam trabalhar só quatro dias por semana, segundo estatísticas confidenciais a que tivemos acesso, a maioria dos apoiantes tem dinheiro, é classe média alta. Pode pegar no carro com a cara-metade e passar três dias no ripanço numa praia ao longo da costa plantada. Mas, essa maioria tem um problema: se tiver filhos, já não haverá passeio para um turismo rural ou

hotel de cinco estrelas porque a miudagem tem aulas à sexta-feira. Ou então, as escolas (professores, assistentes sociais, cozinheiros e funcionários da limpeza) também encerram porque só passam a abrir quatro dias por semana? Tudo isto, é muito confuso e perplexo. Não será fácil agradar a todos, como tudo na vida, mas o Governo terá de pensar muito bem, contactar patrões e comissões de trabalhadores antes de decidir pelo decreto. Não é fácil e sobre esta matéria muita água irá correr por baixo da ponte.

O que nós pensamos é que o país tem mais de dois milhões de cidadãos no limite da pobreza. Muitos desempregados, outros que fazem biscates durante todo o dia, outros dedicam-se à prostituição e ainda outros “inscrevem-se” nos gangues e a nessa vida fácil cometem um vasto número de crimes, que na maior parte das vezes, leva-os a ir ver o sol aos quadradinhos. Semana com quatro dias de trabalho? Hum... cheira-me que os pobres que trabalham (a maioria) não vão gostar da decisão e ainda vamos ter, pela primeira vez, uma manifestação sob o slogan “Somos pobres, queremos trabalhar!”. Uma verdade é certa: o povo não está cansado de trabalhar, o povo está é cansado de ganhar mal...

vozes 15 segunda-feira 26.6.2023 www.hojemacau.com.mo
ai, portugal, portugal André Namora

LIVROS OBRAS PROIBIDAS EM HONG KONG RESISTEM EM MACAU

Juízos bibliotecários

Macau, o mesmo não acontece nas bibliotecas da Universidade Politécnica de Macau (UPM) e da Universidade de Macau (UM), ambos estabelecimentos públicos de ensino superior.

Além de artigos académicos, em inglês e até castelhano, relacionados com Joshua Wong, o livro de Allan Au “Twenty shades of freedom: media censorship routines in Hong Kong” (2017), que versa sobre “a autocensura da comunicação social” naquela região, é uma das publicações assinadas pelo autor e pode ser consultada tanto na UPM como na UM.

G7 ACORDO PARA CESSAR VIOLÊNCIA DE GÉNERO

OSministros da Igualdade do G7 acordaram estabelecer uma série de sistemas para erradicar a violência de género contra mulheres e meninas, incluindo a prevenção da violência e o apoio às vítimas, segundo um comunicado conjunto divulgado ontem.

A “Declaração de Nikko”, assinada após um encontro de dois dias na cidade com o mesmo nome (a nordeste de Tóquio), inclui uma série de propostas para prevenir a violência e facilitar o acesso à justiça, saúde e habitação para as vítimas.

APÓS a retirada de obras e autores das bibliotecas públicas de Hong Kong, é possível encontrar, em Macau, as “chamadas obras proibidas”, que resistem sobretudo nas universidades e em língua inglesa.

Poucos dias depois de duas obras de Allan Au Ka-lun terem sido retiradas das bibliotecas públicas de Hong Kong, uma amiga do autor foi à procura de “Tide Pools” em Macau. Mas o livro, que foi publicado apenas na versão chinesa, não estava disponível na rede de bibliotecas local.

Allan Au assegura à Lusa que nem sempre foi assim: “Estou bastante convicto de que este livro existia na biblioteca pública de Macau e, depois de sair a notícia do jornal de Hong Kong [Ming Pao], a minha amiga procurou-o e não encontrou”.

“Tide Pools”, um registo de viagem publicado pelo jornalista em 2009, é um dos títulos que desapareceu nos últimos dois anos das prateleiras das bibliotecas públicas de Hong Kong, de acordo com uma notícia avançada pelo Ming Pao. Au integra uma lista de autores e obras com “más ideologias” que foram recolhidos do sistema por ordem do Governo daquela região: outros nomes são o cartunista Zunzi (pseudónimo de Wong Kei-kwan) e a ex-deputada Margaret Ng Ngoi-yee.

A exclusão em Maio das duas obras de literatura de viagem de Au, “Tide Pools” e “Tata Bus” (2011), deixou o autor, que já tinha visto a bibliografia “com conteúdo mais político” desaparecer das prateleiras das bibliotecas públicas de Hong Kong no ano passado, “bastante surpreendido”.

“Os livros não tratam temas sensíveis. Isso mostra que eles [Governo] estão a visar pessoas em particular e não o conteúdo em si. Eu acho que é bastante óbvio”, refere.

As opções editoriais em Hong Kong também se fizeram logo sentir em Macau: “I am not a kid” (2015), de Joshua Wong Chi-fung, rosto dos protestos de 2019, foi excluído da biblioteca pública de Seac Pai Van para análise, disseram em Julho de 2020 as autoridades ao Hoje Macau.

E passados três anos, esta ou qualquer outra obra do jovem activista continuam ausentes da base de dados da rede pública de Macau, formada por 16 bibliotecas.

A Lusa questionou o Instituto Cultural (IC) se retirou recente-

mente publicações consideradas inapropriadas pelas autoridades das instalações bibliotecárias do território, mas o departamento governamental respondeu apenas que segue “os princípios estabelecidos na Política de Desenvolvimento de Colecções», tendo em conta «a importância dos livros no local de publicação original, o equilíbrio das opiniões dos conteúdos», entre outros factores. São realizados “constantemente, de acordo com as práticas das bibliotecas públicas internacionais, trabalhos de avaliação e triagem das colecções», notou ainda o IC num email, sem avançar com mais detalhes. Instado ainda a confirmar se “Tide Pools”, de Allan Au, deixou de fazer parte do acervo literário, o IC não respondeu.

Critérios universitários

Se por um lado, a pesquisa por obras de autoria de Joshua Wong, Allan Au ou Zunzi não produzem resultados no motor de pesquisa das bibliotecas geridas directamente pelo Governo de

As bibliotecas universitárias em Macau “parecem ser melhores” no que diz respeito à literatura disponível, analisa o comentador político Sonny Lo Shiu-Hing, para quem a “situação ainda depende do julgamento e das decisões dos bibliotecários”.

Por outro lado, “The People’s Republic of Amnesia” (2014), de Louisa Lim, um dos livros excluídos recentemente das bibliotecas públicas de Hong Kong, integra o corpo literário em língua inglesa, disponível na UM - sobretudo ‘online’ -, que aborda os acontecimentos de Tiananmen, a 04 de Junho em 1989, em Pequim.

Em Hong Kong, pelo menos nove títulos em língua inglesa sobre os protestos estudantis em Pequim foram retirados da rede de bibliotecas públicas, noticiou, em Maio, o jornal Washington Post.

As bibliotecas universitárias em Macau “parecem ser melhores” no que diz respeito à literatura disponível, analisa o comentador político Sonny Lo Shiu-Hing, para quem a “situação ainda depende do julgamento e das decisões dos bibliotecários”.

AllanAu, notando que “o mesmo se passa em Hong Kong”, justifica a presença “das chamadas obras proibidas” na esfera académica, em parte, com questões administrativas.

“Se quiserem fazer isso [excluir obras], precisam de passar por mais pessoas e mais processos. No caso das bibliotecas públicas, o Governo pode ordenar directamente”, nota o escritor, apontando que “pelo menos em Hong Kong, a universidade ainda é relativamente independente”.

“Mas não podemos saber o que se vai passar a seguir. Estou pessimista”, constata.

“Para eliminar todas as formas de violência de género, devemos estabelecer sistemas multissectoriais integrados com ênfase na prevenção da violência, apoio e proteção de sobreviventes e vítimas e garantia de acesso à justiça e responsabilização dos perpetradores”, lê-se no texto ontem publicado.

O documento também faz referência aos casos de assédio ‘online’, assim como a discursos de ódio e misoginia encontrados nas redes sociais e que se intensificaram nos últimos anos contra vítimas, jornalistas e defensores de direitos humanos, entre outros.

A declaração considera ainda essencial a participação plena e igualitária das mulheres na tomada de decisões a todos os níveis, sustentando tratar-se de “uma questão de direitos humanos, que contribuiria positivamente para as condições económicas, sociais e políticas globais”.

Outra das propostas do documento é a criação de um melhor ambiente de trabalho para as mulheres trabalhadoras nos sectores do turismo, restauração e cuidados a idosos ou crianças, cargos tradicionalmente desempenhados por mulheres.

segunda-feira 26.6.2023
“O pensamento é escravo da vida, e a vida é o bobo do tempo. ”
PUB.
William Shakespeare PALAVRA DO DIA

Turn static files into dynamic content formats.

Create a flipbook
Issuu converts static files into: digital portfolios, online yearbooks, online catalogs, digital photo albums and more. Sign up and create your flipbook.