Skip to main content

Brochure Tuinkersstraat 15

Page 1


Huizen van Hoekstra enVan Eck

Begane grond appartement

Twee slaapkamers

Met tuin en berging

Vrij uitzicht

Centraal gelegen

Soort benedenwoning

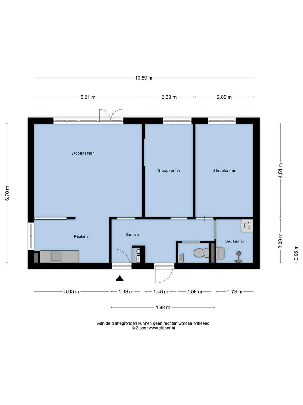
Kamers 3

Woonoppervlakte 71 m²

Inhoud 234 m³

Bouwjaar 1987

Tuin achtertuin

Garage geen garage

Verwarming stadsverwarming

Energielabel A

De in deze brochure getoonde informatie wordt door Hoekstra & van Eck makelaardij met zorg samengesteld, doch voor de juistheid en volledigheid daarvan kan niet worden ingestaan en kunnen hieraan geen rechten worden ontleend. Spel- en typefouten voorbehouden. De plattegronden zijn geproduceerd voor promotionele doeleinden en ter indicatie. Er kunnen geen rechten aan worden ontleend. Maten zijn niet eigenhandig opgemeten. Indien er twijfel bestaat over de accuratie van de gegevens aangaande deze brochure, is de geïnteresseerde zelf verantwoordelijk voor het nameten van deze gegevens. Voor meer informatie wordt u doorverwezen naar www.hoekstraenvaneck.nl

Verkoper vertelt

Ben jij op zoek naar een woning waar je zo in kunt trekken én helemaal naar jouw eigen smaak kunt maken? Dit begane grond appartement met tuin in Kruidenwijk, Almere Stad, heeft de perfecte mix van comfort en potentie. Met twee goede slaapkamers, vrij uitzicht en energielabel A woon je hier duurzaam en met veel leefruimte.

Het is een voormalige huurwoning, wat betekent dat de keuken en badkamer standaard zijn, maar dat geeft je de kans om je eigen stempel op deze woning te drukken. De oplevering kan snel en je hebt alle voorzieningen binnen handbereik. Wacht niet te lang!

- Zelfbewoningsclausule: deze woning is niet bedoeld voor verhuur.

- Vaste projectnotaris: de overdracht loopt via de aangewezen notaris.

- Voorrangsregeling voor huurders: vraag naar de voorwaarden.

- De woning is standaard afgewerkt maar

biedt alle mogelijkheden om naar eigen inzicht gemoderniseerd te worden.

standaard
naar eigen smaak inrichten

Loop je verder de woning in, dan ontdek je de standaard keuken en badkamer. Ja, beide zijn standaard uitgevoerd, maar dat betekent vooral dat je ze helemaal naar eigen wens kunt updaten. Wordt het een moderne combi van matzwart en crème of een keuken waarin retro kleuren de boventoon voeren? De keuze is aan jou! Dat geldt natuurlijk ook voor de badkamer: een stijlvolle regendouche, visgraattegels of juist minimalistisch strak? Jouw creativiteit mag hier de vrije loop nemen.

Standaard

huizen

veel lichtinval begane grond

Welkom thuis! Zodra je het appartement binnenstapt, merk je hoe fijn het is om op de begane grond te wonen. De woonkamer is ruim, licht en voorzien van grote ramen die zorgen voor een heerlijke dosis natuurlijke lichtinval. Hier start je je dag met een kop koffie terwijl je vanuit de zithoek geniet van het vrije uitzicht. Geen drukte en geen inkijk; een oase van rust waar je tot jezelf komt.

Ruim

2 slaapkamers

huizen van hoekstra & van eck

2 slaapkamers

goed formaat

De woning beschikt over twee slaapkamers, beide prettig ruim en eenvoudig in te richten. Of het nu een master bedroom wordt, een thuiskantoor of een gezellige kinderkamer, de mogelijkheden zijn eindeloos. En met 71 m² ben je verzekerd van lekker veel leefruimte zonder dat het onderhoud je boven het hoofd groeit—makkelijk en overzichtelijk.

fijne tuin

eigen berging

Dan de tuin: dé must-have waar iedereen deze dagen naar zoekt! Je hebt hier ruimte genoeg om een loungebank te plaatsen, een eethoekje neer te zetten of gezellig een moestuintje aan te leggen. Barbecueën met vrienden, ’s avond ontspannen met een glas wijn of gewoon een lekker boek lezen in alle rust? Hier is al dat moois binnen handbereik. Bovendien heb je een handige externe berging voor bijvoorbeeld fietsen of tuingereedschap.

Vrije ligging

centraal gelegen

kruidenwijk

In Kruidenwijk woon je in een rustige en groene buitenwijk met alle voorzieningen om de hoek. Scholen, supermarkten, Beatrixpark, sportclubs, kindvriendelijke speelplekken en het Stadshart voor al je shopbehoeften: alles is dichtbij. Bovendien zit je binnen enkele minuten op de uitvalswegen richting Amsterdam, Utrecht of ’t Gooi. Het maakt deze plek perfect voor zowel stadszoekers als natuurgenieters.

Almere

Kruidenwijk is gebouwd in de periode 1985 - 1989 en ligt ten noorden van het Beatrixpark en ten noordwesten aan Staatsliedenwijk.

Almere Stad is een stadsdeel van de gemeente Almere in de Nederlandse provincie Flevoland. De eerste huizen in Almere Stad werden opgeleverd in 1980. Naast Almere Centrum heeft het stadsdeel nog twee stations, namelijk Almere Parkwijk en Almere Muziekwijk in de gelijknamige wijken.

Hoe oud je ook bent, Almere is the place to be! Dit komt doordat Almere erg divers is. Natuur voor de natuurliefhebbers, water voor de watersporters, architectuur voor de architectuurliefhebbers en vele bezienswaardigheden, neem de Oostvaardersplassen, Almere Centrum en evenementen zoals Strandfestival “ZAND” en het “Almere Haven festival”.

Voor iedereen is er wel wat te doen in Almere. De stad trekt steeds meer toeristen en is een multiculturele stad, die volop aan het groeien is. Verder zijn de mogelijkheden met het openbaar vervoer uitstekend geregeld en met de auto ben je altijd binnen 10 minuten op de ringweg A6.

heerlijk wonen in Almere
noorden kadastrale kaart

HEERHUGOWAARD

ALKMAAR LANDSMEER

Lokaal makelaarschap

Wij geloven sterk in lokaal makelaarschap. Kennis van de buurt, de omgeving en de daarbij behorende ontwikkeling van de huizenprijzen zijn onmisbaar om voor jou het maximale resultaat te boeken.

Met Hoekstra & van Eck kies je voor:

• makelaars die al jarenlang verbonden zijn met de regio

• kennis van de lokale woningmarkt

• een verkoopplan afgestemd op jouw woning

• maximale exposure van je huis

• bezichtigingen ook in het weekend

• netwerk met honderden woningzoekers

Verkoop je je huis met Hoekstra & van Eck dan ben je met de eigen app 24/7 op de hoogte van het verkoopproces. Bezichtigingsverzoeken bereiken je direct en beantwoord je snel en discreet op het moment dat het jou uitkomt.

Ook je huis verkopen? Onze makelaars komen graag en vrijblijvend bij je langs. We maken dan direct een gratis waardebepaling. Hoekstra & van Eck werkt op basis van no cure no pay. En betalen doe je pas bij verkoop.

Midwaystraat 3

036 - 538 32 90 almere@hoekstraenvaneck.nl www.hoekstraenvaneck.nl

HOORN

PURMEREND ZAANDAM

(2x)

A’DAM WEST

HOOFDDORP HAARLEM

LEIDEN

MONNICKENDAM

A’DAM NOORD

AMSTERDAM

AMSTELVEEN

VLEUTEN DE MEERN

ALMERE

BUSSUM

HILVERSUM

MAARSSEN

UTRECHT

AMERSFOORT

(2x) (2x)

NIEUWEGEIN WIJK BIJ DUURSTEDE

MEPPEL

ZWOLLE

APELDOORN

ARNHEM

(2x)

NIJMEGEN

‘S-HERTOGENBOSCH

BREDA

TILBURG

EINDHOVEN

WEERT

ROERMOND

WhatsApp de foto’s en het adres van je woning naar 06 13 18 43 41 en ontvang een gratis waardebepaling!

Turn static files into dynamic content formats.

Create a flipbook
Brochure Tuinkersstraat 15 by Hoekstra en van Eck Makelaars - méér makelaar - - Issuu