Skip to main content

Brochure Binnenhof 120

Page 1


Huizen van Hoekstra enVan Eck

3-kamer appartement

Balkon

Nabij centrum Almere Haven

Energielabel A

Soort portiekflat

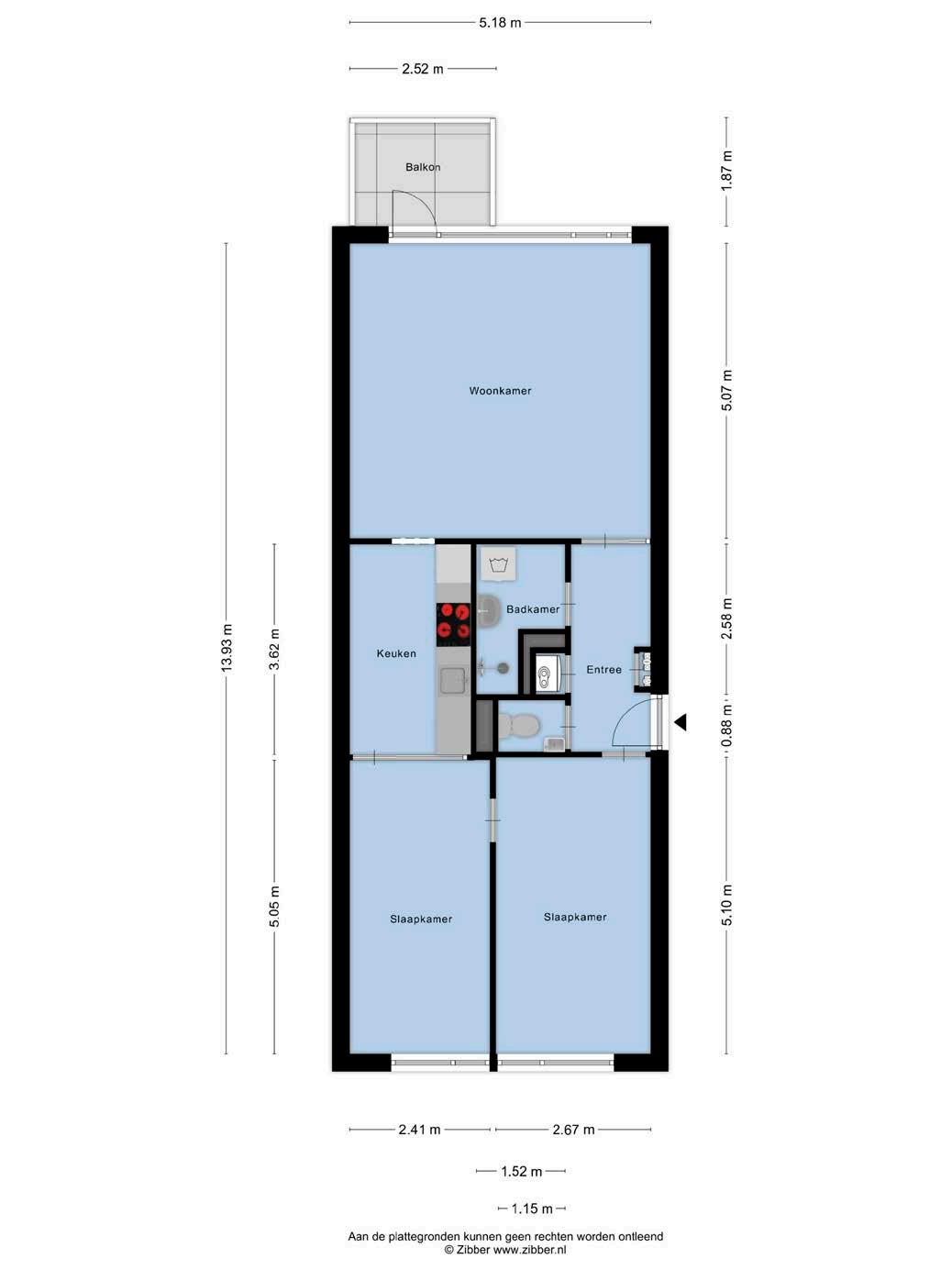
Kamers 3

Woonoppervlakte 71 m²

Inhoud 235 m³

Bouwjaar 1979

Tuin geen tuin

Garage geen garage

Verwarming c.v.-ketel

Isolatie dubbel glas

Energielabel A

De in deze brochure getoonde informatie wordt door Hoekstra & van Eck makelaardij met zorg samengesteld, doch voor de juistheid en volledigheid daarvan kan niet worden ingestaan en kunnen hieraan geen rechten worden ontleend. Spel- en typefouten voorbehouden. De plattegronden zijn geproduceerd voor promotionele doeleinden en ter indicatie. Er kunnen geen rechten aan worden ontleend. Maten zijn niet eigenhandig opgemeten. Indien er twijfel bestaat over de accuratie van de gegevens aangaande deze brochure, is de geïnteresseerde zelf verantwoordelijk voor het nameten van deze gegevens. Voor meer informatie wordt u doorverwezen naar www.hoekstraenvaneck.nl

Verkoper vertelt

Makelaar vertelt:

Dit knusse 3- kamer appartement appartement op de eerste verdieping heeft alles in huis wat je nodig hebt. Een lichte woonkamer, een ruim balkon om te genieten van lange zomeravonden en voldoende ruimte om je woonwensen werkelijkheid te laten worden. Hier woon je rustig, midden in een woonomgeving vol groen, met genoeg parkeerruimte en een eigen berging voor je fiets of andere spullen. Klaar om te ontdekken wat dit lichte en praktische appartement voor jou kan betekenen? Lees snel verder!

huizen van hoekstra & van eck

eigen berging
Kom binnen! fijn wonen

Dit knusse 3- kamer appartement appartement op de eerste verdieping heeft alles in huis wat je nodig hebt. Een lichte woonkamer, een ruim balkon om te genieten van lange zomeravonden en voldoende ruimte om je woonwensen werkelijkheid te laten worden. Hier woon je rustig, midden in een woonomgeving vol groen, met genoeg parkeerruimte en een eigen berging voor je fiets of andere spullen.

Fijne lichtinval

maak het eigen prima ruimte

De grote ramen zorgen hier voor een heerlijke lichtinval en bieden een vrij uitzicht over de omgeving. Genoeg ruimte om zowel een gezellige hoekbank neer te zetten als een heerlijke eettafel waar je met vrienden kunt genieten.

Gesloten keuken

plaats jouw droomkeuken

praktisch ingedeeld

De keuken is voorbereid, dat wil zeggen dat je hier naar eigen smaak een keukenblok kan plaatsen. Ga je voor eenvoudig of ga je voor luxe, hier kan je het allemaal zelf realiseren.

De badkamer is compact maar compleet, voorzien van een douche, wastafel en aansluiting voor je wasmachine. Naast de badkamer vind je de apart gelegen toiletruimte, wat lekker praktisch is.

goed formaat

lekker licht

Het appartement is voorzien van 2 goede slaapkamers. De een is wat breder dan de ander maar beiden zijn van een goed formaat.

Eigen buitenruimte

genieten zonnig

Via de woonkamer is het balkon bereikbaar. Hier kan je rustig ziten met een kopje koffie of thee.

Gunstige ligging

veel groen

nabij voorzieningen

De groene woonomgeving nodigt uit tot wandelingen en biedt een rustige sfeer om in thuis te komen. Bovendien woon je op een steenworp afstand van dagelijkse voorzieningen, zoals winkels, openbaar vervoer en misschien wel jouw favoriete koffietentje. Parkeren is hier geen probleem, en met de inpandige berging is ook aan praktische zaken gedacht.

Dit appartement is de kans voor starters om hun eigen paleisje te bemachtigen. Hier hoef je alleen nog maar jouw eigen stijl en persoonlijkheid toe te voegen om van dit huis een echt thuis te maken!

Almere

Hoe oud je ook bent, Almere is the place to be! Dit komt doordat Almere erg divers is. Natuur voor de natuurliefhebbers, water voor de watersporters, architectuur voor de architectuurliefhebbers en vele bezienswaardigheden, neem de Oostvaardersplassen, Almere Centrum en evenementen zoals Strandfestival “ZAND” en het “Almere Haven festival”.

Voor iedereen is er wel wat te doen in Almere. De stad trekt steeds meer toeristen en is een multiculturele stad, die volop aan het groeien is. Verder zijn de mogelijkheden met het openbaar vervoer uitstekend geregeld en met de auto ben je altijd binnen 10 minuten op de ringweg A6.

heerlijk wonen in Almere
noorden kadastrale kaart

HEERHUGOWAARD

Lokaal makelaarschap

Wij geloven sterk in lokaal makelaarschap. Kennis van de buurt, de omgeving en de daarbij behorende ontwikkeling van de huizenprijzen zijn onmisbaar om voor jou het maximale resultaat te boeken.

Met Hoekstra & van Eck kies je voor:

• makelaars die al jarenlang verbonden zijn met de regio

• kennis van de lokale woningmarkt

• een verkoopplan afgestemd op jouw woning

• maximale exposure van je huis

• bezichtigingen ook in het weekend

• netwerk met honderden woningzoekers

Verkoop je je huis met Hoekstra & van Eck dan ben je met de eigen app 24/7 op de hoogte van het verkoopproces. Bezichtigingsverzoeken bereiken je direct en beantwoord je snel en discreet op het moment dat het jou uitkomt.

Ook je huis verkopen? Onze makelaars komen graag en vrijblijvend bij je langs. We maken dan direct een gratis waardebepaling. Hoekstra & van Eck werkt op basis van no cure no pay. En betalen doe je pas bij verkoop.

Midwaystraat 3

036 - 538 32 90 almere@hoekstraenvaneck.nl www.hoekstraenvaneck.nl

PURMEREND ZAANDAM LANDSMEER HOORN

A’DAM WEST

HOOFDDORP HAARLEM

LEIDEN

MONNICKENDAM

A’DAM NOORD

AMSTERDAM

AMSTELVEEN

ALMERE

HILVERSUM

MAARSSEN

VLEUTEN DE MEERN UTRECHT

NIEUWEGEIN WIJK BIJ DUURSTEDE

AMERSFOORT

BREDA

TILBURG

MEPPEL

ZWOLLE

APELDOORN

ARNHEM

NIJMEGEN

‘S-HERTOGENBOSCH

EINDHOVEN (2x) (2x) (2x)

WEERT

ROERMOND

Hypotheekadvies dat verder gaat dan feiten

Ga je een huis kopen, verhuizen of verbouwen? Dan is het fijn om te weten waar je financieel aan toe bent. Bij Vivantus Hypotheken start je altijd met een gratis en vrijblijvend kennismakingsgesprek. Zo krijg je helderheid over wat je kunt lenen én welke hypotheek het beste past bij jouw plannen.

Onze onafhankelijke adviseurs nemen de tijd voor jouw verhaal. We kijken niet alleen naar je huidige situatie, maar ook naar je toekomstwensen. Want een hypotheek moet niet alleen vandaag kloppen, maar ook over vijf jaar nog goed voelen.

Sta je op het punt een bod te doen? Dan sta je sterker met een hypotheekadvies vooraf. Zo weet je precies wat je kunt biedenen kun je mogelijk zelfs zonder financieringsvoorbehoud kopen. Uiteraard geven we je helder inzicht in de risico’s en kansen.

• Persoonlijk advies, volledig onafhankelijk

• Plan vandaag nog jouw gratis gesprek!

Vivantus Hypotheken

Bel ons op: 085 - 773 1969

Of mail ons: cbohypotheken@hypotheekshop.nl

Turn static files into dynamic content formats.

Create a flipbook