Skip to main content

Brochure-Vrijheidsplantsoen 27 te Purmerend

Page 1


Huizen van Hoekstra enVan Eck

Kindvriendelijk gelegen Eigen garage

Soort eengezinswoning

Type tussenwoning

Kamers 4

Woonoppervlakte 136 m²

Perceeloppervlakte 145 m²

Inhoud 480 m³

Bouwjaar 1993

Tuin achtertuin, voortuin

Garage vrijstaand steen

Verwarming stadsverwarming

Isolatie volledig geïsoleerd

Energielabel A

De in deze brochure getoonde informatie wordt door Hoekstra & van Eck makelaardij met zorg samengesteld, doch voor de juistheid en volledigheid daarvan kan niet worden ingestaan en kunnen hieraan geen rechten worden ontleend. Spel- en typefouten voorbehouden. De plattegronden zijn geproduceerd voor promotionele doeleinden en ter indicatie. Er kunnen geen rechten aan worden ontleend. Maten zijn niet eigenhandig opgemeten. Indien er twijfel bestaat over de accuratie van de gegevens aangaande deze brochure, is de geïnteresseerde zelf verantwoordelijk voor het nameten van deze gegevens. Voor meer informatie wordt u doorverwezen naar www.hoekstraenvaneck.nl

Verkoper vertelt

Deze heerlijke ruime woning is gelegen in een kindvriendelijke omgeving, geen autoverkeer aan de voorzijde. Een avonturenspeelplek voor de kinderen is tevens gelegen aan de voorzijde van het huis. De Groeneweg, het fietspad richting het centrum van Purmerend en via de andere zijde richting het Purmerbos, hiervandaan kunt u alle kanten op. Maar ook het winkelcentrum Meerland is lopend en fietsend bereikbaar. En de twee lagere scholen en BSO aan de Persijnlaan zijn lopend, fietsend en veilig te bereiken.

De begane grond is ruim bemeten en voorzien van een bijna nieuwe keuken met inbouwapparatuur. De dubbele deuren geven toegang naar de tuin en de garage. Aan de achterzijde van het huis zijn voldoende parkeerplaatsen voor de auto.

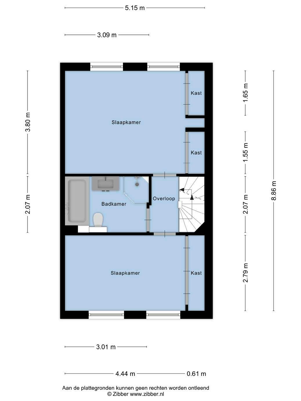
Op de eerste verdieping zijn twee ruime slaapkamers welke voorzien zijn van elektrisch bedienbare rolluiken.

En ook de badkamer, voorzien van een douchehoek, bubbelbad, toilet en wastafelmeubel.

Op de tweede verdieping is nog een slaapkamer welke voorzien is van rolluiken. Ook een afgesloten bergruimte, een kantoor-/hobbyruimte en de wasmachine- en drogeropstelplaats. Tevens is hier ook de toegang tot het dakterras.

Alle slaapkamers zijn voorzien van airco.

Kortom, van alle gemakken voorzien. Dit was voor ons ook de reden om ongeveer 20 jaar geleden dit huis te kopen, waar we prettig hebben gewoond.

Wij gaan onze droom achterna en zullen Purmerend gaan verlaten en een nieuw leven beginnen in Tirol, Oostenrijk.

Purmerend: Waterlandlaan 88, T 0299 - 47 20 21

huizen

Aangenaam lichtinval

uitgebouwde woonkamer

hoe richt jij het in?

De uitgebouwde woonkamer zorgt voor heerlijk veel leefruimte. Er is meer dan genoeg plek voor een comfortabele zithoek én een grote eettafel waar je uitgebreid kunt eten met familie en vrienden. Dankzij de brede pui met openslaande deuren is de ruimte bovendien lekker licht en voelt het geheel extra ruim aan.

Moderne keuken

wat maak jij klaar?

open keuken

De moderne open keuken is strak uitgevoerd en van alle gemakken voorzien. De praktische indeling biedt veel werk- en opbergruimte, waardoor je hier met plezier staat te koken. Alles is klaar voor gebruik – uitpakken en genieten maar.

Hoe deel jij het in?

3 royale slaapkamers

nette badkamer

De woning beschikt over drie ruime slaapkamers. Op de eerste verdieping bevinden zich twee goed bemeten kamers die volledig naar eigen smaak kunnen worden ingericht. Op de tweede etage ligt de derde royale slaapkamer, samen met de aansluiting voor de wasmachine. Hier is tevens ruimte voor een bureau of een hobbyruimte. Daarnaast bevindt zich hier nog een bergruimte voor alle seizoensgebonden spullen. Ideaal en praktisch ingedeeld.

De badkamer is volledig betegeld en compleet uitgevoerd met een douche, wastafelmeubel en ligbad. Net als het toilet is ook de badkamer keurig onderhouden en direct te gebruiken.

op het zuidoosten
Achterom aanwezig heerlijk ontspannen

De achtertuin is gelegen op het zuidoosten, waardoor je hier heerlijk van het buitenleven kunt genieten. Of je nu ’s ochtends van de eerste zonnestralen wilt genieten of ’s avonds nog wilt ontspannen in het zonnetje, dit is de ideale plek. Bovendien is er een handige achterom aanwezig, wat zorgt voor extra gemak. Daarnaast is er op de bovenste verdieping een dakterras aanwezig.

heerlijk wonen in Purmerend

Purmerend

De stad Purmerend is omgeven door polders, zoals de Purmer, Beemster en Wormer. De stad werd het marktcentrum van de omgeving, maar het bevolkingsaantal groeide langzaam. Pas na 1960 is de bevolking gegroeid van ongeveer 10.000 naar ongeveer 80.000 inwoners. De stad ligt gunstig ten opzichte van Amsterdam waar veel inwoners, vaak voormalig inwoners van de hoofdstad, werken. Purmerend noemt zich met recht al jarenlang Marktstad, maar was in 2003 ook vernoemd tot Kermisstad van Nederland.

Naast de kermis is Purmerend vooral bekend om haar (vee-)markten. Na de vele veeziekten tussen 1995 en 2001 is de koe -en schapenmarkt niet meer in de openlucht toegestaan. De veemarkt is daarop verplaatst van het centrum naar industrieterrein, en is in private handen overgegaan. Purmerend beschikt over hoogwaardig busvervoer en ligt aan de spoorlijn Hoofddorp - Schiphol - Zaandam – Enkhuizen. Dit zorgt voor een uitstekende openbaar vervoer verbinding naar Amsterdam en omstreken. Ruim 60% van de totale woon-werk-pendel uit Purmerend gaat per auto. Richting Amsterdam zijn er twee ontsluitingswegen: De A7 en de provinciale weg N235 (Jaagweg).

noorden kadastrale kaart

HEERHUGOWAARD

Lokaal makelaarschap

Wij geloven sterk in lokaal makelaarschap. Kennis van de buurt, de omgeving en de daarbij behorende ontwikkeling van de huizenprijzen zijn onmisbaar om voor jou het maximale resultaat te boeken.

Met Hoekstra & van Eck kies je voor:

• makelaars die al jarenlang verbonden zijn met de regio

• kennis van de lokale woningmarkt

• een verkoopplan afgestemd op jouw woning

• maximale exposure van je huis

• bezichtigingen ook in het weekend

• netwerk met honderden woningzoekers

Verkoop je je huis met Hoekstra & van Eck dan ben je met de eigen app 24/7 op de hoogte van het verkoopproces. Bezichtigingsverzoeken bereiken je direct en beantwoord je snel en discreet op het moment dat het jou uitkomt.

Ook je huis verkopen? Onze makelaars komen graag en vrijblijvend bij je langs. We maken dan direct een gratis waardebepaling. Hoekstra & van Eck werkt op basis van no cure no pay. En betalen doe je pas bij verkoop.

Waterlandlaan 88 0299 - 47 20 21 purmerend@hoekstraenvaneck.nl www.hoekstraenvaneck.nl

PURMEREND ZAANDAM LANDSMEER HOORN

A’DAM WEST

HOOFDDORP HAARLEM

LEIDEN

MONNICKENDAM

A’DAM NOORD

AMSTERDAM

AMSTELVEEN

ALMERE

HILVERSUM

MAARSSEN

VLEUTEN DE MEERN UTRECHT

NIEUWEGEIN WIJK BIJ DUURSTEDE

AMERSFOORT

BREDA

TILBURG

MEPPEL

ZWOLLE

APELDOORN

ARNHEM

NIJMEGEN

‘S-HERTOGENBOSCH

EINDHOVEN (2x) (2x) (2x)

WEERT

ROERMOND

Hypotheekadvies dat verder gaat dan feiten

Ga je een huis kopen, verhuizen of verbouwen? Dan is het fijn om te weten waar je financieel aan toe bent. Bij Vivantus Hypotheken start je altijd met een gratis en vrijblijvend kennismakingsgesprek. Zo krijg je helderheid over wat je kunt lenen én welke hypotheek het beste past bij jouw plannen.

Onze onafhankelijke adviseurs nemen de tijd voor jouw verhaal. We kijken niet alleen naar je huidige situatie, maar ook naar je toekomstwensen. Want een hypotheek moet niet alleen vandaag kloppen, maar ook over vijf jaar nog goed voelen.

Sta je op het punt een bod te doen? Dan sta je sterker met een hypotheekadvies vooraf. Zo weet je precies wat je kunt biedenen kun je mogelijk zelfs zonder financieringsvoorbehoud kopen. Uiteraard geven we je helder inzicht in de risico’s en kansen.

• Persoonlijk advies, volledig onafhankelijk

• Plan vandaag nog jouw gratis gesprek!

Vivantus Hypotheken

Bel ons op: 085 - 773 1969

Of mail ons: cbohypotheken@hypotheekshop.nl

Turn static files into dynamic content formats.

Create a flipbook