Skip to main content

Van Kempenstraat 19, Voorschoten

Page 1


Huizen van Hoekstra enVan Eck

Ruim en licht huis

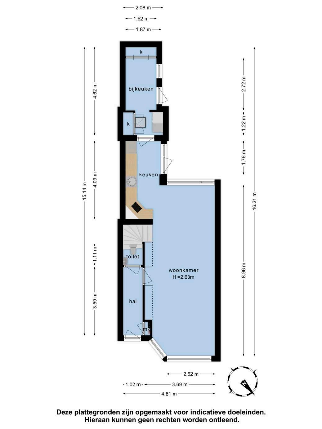
Praktische indeling

Ruime slaapkamers

Moderne badkamer

Ideale ligging

Soort eengezinswoning

Type tussenwoning

Kamers 5

Woonoppervlakte 115 m²

Perceeloppervlakte 107 m²

Inhoud 408 m³

Bouwjaar 1935

Tuin achtertuin, voortuin

Garage geen garage

Verwarming c.v.-ketel

Isolatie dakisolatie, grotendeels dubbelglas, hr-glas

Energielabel D

De in deze brochure getoonde informatie wordt door Hoekstra & van Eck makelaardij met zorg samengesteld, doch voor de juistheid en volledigheid daarvan kan niet worden ingestaan en kunnen hieraan geen rechten worden ontleend. Spel- en typefouten voorbehouden. De plattegronden zijn geproduceerd voor promotionele doeleinden en ter indicatie. Er kunnen geen rechten aan worden ontleend. Maten zijn niet eigenhandig opgemeten. Indien er twijfel bestaat over de accuratie van de gegevens aangaande deze brochure, is de geïnteresseerde zelf verantwoordelijk voor het nameten van deze gegevens. Voor meer informatie wordt u doorverwezen naar www.hoekstraenvaneck.nl

Verkoper vertelt

Welkom in Bloemenwijk! Dit prachthuis is perfect voor jonge gezinnen en tweepersoonshuishoudens die op zoek zijn naar een ruim en licht huis, vlakbij het bruisende centrum van Voorschoten.

Met vier royale slaapkamers, een gloednieuwe badkamer en een slimme indeling, biedt deze woning alle comfort en gemak die je zoekt. De ideale ligging nabij scholen, kinderopvang en uitvalswegen maakt het helemaal af.

huizen

Welkom Thuis

veel lichtinval

sfeervol en comfort

De licht overgoten woonkamer is een perfecte plek om samen te komen met familie en vrienden. De grote ramen zorgen voor een overvloed aan natuurlijk licht, wat de ruimte uitnodigend en warm maakt.

Lekker kokkerellen

wat maak jij klaar? strak afgewerkt!

Direct aansluitend vind je de keuken, compleet met alle benodigde apparatuur en een handige bijkeuken waar je de was kunt doen of extra spullen kunt opbergen.

4 Slaapkamers

hoe deel jij ze in?

slapen of werken

Op de eerste etage leidt de overloop je naar twee ruime slaapkamers, elk met voldoende ruimte voor bedden en kasten. De tweede etage verrast je met nog twee ruime slaapkamers. Eén van deze kamers is uitgerust met een wastafel, wat het ochtendritueel net iets gemakkelijker maakt.

optimaal genieten

onderhoudsvriendelijk

Buiten is er een gezellige tuin waar je kunt genieten van zonnige dagen en lange avonden met vrienden en familie. Of je nu groene vingers hebt en een moestuin wilt aanleggen, of liever een onderhoudsvriendelijke buitenruimte hebt, deze tuin biedt voor ieder wat wils.

Fraaie tuin

Voorschoten

Aan Leiden vast ligt het mooie Voorschoten. De gemeente heeft een mooi groen karakter en je vind hier vele voorzieningen. Zowel winkels, scholen, verschillende sportverenigingen als recreatiemogelijkheden zijn hier te vinden. Ook staat Voorschoten bekend om het mooie Kasteel Duivenvoorde, waar diverse activiteiten gedaan kunnen worden.

Mocht je behoefte hebben aan meer gezelligheid, dan is de gezellige binnenstad van Leiden in een mum van tijd te bereiken.

heerlijk wonen in Voorschoten
noorden kadastrale kaart

HEERHUGOWAARD

ALKMAAR LANDSMEER

Lokaal makelaarschap

Wij geloven sterk in lokaal makelaarschap. Kennis van de buurt, de omgeving en de daarbij behorende ontwikkeling van de huizenprijzen zijn onmisbaar om voor jou het maximale resultaat te boeken.

Met Hoekstra & van Eck kies je voor:

• makelaars die al jarenlang verbonden zijn met de regio

• kennis van de lokale woningmarkt

• een verkoopplan afgestemd op jouw woning

• maximale exposure van je huis

• bezichtigingen ook in het weekend

• netwerk met honderden woningzoekers

Verkoop je je huis met Hoekstra & van Eck dan ben je met de eigen app 24/7 op de hoogte van het verkoopproces. Bezichtigingsverzoeken bereiken je direct en beantwoord je snel en discreet op het moment dat het jou uitkomt.

Ook je huis verkopen? Onze makelaars komen graag en vrijblijvend bij je langs. We maken dan direct een gratis waardebepaling. Hoekstra & van Eck werkt op basis van no cure no pay. En betalen doe je pas bij verkoop.

Schipholweg 55 071 2073765 leiden@hoekstraenvaneck.nl www.hoekstraenvaneck.nl

HOORN

PURMEREND ZAANDAM

(2x)

A’DAM WEST

HOOFDDORP HAARLEM

LEIDEN

MONNICKENDAM

A’DAM NOORD

AMSTERDAM

ALMERE AMSTELVEEN

BUSSUM

HILVERSUM

MAARSSEN

UTRECHT

VLEUTEN DE MEERN

AMERSFOORT

(2x) (2x)

NIEUWEGEIN WIJK BIJ DUURSTEDE

MEPPEL

ZWOLLE

APELDOORN

ARNHEM

(2x)

NIJMEGEN

‘S-HERTOGENBOSCH

BREDA

TILBURG

EINDHOVEN

WEERT

ROERMOND

WhatsApp de foto’s en het adres van je woning naar 06 13 18 43 41 en ontvang een gratis waardebepaling!

Turn static files into dynamic content formats.

Create a flipbook
Van Kempenstraat 19, Voorschoten by Hoekstra en van Eck Makelaars - méér makelaar - - Issuu