Skip to main content

Morgenstarstraat 45, Zaandijk

Page 1


HuizenThijssen van

Starters appartement

Vrij uitzicht

Balkon op het westen

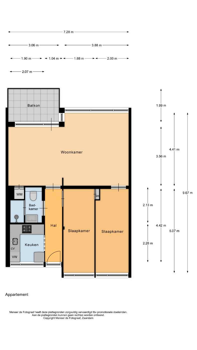
Soort Kamers

Woonoppervlakte

Inhoud

Bouwjaar

Tuin

Garage

Verwarming

Isolatie

Energielabel

Kenmerken

galerijflat

3

65 m²

212 m³

1961

geen tuin

geen garage

blokverwarming

grotendeels dubbelglas

E

De in deze brochure getoonde informatie wordt door Thijssen makelaardij met zorg samengesteld, doch voor de juistheid en volledigheid daarvan kan niet worden ingestaan en kunnen hieraan geen rechten worden ontleend. Spel- en typefouten voorbehouden. De plattegronden zijn geproduceerd voor promotionele doeleinden en ter indicatie. Er kunnen geen rechten aan worden ontleend. Maten zijn niet eigenhandig opgemeten. Indien er twijfel bestaat over de accuratie van de gegevens aangaande deze brochure, is de geïnteresseerde zelf verantwoordelijk voor het nameten van deze gegevens. Voor meer informatie wordt u doorverwezen naar www.thijssenmakelaardij.nl

Verkoper vertelt

Morgenstarstraat is een prachtige straat, omdat je dicht bij het treinstation bent, ongeveer 10 minuten lopen, en ook ongeveer 3 minuten lopen van het busstation.

Vanaf Zaandamcentrum is het ongeveer 4 minuten rijden. Dicht bij het prachtige toeristische gebied zaanse Schans. Er is de mogelijkheid om gratis te parkeren onder het pand. Een zeer veilige en rustige omgeving met geweldige buren

Kom

lift aanwezig

binnen handige berging

Stel je voor: je komt thuis, waar het hectische dagelijkse leven even plaatsmaakt voor rust en comfort. Dit charmante appartement, met een woonoppervlakte van 65m², is een heerlijke woning en biedt tegelijkertijd alle voorzieningen die je nodig hebt binnen handbereik.

Het appartement is gelegen in een goed onderhouden complex met een actieve VvE en er is voldoende gratis parkeergelegenheid in de directe omgeving.

vrij uitzicht

goede basis

Compact, maar doeltreffend en verrassend ruim ingedeeld. Ondanks de bescheiden oppervlakte biedt de woning een slimme indeling die optimaal gebruik maakt van de beschikbare ruimte. Hierdoor voelt het appartement groter aan dan het in werkelijkheid is, en heb je voldoende ruimte voor al je meubels en persoonlijke spullen.

Bij binnenkomst word je verwelkomd door een lichte en ruime woonkamer, waar het natuurlijke licht door de grote ramen naar binnen stroomt. Het prachtige vrije uitzicht zal onmiddellijk je aandacht trekken en je uitnodigen om te ontspannen na een lange dag. De woonkamer vormt het hart van de woning en biedt voldoende ruimte voor zowel een gezellige zithoek als een eetgedeelte.

Lichte woonkamer

Prima keuken

compleet praktische indeling

De keuken is gesitueerd aan de voorzijde. De keuken heeft voldoende kastruimte en werkblad ruimte, waardoor koken een waar genoegen wordt.

Verzorgde badkamer

2 slaapkamers

netjes

Voldoende ruimte voor een jong gezin of een thuiskantoor. Met twee goed bemeten slaapkamers heb je de flexibiliteit om een extra kamer te gebruiken als kinderkamer, logeerkamer of werkruimte. Dit maakt de woning niet alleen geschikt voor starters, maar ook voor kleine gezinnen of mensen die regelmatig vanuit huis werken.

De badkamer is stijlvol en praktisch ingericht, voorzien van een douche, wastafel, toilet en opbergruimte.

Groen uitzicht

genieten

gunstige ligging

Ideaal om te ontspannen en te genieten van de prachtige zonsondergangen. Het balkon is een perfecte plek om na een lange dag tot rust te komen met een goed boek of een glas wijn. De ligging op het westen zorgt ervoor dat je optimaal kunt profiteren van de avondzon, wat je balkon tot een verlengstuk van je woonkamer maakt.

Geniet dagelijks van een panoramisch uitzicht dat je nooit zal vervelen. Of je nu ‘s ochtends wakker wordt of ‘s avonds thuiskomt, het adembenemende uitzicht op de omgeving biedt altijd een gevoel van ruimte en rust.

Helemaal geschikt voor de starter en nabij alle voorzieningen. Dit appartement biedt een uitstekende kans voor mensen die hun eerste woning willen kopen. Met supermarkten, winkels en recreatievoorzieningen op loopafstand, heb je alles wat je nodig hebt binnen handbereik.

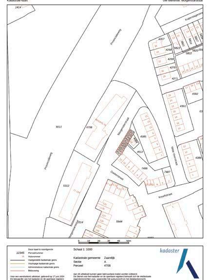
noorden kadastrale kaart

Zaandijk

Oud-Zaandijk, aan de oostkant van het spoor, betreft het historische gedeelte van Zaandijk. Hier bevindt zich ook de winkelkern, waar ambachtelijk en biologisch de norm zijn. De Zaanse Schans ligt aan de andere kant van de brug over de Zaan, op een paar minuten lopen. Daarachter begint het vrije veld, met de natuurgebieden en uitgestrekte veenweidepolders.

Scholen, sport, spel en supermarkt zijn op loopafstand te vinden. Zowel auto- als spoorforenzen beperken het woonwerkverkeer tot het minimum. De snelweg ligt op vier minuten sturen, een klein kwartier later ben je Amsterdam zowat al voorbij. Het NS station is nog geen tien minuten lopen. De populariteit van oud-Zaandijk als toeristische trekpleister, met al haar bezienswaardigheden, musea en monumenten, heeft voor een uitstekende infrastructuur gezorgd. Met alle historie, origineel zoals aan de Lagedijk, of fantastisch gerepliceerd, zoals het pittoreske buurtje Domineestuin, staat in oud-Zaandijk vooral (be)leefbaarheid voorop!

heerlijk wonen in Zaandijk

HEERHUGOWAARD

ALKMAAR LANDSMEER HOORN

ZAANDAM

HOOFDDORP HAARLEM

A’DAM WEST

Lokaal makelaarschap

Wij geloven sterk in lokaal makelaarschap. Kennis van de buurt, de omgeving en de daarbij behorende ontwikkeling van de huizenprijzen zijn onmisbaar om voor jou het maximale resultaat te boeken.

Met Thijssen Makelaardij kies je voor:

• makelaars die al jarenlang verbonden zijn met de regio

• kennis van de lokale woningmarkt

• een verkoopplan afgestemd op jouw woning

• maximale exposure van je huis

• bezichtigingen ook in het weekend

• netwerk met honderden woningzoekers

Verkoop je je huis met Thijssen makelaardij dan ben je met de eigen app 24/7 op de hoogte van het verkoopproces. Bezichtigingsverzoeken bereiken je direct en beantwoord je snel en discreet op het moment dat het jou uitkomt.

Ook je huis verkopen? Onze makelaars komen graag en vrijblijvend bij je langs. We maken dan direct een gratis waardebepaling. Thijssen Makelaardij werkt op basis van no cure no pay. En betalen doe je pas bij verkoop.

Westzijde 131 075 616 86 69 zaandam@thijssenmakelaardij.nl www.thijssenmakelaardij.nl

PURMEREND

MONNICKENDAM

A’DAM NOORD

AMSTERDAM

ALMERE AMSTELVEEN

BUSSUM

MAARSSEN

UTRECHT

VLEUTEN DE MEERN

NIEUWEGEIN WIJK BIJ DUURSTEDE

MEPPEL

APELDOORN

NIJMEGEN ARNHEM

TILBURG REESHOF

ALLES IN HUIS VOOR

JOUW IDEALE THUIS

WETEN WAT JOUW HUIS WAARD IS?

Scan en plan een waardebepaling in, direct in de agenda van de makelaar! >>>

IEDERE DAG STAAT ‘HET VERSCHIL MAKEN’ CENTRAAL. WIJ VAN THIJSSEN MAKELAARDIJ ZETTEN ONS

ALTIJD 100% IN ALS MAKELAAR. WIJ HEBBEN

KENNIS VAN DE LOKALE WONINGMARKT EN WETEN ZO EEN VERKOOPPLAN OP TE STELLEN

DAT HET BESTE PAST BIJ JOUW WONING. JIJ ALS

VERKOPER OF KOPER STAAT ALTIJD VOOROP. WIJ

ONTZORGEN JOU VAN A TOT Z, OOK OP HET GEBIED VAN HYPOTHEKEN EN VERZEKERINGEN. MET ALLE EXPERTISES ONDER ÉÉN DAK, KUNNEN WE ALTIJD

SUPERSNEL SCHAKELEN.

OOK VERKOPEN?

Thijssen Makelaardij is onderdeel van Vivantus, de grootste NVM-makelaar van Nederland. Hierdoor ben je verzekerd van de modernste marketingtools, innovatieve technieken en heb jij de voordelen van een groot landelijk netwerk met kantoren door het hele land.

Ben jij op zoek naar jouw droomhuis of wil je juist verkopen? Neem contact met ons op, wij helpen je graag verder!

BEL 075 616 86 69 OF MAIL NAAR ZAANDAM@THIJSSENMAKELAARDIJ.NL

Turn static files into dynamic content formats.

Create a flipbook