Skip to main content

Hein Kwakmanstraat 34, Volendam

Page 1

van

Hein Kwakmanstraat 34 , 1132 HR Volendam 4 ruime slaapkamers Extra grote tuin 98 m2 bij gehuurd Hoekwoning met dubbele berging Kunststof dakkapel, tuin Z-W Gunstige ligging alles nabij Huizen
Hoekstra en Van Eck H11

Verkoper vertelt

Een royaal en heerlijk familie huis, waar we als eerste bewoners de afgelopen 42 jaar heerlijk hebben gewoond. De ruime tuin aan drie kanten, de dubbele berging en een grote dakkapel maken het tot een comfortabel geheel.

Verder op loop-/fietsafstand van de diverse voorzieningen (o.a. winkelcentrum De Stient, scholen, sportfaciliteiten, het gezellige, oude centrum en de dijk). Verder is het heerlijk rustig en kindvriendelijk. De nieuwe eigenaren zullen zich hier zeker snel thuis voelen.

Een lekker huis waar wij ruim 42 jaar erg prettig hebben gewoond als eerste en tot nog toe enige bewoners.

Kenmerken eengezinswoning hoekwoning 6 121 m² 144 m² 465 m³ 1982 achtertuin, voortuin, zijtuin, zonneterras geen garage c.v.-ketel dakisolatie, gedeeltelijk dubbel glas C Soort Type Kamers Woonoppervlakte Perceeloppervlakte Inhoud Bouwjaar Tuin Garage Verwarming Isolatie Energielabel
Te koop bij
Monnickendam: Kerkstraat 64, T 0299 - 65 40 00
De in deze brochure getoonde informatie wordt door Hoekstra & van Eck makelaardij met zorg samengesteld, doch voor de juistheid en volledigheid daarvan kan niet worden ingestaan en kunnen hieraan geen rechten worden ontleend. Spel- en typefouten voorbehouden. De plattegronden zijn geproduceerd voor promotionele doeleinden en ter indicatie. Er kunnen geen rechten aan worden ontleend. Maten zijn niet eigenhandig opgemeten. Indien er twijfel bestaat over de accuratie van de gegevens aangaande deze brochure, is de geïnteresseerde zelf verantwoordelijk voor het nameten van deze gegevens. Voor meer informatie wordt u doorverwezen naar www.hoekstraenvaneck.nl

Welkom thuis!

tuingerichte woonkamer

met trapkast en airco

Je stapt de woning binnen via de uitgebouwde en tree met een kastenwand en de aansluiting voor de wasapparatuur en vanuit waar je toegang hebt tot de hal. De hal biedt toegang tot het separaat toilet met een fonteintje, de meterkast, de trapopgang naar boven en de woonkamer.

De woonkamer is tuingericht en heeft plek voor zowel een zit- als eethoek. Hier beschik je over een handige trapkast voor extra opbergruimte. Boven dien is er zelfs airconditioning aanwezig, ideaal voor de warme zomers.

huizen van hoekstra & van eck

Veel praktische ruimte

half open keuken in u-vorm

Vanuit de woonkamer loop je de half open keuken in, deze is in een praktische U-vorm geplaatst. De keuken is voorzien van twee RVS spoelbakken en di verse apparatuur, waaronder een 5 pits gasfornuis, afzuigkap, combi-oven/magnetron, koel-/vriescom binatie en vaatwasser. Alle keukenbenodigdheden en boodschappen kun je kwijt in het royale aantal keukenkastjes- en de lades.

huizen van hoekstra & van eck

vier ruime slaapkamers badkamer uit 2019

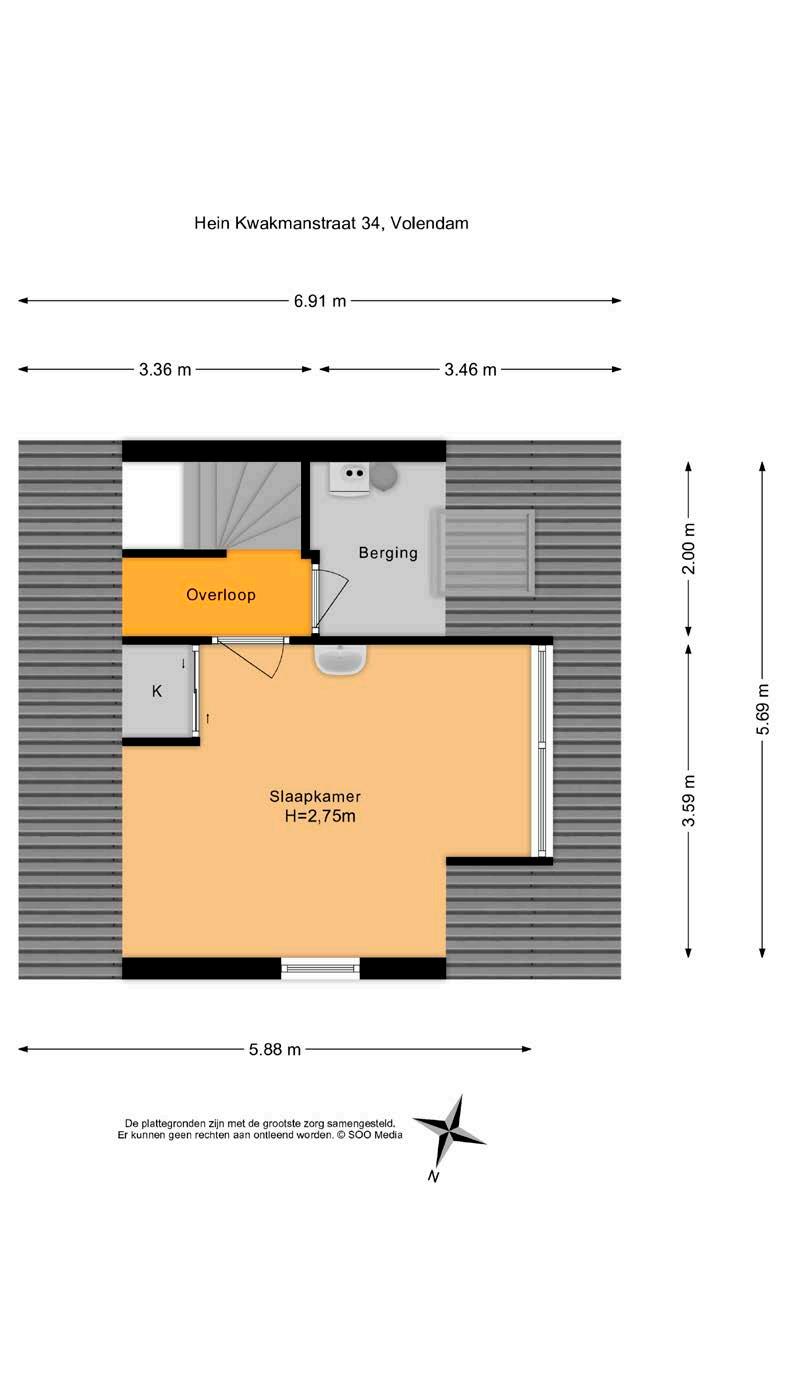
Er zijn vier ruime slaapkamers aanwezig, waarvan drie op de eerste verdieping en de vierde op de tweede verdieping. De slaapkamer aan de voorzij de van de eerste verdieping heeft een kastenwand waar je handig alle kleding in op kunt bergen. Ook één van de twee slaapkamers aan de achterzijde van de eerste verdieping heeft een inbouwkast.

De vierde slaapkamer op de tweede verdieping is extra royaal door een kunststof dakkapel en heeft ook een zijraam, dit zorgt voor lekker veel lichtinval. Hier zijn weer een inbouwkast en ook een wastafel aanwezig.

De badkamer is op de eerste verdieping gesitu eerd en in 2019 geplaatst. Deze is voorzien van een douche met glazen deur, wastafelmeubel, toilet, designradiator en zijraam.

Zzz... huizen van hoekstra & van eck

extra grote tuin

Lekker tuinieren en zonnen op het zuidwesten

De tuin is op het zuidwesten gelegen en extra groot doordat er 98 m2 tuin extra bij wordt gehuurd van de gemeente. Genoeg buitenruimte om lekker te tuinieren en daarna achterover te leunen in een stoel en met je gezicht fijn in de zon. Ga je op pad, dan kun je via de achterom de deur uit. Verder is er een dubbele berging aan de voorzijde van de woning waar je allerlei spullen en ook de fietsen in kunt stallen.

huizen van hoekstra & van eck
Hein Kwakmanstraat 34 1132 HR Volendam
Hein Kwakmanstraat 34 1132 HR Volendam
Hein Kwakmanstraat 34 1132 HR Volendam

Volendam heerlijk wonen in Volendam

Volendam, een bijzonder dorp! De toeristen komen van heinde en ver op zoek naar lang vergeten klederdracht en vissersboten. Daarnaast vinden ze ook souvenirwinkeltjes aan de haven en een boot die hen naar Marken kan bren gen. Een bevolking die zich qua gebruiken en modebeeld onderscheidt van de rest van Nederland middels onder andere een kenmerkend dialect, het Volendams.

Volendam kent authentieke straatjes, de gezellige dijk en uiteraard de prachtige huizen. De nostalgische sfeer ademt door de straten, waardoor het hier heerlijk wonen is. Er zijn diverse winkelcentra en ook de lokale winkels doen het hier goed. De gezellige dijk zorgt in het weekend voor het nodige vertier door de diverse kroegjes en restaurants.

noorden kadastrale kaart

Lokaal makelaarschap

Wij geloven sterk in lokaal makelaarschap. Kennis van de buurt, de omgeving en de daarbij behorende ontwikkeling van de huizenprijzen zijn onmisbaar om voor jou het maximale resultaat te boeken.

Met Hoekstra & van Eck kies je voor:

makelaars die al jarenlang verbonden zijn met de regio

kennis van de lokale woningmarkt

een verkoopplan afgestemd op jouw woning

maximale exposure van je huis

bezichtigingen ook in het weekend

netwerk met honderden woningzoekers

Verkoop je je huis met Hoekstra & van Eck dan ben je met de eigen app 24/7 op de hoogte van het verkoopproces. Bezichtigingsverzoeken bereiken je direct en beantwoord je snel en discreet op het moment dat het jou uitkomt.

Ook je huis verkopen? Onze makelaars komen graag en vrijblijvend bij je langs. We maken dan direct een gratis waardebepaling. Hoekstra & van Eck werkt op basis van no cure no pay. En betalen doe je pas bij verkoop.

Kerkstraat 64 0299 - 65 40 00 monnickendam@hoekstraenvaneck.nl www.hoekstraenvaneck.nl

onze makelaarskantoren huizen van hoekstra & van eck
Ook je huis verkopen? WhatsApp de foto’s en het adres van je woning naar 06 13 18 43 41 en ontvang een gratis waardebepaling! WHATSAPP FOTO’S WONING ADRES WAARDE + + = Kerkstraat 64 0299 - 65 40 00 monnickendam@hoekstraenvaneck.nl www.hoekstraenvaneck.nl

Turn static files into dynamic content formats.

Create a flipbook