Skip to main content

Melsbroekstraat 29, Tilburg

Page 1


HuizenHendriks van

Ideale starterswoning

Ruime, sfeervolle woonkamer

Intieme tuin (z/w) met berging

2 ruime slaapkamers

Geheel kunststof kozijnen met HR++ glas

Soort eengezinswoning

Type tussenwoning

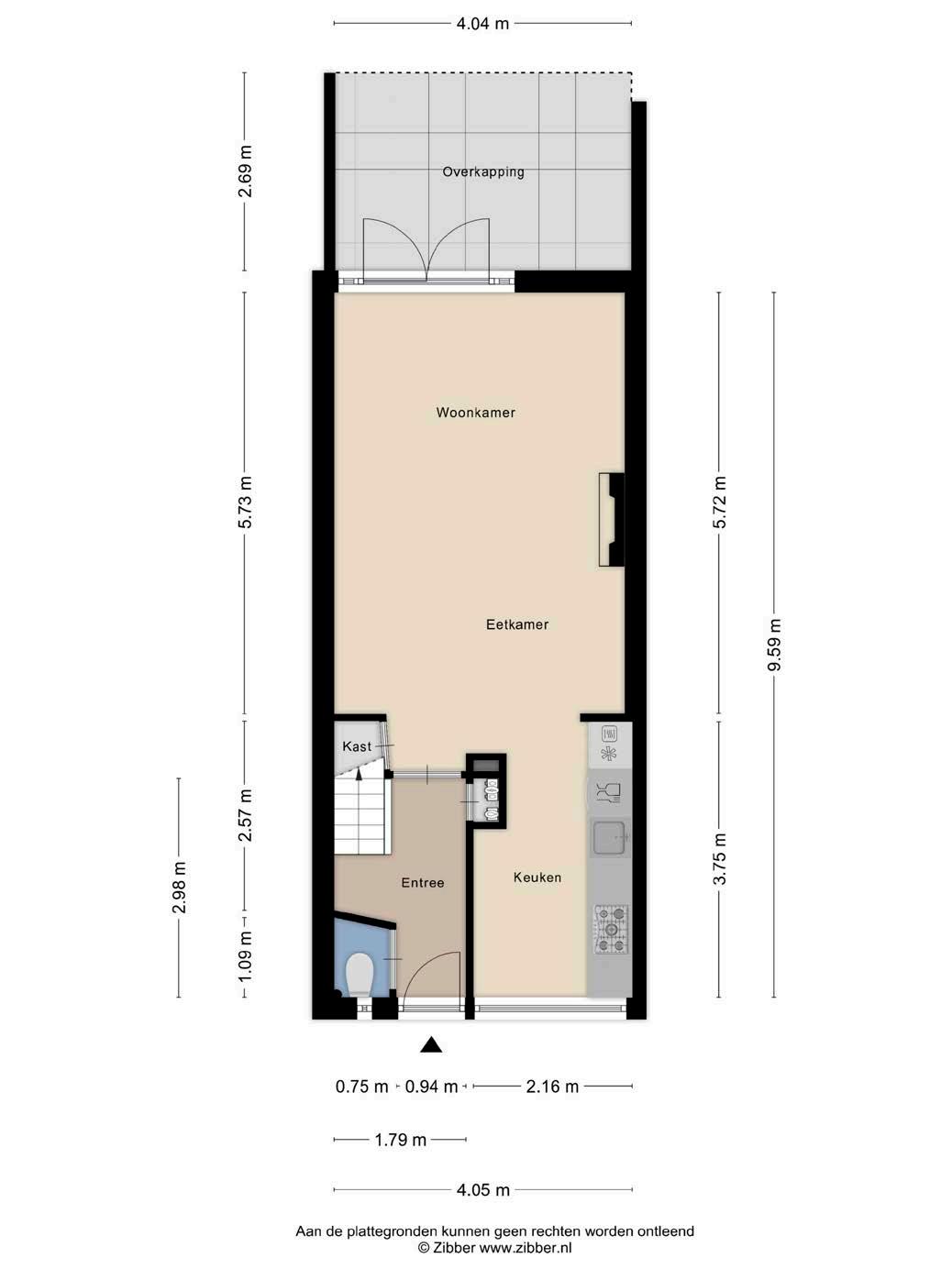
Kamers 3

Woonoppervlakte 77 m²

Perceeloppervlakte 94 m²

Inhoud 273 m³

Bouwjaar 1959

Tuin achtertuin

Garage geen garage

Verwarming c.v.-ketel

Isolatie dubbel glas, hr-glas

Energielabel C

De in deze brochure getoonde informatie wordt door Hendriks makelaardij met zorg samengesteld, doch voor de juistheid en volledigheid daarvan kan niet worden ingestaan en kunnen hieraan geen rechten worden ontleend. Spel- en typefouten voorbehouden. De plattegronden zijn geproduceerd voor promotionele doeleinden en ter indicatie. Er kunnen geen rechten aan worden ontleend. Maten zijn niet eigenhandig opgemeten. Indien er twijfel bestaat over de accuratie van de gegevens aangaande deze brochure, is de geïnteresseerde zelf verantwoordelijk voor het nameten van deze gegevens. Voor meer informatie wordt u doorverwezen naar www.hendriks.nl

Verkoper vertelt

Plus minus 25 jaar geleden hebben wij de woning als starters gekocht. De centrale ligging van de woning en het openbaar groen in de wijk waren voor ons destijds doorslaggevend bij de aankoop van de woning. In de loop der jaren hebben wij geïnvesteerd in meer wooncomfort en verduurzaming. Door de mediterrane planten in onze tuin is het op zonnige dagen heerlijk genieten. Maar ook de contacten met buurtbewoners hebben wij als zeer prettig en betrokken ervaren. Het huis biedt voldoende ruimte voor privacy door de ligging en de indeling. Kortom het is een heerlijke plek om te wonen en thuis te komen.

Op loopafstand van de woning is het winkelcentrum Westermarkt, het openbaar vervoer (bushalte en treinstation), een sportschool en het Wandelbos. Binnen een straal van maximaal 4 kilometer bereik je het centrum van de stad, diverse winkelcentra en de Universiteit Tilburg. Ook de uitvalswegen van en naar Tilburg zijn snel te bereiken.

Wij kijken terug op ruim 25 jaar waarin we hier met veel plezier en woongenot hebben gewoond. Wij hebben nu een leeftijd bereikt waardoor we ons zijn gaan richten op de mogelijkheid om te verhuizen naar een gelijkvloerse woning waarbij wooncomfort passend is bij het ouder worden. Wij gaan de in de woonomgeving opgebouwde sociale contacten en de warme band met de woning dan ook missen. We zijn ervan overtuigd dat de nieuwe bewoners deze plek net zo aangenaam ervaren als wij dat hebben gedaan.

fijne lichtinval

Fijne lichtinval met tuindeuren

Stel je voor, je begint je dag in de lichte woonkamer met een heerlijk kopje koffie, terwijl de zon door de tuindeuren naar binnen valt. De woonkamer, met een mooie laminaatvloer en strak stucwerk, voelt onmiddellijk als thuis.

Half open keuken

half open keuken met inbouwapparatuur

Moderne, half-open keuken met inbouwapparatuur: De modern uitgevoerde keuken is gelegen aan de voorzijde van de woning en beschikt over een natuurstenen werkblad en moderne apparatuur als een gaskookplaat, afzuigkap, combi-magnetron, koelkast en vaatwasmachine.

huizen

2 slaapkamers

2 slaapkamers met badkamer

Kom helemaal tot rust in de twee ruime slaapkamers, perfect voor een stel of kleine familie. Na een verfrissende douche in de moderne badkamer, bereid je je voor op de dag in een van de royale slaapkamers. De kamers zijn ruim genoeg om je persoonlijke stijl en voorkeuren volledig tot hun recht te laten komen. Of je nu kiest voor een minimalistisch design of een knusse inrichting, hier kun je je creatieve ideeën de vrije loop laten.

Zonnige

zonnige tuin

tuin met achterom

In het weekend nodigt de zonnige tuin je uit voor een ontspannen middag. Deze is een verlengstuk van je woonplezier. En je hebt het gemak van een achterom en grote stenen berging!

heerlijk wonen in Tilburg

Tilburg

Tilburg is momenteel de 7e stad van Nederland met een grote diversiteit aan bedrijvigheid, woningbouw, onderwijs en cultuur. Er is hard aan de weg getimmerd de laatste jaren; vele centrumlocaties rondom de oude stadshaven en NS-werkplaats zijn recent omgetoverd tot bruisende gebieden met vele woningen, bedrijven en horeca.

Het bijzondere aan Tilburg is de grote diversiteit aan wijken met elk hun eigen, unieke karakter. Van het levendige stadscentrum tot rustige en “groene” woonwijken, er is voor ieder wat wils! De gemeente Tilburg omvat ook de mooie plaatsen Berkel-Enschot, Udenhout en Biezenmortel. Hier beleef je nog het echte “dorpsgevoel” met alle stedelijke voorzieningen toch heel dichtbij!

In de omgeving liggen prachtige natuurgebieden, zoals de Loonse en Drunense Duinen, de Oisterwijkse Bossen en Vennen en Moerenburg. Hier kun je heerlijk wandelen, fietsen en ontspannen in de natuur.

Ook qua onderwijs staat de stad hoog in aanzien. Naast Tilburg University zijn er vele scholen op alle denkbare niveaus.

Tilburg is ook bekend om zijn uitgebreide evenementenkalender. Van de Tilburgse Kermis tot diverse festivals zoals Incubate, Roadburn en Spoorpark Live. De stad biedt een ruime diversiteit aan sportfaciliteiten. Niet alleen voetbal en (ijs)hockey, maar bv. ook golf, tennis, rugby, zwemsporten, atletiek, sportvissen, fitness en ga zo maar door.

De rest van Nederland is uitstekend te bereiken via de vele (snel)wegen en het openbaar vervoer met maar liefst 3 treinstations.

noorden kadastrale kaart

HEERHUGOWAARD

ALKMAAR LANDSMEER

ZAANDAM

HOOFDDORP HAARLEM (2x)

A’DAM WEST

Lokaal makelaarschap

Wij geloven sterk in lokaal makelaarschap. Kennis van de buurt, de omgeving en de daarbij behorende ontwikkeling van de huizenprijzen zijn onmisbaar om voor jou het maximale resultaat te boeken.

Met Hendriks Makelaardij kies je voor:

• makelaars die al jarenlang verbonden zijn met de regio

• kennis van de lokale woningmarkt

• een verkoopplan afgestemd op jouw woning

• maximale exposure van je huis

• bezichtigingen ook in het weekend

• netwerk met honderden woningzoekers

Verkoop je je huis met Hendriks dan ben je met de eigen app 24/7 op de hoogte van het verkoopproces.

Bezichtigingsverzoeken bereiken je direct en beantwoord je snel en discreet op het moment dat het jou uitkomt.

Ook je huis verkopen? Onze makelaars komen graag en vrijblijvend bij je langs. We maken dan direct een gratis waardebepaling. Hendriks Makelaardij werkt op basis van no cure no pay. En betalen doe je pas bij verkoop.

Besterdring 223 013 - 549 91 90 tilburg@hendriks.nl www.hendriks.nl

HOORN

PURMEREND

MONNICKENDAM

A’DAM NOORD

AMSTERDAM

AMSTELVEEN

LEIDEN

ALMERE

BUSSUM

HILVERSUM

MAARSSEN

VLEUTEN DE MEERN UTRECHT

AMERSFOORT

(2x) (2x)

NIEUWEGEIN WIJK BIJ DUURSTEDE

MEPPEL

ZWOLLE

APELDOORN

ARNHEM

(2x)

NIJMEGEN

‘S-HERTOGENBOSCH

BREDA

TILBURG

EINDHOVEN

WEERT

ROERMOND

Turn static files into dynamic content formats.

Create a flipbook