Skip to main content

Brochure Schoutstraat 23

Page 1


HuizenHendriks van

Gewilde locatie

4 Slaapkamers

Snel beschikbaar

Kenmerken

Soort eengezinswoning

Type tussenwoning

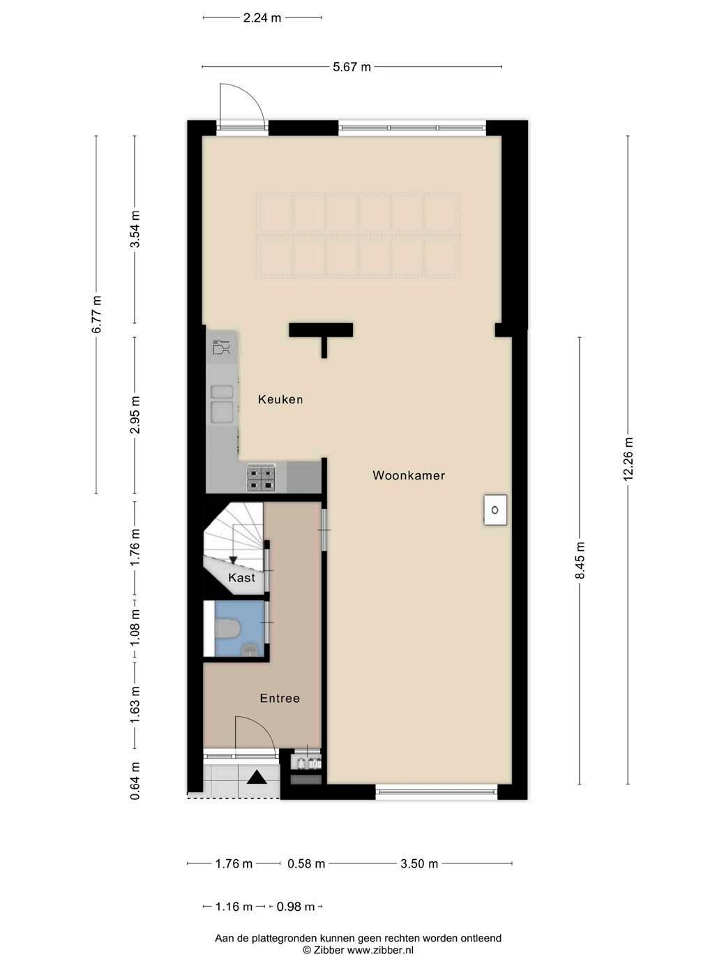
Kamers 9

Woonoppervlakte 146 m²

Perceeloppervlakte 187 m²

Inhoud 518 m³

Bouwjaar 1966

Tuin achtertuin, voortuin

Garage geen garage

Verwarming c.v.-ketel

Isolatie dakisolatie, muurisolatie, vloerisolatie, dubbel glas, hr-glas

Energielabel B

De in deze brochure getoonde informatie wordt door Hendriks makelaardij met zorg samengesteld, doch voor de juistheid en volledigheid daarvan kan niet worden ingestaan en kunnen hieraan geen rechten worden ontleend. Spel- en typefouten voorbehouden. De plattegronden zijn geproduceerd voor promotionele doeleinden en ter indicatie. Er kunnen geen rechten aan worden ontleend. Maten zijn niet eigenhandig opgemeten. Indien er twijfel bestaat over de accuratie van de gegevens aangaande deze brochure, is de geïnteresseerde zelf verantwoordelijk voor het nameten van deze gegevens. Voor meer informatie wordt u doorverwezen naar www.hendriks.nl

Verkoper vertelt

Deze fijne eengezinswoning in Zesgehuchten biedt een ruime, lichte woonkamer, vier slaapkamers en een zonnige, sfeervolle tuin op het westen met schuur en gezellige overkapping.

De woning ligt in de groene en rustige wijk Beekweide, met alles binnen handbereik: station, winkels, scholen en het centrum van Geldrop, terwijl Eindhoven eenvoudig bereikbaar is.

Ideaal voor wie op zoek is naar ruimte, rust en een fijne woonomgeving.

huizen

Licht & leefruimte

licht & leefruimte

uitgebouwde woonkamer

De uitgebouwde woonkamer vormt het hart van de woning. Dankzij de lichtstraat en grote raampartijen stroomt het daglicht rijkelijk naar binnen. De PVCvloer en sfeervolle houtkachel zorgen voor warmte en karakter. Hier geniet je van lange avonden met familie en vrienden in een ruimte die comfort en stijl moeiteloos combineert.

Koken met gemak

koken met gemak open keuken

De open keuken in praktische L-opstelling sluit perfect aan op de woonkamer. Voorzien van diverse inbouwapparatuur en volop werkruimte is dit een fijne plek voor iedere kookliefhebber. Of je nu snel ontbijt of uitgebreid dineert, hier bereid je met plezier de lekkerste gerechten.

huizen

Vier ruime kamers

vier ruime kamers

met complete badkamer

Op de eerste verdieping bevinden zich drie comfortabele slaapkamers en een complete badkamer met ligbad, douche en toilet. De tweede verdieping biedt een royale zolderslaapkamer met dakkapel én een extra kamer voor werk of hobby. Ideaal voor gezinnen of thuiswerkers die ruimte zoeken.

zon tot in de avond

Zon tot in de avond met terrasoverkapping

De achtertuin op het westen is een heerlijke plek om te ontspannen. Met terrasoverkapping, gazon en vaste beplanting geniet je hier tot laat van de zon. De praktische berging en vrije achterom maken het geheel compleet. Een fijne buitenruimte waar comfort en privacy samenkomen.

Geldrop

Geldrop, vier kilometer ten oosten van Eindhoven, ontwikkelde zich sinds de vorige eeuw van industriegemeente (textiel en wol) tot woongemeente met eigen werkgelegenheids-centrum.

In het hart van de gemeente ligt een wandelpark met het kasteel uit 1616 en een natuurinformatiecentrum. In dat kasteel vinden exposities en andere culturele evenementen onderdak. Daar is ook de gemeentelijke oudheidskamer ondergebracht.

Gedeeltelijk op Geldrops grondgebied liggen enkele natuurgebieden waarvan de Strabrechtse Heide met 1500 ha het grootste is.

In Geldrop zijn alle mogelijke voorzieningen aanwezig, o.a. een ziekenhuis, winkels, een verscheidenheid aan sportvoorzieningen, musea en uitgaansmogelijkheden.

Het woonklimaat in Geldrop is zéér aantrekkelijk.

heerlijk wonen in Geldrop
noorden kadastrale kaart

HEERHUGOWAARD

Lokaal makelaarschap

Wij geloven sterk in lokaal makelaarschap. Kennis van de buurt, de omgeving en de daarbij behorende ontwikkeling van de huizenprijzen zijn onmisbaar om voor jou het maximale resultaat te boeken.

Met Hendriks Makelaardij kies je voor:

• makelaars die al jarenlang verbonden zijn met de regio

• kennis van de lokale woningmarkt

• een verkoopplan afgestemd op jouw woning

• maximale exposure van je huis

• bezichtigingen ook in het weekend

• netwerk met honderden woningzoekers

Verkoop je je huis met Hendriks dan ben je met de eigen app 24/7 op de hoogte van het verkoopproces.

Bezichtigingsverzoeken bereiken je direct en beantwoord je snel en discreet op het moment dat het jou uitkomt.

Ook je huis verkopen? Onze makelaars komen graag en vrijblijvend bij je langs. We maken dan direct een gratis waardebepaling. Hendriks Makelaardij werkt op basis van no cure no pay. En betalen doe je pas bij verkoop.

Aalsterweg 5

040 - 293 05 00 eindhoven@hendriks.nl www.hendriks.nl

PURMEREND ZAANDAM LANDSMEER HOORN

A’DAM WEST

HOOFDDORP HAARLEM

LEIDEN

MONNICKENDAM

A’DAM NOORD

AMSTERDAM

AMSTELVEEN

VLEUTEN DE MEERN

BREDA

ALMERE

HILVERSUM

MAARSSEN

UTRECHT

NIEUWEGEIN WIJK BIJ DUURSTEDE

AMERSFOORT

MEPPEL

ZWOLLE

APELDOORN

ARNHEM

NIJMEGEN

‘S-HERTOGENBOSCH

EINDHOVEN (2x) (2x) (2x)

TILBURG WEERT

ROERMOND

Hypotheekadvies dat verder gaat dan feiten

Ga je een huis kopen, verhuizen of verbouwen? Dan is het fijn om te weten waar je financieel aan toe bent. Bij Vivantus Hypotheken start je altijd met een gratis en vrijblijvend kennismakingsgesprek. Zo krijg je helderheid over wat je kunt lenen én welke hypotheek het beste past bij jouw plannen.

Onze onafhankelijke adviseurs nemen de tijd voor jouw verhaal. We kijken niet alleen naar je huidige situatie, maar ook naar je toekomstwensen. Want een hypotheek moet niet alleen vandaag kloppen, maar ook over vijf jaar nog goed voelen.

Sta je op het punt een bod te doen? Dan sta je sterker met een hypotheekadvies vooraf. Zo weet je precies wat je kunt biedenen kun je mogelijk zelfs zonder financieringsvoorbehoud kopen. Uiteraard geven we je helder inzicht in de risico’s en kansen.

• Persoonlijk advies, volledig onafhankelijk

• Plan vandaag nog jouw gratis gesprek!

Vivantus Hypotheken

Bel ons op: 085 - 773 1969

Of mail ons: cbohypotheken@hypotheekshop.nl

Turn static files into dynamic content formats.

Create a flipbook