Skip to main content

Brochure Lodewijk Napoleonlaan 93

Page 1


HuizenHendriks van

Veel lichtinval

Zonnige tuin

Kunststof kozijnen

Kluswoning met

Kenmerken

Soort eengezinswoning

Type tussenwoning

Kamers 6

Woonoppervlakte 122 m²

Perceeloppervlakte 144 m²

Inhoud 511 m³

Bouwjaar 1964

Tuin achtertuin, voortuin

Garage inpandig

Verwarming c.v.-ketel

Isolatie gedeeltelijk dubbel glas

Energielabel D

De in deze brochure getoonde informatie wordt door Hendriks makelaardij met zorg samengesteld, doch voor de juistheid en volledigheid daarvan kan niet worden ingestaan en kunnen hieraan geen rechten worden ontleend. Spel- en typefouten voorbehouden. De plattegronden zijn geproduceerd voor promotionele doeleinden en ter indicatie. Er kunnen geen rechten aan worden ontleend. Maten zijn niet eigenhandig opgemeten. Indien er twijfel bestaat over de accuratie van de gegevens aangaande deze brochure, is de geïnteresseerde zelf verantwoordelijk voor het nameten van deze gegevens. Voor meer informatie wordt u doorverwezen naar www.hendriks.nl

Verkoper vertelt

Ben je op zoek naar een unieke kans om jouw droomwoning te realiseren op een fijne locatie in de Schrijversbuurt? Deze ruime tussenwoning (drivein type) biedt alles wat je nodig hebt om jouw ideale plek te creëren. Perfect voor starters, jonge gezinnen, tweepersoonshuishoudens én ondernemers die wonen en werken willen combineren. Met een flexibele indeling, veel lichtinval dankzij grote raampartijen aan voor- en achterzijde, en een zonnige tuin op het zuidoosten, ligt hier een woning vol potentie. Klaar om deze karaktervolle kluswoning volledig naar eigen smaak te transformeren?

aangename lichtinval

Ruimte en licht ruimte

Bij binnenkomst op de begane grond tref je een grote garage en doorgang naar de tuinkamer. Ideaal om te verbouwen tot kantoor, praktijkruimte of bedrijfsruimte aan huis. Uiteraard is de tuinkamer ook perfect te gebruiken als hobbyruimte, speelkamer of extra opslag. De aangrenzende garage maakt het geheel extra praktisch. De eerste verdieping vormt het hart van de woning. Hier valt direct de aangename lichtinval op dankzij de grote raampartijen aan zowel de voor- als achterzijde. De woonkamer is ruim opgezet en biedt toegang tot een van de balkons aan de voorzijde.

Open keuken

volop mogelijkheden

voldoende ruimte

De half-open keuken biedt volop mogelijkheden om een eigentijdse en comfortabele leefkeuken te realiseren, geheel naar jouw smaak.

huizen van hendriks

Flexibele indeling

ruime kamers

tuinkamer

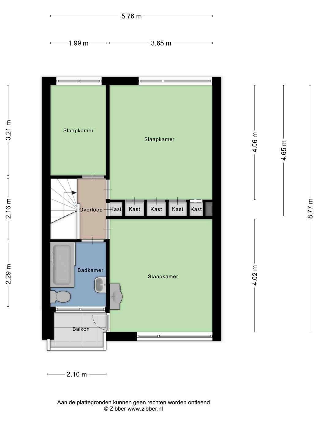
Op de tweede verdieping bevinden zich drie slaapkamers en een volledig betegelde badkamer voorzien van wastafel, ligbad met douchevoorziening en wastafel. Slaapkamer 1 is voorzien van verschillende inbouwkasten en slaapkamer 2 heeft een balkon aan de voorzijde. Alle slaapkamers, inclusief slaapkamer 3 profiteren van kunststof kozijnen met dubbel glas.

Zonnige tuin

ontspannen

buitenleven

De zonnige achtertuin op het zuidoosten maakt het plaatje compleet. Met wat aandacht en creativiteit transformeer je deze buitenruimte tot een heerlijke plek om te ontspannen, te tuinieren of gezellig samen te zijn met familie en vrienden.

huizen
noorden kadastrale kaart

Oosterhout

De gemeente Oosterhout ligt in het hart van NoordBrabant en staat bekend om haar prettige woonklimaat en centrale ligging. De gemeente bestaat uit de stad Oosterhout en de dorpen Den Hout, Dorst en Oosteind. Hier komen natuur, historie en moderne voorzieningen mooi samen. In en rondom de stad vind je uitgestrekte bossen en natuurgebieden, terwijl het gezellige centrum een gevarieerd aanbod biedt aan winkels, horeca en terrassen. Oosterhout heeft een actief verenigingsleven, goede scholen en volop sport- en recreatiemogelijkheden. Dankzij de combinatie van rust, ruimte en levendigheid is het een aantrekkelijke plek om te wonen, werken en genieten van alles wat de omgeving te bieden heeft.

heerlijk wonen in Oosterhout

HEERHUGOWAARD

Lokaal makelaarschap

Wij geloven sterk in lokaal makelaarschap. Kennis van de buurt, de omgeving en de daarbij behorende ontwikkeling van de huizenprijzen zijn onmisbaar om voor jou het maximale resultaat te boeken.

Met Hendriks Makelaardij kies je voor:

• makelaars die al jarenlang verbonden zijn met de regio

• kennis van de lokale woningmarkt

• een verkoopplan afgestemd op jouw woning

• maximale exposure van je huis

• bezichtigingen ook in het weekend

• netwerk met honderden woningzoekers

Verkoop je je huis met Hendriks dan ben je met de eigen app 24/7 op de hoogte van het verkoopproces.

Bezichtigingsverzoeken bereiken je direct en beantwoord je snel en discreet op het moment dat het jou uitkomt.

Ook je huis verkopen? Onze makelaars komen graag en vrijblijvend bij je langs. We maken dan direct een gratis waardebepaling. Hendriks Makelaardij werkt op basis van no cure no pay. En betalen doe je pas bij verkoop.

Markendaalseweg 329-A35 076 - 524 77 88 breda@hendriks.nl www.hendriks.nl

PURMEREND ZAANDAM LANDSMEER HOORN

A’DAM WEST

HOOFDDORP HAARLEM

LEIDEN

MONNICKENDAM

A’DAM NOORD

AMSTERDAM

AMSTELVEEN

VLEUTEN DE MEERN

ALMERE

HILVERSUM

MAARSSEN

UTRECHT

NIEUWEGEIN WIJK BIJ DUURSTEDE

AMERSFOORT

BREDA

TILBURG

MEPPEL

ZWOLLE

APELDOORN

ARNHEM

NIJMEGEN

‘S-HERTOGENBOSCH

EINDHOVEN (2x) (2x) (2x)

WEERT

ROERMOND

Hypotheekadvies dat verder gaat dan feiten

Ga je een huis kopen, verhuizen of verbouwen? Dan is het fijn om te weten waar je financieel aan toe bent. Bij Vivantus Hypotheken start je altijd met een gratis en vrijblijvend kennismakingsgesprek. Zo krijg je helderheid over wat je kunt lenen én welke hypotheek het beste past bij jouw plannen.

Onze onafhankelijke adviseurs nemen de tijd voor jouw verhaal. We kijken niet alleen naar je huidige situatie, maar ook naar je toekomstwensen. Want een hypotheek moet niet alleen vandaag kloppen, maar ook over vijf jaar nog goed voelen.

Sta je op het punt een bod te doen? Dan sta je sterker met een hypotheekadvies vooraf. Zo weet je precies wat je kunt biedenen kun je mogelijk zelfs zonder financieringsvoorbehoud kopen. Uiteraard geven we je helder inzicht in de risico’s en kansen.

• Persoonlijk advies, volledig onafhankelijk

• Plan vandaag nog jouw gratis gesprek!

Vivantus Hypotheken

Bel ons op: 085 - 773 1969

Of mail ons: cbohypotheken@hypotheekshop.nl

Turn static files into dynamic content formats.

Create a flipbook