Skip to main content

Tungeler Dorpsstraat 91, Weert

Page 1


HuizenHendriks van

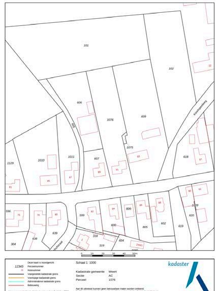
Ruim perceel (2484 m2)

Vrijstaand wonen in landelijke omgeving

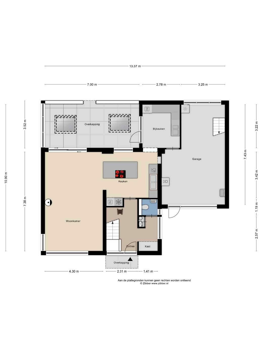
Soort eengezinswoning

Type vrijstaande woning Kamers 5

Woonoppervlakte 164 m²

Perceeloppervlakte 2484 m²

Inhoud 769 m³

Bouwjaar 1975

Tuin achtertuin, voortuin, zijtuin, zonneterras

Garage inpandig

Verwarming c.v.-ketel, vloerverwarming gedeeltelijk, warmtepomp

Isolatie dakisolatie, muurisolatie, vloerisolatie, hr-glas

De in deze brochure getoonde informatie wordt door Hendriks makelaardij met zorg samengesteld, doch voor de juistheid en volledigheid daarvan kan niet worden ingestaan en kunnen hieraan geen rechten worden ontleend. Spel- en typefouten voorbehouden. De plattegronden zijn geproduceerd voor promotionele doeleinden en ter indicatie. Er kunnen geen rechten aan worden ontleend. Maten zijn niet eigenhandig opgemeten. Indien er twijfel bestaat over de accuratie van de gegevens aangaande deze brochure, is de geïnteresseerde zelf verantwoordelijk voor het nameten van deze gegevens. Voor meer informatie wordt u doorverwezen naar www.hendriks.nl

Verkoper vertelt

We hebben in deze woning met veel plezier gewoond.

Het huis ligt aan een kinderrijke, gezellige dorpsstraat. De kinderen lopen veilig over de stoep naar school, voetbalclub en MFA, zonder over te hoeven steken. Je bent op een paar minuten in Stramproy of in Weert waar alle voorzieningen zijn. Vanuit Tungelroy zit je ook zo op de A2.

Het is een praktisch huis met veel opbergruimte, wat wij als groot gezin altijd hebben gewaardeerd, en ruime slaapkamers. In de loop van de tijd hebben we het huis verbouwt tot een mooie open woning met veel licht inval. Zowel uitzicht naar de voorzijde van de woning, maar ook vanuit huis is er fijn zicht op de mooie, diepe tuin. De kerk van Weert is in de winterdagen te zien. De kinderen spelen er met veel plezier en hebben hier dan ook genoeg plek.

Achter het kookeiland heb je eveneens vrij uitzicht op de diepe tuin, ideaal om een oogje in het zeil te houden met jonge kinderen. In dit huis voel je je vrij wonen, maar zit toch in het hart van het dorp. Speciale moment is wanneer de zon onder gaat en de mooie roze/ oranje lucht tevoorschijn komt achter de molen. Deze weerkaatst in de hele woonkamer. Dat voelt voor ons als thuiskomen!

Met trots bieden wij onze woning aan en hopen dat de nieuwe bewoners er met net zo een fijn gevoel mogen wonen.

Sfeervolle woonkamer

fijn lichtinval

voldoende ruimte

Stap binnen in een warme, uitnodigende ruimte waar je meteen het gevoel van ‘thuis’ ervaart. Deze ruime woonkamer, met prachtige natuurlijke lichtinval, biedt meer dan genoeg plek voor een grote eethoek. Hier kun je comfortabel dineren met familie en vrienden, of ontspannen met een goed boek. De ambiance is perfect voor elk seizoen, of je nu geniet van een zomerse bries door de open ramen of de knusse gloed van een open haard in de winter. Deze woonkamer is het hart van het huis, waar herinneringen worden gemaakt.

Moderne keuken

met kookeiland

luxe apparatuur

Betreed de keuken en je merkt direct de strakke lijnen en het moderne design. Het kookeiland vormt het middelpunt, ideaal voor zowel het bereiden van maaltijden als het entertainen van gasten. Uitgerust met een inductiekookplaat, vaatwasser en koelkast, biedt deze keuken alles wat je nodig hebt voor dagelijks gemak en culinaire avonturen. Hier worden maaltijden meer dan alleen eten; ze worden een ervaring. De ruimte is ontworpen voor degenen die houden van koken en gezelligheid.

Slaap lekker

vier slaapkamers

luxe badkamer

De slaapkamers zijn lichte en serene ruimtes, perfect voor een goede nachtrust. Elk van de drie ruime kamers biedt voldoende ruimte voor persoonlijke inrichting en comfort. De extra slaapkamer op de zolderverdieping is een flexibele ruimte die ideaal is voor een logeerkamer, kantoor of hobbyruimte. De zolderkamer biedt privacy en mogelijkheden, waardoor het een veelzijdige aanvulling op de woning is.

De badkamer is een oase van rust en luxe. Met een moderne inloopdouche, ruim ligbad en stijlvol wastafelmeubel, is deze badkamer ontworpen voor ultiem comfort. Begin je dag met een verfrissende douche of eindig hem met een ontspannen bad; de keuze is aan jou. De hoogwaardige afwerking en eigentijdse stijl maken van de badkamer een plek van sereniteit en ontspanning.

royale tuin (1925 m2)
eindeloze mogelijkheden

De enorme tuin van 1925 m² is een paradijs voor natuurliefhebbers en buitenmensen. Of je nu houdt van tuinieren, buiten dineren of spelen met de kinderen, deze tuin biedt eindeloze mogelijkheden. Met een overkapt terras en zonneterras kun je in elk seizoen van de buitenlucht genieten. Het grote gazon biedt ruimte voor sport en spel, terwijl je omringd bent door rust en groen. De tuin is tevens ook voorzien van een beregeningsinstallatie. Deze tuin is jouw persoonlijke oase van vrijheid en natuur.

heerlijk wonen in Weert

Weert

Leven in een bruisende stad en de rust vinden in omliggende natuurgebieden, dit kan in Weert; de groenste stad ter wereld. In Weert is er altijd wel iets te doen. Er zijn namelijk vele winkels, lekkere restaurants en gezellige terrassen te vinden.

Ook met kinderen is het ideaal om in Weert te wonen. Er is een groot aanbod met scholen in Weert, zo is er altijd wel een basisschool en een middelbare school op fietsafstand te vinden. Verder is er voor jonge gezinnen genoeg leuks te doen in Weert. Het beschikt onder andere over een bioscoop, een zwembad, tientallen sportverenigingen en meerdere speeltuinen.

Weert is niet voor niets de stad in het groen. In 2014 werd Weert uitgeroepen tot de groenste stad van de wereld. Er is dus een fijne balans tussen het stadsleven en de voordelen van het wonen in het groen. In de omgeving van Weert zijn verschillende natuurgebieden te vinden. In deze gebieden kunt u zich heerlijk terugtrekken en genieten van fiets- en wandelroutes die wonen in Weert nog leuker maken.

De bereikbaarheid van Weert is ook een pluspunt. Zo heeft u in vijf minuten de A2 bereikt. Niet alleen met de auto bereikt u snel andere locaties, ook op het gebied van openbaar vervoer is Weert gunstig gelegen. Dit komt mede door het Intercity station in Weert. Ideaal voor kinderen die gaan studeren. In de gemeente Weert zijn ook vijf kerkdorpen te vinden: Altweerterheide, Laar, Swartbroek, Tungelroy en Stramproy.

noorden kadastrale kaart

HEERHUGOWAARD

ALKMAAR LANDSMEER HOORN

ZAANDAM

HOOFDDORP HAARLEM (2x)

A’DAM WEST

Lokaal makelaarschap

Wij geloven sterk in lokaal makelaarschap. Kennis van de buurt, de omgeving en de daarbij behorende ontwikkeling van de huizenprijzen zijn onmisbaar om voor jou het maximale resultaat te boeken.

Met Hendriks Makelaardij kies je voor:

• makelaars die al jarenlang verbonden zijn met de regio

• kennis van de lokale woningmarkt

• een verkoopplan afgestemd op jouw woning

• maximale exposure van je huis

• bezichtigingen ook in het weekend

• netwerk met honderden woningzoekers

Verkoop je je huis met Hendriks dan ben je met de eigen app 24/7 op de hoogte van het verkoopproces.

Bezichtigingsverzoeken bereiken je direct en beantwoord je snel en discreet op het moment dat het jou uitkomt.

Ook je huis verkopen? Onze makelaars komen graag en vrijblijvend bij je langs. We maken dan direct een gratis waardebepaling. Hendriks Makelaardij werkt op basis van no cure no pay. En betalen doe je pas bij verkoop.

Emmasingel 34

0495 - 45 04 85 weert@hendriks.nl www.hendriks.nl

PURMEREND

MONNICKENDAM

A’DAM NOORD

AMSTERDAM

AMSTELVEEN

LEIDEN

ALMERE

BUSSUM

HILVERSUM

MAARSSEN

VLEUTEN DE MEERN UTRECHT

NIEUWEGEIN WIJK BIJ DUURSTEDE

AMERSFOORT

BREDA

TILBURG

MEPPEL

ZWOLLE

APELDOORN

ARNHEM

(2x)

NIJMEGEN

‘S-HERTOGENBOSCH

EINDHOVEN (2x) (2x)

WEERT

ROERMOND

Turn static files into dynamic content formats.

Create a flipbook