Skip to main content

Tongelresestraat 465, Eindhoven

Page 1


HuizenHendriks van

Soort eengezinswoning

Type geschakelde 2-onder-1-kapwoning

Kamers 6

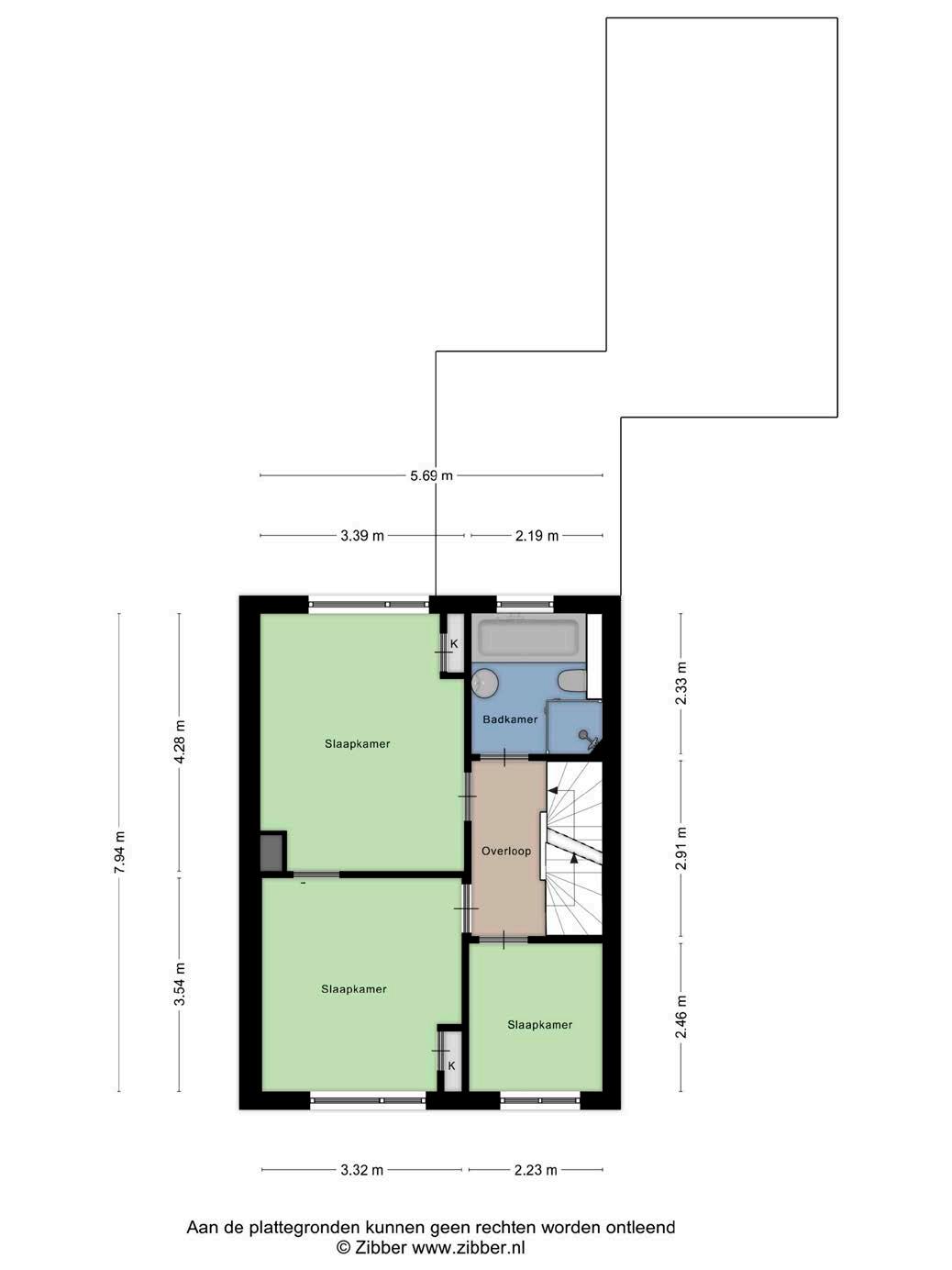
Woonoppervlakte 131 m²

Perceeloppervlakte 256 m²

Inhoud 533 m³

Bouwjaar 1928

Tuin achtertuin

Garage aangebouwd steen

Verwarming c.v.-ketel

Isolatie dakisolatie, muurisolatie, gedeeltelijk dubbel glas

Energielabel B

De in deze brochure getoonde informatie wordt door Hendriks makelaardij met zorg samengesteld, doch voor de juistheid en volledigheid daarvan kan niet worden ingestaan en kunnen hieraan geen rechten worden ontleend. Spel- en typefouten voorbehouden. De plattegronden zijn geproduceerd voor promotionele doeleinden en ter indicatie. Er kunnen geen rechten aan worden ontleend. Maten zijn niet eigenhandig opgemeten. Indien er twijfel bestaat over de accuratie van de gegevens aangaande deze brochure, is de geïnteresseerde zelf verantwoordelijk voor het nameten van deze gegevens. Voor meer informatie wordt u doorverwezen naar www.hendriks.nl

Verkoper vertelt

We hebben hier fijn kunnen wonen, op slechts 10 minuten fietsen van Eindhoven Centraal station en met toch een heerlijk stukje natuur om de hoek is dit huis het beste van twee werelden.

Aan de ene kant ben je zo in Eindhoven centrum met de uitgaansgelegenheden, restaurants, cultuur en activiteiten. En aan de andere kant kun je heerlijk rustig en ontspannen wandelen in het bos achter het huis of een bezoek brengen aan Groendomein “Het Wasven”, met zijn eigen bakkerij en restaurant met mooi terras en waar allerlei activiteiten worden georganiseerd en je kan er vrijwilligerswerk doen.

Daarnaast zijn de Karpendonkse plas en de IJzeren Man op 5 minuten fietsen. Het hondenveldje naast het huis is een fijne plek om je viervoeter te laten spelen en om buurtbewoners te ontmoeten voor een praatje. En met zowel een dierenarts als een gezondheidscentrum met apotheek letterlijk achter het huis hoef je voor je eigen zorg of die van je huisdier nooit ver weg. Een basisschool met

kinderopvang is slechts 5 minuten lopen zonder dat je hoeft over te steken, hetzelfde geldt voor een middelbare school. Er zijn 3 supermarkten (Jumbo, Lidl en Albert Heijn) op slechts 5 min fietsen, daarnaast vindt je bij de Albert Heijn ook een veelvoud aan andere winkels in het buurtwinkelcentrum.

De diepe, privacy biedende tuin heeft zowel zon- als schaduwplekken dus wat de temperatuur ook is, in de tuin zit je altijd goed. En vanaf een uur of 12 staat je auto ook altijd in de schaduw op de ruime oprit.

nette afwerking

Sfeervolle woonkamer prettige lichtinval

De ruime woonkamer, voorzien van natuurlijk licht door de grote ramen, biedt voldoende ruimte voor een gezellige zithoek en een eethoek. De muren in de woonkamer zijn van nieuw stucwerk voorzien in 2021.

Strakke keuken

met inbouwapparatuur

wat maak jij klaar?

De keuken, vernieuwd in 2019, is een droom voor iedere thuiskok, met moderne Bosch apparatuur. Vanaf de keuken kan je een kelder bereiken die extra opbergruimte biedt.

Praktische badkamer

in bad of douchen

van alle luxe voorzien

De badkamer, vernieuwd in 2020, is een oase van rust. Een luxe whirlpool ligbad, inloopdouche, modern wastafelmeubel en toilet bieden alles wat je nodig hebt.

verzorgde uitstraling

Groene oase met extra berging

De mooie groene tuin op het noordwesten biedt veel privacy en is perfect voor zomerse avondjes buiten. De garage, de externe berging en de ruime oprit bieden voldoende opslagruimte en parkeergelegenheid.

Eindhoven

Deze jonge Brabantse stad heeft een moderne uitstraling met een warm, bourgondisch centrum. Binnen een eeuw is dit boerenstadje uitgegroeid tot een aantrekkelijke dynamische stad met ruim 220.000 inwoners. De gemeente Eindhoven omvat naast de gelijknamige stad Eindhoven ook het dorp Acht en Meerhoven. Qua inwonersaantal is dit de vijfde stad van Nederland.

Het bourgondische is terug te vinden in de verschillende soorten cafés, terrasjes en restaurants met vele soorten wereldkeukens. De stad heeft een acties sociaal en cultureel centrum waarbij alle soorten kunst evenementen worden georganiseerd zoals Dutch Design Week en GLOW. Daarnaast is de werkomgeving erg gezond in deze high tech omgeving. Bedrijven als Philips, DAF en ASML zorgen voor een hoge instroom aan expats. Inclusief veel groen in de nabije omgeving van het centrum maakt Eindhoven tot een heerlijke stad waar het plezierig wonen, werken en leven is.

Het woonklimaat in Eindhoven is zéér aantrekkelijk.

heerlijk wonen in Eindhoven
noorden kadastrale kaart

HEERHUGOWAARD

ALKMAAR LANDSMEER

ZAANDAM

(2x)

A’DAM WEST

HOOFDDORP HAARLEM

LEIDEN

Lokaal makelaarschap

Wij geloven sterk in lokaal makelaarschap. Kennis van de buurt, de omgeving en de daarbij behorende ontwikkeling van de huizenprijzen zijn onmisbaar om voor jou het maximale resultaat te boeken.

Met Hendriks Makelaardij kies je voor:

• makelaars die al jarenlang verbonden zijn met de regio

• kennis van de lokale woningmarkt

• een verkoopplan afgestemd op jouw woning

• maximale exposure van je huis

• bezichtigingen ook in het weekend

• netwerk met honderden woningzoekers

Verkoop je je huis met Hendriks dan ben je met de eigen app 24/7 op de hoogte van het verkoopproces.

Bezichtigingsverzoeken bereiken je direct en beantwoord je snel en discreet op het moment dat het jou uitkomt.

Ook je huis verkopen? Onze makelaars komen graag en vrijblijvend bij je langs. We maken dan direct een gratis waardebepaling. Hendriks Makelaardij werkt op basis van no cure no pay. En betalen doe je pas bij verkoop.

Aalsterweg 5

040 - 293 05 00 eindhoven@hendriks.nl www.hendriks.nl

HOORN

PURMEREND

MONNICKENDAM

A’DAM NOORD

AMSTERDAM

AMSTELVEEN

ALMERE

BUSSUM

HILVERSUM

VLEUTEN DE MEERN UTRECHT MAARSSEN

AMERSFOORT

(2x) (2x)

NIEUWEGEIN WIJK BIJ DUURSTEDE

MEPPEL

ZWOLLE

APELDOORN

ARNHEM

(2x)

NIJMEGEN

‘S-HERTOGENBOSCH

BREDA

EINDHOVEN

TILBURG WEERT

ROERMOND

Turn static files into dynamic content formats.

Create a flipbook
Tongelresestraat 465, Eindhoven by Hendriks Makelaardij - meer makelaar - - Issuu