Skip to main content

Nieuwstraat 41, Tilburg

Page 1


HuizenHendriks van

Verrassend veel leefruimte

Groot perceel van 239 m2

Gelegen direct nabij stadscentrum

Energielabel D

Met grote, vrijstaande garage

Soort eengezinswoning

Type tussenwoning

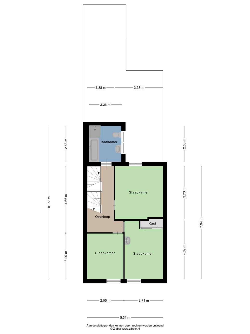
Kamers 6

Woonoppervlakte 148 m²

Perceeloppervlakte 239 m²

Inhoud 548 m³

Bouwjaar 1919

Tuin achtertuin

Garage vrijstaand steen

Verwarming c.v.-ketel, vloerverwarming gedeeltelijk, houtkachel

Isolatie dubbel glas

Energielabel D

De in deze brochure getoonde informatie wordt door Hendriks makelaardij met zorg samengesteld, doch voor de juistheid en volledigheid daarvan kan niet worden ingestaan en kunnen hieraan geen rechten worden ontleend. Spel- en typefouten voorbehouden. De plattegronden zijn geproduceerd voor promotionele doeleinden en ter indicatie. Er kunnen geen rechten aan worden ontleend. Maten zijn niet eigenhandig opgemeten. Indien er twijfel bestaat over de accuratie van de gegevens aangaande deze brochure, is de geïnteresseerde zelf verantwoordelijk voor het nameten van deze gegevens. Voor meer informatie wordt u doorverwezen naar www.hendriks.nl

Verkoper vertelt

Ik ben bijna 26 jaar geleden in dit huis komen wonen. Het huis heeft hoge plafonds, wat mij een ruimtelijk gevoel geeft. Daarnaast is er erg veel leefruimte en een grote tuin waar het goed toeven is. Ondanks dat het huis oud is (1919) werkt alles naar behoren en woon ik er heerlijk. Ook met straatgenoten heb ik een goed contact.

Met 5 minuten lopen sta ik in het Stadspark van de Oude Dijk, en weer 5 minuten lopen daar vandaan en ik sta voor de Stadsschouwburg. Als ik naar het centrum wil ga ik daar altijd lopend naar toe. Zo ook de markt op zaterdag. Er zijn voldoende supermarkten en andere winkels in de directe omgeving (Korvelseweg); de ligging is dus eigenlijk heel centraal.

Ik werk alweer een aantal jaren buiten Tilburg. Geen probleem, ik zit zo op de Ringbaan Zuid en heb snel aansluiting met de snelweg.

Ik ga dit huis met pijn in mijn hart verlaten. De reden is dat ik samen met mijn partner helemaal opnieuw wil beginnen en wij hebben daarom een ander huis gekocht.

Mocht jij de gelukkige koper worden, dan wens ik je heel veel woonplezier in deze fijne wijk en dit gezellige huis.

fijn lichtinval

Fijne lichtinval naar eigen smaak te maken

De opvallend grote woonkamer van ca. 31 m² verwelkomt je met een warme, uitnodigende houtkachel en een houten parketvloer. Hier kun je ultiem ontspannen na een lange werkdag.

Plaats jouw droomkeuken

plaats jouw droomkeuken open keuken

De aanbouw aan de achterzijde van de woning herbergt een woonkeuken met een aangebouwde en gezellige serre. Beide ruimtes zijn voorzien van vloerverwarming, waardoor koude voeten in de winter verleden tijd zijn.

Hoe deel jij ze in?

hoe deel jij ze in?

3 slaapkamers

Elke slaapkamer biedt voldoende ruimte voor een comfortabel bed, een kledingkast en een werkplek.

groene oase

volop genieten

Veel ruimte om te spelen, tuinieren en ontspannen.

Groene oase
heerlijk wonen in Tilburg

Tilburg

Tilburg is momenteel de 7e stad van Nederland met een grote diversiteit aan bedrijvigheid, woningbouw, onderwijs en cultuur. Er is hard aan de weg getimmerd de laatste jaren; vele centrumlocaties rondom de oude stadshaven en NS-werkplaats zijn recent omgetoverd tot bruisende gebieden met vele woningen, bedrijven en horeca.

Het bijzondere aan Tilburg is de grote diversiteit aan wijken met elk hun eigen, unieke karakter. Van het levendige stadscentrum tot rustige en “groene” woonwijken, er is voor ieder wat wils! De gemeente Tilburg omvat ook de mooie plaatsen Berkel-Enschot, Udenhout en Biezenmortel. Hier beleef je nog het echte “dorpsgevoel” met alle stedelijke voorzieningen toch heel dichtbij!

In de omgeving liggen prachtige natuurgebieden, zoals de Loonse en Drunense Duinen, de Oisterwijkse Bossen en Vennen en Moerenburg. Hier kun je heerlijk wandelen, fietsen en ontspannen in de natuur.

Ook qua onderwijs staat de stad hoog in aanzien. Naast Tilburg University zijn er vele scholen op alle denkbare niveaus.

Tilburg is ook bekend om zijn uitgebreide evenementenkalender. Van de Tilburgse Kermis tot diverse festivals zoals Incubate, Roadburn en Spoorpark Live. De stad biedt een ruime diversiteit aan sportfaciliteiten. Niet alleen voetbal en (ijs)hockey, maar bv. ook golf, tennis, rugby, zwemsporten, atletiek, sportvissen, fitness en ga zo maar door.

De rest van Nederland is uitstekend te bereiken via de vele (snel)wegen en het openbaar vervoer met maar liefst 3 treinstations.

noorden kadastrale kaart

HEERHUGOWAARD

ALKMAAR LANDSMEER HOORN

ZAANDAM

HOOFDDORP HAARLEM (2x)

A’DAM WEST

Lokaal makelaarschap

Wij geloven sterk in lokaal makelaarschap. Kennis van de buurt, de omgeving en de daarbij behorende ontwikkeling van de huizenprijzen zijn onmisbaar om voor jou het maximale resultaat te boeken.

Met Hendriks Makelaardij kies je voor:

• makelaars die al jarenlang verbonden zijn met de regio

• kennis van de lokale woningmarkt

• een verkoopplan afgestemd op jouw woning

• maximale exposure van je huis

• bezichtigingen ook in het weekend

• netwerk met honderden woningzoekers

Verkoop je je huis met Hendriks dan ben je met de eigen app 24/7 op de hoogte van het verkoopproces.

Bezichtigingsverzoeken bereiken je direct en beantwoord je snel en discreet op het moment dat het jou uitkomt.

Ook je huis verkopen? Onze makelaars komen graag en vrijblijvend bij je langs. We maken dan direct een gratis waardebepaling. Hendriks Makelaardij werkt op basis van no cure no pay. En betalen doe je pas bij verkoop.

Besterdring 223 013 - 549 91 90 tilburg@hendriks.nl www.hendriks.nl

PURMEREND

MONNICKENDAM

A’DAM NOORD

AMSTERDAM

AMSTELVEEN

LEIDEN

ALMERE

BUSSUM

HILVERSUM

MAARSSEN

VLEUTEN DE MEERN UTRECHT

AMERSFOORT

(2x) (2x)

NIEUWEGEIN WIJK BIJ DUURSTEDE

MEPPEL

ZWOLLE

APELDOORN

ARNHEM

(2x)

NIJMEGEN

‘S-HERTOGENBOSCH

BREDA

TILBURG

EINDHOVEN

WEERT

ROERMOND

Turn static files into dynamic content formats.

Create a flipbook