HuizenHendriks van

![]()

Soort
Kamers
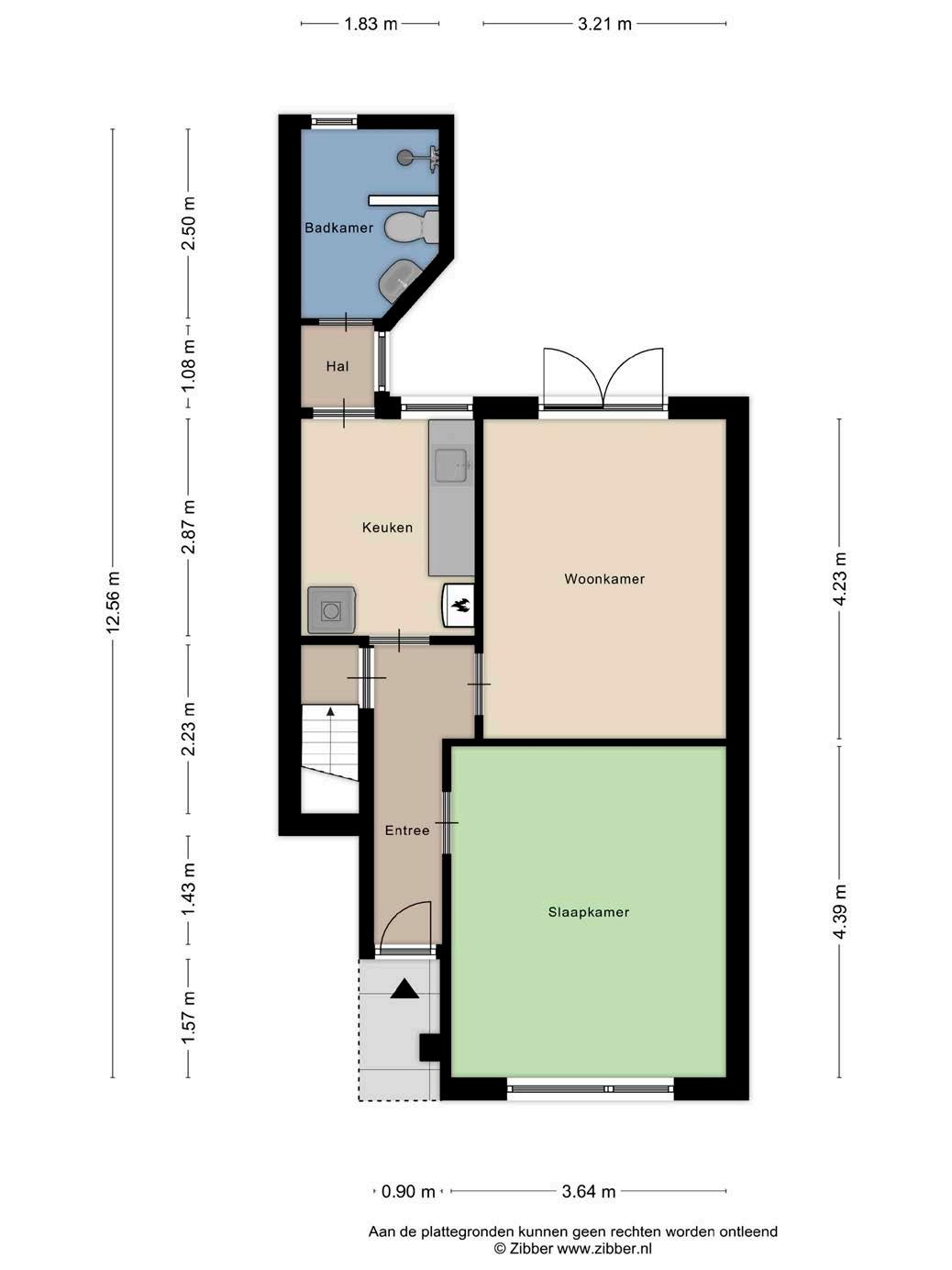
Woonoppervlakte
Inhoud
Bouwjaar
Tuin Garage
Verwarming
Isolatie
Energielabel
Kenmerken
benedenwoning
2
49 m²
195 m³
1934
achtertuin
geen garage
c.v.-ketel
hr-glas F

De in deze brochure getoonde informatie wordt door Hendriks makelaardij met zorg samengesteld, doch voor de juistheid en volledigheid daarvan kan niet worden ingestaan en kunnen hieraan geen rechten worden ontleend. Spel- en typefouten voorbehouden. De plattegronden zijn geproduceerd voor promotionele doeleinden en ter indicatie. Er kunnen geen rechten aan worden ontleend. Maten zijn niet eigenhandig opgemeten. Indien er twijfel bestaat over de accuratie van de gegevens aangaande deze brochure, is de geïnteresseerde zelf verantwoordelijk voor het nameten van deze gegevens. Voor meer informatie wordt u doorverwezen naar www.hendriks.nl
Een karakteristiek benedenhuis met een heerlijk diepe tuin op loopafstand van het Nijmeegse centrum.
Gelegen in de bruisende en opkomende buurt de Biezen. Met het Honigcomplex, de Spiegelwaal en de nieuwe NYMA makersplaats om de hoek is het hier heerlijk hip wonen!




Binnen wacht een knusse woonkamer. De inrichting is sfeervol met strak afgewerkte muren en een warme houtlook vloer die meteen een huiselijk gevoel geeft.
De slaapkamer heeft een prima formaat waar je heerlijk kunt uitrusten na een lange dag.

compleet verzorgde badkamer
De gedateerde maar charmante keuken die uitnodigt tot het proberen van nieuwe recepten.
De badkamer aan de achterzijde, met deur naar de tuin, is uitgerust met een inloopdouche en een stijlvol wastafelmeubel.




De ruime en zonovergoten tuin is een ware eyecatcher. Hier kun je tuinieren, relaxen of gezellig vrienden ontvangen voor een borrel in de buitenlucht. De vrijstaande stenen berging biedt ruimte voor je fietsen, gereedschap of misschien wel een hobbyruimte.




top locatie Met achterom nabij voorzieningen
Eén van de grootste voordelen van dit appartement is de ligging. Met het station Nijmegen binnen handbereik, ben je altijd goed verbonden. De supermarkt, bakker en diverse andere winkels liggen op een steenworp afstand, waardoor dagelijkse boodschappen doen een fluitje van een cent is. En heb je zin om op avontuur te gaan? Het bruisende centrum van Nijmegen is slechts een korte fiets- of wandeltocht verwijderd. Hier kun je genieten van gezellige cafés, trendy restaurants, en een breed scala aan winkels en culturele bezienswaardigheden.
Wonen in de Biezen betekent ook deel uitmaken van een buurt die volop in beweging is. Nieuwe initiatieven, hippe winkels en gezellige eetgelegenheden schieten als paddenstoelen uit de grond. Dit maakt de wijk extra aantrekkelijk voor starters die houden van een dynamische omgeving met een urban vibe.





De vestingstad Nijmegen, schitterend gelegen aan de rivier de Waal, ligt tussen heuvels en bossen. In de stad zijn nog veel kenmerken van de Romeinse tijd terug te vinden, zoals Romeinse thermen en tempels. Aan het eind van de 19e eeuw ontwikkelde Nijmegen zich als een prachtige woonstad. De brede singels en statige huizen van de St.-Annastraat, de Van Schaeck Mathonsingel en de Oranjesingel stralen nog steeds de schoonheid en de grandeur uit van de 19e eeuw.
Het centrum van Nijmegen heeft recentelijk een nieuw, aantrekkelijker gezicht gekregen. Met een uitnodigende openbare ruimte, gezellige winkelstraten, veel groen en een gevarieerd cultureel aanbod.
heerlijk wonen in Nijmegen



HEERHUGOWAARD
ALKMAAR LANDSMEER HOORN
Wij geloven sterk in lokaal makelaarschap. Kennis van de buurt, de omgeving en de daarbij behorende ontwikkeling van de huizenprijzen zijn onmisbaar om voor jou het maximale resultaat te boeken.
Met Hendriks Makelaardij kies je voor:
• makelaars die al jarenlang verbonden zijn met de regio
• kennis van de lokale woningmarkt
• een verkoopplan afgestemd op jouw woning
• maximale exposure van je huis
• bezichtigingen ook in het weekend
• netwerk met honderden woningzoekers
Verkoop je je huis met Hendriks dan ben je met de eigen app 24/7 op de hoogte van het verkoopproces.
Bezichtigingsverzoeken bereiken je direct en beantwoord je snel en discreet op het moment dat het jou uitkomt.
Ook je huis verkopen? Onze makelaars komen graag en vrijblijvend bij je langs. We maken dan direct een gratis waardebepaling. Hendriks Makelaardij werkt op basis van no cure no pay. En betalen doe je pas bij verkoop.
Burchtstraat 124 024 - 381 82 50 nijmegen@hendriks.nl www.hendriks.nl
PURMEREND ZAANDAM
A’DAM WEST
HOOFDDORP HAARLEM
LEIDEN
MONNICKENDAM
A’DAM NOORD
AMSTERDAM
ALMERE AMSTELVEEN
BUSSUM
HILVERSUM
(2x) (2x)
MAARSSEN
VLEUTEN DE MEERN UTRECHT
NIEUWEGEIN WIJK BIJ DUURSTEDE
AMERSFOORT
MEPPEL
ZWOLLE
APELDOORN
NIJMEGEN ARNHEM
‘S-HERTOGENBOSCH
TILBURG REESHOF BREDA
EINDHOVEN (2x) (2x)
TILBURG WEERT
ROERMOND
