Skip to main content

Jonkheer van Grotenhuisstraat 5, Groesbeek

Page 1


HuizenHendriks van

Soort eengezinswoning

Type vrijstaande woning Kamers 5

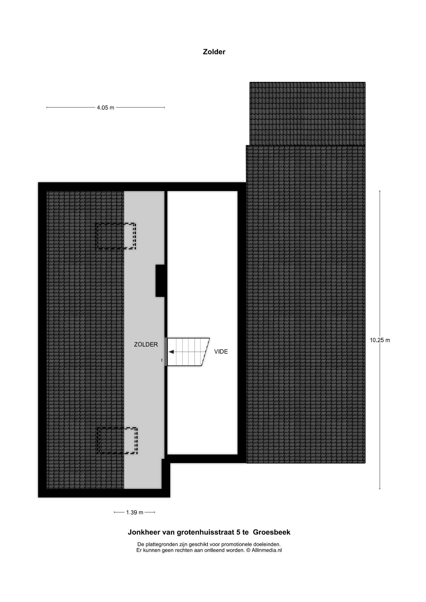
Woonoppervlakte 131 m²

Perceeloppervlakte 642 m²

Inhoud 675 m³

Bouwjaar 1975

Tuin achtertuin, voortuin, zijtuin, zonneterras

Garage inpandig

Verwarming hete lucht verwarming

Isolatie volledig geïsoleerd

Energielabel E

De in deze brochure getoonde informatie wordt door Hendriks makelaardij met zorg samengesteld, doch voor de juistheid en volledigheid daarvan kan niet worden ingestaan en kunnen hieraan geen rechten worden ontleend. Spel- en typefouten voorbehouden. De plattegronden zijn geproduceerd voor promotionele doeleinden en ter indicatie. Er kunnen geen rechten aan worden ontleend. Maten zijn niet eigenhandig opgemeten. Indien er twijfel bestaat over de accuratie van de gegevens aangaande deze brochure, is de geïnteresseerde zelf verantwoordelijk voor het nameten van deze gegevens. Voor meer informatie wordt u doorverwezen naar www.hendriks.nl

Verkoper vertelt

In dit geweldige en bijzondere huis hebben onze ouders bijna 50 jaar gewoond en wij als kinderen hebben hier een fijne jeugd gehad.

Veel ruimte, voor ieder zijn hobby’s, met overal leuke doorkijkjes en een enorme kruipruimte voor kinderen om te spelen en voor ouders om veel op te bergen. Echt super zijn de glazen schuifdeuren, ook bij alle kinderslaapkamers. Het zorgt voor veel licht en contact met buiten. Zodra de zon schijnt is het in de woonkamer heerlijk warm en kun je ook binnen in het zonnetje zitten. Dit terwijl, bij gebruik van het zonnescherm, op hetere dagen het binnen ook heel aangenaam blijft.

Verder een heerlijke tuin met de betoverend zingende merel, de nestelende meesjes en de grote bonte specht die een oude boom heeft opgezocht. De tuin biedt veel privacy, maar er was ook altijd een gezellig contact met alle buren, tot nu aan toe.

Regelmatig gingen we wandelen door de prachtig glooiende landerijen rond de Zevenheuvelenweg of lekker in het nabij gelegen bos. Groesbeek is door de jaren erg veranderd en heeft inmiddels een gezellig centrum met veel winkels en horeca en alle andere vereiste voorzieningen. 10 minuten lopen en je bent er! En Nijmegen om de hoek. Wat wil je nog meer?

zonneterras

Ruime tuin ruim

Deze vrijstaande woning, met zijn unieke splitlevelindeling en indrukwekkende bouw in een heuvel, biedt de perfecte mix van privacy en moderne leefruimte. Het is een plek waar je de drukte van de dag volledig achter je kunt laten.

Ruim en licht

licht ruim

Bij binnenkomst stap je direct in een plek van licht en ruimte. De splitlevel indeling zorgt ervoor dat elke hoek van het huis optimaal benut wordt en geeft het interieur een speelse en verrassende flow. In de ruime woonkamer met twee grote schuifpuien stroomt het daglicht naar binnen, waardoor er een warme en uitnodigende sfeer ontstaat.

Inpandig

inpandig groot

Grote inpandige garage/berging en heel veel bergruimte op zolder en in droge en hoge kruipruimte.

vijf
Aangrenzend aan de tuin hobbyruimte of werkkamer?

Met vijf ruime slaapkamers, waarvan drie met schuifpui naar de tuin, biedt deze woning volop mogelijkheden. Of je nu een kantoor aan huis wilt, een speelkamer voor de kinderen of een luxe master bedroom – de mogelijkheden zijn eindeloos. Ieder gezinslid vindt hier zijn eigen plekje. Bovendien zijn er mogelijkheden om je eigen stempel op de woning te drukken, zodat het echt als jouw unieke thuis voelt.

noorden

Groesbeek

De gemeente Groesbeek bestaat uit de dorpskernen Groesbeek, Berg en Dal, Heilig Landstichting, De Horst en Breedeweg. Iedere kern binnen deze gemeente heeft een eigen, uniek karakter. Groesbeek kent een rijk verenigingsleven met verschillende culturele, historische en recreatieve attracties. De gemeente telt ruim 19.000 inwoners op ruim 4400 ha grondgebied.

Groesbeek wordt ook wel het binnenste buitenland genoemd. Voor Nederlandse begrippen is het dan ook een bijzonder gebied. Het heuvellandschap doet soms denken aan Zuid-Limburg.

We mogen stellen, dat “wonen en leven” de moeite waard zijn in de gemeente Groesbeek. De omringende natuur, een rijk verenigingsleven en diverse culturele , historische en recreatieve attracties geven Groesbeek een charme, die door inwoners en woningzoekenden zeer gewaardeerd wordt.

De directe nabijheid van de universteitsstad Nijmegen maakt dat Groesbeek een zeer gewilde woonplaats is die het wonen in een prachtige, groene omgeving combineert met de gezelligheid en zeer uitgebreide voorzieningen van de stad.

heerlijk wonen in Groesbeek
kadastrale kaart

HEERHUGOWAARD

ALKMAAR LANDSMEER HOORN

Lokaal makelaarschap

Wij geloven sterk in lokaal makelaarschap. Kennis van de buurt, de omgeving en de daarbij behorende ontwikkeling van de huizenprijzen zijn onmisbaar om voor jou het maximale resultaat te boeken.

Met Hendriks Makelaardij kies je voor:

• makelaars die al jarenlang verbonden zijn met de regio

• kennis van de lokale woningmarkt

• een verkoopplan afgestemd op jouw woning

• maximale exposure van je huis

• bezichtigingen ook in het weekend

• netwerk met honderden woningzoekers

Verkoop je je huis met Hendriks dan ben je met de eigen app 24/7 op de hoogte van het verkoopproces.

Bezichtigingsverzoeken bereiken je direct en beantwoord je snel en discreet op het moment dat het jou uitkomt.

Ook je huis verkopen? Onze makelaars komen graag en vrijblijvend bij je langs. We maken dan direct een gratis waardebepaling. Hendriks Makelaardij werkt op basis van no cure no pay. En betalen doe je pas bij verkoop.

Sint Canisiussingel 27 024 - 381 82 50 nijmegen@hendriks.nl www.hendriks.nl

PURMEREND ZAANDAM

(2x)

A’DAM WEST

HOOFDDORP HAARLEM

LEIDEN

MONNICKENDAM

A’DAM NOORD

AMSTERDAM

AMSTELVEEN

VLEUTEN DE MEERN

ALMERE

BUSSUM

HILVERSUM

UTRECHT MAARSSEN

AMERSFOORT

(2x) (2x)

NIEUWEGEIN WIJK BIJ DUURSTEDE

MEPPEL

ZWOLLE

APELDOORN

ARNHEM

(2x)

NIJMEGEN

‘S-HERTOGENBOSCH

BREDA

TILBURG

EINDHOVEN

WEERT

ROERMOND

Turn static files into dynamic content formats.

Create a flipbook