Skip to main content

Holthuis 10, Apeldoorn

Page 1


HuizenHendriks van

Volledig

Soort eengezinswoning

Type 2-onder-1-kapwoning Kamers 5

Woonoppervlakte 154 m²

Perceeloppervlakte 486 m²

Inhoud 544 m³

Bouwjaar 2023

Tuin achtertuin, voortuin, zijtuin

Garage vrijstaand steen

Verwarming vloerverwarming geheel, warmtepomp

Isolatie volledig geïsoleerd, hr-glas

Energielabel A+++

De in deze brochure getoonde informatie wordt door Hendriks makelaardij met zorg samengesteld, doch voor de juistheid en volledigheid daarvan kan niet worden ingestaan en kunnen hieraan geen rechten worden ontleend. Spel- en typefouten voorbehouden. De plattegronden zijn geproduceerd voor promotionele doeleinden en ter indicatie. Er kunnen geen rechten aan worden ontleend. Maten zijn niet eigenhandig opgemeten. Indien er twijfel bestaat over de accuratie van de gegevens aangaande deze brochure, is de geïnteresseerde zelf verantwoordelijk voor het nameten van deze gegevens. Voor meer informatie wordt u doorverwezen naar www.hendriks.nl

Verkoper vertelt

Welkom bij deze mooie twee-onder-één-kap woning, gelegen in -in onze optiek- één van de mooiste straatjes van Apeldoorn.

Het einde van de tuin grenst aan het spoor. In eerste instantie waren wij hierdoor wat terughoudend, maar nu we hier wonen blijkt deze zorg zeer ongegrond te zijn. De woning is fantastisch geïsoleerd waardoor de trein in nagenoeg alle gevallen zonder dat wij het opmerken voorbij rijdt. Maar ook in de tuin vormt het passeren van de trein geen enkele interruptie.

Dit huis is door ons met veel liefde samengesteld. Zo is er gekozen voor een aanbouw van 4 meter waardoor er een zeer grote woonkamer is ontstaan. Bovendien hebben we een lichtkoepel laten plaatsen zodat het gevoel van ruimtebeleving nog beter is. De keuken heeft een erg speciaal, prachtig getekend blad van kwartsiet.

Wat echt uniek is aan deze woning, is de tuin. Door de grootte van het perceel hebben we een grote eigen

oprit kunnen realiseren. De tuin is behoorlijk diep en biedt veel mogelijkheid om zelf nog in te vullen.

Naast de uiterlijke kenmerken, is deze woning ontzettend behoorlijk duurzaam. Er zit een groot formaat warmtepomp in en de begane grond en 1e verdieping zijn volledig voorzien van vloerverwarming. De grote zonnepanelen houden de energierekening laag. Het huis voelt voor ons erg aangenaam en robuust aan.

We horen u bijna denken: maar waarom staat deze woning in de verkoop? Het antwoord is dat we een woning hebben gevonden die op loopafstand van de school van onze kinderen ligt, en dichter bij familie en kennissen. Als we dit huis met dit perceel hadden kunnen meenemen, hadden wij dat absoluut gedaan. Een verkoop is daarom met gemengde gevoelens, maar wij weten zeker dat een nieuwe eigenaar bijzonder veel plezier zal hebben van dit mooie huis.

lichte woonkamer

Lichte woonkamer lichtkoepel

De woonkamer is erg ruim en licht dankzij de grote ramen en de prachtige lichtkoepel. De vloer, die is voorzien van een visgraat-pvc, zorgt voor een warme, chique uitstraling. Hier kan je gezellig tijd doorbrengen met vrienden en familie.

Magazine-waardige keuken

magazine-waardig sfeervol ingericht

De magazine-waardige keuken is ruim opgezet met een groot kookeiland en voorzien van moderne apparatuur. Zo beschikt de keuken over een vaatwasser, een XL combi oven, ruime inductiekookplaat met ingebouwde afzuiging, koelkast en vriezer. Daarnaast heeft de keuken een koffiebar met ruimte voor al je aanvullende keukenapparatuur. Verder vind je in de woonkeuken een eetgedeelte en een grote erker die zorgt voor veel ruimtebeleving en lichtinval.

Moderne badkamer

moderne badkamer chique inrichting

De badkamer is modern en beschikt over een luxe inloopdouche, designbad, toilet en een marmeren wastafelmeubel. Een enorm sfeervolle ruimte.

Multifunctionele tuin

multifunctionele tuin

meerdere terrassen

De tuin, gelegen op het noordwesten, is zeer groot en bovendien multifunctioneel te gebruiken. Of je nu een boek wilt lezen in de zon, een barbecue wilt organiseren, of zelfs voetballen... in deze tuin kan het allemaal. De tuin beschikt over een ruim, fraai aangelegd terras dat wordt omringd door sfeervolle beplanting. De grote stenen garage biedt meer dan voldoende plek om spullen op te bergen of kan gebruikt worden als extra werkruimte.

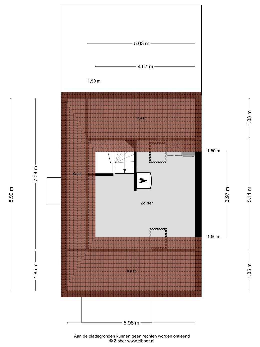
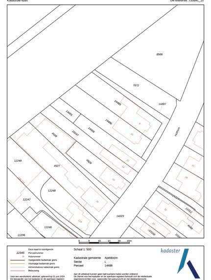
noorden kadastrale kaart

heerlijk wonen in Apeldoorn

Apeldoorn

Apeldoorn heeft de laatste jaren een gezonde groei doorgemaakt en is het levendige centrum van de Veluwe. De gemeente telt inmiddels ca. 168.000 inwoners en is de grootste stad op de Veluwe en de twaalfde stad van Nederland. Het stedelijke gebied van Apeldoorn is onderverdeeld in ruim 40 wijken. En dan is er nog het landelijk gebied waar bijna 20.000 mensen wonen, verdeeld over de bij Apeldoorn behorende dorpen Beekbergen, Ugchelen, Beemte Broekland, Hoenderloo, Hoog Soeren, Lieren, Loenen, Nieuw Milligen, Uddel, Wenum Wiesel, deels Radio Kootwijk en Klarenbeek.

Door de vele parken, heemtuinen, maar vooral ook door de uitgestrekte natuurgebieden die rondom de stad zijn gelegen, is Apeldoorn met recht het ‘Groene hart van de Veluwe’. De Koninklijke Houtvesterij Het Loo vormt één van Nederlands grotere aaneengesloten natuurgebieden met een oppervlakte van 10.500 hectare. In deze natuurlijke omgeving leven onder andere edelherten, reeën en wilde zwijnen. Apeldoorn is ook een ‘Koninklijke Stad’, bekend om Paleis Het Loo met zijn prachtige tuinen, Koninklijke Stallen en Het Aardhuis, voormalig jachtchalet van koning Willem II. Het woonklimaat in Apeldoorn is zéér aantrekkelijk.

HEERHUGOWAARD

ALKMAAR LANDSMEER HOORN

ZAANDAM

(2x)

A’DAM WEST

HOOFDDORP HAARLEM

LEIDEN

Lokaal makelaarschap

Wij geloven sterk in lokaal makelaarschap. Kennis van de buurt, de omgeving en de daarbij behorende ontwikkeling van de huizenprijzen zijn onmisbaar om voor jou het maximale resultaat te boeken.

Met Hendriks Makelaardij kies je voor:

• makelaars die al jarenlang verbonden zijn met de regio

• kennis van de lokale woningmarkt

• een verkoopplan afgestemd op jouw woning

• maximale exposure van je huis

• bezichtigingen ook in het weekend

• netwerk met honderden woningzoekers

Verkoop je je huis met Hendriks dan ben je met de eigen app 24/7 op de hoogte van het verkoopproces.

Bezichtigingsverzoeken bereiken je direct en beantwoord je snel en discreet op het moment dat het jou uitkomt.

Ook je huis verkopen? Onze makelaars komen graag en vrijblijvend bij je langs. We maken dan direct een gratis waardebepaling. Hendriks Makelaardij werkt op basis van no cure no pay. En betalen doe je pas bij verkoop.

Zwolseweg 208 055 - 521 92 77 apeldoorn@hendriks.nl www.hendriks.nl

PURMEREND

MONNICKENDAM

A’DAM NOORD

AMSTERDAM

AMSTELVEEN

ALMERE

BUSSUM

HILVERSUM

VLEUTEN DE MEERN UTRECHT MAARSSEN

AMERSFOORT

(2x) (2x)

NIEUWEGEIN WIJK BIJ DUURSTEDE

MEPPEL

ZWOLLE

APELDOORN

ARNHEM

(2x)

NIJMEGEN

‘S-HERTOGENBOSCH

BREDA

EINDHOVEN

TILBURG WEERT

ROERMOND

Turn static files into dynamic content formats.

Create a flipbook