Skip to main content

Brochure-Heezerweg_242

Page 1


HuizenHendriks van

Soort eengezinswoning

Type 2-onder-1-kapwoning

Kamers 6

Woonoppervlakte 121 m²

Perceeloppervlakte 221 m²

Inhoud 515 m³

Bouwjaar 1935

Tuin achtertuin, voortuin

Garage inpandig

Verwarming c.v.-ketel

Energielabel D

De in deze brochure getoonde informatie wordt door Hendriks makelaardij met zorg samengesteld, doch voor de juistheid en volledigheid daarvan kan niet worden ingestaan en kunnen hieraan geen rechten worden ontleend. Spel- en typefouten voorbehouden. De plattegronden zijn geproduceerd voor promotionele doeleinden en ter indicatie. Er kunnen geen rechten aan worden ontleend. Maten zijn niet eigenhandig opgemeten. Indien er twijfel bestaat over de accuratie van de gegevens aangaande deze brochure, is de geïnteresseerde zelf verantwoordelijk voor het nameten van deze gegevens. Voor meer informatie wordt u doorverwezen naar www.hendriks.nl

Verkoper vertelt

Mijn ouders hebben dit huis 55 jaar geleden gekocht en daarmee werd hun droom werkelijkheid: een eigen huis. Ze hebben het gekoesterd en er goed voor gezorgd en zijn er nadat wij, de drie kinderen, uit huis waren, altijd blijven wonen.

Mijn moeder woonde er na het overlijden van mijn vader nog 25 jaar alleen en is er gebleven tot ze haar laatste weken moest worden opgenomen. Mijn ouders zijn samen en ook mijn moeder alleen is altijd heel gelukkig geweest op die plek. Alles in de buurt, fijne winkels, met de bus die aan de overkant stopt, altijd een praatje op straat, iedereen kende haar en ze was geliefd. Het huis was warm en gezellig, ze had veel aanloop en zodra het even kon zat ze in haar zonnige tuin waar de uitbundig bloeiende magnolia, ook al was het maar voor een paar weken, haar trots was. Wij hopen op een koper die met liefde naar het huis kijkt, een huis dat weliswaar vraagt om renovatie maar dat ook enorm veel potentie biedt met de details die onze ouders altijd zorgvuldig hebben bewaard.

Eindhoven: Aalsterweg

sfeervol

fijn lichtinval

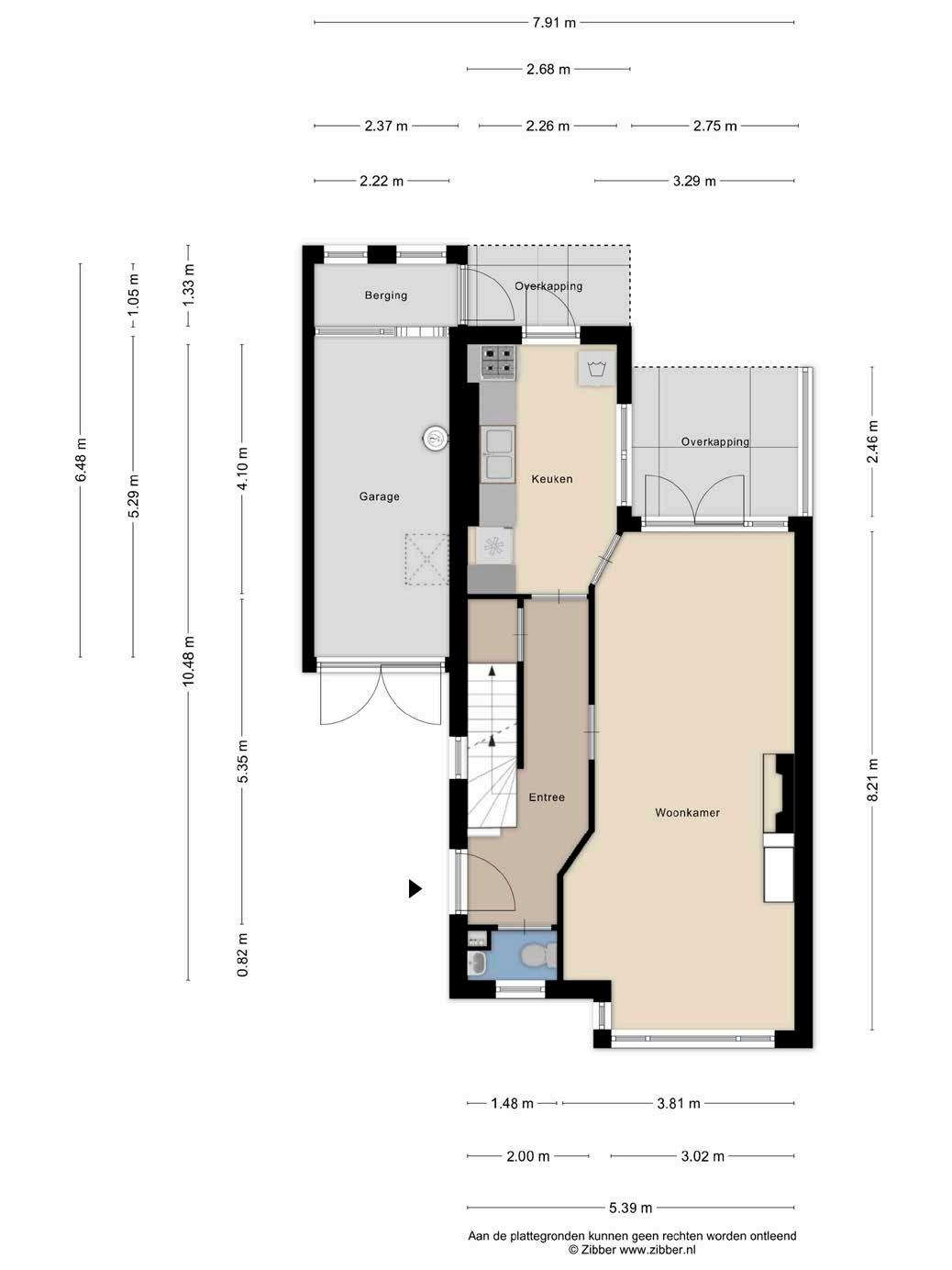
De entree leidt je naar een centrale hal die toegang geeft tot de verschillende leefruimtes. Hier ervaar je meteen de praktische indeling die deze woning zo geschikt maakt voor gezinnen en werken aan huis. De woonkamer is royaal opgezet en biedt voldoende ruimte voor een comfortabele zithoek én een ruime eettafel. Grote raampartijen zorgen voor een prettige lichtinval, waardoor de ruimte gedurende de dag een warme en uitnodigende sfeer behoudt.

huizen

Plaats jouw droomkeuken

plaats jouw droomkeuken mogelijkheden!

Aangrenzend bevindt zich de keuken, functioneel ingericht en met directe toegang tot de tuin. Dit is een plek waar koken en samenkomen samenkomen. De huidige keuken biedt alle basisvoorzieningen, maar nodigt tegelijkertijd uit tot modernisering. Dit is jouw kans om een eigentijdse leefkeuken te creëren die volledig aansluit bij jouw woonwensen.

4 Slaapkamers

4 slaapkamers nette badkamer

Op de verdiepingen bevinden zich meerdere slaapkamers, die flexibel in te delen zijn. Of je nu behoefte hebt aan extra slaapkamers voor kinderen, een werkkamer of een hobbyruimte: deze woning biedt de ruimte om jouw woonwensen te realiseren. De badkamer is functioneel, maar kan naar eigen inzicht worden gemoderniseerd om te voldoen aan hedendaagse eisen.

Op het zuidwesten

op het zuidwesten

met garage

De tuin is gelegen op het zuidwesten en vormt een absoluut pluspunt van deze woning. De aanwezigheid van een beveiligde achterom, voorzien van een afsluitbare stalen poort, maakt de tuin bovendien praktisch in gebruik, bijvoorbeeld voor fietsen of tuinonderhoud.

Een bijzonder element is de ruime aangebouwde garage. Deze biedt niet alleen plek voor een auto, maar kan ook uitstekend dienen als werkruimte, opslag of atelier. Voor wie een bedrijf aan huis wil starten of uitbreiden, vormt dit een waardevolle toevoeging. Daarnaast biedt de garage de mogelijkheid om deze bij de woning te betrekken, bijvoorbeeld door het creëren van een directe verbinding met de keuken, waardoor extra leefruimte kan ontstaan. In combinatie met de oprit en de parkeergelegenheid in de straat beschik je hier over meer dan voldoende ruimte voor meerdere voertuigen.

Eindhoven

Deze jonge Brabantse stad heeft een moderne uitstraling met een warm, bourgondisch centrum. Binnen een eeuw is dit boerenstadje uitgegroeid tot een aantrekkelijke dynamische stad met ruim 220.000 inwoners. De gemeente Eindhoven omvat naast de gelijknamige stad Eindhoven ook het dorp Acht en Meerhoven. Qua inwonersaantal is dit de vijfde stad van Nederland.

Het bourgondische is terug te vinden in de verschillende soorten cafés, terrasjes en restaurants met vele soorten wereldkeukens. De stad heeft een acties sociaal en cultureel centrum waarbij alle soorten kunst evenementen worden georganiseerd zoals Dutch Design Week en GLOW. Daarnaast is de werkomgeving erg gezond in deze high tech omgeving. Bedrijven als Philips, DAF en ASML zorgen voor een hoge instroom aan expats. Inclusief veel groen in de nabije omgeving van het centrum maakt Eindhoven tot een heerlijke stad waar het plezierig wonen, werken en leven is.

Het woonklimaat in Eindhoven is zéér aantrekkelijk.

heerlijk wonen in Eindhoven
noorden kadastrale kaart

HEERHUGOWAARD

Lokaal makelaarschap

Wij geloven sterk in lokaal makelaarschap. Kennis van de buurt, de omgeving en de daarbij behorende ontwikkeling van de huizenprijzen zijn onmisbaar om voor jou het maximale resultaat te boeken.

Met Hendriks Makelaardij kies je voor:

• makelaars die al jarenlang verbonden zijn met de regio

• kennis van de lokale woningmarkt

• een verkoopplan afgestemd op jouw woning

• maximale exposure van je huis

• bezichtigingen ook in het weekend

• netwerk met honderden woningzoekers

Verkoop je je huis met Hendriks dan ben je met de eigen app 24/7 op de hoogte van het verkoopproces.

Bezichtigingsverzoeken bereiken je direct en beantwoord je snel en discreet op het moment dat het jou uitkomt.

Ook je huis verkopen? Onze makelaars komen graag en vrijblijvend bij je langs. We maken dan direct een gratis waardebepaling. Hendriks Makelaardij werkt op basis van no cure no pay. En betalen doe je pas bij verkoop.

Aalsterweg 5

040 - 293 05 00 eindhoven@hendriks.nl www.hendriks.nl

PURMEREND ZAANDAM LANDSMEER HOORN

A’DAM WEST

HOOFDDORP HAARLEM

LEIDEN

MONNICKENDAM

A’DAM NOORD

AMSTERDAM

AMSTELVEEN

VLEUTEN DE MEERN

BREDA

ALMERE

HILVERSUM

MAARSSEN

UTRECHT

NIEUWEGEIN WIJK BIJ DUURSTEDE

AMERSFOORT

MEPPEL

ZWOLLE

APELDOORN

ARNHEM

NIJMEGEN

‘S-HERTOGENBOSCH

EINDHOVEN (2x) (2x) (2x)

TILBURG WEERT

ROERMOND

Hypotheekadvies dat verder gaat dan feiten

Ga je een huis kopen, verhuizen of verbouwen? Dan is het fijn om te weten waar je financieel aan toe bent. Bij Vivantus Hypotheken start je altijd met een gratis en vrijblijvend kennismakingsgesprek. Zo krijg je helderheid over wat je kunt lenen én welke hypotheek het beste past bij jouw plannen.

Onze onafhankelijke adviseurs nemen de tijd voor jouw verhaal. We kijken niet alleen naar je huidige situatie, maar ook naar je toekomstwensen. Want een hypotheek moet niet alleen vandaag kloppen, maar ook over vijf jaar nog goed voelen.

Sta je op het punt een bod te doen? Dan sta je sterker met een hypotheekadvies vooraf. Zo weet je precies wat je kunt biedenen kun je mogelijk zelfs zonder financieringsvoorbehoud kopen. Uiteraard geven we je helder inzicht in de risico’s en kansen.

• Persoonlijk advies, volledig onafhankelijk

• Plan vandaag nog jouw gratis gesprek!

Vivantus Hypotheken

Bel ons op: 085 - 773 1969

Of mail ons: cbohypotheken@hypotheekshop.nl

Turn static files into dynamic content formats.

Create a flipbook