Skip to main content

Evreuxlaan 56, Eindhoven

Page 1


HuizenHendriks van

Gewilde locatie

152 m2 woonoppervlakte

3 Slaapkamers

Badkamer en sauna

Nieuwe ketel

Soort eengezinswoning

Type geschakelde woning Kamers 5

Woonoppervlakte 152 m²

Perceeloppervlakte 305 m²

Inhoud 561 m³

Bouwjaar 1984

Tuin achtertuin, voortuin, zijtuin

Garage inpandig

Verwarming c.v.-ketel

Isolatie dakisolatie, muurisolatie, vloerisolatie

Energielabel C

De in deze brochure getoonde informatie wordt door Hendriks makelaardij met zorg samengesteld, doch voor de juistheid en volledigheid daarvan kan niet worden ingestaan en kunnen hieraan geen rechten worden ontleend. Spel- en typefouten voorbehouden. De plattegronden zijn geproduceerd voor promotionele doeleinden en ter indicatie. Er kunnen geen rechten aan worden ontleend. Maten zijn niet eigenhandig opgemeten. Indien er twijfel bestaat over de accuratie van de gegevens aangaande deze brochure, is de geïnteresseerde zelf verantwoordelijk voor het nameten van deze gegevens. Voor meer informatie wordt u doorverwezen naar www.hendriks.nl

Verkoper vertelt

Ons huis ligt in een rustige wijk waar alleen verkeer langs komt van de mensen die in deze hoek wonen.

We wonen dicht bij zowel de basisschool als middelbare scholen. Je kunt vanuit ons snel naar de AH of Jumbo gaan. Het zwembad, tennisbanen of fitness zijn allemaal binnen tien minuten te bereiken. Wij wonen hier al 24 jaar met plezier. We hebben een fijne grote woonkamer met een open keuken waardoor als je kookt ook kunt communiceren met degenen die aan tafel zitten. Door de overkapping aan de woning kunnen we ook fijn buiten zitten.

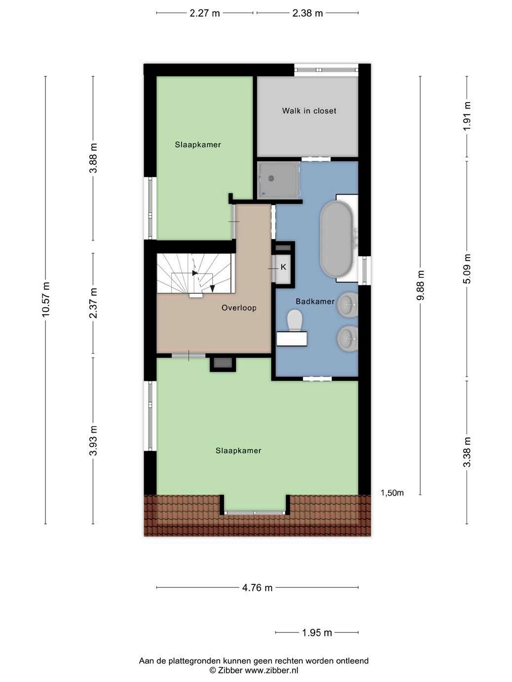
Op de eerste etage hebben we de master bedroom met een grote badkamer met twee grote wastafels waardoor je altijd ruimte hebt. Door de walk in kleedkamer heb je alles dicht bij elkaar. De tweede en derde slaapkamer gebruiken we voor de strijk en als logeerkamer.

huizen

Royale woonkamer

royale woning

veel ruimte en licht!

Bij binnenkomst in deze indrukwekkende woning word je verwelkomd door een lichte en ruime entree die direct toegang biedt tot het gastentoilet en de schitterende woonkamer. De woonkamer straalt elegantie uit met een visgraat parketvloer, die zorgt voor een warme en luxueuze uitstraling.

Open keuken

open keuken

in u-vorm

De open keuken in U-opstelling is een droom voor iedere kookliefhebber, met moderne apparatuur en voldoende ruimte voor culinaire creaties. De bijkeuken is een praktische aanvulling voor al jouw opslagbehoeften en biedt toegang tot de berging, die gemakkelijk kan worden omgebouwd tot garage voor extra gemak.

Suite-badkamer

suite-badkamer! en sauna!

Op de eerste verdieping vind je twee slaapkamers, waarvan één is uitgerust met een walk-in closet die aan al jouw garderobewensen tegemoetkomt. De en-suite badkamer is een oase van luxe met een ligbad, douche, toilet en dubbele wastafel, perfect om na een lange dag te ontspannen. De tweede verdieping verrast met een royale derde slaapkamer en een sauna, ideaal voor momenten van pure ontspanning.

riante tuin!
Riante tuin! met overkapping

Buiten biedt de tuin een idyllisch toevluchtsoord met een overkapping voor schaduwrijke rust, terrassen voor zomerse barbecues en een vrije achterom voor extra privacy.

Eindhoven

Deze jonge Brabantse stad heeft een moderne uitstraling met een warm, bourgondisch centrum. Binnen een eeuw is dit boerenstadje uitgegroeid tot een aantrekkelijke dynamische stad met ruim 220.000 inwoners. De gemeente Eindhoven omvat naast de gelijknamige stad Eindhoven ook het dorp Acht en Meerhoven. Qua inwonersaantal is dit de vijfde stad van Nederland.

Het bourgondische is terug te vinden in de verschillende soorten cafés, terrasjes en restaurants met vele soorten wereldkeukens. De stad heeft een acties sociaal en cultureel centrum waarbij alle soorten kunst evenementen worden georganiseerd zoals Dutch Design Week en GLOW. Daarnaast is de werkomgeving erg gezond in deze high tech omgeving. Bedrijven als Philips, DAF en ASML zorgen voor een hoge instroom aan expats. Inclusief veel groen in de nabije omgeving van het centrum maakt Eindhoven tot een heerlijke stad waar het plezierig wonen, werken en leven is.

Het woonklimaat in Eindhoven is zéér aantrekkelijk.

heerlijk wonen in Eindhoven
noorden kadastrale kaart

HEERHUGOWAARD

ALKMAAR LANDSMEER

ZAANDAM

(2x)

A’DAM WEST

HOOFDDORP HAARLEM

LEIDEN

Lokaal makelaarschap

Wij geloven sterk in lokaal makelaarschap. Kennis van de buurt, de omgeving en de daarbij behorende ontwikkeling van de huizenprijzen zijn onmisbaar om voor jou het maximale resultaat te boeken.

Met Hendriks Makelaardij kies je voor:

• makelaars die al jarenlang verbonden zijn met de regio

• kennis van de lokale woningmarkt

• een verkoopplan afgestemd op jouw woning

• maximale exposure van je huis

• bezichtigingen ook in het weekend

• netwerk met honderden woningzoekers

Verkoop je je huis met Hendriks dan ben je met de eigen app 24/7 op de hoogte van het verkoopproces.

Bezichtigingsverzoeken bereiken je direct en beantwoord je snel en discreet op het moment dat het jou uitkomt.

Ook je huis verkopen? Onze makelaars komen graag en vrijblijvend bij je langs. We maken dan direct een gratis waardebepaling. Hendriks Makelaardij werkt op basis van no cure no pay. En betalen doe je pas bij verkoop.

Aalsterweg 5

040 - 293 05 00 eindhoven@hendriks.nl www.hendriks.nl

HOORN

PURMEREND

MONNICKENDAM

A’DAM NOORD

AMSTERDAM

AMSTELVEEN

ALMERE

BUSSUM

HILVERSUM

VLEUTEN DE MEERN UTRECHT MAARSSEN

AMERSFOORT

(2x) (2x)

NIEUWEGEIN WIJK BIJ DUURSTEDE

MEPPEL

ZWOLLE

APELDOORN

ARNHEM

(2x)

NIJMEGEN

‘S-HERTOGENBOSCH

BREDA

EINDHOVEN

TILBURG WEERT

ROERMOND

Turn static files into dynamic content formats.

Create a flipbook