Skip to main content

Dr. Jan Berendsstraat 88, Nijmegen

Page 1


HuizenHendriks van

Dr. Jan Berendsstraat 88 , 6512 HD Nijmegen

Bottendaal - Nijmegen Oost

Charmante tussenwoning

Speelse indeling

Originele details

Soort eengezinswoning

Type tussenwoning

Kamers 4

Woonoppervlakte 94 m²

Perceeloppervlakte 84 m²

Inhoud 425 m³

Bouwjaar 1908

Tuin achtertuin, voortuin

Garage geen garage

Verwarming c.v.-ketel, houtkachel

Isolatie dakisolatie, muurisolatie, vloerisolatie, gedeeltelijk dubbel glas, hr-glas

Energielabel C

De in deze brochure getoonde informatie wordt door Hendriks makelaardij met zorg samengesteld, doch voor de juistheid en volledigheid daarvan kan niet worden ingestaan en kunnen hieraan geen rechten worden ontleend. Spel- en typefouten voorbehouden. De plattegronden zijn geproduceerd voor promotionele doeleinden en ter indicatie. Er kunnen geen rechten aan worden ontleend. Maten zijn niet eigenhandig opgemeten. Indien er twijfel bestaat over de accuratie van de gegevens aangaande deze brochure, is de geïnteresseerde zelf verantwoordelijk voor het nameten van deze gegevens. Voor meer informatie wordt u doorverwezen naar www.hendriks.nl

Verkoper vertelt

Voordat wij dit huis op de Dr. Jan Berendsstraat kochten, leek ons dit de ideale locatie om te wonen: het sfeervolle en levendige Bottendaal. We kenden de plek en dit rijtje huizen. Als we op een mooie zomerdag voorbij fietsten dan was er altijd gezelligheid in de voortuinen. Toen dit huis in 2007 te koop kwam, grepen wij onze kans en daar hebben we nooit spijt van gehad.

Ons huis is écht een thuis: de speelse indeling, de ruime kelder en natuurlijk de zonnige voortuin, die in de zomer voelt als een verlengstuk van onze woonkamer. Het huis, met de badkamer beneden, zorgt voor gezelligheid, zeker toen de kinderen klein waren: we kookten terwijl de kinderen aan het badderen waren.

Het huis ligt op een fijne plek in Bottendaal, met vrij uitzicht op de luchten. Samen met alle buren hebben we aan ‘guerilla gardening’ gedaan en hebben we een mooie groene strook aangelegd tegenover onze huizen. We kunnen lopend naar het station, we zijn

zo aan de Spiegelwaal en ook de stad en het bos zijn om de hoek. Het Thiemepark en de speeltuin het Kraaiennest zijn ideale ‘achtertuinen’ om te spelen en te picknicken.

Het vertrek is niet makkelijk, onze kinderen van 13 en 15 jaar zijn hier geboren en opgegroeid. Al op jonge leeftijd maakten ze hun eigen rondjes langs vriendinnen. Toch gaan we nu verder, vooral op verzoek van Joris, naar een huis met meer ruimte. We hopen dat de volgende bewoners hier net zoveel woonplezier ervaren als wij!

Hartelijke groet, Lieke, Joris, Mette en Stine

sfeervol

authentieke details

De woonkamer is een oase van comfort, perfect voor gezellige familiebijeenkomsten of rustige avonden met een goed boek. De sfeervolle houtkachel knispert uitnodigend op koude winterdagen.

Praktisch

afgesloten

voorzien van alle gemakken

De keuken is afgesloten van het eetgedeelte en voorzien van de nodige apparatuur. Achter de keuken bevindt zich de badkamer.

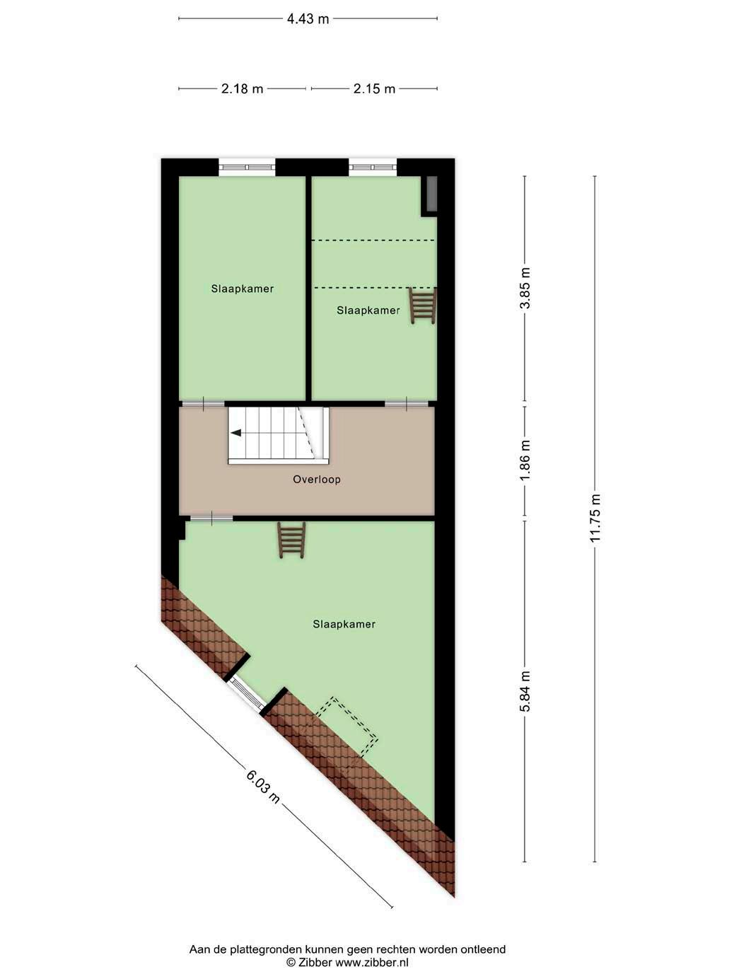
Drie slaapkamers

drie

voldoende bergruimte

Boven vind je drie ruime slaapkamers die elk hun eigen unieke charme hebben. De hoofdslaapkamer is voorzien van een vliering, voldoende opbergruimte dus! De twee andere slaapkamers zijn ideaal voor kinderen, gasten of om te vormen tot een inspirerende werkruimte.

Nijmegen

De vestingstad Nijmegen, schitterend gelegen aan de rivier de Waal, ligt tussen heuvels en bossen. In de stad zijn nog veel kenmerken van de Romeinse tijd terug te vinden, zoals Romeinse thermen en tempels. Aan het eind van de 19e eeuw ontwikkelde Nijmegen zich als een prachtige woonstad. De brede singels en statige huizen van de St.-Annastraat, de Van Schaeck Mathonsingel en de Oranjesingel stralen nog steeds de schoonheid en de grandeur uit van de 19e eeuw.

Het centrum van Nijmegen heeft recentelijk een nieuw, aantrekkelijker gezicht gekregen. Met een uitnodigende openbare ruimte, gezellige winkelstraten, veel groen en een gevarieerd cultureel aanbod.

heerlijk wonen in Nijmegen
noorden kadastrale kaart

HEERHUGOWAARD

ALKMAAR LANDSMEER HOORN

Lokaal makelaarschap

Wij geloven sterk in lokaal makelaarschap. Kennis van de buurt, de omgeving en de daarbij behorende ontwikkeling van de huizenprijzen zijn onmisbaar om voor jou het maximale resultaat te boeken.

Met Hendriks Makelaardij kies je voor:

• makelaars die al jarenlang verbonden zijn met de regio

• kennis van de lokale woningmarkt

• een verkoopplan afgestemd op jouw woning

• maximale exposure van je huis

• bezichtigingen ook in het weekend

• netwerk met honderden woningzoekers

Verkoop je je huis met Hendriks dan ben je met de eigen app 24/7 op de hoogte van het verkoopproces.

Bezichtigingsverzoeken bereiken je direct en beantwoord je snel en discreet op het moment dat het jou uitkomt.

Ook je huis verkopen? Onze makelaars komen graag en vrijblijvend bij je langs. We maken dan direct een gratis waardebepaling. Hendriks Makelaardij werkt op basis van no cure no pay. En betalen doe je pas bij verkoop.

Sint Canisiussingel 27 024 - 381 82 50 nijmegen@hendriks.nl www.hendriks.nl

PURMEREND ZAANDAM

(2x)

A’DAM WEST

HOOFDDORP HAARLEM

LEIDEN

MONNICKENDAM

A’DAM NOORD

AMSTERDAM

AMSTELVEEN

VLEUTEN DE MEERN

ALMERE

BUSSUM

HILVERSUM

UTRECHT MAARSSEN

AMERSFOORT

(2x) (2x)

NIEUWEGEIN WIJK BIJ DUURSTEDE

MEPPEL

ZWOLLE

APELDOORN

ARNHEM

(2x)

NIJMEGEN

‘S-HERTOGENBOSCH

BREDA

TILBURG

EINDHOVEN

WEERT

ROERMOND

Turn static files into dynamic content formats.

Create a flipbook