Skip to main content

Burgemeester Des Tombeplein 15, Apeldoorn

Page 1

HuizenHendriks van

Energielabel A

Prachtig lichtinval

Prachtige groene wijk

Zeer ruime woonkamer

Eigen parkeerplaats in garage

Burgemeester Des Tombeplein 15 , 7311 AK Apeldoorn
H48

Soort Kamers

Woonoppervlakte

Inhoud

Bouwjaar

Tuin

Garage

Isolatie

Energielabel

Kenmerken

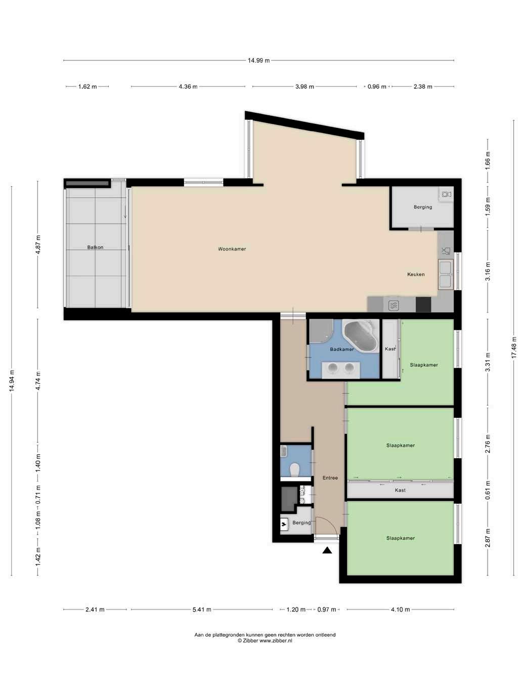
portiekflat 4

131 m²

433 m³

1990

geen tuin

geen garage

muurisolatie,

dubbel glas A

De in deze brochure getoonde informatie wordt door Hendriks makelaardij met zorg samengesteld, doch voor de juistheid en volledigheid daarvan kan niet

den ingestaan en kunnen hieraan geen rechten worden ontleend. Spel- en typefouten voorbehouden. De plattegronden zijn geproduceerd voor promotionele doeleinden en ter indicatie. Er kunnen geen rechten aan worden ontleend. Maten zijn niet eigenhandig opgemeten. Indien er twijfel bestaat over de accuratie van de gegevens aangaande deze brochure, is de geïnteresseerde zelf verantwoordelijk voor het nameten van deze gegevens. Voor meer informatie wordt u doorverwezen naar www.hendriks.nl

Verkoper vertelt

Op zoek naar een appartement dat comfortabel, duurzaam en seniorenvriendelijk is?

Dit appartement aan de Burgemeester Des Tombeplein biedt rust, ruimte en is gelegen in een prachtige groene omgeving. Een plek waar u kunt genieten van een onderhoudsvriendelijke woning, voorzien van alle gemakken en gemakkelijk toegankelijk.

Apeldoorn: Zwolseweg 208, T 055 - 521 92 77
Te koop bij
wor-

lift aanwezig

eigen parkeerplaats huizen

Kom

Het appartement beschikt over een eigen parkeerplaats in de garage. Het gemak van een eigen parkeerplek is tegenwoordig goud waard. Dit appartement biedt u die luxe met een beveiligde parkeerplaats in de ondergrondse garage. U hoeft zich geen zorgen meer te maken over parkeervergunningen of het vinden van een plekje op straat.

Overigens beschikt het moderne complex beschikt over voldoende parkeergelegenheid voor bezoekers, de VvE is financieel gezond en wordt goed beheerd. Er is een beveiligde ingang voorzien van camerabewaking, videofoon.

van hendriks
binnen

goed in te delen veel leefruimte

De woonkamer is vaak het hart van de woning, een plek waar u ontspant, leeft en samenkomt. In dit appartement is de woonkamer bijzonder royaal, met genoeg ruimte voor een grote bank, een eetgedeelte en misschien zelfs een werkhoek. Door de doordachte indeling en de grote ramen heeft de kamer een open en uitnodigende atmosfeer. Het is een plek die zich perfect leent voor zowel intieme avonden als het entertainen van gasten. Met deze woonkamer kiest u voor een flexibele ruimte die zich aanpast aan uw levensstijl.

van hendriks
Lichte woonkamer
huizen

Open keuken

compleet

wat maakt u klaar?

De keuken is uitgerust met een vaatwasser, inductiekookplaat, oven en magnetron. De keuken biedt hiermee genoeg ruimte om comfortabel te koken.

huizen van hendriks

keurige badkamer

3 slaapkamers welterusten

Een lichte woning heeft een positieve invloed op uw humeur en gezondheid. Dit appartement excelleert in natuurlijke lichtinval dankzij de grote ramen die het daglicht vrij spel geven. De zonnestralen vinden hun weg naar elke hoek, wat zorgt voor een levendige en energieke sfeer. In de ochtend ontwaakt u met het zachte licht van de opkomende zon en gedurende de dag transformeert de lichtinval de ruimtes.

Het appartement heeft drie slaapkamers, waardoor er genoeg opties zijn voor een extra logeer- of hobbykamer.

De badkamer is praktisch ingericht en heeft een verzorgde uitstraling.

huizen van hendriks

Fijne buitenruimte

genieten zonnig

Verder geniet u van een balkon op het zuidoosten, waar u ‘s ochtends in alle rust uw koffie kunt drinken. Duurzaam wonen is een bewuste keuze voor het milieu én voor uw portemonnee. Dit appartement met energielabel A garandeert uitstekende isolatie, moderne installaties en een slim gebruik van energie. Het resultaat? Lagere stookkosten, een verminderde CO2-uitstoot en een behaaglijk binnenklimaat, het hele jaar door.

huizen van hendriks

Zicht op groen

nabij voorzieningen

prettig wonen

De wijk Sprengenweg-Noord staat bekend om zijn groene karakter. Wandel door de rustige straten omgeven door bomen en parken die elk seizoen hun eigen kleurenpalet tentoonspreiden. Deze groene omgeving draagt bij aan uw gevoel van rust en welzijn en biedt volop mogelijkheden voor ontspanning in de open lucht. Het is een plek waar u de vogels hoort zingen en waar u de seizoenen intens beleeft. Wonen in een groene wijk als deze betekent dat u de natuur altijd dichtbij heeft; het is als een verlengstuk van uw huis.

huizen van hendriks
Burgemeester Des Tombeplein 15 7311 AK Apeldoorn

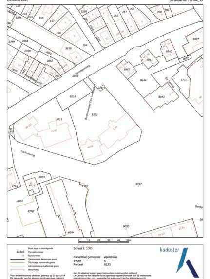
noorden kadastrale kaart

heerlijk wonen in Apeldoorn

Apeldoorn

Apeldoorn heeft de laatste jaren een gezonde groei doorgemaakt en is het levendige centrum van de Veluwe. De gemeente telt inmiddels ca. 168.000 inwoners en is de grootste stad op de Veluwe en de twaalfde stad van Nederland. Het stedelijke gebied van Apeldoorn is onderverdeeld in ruim 40 wijken. En dan is er nog het landelijk gebied waar bijna 20.000 mensen wonen, verdeeld over de bij Apeldoorn behorende dorpen Beekbergen, Ugchelen, Beemte Broekland, Hoenderloo, Hoog Soeren, Lieren, Loenen, Nieuw Milligen, Uddel, Wenum Wiesel, deels Radio Kootwijk en Klarenbeek.

Door de vele parken, heemtuinen, maar vooral ook door de uitgestrekte natuurgebieden die rondom de stad zijn gelegen, is Apeldoorn met recht het ‘Groene hart van de Veluwe’. De Koninklijke Houtvesterij Het Loo vormt één van Nederlands grotere aaneengesloten natuurgebieden met een oppervlakte van 10.500 hectare. In deze natuurlijke omgeving leven onder andere edelherten, reeën en wilde zwijnen. Apeldoorn is ook een ‘Koninklijke Stad’, bekend om Paleis Het Loo met zijn prachtige tuinen, Koninklijke Stallen en Het Aardhuis, voormalig jachtchalet van koning Willem II. Het woonklimaat in Apeldoorn is zéér aantrekkelijk.

Lokaal makelaarschap

Wij geloven sterk in lokaal makelaarschap. Kennis van de buurt, de omgeving en de daarbij behorende ontwikkeling van de huizenprijzen zijn onmisbaar om voor jou het maximale resultaat te boeken.

Met Hendriks Makelaardij kies je voor:

• makelaars die al jarenlang verbonden zijn met de regio

• kennis van de lokale woningmarkt

• een verkoopplan afgestemd op jouw woning

• maximale exposure van je huis

• bezichtigingen ook in het weekend

• netwerk met honderden woningzoekers

Verkoop je je huis met Hendriks dan ben je met de eigen app 24/7 op de hoogte van het verkoopproces.

Bezichtigingsverzoeken bereiken je direct en beantwoord je snel en discreet op het moment dat het jou uitkomt.

HEERHUGOWAARD

ALKMAAR LANDSMEER HOORN

Ook je huis verkopen? Onze makelaars komen graag en vrijblijvend bij je langs. We maken dan direct een gratis waardebepaling. Hendriks Makelaardij werkt op basis van no cure no pay. En betalen doe je pas bij verkoop.

Zwolseweg 208 055 - 521 92 77 apeldoorn@hendriks.nl www.hendriks.nl

PURMEREND ZAANDAM

A’DAM WEST

HOOFDDORP HAARLEM

LEIDEN

MONNICKENDAM

A’DAM NOORD

AMSTERDAM

ALMERE AMSTELVEEN

BUSSUM

HILVERSUM

(2x) (2x)

MAARSSEN

VLEUTEN DE MEERN UTRECHT

NIEUWEGEIN WIJK BIJ DUURSTEDE

AMERSFOORT

MEPPEL

ZWOLLE

APELDOORN

NIJMEGEN ARNHEM

‘S-HERTOGENBOSCH

TILBURG REESHOF BREDA

EINDHOVEN (2x) (2x)

TILBURG WEERT

ROERMOND

onze makelaarskantoren huizen van hendriks
WHATSAPP FOTO’S WONING ADRES WAARDE + + = Zwolseweg 208 055 - 521 92 77 apeldoorn@hendriks.nl www.hendriks.nl Ook je huis verkopen? WhatsApp de foto’s en het adres van je woning naar 06 44 33 78 72 en ontvang een gratis waardebepaling!

Turn static files into dynamic content formats.

Create a flipbook