Skip to main content

Bankastraat 11, Tilburg

Page 1


HuizenHendriks van

Gewilde locatie Instapklaar

Heerlijke tuin

Grote berging

Soort eengezinswoning

Type tussenwoning

Kamers 4

Woonoppervlakte 87 m²

Perceeloppervlakte 136 m²

Inhoud 318 m³

Bouwjaar 1919

Tuin achtertuin

Garage geen garage

Verwarming c.v.-ketel

Isolatie dakisolatie,

dubbel glas

Energielabel E

De in deze brochure getoonde informatie wordt door Hendriks makelaardij met zorg samengesteld, doch voor de juistheid en volledigheid daarvan kan niet worden ingestaan en kunnen hieraan geen rechten worden ontleend. Spel- en typefouten voorbehouden. De plattegronden zijn geproduceerd voor promotionele doeleinden en ter indicatie. Er kunnen geen rechten aan worden ontleend. Maten zijn niet eigenhandig opgemeten. Indien er twijfel bestaat over de accuratie van de gegevens aangaande deze brochure, is de geïnteresseerde zelf verantwoordelijk voor het nameten van deze gegevens. Voor meer informatie wordt u doorverwezen naar www.hendriks.nl

Verkoper vertelt

Onze gezellige starterswoning, een knus rijtjeshuis, biedt een ideale plek voor een jong gezin, stel of alleenstaand ouder. Met een grote schuur en een groene tuin is er volop ruimte voor opslag en ontspanning. We hebben hier jarenlang met veel plezier gewoond, genietend van de rustige en aangename buurt. Dankzij de gunstige ligging dicht bij een uitvalsweg, zijn zowel de stad als andere voorzieningen gemakkelijk bereikbaar.

De woning biedt deze woning eveneens een heerlijke leefomgeving, perfect voor het opbouwen van gezamenlijke toekomst, zoals wij dat ook deden. Nu ons gezin groeit, zijn we op zoek naar een grotere woning, maar we zullen de fijne herinneringen aan deze plek zeker koesteren.

fijne lichtinval Knusse woonkamer nette afwerking

De woonkamer is voorzien van een warme houten vloer, strakke plafonds en wanden, waardoor het een perfecte plek is om te ontspannen en te genieten van gezellige avonden met vrienden en familie.

Praktische keuken

lekker kokkerellen

wat maak jij klaar?

Daarnaast beschikt de woning over een ruime eetkeuken, compleet met een keurig keukenblok en alle nodige inbouwapparatuur. Hier kun je je kookkunsten naar hartelust uitoefenen en smakelijke maaltijden bereiden.

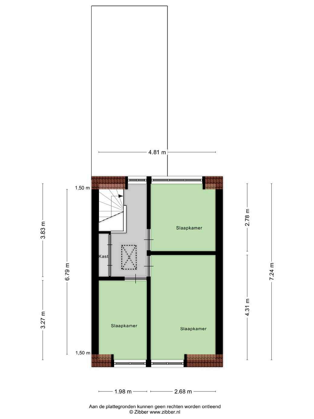
3 Slaapkamers

hoe deel jij ze in?

slapen of studeren

Op de eerste verdieping vind je een overloop met twee grote vaste kasten en drie slaapkamers, elk voorzien van laminaatvloeren en dakkapellen die zorgen voor veel natuurlijk licht.

met handige berging

Zonnige tuin optimaal genieten

De diepe achtertuin, gelegen op het noorden, is een waar paradijs met een gazon, borders vol bomen en planten en een grote stenen berging met achterom. Hier kun je iedere dag genieten van de rust en privacy, terwijl je toch dichtbij alle voorzieningen blijft.

heerlijk wonen in Tilburg

Tilburg

Tilburg is momenteel de 7e stad van Nederland met een grote diversiteit aan bedrijvigheid, woningbouw, onderwijs en cultuur. Er is hard aan de weg getimmerd de laatste jaren; vele centrumlocaties rondom de oude stadshaven en NS-werkplaats zijn recent omgetoverd tot bruisende gebieden met vele woningen, bedrijven en horeca.

Het bijzondere aan Tilburg is de grote diversiteit aan wijken met elk hun eigen, unieke karakter. Van het levendige stadscentrum tot rustige en “groene” woonwijken, er is voor ieder wat wils! De gemeente Tilburg omvat ook de mooie plaatsen Berkel-Enschot, Udenhout en Biezenmortel. Hier beleef je nog het echte “dorpsgevoel” met alle stedelijke voorzieningen toch heel dichtbij!

In de omgeving liggen prachtige natuurgebieden, zoals de Loonse en Drunense Duinen, de Oisterwijkse Bossen en Vennen en Moerenburg. Hier kun je heerlijk wandelen, fietsen en ontspannen in de natuur.

Ook qua onderwijs staat de stad hoog in aanzien. Naast Tilburg University zijn er vele scholen op alle denkbare niveaus.

Tilburg is ook bekend om zijn uitgebreide evenementenkalender. Van de Tilburgse Kermis tot diverse festivals zoals Incubate, Roadburn en Spoorpark Live. De stad biedt een ruime diversiteit aan sportfaciliteiten. Niet alleen voetbal en (ijs)hockey, maar bv. ook golf, tennis, rugby, zwemsporten, atletiek, sportvissen, fitness en ga zo maar door.

De rest van Nederland is uitstekend te bereiken via de vele (snel)wegen en het openbaar vervoer met maar liefst 3 treinstations.

noorden kadastrale kaart

HEERHUGOWAARD

ALKMAAR LANDSMEER HOORN

ZAANDAM

HOOFDDORP HAARLEM (2x)

A’DAM WEST

Lokaal makelaarschap

Wij geloven sterk in lokaal makelaarschap. Kennis van de buurt, de omgeving en de daarbij behorende ontwikkeling van de huizenprijzen zijn onmisbaar om voor jou het maximale resultaat te boeken.

Met Hendriks Makelaardij kies je voor:

• makelaars die al jarenlang verbonden zijn met de regio

• kennis van de lokale woningmarkt

• een verkoopplan afgestemd op jouw woning

• maximale exposure van je huis

• bezichtigingen ook in het weekend

• netwerk met honderden woningzoekers

Verkoop je je huis met Hendriks dan ben je met de eigen app 24/7 op de hoogte van het verkoopproces.

Bezichtigingsverzoeken bereiken je direct en beantwoord je snel en discreet op het moment dat het jou uitkomt.

Ook je huis verkopen? Onze makelaars komen graag en vrijblijvend bij je langs. We maken dan direct een gratis waardebepaling. Hendriks Makelaardij werkt op basis van no cure no pay. En betalen doe je pas bij verkoop.

Besterdring 223 013 - 549 91 90 tilburg@hendriks.nl www.hendriks.nl

PURMEREND

MONNICKENDAM

A’DAM NOORD

AMSTERDAM

AMSTELVEEN

LEIDEN

ALMERE

BUSSUM

HILVERSUM

MAARSSEN

VLEUTEN DE MEERN UTRECHT

AMERSFOORT

(2x) (2x)

NIEUWEGEIN WIJK BIJ DUURSTEDE

MEPPEL

ZWOLLE

APELDOORN

ARNHEM

(2x)

NIJMEGEN

‘S-HERTOGENBOSCH

BREDA

TILBURG

EINDHOVEN

WEERT

ROERMOND

Turn static files into dynamic content formats.

Create a flipbook