Skip to main content

Arksteestraat 3, Nijmegen

Page 1


HuizenHendriks van

Hartje centrum

Privé stadstuin

Duurzaam

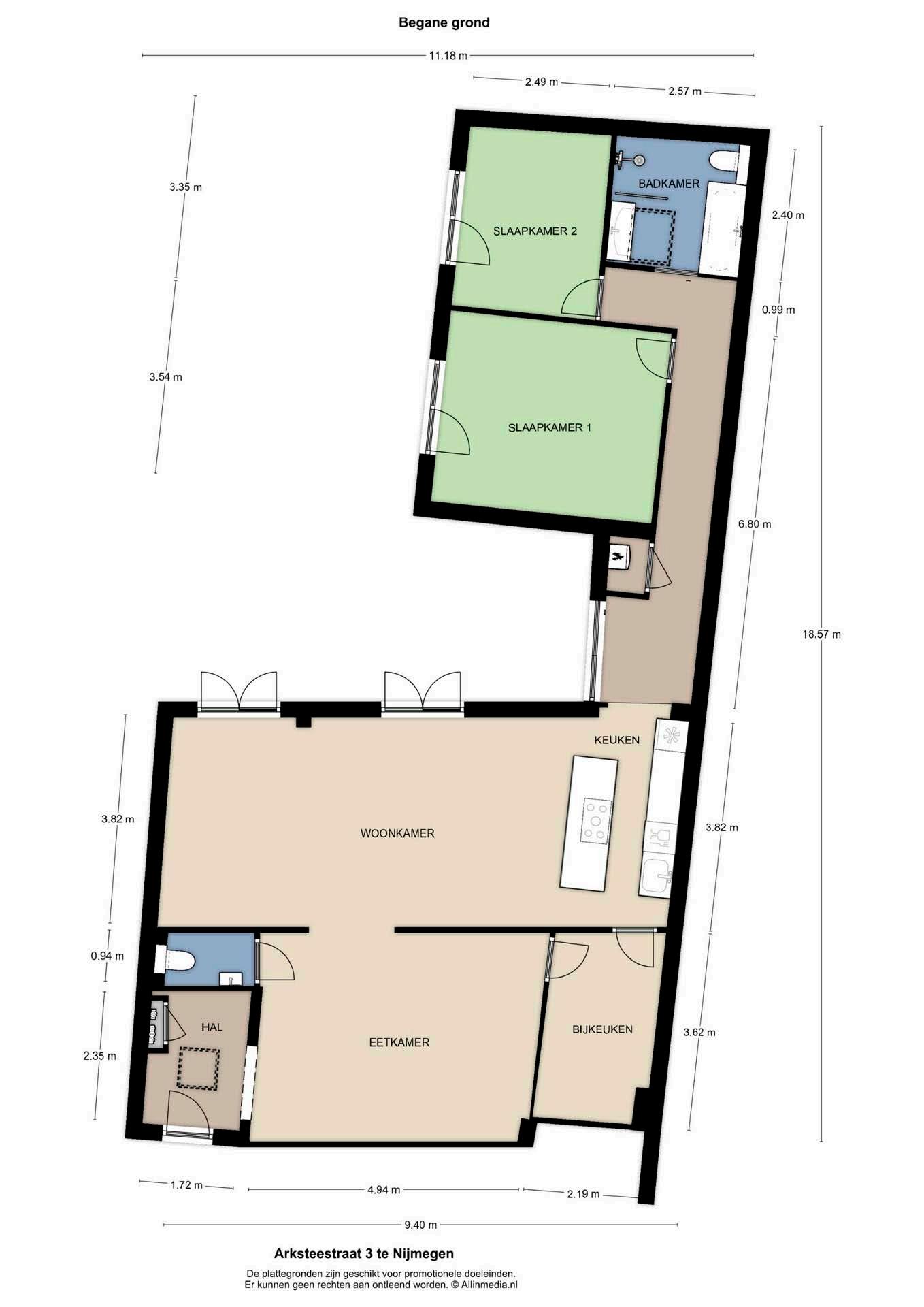
Soort benedenwoning

Kamers 3

Woonoppervlakte 113 m²

Inhoud 490 m³

Bouwjaar 1887

Tuin achtertuin

Garage geen garage

Verwarming c.v.-ketel, vloerverwarming geheel

Isolatie dakisolatie, muurisolatie, hr-glas

Energielabel A

De in deze brochure getoonde informatie wordt door Hendriks makelaardij met zorg samengesteld, doch voor de juistheid en volledigheid daarvan kan niet worden ingestaan en kunnen hieraan geen rechten worden ontleend. Spel- en typefouten voorbehouden. De plattegronden zijn geproduceerd voor promotionele doeleinden en ter indicatie. Er kunnen geen rechten aan worden ontleend. Maten zijn niet eigenhandig opgemeten. Indien er twijfel bestaat over de accuratie van de gegevens aangaande deze brochure, is de geïnteresseerde zelf verantwoordelijk voor het nameten van deze gegevens. Voor meer informatie wordt u doorverwezen naar www.hendriks.nl

Verkoper vertelt

Wij zijn 2 jaar geleden verliefd geworden op dit gelijkvloerse monumentale pand. De locatie, grote tuin en hoge plafonds spraken ons erg aan. Zelf zijn we woonachtig in een koopwoning in Nijmegen-Oost en kochten deze woning aan met het idee dat wij, gescheiden van elkaar, een fijne plek hadden om een toekomst op te bouwen. Met deze insteek hebben wij deze woning compleet volgens de huidige normen en comfortwensen laten renoveren, zoals een energielabel A en vloerverwarming in de gehele woning. Hierbij hebben we de karakteristieke elementen van het huis zo veel mogelijk in stand gelaten.

Wat deze plek bijzonder maakt is de centrale ligging met alle voorzieningen, zoals het centraal station, op loopafstand. Desondanks vormt de tuin op het zuidwesten een fijne plek om je in terug te trekken en tot rust te komen. Daarnaast zorgt een benedenwoning

voor extra woongenot, nu geen gebruik van trap of lift nodig is. Deze combinatie maakt de woning in onze optiek uniek.

In de tussentijd heeft een van ons de liefde van zijn leven gevonden aan de andere kant van het land en moet hierdoor Nijmegen helaas verlaten. Om daar een nieuw onderkomen te kunnen kopen, hebben we moeten besluiten deze woning te verkopen. We hopen dat iemand anders wél van dit huis kan gaan genieten en hier mooie herinneringen gaat maken.

huizen
Ruime en lichte woonkamer

het stadse leven

moderne luxe

Een stijlvolle benedenwoning in hartje centrum, volledig smaakvol gerenoveerd in een monumentaal pand met behoud van authentieke details. Dit is dé woning voor iedereen die houdt van de bruisende stedelijke voorzieningen, maar ook verlangt naar een thuis met een privé stadstuin. Met een energielabel A ben je ook nog eens duurzaam bezig. Ontdek de balans tussen modern comfort en historische charme.

Moderne keuken

keuken

modern en open

De moderne keuken is voorzien van de nieuwste apparatuur en is de ideale plek om culinair los te gaan. De keuken staat in open verbinding met de woonkamer, waardoor er een gezellig en open gevoel ontstaat.

Luxe badkamer

badkamer fraai afgewerkt

De badkamer is fraai afgewerkt, met een ruime regendouche, toilet, bad en een stijlvol dubbel wastafelmeubel.

Privé stadstuin

tuin

gelegen op het zuid-westen

Vanuit de woonkamer heb je toegang tot de tuin. Deze tuin biedt een rustige plek waar je kunt ontspannen en genieten van de buitenlucht, midden in de stad. Het is een perfecte plek voor zomerse barbecues, tuinfeestjes of gewoon om even tot rust te komen na een drukke dag.

Master bedroom

twee slaapkamers

voldoende ruimte

Met twee ruime slaapkamers biedt deze woning genoeg plek. Of je nu een logeerkamer, een thuiskantoor of een kleedkamer nodig hebt, de mogelijkheden zijn eindeloos. De badkamer is voorzien van een bad, ruime inloopdouche, toilet en een wastafel met verlichte spiegel. Het dakraam in de badkamer zorgt voor een prachtige natuurlijke lichtinval.

De open vide betreft geen officiële leefruimte, maar is een klein extraatje voor de woning en kan gebruikt worden als lounge- of opslagruimte.

Nijmegen

De vestingstad Nijmegen, schitterend gelegen aan de rivier de Waal, ligt tussen heuvels en bossen. In de stad zijn nog veel kenmerken van de Romeinse tijd terug te vinden, zoals Romeinse thermen en tempels. Aan het eind van de 19e eeuw ontwikkelde Nijmegen zich als een prachtige woonstad. De brede singels en statige huizen van de St.-Annastraat, de Van Schaeck Mathonsingel en de Oranjesingel stralen nog steeds de schoonheid en de grandeur uit van de 19e eeuw.

Het centrum van Nijmegen heeft recentelijk een nieuw, aantrekkelijker gezicht gekregen. Met een uitnodigende openbare ruimte, gezellige winkelstraten, veel groen en een gevarieerd cultureel aanbod.

heerlijk wonen in Nijmegen
noorden kadastrale kaart

HEERHUGOWAARD

ALKMAAR LANDSMEER HOORN

Lokaal makelaarschap

Wij geloven sterk in lokaal makelaarschap. Kennis van de buurt, de omgeving en de daarbij behorende ontwikkeling van de huizenprijzen zijn onmisbaar om voor jou het maximale resultaat te boeken.

Met Hendriks Makelaardij kies je voor:

• makelaars die al jarenlang verbonden zijn met de regio

• kennis van de lokale woningmarkt

• een verkoopplan afgestemd op jouw woning

• maximale exposure van je huis

• bezichtigingen ook in het weekend

• netwerk met honderden woningzoekers

Verkoop je je huis met Hendriks dan ben je met de eigen app 24/7 op de hoogte van het verkoopproces.

Bezichtigingsverzoeken bereiken je direct en beantwoord je snel en discreet op het moment dat het jou uitkomt.

Ook je huis verkopen? Onze makelaars komen graag en vrijblijvend bij je langs. We maken dan direct een gratis waardebepaling. Hendriks Makelaardij werkt op basis van no cure no pay. En betalen doe je pas bij verkoop.

Sint Canisiussingel 27 024 - 381 82 50 nijmegen@hendriks.nl www.hendriks.nl

PURMEREND ZAANDAM

(2x)

A’DAM WEST

HOOFDDORP HAARLEM

LEIDEN

MONNICKENDAM

A’DAM NOORD

AMSTERDAM

AMSTELVEEN

VLEUTEN DE MEERN

ALMERE

BUSSUM

HILVERSUM

UTRECHT MAARSSEN

AMERSFOORT

(2x) (2x)

NIEUWEGEIN WIJK BIJ DUURSTEDE

MEPPEL

ZWOLLE

APELDOORN

ARNHEM

(2x)

NIJMEGEN

‘S-HERTOGENBOSCH

BREDA

TILBURG

EINDHOVEN

WEERT

ROERMOND

Turn static files into dynamic content formats.

Create a flipbook