PORTAFOLIO REPRE V

Page 1

PORTAFOLIO ARQUITECTURA

Indice

1

B i o g r a f í a

2 V i v i e n d a m u l t i f a m i l i a r

3 H o t e l

P O R T A - F O L I O

Biografía:

H E N D R I K V I L C H E Z Estudiante de arquitectura

C O N T A C T O S

976911270 hvilchezp@alumno.unsm.edu.pe

Soy un arquitecto en formación, aplicado, autodicta y sobre todo con un buen desarrollo en el trabajo conjunto. Con conocimientos en softwares de planimetria 2d, BIM "Revit"que aprendí en este ciclo y modelado 3d. modelado de rendering. paqueteria de office y programas de edición de fotografia y video.

PRIMARIA:

I.E "ANIBAL SEGUNDO DEL AGUILA GUEVARA" - SAPOSOA

SECUNDARIA:

I.E " ANTONIO RAYMONDI" -

SAPOSOA

UNIVERSIDAD:

"UNIVERSIDAD NACIONAL DE SAN MARTIN" - TARAPOTO (IV CICLO)

Hendrik Vilchez

Escuchar música

Pasión por las motos y los autos. Disfrutar con los amigos

Administración de los negocios familiares.

Emprendimiento "HenJo Construcciones"

@hendrikjo_13

H O B B I E S P E R F I L E S C O L A R I D A D E X P . L A B O R A L

Vivienda Multifamiliar:

Proyecto des a rrolla do en el cu rs o de Repres enta ci ón Arqu i tectoni v a V, con la fi na li da d de a prender el u s o de los progra ma s B I M di ch o fu e el ca s o qu e u ti li za mos el progra ma REVI T

As í mi s mo completa mos el tra ba jo con otros progra ma s como lo s on

LU MI O y PHO TO SHO P

N O M B R E D E L P R O Y E C T O : " V I V I E N D A M U L T I F A M I L I A R V I L C H E Z "
Planimetría general

Zonificación

Zonificación

En la primera planta contamos con 4 viviendas, todas cuentan con un dormitorio principal, sala,comedor, cocina, lavanderia, SS.HH y terraza

De igual manera en la segunda planta contamos con 4 viviendas, todas cuentan con un dormitorio principal, sala,comedor, cocina, lavanderia, SS.HH, terraza y balcón

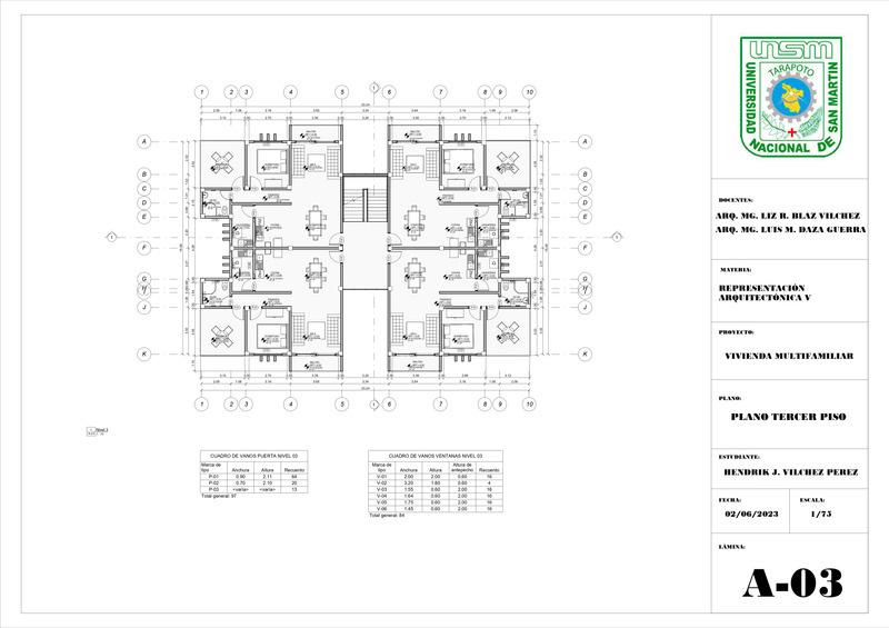
De la misma forma en la tercera planta contamos con 4 viviendas, todas cuentan con un dormitorio principal, sala,comedor, cocina, lavanderia, SS.HH, terraza y balcón

De igual manera en la cuarta planta contamos con 4 viviendas, todas cuentan con un dormitorio principal, sala,comedor, cocina, lavanderia, SS.HH, terraza y balcón

El proyecto cuenta con una amplia azotea así mismo dos baños, y dos cisternas

Se diferencia en dos grandes cubiertas inclinadas separadas por un techo plano en medio, para brindar ese toque arquitectonico

En este corte se observa la lavandería, cocina, comedor, escalera y azotea

En este corte se aprecia la escalera y el pasadizo

Elevación lateral

Elevación frontal

Vistas Exteriores

Vistas interiores

Diagramación

RENDERS:

RENDERS:

RENDERS:

PHOTOSHOP:

PHOTOSHOP:

Hotel:

P r o y e c t o d e s a r r o l l a d o e n e l c u r s o d e T a l l e r d e d i s e ñ o V e n l a c u a l d e s a r r o l l a m o s u n h o t e l c u m p l i e n d o l o s d i v e r s o s r e q u i s i t o s t a n t o n o r m a t i v o s c o m o a r q u i t e c t o t i c o s .

E n e s t e c a s o U t i l i z a m o s e l p r o g r a m a d e a u t o c a d , r e v i t , L u m i o n y P h o t o s h o p

Se desarrollo el primer nivel con los espacios, auditorio recepción, habitaciones, servicio, cocina, comedor, administración y piscina

En el segundo nivel contamos con las demás habitacios y una zona de descanso

ELEVACIONES

CORTES

RENDERS:

RENDERS:

PHOTOSHOP:

PHOTOSHOP:

Turn static files into dynamic content formats.

Create a flipbook
Issuu converts static files into: digital portfolios, online yearbooks, online catalogs, digital photo albums and more. Sign up and create your flipbook.