
Taiwo | Sample Portfolio | 2025 helen . taiwo@outlook.com | www.linkedin.com/in/helentaiwo




DESIGN FOR DISPLACEMENT
THE BURNSIDE COMMONS
University: MArch, 2023 - 2024
Location: Aberfeldy, Scotland, UK
Typology: Residential, Mixed-use
In light of the current war in Ukraine, The Burnside Commons located in Aberfeldy, Scotland seeks to rebuild and integrate the lives of those who have been displaced from their homes.
An interest in Aberfeldy grew following the BBC Scotland People of the Year award given to the town for its efforts in housing many Ukrainians following the war in Ukraine in 2022. The Burnside Commons project focuses on community-led engagement as a key role in encouraging selfsufficiency and rebuilding the lives of Ukrainian resettlers in Aberfeldy, Scotland.






Steel ribbed cladding reused from the existing storage space for forest hydraulics. Existing Concrete
An original form which previously served as an office space for the forest hydraulic service team.




A sustainable method with onsite assembly. This choice of material provides a feeling of warmth. A plywood finish has been applied internally.

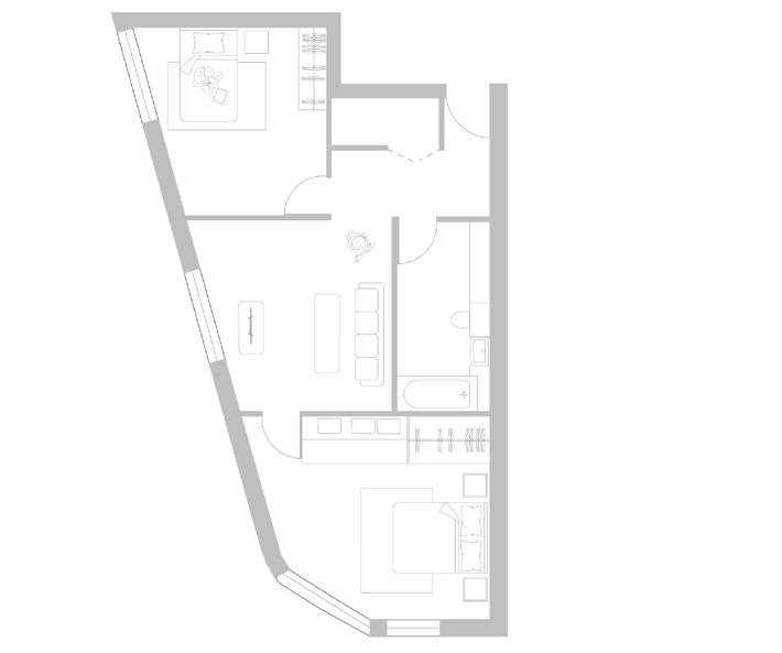
Courtyard
Flexible Workspace 5. Residential Lounge
Kid’s Play Area
One-to-One Sessions















TID (Trauma Informed Design)
Trauma-Informed-Design strategies focus on wellbeing through construction and materiality, promoting healing and resilience.






RETROFIT & RENEWAL
University: BArch, 2022 - 2023
Location: Duncan of Jordanstone College of Art, Scotland, UK
Typology: Education
Through a retrofit design proposal, can there be a new design solution for The Crawford Building?
The Crawford building is rich in history and is a prominent figure for art institutions in Scotland. With a rich history, The Crawford Building faced much opposition from external circumstances, thus posing a question for this project: ‘What could’ve been?’ - To what extent could The Crawford Building have reached its full potential as an independent art institution?
Level One: Reworked Internal Layout

Five: New Extension



ILLUSTRATIONS
Year: 2020 - Present
Illustrations create memorable visuals. During my time in South Korea, I felt inspired by the culture and new sights I explored. My expression of this is shown through various styles of illustrations and this has continued through to the present.
RIBA Eye Line Entry 2023:
Nostalgia Avenue
‘This nighttime scene presents a cosy yet solemn perspective of the many changes that occur in the life of a young female in her twenties and how architecture plays a role in fabricating nostalgic experiences.
“The place is alive at night, yet only I dwell there...My space, my home.” [Figure 2]






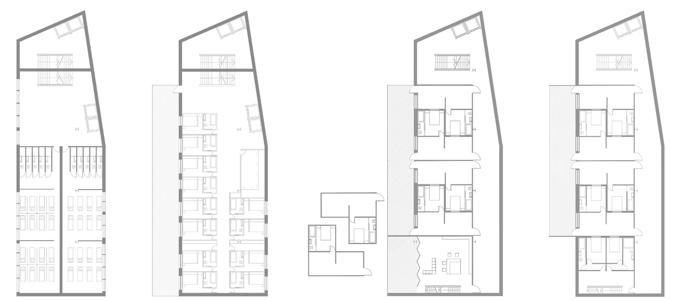
HIDDEN HOMELESS:
COMPETITION ENTRY
Year: 2018
Location: Former York Road Station, London, UK
Typology: Residential, Mixed-use
The Hidden Homeless project aimed to challenge architects to design homes suitable for young people aged 16-25 in London who experience homelessness. The competition required a retrofit approach to the chosen site, a former tube station located in South East London.
Hidden Homeless
“Those who experience hidden homelessness are hidden from statistics and services...This means staying with family and friends, sofa surfing and living in unsuitable housing situations”.
[ref:crisis.org.uk]







helen . taiwo@outlook.com