Hårstad Minde T3 Vedlegg

Page 1


Vedlegg

Komplett kjøperinformasjon ved kjøp av prosjektert bolig i prosjektet:

Hårstad Minde byggetrinn 3, hus C

Dato: 08.07.2025

INNEHOLDER

DATERT:

Leveransebeskrivelse 13.02.2024

Romskjema 08.07.2025

Foreløpig utomhusplan 23.01.2024

Organisasjonsplan 23.02.2024

Leilighetstyper 07.03.2024

Etasjeplaner boliger 14.02.2025/26.05.2025

Kjellerplan Udatert Fasader 12.03.2025

Kjøkkentegninger 05.03.2024

Arealoppgave 27.05.2025

Kartutsnitt med reguleringsbestemmelser 12.01.2018

Budsjett og fordeling felleskostnader for borettslaget 06.06.2025

Dato: 21.11.2025 21.11.2025

Budsjett p-kjeller 21.05.2025

Budsjett fellesarealer/velforening 21.05.2025

Forslag til vedtekter for borettslaget 04.06.2025

Forslag til vedtekter for p-kjeller 05.06.2025

Forslag til vedtekter for velforening 05.06.2025

Ladeløsning el-bil fra Zaptec

Kjøpetilbud

Finansieringsbevis

Ikke datert

Ikke datert

Ikke datert

Hårstad

Minde

Leveransebeskrivelse bygg C, felt B2

13.02.2024

Oppdragsgiver: Hårstad Minde AS

Prosjekt: Hårstad Minde B2

Sak: Leveransebeskrivelse boliger

Innhold

1. Generell orientering

2. Generelle forutsetninger

3. Leveransestandard fellesanlegg

4. Leveransestandard boliger

Oppdragsgiver: Hårstad Minde AS Prosjekt: Hårstad Minde B2

Sak: Leveransebeskrivelse boliger

1. GENERELL ORIENTERING

1.1 Utbygger

Hårstad Minde AS Postboks 6192 Torgarden 7435 Trondheim

Utbygger representeres ved :

Byggherrerådgiveren AS Falkenborgveien 9 7044 Trondheim www.bhr1.no

Kontaktperson: Steinar Oksvold, epost: so@bhr1.no tlf 91 51 88 74

1.2 Eiendomsmegler:

Heimdal Eiendomsmegling AS PB 5778 Torgarden 7437 Trondheim

1.3 Totalentrepriseentreprenør

B&B Entreprenør AS Moøya 32 7290 Støren

1.4 Prosjektets omfang

Prosjektet omfatter 39 leiligheter fordelt på 4 etasjer. Det er felles parkeringskjeller, bod-anlegg og tekniske rom under bakken for hele feltet, totalt 3 blokker. Feltet vil bli bygd ut som 3 byggetrinn , hvor parkeringskjeller og blokk C utgjør byggetrinn 1.

Leveransebeskrivelsen er inndelt som følger

▪ Generelle leveranseforutsetninger

▪ Fellesanlegg/arealer

Oppdragsgiver: Hårstad Minde AS

Prosjekt: Hårstad Minde B2

Sak: Leveransebeskrivelse boliger

2.

GENERELLE FORUTSETNINGER

Leveransebeskrivelsen beskriver hvilken teknisk standard som inngår i leveransen og omfatter komplett leveranse opp til beskrevet kvalitet.

Leveransen utføres i henhold til gjeldende forskrifter og standarder

- Prosjektet gjennomføres med teknisk standard iht kravene i gjeldende teknisk forskrift (TEK17)

- Rammetillatelse foreligger etter gjeldende plan- og bygningslov

- Toleranser på utført arbeid skal tilfredsstille normale toleranseklasser i Norsk Standard NS 3420

- Kontrakt mellom utbygger og kjøper av bolig baseres på Bustadoppføringslova

- Kontrakt mellom utbygger og totalentreprenør bygger på Norsk Standard NS8407 og reklamasjonsrettigheter iht. Bustadoppføringslova

Bilder og illustrasjoner i salgsprospekt er av illustrativ karakter Tekst i leveransebeskrivelsen vil gjelde foran illustrasjoner.

Endringer kan forekomme

Utbyggers rett til å foreta endringer:

- Utbygger betinger seg retten til å foreta mindre endringer i materialvalg og/eller løsninger på konstruksjoner e.l. som er nødvendig etter hvert som prosjektet detalj -prosjekteres. Disse endringer skal ikke redusere byggets kvalitet og gir ikke rett til prisjustering . Generell uro på verdensmarkedet kan også føre til endringer i materialvalg.

- Det presiseres også at salg skjer på grunnlag av ramme søknadstegninger og at detaljprosjektering ikke er utført

- Dersom utbygger er nødt til å gjennomføre vesentlige endringer ut over forannevnte bestemmelser, plikter utbygger å gi kjøper beskjed

Kundens rett til å foreta endringer:

- Kunde kan ikke trekke ut leveranser for å utføre selv

- Eventuelt egne kompletterende leveranser ut over (i tillegg til) denne beskrivelse må utføres ette r at overtakelse er funnet sted

- Kunde kan ikke endre romstruktur på tegninger

- Det blir gjennomført egne kundemøter hvor prosess for evt. endringer/tilvalg blir besluttet Kunde må gjennomføre beslutninger i tråd med oppsatt fremdrift for evt. endringer. Blir ikke svarfrister overholdt så vil prosess på bygget foregå iht den generelle kundebesk rivelsen.

- Leiligheter som kjøpes etter at kundemøtene er gjennomført leveres som standard /uten rett til å gjøre endringer eller tilvalg

Oppdragsgiver: Hårstad Minde AS

Prosjekt: Hårstad Minde B2

Sak: Leveransebeskrivelse boliger

Prosess for tilvalg og kundeendringer:

Kundene vil bli innkalt til tilvalgsmøte Her vil detaljene i leveransene bli gjennomgått og kundens påvirkningsmuligheter for valg i sin egen leilighet vil bli gjennomgått. Dette gjelder forhold både innenfor leveransebeskrivelsen og evt muligheter og prosess for endringer av kvaliteter/utførelse .

Oppsatte tidsfrister må holdes, eventuelle overskridelser av frister vil medføre at leiligheten blir levert slik den er spesifisert i denne beskrivelse, på tegninger, iht innredningstegninger/spe sifikasjon

Dette for å kunne gjennomføre prosjektet iht fremdriftsplan for prosjektering og bygging.

Tilvalgsfrister vil bli oppgitt senest 2 uker etter sletting av byggherrens forbehold.

Følgende tilvalg kan gjøres mot eventuelt tillegg i pris :

- Kjøkken inkl hvitevarer. Valg av fronter, benkeplater, innmat, hvitevarer etc innenfor presentert pakkeløsning hos leverandør

- Bad, innenfor presentert pakkeløsning fra leverandør

- Malingsfarge på vegger innenfor presentert sortiment

- Endre parkett-type innenfor presentert sortiment

- Ekstra systemnøkler

- Elbillader tilknyttet P-plass i kjeller

Ved tilvalg vil det tilkomme kostnader knyttet til administrasjon.

Muligheter for kundes endring mot eventuelt tillegg i pris :

Prosess vil bli gitt nærmere men i hovedsak dreier det seg om følgende muligheter:

- Elektro; egen gjennomgang både ift stikk, punkter, styring, type lamper mv. Antall og plassering av uttak for strøm og data/TV (i utgangstype ønskes lik plassering i lik type leilighet mhp å unngå avvik i prosjektet)

- Stikk -kontakt i bod kjeller på eget abonnement

- Rørlegger; Armaturtyper kjøkken

Ved endringer vil det tilkomme kostnader knyttet til administrasjon.

Hva kunden absolutt ikke kan endre:

- Plassering av vegger, dører, vinduer

- Plassering av sluk/avløp/toaletter/dusjer

- Plassering av sterk- og svakstrøms skap

- Plassering av fordelingsskap for forbruks - og vannbåren varme

- Plassering av ventilasjonsskap

Oppdragsgiver: Hårstad Minde AS

Prosjekt: Hårstad Minde B2

Sak: Leveransebeskrivelse boliger

3.

LEVERANSESTANDARD FELLESANLEGG

Fellesanlegg defineres som alle arealer som ikke ligger innenfor leilighetenes eksklusive arealer, bl.a.:

- Inngangsparti med postkasse og porttelefonanlegg

- Felles korridorer med trapperom og heis

- Utvendig sykkelparkering

- Fellesareal i parkeringskjeller

- Bod-anlegg

- Utendørs fellesarealer

- Fasader og tak

- Svalganger

I de etterfølgende kapitler beskrives leveransestandard i grove trekk.

3.1 Inngang/trapperom

- Inngangsparti i glass og aluminium. Dør leveres med dørpumpe for åpning fra rullestolbrukere (nøkkelboks på utsiden, kn app i riktig høyde på innsiden)

- Leveres med porttelefonanlegg på hoveddør og med ringeklokkeanlegg for fjernåpning fra den enkelte leilighet

- Låssylinder til ytterdør som er tilpasset slik at den enkelte leilighets nøkkel passer

- Det leveres låsbare typegodkjente innvendige postkassestativer med postkasser for samtlige boliger , nøkkel tilpasset systemet

- På golvene innenfor inngang legges det flis med akseptabel sklisikring

- I hovedtrapp opp gjennom bygget legges det flis med markerte trappeneser

- Malte flater på himling

- Trapperekkverk leveres i malt stål

- Inngang og hovedtrapp leveres med malte betongvegger/malte gipsvegger og tak samt belysning

- Lys i hovedinngang styres til fotocellen for svalgangene + bevegel sesføler

- Oppvarming via panelovner

- En dobbel stikk for uttak til drift i inngangsparti samt en dobbel i hver etasje i hovedtrapp

- All strøm går over felles måler for fellesarealer for borettslaget

- Tekniske føringer kan leveres synlig

3.2 Sykkelparkering

Sykkelparkering iht. veileder til Trondheim kommune.

3.3 Nøkkelsystem

Hver leilighet får 3 stk system nøkler som kan benyttes til egen inngang, boder, postkasseanlegg og hovedinngangsdører.

Oppdragsgiver: Hårstad Minde AS

Prosjekt: Hårstad Minde B2

Sak: Leveransebeskrivelse boliger

3.4 Bilparkering

- Etableres i felles kjeller for feltet

- Parkeringsplassene er 2,5 meter brede og 5 meter lange

- Antall HC plasser iht. krav

- Fast dekke i golv, med stripemerking mellom parkeringslommene

- Nødvendig belysning styrt over bevegelsesfølere, plassert i forhold til adkomstene til kjelleren

- Automatisk leddheiseport (kvalitet: Lakkert Industriport), levert med én portåpner pr. leilighet samt nøkkelboks i system på utsiden for åpning fra gående eller syklende . På innsiden av port medtas bryter for åpning av port for gående eller syklende

- Nødvendig ventilasjon iht offentlige krav, styring over CO 2-føler

- All strøm går over felles måler for fellesarealer for borettslaget

- Det etableres felles grunninstallasjon for elbillading via Zaptec eller lignende , hvor kunder kan kjøpe elbillader som en del av tilvalgsprosessen.

3.5 Fasader

Fasader vil bestå av forskjellige elementer/materialer etter arkitektens anbefaling

Dimensjonert etter gjeldende energikrav.

Innvendig vegg fuget og tettet mot tilstøtende vegger/konstruksjoner.

For boligene leveres fabrikkmalte trevinduer av anerkjent fabrikat

3.6 Tak

Tak leveres som varme, flate tak – innvendige taknedløp.

Tekkes med takmembran fra anerkjent produsent.

3.7 Boder (sportsbod)

Boder blir liggende i felles bodanlegg i kjeller

Innenfor bod-området støvbindes betongvegger og himling hvit. Belysning i gangsoner styrt av bevegelsesfølger.

Nettingskillevegger i boder på høyde 2,20 m.

Alle boddører utrustes med lås med lik sylinder som i leilighet.

Lys og stikk for uttak for drift går også her på fellesanlegget.

Det medtas 1 stk dobbelt stikk-kontakt for uttak for drift.

Gulv i impregnert betong

3.8 Heis

Heistype leveres fra anerkjent lever andør iht. TEK 17.

Rullestoltilpasset heiskupé med snuradius for rullestol. Skal tilfredsstille minimumskrav til kupéstørrelse i TEK 17

3.10 Utendørs

Det blir opparbeidet utomhusområder iht. prosjektert utomhusplan. Nedkast avfall til kommunalt avfallssuganlegg.

Oppdragsgiver: Hårstad Minde AS Prosjekt: Hårstad Minde B2

Sak: Leveransebeskrivelse boliger

3.11

Tekniske rom

Felles for bygningsmessige arbeider:

- Vegger og tak leveres hvitmalt. Golv i impregnert betong Medtatt i omfang som angitt i ytelsesbeskrivelsen

- Belysning styrt av bevegelsesføler

- En dobbel stikk for uttak av strøm ved inngangsdør

Tekniske anlegg som skal inn, fremgår av beskrivelser for øvrig.

Oppdragsgiver: Hårstad Minde AS

Prosjekt: Hårstad Minde B2

Sak: Leveransebeskrivelse boliger

4. LEVERANSESTANDARD BOLIGER

Bygningsdel Beskrivelse

22 Konstruksjoner Konstruksjonen vil bli utført iht krav og forskrifter for denne type bygg.

23 Yttervegger Yttervegger utføres med isolert bindingsverk, utvendig vindtetting og luftet kledning med tre-panel. Liggende malt eller impregnert kledning. Sementplater som kledning i svalgang for å tilfredsstille brann- og rømningskrav.

Innvendige overflater i leiligheter sparkles og males ihht malerklasse K2

Vinduer og dører i ytterveggene utføres i henhold til forskriftenes krav. Vinduer får åpningsfunksjon iht. krav. Karmene leveres fabrikkmalt i samme farge utvendig og innvendig, standard farge. Innvendig listverk leveres i fabrikkmalt utførelse med synlige maskinstifthoder.

24 Innervegger Skillevegger mellom leilighetene utføres iht krav og forskrift. Skillevegger inne i leilighetene sparkles og males ihht malerklasse K2

På baderom belegges veggene med keramisk flis.

Innvendige dører leveres med malt plan overflate og fabrikkmalt belistning med synlige maskinstifthoder.

Inngangsdører til leiligheter leveres som standard produkt, malt dør og karm, karmbredde = 1,0 m. Foringer og lister leveres malt i farge tilpasset døren.

25 Dekker

Dekker:

Dekkene mellom etasjeskillene leveres som betong og er utført iht krav og forskrifter med nødvendig trinnlyddemping og parkett, type eik fler-stavs. Fotlist mot vegg lever es som trelist med synlige maskinstifthoder/maskinskruehoder. På baderom og i entre er det keramisk flis.

Himling:

Himling (takene) er generelt utført med gipsplater eller betongelementer. Delvis nedforet for fremføring av tekniske installasjoner. Overflatene sparkles og males På baderom er det hvite og glatte himlinger. Synlige elementskjøter hvor det er betonghimling Sparkling og maling av V-fuger på betonghimling kan bestilles som tilvalg, men entreprenø r kan ikke garantere for at denne vil sprekke over tid.

Takhøyden i nedforet areal vil avvike i forhold til normal takhøyde Normal takhøyde vil være ca 2,4 meter.

26 Yttertak Yttertaket leveres isolert og forskriftsmessig tekket med takpapp/folie. Gesimser leveres med beslag.

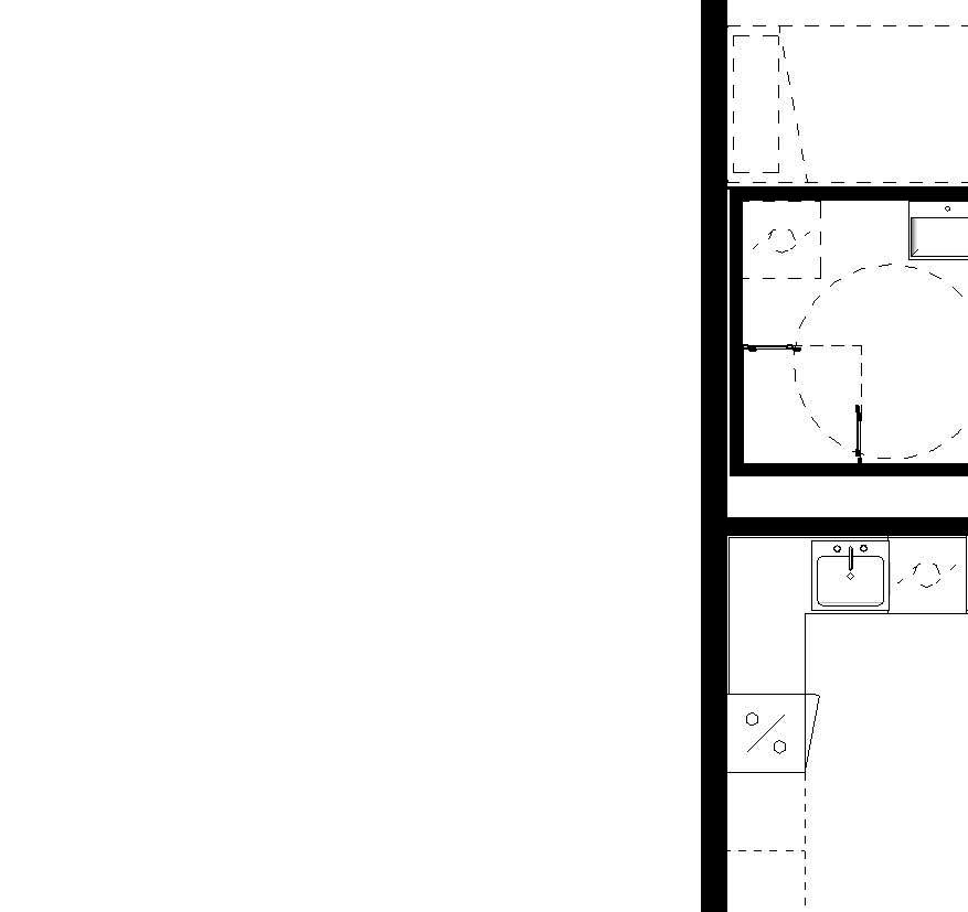
28.1 Faste innredninger Innredning bad:

- Baderoms-innredning kommer fra anerkjent leverandør, jfr leverandørens tegning

- Kvalitet og størrelser iht egne spesifikasjoner fra leverandør

- Det leveres speil over vask som en del av innredningen

- Lys i/ved speil

- Stikkontakt ved speil

- Det leveres ikke «våtroms -garnityr» i form av toalettbørster, toalettr ullholder, såpeskål i dusj o.l.

Oppdragsgiver: Hårstad Minde AS

Prosjekt: Hårstad Minde B2

Sak: Leveransebeskrivelse boliger

- Vegghengt toalett

- Vegghengte dusjvegger i klart glass

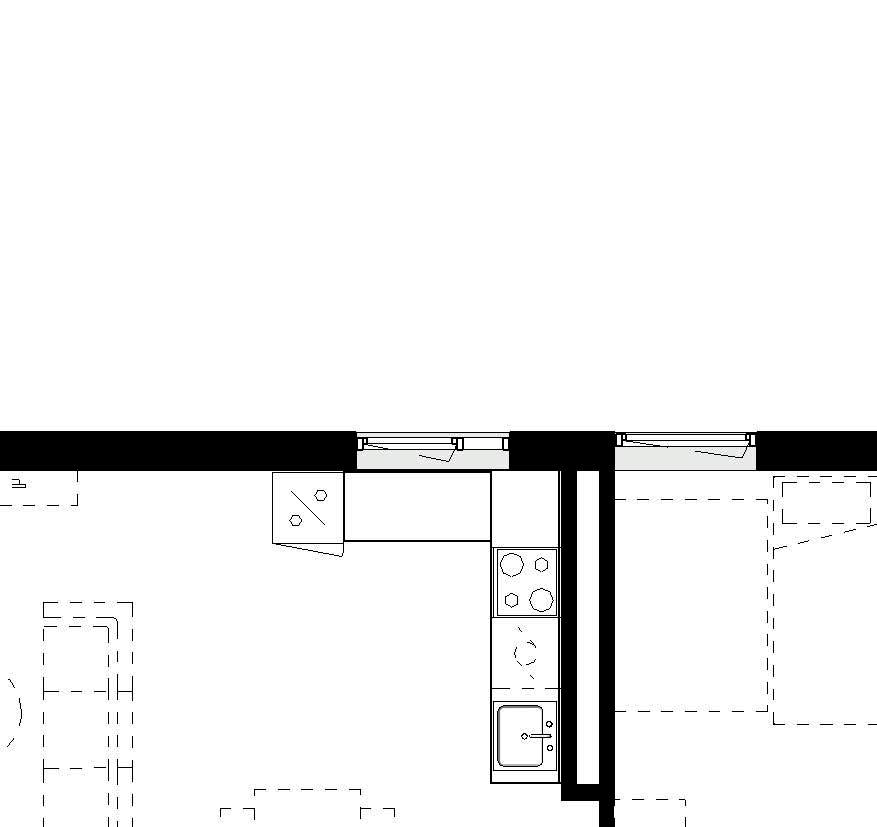
Kjøkkeninnredning:

- Kjøkkeninnredning fra anerkjent leverandør, jfr leverandørens tegning.

- Kvalitet og størrelser iht egne spesifikasjoner fra leverandør.

- Benkeplate i høytrykkslaminat

- Ventilator fra anerkjent leverandør

- Integrerte hvitevarer fra Electrolux eller tilsvarende

o Kjøl/frys (kombiskap)

o Oppvaskmaskin

o Stekeovn

o Induksjon platetopp

Det inngår ingen innredninger ut over forannevnte, selv om det eksempelvis kan være vist entreinnredning, soverom- innredning, møbler etc. på salgstegningene . Det er mulig å bestille garderober og skap mot et tillegg i pris.

28.2 Private terrasser/balkonger

Generelt:

- Leveres med tremmegolv

- Avrenning til sluk og samlet i nedløpsrør

- Rekkverk iht krav. Utføres med stolper og håndløper i naturbestandig materiale

Fyllinger i laminert glass festet i stolpene. Mellom naboterrasser/balkonger etableres det et felt tett skillevegg fra yttervegg

29 Div bygning For å få frem tekniske føringer kan det være aktuelt å etablere kass er/skjørt på vegg/himling.

Oppdragsgiver: Hårstad Minde AS

Prosjekt: Hårstad Minde B2

Sak: Leveransebeskrivelse boliger

31 Sanitær Alle vannrør fremføres skjult i rør i rør – system. Varmtvann distribueres ut ifra sentral VV -bereder satt opp mot fjernvarmen og sirkulasjonsledninger på alt sprede -nett i bygget. Det installeres fjernavleste vannmålere i hver leilighet for varmt- og kaldtvann.

For hvert bad medtas:

- Opplegg av vann med stengekran og avløpsstuss for vaskemaskin (evt. tørketrommel er tenkt plassert på topp av vaskemaskin)

- Veggmontert WC med propylen ramme og lokk, hvit trykk -knapp innfelt i vegg

- Golvsluk i dusjnisje med blank slukrist montert i flis

- Termostatstyrt dusjbatteri i krom fra anerkjent leverandør

- Dusjsett bestående av dusjhode og bevegelig dusjslange montert på vertikal glidestang.

- Ettgreps armatur med lukkeventil på servant

- Levering og montering av dusjvegger av herdet glass, 90x90 cm.

NB! Det inngår ikke levering av såpeholdere i dusj, do -børster eller dorullholdere.

For hvert kjøkken medtas:

- Tilkopling og montering av avløp til vaskekum inkl. uttak for avløp oppvaskmaskin

- Ettgreps armatur for vaskekum med uttak for op pvaskmaskin inkl. stengeventil

32 Varme Prosjektet tilknyttes fjernvarme og vil få vannbåren varme.

På stue/kjøkken leveres radiator eller viftekonvektor. Det vil bli enten elektrisk gulvvarme på bad eller vannbåren gulvvarme.

Det installeres fjernavlest energimåler for vannbåren varme.

33 Sprinkler Bygget sprinkles iht forskriftskrav med synlige sprinklerhoder og skjulte rørføringer.

36 Luftbehandling Det etableres eget balansert ventilasjonssystem for hver leilighet med varmegjenvinner.

Til-luft til alle tørre rom.

Avtrekk-luft fra kjøkkenvifte og baderom

Kjøkkenventilator med trykkvakt.

Friskluftinntak til ventilasjons -aggregat gjennom yttervegg

Avkast fra ventilasjons -aggregat på yttervegg.

Leilighetens utforming bestemmer ventilasjonsaggregatets p lassering.

Avtrekk fra kjøkkenvifter medtas.

Avtrekket styres lokalt.

Inntak/avkast fra yttervegger med innkassede kanaler i malt gips i rom der det ikke er nedsenket himling. Enhet med felles inntak/avkast på fasade.

41 Elektro Det leveres komplett anlegg frem til forbruk; inntak, jordfeilvarsling, fordelingsskap og egen måler. Anlegget leveres i hovedsak som skjultanlegg. Åpent anlegg vil kunne forekomme på brann og lydvegger/himlinger

Boenhetene skal forsynes med tilstrekkelige stikk -kontakter for tilkopling av lamper og annet elektrisk utstyr og i henhold til NEK 400:2014.

Strømforbruk av eget anlegg oppgjøres direkte til nettleverandør. Forbruk for fellesareal avregnes fra borettslaget fordelt etter leilighetsareal (BRA).

Leilighetene varmes generelt opp av vannbåren varme (radiatorer eller viftekonvektor) med unntak av elektriske varmekabler på bad I hver leilighet medtas eget sikringsskap, men med måler plassert i kjeller.

På bad:

- Opplegg og tilkopling av armatur

Oppdragsgiver: Hårstad Minde AS

Prosjekt: Hårstad Minde B2

Sak: Leveransebeskrivelse boliger

- Innfelt down-lights i tak tilpasset rommets størrelse . Type LED

- Bryter til lys, dimmebart

- Varmekabler eller rør innstøpt i golv med termostat/regulator/bryter montert ved lysbryter

- Dobbel stikkontakt satt bak vaskemaskin for tilkopling av vaskemaskin og tørketrommel Vaskemaskin og tørketrommel skal kunne brukes samtidig

Entre:

- Lys med egen bryter Type LED

- Antall stikk iht NEK400:2014

Kjøkkensone:

- Det medtas lys under overskap

- Opplegg til og uttak av stikk for komfyr og koketopp med på egne kurser (iht krav/belastning)

- Stikk for oppvaskmaskin plassert i skap

- Stikk for kjøleskap

- Komfyrvakt iht krav i NEK400:2014

- Antall stikk iht NEK400:2014

I stuesone:

- Opplegg for ett strømuttak ved tak over vist sofaplassering til egen dimmebar bryter

- Opplegg for ett strømuttak ved tak over vist kjøkkenbordplassering til egen dimmebar bryter

- Antall stikk iht NEK400:2014

På soverom:

- Opplegg til ett strømuttak ved tak til egen bryter

- Det leveres taklys. Synlig kabel/kanal pga brann- /lydkrav

- Antall stikk iht NEK400:2014

Tekniske anlegg/annet:

- Opplegg til ventilasjonsaggregat

- Lys på balkong/terrasse over egen bryter

- 1 dobbel stikk på balkong/terrasse

- Sikringsskap for sterkstrøm samt skap for tv/data. Fra skap tv/data og bort til tv -punkt i stue etableres nødvendig tomrørsopplegg med bokser innfelt i vegg

- Elektriske varmekabler i kjørespor nedkjøringsrampe til P -kjeller.

5 Data/Tele/ Antenne Anlegget leveres med følgende utstyr:

- Leveres med porttelefonanlegg og ringeknapp ved hver dør

- Opplegg av dobbelt uttak for data/telefon/TV, plassert på stue

- Totalentreprenør skal levere «tomrør» fra termineringspunktet og til uttak i leiligheten

- Fiber og kontakter for uttak leveres av egen leverandør. Etableringskostnad for nettselskap inngår i abonnementets grunnpakke

- Det vil bli inngått egen avtale med leverandør for fiber slik at internett og TV -signal via fiber er lagt inn ved innflytting og abonnement på grunnpakke og moderat datahastighet vil inngå i felleskostnader. Tjenestetilbudet er under stadig utvikling og selger tar forbehold om endringer fra tjenesteleverandør som kan påvirke pris. Selger tar forbehold om bindingstid på leveranse. Hver enkelt leilighet bestiller evt oppgraderinger av internett og TV, samt eventuelt IT -telefoni

Brannalarmanlegg:

- Iht forskriftskrav forberedt for direktevarsling til vaktselskap

Oppdragsgiver: Hårstad Minde AS

Prosjekt: Hårstad Minde B2

Sak: Leveransebeskrivelse boliger

6 Andre tekniske anlegg - Leilighetene leveres ikke med andre anlegg

Romskjema Hårstad Minde

39 leiligheter

Felt B2

Byggherre: Hårstad Minde AS

08.07.2025

Leveranser utføres i henhold til Teknisk Forskrift (TEK17). Der ikke annet fremgår av kontrakt, beskrivelser eller tegninger, gjelder Norsk Standard NS 3420 normalkrav til toleranser for ferdige overflater i bygninger.

Byggherre betinger seg retten til å foreta mindre endringer i materialvalg og/eller i konstruksjoner uten forhåndsvarsel. Disse endringene skal ikke redusere byggets kvalitet, og gir ikke rett til prisjustering, med mindre endringen er som følge av offentlige krav eller pålegg.

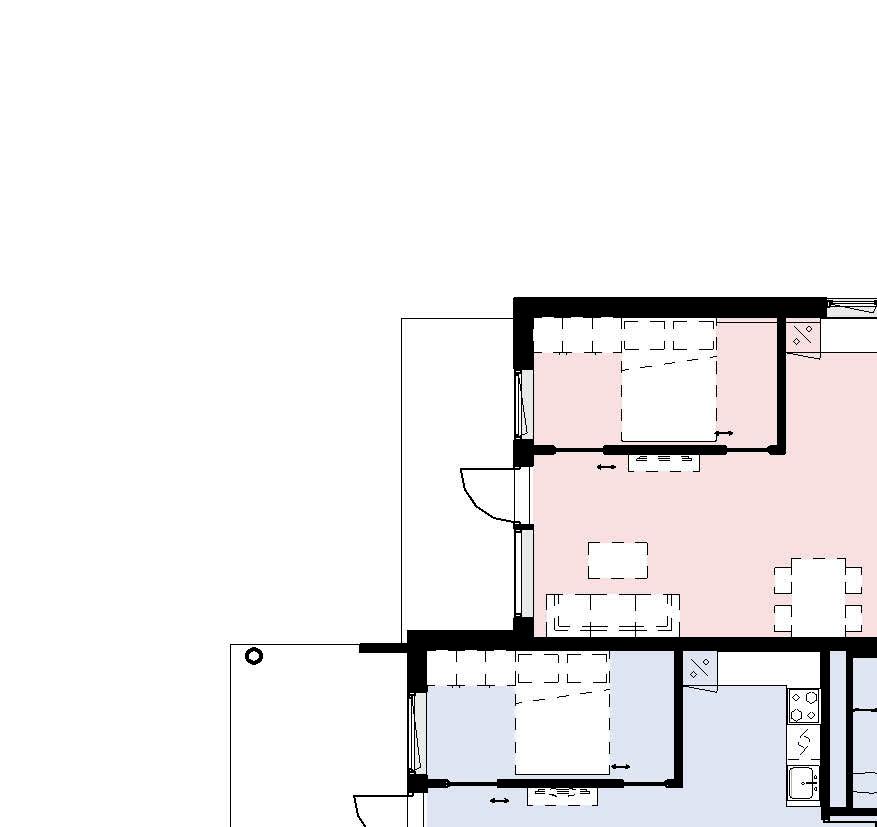
Utstyr som er vist stiplet og møbler inntegnet på illustrasjoner og salgstegninger er ikke omfattet av leveransen. Det gjøres oppmerksom på at salgstegninger er utarbeidet i prosjektutviklingsfasen og at endringer kan bli nødvendig under detaljprosjekteringen.

Tekniske anlegg og føringer blir lagt over nedforet himling, hovedsakelig i bad/vaskerom/gang/kjøkken og eller sjakt. Synlige kabler/kanaler der lyd-/brannvegger ikke kan perforeres.

Rom Gulv Innvendig vegger

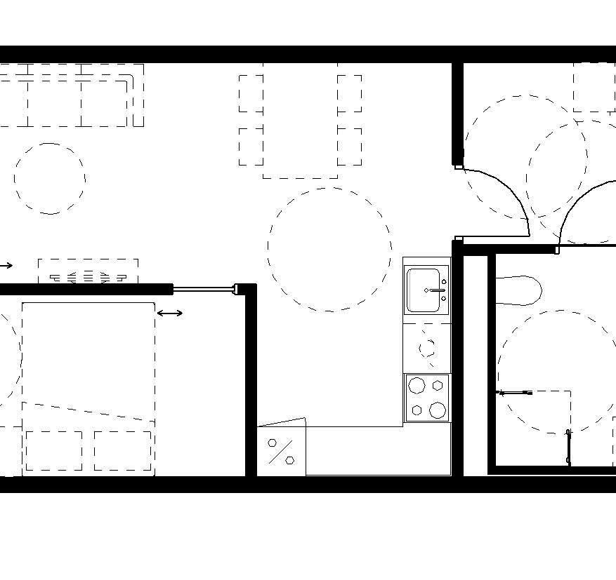
Entre Grå Overflater

Himling Elektro Sanitær Innredning

Overflatene Lys med egen bryter. keramiske sparkles og sparkles og Stikk iht krav i NEK. flis av god males males, med kvalitet Synlige 30x30 cm elementskjøter hvor det er betonghimling.

KJØKKEN Fler-stavs Overflater

Overflatene Lys under overskap. Ettgreps armatur for vaskekum med Kjøkkeninnredning kommer fra eikeparkett sparkles og sparkles og Opplegg til og uttak av stikk uttak for oppvaskmaskin inkl. anerkjent leverandør. males males, med for komfyr og koketopp med stengeventil. Omfang som vist på Synlige egne kurser (iht. salgstegninger. elementskjøter krav/belastning). Egne tegninger kommer. hvor det er Stikk for oppvaskmaskin Integrerte hvitevarer. betonghimling. plassert i skap. Stikk for kjøleskap. Stikk iht. krav i NEK. Komfyrvakt iht. krav i NEK.

STUE/SPIS Fler-stavs Overflater

Overflatene Opplegg for ett strømuttak eikeparkett sparkles og sparkles og ved tak over vist males males, med sofaplassering til egen synlige dimmebar bryter. elementskjøter Opplegg for ett strømuttak hvor det er ved tak over vist betonghimling. kjøkkenbordplassering til egen dimmebar bryter. Opplegg for uttak data/telefon/TV, plassert på stue. Stikk iht krav i NEK.

BAD Grå Hvite Hvite og glatte Innfelte down-lights (LED) Innredning kommer fra anerkjent keramiske keramiske overflater. med egen bryter med leverandør, jfr leverandørens tegning. fliser av god fliser dimming. Vegghengt toalett. Dusjhjørne. kvalitet 30x60 cm Gulvvarme. Termostatstyrt dusjbatteri i krom fra 30x60 cm Lys ved/i speil over vask. anerkjent leverandør. Dusjsett på gulv. Egen stikk for vaskemaskin og bestående av dusjhode og bevegelig tørketrommel. dusjslange montert på vertikal Stikk iht krav i NEK. glidestang. Ettgreps armatur med lukkeventil på servant fra anerkjent leverandør.

SOVEROM

Fler-stavs Overflater Overflatene Opplegg til ett strømuttak ved eikeparkett sparkles og sparkles og tak til egen bryter. males males, med Det leveres taklys. synlige Stikk iht krav i NEK. elementskjøter hvor det er betonghimling.

BALKONGER OG TERRASSER Leveres med ubehandlet tremmegulv (tredekke)

INNVENDIG BOD I LEILIGHET

Lys på balkong/terrasse over egen bryter. 1 dobbel stikk på balkong/terrasse.

Fler-stavs eikeparkett Overflater sparkles og males Overflatene sparkles og males Takbelysning. Stikk iht krav i NEK.

I 2.-4. etg monteres rekkverk utført med stolper i naturbestandig materialer. Fyllinger i laminert glass festet i stolpene.

Bygg C - Fasade sør
Bygg C - Fasade vest
Bygg C - Fasade nord
Bygg C - Fasade øst

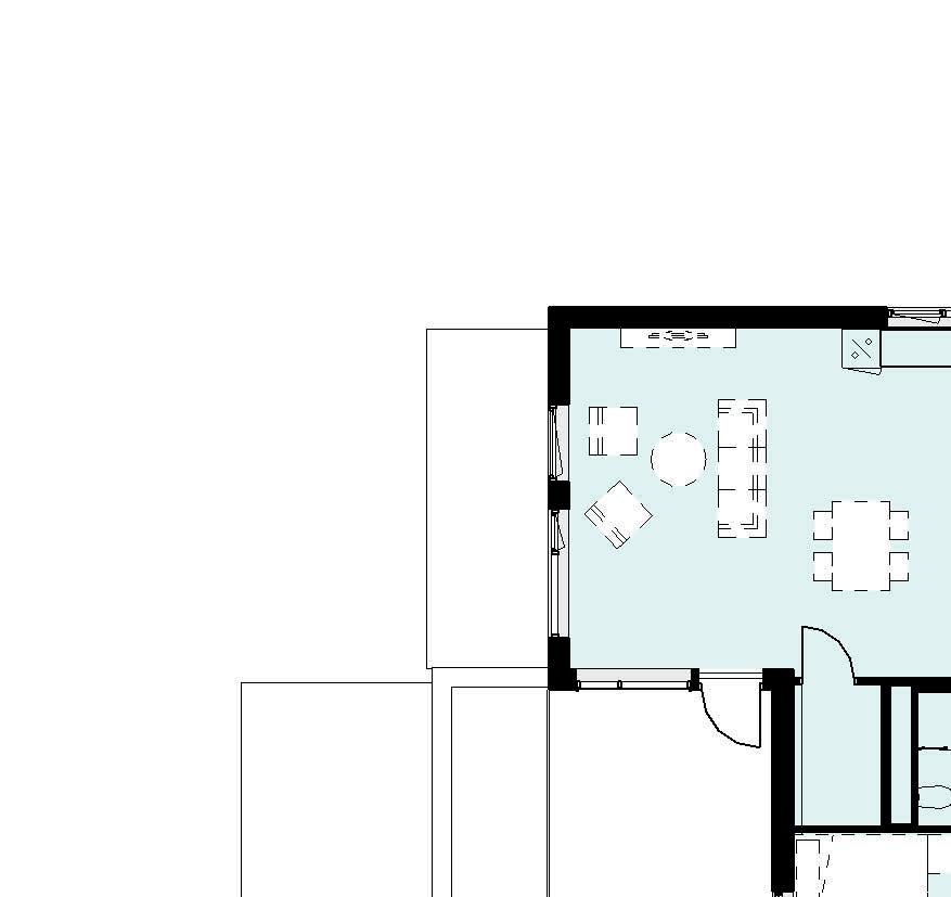
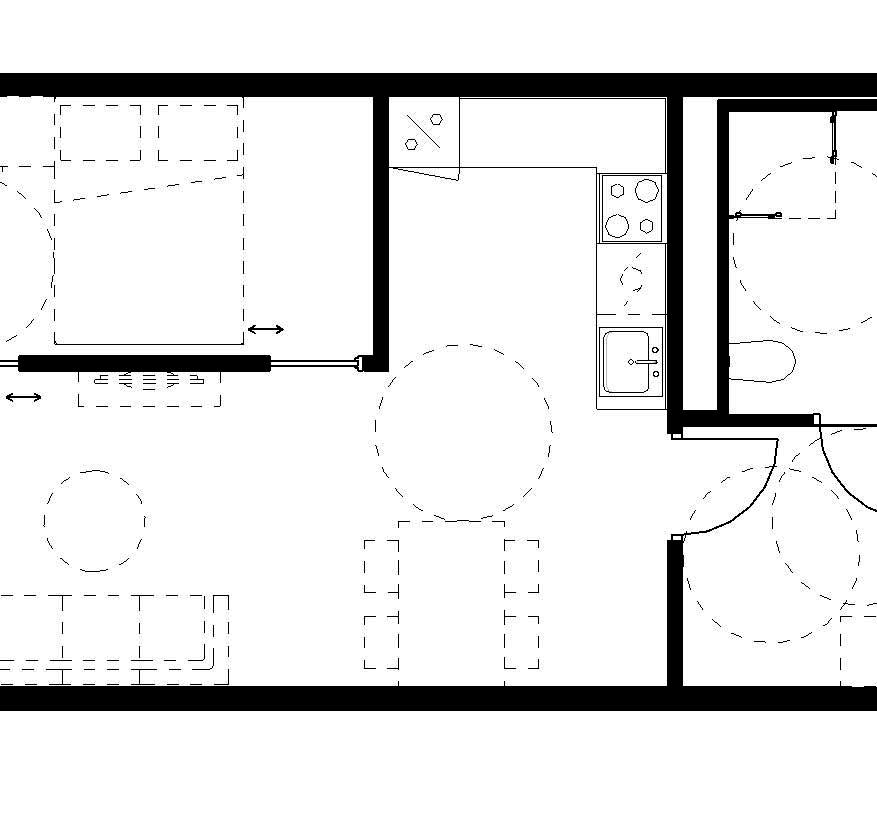
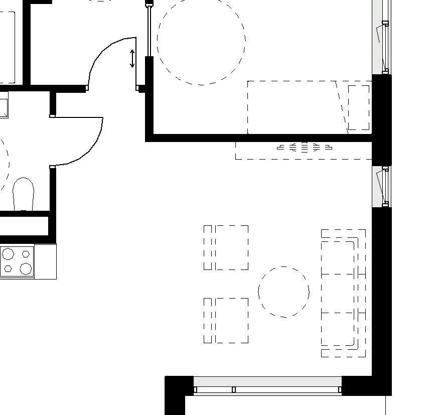
Plantegning: 10200212/8/1 HUS C (01.mars '24) - Type A

Prosjekt: B&B Entreprenør AS - Hårstad Minde B2

Skala: Tilpasset ramme

Foss Snekkeri AS Stensveien 29, 7335 JERPSTAD

Telefon: 72495800 Mobil: 94009463 Faks: Organisasjonsnr.: 935494826 E-Mail: post@fossline.no Hjemmeside: www.fossline.no

Fossline Kjøkken Kjøkken/garderobe Soft, Scala 468

MERK: Tegningen er bare retningsgivende. Dybdemål er ekskl. skapdører. NB: Kontrollmål må foretas

Plantegning: 10200212/8/2 HUS C (01.mars '24) - Type B

Kunde

B&B Entreprenør AS Hårstad Minde B2, 7290 STØREN Tlf 480 41 100 (hovednummer) Tlf.priv. Mobil 480 41 100 (hovednummer) Faks E-Mail post@bbent.no

Skrevet ut: 05.03.2024 Prosjekt: B&B Entreprenør AS - Hårstad Minde B2

6

Skala: Tilpasset ramme

Foss Snekkeri AS Stensveien 29, 7335 JERPSTAD

Telefon: 72495800 Mobil: 94009463 Faks: Organisasjonsnr.: 935494826 E-Mail: post@fossline.no Hjemmeside: www.fossline.no Fossline Kjøkken Kjøkken/garderobe Soft, Scala 468

Kunde B&B Entreprenør AS Hårstad Minde B2, 7290 STØREN Tlf 480 41 100 (hovednummer) Tlf.priv. Mobil 480 41 100 (hovednummer) Faks E-Mail post@bbent.no

Plantegning: 10200212/8/3 HUS C (01.mars '24) - Type C

Prosjekt: B&B Entreprenør AS - Hårstad Minde B2

Skala: Tilpasset ramme

Foss Snekkeri AS Stensveien 29, 7335 JERPSTAD

Telefon: 72495800 Mobil: 94009463 Faks: Organisasjonsnr.: 935494826 E-Mail: post@fossline.no Hjemmeside: www.fossline.no

Fossline Kjøkken Kjøkken/garderobe Soft, Scala 468

MERK: Tegningen er bare retningsgivende. Dybdemål er ekskl. skapdører. NB: Kontrollmål må foretas

Plantegning: 10200212/8/4 HUS C (01.mars '24) - Type D

Prosjekt: B&B Entreprenør AS - Hårstad Minde B2

6

Skala: Tilpasset ramme

Foss Snekkeri AS Stensveien 29, 7335 JERPSTAD

Telefon: 72495800 Mobil: 94009463 Faks: Organisasjonsnr.: 935494826

E-Mail: post@fossline.no Hjemmeside: www.fossline.no

Kunde

B&B Entreprenør AS Hårstad Minde B2, 7290 STØREN Tlf 480 41 100 (hovednummer) Tlf.priv. Mobil 480 41 100 (hovednummer) Faks E-Mail post@bbent.no

Skrevet ut: 05.03.2024

Fossline Kjøkken Kjøkken/garderobe Soft, Scala 468

Kunde B&B Entreprenør AS Hårstad Minde B2, 7290 STØREN Tlf 480 41 100 (hovednummer) Tlf.priv. Mobil 480 41 100 (hovednummer) Faks E-Mail post@bbent.no MERK: Tegningen er bare retningsgivende. Dybdemål er ekskl.

Eikli, Kine Heli

Plantegning: 10200212/8/5 HUS C (01.mars '24) - Type E

Prosjekt: B&B Entreprenør AS - Hårstad Minde B2

Skala: Tilpasset ramme

Foss Snekkeri AS Stensveien 29, 7335 JERPSTAD

Telefon: 72495800 Mobil: 94009463 Faks: Organisasjonsnr.: 935494826 E-Mail: post@fossline.no Hjemmeside: www.fossline.no

Fossline Kjøkken Kjøkken/garderobe Soft, Scala 468

MERK: Tegningen er bare retningsgivende. Dybdemål er ekskl. skapdører. NB: Kontrollmål må foretas

Kunde

B&B Entreprenør AS Hårstad Minde B2, 7290 STØREN Tlf 480 41 100 (hovednummer) Tlf.priv. Mobil 480 41 100 (hovednummer) Faks E-Mail post@bbent.no

Plantegning: 10200212/8/6 HUS C (01.mars '24) - Type F Skrevet ut: 05.03.2024

Prosjekt: B&B Entreprenør AS - Hårstad Minde B2

Skala: Tilpasset ramme

Foss Snekkeri AS Stensveien 29, 7335 JERPSTAD

Telefon: 72495800 Mobil: 94009463 Faks: Organisasjonsnr.: 935494826 E-Mail: post@fossline.no Hjemmeside: www.fossline.no

Fossline Kjøkken Kjøkken/garderobe Soft, Scala 468

Kunde B&B Entreprenør AS Hårstad Minde B2, 7290 STØREN Tlf 480 41 100 (hovednummer) Tlf.priv. Mobil 480 41 100 (hovednummer) Faks E-Mail post@bbent.no

Plantegning: 10200212/8/7 HUS C (01.mars '24) - Type G

Prosjekt: B&B Entreprenør AS - Hårstad Minde B2

Skala: Tilpasset ramme

Foss Snekkeri AS

Stensveien 29, 7335 JERPSTAD

Telefon: 72495800 Mobil: 94009463 Faks: Organisasjonsnr.: 935494826

E-Mail: post@fossline.no Hjemmeside: www.fossline.no

Fossline Kjøkken Kjøkken/garderobe Soft, Scala 468

MERK: Tegningen er bare retningsgivende. Dybdemål er ekskl. skapdører. NB: Kontrollmål

Kunde B&B Entreprenør AS Hårstad Minde B2, 7290 STØREN Tlf 480 41 100 (hovednummer) Tlf.priv. Mobil 480 41 100 (hovednummer) Faks E-Mail post@bbent.no

Plantegning: 10200212/8/8 HUS C (01.mars '24) - Type H Skrevet ut: 05.03.2024

Prosjekt: B&B Entreprenør AS - Hårstad Minde B2

Skala: Tilpasset ramme

Foss Snekkeri AS Stensveien 29, 7335 JERPSTAD

Telefon: 72495800 Mobil: 94009463 Faks: Organisasjonsnr.: 935494826

E-Mail: post@fossline.no Hjemmeside: www.fossline.no Fossline Kjøkken Kjøkken/garderobe Soft, Scala 468

Kunde B&B Entreprenør AS Hårstad Minde B2, 7290 STØREN Tlf 480 41 100 (hovednummer) Tlf.priv. Mobil 480 41 100 (hovednummer) Faks E-Mail post@bbent.no

Plantegning: 10200212/8/9 HUS C (01.mars '24) - Type I

Prosjekt: B&B Entreprenør AS - Hårstad Minde B2

Skala: Tilpasset ramme

Foss Snekkeri AS

Stensveien 29, 7335 JERPSTAD

Telefon: 72495800 Mobil: 94009463 Faks: Organisasjonsnr.: 935494826 E-Mail: post@fossline.no Hjemmeside: www.fossline.no

Fossline Kjøkken Kjøkken/garderobe Soft, Scala 468

MERK: Tegningen er bare retningsgivende. Dybdemål er ekskl. skapdører. NB: Kontrollmål må foretas

Kunde

B&B Entreprenør AS Hårstad Minde B2, 7290 STØREN Tlf 480 41 100 (hovednummer) Tlf.priv. Mobil 480 41 100 (hovednummer) Faks E-Mail post@bbent.no

Plantegning: 10200212/8/10 HUS C (01.mars '24) - Type J Skrevet ut: 05.03.2024

Prosjekt: B&B Entreprenør AS - Hårstad Minde B2

Skala: Tilpasset ramme

Foss Snekkeri AS Stensveien 29, 7335 JERPSTAD Telefon: 72495800 Mobil: 94009463 Faks: Organisasjonsnr.: 935494826 E-Mail: post@fossline.no Hjemmeside: www.fossline.no

Fossline Kjøkken Kjøkken/garderobe Soft, Scala 468

MERK: Tegningen er bare retningsgivende. Dybdemål er ekskl. skapdører. NB: Kontrollmål må foretas

Kunde B&B Entreprenør AS Hårstad Minde B2, 7290 STØREN Tlf 480 41 100 (hovednummer) Tlf.priv. Mobil 480 41 100 (hovednummer) Faks E-Mail post@bbent.no

Eikli, Kine Heli

Plantegning: 10200212/8/11 HUS C (01.mars '24) - Type K

Prosjekt: B&B Entreprenør AS - Hårstad Minde B2

Skala: Tilpasset ramme

Foss Snekkeri AS

Stensveien 29, 7335 JERPSTAD

Telefon: 72495800 Mobil: 94009463 Faks: Organisasjonsnr.: 935494826

E-Mail: post@fossline.no Hjemmeside: www.fossline.no

Fossline Kjøkken Kjøkken/garderobe Soft, Scala 468

MERK: Tegningen er bare retningsgivende. Dybdemål er ekskl. skapdører. NB: Kontrollmål må foretas

Kunde

B&B Entreprenør AS Hårstad Minde B2, 7290 STØREN Tlf 480 41 100 (hovednummer) Tlf.priv. Mobil 480 41 100 (hovednummer) Faks E-Mail post@bbent.no

Plantegning: 10200212/8/12 HUS C (01.mars '24) - Type L Skrevet ut: 05.03.2024

Prosjekt: B&B Entreprenør AS - Hårstad Minde B2

Skala: Tilpasset ramme

Foss Snekkeri AS Stensveien 29, 7335 JERPSTAD Telefon: 72495800 Mobil: 94009463 Faks: Organisasjonsnr.: 935494826 E-Mail: post@fossline.no Hjemmeside: www.fossline.no

Fossline Kjøkken Kjøkken/garderobe Soft, Scala 468

Kunde B&B Entreprenør AS Hårstad Minde B2, 7290 STØREN Tlf 480 41 100 (hovednummer) Tlf.priv. Mobil 480 41 100 (hovednummer) Faks E-Mail post@bbent.no

MERK: Tegningen er bare retningsgivende. Dybdemål er ekskl. skapdører. NB: Kontrollmål må foretas Selger: Eikli, Kine Heli

Utarbeidet av: Norconsult Norge AS v/ Jon Erik Dybedal Brekken

Dato/rev: 2025‐05‐27

Hårstad mindes veg B2 Bygg C Leil.type

Denne tabellen viser summering etter at enkeltarealene er avrundet

DRIFTSKOSTNADER

Personalkostnader

Revisjonshonorar

Forretningsførerhonorar

Konsulent og forvaltn.tjen

og vedlikehold

garasjeanl.

Kommunale avgifter (Eiendomsskatt)

Energi / fyring

Andre driftskostnader (vaktmester med mer)

Forutsetninger:

Antall garasjeplasser 77 Foreløpige antall

Antall boder 93 Foreløpige antall

Antall bruksrett Foreløpige antall

Felleskostnader:

Felleskostnader parkeringsplass 270 pr p-plass pr mnd

Felleskostnader bod 135 pr bod pr mnd

Felleskostnader bruksrett i anleggseiendom 0 pr sek pr mnd

Forbehold:

Dette er et forslag til driftsbudsjett for normaldrift av sameiet i 1 år, basert på stipulerte inntekter og kostnader. Budsjettet er utarbeidet av OBOS basert på opplysninger om eiendommen gitt av selger/utbygger og normtall fra tilsvarende eiendommer som vi forvalter.

Det tas forbehold om oppgitte arealer, antall p-plasser/boder og øvrige opplysninger om prosjektet som kan endre forutsetningene for budsjettforslaget.

Det tas forbehold om stipulerte inntekter og kostnader da styret vil kunne endre budsjettet og inngå avtaler som vil tilføre boligselskapet andre eller større kostnader. Endelig fastsettelse av budsjett og nivå på felleskostnader vil bli foretatt av styret

(inkl internett)

driftskostnader (bl.a. vaktmester, renhold mm)

brøkfordeling 0

Forutsetninger:

Antall leiligheter

Antall garasjeplasser

Areal totalt for Bolig (BRA)

Felleskostnader:

Felleskostnader kr 100,00 pr leil. pr mnd

Kommunale avgifter og eventuell eiendomsskatt faktureres den enkelte direkte fra Trondheim kommune. Evt strømforbruk elbillading kommer i tillegg for dem som har dette.

Forbehold:

Varme / varmt vann

Det bemerkes at kostnader til oppvarming og varmt vann vil avhenge av strømprisene. Strømprisene har over tid variert mye, og det må påregnes store svigninger i prisen over tid. Budsjettert beløp baseres på prisnivået 2020. Varmeforbruket kan avregnes, da hver seksjon har egen forbruksmåler.

Dette utkastet til vedtekter er utarbeidet av utbygger/selger i forbindelse med salg av leiligheter og parkeringsplasser i prosjektet «Hårstad Minde», og vil kunne bli endret i forbindelse med ferdigstillelse av prosjektet og kommunale reguleringsbestemmel ser, kommunens behandling av seksjoneringssøknad, endring i organisering, oppdeling av eiendommen i en eller flere eierseksjonssameier, og eller borettslag, opprettelse av anleggseiendom(er), utomhuseiendom mv. Det vises til de forbehold som er tatt i pros pekt/kjøpekontrakt/salgsmateriell. Endelige vedtekter fastsettes av utbygger og tiltredes ved kjøp av seksjon i sameiet.

Vedtekter for

Hårstad Minde Borettslag 3-1 Org. nr. Org.nummer

Vedtatt på ekstraordinær generalforsamling den dato.

1. Innledende bestemmelser

1-1 Formål

Hårstad Minde Borettslag 3-1 er et samvirkeforetak som har til formål å gi andelseierne bruksrett til egen bolig i foretakets eiendom(borett) og å drive virksomhet som står i sammenheng med dette.

Borettslaget består av 39 andeler og ligger på eiendommen gnr 324 bnr xxx i Trondheim kommune.

1-3 Felles utearealer

Utvendige fellesarealer ligger innenfor eiendommen til borettslaget. Eiendommer innenfor reguleringsplan reg feltB2 gnr 324 bnr 201 og senere fradelte matrikkelenheter vil få tinglyst gjensidig bruksrett til utearealer mot pliktig deltakelse i drift og vedlikehold. Utearealene som umiddelbart grenser inntil denne blokken, skal i hovedsak benyttes av beboerne i denne eiendommen.

Eiendommen gnr 324 bnr 177, er felles veg, lek og uteoppholdsareal og er reguleringsfelt f_BLK1 -3, f_ SKV2, f_ SPA, f_ SKV1-2, f_ SF i reguleringsplan r20160002 for Hårstad Minde, er avsatt til fellesareal for matrikkelenheter innenfor reguleringsplan. Eiendommen er organisert som en Velforening, det er pliktig medlemskap i Velforeningen Hårstad Minde Fellesareal som har egne vedtekter og budsjett.

1-4 Boder og Sykkelparkering

Borettslagets boder ligger i eiendommen gnr 324 bnr xxx (parkeringseiendommen). Parkeringseiendommen er organisert som et sameie med egne vedtekter og budsjett.

Hver andel har eksklusiv og fysisk stedvarig bruksrett til 1 bod hver. Bruksretten fremgår av vedlagte bruksrettsplan vedlegg 1.

Fysisk stedvarige bruksretter til bod kan ikke flyttes eller på annen måte endres uten tilslutning fra respektive andelshaver som innehar bruksretten.

Borettslagets sykkelparkering ligger i eiendommen gnr 324 bnr xxx (parkeringseiendommen).

Borettslaget har tinglyst bruksrett til sykkelparkering. Eier av parkeringseiendommen fakturerer driftskostnader for bruksretter og sykkelparkering samlet til borettslaget.

1-5 Parkering

Borettslagets parkeringsplasser ligger i eiendommen gnr 324 bnr xxx (parkeringseiendommen).

Dette utkastet til vedtekter er utarbeidet av utbygger/selger i forbindelse med salg av leiligheter og parkeringsplasser i prosjektet «Hårstad Minde», og vil kunne bli endret i forbindelse med ferdigstillelse av prosjektet og kommunale reguleringsbestemmel ser, kommunens behandling av seksjoneringssøknad, endring i organisering, oppdeling av eiendommen i en eller flere eierseksjonssameier, og eller borettslag, opprettelse av anleggseiendom(er), utomhuseiendom mv. Det vises til de forbehold som er tatt i pros pekt/kjøpekontrakt/salgsmateriell. Endelige vedtekter fastsettes av utbygger og tiltredes ved kjøp av seksjon i sameiet.

Parkeringseiendommen er organisert som et sameie med egne vedtekter og budsjett. Parkeringseiendommen viderefakturere felleskostnader til parkering via Borettslaget.

De andeler som har eksklusiv og fysisk stedvarig bruksrett til parkering fremgår av bruksrettsplan for parkering vedlegg 2.

Bruksretten fremgår av vedlagte bruksrettsplan vedlegg 2.

Fysisk stedvarige bruksretter til parkeringsplass kan ikke flyttes eller på annen måte endres uten tilslutning fra respektive andelshaver som innehar bruksretten. Bruksrett til parkeringsplass kan selges innad i borettslaget, selger av bruksrett til parkering plikter å melde fra til styret i borettslaget for endring av bruksrettsplan. Borettslaget har ikke egne gjesteparkeringsplasser.

2. Andeler og andelseiere

2-1 Andeler og andelseiere

(1) Andelene skal være på kroner 5.000,-

(2) Når ikke annet følger av vedtektene eller lov om borettslag, kan bare fysiske personer være andelseiere i borettslaget. Ingen fysiske personer kan eie eller ha eierandel i mer enn en andel. Bare personer som bor eller skal bo i boligen kan eie en andel sammen.

(3) Følgende juridiske personer kan til sammen eie andel eller andeler som gir rett til minst en bolig og opp til ti prosent av boligene i laget:

1. stat,

2. fylkeskommune,

3. kommune,

4. selskap som har til formål å skaffe boliger og som blir ledet og kontrollert av stat, fylkeskommune eller kommune,

5. stiftelse som har til formål å skaffe boliger og som er opprettet av staten, en fylkeskommune eller kommune,

6. selskap, stiftelse eller andre som har inngått samarbeidsavtale med stat, fylkeskommune eller kommune om å skaffe boliger til vanskeligstilte.

(4) I tillegg har juridiske personer som nevnt i borettslagslovens § 4 – 3 rett til å eie inntil 20 % av andelene.

(5) En kreditor kan eie en eller flere andeler i opptil to år for å berge krav som er sikret med pant i andelen eller andelene.

(6) En andelseier skal ved forespørsel få utlevert et eksemplar av borettslagets vedtekter.

2-2 Overføring av andel og godkjenning av ny andelseier (1) En andelseier har rett til å overdra sin andel.

Dette utkastet til vedtekter er utarbeidet av utbygger/selger i forbindelse med salg av leiligheter og parkeringsplasser i prosjektet «Hårstad Minde», og vil kunne bli endret i forbindelse med ferdigstillelse av prosjektet og kommunale reguleringsbestemmel ser, kommunens behandling av seksjoneringssøknad, endring i organisering, oppdeling av eiendommen i en eller flere eierseksjonssameier, og eller borettslag, opprettelse av anleggseiendom(er), utomhuseiendom mv. Det vises til de forbehold som er tatt i pros pekt/kjøpekontrakt/salgsmateriell. Endelige vedtekter fastsettes av utbygger og tiltredes ved kjøp av seksjon i sameiet.

(2) Ved et hvert eierskifte må erververen godkjennes av styret for å få rett til å bruke boligen.

(3) Styret kan nekte godkjenning når det er saklig grunn til det og skal nekte godkjenning dersom ervervet vil være i strid med kap 2 i disse vedtektene.

(4) Nekter styret å godkjenne erververen som bruker, må melding om dette komme fram til erververen senest 20 dager etter at søknaden om godkjenning kom fram til borettslaget. I motsatt fall skal godkjenning regnes som gitt.

(5) Erververen har ikke rett til å bruke boligen før godkjenning er gitt eller det er rettskraftig avgjort at erververen har rett til å erverve andelen.

(6) Den forrige andelseieren er solidarisk ansvarlig med en eller flere nye erververe for betaling av felleskostnader frem til ny andelseier er godkjent, eller det er rettskraftig avgjort at en ny andelseier har rett til å erverve andelen.

3. Forkjøpsrett

3-1 Forkjøpsrett

Det er ikke forkjøpsrett for andelseierne i borettslaget.

4. Borett og overlating av bruk

4-1 Boretten

(1) Hver andel gir enerett til å bruke en bolig i borettslaget og rett til å bruke fellesarealene til det de er beregnet eller vanlig brukt til, og til annet som er i samsvar med tiden og forholdene.

(2) Andelseieren kan ikke benytte boligen til annet enn boligformål uten styrets samtykke.

(3) Andelseieren skal behandle boligen, andre rom og annet areal med tilbørlig aktsomhet. Bruken av boligen og fellesarealene må ikke på en urimelig eller unødvendig måte være til skade eller ulempe for andre andelseiere.

(4) Styret kan fastsette vanlige ordensregler for eiendommen.

4-2 Overlating av bruk

(1) Andelseieren kan ikke uten godkjenning fra styret overlate bruken av boligen til andre. Med styrets godkjenning kan andelseierne overlate bruken av hele boligen dersom:

- andelseieren selv eller en person som nevnt i borettslagslovens § 5-6 første ledd nr. 3 har bodd i boligen i minst ett av de siste to årene. Andelseierne kan i slike tilfeller overlate bruken av hele boligen for opptil tre år, - andelseieren er en juridisk person, - andelseieren skal være midlertidig borte som følge av arbeid, utdanning, militærtjeneste, sykdom eller andre tungtveiende grunner,

Dette utkastet til vedtekter er utarbeidet av utbygger/selger i forbindelse med salg av leiligheter og parkeringsplasser i prosjektet «Hårstad Minde», og vil kunne bli endret i forbindelse med ferdigstillelse av prosjektet og kommunale reguleringsbestemmel ser, kommunens behandling av seksjoneringssøknad, endring i organisering, oppdeling av eiendommen i en eller flere eierseksjonssameier, og eller borettslag, opprettelse av anleggseiendom(er), utomhuseiendom mv. Det vises til de forbehold som er tatt i pros pekt/kjøpekontrakt/salgsmateriell. Endelige vedtekter fastsettes av utbygger og tiltredes ved kjøp av seksjon i sameiet.

- et medlem av brukerhusstanden er andelseierens ektefelle eller slektning i rett opp- eller nedstigende linje eller fosterbarn av andelseieren eller ektefellen,

- det gjelder bruksrett til noen som har krav på det etter ekteskapslovens § 68 eller husstandsfellesskapsloven.

Godkjenning kan i disse tilfellene bare nektes dersom brukerens forhold gir saklig grunn til det. Godkjenning kan nektes dersom brukeren ikke kunne blitt andelseier.

(2) Har borettslaget ikke sendt svar på skriftlig søknad om godkjenning av bruker innen en måned etter at søknaden har kommet frem til borettslaget, skal brukeren regnes som godkjent.

(3) Andelseier som bor i boligen selv, kan overlate bruken av deler av den til andre uten godkjenning. I tillegg kan andelseieren overlate bruken av hele boligen til andre i opptil 30 døgn i løpet av året uten godkjenning.

(4) Dersom flere eier en andel sammen, skal det regnes som overlating av bruk hvis en eller flere av sameierne ikke bor i boligen.

(5) Overlating av bruken reduserer ikke andelseierens plikter overfor borettslaget.

(6) Borettslaget kan kreve kostnader forbundet med behandlingen og eventuell oppfølging av en søknad om overlating av bruk dekket av andelseier, se pkt . 6-1 (3).

4-3

Bygningsmessige arbeider

(1) En andelseier kan med styrets godkjenning gjennomføre tiltak på eiendommen som er nødvendige på grunn av funksjonshemming hos en bruker av boligen. Godkjenning kan ikke nektes uten saklig grunn.

(2) Forandringer som skjer i strid med de til enhver tid gjeldende bygningsforskrifter og andre offentlige bestemmelser er ikke tillatt. Forandringer som berører bygningens eksteriør – herunder oppsetting av private radio- og TVantenner, markiser mv, er ikke tillatt uten styrets forutgående samtykke.

5. Vedlikehold

5-1

Andelseiernes vedlikeholdsplikt

(1) Den enkelte andelseier skal holde boligen, og andre rom og annet areal som hører boligen til, i forsvarlig stand og vedlikeholde slikt som dører og vinduer innvendig, rør, sikringsskap fra og med første hovedsikring/inntakssikring, ledninger med tilbehør, varmekabler, inventar, utstyr inklusive vannklosett, varmtvannsbereder og vasker, apparater og innvendige flater. Våtrom må brukes og vedlikeholdes slik at lekkasjer unngås.

Dette utkastet til vedtekter er utarbeidet av utbygger/selger i forbindelse med salg av leiligheter og parkeringsplasser i prosjektet «Hårstad Minde», og vil kunne bli endret i forbindelse med ferdigstillelse av prosjektet og kommunale reguleringsbestemmel ser, kommunens behandling av seksjoneringssøknad, endring i organisering, oppdeling av eiendommen i en eller flere eierseksjonssameier, og eller borettslag, opprettelse av anleggseiendom(er), utomhuseiendom mv. Det vises til de forbehold som er tatt i pros pekt/kjøpekontrakt/salgsmateriell. Endelige vedtekter fastsettes av utbygger og tiltredes ved kjøp av seksjon i sameiet.

(2) Vedlikeholdet omfatter også nødvendige reparasjoner og utskiftning av slikt som rør, sikringsskap fra og med første hovedsikring/inntakssikring, ledninger med tilbehør, varmekabler, inventar, utstyr inklusive slikt som vannklosett, varmtvannsbereder og vasker, apparater, tapet, gulvbelegg, vegg, gulv- og himlingsplater, skillevegger, listverk, skap, benker og innvendige dører med karmer.

(3) Andelseieren har også ansvaret for oppstaking og rensing av innvendige avløpsledninger både til og fra egen vannlås/sluk og fram til borettslagets felles/hovedledning. Andelseier skal også rense eventuelle sluk på verandaer, balkonger og lignende.

(4) Andelseieren er selv ansvarlig for at installasjon og oppbevaring av brann- og eksplosjonsfarlige stoffer skjer i betryggende former og i henhold til gjeldende lover og forskrifter.

(5) Andelseieren skal holde boligen fri for insekter og skadedyr. Ved mistanke om innsekter og skadedyr plikter andelseieren straks å melde fra skriftlig til borettslaget.

(6) Vedlikeholdsplikten omfatter også utbedring av tilfeldig skade, herunder skade påført ved innbrudd og uvær.

(7) Oppdager andelseieren skade i boligen som borettslaget er ansvarlig for å utbedre, plikter andelseieren straks å melde fra skriftlig til borettslaget.

(8) Ny eier av andelen har plikt til å utføre vedlikehold medregnet reparasjon og utskifting i boligen selv om det skulle ha vært utført av den forrige andelseieren.

5-2 Borettslagets vedlikeholdsplikt

(1) Borettslaget skal holde bygninger og eiendommen for øvrig i forsvarlig stand så langt plikten ikke ligger på andelseierne. Vedlikeholdsplikten omfatter også utvendig vedlikehold av vinduer.

(2) Felles rør, ledninger, kanaler og andre felles installasjoner som går gjennom boligen, skal borettslaget holde ved like. Borettslaget har rett til å føre nye slike installasjoner gjennom boligen dersom det ikke er til vesentlig ulempe for andelseieren.

Borettslagets vedlikeholdsplikt omfatter også utskifting av vinduer og ytterdører til boligen og reparasjon eller utskiftning av tak, bjelkelag, bærende veggkonstruksjoner, sluk og rør eller ledninger som er bygd inn i bærende konstruksjoner med unntak av varmekabler.

(3) Andelseieren skal gi adgang til boligen slik at borettslaget kan utføre sin vedlikeholdsplikt, herunder ettersyn, reparasjon eller utskifting. Ettersyn og utføring av arbeid skal gjennomføres slik at det ikke er til unødig ulempe for andelseieren eller annen bruker av boligen.

Dette utkastet til vedtekter er utarbeidet av utbygger/selger i forbindelse med salg av leiligheter og parkeringsplasser i prosjektet «Hårstad Minde», og vil kunne bli endret i forbindelse med ferdigstillelse av prosjektet og kommunale reguleringsbestemmel ser, kommunens behandling av seksjoneringssøknad, endring i organisering, oppdeling av eiendommen i en eller flere eierseksjonssameier, og eller borettslag, opprettelse av anleggseiendom(er), utomhuseiendom mv. Det vises til de forbehold som er tatt i pros pekt/kjøpekontrakt/salgsmateriell. Endelige vedtekter fastsettes av utbygger og tiltredes ved kjøp av seksjon i sameiet.

5-3 Utbedringsansvar og erstatning

(1) Fører en andelseiers mislighold til skade på borettslagets eiendom eller på annen andelseiers bolig eller fastmontert inventar som naturlig hører boligen til, skal skaden utbedres av borettslaget.

(2) Skade på innbo og løsøre skal utbedres av skadelidte andelseier. Borettslaget hefter ikke for eventuelle skader på skadelidtes innbo og/eller løsøre.

(3) Borettslaget og skadelidte andelseiere kan kreve erstatning for tap som følger av at andelseieren misligholder sine plikter, jf borettslagslovens §§ 5-13 og 5-15.

(4) Andelseier kan kreve erstatning for tap som følge av at borettslaget ikke oppfyller pliktene sine, jf borettslagslovens § 5-18.

6. Felleskostnader og pantesikkerhet

6-1 Felleskostnader

(1) Den enkelte andelseier er ansvarlig for felleskostnadene etter en nøkkel fastsatt ved stiftelsen av borettslaget. Nøkkelen ligger fast og kan bare endres etter borettslagslovens § 5-19.

(2) Når særlige grunner taler for det skal en kostnad likevel fordeles etter nytten for den enkelte bolig eller etter forbruk.

Abonnementskostnader for kabel tv og internett skal deles likt mellom tilknyttede andeler.

Det samme gjelder kostnader til Velforeningen Hårstad Minde Fellesareal.

Kostnader for parkeringsplass i parkeringskjeller gnr 324 bnr xxx fordeles med lik andel pr. p-plass hver andel disponerer.

Kostnader for bod i parkeringskjeller gnr 324 bnr xxx fordeles med lik andel pr. bod hver andel disponerer.

Borettslaget etablerer avtaler om IN ordning som tilrettelegger for andelseiernes mulighet for å individuelt kunne nedbetale sin andel av felleslån. Borettslagets kostnad for slik avtale inngår i felleskostnadene. Individuelle avtaler med andelseierne som benytter ordningen inngår ikke i felleskostnadene.

(3) Borettslagets kostnader til behandling og eventuell oppfølging av søknad om overlating av bruk betales av den andelseier som har søkt, se pkt. 4-2 (6).

6-2 Betaling av felleskostnader

(1) Felleskostnadene forfaller til betaling den 1. i hver måned. Borettslaget kan endre felleskostnadene med en måneds skriftlig varsel.

(2) For felleskostnader som ikke blir betalt ved forfall, svarer andelseieren den til enhver tid gjeldende forsinkelsesrente etter lov av 17. desember 1976 nr 100.

Dette utkastet til vedtekter er utarbeidet av utbygger/selger i forbindelse med salg av leiligheter og parkeringsplasser i prosjektet «Hårstad Minde», og vil kunne bli endret i forbindelse med ferdigstillelse av prosjektet og kommunale reguleringsbestemmel ser, kommunens behandling av seksjoneringssøknad, endring i organisering, oppdeling av eiendommen i en eller flere eierseksjonssameier, og eller borettslag, opprettelse av anleggseiendom(er), utomhuseiendom mv. Det vises til de forbehold som er tatt i pros pekt/kjøpekontrakt/salgsmateriell. Endelige vedtekter fastsettes av utbygger og tiltredes ved kjøp av seksjon i sameiet.

6-3

Borettslagets pantesikkerhet

For krav på dekning av felleskostnader og andre krav fra lagsforholdet har borettslaget en lovbestemt panterett i andelen foran alle andre heftelser. Pantekravet er begrenset til en sum som svarer til to ganger folketrygdens grunnbeløp på tidspunktet tvangsdekning besluttes gjennomført.

7. Mislighold, salgspålegg og fravikelse

7-1 Mislighold

Andelseiers brudd på sine forpliktelser overfor borettslaget utgjør mislighold. Som mislighold regnes blant annet manglende betaling av felleskostnader, forsømt vedlikeholdsplikt, ulovlig bruk eller overlating av bruk og brudd på husordensregler.

7-2 Pålegg om salg

Hvis en andelseier til tross for advarsel vesentlig misligholder sine plikter, kan borettslaget pålegge vedkommende å selge andelen, jf borettslagslovens § 5-22 første ledd. Advarsel skal gis skriftlig og opplyse om at vesentlig mislighold gir borettslaget rett til å kreve andelen solgt.

7-3 Fravikelse

Medfører andelseierens eller brukerens oppførsel fare for ødeleggelse eller vesentlig forringelse av eiendommen, eller er andelseierens eller brukerens oppførsel til alvorlig plage eller sjenanse for eiendommenes øvrige andelseiere eller brukere, kan styret kreve fravikelse fra boligen etter tvangsfullbyrdelseslovens kapittel 13. Fravikelse kan tidligst kreves samtidig med pålegg om salg.

8. Styret og dets vedtak

8-1 Styret

(1) Borettslaget skal ha et styre som skal bestå av en styreleder og inntil fire andre medlemmer. Det kan velges inntil to varamedlemmer.

(2) Funksjonstiden for styreleder og de andre medlemmene er to år om ikke annet er fastsatt av generalforsamlingen. Varamedlemmer velges for ett år. Styremedlemmer og varamedlemmer kan gjenvelges.

(3) Styret skal velges av generalforsamlingen. Generalforsamlingen velger styreleder ved særskilt valg. Styret kan velge nestleder blant sine medlemmer.

8-2 Styrets oppgaver

(1) Styret skal lede virksomheten i samsvar med lov, vedtekter og generalforsamlingens vedtak. Styret kan ta alle avgjørelser som ikke i loven eller vedtektene er lagt til andre organer, herunder ansette forretningsfører og andre eventuelle funksjonærer.

Dette utkastet til vedtekter er utarbeidet av utbygger/selger i forbindelse med salg av leiligheter og parkeringsplasser i prosjektet «Hårstad Minde», og vil kunne bli endret i forbindelse med ferdigstillelse av prosjektet og kommunale reguleringsbestemmel ser, kommunens behandling av seksjoneringssøknad, endring i organisering, oppdeling av eiendommen i en eller flere eierseksjonssameier, og eller borettslag, opprettelse av anleggseiendom(er), utomhuseiendom mv. Det vises til de forbehold som er tatt i pros pekt/kjøpekontrakt/salgsmateriell. Endelige vedtekter fastsettes av utbygger og tiltredes ved kjøp av seksjon i sameiet.

(2) Styreleder skal sørge for at styret holder møte så ofte som det trengs. Et styremedlem eller forretningsføreren kan kreve at styret sammenkalles.

(3) Styret skal føre protokoll over styresakene. Protokollen skal underskrives av de frammøtte styremedlemmene.

8-3 Styrets vedtak

(1) Styret er vedtaksført når mer enn halvparten av alle styremedlemmene er til stede. Vedtak kan treffes med mer enn halvparten av de avgitte stemmene. Står stemmene likt, gjør møtelederens stemme utslaget. De som stemmer for et vedtak som innebærer en endring må likevel utgjøre minst en tredjedel av alle styremedlemmene.

(2) Styret kan ikke uten at generalforsamlingen har gitt samtykke med minst to tredjedels flertall fatte vedtak om:

a) ombygging, påbygging eller andre endringer av bebyggelsen eller tomten som etter forholdene i borettslaget går ut over vanlig forvaltning og vedlikehold,

b) å øke tallet på andeler eller å knytte andeler til boliger som tidligere har vært benyttet til utleie, jf borettslagslovens § 3-2 andre ledd,

c) salg eller kjøp av fast eiendom, eller av andelsbolig som borettslaget eier d) å ta opp lån som skal sikres med pant med prioritet foran innskuddene, e) andre rettslige disposisjoner over fast eiendom som går ut over vanlig forvaltning, f) andre tiltak som går ut over vanlig forvaltning, når tiltaket fører med seg økonomisk ansvar eller utlegg for borettslaget på mer enn fem prosent av de årlige felleskostnadene.

8-4 Representasjon og fullmakt

Styrets leder og ett styremedlem representerer i fellesskap borettslaget utad og tegner dets navn.

9. Generalforsamlingen

9-1 Myndighet

Generalforsamlingen er øverste myndighet i borettslaget.

9-2 Tidspunkt for generalforsamling

(1) Ordinær generalforsamling skal holdes hvert år innen utgangen av juni.

(2) Ekstraordinær generalforsamling holdes når styret finner det nødvendig, eller når revisor eller minst to andelseiere som til sammen har minst en tiendedel av stemmene, skriftlig krever det og samtidig oppgir hvilke saker de ønsker behandlet.

Dette utkastet til vedtekter er utarbeidet av utbygger/selger i forbindelse med salg av leiligheter og parkeringsplasser i prosjektet «Hårstad Minde», og vil kunne bli endret i forbindelse med ferdigstillelse av prosjektet og kommunale reguleringsbestemmel ser, kommunens behandling av seksjoneringssøknad, endring i organisering, oppdeling av eiendommen i en eller flere eierseksjonssameier, og eller borettslag, opprettelse av anleggseiendom(er), utomhuseiendom mv. Det vises til de forbehold som er tatt i pros pekt/kjøpekontrakt/salgsmateriell. Endelige vedtekter fastsettes av utbygger og tiltredes ved kjøp av seksjon i sameiet.

9-3 Varsel om og innkalling til generalforsamling (1) Forut for ordinær generalforsamling skal styret varsle andelseierne om dato for møtet og om frist for innlevering av saker som ønskes behandlet.

(2) Generalforsamlingen skal innkalles skriftlig av styret med et varsel som skal være på minst åtte og høyst tjue dager. Ekstraordinær generalforsamling kan om nødvendig kalles inn med kortere varsel som likevel skal være på minst tre dager. I begge tilfeller skal det gis skriftlig melding til forretningsfører.

(3) I innkallingen skal de sakene som skal behandles være bestemt angitt. Skal et forslag som etter borettslagsloven eller vedtektene må vedtas med minst to tredjedels flertall kunne behandles, må hovedinnholdet være angitt i innkallingen. Saker som en andelseier ønsker behandlet på ordinær generalforsamling skal nevnes i innkallingen når styret har mottatt disse skriftlig innen fristen i 1.ledd.

9-4

Saker som skal behandles på ordinær generalforsamling

- Godkjenning av årsregnskap

- Valg av styremedlemmer og varamedlemmer

- Eventuelt valg av revisor

- Fastsetting av godtgjørelse til styret

- Andre saker som er nevnt i innkallingen

9-5

Møterett

Alle andelseiere har rett til å møte på generalforsamlingen med forslags,- tale- og stemmerett. Andelseierens ektefelle, samboer eller et annet medlem av andelseierens husstand og eventuelle leiere har rett til å være til stede og til å uttale seg.

9-6

Møteledelse og protokoll

Generalforsamlingen skal ledes av styrelederen med mindre generalforsamlingen velger en annen møteleder. Møtelederen skal sørge for at det føres protokoll fra generalforsamlingen.

9-7 Stemmerett og fullmakt

Hver andel gir rett til en stemme på generalforsamlingen. Andelseier som eier mer enn en andel har likevel bare en stemme. For en andel med flere eiere kan det bare avgis en stemme. Andelseier kan møte ved fullmektig på generalforsamlingen, men ingen kan være fullmektig for mer enn en andelseier.

9-8 Vedtak på generalforsamlingen

(1) Foruten saker som nevnt i punkt 9-4 i vedtektene kan ikke generalforsamlingen fatte vedtak i andre saker enn de som er bestemt angitt i innkallingen.

(2) Med de unntak som følger av borettslagsloven eller vedtektene her, fattes alle beslutninger av generalforsamlingen med mer enn halvparten av de avgitte stemmer.

Dette utkastet til vedtekter er utarbeidet av utbygger/selger i forbindelse med salg av leiligheter og parkeringsplasser i prosjektet «Hårstad Minde», og vil kunne bli endret i forbindelse med ferdigstillelse av prosjektet og kommunale reguleringsbestemmel ser, kommunens behandling av seksjoneringssøknad, endring i organisering, oppdeling av eiendommen i en eller flere eierseksjonssameier, og eller borettslag, opprettelse av anleggseiendom(er), utomhuseiendom mv. Det vises til de forbehold som er tatt i pros pekt/kjøpekontrakt/salgsmateriell. Endelige vedtekter fastsettes av utbygger og tiltredes ved kjøp av seksjon i sameiet.

Ved valg kan generalforsamlingen på forhånd fastsette at den som får flest stemmer, skal regnes som valgt.

(3) Ved stemmelikhet avgjøres saken ved loddtrekning.

10. Inhabilitet, taushetsplikt og mindretallsvern

10-1 Inhabilitet

(1) Et styremedlem må ikke delta i styrebehandlingen eller avgjørelsen av noe spørsmål som medlemmet selv eller nærstående har en framtredende personlig eller økonomisk særinteresse i.

(2) Ingen kan selv eller ved fullmektig eller som fullmektig delta i en avstemning på generalforsamlingen om avtale med seg selv eller nærstående eller om ansvar for seg selv eller nærstående i forhold til borettslaget. Det samme gjelder avstemning om salgspålegg eller krav om fravikelse etter borettslagslovens §§ 5-22 og 5-23.

10-2 Taushetsplikt

Tillitsvalgte, forretningsfører og ansatte i et borettslag har plikt til å bevare taushet overfor uvedkommende om det de i forbindelse med virksomheten i borettslaget får vite om noens personlige forhold. Dette gjelder ikke dersom ingen berettiget interesse tilsier taushet.

10-3 Mindretallsvern

Generalforsamlingen, styret eller forretningsfører kan ikke treffe beslutning som er egnet til å gi visse andelseiere eller andre en urimelig fordel til skade for andelseiere eller borettslaget.

11. Vedtektsendringer og forholdet til borettslovene

11-1 Vedtektsendringer

Endringer i borettslagets vedtekter kan bare besluttes av generalforsamlingen med minst to tredjedeler av de avgitte stemmer.

11-2 Forholdet til borettslovene

For så vidt ikke annet følger av vedtektene gjelder reglene i lov om borettslag av 06.06.2003 nr 39.

12. Særlige bestemmelser

Borettslagets eiendom ligger innenfor reguleringsfelt B2 i reguleringsplan r20160002 for Hårstad Minde veg gnr/bnr 324/177, 324/5 og 325/220. Reguleringsplanen består av fire utbyggingsområder regulert til bolig; B1, B2, B3 og B4. Utbygger forbeholder seg retten til å utvide borettslaget til å omfatte alle bygg innenfor B2. Borettslaget og andelseierne er kjent med disse forutsetningene i forbindelse med kjøp av bolig og stiftelse av boligselskapet, og kan ikke gjøre

Dette utkastet til vedtekter er utarbeidet av utbygger/selger i forbindelse med salg av leiligheter og parkeringsplasser i prosjektet «Hårstad Minde», og vil kunne bli endret i forbindelse med ferdigstillelse av prosjektet og kommunale reguleringsbestemmel ser, kommunens behandling av seksjoneringssøknad, endring i organisering, oppdeling av eiendommen i en eller flere eierseksjonssameier, og eller borettslag, opprettelse av anleggseiendom(er), utomhuseiendom mv. Det vises til de forbehold som er tatt i pros pekt/kjøpekontrakt/salgsmateriell. Endelige vedtekter fastsettes av utbygger og tiltredes ved kjøp av seksjon i sameiet.

endringer i denne vedtektsbestemmelsen uten full oppslutning i årsmøte og med tilslutning fra utbygger Hårstad Minde AS, org.nr. 999 336 760.

Inntil utbyggingsprosjektet «Hårstad Minde» er ferdig utbygget er Borettslaget forpliktet til å yte nødvendig medvirkning til at utbygger, evt den utbygger utpeker, kan gjennomføre en helhetlig utbygging i samsvar med Selgers planer og med de endringene som evt blir gjort underveis.

Dette utkastet til vedtekter er utarbeidet av utbygger/selger i forbindelse med salg av leiligheter og parkeringsplasser i prosjektet Hårstad Minde, og vil kunne bli endret i forbindelse med ferdigstillelse av prosjektet og kommunale reguleringsbestemmelser, kommunens behandling av seksjoneringssøknad, endring i organisering, oppdeling i flere eierseksjonssameier/borettslag, opprettelse av anleggseiendommer mv. Det vises til de forbehold som er tatt i prospekt/kjøpekontrakt/salgsmateriell. Vedtektene fastsettes av utbygger.

Utkast VEDTEKTER for

Sameiet Hårstad Minde Parkeringskjeller Org.nr. _____________

Fastsatt på stiftelsesmøte

§ 1

Navn

Sameiets navn er Sameiet Hårstad Minde Parkeringskjeller.

§ 2

Formål

Sameiets formål er, på vegne av sine sameiere, å drive og vedlikeholde egen eiendom med installasjoner og innretninger.

§ 3

Sameiets eiendom og eierandeler

Sameiet er et tingsrettslig sameie hvor hver sameier eier en ideell andel. Eierandelen er tinglyst på den enkelte matrikkelenhet, for alle eiendommer med rettigheter til sameiets eiendom. Eierandelene er knyttet til hele sameiets eiendom, herunder fellesområder og installasjoner. Eierandelen er fordelt etter antall p -plasser og boder. Det er knyttet en sameiebrøk til hver eierandel:

En parkeringsplass tilsvarer 2 andeler og en bod tilsvarer 1 andel.

Sameiets eiendom er definert til:

Parkeringskjeller, gnr 324 bnr xxx i Trondheim kommune

Sameiere er eiere av eiendommene

Gnr 324 bnr xxx Hårstad Minde Borettslag 3 -1

Gnr 324 bnr xxx Hårstad Minde Borettslag 3 -2

Gnr 324 bnr xxx Hårstad Minde Borettslag 3 -3

§ 4

Fysisk bruk av sameiets eiendom

Den enkelte sameier har enerett til bruk av enkelte deler av eiendommen slik det nærmere er bestemt i disse vedtekter jfr. pkt. 5 og 6, og har for øvrig lik rett til å utnytte eiendommens fellesarealer til det de er beregnet eller vanligvis brukt til.

Som vedlegg 1 følger en bruksrettsplan over Eiendommen med angivelse av fordeling av parkeringsplassene og boder med nummerering. Styret/forretningsfører fører oversikt over

Dette utkastet til vedtekter er utarbeidet av utbygger/selger i forbindelse med salg av leiligheter og parkeringsplasser i prosjektet Hårstad Minde, og vil kunne bli endret i forbindelse med ferdigstillelse av prosjektet og kommunale reguleringsbestemmelser, kommunens behandling av seksjoneringssøknad, endring i organisering, oppdeling i flere eierseksjonssameier/borettslag, opprettelse av anleggseiendommer mv. Det vises til de forbehold som er tatt i prospekt/kjøpekontrakt/salgsmateriell. Vedtektene fastsettes av utbygger.

hvem som til enhver tid er eier og gis fullmakt til å endre bruksrettsplan uten vedtak fra sameiermøtet. Endring i vedlegget krever tilslutning fra de berørte rettighetshavere.

Det kan ikke fattes vedtak i sameiet som berører fordelingen av parkeringsplasser og boder uten at de berørte sameierne har gitt sitt samtykke til dette.

Eiendommen kan, uten hensyn til om det er undergitt eksklusiv bruksrett eller utgjør fellesareal, bare nyttes i samsvar med formålet og innenfor de rammer og begrensninger som følger av disse vedtekter. Bruken av Eiendommen må ikke på en urimelig eller unødvendig måte være til skade eller ulempe for andre sameiere.

Det er ikke tillatt å drive næringsvirksomhet i eller fra Eiendommen. Utleie av garasjeplass iht. pkt. 6 er ikke å anse som næringsvirksomhet etter denne paragraf. Det er heller ikke tillatt å drive verksted eller utøve verkstedsliknende aktiviteter i tilknytning til biler som er parkert på sameiets eiendom. For øvrig vises til evt. ordensreglement fastsatt av årsmøtet.

Det er ikke tillatt å parkere mopeder eller MC utover angitte plasser. Hensetting av gjenstander på sameiets fellesarealer er ikke tillatt.

Det er ikke tillatt med faste installasjoner i tak ved biloppstillingsplasser (f.eks. takboks, kajakk m.m.). Parkeringsplassen skal kun brukes til parkering, det er ikke tillatt med hensetting av løse gjenstander.

Spesielt brann- eller eksplosjonsfarlige, etsende eller andre farlige stoffer tillates ikke oppbevart i eiendommen.

Bilvask i parkeringskjelleren er ikke tillatt.

Kameraovervåkning er tillatt i sameiets arealer. Styret har ansvar for at kameraovervåkning foregår i henhold til gjeldende regelverk.

§ 5

Rettslige disposisjoner

Alle sameierne vil få sikret en ideell andel i sameiet. Sameieandelen blir tinglyst mot den matrikkel som har rettighet i eiendommen. Parkeringsplass og bod overtas samtidig med leiligheten.

Sameierne kan bare pantsette, selge og for øvrig disponere over sin sameieandel innenfor rammen av disse vedtekter.

Enhver rettslig disponering (eierskifte eller utleie) av sameieandel skal uten ugrunnet opphold meldes skriftlig til styret eller sameiets forretningsfører med opplysning om hva disponeringen gjelder og mellom hvilke parter disponeringen gjelder. Ingen ret tslig disponering av sameieandel er bindende for sameiet før den er godkjent av sameiets styre, med mindre det gjelder pantsettelse eller salg av sameieandel med rett til parkeringsplass

Dette utkastet til vedtekter er utarbeidet av utbygger/selger i forbindelse med salg av leiligheter og parkeringsplasser i prosjektet Hårstad Minde, og vil kunne bli endret i forbindelse med ferdigstillelse av prosjektet og kommunale reguleringsbestemmelser, kommunens behandling av seksjoneringssøknad, endring i organisering, oppdeling i flere eierseksjonssameier/borettslag, opprettelse av anleggseiendommer mv. Det vises til de forbehold som er tatt i prospekt/kjøpekontrakt/salgsmateriell. Vedtektene fastsettes av utbygger.

sammen med matrikkelenhet og som er godkjent av den aktuelle eiendom hvor matrikkelenheten er organisert.

Sameierne har ikke forkjøps eller innløsningsrett til øvrige sameieres sameieandel utover det som uttrykkelig følger av disse vedtekter.

§6

Disposisjonsrett over sameieandel

Sameieandel gis rett til bruk av en bestemt parkeringsplass og bod iht. vedlagte bruksrettsplan – Vedlegg 1

Sameieandel med rett til bod kan ikke selges.

Sameieandel med rett til parkeringsplass kan selges eller overføres til matrikkelenheter innenfor reguleringsplan r20160002 for Hårstad Minde.

En parkeringsplass i garasjeanlegget kan kun leies eller lånes ut til matrikkelenheter innenfor reguleringsplan r20160002 for Hårstad Minde.

Utleie/utlån for mer enn 1 måned av gangen skal på forhånd skriftlig varsles til sameiets styre. Ved en leietakers/låner gjentatte mislighold av sine rettigheter og plikter i forhold til sameiet har sameiets styre rett til å kreve oppsigelse av leie -/låneforholdet. Ved utleie/utlån er utleier ansvarlig overfor sameiet for utleverte nøkler og solidarisk ansvarlig med låntaker/leietaker for dennes skadeforvoldelse på sameiets eller andre sameieres eiendom i garasjeanlegget.

Eiendommen er tilrettelagt for installasjon av ladepunkt for el -biler eller ladbare hybridbiler. Sameiere er til enhver tid forpliktet til å benytte sameiets inngåtte avtale for lading. Kostnader til etablering av ladestasjon, vedlikehold og strøm dekkes av den enkelte sameier. Et begrenset antall parkeringsplasser i Eiendommen er dimensjonert for kjøretøy tilpasset sameiere med nedsatt funksjonsevne.

Sameierne er kjent med at dersom en sameier har behov for parkeringsplass tilpasset nedsatt funksjonsevne (HC-plasser), kan styret pålegge sameierne å stille til disposisjon sin plass. Dette gjelder bare i tilfeller der sameieren med nedsatt funksjonsevne disponerer en annen parkeringsplass i parkeringskjelleren under sameiets eiendom, og bruksoverlatingen skal skje mot at den sameier det gjelder får rett til bruk av denne parkeringsplassen. Det er et vilkår at vedkommende med nedsatt funksjonsevne kan dokumentere behovet og har tillatelse fra kommunen til ”parkering for forflytningshemmede” eller annen tilfredsstillende dokumentasjon.

Styret i Sameiet behandler eventuelle henvendelser vedrørende ovenstående ordning. Styrets avgjørelse skal være basert på henvendelse fra sameierne, og styret skal ikke selv initiere bruk av ordningen.

Dette utkastet til vedtekter er utarbeidet av utbygger/selger i forbindelse med salg av leiligheter og parkeringsplasser i prosjektet Hårstad Minde, og vil kunne bli endret i forbindelse med ferdigstillelse av prosjektet og kommunale reguleringsbestemmelser, kommunens behandling av seksjoneringssøknad, endring i organisering, oppdeling i flere eierseksjonssameier/borettslag, opprettelse av anleggseiendommer mv. Det vises til de forbehold som er tatt i prospekt/kjøpekontrakt/salgsmateriell. Vedtektene fastsettes av utbygger.

Tildeling skjer etter ansiennitet basert på tidspunkt for søknad/melding om behov for om HC plass er kommet styret i hende. Er ansienniteten lik skjer tildeling ved loddtrekning.

§ 7

Felleskostnader

Utgifter forbundet drift og vedlikehold av sameiet fordeles etter eierbrøk.

Styret i sameiet fastsetter beløpene som innbetales.

Felleskostnader betales fra overtakelsesdato av matrikkelenhet.

Som fellesutgifter anses blant annet:

• Forsikring

• Kostnader til drift og vedlikehold

• Eiendomsskatt og kommunale avg.

• Belysning/strøm

• Kostnader ved regnskapsførsel

• Kostnader forbundet med vedlikehold/utskifting av porter

• Service av tekniske installasjoner, herunder sprinkleranlegg, ventilasjon, evt. grunnvannspumpe mm.

§ 8

Sameiermøte

Sameiets øverste myndighet er sameiermøtet.

Ordinært sameiermøte skal avholdes hvert år innen utgangen av juni.

Styret skal på forhånd varsle sameierne om dato for møtet og om siste frist for å innlevere saker som ønskes behandlet.

Styret innkaller til ordinært sameiermøtet med skriftlig varsel som skal være på minst åtte dager og høyst tjue dager. Som skriftlig varsel og innkalling regnes også elektronisk kommunikasjon.

Sameiermøtet skal behandle de saker som er angitt i innkallingen til møtet. Uten hensyn til om sakene er nevnt i innkallingen, skal det ordinære sameiermøtet

• behandle og eventuelt godkjenne styrets regnskap for foregående år

• velge styremedlemmer

Styret beslutter hvordan ordinære og ekstraordinære sameiermøter skal gjennomføres. Sameiermøtet skal gjennomføres som fysisk møte dersom minst to sameiere som til sammen har minst ti prosent av stemmene, krever det. Styret setter en frist for når krav om fysisk møte kan settes frem. Fristen kan tidligst løpe fra sameierne har blitt informert om hvilke saker sameiermøtet skal behandle, og må være så lang at sameierne får rimelig tid til å vurdere om de skal fremme krav om fysisk møte.

Dette utkastet til vedtekter er utarbeidet av utbygger/selger i forbindelse med salg av leiligheter og parkeringsplasser i prosjektet Hårstad Minde, og vil kunne bli endret i forbindelse med ferdigstillelse av prosjektet og kommunale reguleringsbestemmelser, kommunens behandling av seksjoneringssøknad, endring i organisering, oppdeling i flere eierseksjonssameier/borettslag, opprettelse av anleggseiendommer mv. Det vises til de forbehold som er tatt i prospekt/kjøpekontrakt/salgsmateriell. Vedtektene fastsettes av utbygger.

Dersom sameiermøtet ikke gjennomføres som fysisk møte, må styret sørge for en forsvarlig gjennomføring og at det foreligger systemer som sikrer at lovens krav til sameiermøte er oppfylt. Systemene må sikre at deltakelsen og stemmegivningen kan kontrolleres på en betryggende måte, og det må benyttes en betryggende metode for å bekrefte deltakernes identitet.

§ 9

Ekstraordinært sameiermøte

Ekstraordinært sameiermøte holdes når styret finner det nødvendig eller når 10 prosent av medlemmene fremsetter skriftlig krav om det, og samtidig oppgir hvilke saker de ønsker behandlet. Styret innkaller skriftlig til ekstraordinært sameiermøte med minst 8 og høyst 20 dagers varsel. Innkallingen skal skje på samme m åte som for ordinært sameiermøte, jf § 8

Styret kan om nødvendig innkalle til ekstraordinært sameiermøte med kortere varsel, men varselet kan ikke være kortere enn tre dager.

Som skriftlig varsel og innkalling regnes også elektronisk kommunikasjon.

§ 10

Sameietmøtets vedtak Ved avstemming regnes flertallet etter sameiebrøken.

Styret i det enkelte boligselskap representerer sine andelseiere i forhold til deres eierandeler. Sameiermøtet er vedtaksført med det antall medlemmer som møter. Representantene for boligselskapene har samme antall stemmer som antall ideelle andeler som er tilknyttet deres boligselskap. Stemmegivningen kan skje ved fullmakt. Styreleder har plikt til å være til stede med mindre dette er åpenbart unødvendig eller det foreligger gyldig forfall.

Det velges en møteleder til å lede sameiermøtet og en referent. Møtelederen behøver ikke være medlem i sameiet. Sameiermøtets vedtak og dissenser som forlanges protokollert lagres i protokoll.

Sameiermøtets vedtak fattes med alminnelig flertall med følgende unntak, som krever minst to tredjedeler av de avgitte stemmer:

• Endring av vedtektene,

• Ombygging, påbygging eller andre endringer av installasjoner, innretninger og friarealer på sameiets område som går ut over vanlig forvaltning og vedlikehold,

• Vedtak om at enkelte medlemmer gis disposisjonsrett til deler av området, dog under forutsetning av at de aktuelle medlemmer i så fall selv må dekke kostnadene tilknyttet deres bruk,

• Andre tiltak som fører med seg økonomisk ansvar eller utlegg for medlemmer på mer enn femten prosent av årets budsjetterte inntekter.

Dette utkastet til vedtekter er utarbeidet av utbygger/selger i forbindelse med salg av leiligheter og parkeringsplasser i prosjektet Hårstad Minde, og vil kunne bli endret i forbindelse med ferdigstillelse av prosjektet og kommunale reguleringsbestemmelser, kommunens behandling av seksjoneringssøknad, endring i organisering, oppdeling i flere eierseksjonssameier/borettslag, opprettelse av anleggseiendommer mv. Det vises til de forbehold som er tatt i prospekt/kjøpekontrakt/salgsmateriell. Vedtektene fastsettes av utbygger.

Sameiermøtet kan ikke treffe beslutning som er egnet til å gi visse medlemmer eller andre en urimelig fordel på andre medlemmers bekostning.

§ 11

Styret

Sameiet skal ha et styre bestående av en leder og inntil seks styremedlemmer. Det kan velges inntil seks varamedlemmer. Styreleder velges særskilt av sameietmøtet Representantene skal utgå fra styret i borettslagene som ligger til Eiendommen jfr. pkt. 3.

Styremedlemmene tjenestegjør i to år med mindre en kortere eller lengre tjenestetid blir bestemte av det årsmøtet som foretar valget.

Dersom et styremedlem fratrer vervet i borettslaget, må vedkommende også fratre sitt verv i dette sameiet.

Styret skal blant annet:

• Iverksette sameiermøtets vedtak og bestemmelser.

• Stå for sameiets daglige ledelse og ivareta sameiernes interesser overfor andre instanser.

• Forvalte område, herunder føre kontroll med økonomien.

• Inngå avtale med forretningsfører og foreta evt. ansettelser, gi instruks for dem, føre tilsyn med at de oppfyller sine plikter, samt si dem opp eller gi dem avskjed.

• Etter behov oppnevne komiteer eller personer til å løse spesielle oppgaver.

• Representere Sameiet utad.

Styret holder møter når leder bestemmer eller et flertall av styremedlemmene forlanger det.

Alle saker og all korrespondanse skal legges fram på styremøtene. Styrets vedtak skal protokollføres, likeså alle dissenser som forlanges protokollert. Protokollen skal underskrives av de frammøtte styremedlemmer.

Styret har disposisjonsrett over sameiets midler til alminnelige administrative formål og rett til å bevilge beløp til gjennomføring av vedtak på sameiermøtet. Alle utbetalinger utføres av forretningsfører etter attestasjon og godkjenning av styret.

Styret er beslutningsdyktig når flertallet av styremedlemmene er til stede. Styrebeslutninger krever alminnelig flertall.

Ingen kan delta i behandlingen eller avgjørelsen av noen spørsmål som vedkommende selv eller nærstående har en fremtredende personlig eller økonomisk særinteresse i.

Dette utkastet til vedtekter er utarbeidet av utbygger/selger i forbindelse med salg av leiligheter og parkeringsplasser i prosjektet Hårstad Minde, og vil kunne bli endret i forbindelse med ferdigstillelse av prosjektet og kommunale reguleringsbestemmelser, kommunens behandling av seksjoneringssøknad, endring i organisering, oppdeling i flere eierseksjonssameier/borettslag, opprettelse av anleggseiendommer mv. Det vises til de forbehold som er tatt i prospekt/kjøpekontrakt/salgsmateriell. Vedtektene fastsettes av utbygger.

§ 12

Styrets adgang ti l å forplikte sameiet

Styret representerer sameiet utad.

I saker som gjelder sameiets rettigheter og plikter, derunder gjennomføring av vedtak truffet av årsmøtet eller styret, blir sameiet forpliktet ved underskrift av styrets leder og ett styremedlem i fellesskap.

§ 13

Regnskap, forretningsfører og revisjon

Styret skal påse at regnskap blir ført. Regnskapsåret går fra 1/1 – 31/12. Styret kan ansette forretningsfører Årsmøtet kan velge revisor. Revisor fungerer inntil årsmøtet velger en ny.

Revisor skal revidere den løpende bokførsel, påse at årsoppgjøret er oversiktlig, fullstendig og tilstrekkelig spesifisert, at det stemmer med gjeldende lover og vedtektene, og at det sammenholdt med årsberetningen gir et riktig uttrykk for Sameiets stilling og for resultatet av driften i regnskapsåret.

§ 14

Ordensregler

Styret kan fastsette ordensregler for bruken av sameiets eiendom innenfor rammen av Sameiets formål.

§ 15

Tvister

Eventuelle tvister skal avgjøres ved de alminnelige domstoler. Medlemmene har Trøndelag tingrett som eneste verneting.

§ 16

Oppløsning

Sameierne kan ikke kreve oppløsning eller bruksdeling av sameiet iht. sameielovens §§ 14 og 15.

Dette utkastet til vedtekter er utarbeidet av utbygger/selger i forbindelse med salg av leiligheter og parkeringsplasser i prosjektet Hårstad Minde, og vil kunne bli endret i forbindelse med ferdigstillelse av prosjektet og kommunale reguleringsbestemmelser, kommunens behandling av seksjoneringssøknad, endring i organisering, oppdeling i flere eierseksjonssameier/borettslag, opprettelse av anleggseiendommer mv. Det vises til de forbehold som er tatt i prospekt/kjøpekontrakt/salgsmateriell. Vedtektene fastsettes av utbygger.

§ 17

Særlige bestemmelser i oppstartfasen

Det vil i en overgangsperiode være behov for noen særskilte bestemmelser frem til de fremtidige sameierne har overtatt grunnbokshjemmel på alle sine områder. Denne vedtektsbestemmelsen kan ikke endres uten samtykke fra utbygger Hårstad Minde AS, org. 999 336 760, eller utbyggers rettsetterfølger.

1. Interimsstyre; Representanter fra utbygger, Hårstad Minde AS, innehar styrevervene i oppstarten av Sameiet frem til ferdigstillelse. Interimsstyret vil forvalte Sameiets midler på vegne av sameierne i denne perioden.

2. Inntil alle matrikkelenhetene, som skal ha rett til og eierandel i, parkeringskjelleren er ferdigstilt, innehar utbygger Hårstad Minde AS alle nødvendige rettigheter til eiendommen. Utbygger forbeholder seg retten til at reell andel (eierbrøk) kan utvides/ reduseres.

3. Utbygger sitter med råderett/grunnbokshjemmelen til sameiet inntil hele eiendommen er ferdigstilt. Selv om utbygger innehar hjemmel, anses eiendommen som overtatt ved at den tas i bruk. Ved overtakelse skal det normalt sett gås en befaring mellom styret i Sameiet og utbygger. Fra tidspunkt for overtakelse tar Sameiet over drifts- og vedlikeholdsansvar for de overtatte områdene, og felleskostnadene fordeles på sameierne (selv om overskjøting av eierandelene i Sameiet ikke har funnet sted).

4. Parkeringsplasser og boder tildeles av utbygger.

5. Utbygger har ansvar for utvikling og utforming av alle områder frem til de er overtatt av sameiet og har vetorett i alle saker som direkte gjelder ubebygde arealer.

6. Dersom Sameiet pådras kostnader som knytter seg direkte til ikke ferdig utbygde arealer, skal disse kostnadene dekkes av utbygger.

7. Kostnader som direkte knytter seg til eiendommens drift, herunder eiendomsskatt, kommunale avgifter, forsikring, strøm, service mm har utbygger rett til å viderefakturere iht pro & contra avregning.

8. Punkt 12 kan slettes etter samtykke fra Hårstad Minde AS. Punktet kan tas ut av vedtektene av styret og forretningsfører og krever ikke vedtak av sameiermøtet.

ooOoo

Dette utkastet til vedtekter er utarbeidet av utbygger/selger i forbindelse med salg av leiligheter og parkeringsplasser i prosjektet Hårstad Minde, og vil kunne bli endret i forbindelse med ferdigstillelse av prosjektet og kommunale reguleringsbestemmelser, kommunens behandling av seksjoneringssøknad, endring i organisering, oppdeling i flere eierseksjonssameier/borettslag, opprettelse av anleggsei endommer mv. Det vises til de forbehold som er tatt i prospekt/kjøpekontrakt/salgsmateriell. Vedtektene fas tsettes av utbygger.

3. Utbygger har ansvar for utvikling og utforming av alle områder frem til de er overtatt av velforeningen. Inntil eiendommen er ferdig utbygd har utbygger, vetorett i alle saker som direkte gjelder ubebygde felt/områder.

4. Dersom Velforeningen pådras kostnader som knytter seg direkte til ikke ferdig utbygde felt, eller deler av slike felt, skal disse kostnadene dekkes av utbygger.

5. Kostnader som direkte knytter seg til eiendommens drift, herunder eiendomsskatt, kommunale avgifter, brøyting, strøm, service mm har utbygger rett til å viderefakturere iht. pro & contra avregning.

6. Bestemmelser i pkt. 1 9 kan bare slettes etter samtykke fra utbygger. Ved samtykke til sletting fra Hårstad Minde AS, kan forretningsfører eller styret ta ut punktet fra vedtektene uten samtykke fra årsmøtet.

Vedlegg 1 – Foreningens geografiske område

Ladeløsning Hårstad Minde

Zaptec Pro 4G 22kW

-Laderen er din private og du kan ta med deg denne om du flytter ut av borettslaget

-Laderen passer til alle typer el-biler og hybrid biler

-Ladekabel mellom lader og bil følger ikke med, men kan bestilles til Elteam ved behov

For ytterligere info om Zaptec sine lader se: https://zaptec.com/ladestasjon-zaptec-pro/

Kjøpetilbud på prosjektert leilighet i Hårstad Minde 3

Kjøpetilbudet gjelder bolig. nr.________

Undertegnede inngir herved bud på ovennevnte eiendom,

Innskudd kr._________________________ + fellesgjeld kr. _______________ + omkostninger.

KTOMTEVERDI>

Omkostningene omfatter:

Etablering IN-avtale

Andel dokavift/tgl.gebyr borettslag

Tingl.gebyr BRL-skjøte

Tingl.gebyr pantedokument BRL

Andelskapital borettslag

5 000 ,kr. 545 ,- kr. 545 ,- kr.

Etablering av borettslag kr. kr. 5 000 7 000 ,, -

Totale omkostninger kr. 28 445 ,-

Kjøpesummen blir ikke indeksregulert. Kjøpesummen skal i sin helhet innbetales ved overtagelse av boligen.

Kjøpet vil bli finansiert slik:

Låneinstitusjon: Evt.referanse: kr.___________________,-

Egenkapital____________________________________________ kr.___________________,-

Eventuelle forbehold:

NÆRVÆRENDE BUD ER BINDENDE FOR UNDERTEGNEDE FREM TIL OG MED DEN____________KL.16.00. (MINIMUM 3 DØGN)

Kjøpsbetingelser / krav til finansiering

Undertegnede er kjent med at budet er bindende for meg/oss når det er kommet til selgers kunnskap. Bindende avtale er regulert iht. Lov om avtaler av 31. mai 1918. Handelen er juridisk bindende for begge parter dersom budet aksepteres innen akseptfristen

Budet er gitt med bakgrunn i prosjektets standardkontrakt, salgsoppgave med tilhørende deklarasjon, tegninger. Disse dokumenter er lest og akseptert av kjøper

Undertegnede er kjent med at selger står fritt til å godta eller forkaste ethvert bud.

Dersom budet blir akseptert må kjøper på eget initiativ fremlegge en godkjent finansieringsbekreftelse til megler innen 21 dager etter selgers aksept iht. Bustadoppføringslova § 46 2. ledd. Dersom kjøper innen fristen ikke overholder sin forpliktelse med tilfredsstillende finansieringsbekreftelse iht. prosjektets standardkontrakt, er kjøper allikevel bundet og selger vil kunne påberope avtalen som vesentlig misligholdt og heve avtalen. Kjøper samtykker til at omkostninger knyttet til heving og dekningssalg i så fall dekkes av kjøper.

Navn:

Personnummer:

Adresse:

Postnr.: Sted:

Tlf.: E-post:

Dato: Sign:

Jeg samtykker til at mitt navn, adresse, telefonnummer og e-post deles med nødvendige underleverandører, forretningsfører og samarbeidspartnere i prosjektet for min kjøpte bolig. Kontaktinformasjonen kan bli brukt til å ta kontakt med meg på telefon, e-post eller SMS. Samtykket er gyldig frem til overlevering av boligen

Navn:

Personnummer

Adresse:

Postnr.: Sted:

Tlf.: E-post:

Dato: Sign:

Jeg samtykker til at mitt navn, adresse, telefonnummer og e-post deles med nødvendige underleverandører, forretningsfører og samarbeidspartnere i prosjektet for min kjøpte bolig. Kontaktinformasjonen kan bli brukt til å ta kontakt med meg på telefon, e-post eller SMS. Samtykket er gyldig frem til overlevering av boligen

Kopi av legitimasjon med bilde

av legitimasjon med bilde

Kopi

Hårstad Minde AS c/o Heimdal Eiendomsmegling AS Vestre Rosten 69, 7072 Heimdal

FINANSIERINGSBEVIS

4-24-9001

________________ er innvilget finansiering i vår bank med kjøp av bolig i Trondheim kommune.

Prosjektet: Hårstad Minde 3

Leilighet:__________

I følge anmodning fra kjøper, bekreftes herved at kroner (+ omkostninger)

er reservert for utbetaling til Hårstad Minde AS ved Heimdal Eiendomsmegling AS, klientkonto 4230 16 16400, i henhold til bindende avtale mellom partene. Dette finansieringsbeviset er bindende og irreversibelt.

Det forutsettes at Heimdal Eiendomsmegling AS innestår for tinglysing av skjøte i henhold til bindende avtale mellom partene og evt. pantedokument.

Denne bekreftelsen er betinget av at det blir stilt sikkerhet for deres forpliktelser etter kontrakten i henhold til Bustadoppføringslova av 13 juni 1997.

Sted/dato Navn + stempel

Egne notater

Andreas Sandem

Eiendomsmegler 478 20 482

as@hem.no

Thor Ivar Sjaastad

Eiendomsmegler 474 62 092

tis@hem.no

Nils Borgar Husby

Eiendomsmegler/Jurist 957 37 869

nbh@hem.no

Turn static files into dynamic content formats.

Create a flipbook
Issuu converts static files into: digital portfolios, online yearbooks, online catalogs, digital photo albums and more. Sign up and create your flipbook.