Rådhusplassen Bygg B T2 vedlegg

Page 1


Vedlegg Trinn 2 - Bygg B

RÅDHUSPLASSEN – HELT NYE SELVEIERLEILIGHETER HVOR DU ER I SENTRUM

Komplett kjøperinformasjon ved kjøp av prosjektert bolig i prosjektet: Rådhusplassen - byggetrinn 2

Dato: 23/1 2025

Inneholder: Dato:

Leveransebeskrivelse 08012025

Romskjema 08012025

Snitt/fasade/plantegninger Udatert

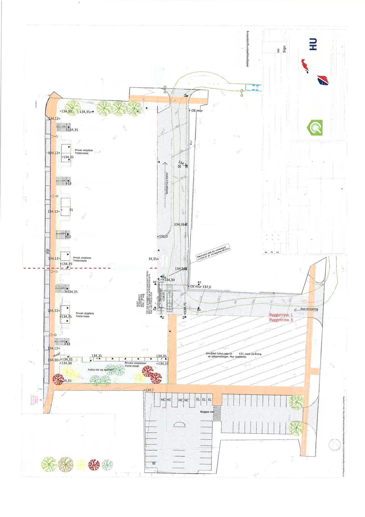
Landskapsplan 30092022

Arealoppgave 22012025

Kartutsnitt med reguleringsbestemmelser 18062019

Forslag til driftsbudsjett for januar 2025

Forslag til vedtekter sameiet, fellessameiet og velforening januar 2025

Finansieringsbevis 23012025

Kjøpetilbud 23012025

LEVERANSEBESKRIVELSE RÅDHUSPLASSEN

Innledning

Utbyggingsprosjektet Rådhusplassen i Klæbu i Trondheim kommune, består av 5 boligblokker med totalt ca 95 leiligheter i varierende størrelser Utbyggingen vil foregå trinnvis. Egen parkering i kjeller og deler av 1.etg. Leveranser utføres i henhold til gjeldende forskrifter. TEK 17 er gjeldende for dette prosjektet. Der ikke annet fremgår av kontrakt, beskrivelser eller tegninger, gjelder Norsk Standard NS3420 normalkrav til toleranser for ferdige overflater i bygninger, ref. fellesbestemmelser del 1. Alle krav til lydverdier, tilgjengelig boenhet og øvrige krav i plan- og bygningsloven med tekniske forskrifter følges og ivaretas av utførende totalentreprenør

Tekniske anlegg, utendørsanlegg

Tomt/utomhus-fellesanlegg

Tomten opparbeides i henhold til utomhusplan. Deler av uterommet skal opparbeides som felles leke og oppholdsareal.

Drift og vedlikehold av utomhusarealer overtas av borettslaget ved innflytting.

Det understrekes at prospektets utomhusplan ikke er bindende med detaljutforming av uteområder med hensyn til beplanting, utstyr etc., og at salgsprospektet kan inneholde illustrasjoner som ikke blir levert. Senere ferdigstillelse på grunn av årstid er ikke å regne som en mangel.

Veier og parkeringsplasser

Det opparbeides bil, sykkel- og handicapparkering iht. kommunale krav og retningslinjer. Det etableres plasser for sykkelparkering på egnet sted.

Avfallshåndtering

Det etableres felles avfallshåndteringsenhet. Dersom anlegget ikke er ferdigstilt til innflytting vil provisoriske løsninger bli etablert.

Utstikking/plassering

Utbygger forbeholder seg retten til å heve / senke boligene dersom dette er nødvendig for å gi boligene best mulig tilpassing i terrenget. Det tas forbehold om justering i plassering, terrenglinjer og høyder i forhold til angivelser på tegning/planer.

Boder

Enkelte leiligheter leveres med innvendig bod, mens noen av de minste leilighetene leveres uten bod. Alle leiligheter blir levert med bod i parkeringskjeller / 1.etg iht myndighetskrav.

Lys og strøm i bodanlegg vil være over felles bryter. Låssystem tilpasset systemlåsene.

Postkasser

Postkasser plasseres på egnet sted. Låssystem tilpasset systemlåsene.

LEVERANSEBESKRIVELSE RÅDHUSPLASSEN

Parkering

Blokken etableres med parkering som består av to separerte områder for parkering, et område i kjeller og et område i 1.etg. Det blir også etablert egen sykkelparkering

Alle som disponerer en parkeringsplass plikter å betale sin forholdsmessige andel av driftsutgifter for parkeringskjelleren. Det er avsatt 2 stk. handicap-plasser i parkeringskjeller. Dette innebærer at dersom noen kan dokumentere et behov for HC-parkering, og samtidig disponerer/eier en parkeringsplass, så vil det måtte gjennomføres et internt bytte av parkeringsplass. Dette håndteres av styret i sameiet.

Trapperom, utvendige trapper og svalganger.

Trapp og svalgang prosjekteres og utføres etter gjeldende krav om brannsikring. Trappen blir etablert som en innvendig betongtrapp i fra kjelleretasje. Innvendig betongtrapp leveres med flislagte trinn.

Gulv i hovedinngangspartier leveres med flislagte overflater. Takterrassen levers med terrassebord til dekke. Vegger og himlinger leveres malt.

Heis

Det leveres en heis pr blokk i lukket heissjakt. Heiskupe er ferdig overflatebehandlet fra leverandør.

Vann og avløps (VA) – anlegg

Det opparbeides og leveres VA- anlegg utført etter kommunal godkjent plan. Det leveres stikkledninger fra hovedanlegg og frem til inntak ved hver boenhet. Takvann føres til overvannsnett i henhold til godkjent teknisk løsning

Bæresystem

Bærekonstruksjonen til blokken blir etablert i betongelementer/ plasstøpt betong og stål. Bærende etasjeskiller og seksjonsvegger blir oppført i betong.

Yttertak

Takkonstruksjonen utføres i tre/stål/betong, med isolasjon og membrantekking/papp.

Isolasjonstykkelse i tak er basert på beregning og dokumentasjon av at boligens samlede energi- og effektbehov ligger innenfor energirammer i TEK17. Taknedløp føres innvendig i sjakt. Avrenning fra takterrasse og balkonger kan legges i utvendig taknedløp.

Yttertak tekkes med papp. Det etableres fall mot sluk, isolering og tekking etter forskrifter.

Etasjeskiller/gulv

Alle etasjeskiller utføres i betong, Krav til lyd, bæreevne, brannmotstand og stivhet blir tilfredsstilt etter forskrifter.

Gulv på grunn utføres i betong

Utvendige vegger

Utvendige vegger utføres etter krav til bæreevne, stivhet, varmetap, lys og brann etter gjeldende forskrifter og standarder. Isolasjonstykkelse i yttervegg er basert på beregning og dokumentasjon av at boligens samlede energi- og effektbehov ligger innenfor energirammer i TEK17.

LEVERANSEBESKRIVELSE RÅDHUSPLASSEN

Oppbygging yttervegg

Kledning, luftespalte, vindsperre, isolert bindingsverk, dampsperre, isolert innvendig påforing 48x48, 13mm sparklet og malt gips eller tilsvarende oppbygging.

Vinduer og utvendige dører

Leveres i henhold til fastsatte energi-, brann og lydkrav, og med funksjonskrav i henhold til tekniske forskrifter. Fabrikkmalt.

Innerdører

Innvendige dører leveres hvite ensfarget, glatte dørblad/ skyvedører med hvitmalte karmer, foringer og synlige spikerhull. Låser og beslag i stål.

Vertikale leilighetsskiller, med brann og lydkrav

Utføres i betong/tre og gips Nødvendig utforinger for tekniske føring, hvor dette er nødvendig.

Overflater med sparklet og malt gips/betong.

Lettvegger

98mm isolert bindingsverk, sparklet og malte gipsplater på hver side.

Baderom

Flis med nødvendig underliggende membranlag. Veggtykkelser i de enkelte enheter kan variere grunnet føringer for tekniske installasjoner Konstrueres etter tekniske forskrifter.

Baderom leveres med vegghengt toalett. Vask og innredning leveres i henhold til rombehandlingsskjema og vedlagte tegninger. Ett- greps batteri for dusj og servant. Det leveres dusjhjørne med sluk, samt kran og avløp for vaskemaskin.

Himlinger

Himling leveres i hvitmalt gips evnt malt betong Det skal være skjulte rørføringer for tekniske installasjoner i himling, med det kan være nødvendig med innkassinger som helt eller delvis nedforinger. I fellesareal kan rør og tekniske føringer være synlige.

Standard romhøyde er minimum 2,4m. På bad og evt. wc, gang/entre, bod og soverom kan utbygger velge å senke takhøyden til inntil 2.20m.

Balkong/ terrasse

Balkong/terrasse plasstøpt betong/ betongelementer. Utformingen av rekkverk vil være i stål eller trevirke/glass

Balkong og terrassedør leveres med godkjent åpningsmulighet for rømning i henhold til brannkonsept.

Tak og vindusbeslag

Beslag leveres plastbelagt.

LEVERANSEBESKRIVELSE RÅDHUSPLASSEN

Kjøkken-kjøkkeninnredninger

Kjøkkeninnredning fra JKE, Aubo eller lignende med innebygde hvitevarer, inngår i leveransen.

Det monteres Waterguard. Vannstopper/lekkasjesikring.

Det leveres følgende hvitevarer til kjøkken:

- Oppvaskmaskin

- Kjøleskap med frysedel

- Komfyr og platetopp

Det kan forekomme avvik fra arkitektens tegninger av kjøkken på salgstegningene og de gjeldende kjøkkentegningene. Kjøkkenbilder i prospekt er kun retningsgivende.

Tilvalg

Avhengig av byggearbeidets fremdrift, kan den enkelte kjøper få en begrenset mulighet til å variere standarden på sin enhet, etter en på forhånd priset tilvalgsliste Dette forutsetter imidlertid at fremdriften gjør dette mulig. Det er ikke mulig å endre på plassering av komponenter som forutsetter endring av føringer for tekniske installasjoner. Kjøper kan ikke kreve endringer som overstiger 15% av boligens totale kjøpesum, jfr. Bustadsoppføringsloven § 9.

Endringer vil være begrenset til:

- Type parkett

- Type dører

- Farge på vegger

- Tapet/ strie på vegger

- Type flis på våtrom og over kjøkkenbenk

- Tilvalg el- anlegg, ekstra stikk/ TV- og datauttak

- Kjøkken- og baderomsinnredning

Endringer forutsetter at avtaler med bestilling ikke er gjort hos leverandør. Utbygger kan kreve tilleggsfrist dersom endringer er av en slik karakter at dette blir nødvendig

Utbygger forbeholder seg retten til å velge leverandør av kjøkken og bad. Garderobe kan tilleggs bestilles

Energi

I henhold til energikrav fastsatt i TEK 17.

Oppvarming

Boligene tilkobles fjernvarme. Det vil være en måler pr leilighet med manuell avlesning. Fjernvarmen vil legges i gulv der det er beskrevet fjernvarme i romskjemaet.

Ventilasjon

Som standard leveres balansert ventilasjon, med nødvendig varmegjenvinning. Separat anlegg og styring for hver enkelt leilighet. Aggregat plasseres i bod. I leiligheter uten innvendig bod plasseres aggregatet i kjøkkenskap. Inn- luft i alle tørre rom, avtrekk på kjøkken og bad. Rørføringer vil i all

LEVERANSEBESKRIVELSE RÅDHUSPLASSEN

hovedsak bli skjult bak innkassing, eller i nedforet himling. Ventilasjonsaggregat vil kunne endres som følge av detaljprosjektering i prosjektet.

Sanitær

Rørføringer skal hovedsakelig monteres skjult, evt. innkasses.

Det skal leveres rør-i-rør system i alle enheter. Fordelingsskap monteres på egnet sted.

Sprinkling

Det levers røykvarslere og slukningsutstyr i tråd med myndighetenes krav. Parkeringskjeller og boligene leveres fullsprinklet, og det vil være synlige sprinklerhoder i himling og på vegg.

Elektriske installasjoner

Anlegget leveres som vanlig skjultanlegg med innfelt materiell der det er teknisk mulig. Åpne føringer må kunne påberegnes. Det monteres utvendig belysning ved inngang, og på balkonger.

Sterk-/svakstrøms anlegg

Det føres frem sterk- og svakstrømsannlegg til området med tilknytning til hver boenhet. Anlegget legges i jordkabel og utføres i henhold til offentlige/kommunale krav. Fremføring av rør og tilkobling til bredbånd/kabel-tv antenneanlegg til hver boenhet. Sikringsskap og fordelerskap for svakstrøm, plasseres på egnet sted. Ladestasjon for el-bil kan bestilles som tilvalg.

Det må påregnes abonnementsavgifter for TV og data.

Ringeanlegg

Ringeknapp monteres på hver inngangsdør til leilighetene. Porttelefon.

Belysning

Belysning på kjøkken, soverom, stue, bad, bod og entre som beskrevet under. Utelys på veranda og ved hovedinngangsdør. Belysning med bevegelsessensor i parkeringskjeller.

Entre og stue

I entre leveres downlights med dimmer, iht. elektrotegning. I stue leveres stikk ved tak.

Kjøkken

På kjøkken leveres downlights/ledstripe under overskap i kjøkkeninnredningen iht beskrivelse fra kjøkkenleverandør/el-tegning og stikk ved tak.

Bad

På bad leveres lys i forbindelse med speil/baderoms innredning. I tillegg inngår innfelte downlights i tak.

Øvrige rom

WC, bod og soverom leveres med taklys.

Se forøvrig elektrotegningene. Ytterlige belysning vil være tilvalg

Brannslukningsutstyr og røykvarsler

Det leveres 1 stk pulverapparat pr leilighet, 6 kg.

Brannalarmanlegg leveres i henhold til forskrift.

LEVERANSEBESKRIVELSE RÅDHUSPLASSEN

Byggrengjøring

Boligen ryddes innvendig og utvendig for alt byggavfall før overlevering. Byggrengjøring utføres før overlevering. Kjøper må selv utføre ytterligere rengjøring.

Øvrige kjøpsforhold

Utbygger forbeholder seg retten til å foreta forandringer i materialvalg, valg av leverandører og konstruksjoner, forutsatt at opprinnelig funksjon og kvalitet opprettholdes.

Alle opplysninger i denne beskrivelsen er gitt med forbehold om rett til uten forutgående varsel å gjøre endringer som er hensiktsmessige og nødvendige, eksempelvis etter offentlige pålegg.

Tegninger i prospektet er kun illustrasjoner og kan avvike noe i forhold til plan- og fasadetegninger som vedlegges kontrakt.

Beplanting og blomster, innredning, tepper, møbler, markiser, og annet tilbehør utover det som er beskrevet ovenfor, leveres ikke.

Det tas forbehold om at det kan være mangler i sjakter og føringsveier for VVS installasjoner som er inntegnet og at endringer av disse vil kunne forekomme i byggeprosessen. Innkassinger vil ha varierende størrelse.

Med mindre annet er avtalt i kontrakten, omfatter leveranse følgende:

- Ferdig oppført bolig i henhold til kontrakt og kontraktsdokumenter

- Opparbeidelse av tekniske anlegg og installasjoner, betong- og fundamentarbeider.

- Nøkkelklar bolig etter gjeldende standard, TEK 17, tegninger og øvrig prosjekteringsmateriell.

- Hvitevarer til kjøkken – Oppvaskmaskin, kjøleskap med frysedel, komfyr og platetopp, iht kjøkkentegninger.

Med mindre annet er avtalt i kontrakten, omfatter ikke leveransen:

- Varmeovner eller varmeanlegg ut over det som er angitt i dette dokumentet.

- Lysarmatur eller annet elektrisk utstyr ut over det som er angitt i dette dokumentet.

- Utstyr og innredninger som på arkitekttegninger er vist med stiplet linje, dette gjelder også all nødvendig klargjøring for senere bruk (f.eks. rør-, kanal- og kabelfremføringer).

- Møbler, innredning som vist på tegninger.

- Garderobeskap

Presiseringer

Trebaserte materialer påvirkes av fuktighet og uttørking. Det kan oppstå sprekker på grunn av bevegelser i materialene. Vi gjør oppmerksom på at utbygger ikke påtar seg reklamasjonsansvar for utbedring av slitasjeskader på innvendige flater, som malte flater og parkett, som evt. kan oppstå grunnet overnevnte etter overtakelse av leiligheten eller feil vedlikehold.

Listverk vil ha synlige spikerhoder.

Forbruker kan ikke før overtakelse tilføre materiell og utstyr, eller selv utføre egeninnsats

Kjøper gjøres oppmerksom på at skisser, 3D-tegninger, bilder, fotos m.m. i prospekt og annonserer er av illustrativ karakter. Dette materiellet kan vise mengde, type innredning og detaljer m.m som ikke nødvendigvis inngår i den ferdige leveransen. Dette materiellet er ikke å anse som en del av avtalevilkårene for kjøpet. Slike avvik kan ikke påberopes som mangel fra kjøpers side.

LEVERANSEBESKRIVELSE RÅDHUSPLASSEN

Terrenglinjer på fasadetegning er kun illustrerende og er derfor ikke retningsgivende.

Utbygger påtar seg HMS- ansvar etter byggherreforskriften, under byggeperioden.

Byggets form, konstruksjon, standard og kvalitet er fastlagt, men det tas forbehold om eventuelle endringer i forhold til prospektet. Vindusplassering i den enkelte enhet kan avvike noe fra de generelle planer, som følge av blant annet statiske utformingen av bygget.

Offentlige forhold

Kjøper aksepterer at det på eiendommen kan påheftes servitutter/ erklæringer som måtte bli påkrevd av offentlig myndighet, deriblant erklæring som regulerer drift og vedlikehold av fellesområder og drift og vedlikehold av energi/ nettverk.

Klæbu 08.01.2025.

Rådhusplassen Blokk B

ROMBEHANDLINGSSKJEMA

Ventilasjon Annet

Sanitær /varme

Balansert ventilasjon i hht . forskriftskrav .

Fjernvarme i gulv.

Elektro

NEK

400:2018 O pplegg for TV / data. Doble stikk

Himling

Sparklet og malt gips . Evt. sparklet og malt betong . I hht

Vegger

Golv

Hvitevarer inngår i standard leveranse . Mulig het for tilvalg

Kjøkken avtrekk. Balansert ventilasjon i hht. forskriftskrav.

O ppvaskkum m/ettgreps armatur . Opplegg for oppvask mask in. Water guard Vannstopper/lekkasjesikring Fjernvarme i gulv.

NEK 400:2018 Komfyrvakt. Takstikk med bryter Downlights /ledlist med dimmer under overskap. Doble stikk

Sparklet og malt gips. Evt. sparklet og malt betong . I hht

Parkett eik. Golvlister. Trevegger med gips , Sparklet og malt . Evt. s parklet og malt betongoverflate. Ferdig overflatebehandlede d ører og vinduer med tilpasset listløsning . Synlig innfesting av listverk.

Parkett eik. Golvlister. Trevegger med gips , Sparklet og malt . Evt. sparklet og malt betongoverf late

Balansert ventilasjon i hht. forskriftskrav.

Evt. fordelerskap. Fjernvarme i gulv.

400:2018 Downlights med dimmer. Ringeklokke. Doble stikk

Sparklet og malt gips. Evt. sparklet og malt betong . I hht NEK

Parkett eik. Golvlister. Trevegger med gips , Sparklet og malt Evt. sparklet og malt betongoverf late

Fordelerskap. Aggregat for balansert ventilasjon . I mindre leiligheter plasseres aggregatet i kjøkkenskap

Sparklet og malt gips. Evt. sparklet og malt betong . I hht NEK 400:2018 Taklampe med bryter.

Parkett eik. G olvlister. Trevegger med gips , Sparklet og malt . Evt. sparklet og malt betongoverf late

Rom

Stue

Kjøkken

Entre/VF

Bod innvendig / Teknisk rom

Balansert ventilasjon i hht. forskriftskrav.

NEK 400:2018 Taklampe med bryter.

Sparklet og malt gips. Evt. sparklet og malt betong . I hht

Trevegger med gips , Sparklet og malt . Evt. sparklet og malt betongoverf late

Parkett eik. G olvlister.

Baderomsinnredning Mulig tilvalg

Balansert ventilasjon med avtrekk.

Servant. Ettgreps batteri for dusj og servant. Dusjhjørne. Vegg montert WC med utenpåliggende/ innebygd cisterne. Kran/avløp til v askemaskin. G u lvsluk. Fjernvarme /evnt varmekabler i gulv.

NEK 400:2018 Uttak for vaskemaskin og tørketrommel. Spotter med dimmer . Lysarmatur over speil eller integrert i vegghengt speil. gulvvarme

Sparklet og malt gips. Evt. sparklet og malt betong . I hht

Membran og keramiske fliser. Membran og keramiske fliser.

Oppmerkede oppstillingsplasser.

Ventilasjonsanlegg etter forskrifter.

Dobbel stikkontakt til hver leilighet Belysning, lampe på vegg

Trevirke/ platekledning over terrasser og balkonger.

Fasade og rekkverk i ht . beskrivelse

Belysning med bevegelsessensor

Etter behov.

08.01.25 Soverom

Bad

Tre/Betong

Terrasser / balkonger

Betongvegger m alt

Betong/ evt asfalt

Garasjekjeller

Balansert ventilasjon med avtrekk.

Servant. Ettgreps batteri for servant. Vegg montert WC med utenpåliggende/ innebygd cisterne.

Felles / separat. belysning . Dobbel stik kontakt i hver bod over fellesanlegg.

Betong, himlingsplater. ubehandlet.

Skillevegger i OSB plater , stål, stålnett eller tre, uten overflatebehandling. Kles på en side. Dør tilrettelagt for låssystem som tilpasses systemlås.

Betong

B oder utvendig

Parkett eik. Golvlister. Sparklet og malt gips. Sparklet og malt gips. Evt. sparklet og malt betong I hht NEK 400:2018

WC

Evt.

Rydlandvegen

HAW Entreprenør AS Rådhusplassen Forenklet situasjonsplan TILTAKSHAVER:

TEGNINGEN VISER:

STATUS:

Byggemelding

Rådhusplassen Klæbu Blokk B

INNTEKTER

Oppstartsinntekter

Felleskostnader brøkfordelt

Felleskostnader enhetsfordelt

Leieinntekter parkering

Leieinntekter boder

Fjernvarme

Fellesavtale TV og Bredbånd

Felleskostnader Utomhusanlegg

BUDSJETT

190 000

338 000

148 229

57 600

11 400

156 827

68 172

41 042

Sum inntekter 1 011 270

KOSTNADER

Styrehonorar 19 000 Enhet bolig

Arbeidsgiveravgift 2 679 Enhet bolig

Revisjonshonorar 13 650 Enhet bolig

Forretningsførerhonorar 46 000 Enhet bolig

Diverse forvaltning 5 000 Enhet bolig

Andre honorarer 20 000 Enhet bolig

Adm.kostnader og porto 1 000 Eierbrøk bolig

Møteutgifter fellesmøter 3 000 Eierbrøk bolig

Andre tekniske anlegg, reparasjoner, service

30 000 Eierbrøk bolig

Heis 30 000 Eierbrøk bolig

Brannalarm 15 000 Eierbrøk bolig

Mobilt vakthold og nøkkeloppbevaring 3 000 Eierbrøk bolig

Vaktmester/ driftstilsyn 60 000 Eierbrøk bolig

Sommervedlikehold

Felleskostnader til Realsameiet Utomhusanlegg

Felleskostnader til Parkeringskjeller

Renhold og matteleie

Diverse drift, utskiftninger og utstyr

Filterskifte

Strøm

Fjernvarme

Fellesavtale TV og bredbånd

Forsikringspremier

Avsetning til framtidig vedlikehold

Bank- og kortgebyr

10 000 Eierbrøk bolig

41 042 FK Utomhusanlegg

69 000 FK Parkeringskjeller

50 000 Eierbrøk bolig

10 000 Eierbrøk bolig

11 400 Enhet bolig

35 000 Eierbrøk bolig

156 827 Fjernvarme

68 172 TV

72 000 Eierbrøk bolig

19 000 Eierbrøk bolig

2 000 Enhet bolig

Oppstartskostnader 28 500 Enhet bolig

Sum kostnader 821 270-

RESULTAT

190 000

Antall enheter 19 Sum eierbrøk 1 452

FORUTSETNINGER:

Ovennevnte budsjett er et forslag basert på mottatt, innhentet og kjent informasjon på utarbeidelsestidspunktet.

Felleskostnader må derfor anses som estimater for tidspunkt for salg.

Endringer i eiendomsorganiseringen, oppdeling av sameier, eierbrøk, leveranser mm., vil medføre endringer i budsjettposter og fordelte felleskostnader.

Kommunale avgifter og eiendomsavgift faktureres den enkelte seksjonseier direkte fra Trondheim kommune.

Budsjettet baserer seg på årskostnader.

Det innbetales kr 10.000,- per seksjon i oppstartskapital til sameiet.

I tillegg kommer:

Oppstartskapital til parkeringssameie: kr 5.000,-

Oppstartskapital til realsameie (felles utomhusareal): kr 2.500,-

Utarbeidet av Kjeldsberg Boligforvaltning AS

24.01.2025

Rådhusplassen Klæbu Blokk B

Det presiseres at dette er et foreløpig utkast til vedtekter, utarbeidet i forbindelse med salgsstart. Disse er kun ment å gi et bilde av de rettigheter og forpliktelser som følger av sameieforholdet, og det tas forbehold om senere endringer, bl.a. i forbindelse med innsendelse av seksjoneringsbegjæring. Alle tillatelser til deling osv foreligger ikke, og det tas spesielt forbehold om at det kan bli endringer som følge av at planlagt organisering av eiendommen ikke godkjennes av kommunen. Endelige vedtekter vedtas på konstituerende årsmøte i sameiet.

VEDTEKTER

FOR

«Sameiet Rådhusplassen Blokk B»

Vedtatt i medhold av lov om eierseksjoner 16. juni 2017 nr. 65

1. gang vedtatt: Fastsatt i forbindelse med seksjonering.

INNLEDENDE BESTEMMELSER

§ 1 NAVN OG FORMÅL

Sameiets navn er: Sameiet Rådhusplassen Blokk B

Sameiet omfatter eiendommen: gnr… bnr.., utskilt fra gnr. 51, bnr 485 i Klæbu kommune. Eiendommens adresse er:

Sameiet er iht. seksjoneringsvedtak oppdelt i 19 seksjoner som er seksjonert til boligformål.

Fastsettelse av seksjonens sameiebrøk bygger på bruksenhetens bruksareal fra tegning, avrundet til nærmeste hele tall. Bruksareal fra tegning kan avvike og kan ikke legges til grunn for enhetens faktiske areal. Tomten og deler av bebyggelsen som ikke omfattes av eierseksjoner er fellesareal.

Sameiet har til formål å ivareta seksjonseiernes felles interesser. Disse vedtektene regulerer forholdet mellom de enkelte seksjonseiere og foreskriver drift og administrasjon av eiendommen

Eier av hver seksjon har eksklusiv bruksrett til sin seksjon – hoveddel og tilleggsdeler – i henhold til tinglyst seksjoneringsvedtak

Hver seksjonseier plikter å overholde bestemmelsene som følger av seksjoneringsvedtaket, lov om eierseksjoner, disse vedtekter, generelle ordensregler fastsatt av årsmøtet, samt de til enhver tid gjeldende offentlige bestemmelser.

Årsmøtet vedtar ordensregler som gjelder samtlige som bruker eiendommen Eiere er ansvarlige for at beboere, leietakere og gjester følger ordensreglene.

§ 2

PARKERING – BODER - TAKTERRASSE

Om parkering; Parkeringskjeller og parkerings-/bodareal i 1. etg vil bli søkt etablert som egen anleggseiendom, og organisert som et tingsrettslig sameie. Herværende punkt vil bli justert når organisasjonsform er endelig avklart.

Se for øvrig § 25 med informasjon om fremtidige byggetrinn sin tilknytning til ovennevnte anleggseiendom, herunder også byggetrinn 3 på tilliggende eiendom.

Alle forhold som gjelder rettigheter og plikter i forbindelse med bruk av parkeringsarealet er regulert i dette sameiet sine vedtekter.

Den enkelte seksjonseier vil eie en ideell andel av parkeringsområdet gjennom at det opprettes en realtilknytning, det vil si at eierandeler i det tingsrettslige sameiet knyttes opp mot den seksjonen som disponerer retten til parkering. Ovennevnte gjelder i utgangspunktet for 16 av de 19 eierseksjonene.

De øvrige eierseksjonene vil ha fortrinnsrett til å erverve egen p-plass fra overskuddsplasser, jfr. avsnitt nedenfor.

Eierandel til p-plass tinglyses på matrikkelen til den som skal ha rettigheten.

Om boder: Alle boligseksjoner har tilgang til minimum en egen bod.

Overskuddsplasser parkering / boder; Overskuddsplasser av parkering / boder planlegges seksjonert som næringsareal. Disse skal kunne omsettes både til seksjonseiere og eksterne. Eventuelle seksjonseiere i prosjektet som i utgangspunktet ikke har tildelt egen p-plass, skal ha fortrinnsrett til å erverve egen p-plass fra overskuddsplassene. Det skal utarbeides egne retningslinjer som skal gjelde for salg / disponering av disse p-plassene / bodene.

Om takterrasse; Den enkelte seksjonseier i Blokk A og Blokk B har tilgang til utendørs takterrasse, som er etablert i tilknytning til Blokk A. Den samme rettigheten vil også gjelde for eventuelt senere byggetrinn under prosjektet. Kostnader ved drift og vedlikehold av takterrassen anses som felleskostnad, jfr. § 22, som vil bli fordelt mellom samtlige eierseksjoner som er / vil bli etablert under prosjektet.

§ 3

ELEKTRONISK KOMMUNIKASJON

All informasjon til seksjonseier vil bli sendt ut elektronisk per e-post. Den enkelte seksjonseier plikter til enhver tid å sørge for at oppdatert kontaktinformasjon er registrert hos styret og forretningsfører.

Den enkelte seksjonseier kan søke styret om å bli unntatt bestemmelsen i første ledd, og dermed motta all kommunikasjon per ordinær post. Godkjenning kan ikke nektes uten saklig grunn.

§ 4 EIERFORHOLD

Både enkeltpersoner og juridiske personer kan eie seksjoner i sameiet. Med en seksjonseier menes i disse vedtekter den som står som eier, eller de som i fellesskap står som eiere av en bestemt seksjon.

Den enkelte seksjonseier står fritt til å selge til den han eller hun måtte ønske. Ingen seksjonseiere eller andre har noen form for forkjøpsrett til seksjoner i sameiet.

Ingen kan erverve mer enn to seksjoner i sameiet, jfr. Eierseksjonslovens § 23.

§ 5 HEFTELSESFORM

For felles ansvar og forpliktelser hefter den enkelte seksjonseier i forhold til sin sameiebrøk.

§ 6

RÅDERETT

Den enkelte seksjonseier har full rettslig råderett over sin seksjon, og eventuelle eksklusive bruksretter. Seksjonen kan ikke skilles fra deltakerinteressen i sameiet.

Korttidsutleie av hele boligseksjonen i mer enn 90 døgn årlig er ikke tillatt. Med korttidsutleie menes utleie i inntil 30 døgn sammenhengende.

Seksjonen kan fritt utleies for langtidsutleie. Forpliktelser og rettigheter etter disse vedtekter kan dog ikke skilles fra eierandelen, og er den enkelte seksjonseiers fulle ansvar.

Salg og utleie skal varsles styret slik at man har kontroll på hvem som eier/bor i sameiet til enhver tid, dette av sikkerhetsmessige hensyn.

Den enkelte seksjon samt fellesarealene kan bare nyttes i samsvar med formålet, og må ikke nyttes slik at det er til unødig eller urimelig ulempe for de øvrige seksjonene. Fellesanlegg må ikke nyttes slik at andre brukere unødig eller urimelig hindres i den bruk av anleggene som er avtalt eller forutsatt mellom seksjonseierne. Ved vurderingen av hva som anses som unødig eller urimelig, skal det også tas hensyn til opprinnelig forutsatt bruk av eiendommen.

Boligseksjonene skal kun benyttes til beboelse, og kan ikke – uten sameiestyrets skriftlige godkjennelse brukes til ervervs – eller yrkesmessig virksomhet eller på annen måte som medfører ulempe for de øvrige seksjonseierne/boligenhetene. Eventuell næringsdrift tillates bare i den utstrekning at vedkommende leilighet fortsatt i all hovedsak benyttes til boligformål.

Det er etablert en egen gjeste-/utleieleilighet i Blokk A, seksjonert som fellesareal og som skal kunne leies og benyttes av gjester til seksjonseierne. Blokk B og eventuelt senere byggetrinn vil ha tilsvarende rett til å leie denne. Drift og utleie av leiligheten administreres av styret i ht. egne retningslinjer som skal utarbeides av styret.

Kostnader knyttet til drift og vedlikehold er å anse som felleskostnader som skal fordeles mellom samtlige eierseksjoner som har denne rettigheten.

§ 7 OM ÅRSMØTET OG INNKALLING

Årsmøtet har den øverste myndigheten i sameiet. Ordinært årsmøte skal holdes hvert år innen utgangen av juni. Ekstraordinært årsmøte skal holdes når styret finner det nødvendig, eller når minst to seksjonseiere som til sammen har minst ti prosent av stemmene, krever det og samtidig oppgir hvilke saker de ønsker behandlet."

Styret beslutter hvordan årsmøtet skal gjennomføres. Årsmøtet skal gjennomføres som fysisk møte dersom minst to seksjonseiere som til sammen har minst ti prosent av stemmene, krever det. Styret kan sette en frist for når et krav om fysisk møte kan settes frem. Fristen kan tidligst løpe fra seksjonseierne har blitt informert om hvilke saker årsmøtet skal

behandle, og må være så lang at seksjonseierne får rimelig tid til å vurdere om de skal fremme krav om fysisk møte. Dersom årsmøtet ikke gjennomføres som fysisk møte, må styret sørge for en forsvarlig gjennomføring og at det foreligger systemer som sikrer at lovens krav til årsmøte er oppfylt. Systemene må sikre at deltakelsen og stemmegivningen kan kontrolleres på en betryggende måte, og det må benyttes en betryggende metode for å bekrefte deltakernes identitet.

Styret innkaller årsmøtet med et skriftlig varsel som skal være på minst åtte og høyst tjue dager. Styret kan om nødvendig innkalle til ekstraordinært årsmøte med kortere varsel, men varselet kan aldri være kortere enn tre dager.

Innkallingen skal tydelig angi de sakene årsmøtet skal behandle.

Skal årsmøtet kunne behandle et forslag som etter loven eller vedtektene må vedtas med minst to tredjedels flertall av de avgitte stemmene, må hovedinnholdet være angitt i innkallingen.

Styret skal på forhånd varsle seksjonseierne om dato for møtet og om siste frist for å innlevere saker som ønskes behandlet. Saker som en seksjonseier ønsker behandlet i det ordinære årsmøtet, skal nevnes i innkallingen når styret har mottatt krav om det før fristen.

Senest en uke før ordinært årsmøte skal regnskap sendes ut til alle seksjonseiere med kjent adresse. Dokumentet skal også være tilgjengelig i årsmøtet.

Blir det ikke innkalt til årsmøte som skal holdes etter loven, vedtektene eller tidligere beslutning på årsmøte, skal tingretten snarest innkalle til årsmøte når det kreves av en seksjonseier, et styremedlem eller forretningsføreren. Kostnadene dekkes som felleskostnader.

§ 8 SAKER SOM SKAL BEHANDLES PÅ ÅRSMØTE

Årsmøtet skal behandle de sakene som er angitt i innkallingen til møtet.

Uten hensyn til om sakene er nevnt i innkallingen, skal det ordinære årsmøtet behandle:

a) Regnskap for foregående kalenderår i revidert stand

b) Valg av styremedlemmer

c) Andre saker som er nevnt i innkallingen

Sameiets budsjett skal forelegges årsmøtet til orientering, dersom det ikke tidligere er behandlet i ekstraordinært årsmøte.

Bortsett fra saker som skal behandles av ordinært årsmøte kan årsmøtet bare ta beslutning om saker som er angitt i innkallingen til møtet. Hvis alle seksjonseierne er til stede på årsmøtet og stemmer for det, kan årsmøtet også ta beslutning i saker som ikke står i innkallingen. Styret kan beslutte å innkalle til nytt årsmøte for å avgjøre forslag som er fremsatt i møtet.

§ 9 STEMMERETTSREGLER

I årsmøtet regnes stemmene etter antall boligseksjoner, slik at hver boligseksjon har én stemme.

Flertall beregnes av avgitte stemmer på årsmøtet. Blank stemme regnes som ikke avgitt.

Ingen kan selv, ved fullmektig eller som fullmektig delta i avstemning der man er inhabil jfr. §15.

§ 10 MØTELEDELSE OG FLERTALLSKRAV

Styrelederen leder årsmøtet med mindre årsmøtet velger en annen møteleder. Møtelederen behøver ikke å være seksjonseier.

Med de unntak som følger av lov eller vedtektene avgjøres alle saker med vanlig flertall av de avgitte stemmer.

Det kreves et flertall på minst to tredjedeler av de avgitte stemmene på årsmøtet for å ta beslutning om:

a) ombygging, påbygging eller andre endringer av bebyggelsen eller tomten som etter forholdene i sameiet går ut over vanlig forvaltning eller vedlikehold

b) omgjøring av fellesarealer til nye bruksenheter eller utvidelse av eksisterende bruksenheter

c) salg, kjøp, utleie eller leie av fast eiendom, inkludert seksjoner i sameiet som tilhører eller skal tilhøre seksjonseierne i fellesskap, eller andre rettslige disposisjoner over fast eiendom som går ut over vanlig forvaltning

d) samtykke til at formålet for én eller flere bruksenheter endres fra boligformål til annet formål eller omvendt

Tiltak som har sammenheng med seksjonseiernes bo- eller bruksinteresser, og som går ut over vanlig forvaltning, og som fører med seg økonomisk ansvar eller utlegg for seksjonseierne i fellesskap på mindre enn fem prosent av de årlige felleskostnadene, besluttes med vanlig flertall av de avgitte stemmene på årsmøtet. Hvis tiltaket fører med seg økonomisk ansvar eller utlegg for seksjonseierne i fellesskap på mer enn fem prosent av de årlige felleskostnadene, kreves det et flertall på minst to tredjedeler av de avgitte stemmene på årsmøtet.

Hvis tiltak etter fjerde ledd fører med seg et samlet økonomisk ansvar eller utlegg for enkelte seksjonseiere på mer enn halvparten av folketrygdens grunnbeløp på det tidspunktet tiltaket besluttes, kan tiltaket bare gjennomføres hvis disse seksjonseierne uttrykkelig sier seg enige.

Alle seksjonseiere må, enten på årsmøtet eller på et annet tidspunkt, uttrykkelig si seg enige hvis sameiet skal kunne ta beslutning om:

a) vedtak om salg eller bortfeste av hele eller vesentlige deler av eiendommen

b) oppløsning av sameiet

c) tiltak som innebærer vesentlige endringer av sameiets karakter og tiltak som går ut over seksjonseiernes bo- eller bruksinteresser, uavhengig av størrelsen på kostnaden som tiltaket medfører, og uavhengig av hvor stort økonomisk ansvar eller utlegg tiltaket medfører for de enkelte seksjonseierne

Dersom det skal vedtas endringer i områder som disponeres gjennom eksklusiv bruksrett, kreves det samtykke fra rettighetshaver.

§ 11 GJENNOMFØRING AV ÅRSMØTET

Alle seksjonseierne har rett til å delta på årsmøtet med forslags-, tale-, og stemmerett.

Ektefelle, samboer eller et annet medlem av husstanden til eieren av boligseksjoner, styremedlemmer, forretningsfører, revisor og leier av boligseksjon har rett til å være til stede og til å uttale seg i årsmøtet.

En seksjonseier kan møte ved fullmektig. Fullmakten kan når som helst tilbakekalles.

Seksjonseieren har rett til å ta med en rådgiver til årsmøtet. Rådgiveren har bare rett til å uttale seg dersom et flertall på årsmøtet tillater det.

Møtelederen har ansvar for at det føres protokoll over alle saker som behandles, og alle beslutninger som tas på årsmøtet. Møtelederen og minst én seksjonseier som utpekes av årsmøtet blant dem som er til stede, skal underskrive protokollen.

§ 12 STYRET

Sameiet skal ha et styre med 3 – 5 medlemmer.

Styret skal bestå av én leder og fra to til fire andre medlemmer. Det kan i tillegg velges to varamedlemmer til styret.

Årsmøtet skal velge styret med vanlig flertall av de avgitte stemmene. Styrelederen skal velges særskilt.

Styreleder og styremedlemmer velges for to år. Varamedlemmer velges for ett år. Valg av styremedlemmer kan gjøres for ett år for å sikre kontinuitet i styret.

Kun fysiske personer kan være styremedlemmer.

Når særlige forhold foreligger, har et styremedlem rett til å fratre før tjenestetiden er ute. Styret skal ha et rimelig forhåndsvarsel om fratredelsen. Årsmøtet kan med vanlig flertall beslutte at et medlem av styret skal fratre.

§ 13

STYREARBEIDET

Styret skal sørge for vedlikehold og drift av eiendommen og ellers sørge for forvaltningen av sameiets anliggender i samsvar med lov, vedtekter og beslutninger på årsmøtet.

Styret skal ta alle beslutninger som ikke i loven eller vedtektene er lagt til andre organer. Beslutninger som kan tas med et vanlig flertall på årsmøtet, kan også tas av styret om ikke annet følger av lov, vedtekter eller årsmøtets beslutning i det enkelte tilfelle.

Styret kan ikke ta beslutninger eller handle på en måte som er egnet til å gi noen seksjonseiere eller utenforstående en urimelig fordel på andre seksjonseieres bekostning.

Årsmøtet kan trekke opp nærmere retningslinjer for styrets arbeid.

Styreleder og ett styremedlem i fellesskap forplikter sameiet og tegner sameiets navn. Styret kan gi prokura.

§

14

OM STYREMØTET

Styrelederen skal sørge for at styret møtes så ofte som det trengs. Et styremedlem eller forretningsføreren kan kreve at styret sammenkalles.

Styremøtet skal ledes av styrelederen. Er ikke styrelederen til stede, og det ikke er valgt noen nestleder, skal styret velge en møteleder.

Styret er beslutningsdyktig når mer enn halvparten av alle styremedlemmene er til stede. Beslutninger kan treffes med mer enn halvparten av de avgitte stemmene. Står stemmene likt, gjør møtelederens stemme utslaget. De som stemmer for en beslutning, må likevel utgjøre mer enn en tredjedel av alle styremedlemmene.

Et styremedlem kan ikke delta i behandlingen eller avgjørelsen av noe spørsmål som medlemmet selv eller dennes nærstående har en fremtredende personlig eller økonomisk særinteresse i.

Styret skal føre protokoll fra styremøtene. Alle de fremmøtte styremedlemmene skal undertegne protokollen.

§ 15 HABILITETSREGLER FOR ÅRSMØTE OG STYRE

Ingen kan selv eller ved fullmektig eller som fullmektig delta i avstemning om avtale med seg selv eller nærstående eller om sitt eget eller nærståendes ansvar. Det samme gjelder for avstemning om pålegg om salg eller krav om fravikelse etter esl. §§ 38 og 39.

Styremedlem eller forretningsfører må ikke delta i behandlingen eller avgjørelsen av noen spørsmål som vedkommende selv eller nærstående har en fremtredende personlig eller økonomisk særinteresse i.

§ 16 REGISTRERING AV SEKSJONSEIERE

Erverver og leier av seksjon og bruksretter må meldes til styret og forretningsfører for registrering.

§ 17 REVISJON OG REGNSKAP

Sameiets revisor velges av årsmøtet og tjenestegjør inntil ny revisor velges. Revisor skal være statsautorisert eller registrert.

Styret skal sørge for ordentlig og tilstrekkelig regnskapsførsel.

§ 18 FORRETNINGSFØRER

Årsmøtet kan med vanlig flertall vedta at sameiet skal ha en forretningsfører.

Det hører inn under styret å ansette forretningsfører og andre funksjonærer, gi instruks for dem, fastsette deres lønn, føre tilsyn med at de oppfyller sine plikter samt si dem opp eller gi dem avskjed.

Ansettelsen kan bare skje på oppsigelse med en oppsigelsesfrist som ikke må overstige seks måneder.

Med 2/3 flertall kan årsmøtet samtykke i at avtale om forretningsførsel gjøres uoppsigelig fra sameiets side for et lengre tidsrom, men ikke for mer enn fem år.

Forretningsfører har anledning til å innkreve gebyr for utgivelse av informasjon/registrering av eierskifte i forbindelse med salg.

§ 19 FORSIKRING

Eiendommen skal til enhver tid holdes betryggende forsikret i godkjent selskap. Styret er ansvarlig for at forsikring tegnes og at forsikringspremie betales.

Påkostninger på den enkelte bruksenhet som ikke omfattes av sameiets fellesforsikring, må den enkelte seksjonseier selv forsikre på betryggende måte. Innboforsikring må tegnes av den enkelte seksjonseier.

Ved skade på bruksenhet som dekkes av sameiets forsikring, skal seksjonseier betale egenandelen. Ved utvendig skade, eller ved skade på bruksenhet som skyldes ytre forhold, eller ved skade ellers på sameiets eiendom, skal sameiet dekke egenandelen.

Om en seksjonseier påfører skade på fellesarealer og/eller andre bruksenheter, kan styret pålegge denne eieren å betale forsikringens egenandel helt eller delvis. Seksjonseiers ansvar inkluderer leietaker og/eller besøkende.

§ 20 VEDLIKEHOLD

Seksjonseieren skal vedlikeholde bruksenheten slik at skader på fellesarealene og andre bruksenheter forebygges, og slik at de øvrige seksjonseierne slipper ulemper.

Vedlikeholdsplikten omfatter også eventuelle tilleggsdeler til bruksenheten.

Seksjonseierens vedlikeholdsplikt omfatter slikt som a) inventar

b) utstyr, som vannklosett, varmtvannsbereder, badekar og vasker c) apparater, for eksempel brannslukningsapparat d) skap, benker, innvendige dører med karmer e) listverk, skillevegger, tapet f) gulvbelegg, varmekabler, membran og sluk g) vegg-, gulv- og himlingsplater h) rør, ledninger, sikringsskap fra og med første hovedsikring eller inntakssikring i) vinduer og ytterdører j) balkong, terrasse og markterrasse ol. som inngår i seksjonens hoveddel.

Seksjonseieren skal vedlikeholde våtrom slik at lekkasjer unngås.

Seksjonseieren skal rense sluk og holde avløpsrør åpne frem til fellesledningen. Dette gjelder også sluk på balkong eller lignende som ligger til bruksenheten.

Seksjonseieren skal holde seksjonen fri for insekter og skadedyr. Dersom insekter eller skadedyr oppdages, eller spor etter at slike har vært tilstede, plikter seksjonseieren å varsle styret umiddelbart.

Vedlikeholdsplikten omfatter også nødvendig reparasjon og utskifting av det som er nevnt i annet, tredje og fjerde ledd, men ikke fasademaling, utskifting av sluk, vinduer, ytterdører og balkonger/terrasser ol.

Vedlikeholdsplikten omfatter ikke reparasjon eller utskifting av tak, bjelkelag, bærende veggkonstruksjoner og rør eller ledninger som er bygget inn i bærende konstruksjoner.

Vedlikeholdsplikten omfatter også utbedring av tilfeldige skader, for eksempel skader som er forårsaket av uvær, innbrudd eller hærverk.

Etter et eierskifte har den nye seksjonseieren plikt til å utføre vedlikehold, inkludert reparasjoner og utskifting, etter denne paragrafen. Denne plikten gjelder selv om vedlikeholdet skulle ha vært utført av den tidligere seksjonseieren.

Den enkelte seksjonseier har plikt til å varsle styret skriftlig dersom det avdekkes behov for større vedlikehold eller utbedring av bygningsmassen.

Sameiet skal holde utvendige og innvendige fellesarealer, inkludert bygningen og felles installasjoner, forsvarlig ved like. Vedlikeholdet skal utføres slik at skader på fellesarealene og de enkelte bruksenhetene forebygges, og slik at seksjonseierne slipper ulemper.

Vedlikeholdsplikten omfatter alt som ikke faller inn under den enkelte seksjonseierens vedlikeholdsplikt. Vedlikeholdsplikten omfatter også reparasjon og utskifting når det er nødvendig, og utbedring av tilfeldige skader.

Sameiets vedlikeholdsplikt omfatter også felles installasjoner som går gjennom bruksenheter, slik som rør, ledninger og kanaler. Sameiet har rett til å føre nye slike installasjoner gjennom bruksenhetene hvis det ikke skaper vesentlig ulempe for den aktuelle seksjonseieren. Seksjonseieren skal gi sameiet adgang til bruksenheten for å vedlikeholde, installere og kontrollere installasjoner som nevnt i første og annet punktum. Kontroll og arbeid i bruksenhetene skal varsles i rimelig tid og gjennomføres slik at det ikke skaper unødvendig ulempe for seksjonseieren eller andre brukere.

Spesielt brann- eller eksplosjonsfarlige, etsende eller andre farlige stoffer tillates ikke oppbevart verken i leiligheten, boder eller andre fellesrom, eller utendørs på eiendommen, med unntak av gassbeholder som utelukkende skal anvendes til gassgrill eller innendørs gasspeis. Slik gassbeholder aksepteres oppbevart på balkong/veranda forutsatt at dette skjer etter leverandørens/produsentens anbefaling.

§ 21 BYGNINGSMESSIGE ARBEIDER

Utvendige arrangement på bygningen er ikke tillatt uten styrets og bygningsmyndighetenes godkjenning.

Utskifting av vinduer og utvendige dører, oppsetting av markiser, endring av fasadekledning, endring av utvendige farger o.l. skal kun skje etter en samlet plan for bygningen etter vedtak i årsmøtet.

Ved vesentlige bygningsmessige endringer/arbeider innen den enkelte seksjon, skal styret skriftlig orienteres på forhånd. Styret har rett til å kreve dokumentasjon fra seksjonseier på at arbeidene ikke vil medføre bygningsmessig skade/fare for bygningsmessig skade på eiendommen. Styret kan i mangel av slik dokumentasjon stanse bygningsarbeidene.

§ 22 FELLESKOSTNADER

Kostnader med eiendommen som ikke knytter seg til den enkelte bruksenhet, er felleskostnader. Felleskostnader skal fordeles mellom seksjonseierne etter sameiebrøken.

Dersom særlige grunner taler for det, kan kostnadene fordeles etter nytten for den enkelte bruksenhet eller etter forbruk.

Kostnader knyttet til «Realsameiet Utearealet» og «Realsameiet Parkeringskjeller»en betales til sameiet som en del av felleskostnadene. skal dekkes av den enkelte seksjonseier. Kostnadene skal fordeles med lik andel pr. eierseksjon (matrikkel/seksjon). De ulike boligsameiene (Blokk A, Blokk B osv.) faktureres samlet halvårlig eller kvartalsvis for sine antall seksjoner. Boligsameiene innkrever deretter forskuddsbeløpene i forbindelse med egne felleskostnader. Det vises for øvrig til det som følger av realsameienes egne vedtekter.

På grunnlag av årsbudsjett utarbeidet og vedtatt av styret, skal det betales et månedlig forskuddsbeløp til dekning av disse kostnader.

Ekstraordinære kostnader som påløper på grunnlag av gyldige vedtak i årsmøtet, skal i den utstrekning de ikke dekkes over det ordinære budsjettet, utlignes etter samme fordeling som de ordinære månedsbeløp som nevnt ovenfor.

Unnlatelse av å betale de utlignede felleskostnader etter påkrav anses som vesentlig mislighold.

De andre seksjonseierne har lovbestemt panterett i seksjonen for krav mot seksjonseieren som følger av sameieforholdet. Pantekravet kan ikke overstige et beløp som for hver bruksenhet svarer til to ganger folketrygdens grunnbeløp på det tidspunkt da tvangsdekning besluttes gjennomført.

Panteretten faller bort dersom det ikke senest to år etter at pantekravet skulle ha vært betalt, kommer inn begjæring til namsmyndigheten om tvangsdekning, eller dersom dekningen ikke gjennomføres uten unødig opphold.

§ 23 AVSETNING TIL VEDLIKEHOLD

Årsmøtet vedtar avsetning til dekning av fremtidige vedlikeholdskostnader, påkostninger eller andre fellestiltak på eiendommen. De beløp seksjonseierne skal innbetale innkreves i den månedlige betalingen til dekning av felleskostnadene.

§ 24 MISLIGHOLD OG FRAVIKELSE

Dersom seksjonseieren ikke oppfyller sine plikter etter lov og vedtekter, og dette skyldes uaktsomhet fra seksjonseiers side, vil seksjonseieren kunne bli erstatningsansvarlig for det tap som oppstår på grunn av misligholdet. Dette gjelder likevel ikke dersom seksjonseieren kan godtgjøre at misligholdet skyldes hindring utenfor hans kontroll og det ikke er rimelig at seksjonseieren oppdaget eller forhindret denne hindringen.

Hvis seksjonseierens oppførsel medfører fare for ødeleggelse eller vesentlig forringelse av eiendommen, eller seksjonseierens oppførsel er til alvorlig plage eller sjenanse for eiendommens øvrige brukere, kan styret kreve fravikelse av bruksenheten etter tvangsfullbyrdelsesloven kapittel 13 jfr. Lov om eierseksjoner § 39. Fravikelse kan også kreves overfor en bruker som ikke er seksjonseier.

§ 25 PROSJEKTET «RÅDHUSPLASSEN»

Sameiet er en del av utbyggingsprosjektet "Rådhusplassen»", som omfatter inntil 5 byggetrinn, bestående av inntil 5 bolig-blokker tilstøtende til hverandre. Eiendom tilknyttet

Byggetrinn 1 (Blokk A) og byggetrinn 2 (Blokk B) vil bli fradelt og organisert som separate eierseksjonssameier. I utgangspunktet skal det samme skje for det enkelte byggetrinn knyttet til resterende del av prosjektet.

Samtlige byggetrinn under prosjektet, samt fremtidig byggetrinn 3 på tilliggende eiendom, planlegges etablert med parkeringsplasser / boder i anleggseiendommen som skal etableres i hht. § 2 i disse vedtektene.

Inntil prosjektet er ferdig utbygget er sameiet forpliktet til å yte nødvendig medvirkning til at utbygger, Sentrumstomta AS, evt den utbygger utpeker eller rettsetterfølger, kan gjennomføre en helhetlig utbygging i samsvar med utbyggers planer og med de endringene som evt blir gjort underveis. Sameiet er herunder forpliktet til å la utbygger vederlagsfritt benytte deler av sameiets utvendige fellesareal midlertidig for adkomst, plassering av utstyr/rigg med mer.

Denne vedtektsbestemmelsen kan ikke endres uten samtykke fra utbygger, Sentrumstomta AS, eller utbyggers rettsetterfølger. Denne vedtektsbestemmelsen bortfaller uten behandling i årsmøtet når utomhusanlegg, anleggseiendom og fellesarealer er overtatt for siste byggetrinn i prosjektet.

§ 26 ENDRINGER I VEDTEKTENE

Endringer i sameiets vedtekter kan besluttes av årsmøtet med minst 2/3 av de avgitte stemmer om ikke loven stiller strengere krav.

§ 27 FORHOLDET TIL EIERSEKSJONSLOVEN

Der hvor ikke annet følger av disse vedtekter kommer lov om eierseksjoner av 16. juni 2017 nr. 65 til anvendelse.

1-25-9001

Sentrumstomta AS c/o Heimdal Eiendomsmegling AS

PB 5778 Torgarden

7437 Trondheim

FINANSIERINGSBEVIS

_________________________ er innvilget finansiering i vår bank med kjøp av bolig i Trondheim.

Prosjektet: Rådhusplassen - byggetrinn 2, leil.nr

I følge anmodning fra kjøper, bekreftes herved at kroner ______________________________ (+ omkostninger)

er reservert for utbetaling til Sentrumstomta AS ved Heimdal Eiendomsmegling AS, klientkonto 4230 16 16400, i henhold til bindende avtale mellom partene. Dette finansieringsbeviset er bindende og irreversibelt.

Det forutsettes at Heimdal Eiendomsmegling AS innestår for tinglysing av skjøte i henhold til bindende avtale mellom partene og evt. pantedokument.

Denne bekreftelsen er betinget av at det blir stilt sikkerhet for deres forpliktelser etter kontrakten i henhold til Bustadoppføringslova av 13 juni 1997.

Sted/dato Bankens navn + stempel

Kjøpetilbud på Rådhusplassen - byggetrinn 2

Kjøpetilbudet gjelder bolig nr

Undertegnede gir herved bindende kjøpetilbud på ovennevnte eiendom

Kjøpetilbudet avgis som en forbruker / fysisk person Kjøpetilbudet avgis som ledd i næringsvirksomhet

Oppdragsnr.: 1-25-9001

Megler: Thor Ivar Sjaastad

Kjøpesum iht prisliste kr: Beløp med bokstaver: + omkostninger i henhold til opplysninger i salgsoppgave/prisliste Eventuell andel fellesgjeld kommer i tillegg til kjøpesummen

Eventuelle forbehold:

Kjøpesum og omkostninger finansieres slik:

Lån i v/ tlf. kr.

Lån i v/ tlf. kr.

Egenkapital i v/ tlf kr

Finansiering kr

Bekreftet av Dato/kl

Egenkapital består av salg av nåværende bolig eller annen fast eiendom disponibelt kontantbeløp (bankinnskudd) Ønskes uforpliktende finansieringstilbud fra Melhusbanken JA NEI

NÆRVÆRENDE BUD ER BINDENDE FOR UNDERTEGNEDE FREM TIL OG MED DEN KL 16 00 MINIMUM 3 DØGN VED FORBEHOLDSFRITT BUD MINIMUM 14 DØGN VED BUD MED FORBEHOLD

Kjøpsbetingelser / krav til finansiering

Undertegnede bekrefter med dette bindende bekreftelse på kjøp av ovennevnte eiendom. Bindende kjøpsbekreftelse er avgitt iht. de avtalebetingelser som fremgår av salgsoppgaven og/eller prislisten Kjøper er inneforstått med at kopi av legitimasjon og finansieringsbekreftelse for hele kjøpesummen skal forelegges megler sammen med nærværende bindende bekreftelse på kjøp Bindende bekreftelse på kjøp kan ikke trekkes tilbake etter at dette er gjort kjent for megler på vegne av selger. Bindende avtale er regulert iht Lov om avtaler av 31 mai 1918

Dersom budet blir akseptert må kjøper på eget initiativ fremlegge godkjent finansieringsbevis til megler innen 21 dager etter selgers aksept iht. Bustadoppføringslova § 46 2. ledd. Dersom kjøper innen fristen ikke overholder sin forpliktelse med tilfredsstillende finansieringsbekreftelse iht prosjektets standardkontrakt, er kjøper likevel bundet og selger vil kunne påberope avtalen som vesentlig misligholdt og heve avtalen Kjøper samtykker til at omkostninger knyttet til heving og dekningssalg i så fall dekkes av kjøper

Jeg samtykker til at mitt navn, adresse, telefonnummer og e-post deles med nødvendige underleverandører, forretningsfører og samarbeidspartnere i prosjektet for min kjøpte bolig. Kontaktinformasjonen kan bli brukt til å ta kontakt med meg på telefon, e-post eller SMS Samtykket er gyldig frem til overlevering av boligen

Budgivere

Navn: Navn:

Personnr : Personnr :

Adresse:

Adresse:

Tlf: Tlf:

E-post:

Sted, dato:

Signatur:

Kopi av gyldig legitimasjon (f.eks. førerkort)

E-post:

Sted, dato:

Signatur:

Kopi av gyldig legitimasjon (f.eks. førerkort)

Fullmakt til å opptre på vegne av en annen:

Jeg, gir med dette fullmakt til å representere meg i budgiving på denne eiendommen

(Sign /dato)

Finansiering sjekket av megler:

Dato: Kl: Sign:

Bank: Kontaktperson: Tlf.

Kommentar:

Megler:

SELGERS AKSEPT PÅ NÆRVÆRENDE KJØPETILBUD

Sted/dato: Klokkeslett

Sentrumstomta AS v/Ann Kristin Ulstad

Turn static files into dynamic content formats.

Create a flipbook
Issuu converts static files into: digital portfolios, online yearbooks, online catalogs, digital photo albums and more. Sign up and create your flipbook.