Lundamo Park B4- Eneboliger

Page 1

4. BYGGETRINN B09 ENEBOLIGER

Velkommen s. 1 Plantegninger s. 8 Eiendomsopplysninger s. 10 Vedlegg s. 18

Kim Roger Laugsand

Tlf. 952 34 892 krl@hem.no

Runar Wehn

Tlf. 416 97 415 rw@hem.no

LUNDAMO PARK LEGGER TIL RETTE FOR ET ROLIG LIV I FLOTTE, MODERNE BOLIGER SENTRALT PÅ LUNDAMO! Illustrasjonsbilde. Kan avvike fra endelig leveranse.

VI ØNSKER VELKOMMEN TIL LUNDAMO PARK, OG DETTE ETTERSPURTE PROSJEKTET BELIGGENDE MEGET SENTRALT PÅ LUNDAMO.

Salgssuksessen Lundamo Park fortsetter nå endelig med et nytt byggetrinn. I byggetrinn 4 vil vi kunne tilby en spennende og god miks av boligtyper som vil kunne passe de fleste, uavhengig av alder og preferanser.

Her kommer det alt fra lettstelte leiligheter til store og moderne eneboliger med egen tomt. Det er satt av gode områder til grøntarealer i feltet som vil kunne bygges opp i fin parkmessig stil og skape en god atmosfære i boligfeltet. Velkommen!

1
Lundamo-park.no
2
Illustrasjonsbilde. Kan avvike fra endelig leveranse.
3 UTEOMRÅDET LEVERES FERDIG OPPARBEIDET MED PLENAREAL,BEPLANTNING OG LEKEAPPARATER, OG ALLE EIERTOMTENE LEVERES FERDIG PLANERT MED FERDIGPLEN. GÅRDSPLASSENE LEVERES FERDIG ASFALTERTE.

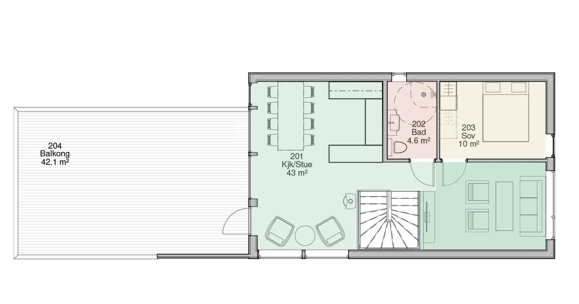
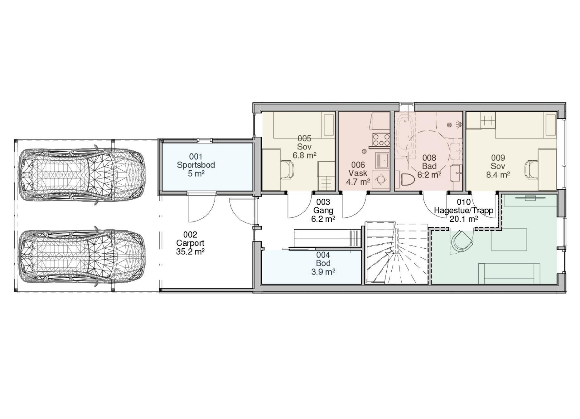
3 stk. eneboliger med god størrelse og moderne preg. Boligene er meget barne- og familievennlige med mulighet for 4 soverom om ønskelig. Vestvendte balkonger over carport/ sportsbod på hele 42 kvm. Eneboligene har vaskerom og bad i 1. etasje, samt et ekstra bad i 2. etasje. Stue/ kjøkkenløsning i 2. etasje er på godt over 40 kvm. Spennende og praktiske planløsninger med lagring i innvendig bod og utvendig sportsbod.

4
Illustrasjonsbilde. Kan avvike fra endelig leveranse.
5 Lundamo-park.no

Benkeplaten er 30mm laminat. Vasken er en 1 ½ kum i ypperste stålkvalitet fra Intra. Kummen er underlimt, noe som gjør rengjøringen til en drøm.

Vi har det helt nyeste innen skuffer. 550mm dybde med fulluttrekk og demping. Skuffer fra 70cm bredde tåler en belastning på 70kg. Man kan velge mellom hvit eller grå skuff, med sider i glass eller metall.

6
BLIR MODERNE & TIDLØST, OG LEVERES AV DRØMME-
KJØKKENET
KJØKKENET.

KJØKKENET ER HUSETS HJERTE, OG HER ER DET VALGT KJØKKEN FRA DRØMMEKJØKKEN I DEN TIDLØSE OG POPULÆRE FRONTEN "SOLID".

Vi har valgt den populære og tidløse fronten Solid. Det er en 19mm tykk dør i malt MDF. Våre malt fronter er overflatebehandlet 6-9 ganger, og man kan fritt velge mellom 12 farger som ligger i vårt sortiment.

7

3 ENEBOLIGER

BRA: CA. 123,6 KVM. P-ROM: CA. 114,7 KVM.

Stue, kjøkken, 2 bad, vaskerom, gang og 3 soverom.

S-ROM: ca. 8,9 kvm - Innvendig bod og sportsbod.

I tillegg kommer carport på ca. 35,2 kvm, samt terrasse på hele 42,1 kvm

8 B09

1. ETG

2. ETG

9 Lundamo-park.no

EIENDOMSOPPLYSNIGER

EIENDOMSTYPE

Enebolig

EIERFORM Selveier

PRIS

4 600 000,- - 4 650 000,-

TOTALPRIS INKLUDERT OMKOSTNINGER

kr 4 600 000,- - 4 650 000,- (Fast pris)

Omkostninger: 9 000,- (Dokumentavgift) 585,- (Tingl.gebyr pantedokument) 585,- (Tingl.gebyr skjøte) 172,- (Panteattest) 5 000,- (Startkapital velforening)

Totalt: kr 15 342,-

NB: Regnestykket forutsetter at det kun tinglyses ett pantedokument og at eiendommen selges til prisantydning.

Det tas forbehold om endringer i offentlige avgifter/gebyrer. En slik endring vil bli belastet/ godskrevet kjøper.

KOMMUNALE AVGIFTER

Fastsettes av Melhus kommune etter at eiendommene tas i bruk.

SOVEROM 3

BYGGEÅR 2024

TOMT

Alle boligene vil bli fradelt og få tildelt eget bruksnummer før overtakelse.

ADRESSE

Lundamo Park B4 - eneboliger 7232 Lundamo

BETEGNELSE

Gnr. 208 bnr. 16 i Melhus kommune. Boligene vil fradeles og få tildelt eget bruksnummer før overtakelse.

TYPE EIENDOM Enebolig

TOMT Eiet tomt

TOMTEBESKRIVELSE

Hver enkelt tomt vil få asfaltert gårdsplass og parkering/carport, samt plenareal med ferdigplen.

Grøntarealene leveres ferdig opparbeidet med plenareal, beplantning og lekeapparater. Det er områder avsatt til lekeplasser, og områder avsatt til felles parkeringsplasser. Interne veier, felles parkeringsplasser og adkomst asfalteres.

PARKERING

Parkering i carport og på egen tomt.

PRISER

Fra kr. 4 600 000,- til kr. 4 650 000,-

FASTE LØPENDE KOSTNADER

Nybygg. Selger har således ingen informasjon om eiendommens løpende kostnader. Faste kostnader som kjøper bl.a. må påregne er: kommunale avgifter, forsikring, strøm, tv, internett og velforening.

VELFORENING

Det vil bli tinglyst pliktig medlemskap i områdets velforening. Kjeldsberg Eiendomsforvaltning AS

10

er forretningsfører. Se vedlagte vedtekter for mer informasjon om velforeningen.

Velforeningskontigenten er estimert til kr 375,pr. mnd.

MEGLERS VURDERING

Velkommen til eneboligene på byggetrinn 4 av populære Lundamo Park!

I dette trinnet byr vi på en flott 6-mannsbolig og 3 romslige eneboliger. Se egen annonse for leilighetene.

Eneboligene går over to plan og er på ca. 123 kvm. I 1. etasje finner vi 2 soverom, bad, vaskerom, bod og stue. I 2. etasjen har boligen stue, kjøkken, bad og soverom.

Boligene planlegges med en gjennomgående god standard. Det blir bl.a. flislagt bad, kvalitetskjøkken med integrerte hvitevarer fra Drømmekjøkkenet, hvitpigmentert parkett på gulv i tørre rom, flislagt gang med varmekabler, malt gips på vegger med mulighet for individuelle fargevalg, balansert ventilasjon m.m. Boligene leveres med ferdig behandlet utvendige fasader, så her trenger du ikke tenke på utvendig vedlikehold på mange år.

Du får 5 års nybygg- garanti, og utbygger gir rom for tilvalg slik at du kan tilpasse din bolig etter dine behov og ønsker.

Ingen delinnbetalinger - altså full innbetaling skjer først ved overtagelse.

Se lundamo-park.no for mer informasjon.

BELIGGENHET

Boligene får en meget attraktiv beliggenhet, tett ved Lundamo sentrum. Her vil du bo i et solrikt boligområde, med gangavstand til nyere barneskole/ungdomskole/barnehage, kunstgressbane, idrettshall, treningsstudio, frisør, butikker, off. transp. m.v. Sammenhengende gang- og sykkelsti til alle fasiliteter. Rikelig med turmuligheter i nærområdet.

Fra Lundamo er det kun ca. 15 min til Melhus, og

ca. 30 min til Trondheim.

VISNING

På annonsert tidspunkt eller etter nærmere avtale med megler. Send gjerne tekstmelding, e-post eller ring dersom ikke oppsatt tidspunkt passer for deg. Det vil bli skiltet i regi av Heimdal Eiendomsmegling ved annonsert fellesvisning.

ADKOMST

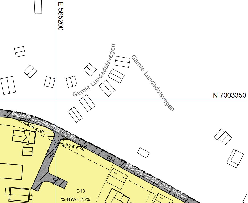
Fra Lundamo sentrum; Ta inn Lundadalsvegen rett ovenfor Lundamo Legesenter, og tomta som skal bebygges ligger da på venstre side av veien etter ca. 100 meter.

BYGGEMÅTE

Se leveransebeskrivelse i salgsoppgaven fra utbygger.

INNHOLD

BRA: ca. 123,6 kvm. P-ROM: ca. 114,7 kvm - Stue, kjøkken, 2 bad, vaskerom, gang og 3 soverom. S-ROM: ca. 8,9 kvm - Innvendig bod og sportsbod. I tillegg kommer carport på ca. 35,2 kvm, samt terrasse på hele 42,1 kvm.

Merknad areal: Angitte arealer på plantegning er basert på foreløpige beregninger forut for detaljprosjektering, og baserer seg utelukkende på arkitektens beregninger. Da prosjektet ikke er oppført, har megler ikke hatt mulighet til å kontrollmåle areal. Det tas forbehold om mindre avvik for de oppgitte arealer i salgsdokumentene, da beregningene er foretatt på grunnlag av arkitektens tegninger.

STANDARD

- Det leveres balansert ventilasjon med roterende varmegjenvinner

- Alle tørre rom levers med 3-stavs hvitpigmentert parkett

- Flis på gulv og vegg på bad

- Varmekabler i gulv på bad

- Vaskerom med flis med varmekabler i gulv - Flislagt gang med varmekabler

- Varmtvannsbereder (200 liter) til tappevann

- På bad leveres fuktmåler koblet sammen med ventilasjonsanlegget

- Kvalitetkjøkken fra Drømmekjøkkenet med intergrerte hvitevarer

11

- Det leveres seriekoblede røykvarslere til hver bolig, samt ett brannslukkingsapparat

OPPVARMING

Elektrisk oppvarming ved varmekabler i gulv på bad, gang og vaskerom, samt vedfyring i vedovn.

I tillegg leveres alle enhetene med balansert ventilasjon med varmegjenvinningvarmegjenvinningen sørger for at varm luft som går ut av boligen først benyttes til å varme opp den kalde lufta som kommer inn i boligen - før den går ut.

VEI, VANN OG KLOAKK

Offentlig vei, vann og avløp via private stikkanlegg.

BETALINGSBETINGELSER

Kjøpesum og omkostninger skal være bekreftet innbetalt innen overtakelsesdato. Alle kontraktsinnbetalinger skal skje til: Heimdal Eiendomsmegling AS sin klientkonto nr. 4230.55.01500 i MelhusBanken. Det tas forbehold om eventuell endring av offentlige gebyrer og avgifter. Kjøper aksepterer at eventuelt økning i mva. og andre offentlige avgifter som måtte bli fastsatt etter inngåelse av denne kontrakt kan utlignes på kjøper med den forholdsmessige andel og kun for den del av leveransen som i slikt tilfelle får økte avgifter i henhold til entreprenørens oppstilling. Kjøper er innforstått med at tilfredsstillende finansieringsbekreftelse for hele kjøpesummen skal forelegges megler innen 21 dager etter selgers aksept iht. Bustadoppføringslova § 46 2. ledd.

Disse opplysningene kan bli videre formidlet til utbyggers byggelånsbank. Hvis nåværende bolig skal benyttes helt eller delvis til finansiering av kjøpet kan denne stilles som sikkerhet etter verditakst utført av Heimdal Eiendomsmegling AS. Handelen er juridisk bindende for begge parter dersom budet aksepteres innen akseptfristen. Dersom kjøper innen fristen ikke overholder sin forpliktelse med tilfredsstillende finansieringsbekreftelse iht. prosjektets standardkontrakt, er kjøper allikevel bundet og selger vil kunne påberope avtalen som vesentlig misligholdt og heve avtalen. Kjøper samtykker til at omkostninger knyttet til heving og dekningssalg i så fall dekkes av kjøper.

OVERTAKELSE

Det er forventet byggestart så snart selgers forbehold for igangsetting er avklart. Disse forbeholdene skal være avklart senest innen 01.05.2024. Prosjektet er beregnet ferdigstilt 13 - 15 mnd. etter at selgers forbehold er frafalt. Dette gjelder uavhengig av om forbeholdene er innfridd eller ikke. Dersom det oppstår forsinkelse, skal dagmulkt beregnes etter 15 mnd. fra sletting av selgers forbehold. Kjøper er forpliktet til å overta boligen på det tidspunkt den er ferdigstilt. Endelig overtakelse vil bli varslet med 2 ukers skriftlig varsel. Overtakelse kan ikke finne sted før fullt oppgjør inkludert alle omkostninger og tilleggsavtaler bestilt via utbygger er innbetalt til megler. Det samme gjelder så fremt midlertidig brukstillatelse ikke foreligger. Vi gjør oppmerksom på at det i følge plan- og bygningsloven § 21-10 ikke er tillatt å bebo boligen før slik midlertidig brukstillatelse er på plass. Overtakelse av boligen kan ikke nektes av kjøper selv om utomhusarealer og eventuelt ytre kledning m.m. ikke er ferdigstilt. Uferdig arbeid anmerkes i overtakelsesprotokollen på overtakelsesbefaringen. Alle boliger overtas i ryddig og rengjort stand (byggvask).

SELGERS FORBEHOLD

Selger tar følgende forbehold med tanke på igangsetting av prosjektet:

- Tilstrekkelig salg (70 % av salgsverdien målt i kroner)

- Igangsettingstillatelse gitt fra Plan og bygningsetaten i Melhus kommune.

Disse forbeholdene skal være avklart senest innen 01.05.2024. Selger kan selv velge å igangsette bygging på et lavere forhåndssalg.

Det tas følgende forbehold med tanke på gjennomføring av prosjektet:

- Det kan bli endringer som følge av prosjektering, videre bearbeiding og detaljering av prosjektet ved arkitekt og rådgivere.

- Det kan bli endringer som følge av krav fra offentlige instanser

- Selgeren forbeholder seg retten til å bestemme endelig utforming av utomhusarealer.

- Selger forbeholder seg retten til å bestemme material- og fargevalg på bygningsfasader.

12

Hvis forbehold om igangsetting blir gjort gjeldende, har selger intet ansvar overfor kjøper, og begge parter er i sin helhet fri sine forpliktelser etter kontrakten.

BRUKSTILLATELSE/ FERDIGATTEST

Utbygger plikter å fremlegge midlertidig brukstillatelse til kjøper og megler før overlevering av boligen. Ferdigattest vil bli utstedt når hele området er ferdigbygd. Det gjøres oppmerksom på at det ifølge plan-og bygningsloven er ulovlig å ta boligen i bruk før midlertidig brukstillatelse er på plass.

TINGLYSTE HEFTELSER/ RETTIGHETER

1898/900057-1/65 Erklæring/avtale 11.11.1898

Forbud mot næringsvirksomhet Gjelder denne registerenheten med flere

1927/900100-1/65 Bestemmelse om vannrett 22.07.1927

Gjelder denne registerenheten med flere

1957/1456-2/65 Bestemmelse om veg 31.07.1957

rettighetshaver:Knr:5028 Gnr:208 Bnr:81

Bestemmelse om vann/kloakkledning Gjelder denne registerenheten med flere 1962/2617-1/65 Bestemmelse om veg 02.11.1962

Vegvesenets betingelser vedtatt Gjelder denne registerenheten med flere 1962/2980-2/65 Bestemmelse om veg 30.11.1962

rettighetshaver:Knr:5028 Gnr:208 Bnr:91 Bestemmelse om vann/kloakkledning Gjelder denne registerenheten med flere 2000/28-1/65 Jordskifte 06.01.2000

Grensegangssak

Gjelder denne registerenheten med flere

2019/591584-1/200 Erklæring/avtale 24.05.2019 21:00

Rettighetshaver:MELHUS KOMMUNE Org.nr: 938726027

Bestemmelse om vedlikehold av anlegg/ ledninger

Adkomstrett for drift og vedlikehold av anlegg/ ledninger/kabler

Bestemmelse om bebyggelse i nærhet av anlegg Gjelder denne registerenheten med flere

2019/591625-1/200 Erklæring/avtale 24.05.2019 21:00

Kan ikke slettes uten samtykke fra:MELHUS KOMMUNE Org.nr: 938726027 rettighetshaver:Knr:5028 Gnr:208 Bnr:225 rettighetshaver:Knr:5028 Gnr:208 Bnr:226 rettighetshaver:Knr:5028 Gnr:208 Bnr:227 rettighetshaver:Knr:5028 Gnr:208 Bnr:228 Bestemmelse om rett til vedlikehold av bygning Gjelder denne registerenheten med flere

2019/1347776-1/200 Bestemmelse om jordkabel/jordkabelanlegg 12.11.2019 21:00

Rettighetshaver:TENSIO TS AS Org.nr: 978631029

Adkomstrett for drift og vedlikehold av anlegg/ ledninger/kabler

Bestemmelse om bebyggelse i nærhet av anlegg Bestemmelse om (begrensning av) endring i terrenget i nærheten av anlegg Bestemmelse om vedlikehold av anlegg/ ledninger

Gjelder denne registerenheten med flere 2019/1347776-2/200 Bestemmelse om nettstasjon 12.11.2019 21:00

Rettighetshaver:TENSIO TS AS Org.nr: 978631029

Adkomstrett for drift og vedlikehold av anlegg/ ledninger/kabler

Bestemmelse om bebyggelse i nærhet av anlegg Bestemmelse om (begrensning av) endring i terrenget i nærheten av anlegg Bestemmelse om vedlikehold av anlegg/ ledninger

Gjelder denne registerenheten med flere 2020/3494339-1/200 Bestemmelse om adkomstrett 16.12.2020 21:00

Kan ikke slettes uten samtykke fra:MELHUS KOMMUNE Org.nr: 938726027 rettighetshaver:Knr:5028 Gnr:208 Bnr:242 Adkomstrett for vedlikehold av bygninger

13

2020/3494375-1/200 Bestemmelse om adkomstrett 16.12.2020 21:00

Kan ikke slettes uten samtykke fra:MELHUS KOMMUNE Org.nr: 938726027 rettighetshaver:Knr:5028 Gnr:208 Bnr:243 Adkomstrett for vedlikehold av bygninger

2020/3494391-1/200 Bestemmelse om adkomstrett 16.12.2020 21:00

Kan ikke slettes uten samtykke fra:MELHUS KOMMUNE Org.nr: 938726027 rettighetshaver:Knr:5028 Gnr:208 Bnr:244 Adkomstrett for vedlikehold av bygninger

2020/3494404-1/200 Bestemmelse om adkomstrett 16.12.2020 21:00

Kan ikke slettes uten samtykke fra:MELHUS KOMMUNE Org.nr: 938726027

rettighetshaver:Knr:5028 Gnr:208 Bnr:245 Adkomstrett for vedlikehold av bygninger

2020/3494641-1/200 Erklæring/avtale 16.12.2020 21:00

Rettighetshaver:MELHUS KOMMUNE Org.nr: 938726027

Rett til å ha liggende, vedlikeholde og oppgradere ledningsanlegg Adkomsrett til anlegget Bestemmelse om bebyggelse i nærheten av anlegg/ledninger/kabler Bestemmelse om endring i terrenget i nærheten av anlegg/ledninger/kabler

2020/3519141-1/200 Bestemmelse om bebyggelse 21.12.2020 21:00

Kan ikke slettes uten samtykke fra:MELHUS KOMMUNE Org.nr: 938726027

rettighetshaver:Knr:5028 Gnr:208 Bnr:242 Rett til å vedlike bygninger

2020/3519178-1/200 Bestemmelse om adkomstrett 21.12.2020 21:00

Kan ikke slettes uten samtykke fra:MELHUS

KOMMUNE

Org.nr: 938726027 rettighetshaver:Knr:5028 Gnr:208 Bnr:243

2020/3519189-1/200 Bestemmelse om adkomstrett 21.12.2020 21:00

Kan ikke slettes uten samtykke fra:MELHUS KOMMUNE Org.nr: 938726027 rettighetshaver:Knr:5028 Gnr:208 Bnr:245 2020/3519200-1/200 Bestemmelse om adkomstrett 21.12.2020 21:00

Kan ikke slettes uten samtykke fra:MELHUS KOMMUNE Org.nr: 938726027 rettighetshaver:Knr:5028 Gnr:208 Bnr:246

2020/3519220-1/200 Bestemmelse om adkomstrett 21.12.2020 21:00

Kan ikke slettes uten samtykke fra:MELHUS KOMMUNE Org.nr: 938726027 rettighetshaver:Knr:5028 Gnr:208 Bnr:247

2020/3519228-1/200 Bestemmelse om adkomstrett 21.12.2020 21:00

Kan ikke slettes uten samtykke fra:MELHUS KOMMUNE Org.nr: 938726027 rettighetshaver:Knr:5028 Gnr:208 Bnr:248

2020/3519240-1/200 Bestemmelse om adkomstrett 21.12.2020 21:00

Kan ikke slettes uten samtykke fra:MELHUS KOMMUNE Org.nr: 938726027 rettighetshaver:Knr:5028 Gnr:208 Bnr:242 Rett til 3 biloppstillingsplasser på parkeringsplass P2

2021/234435-1/200 Bestemmelse om adkomstrett 25.02.2021 21:00

Kan ikke slettes uten samtykke fra:MELHUS KOMMUNE Org.nr: 938726027 rettighetshaver:Knr:5028 Gnr:208 Bnr:243 Snr:1 rettighetshaver:Knr:5028 Gnr:208 Bnr:243 Snr:2

14

rettighetshaver:Knr:5028 Gnr:208 Bnr:243 Snr:3 rettighetshaver:Knr:5028 Gnr:208 Bnr:243 Snr:4 rettighetshaver:Knr:5028 Gnr:208 Bnr:243 Snr:5 rettighetshaver:Knr:5028 Gnr:208 Bnr:243 Snr:6

REGULERINGSPLAN

Reguleringsplan Mosløkkja, Lundamo - Området er regulert til boligformål. Reguleringsbestemmelser til detaljplan Mosløkkja er vedlagt i meglers salgsoppgave.

INFO KOMMUNALE AVGIFTER

Kommunale avgifter vil bli fastsatt av kommunen ved ferdigstillelse av boligene.

FORMUESVERDI

Ligningsverdi vil fastsettes av Skatt Midt-Norge.

ADGANG TIL UTLEIE

Det er kun én bruksenhet i boligene. Boligene kan fritt utleies.

EIER

Heimdal sag prosjekter as

MEGLERS VEDERLAG

Oppdragsgiver betaler 2% inkl. mva. i meglerprovisjon, samt vederlag for markedsføring med kr. 18 750,- inkl. mva for pr. solgte enhet i prosjektet.

OPPDRAGSANSVARLIG

Kim Roger Laugsand Avd. leder/ Eiendomsmegler 95 23 48 92 Heimdal Eiendomsmegling AS 976232909 Rådhusveien 3 7224 Melhus

GENERELLE FORUTSETNINGER

Avtalen anses inngått når kjøper har levert megler bindende kjøpetilbud, selger har akseptert dette, og aksept er meddelt kjøper. Salgsoppgaven med vedlegg utgjør sammen med akseptbrev og tegninger de samlede avtalevilkårene for kjøp av den aktuelle eiendommen.

DOKUMENTENES RANGORDNING/ LOVVALG

1. Bindende kjøpetilbud

2. Salgsoppgave med vedlegg

3. Tegninger, brosjyremateriell Illustrert perspektiv er ikke å anse som en del av kontraktsgrunnlaget da disse kan avvike

fra leveransen. Avtaleforholdet er underlagt bestemmelsene i bustadoppføringslova av 13.juni 1997 nr. 43. Bustadoppføringslova bruker benevnelsene entreprenøren og forbrukeren, noe som tilsvarer selger og kjøper i kontraktdokumentet. Bustadoppføringslova sikrer kjøperen rettigheter som ikke kan innskrenkes i kjøpekontrakten jfr. bustadoppføringslova § 3. Bustadoppføringslova kommer ikke til anvendelse dersom kjøper anses som profesjonell/ investor, eller når leiligheten er ferdigstilt. I slike tilfelles vil handelen i hovedsak reguleres av lov om avhending av fast eiendom av 03.juli 1992 nr.92. Selger kan likevel akseptere å selge etter bustadoppføringslova. Leveransebeskrivelsen beskriver den tekniske standard som inngår i leveransen. Leveransen utføres i henhold til gjeldende forskrifter og standarder. Dersom det ikke er henvist til noe annet gjelder følgende: - Offentlige lover, forskrifter og standarder med hensyn til krav, utførelse og materialbruk. -Ellers gjelder den til enhver tid gjeldende byggeforskrift for prosjektet. Bustadoppføringslova og avhendingsloven finner man på www.lovdata.no. Ta kontakt med ansvarlig megler om lovteksten ønskes oversendt.

VIDERESALG AV KONTRAKT

Såfremt kjøper er forbruker og skulle ønske å omsette kjøpekontrakten aksepteres dette av selger under forutsetning av at selger får en tilfredsstillende dokumentasjon på at ny kjøper trer inn i kontrakten med de samme rettigheter og forpliktelser som den opprinnelige kjøperen. Den nye kjøperen overtar de inngåtte tilleggsavtaler inngått av den første kjøperen. Ny kjøper må fremlegge finansieringsbevis godkjent av selger iht. prosjektets salgsoppgave. Opprinnelig kjøper vil etter dette være fri fra sitt kontraktsforhold med selger. Opprinnelig kjøpers eventuelle merverdi i forbindelse med omsetning av kjøpekontrakten utbetales først når hjemmelen er tinglyst på den nye kjøperen. Selger krever et administrasjonsgebyr fra opprinnelig kjøper på kr 50 000,- ved slik omsetning av kjøpekontrakt til ny kjøper. Administrasjonsgebyret vil fremgå av kjøpetilbud og kjøpekontrakt. Ved videresalg av kontrakt vil evt. kostnader til eiendomsmegler komme i tillegg. For at skjøtet skal utstedes og

15

tinglyses på ny kjøper, må ovennevnte forhold vedrørende kjøpekontrakten være i orden. Hvis disse forholdene ikke er bragt i orden innen overtagelsen, må opprinnelig kjøper oppfylle kontraktsforpliktelsene.

SIKKERHETSSTILLELSE/ GARANTIER

Kjøper skal stille finansieringsbevis godkjent av selger som sikkerhet for kjøpesum og omkostninger. I henhold til bustadoppføringslovas § 12 stiller selger sikkerhet for kontraktsforpliktelsene. Sikkerheten er gjeldene i byggeperioden og frem til 5 år etter overtagelse av boligen. Garantien skal utgjøre 3 % av vederlaget frem til overtagelsen og 5 % av vederlaget etter overtagelsen. Garanti etter bustadoppføringslova § 12 stilles av selger så snart bindende avtale er inngått. Er det tatt forbehold om åpning av byggelån, salg av et bestemt antall boliger eller igangsettingstillatelse, er det tilstrekkelig at garantien stilles først når forbeholdene er falt bort. Garanti skal uansett stilles før oppstart av byggearbeider. Dersom det ikke foreligger ferdigattest på overtakelsestidspunktet skal selger stille bankgaranti i form av selvskyldnergaranti som sikkerhet for gjenstående arbeid iht. midlertidig brukstillatelse.

ENDRINGER

Kjøper har mulighet til å gjøre endringer i henhold til prosjektets endringsrutiner. Kjøper kan ikke påregne å gjøre endringer for mer enn 15 % av kjøpesummen. Det vil bli satt opp frister og eventuell priskonsekvens for slike endringsbestillinger.

OPPGJØR

Utbetaling av oppgjør til selger forutsetter at megler har mottatt signert overtagelsesprotokoll, midlertidig brukstillatelse eller ferdigattest, fullt oppgjør er innbetalt, og at hjemmel er overført kjøper. Utbetaling av oppgjør til selger kan imidlertid foretas før hjemmel er overført kjøper under forutsetning av at selger stiller garanti iht. bustadoppføringslovas § 47. Kjøpers innbetaling blir i så fall å betrakte som et forskudd.

MANGLER OG TILBAKEHOLD

Evt. mangler ved overtakelsen skal anmerkes i overtakelsesprotokollen. Kjøper kan kreve tilbakehold av innbetalt beløp frem til hjemmel

er overført kjøper. Tilbakeholdet skal stå i forhold til påberopt mangel. Dersom det holdes tilbake et uforholdsmessig beløp kan kjøper komme i betalingsmislighold overfor selger. Kjøper og selger kan også gjøre avtale om deponering av en del av kjøpesummen til en eller flere spesifikke mangler er bragt i orden.

ØKONOMISK RÅDGIVNING

Heimdal Eiendomsmegling AS kan gjennom Melhusbanken tilby økonomisk rådgivning.

DIVERSE OPPLYSNINGER

ENDRINGER:

Kjøper kan endre spesifikasjoner for sin bolig gjennom prosjektets fastsatte endringsrutiner. Det vil bli gitt en frist for endringer.

Alle endringer skal være avtalt i kontraktsform med endring og priskonsekvens. Endringen er først bestilt når det foreligger en skriftlig avtale. Det aksepteres ikke andre leverandører/ entreprenører til boligen i byggetiden, enn de som er valgt for prosjektet.

Dersom forbrukeren avbestiller før det er gitt igangsettingstillatelse betaler forbrukeren avbestillingsgebyr, jfr. Bustadoppføringslova § 54. Avbestillingsgebyr fastsettes til 10% av total kontraktssum inkludert merverdiavgift.

Dersom forbrukeren avbestiller etter at igangsettingstillatelse er gitt, fastsettes selgerens krav på vederlag og erstatning i samsvar med Bustadoppføringslovas §§ 52 og 53. Kjøper bærer all risiko ved avbestilling.

Alle bilder, ute som inne, er kun ment som illustrasjon av boligene, samt danne et "inntrykk" hvordan det kan bli. Hver leilighet og enebolig må vurderes selv ut fra beliggenhet i feltet, utsikt, etc. da bildene er tatt fra kun noen få løsninger. Samme gjelder plassering av kjøkken og bad. Inntegnet utstyr/inventar/etc. som evt. er illustrert, medfølger ikke i handelen.

TINGLYSING AV SKJØTE

Det forutsettes at skjøtet tinglyses på ny eier når handelen er sluttet. Hvis kjøper ikke ønsker hjemmelsoverføring av eiendommen til seg, skal det tas forbehold om dette i budskjema.

KJØPER ER UTENLANDSK STATSBORGER

Dersom kjøper er utenlandsk statsborger

16

kreves det at vedkommende har D-nummer til erstatning for norsk personnummer. Søknad om D-nummer sendes til Kartverket samtidig med innsending av skjøtet for tinglysing. Kartverket oppbevarer skjøtet inntil kjøper har fått D-nummer av skatteetaten. Skjøtet vil bli tinglyst så snart Kartverket har mottatt kjøpers D-nummer fra Skatteetaten. Søknad om D-nummer i forbindelse med tinglysing av skjøte kan medføre at oppgjør og utbetaling til selger blir forsinket. Kjøper må i disse tilfellene ta forbehold i bud om at D-nummer blir gitt, samt at dette kan medføre forsinket utbetaling til selger. Kontakt megler for informasjon før budgivning.

HVITVASKING AV PENGER

I henhold til lov om hvitvasking er megler pliktig å gjennomføre legitimasjonskontroll. Dette innebærer at mistenkelige transaksjoner knyttet til hvitvasking av penger vil bli innrapportert til Økokrim. Ta gjerne kontakt med oss i Heimdal Eiendomsmegling AS hvis du har spørsmål om dette og andre forhold i forbindelse med din bolighandel.

17

VEDLEGG

18

Komplett kjøperinformasjon ve d kjøp av prosjektert bolig i prosjektet:

Lundamo Park B4 - eneboliger

Dato: 05.12.2022

INNEHOLDER

DATERT:

Leveransebeskrivelse Ikke datert Romskjema Ikke datert Kjøkken/baderomstegninger fra Ikke datert Snitt/fasade/plan tegninger 22.06.2020 Situasjonsplan 23.06.2020

Arealoppgave Ikke datert Kartutsnitt med reguleringsbestemmelser 18.11.2022/01.10.20 Vedtekter velf orening 18.02.2019 Kjøpetilbud Ikke datert Finansieringsbevis Ikke datert

19

LEVERANSEBESKRIVELSE Lundamo Park, B09

Utvendige overflater

Fasadene vil bestå av stående dobbelfalls med rettkant i royalimpregnert, farge natur , samt liggende dobbelfalls i tilnærmet royal setersvart (NCS: S 8000 N). Dragere i tilnærmet royal setersvart. Bygget leveres med pulttak med mørk grå papp. Takrenner med takfotbeslag og nedløpsrør i svart, i stål, eller aluminium.

Balkong og rekkverk

Rekkverk i royalimpregnert setersvart. Dekke i trykkimpregnert virke 28x120 mm.

Vinduer og dører

Vinduer, ytterdør og dør til sportsbod leveres i farge tilnærmet setersvart (NCS: S 8000 N).

Innvendige dører leveres som glatte dører i hvitt, inkludert hvite karmer (NCS: S 050 0 N).

Innvendige overflater

I gang og på badegolv legges 30x60 cm flis (i dusjsone 5x5 cm flis). På vaskerom legges flis 30x60 cm med sokkelflis. Golv i alle øvrige rom leveres med 3 stavs hvitpigmentert eikeparkett.

Vegger og tak leveres med sparklet og malt gips. Vegger på bad leveres med 30x60 cm flis.

Listverk

Listverk (golv, tak, vinduer og dører) leveres i hvitmalt utførelse (NCS: S 050 0 N) med synlig stifting.

Ventilasjon

Det leveres balansert ventilasjon med roterende varmegjenvinner.

Rørlegger/Sanitærutstyr

Anlegget er komplett fra innvendig stoppkran. Røropplegg (rør i rør) for varmt og kaldt vann, avløp og uttak for vaskemaskin og oppvaskmaskin, ettgreps blandebatteri og sanitærutstyr. Sanitærutstyr i hvit utførelse. Vegghengt toalett i hvit utførelse. Varmtvannsbereder (200 liter) til tappevann

Elektriske installasjoner

El anlegget tilfredsstiller kravene i NEK 400. NEK 400 er en norm utarbeidet av Norsk Elektronisk Komité, og omhandler krav til elektriske lavspenningsinstallasjoner. Komplett levert fram til forbruk,

20

med inntak, jordfeilvarsling, fordelingsskap, overspenningsvern og måler. På bad leveres fuktmåler koblet sammen med ventilasjonsanlegget.

Kjøkken og baderomsinnredninger

Innredningene leveres av Drømmekjøkkenet. Se egne tegninger og spesifikasjoner.

Øvrige installasjoner og leveranser

Det leveres seriekoblede røykvarslere til hver bolig, samt ett brannslukkingsapparat. Vedovn av type Schiedel Sirius 1 XXXX?, eller tilsvarende. Stryntrappa modell Fauna åpen i hvit utførelse med eik toning i trinn, eller tilsvarende.

21

ANNET

Vedovn med ventilert stålpipe.

VVS

ELEKTRO

Lampepunkt i tak. Elektrisk varme med termostat i golv.

Takarmatur. Dobbel stikkontakt.

Stikk for taklys ved topp vegg.

Fiber-/TV punkt komplett. Stikk for taklys ved topp vegg.

TAK

Sparklet og malt gips

Sparklet og malt gips

Sparklet og malt gips

Sparklet og malt gips

VEGG

Sparklet og malt gips

Sparklet og malt gips

Sparklet og malt gips

Sparklet og malt gips

Flis 30x60 cm

Parkett eik hvitpigmentert 3stavs

Parkett eik hvitpigmentert 3stavs

Parkett eik hvitpigmentert 3stavs

Gang

Bod

Hagestue/Trapp

Stue

Ett greps blandebatteri. Opplegg for oppvaskmaskin med stoppkran.

Egen kurs til komfyr. Egen kurs til induksjonstopp. Komfyrvakt. Dobbel stikkontakt over kjøkkenbenk. Lampepunkt i tak.

Baderomsinnredning fra Drømmekjøkkenet. Se egne tegninger og spesifikasjoner.

Vegghengt toalett i hvit utførelse. 90x90 cm rettvinklede dusjvegger som kan svinges inn når dusjnisjen ikke er i bruk.Trykkstyrt dusjbatteri m/dusjgarnityr, ettgreps servantbatteri, 75 mm golvsluk.

Innfelte downlights (4 stykk). Speil med integrert belysning som del av innredning. Dobbel stikkontakt over/ved vask. Fuktføler sammenkoblet med ventilasjonsanlegg. Elekritsk varme med termostat i golv.

200 liter VV-bereder, 50 cm stål skyllekar, Ettgrepsveggbatteri m/kran for vaskemaskin, 75 mm golvsluk. Ventilasjonsaggregat.

Takarmatur.Dobbel stikk ved opplegg for vaskemaskin. Elekritsk varme med termostat golv.

Sparklet og malt gips

Sparklet og malt gips

Lampepunkt i tak.

Lampepunkt i tak.

Rekkverk i Royal Setersvart, søyler og dragere i Setersvart. 1 stykk utelampe ved inngangsdør (koblet til astrour)

Det vil i deler av boligene bli foret ned for å skjule tekniske føringer. Det vil i disse områdene bli redusert takhøyde.

1 stykk utvendig kran.

Dobbel stikkontakt.

Takarmatur. Dobbel stikkontakt

Takarmatur med bryter. Dobbel stikkontakt.

Sparklet og malt gips

Sparklet og malt gips

Sparklet og malt gips

Sparklet og malt gips

Parkett eik hvitpigmentert 3stavs

Flis 30x60 cm

Flis 30x60 cm. I nedsenket dusjnisje flis 5x5 cm.

Kjøkkeninnredning fra Drømmekjøkkenet med integrerte hvitevarer fra Siemens og Røros Metall. Se egne tegninger og spesifikasjoner. Bad (begge)

Kjøkken

Sparklet og malt gips

Sparklet og malt gips

Sparklet og malt gips

Flis 30x60 cm med sokkelflis

Parkett eik hvitpigmentert 3stavs

Parkett eik hvitpigmentert 3stavs

Synlig stenderverk

Vask

Hovedsoverom/Gard

Øvrige Soverom

28x120 mm trykkimpregnert.

Betong

Asfalt

6 stykk utelamper med astrour på fasadene.

Balkong

Sportsbod i carport

Carport

22 ROMSKJEMA Lundamo Park B09
ROM GULV
Nedforinger Øvrig

Heimdal Sag Prosjekter AS

Lundamo Park B08/B09

23

Vi leverer produkter av høyeste kvalitet, med utallige valgmuligheter for kunden.

Vi ønsker å gjøre valg av kjøkken, bad og garderobe til en bekymringsfri opplevelse, med god hjelp og veiledning, for å skreddersy en best mulig løsning som kunden kan være fornøyd med i mange år fremover.

Vi har god erfaring innen håndtering av tilvalg. Her får boligkjøper god hjelp og veiledning til å designe sitt Drømmekjøkken, ut ifra deres ønsker og behov.

24

Kjøkken

Vi har valgt fronten Bistro. Det er en 19mm tykk dør i malt utførelse. Du kan velge mellom 10 ulike farger uten pristillegg.

Med solide maleprosesser i flere lag, og med sjenerøse strøk oppnår vi en slitesterk overflate på fronten som holder i mange, mange år.

Skuffene er av det eksklusive skuffe systemet Design Box 2.0®. Skuffene er fullt uttrekkbare og med demping. Kunden velger selv om de vil ha skuffen i stilrent hvitt eller i vår trendriktige grå farge, og om de vil ha tette skuffesider eller i klart glass.

Benkeplaten er 30mm laminat. Her kan kunden fritt velge mellom 6 ulike utførelser.

Vasken er en underlimt 1 ½ fra Franke i ypperste stålkvalitet. Noe som gjør renhold til en drøm!

25

HVITEVARER

Fra Siemens

STEKEOVN

PLATETOPP

26
Vi har valgt hvitevarer fra Siemens og Røros Metall. Kjente kvalitetsmerker med god design.
Allsidig stekeovn med hurtigstart funksjon som reduserer steketiden. 3D varmluft byr på en perfekt varmefordeling i ovnsrommet, slik at du får et perfekt bakeresultat.
innovative
Platetopp med induksjon og
funksjoner for mer fleksibilitet under matlagingen. Med TouchControl funksjonen kan du aktivere og stille inn kokesonene med et lett fingertrykk. PowerBoost funksjon opptil 50% kortere oppvarmingstid

HVITEVARER

KOMBISKAP

BigBox:

OPPVASKMASKIN

Variospeed

Fleksibel

Autoprogrammer

27
on demand for opptil 2 ganger raskere oppvasksyklus Home Connect.
InfoLight projiserer et blått lys på gulvet når programmet kjører.
høyderegulering av overkurven skaper plass for til og med de høyeste tallerkener og gryter.
styrer hele oppvaskprosessen med et strålende resultat.
Integrert kombiskap med FreshBox med bølgeformet bunn som gjør at frukt og grønnsaker holder seg friskt lenger.
ekstra stor plass for effektiv oppbevaring av store frysevarer.
Fra Siemens

CRYSTALL

28 HVITEVARER
Crystall slimline ventilator for integrering under veggskap med uttrekkbar sølvgrå forkantlist. Energieffektiv LED belysning. To motorer og tretrinns styring . B08 102/202 GAIA Moderne veggmodell i børstet stål, 60 cm. Stålkvaliteten er anti fingerprint slik at du slipper fingermerker. Du kan få hetta lakkert i valgfri NCS farge uten pristillegg. B08 101/201/103/203 B09 101/102/103 Røros Hetta
29
B08 Leilighet 101 og 201 B08 Leilighet 102 og 202 B08 Leilighet 103 og 203 B09 Leilighet 101, 102 og 103
Kjøkken illustasjonsbilder

baderom

Vi valgte baderomsinnredningen Bright Slett i malt utførelse. Skapet har en skuff og en åpen hylle som vist på bildet til høyre.

Servanten er i tynt porselen med myke former og en firkantet kulp med mykt avrundede hjørner.

Skuffen er av høy kvalitet med egen inndeling som gjør det lett å holde orden.

Belysningsspeil er et fint produkt som både gir godt lys og speil i ett. Speilets lyskilde er LED.

30

Tilvalgs muligheter for kunden

Vi har et bredt spekter av kvalitets fronter i glatt eller profilert utførelse. Frontene er malt, finert eller i heltre. I tillegg til vårt brede kjernesortiment, kan vi også tilby skreddersydd produsering på mål. Vi har løsning for en hver kunde.

Vi forhandler hvitevarer fra de aller fleste anerkjente leverandørene. Vi kan derfor tilby produkter tilpasset kundens behov, og som vi vet står for kvalitet.

Utvalget vårt på benkeplater strekker seg langt. Her kan du velge i over hundre forskjellige plater i materialer som laminat, naturstein, heltre, keramikk, kompositt eller stål.

31

garderobe

Vi kan tilby fleksible og smarte løsninger som vil gjøre hverdagen lettere.

Vi har flere ulike utførelser både når det gjelder innredning og skyvedører.

Skyvedørene kan også brukes som romdeler eller som dører inn til kontoret. Her er det bare fantasien som setter grenser.

Vi hjelper deg å skreddersy din garderobe til ditt behov.

*Bildene er kun for inspirasjon. Det er ikke priset garderobeløsninger for dette prosjektet.

32

BAD

Grespor Glade Branco 29,7x59,7

Grespor Glade Branco 5x5

Grespor Glade Cinza 29,7x59,7

Grespor Glade Cinza 5x5

Grespor Minos Ash 29,7x59,7

Grespor Minos Ash 5x5

ENTRE

Grespor Minos Ash 29,7x59,7

Grespor Glade Cinza 29,7x59,7

Grespor Glade Branco 29,7x59,7

34

Elementliste: 3225/2/1

Prosjekt: Lundamo Park - B08/B09

GLH Trondheim AS, Drømmekjøkkenet Trondheim

Industriveien 1, , 7080 HEIMDAL

Tlf: Mobil: 90647800 Faks: heimdal@dktrondheim.no www.drommekjøkkenet.no Organisasjonsnr.:917 869 529

Bankgiro: Postgiro:

Kundenr.: 1 220 Lundamo Park - B08/B09

Leveringsadresse: Lundamo Park - B08/B09 ,

Tlf : Mobil: Deres ref : Lundamo Park - B08/B09

Drømmekjøkkenet Kjøkken

Skrevet ut : 12.10.2022 Side 1 (2)

Elementliste

Tilbudsnr. :3225/2/1 Tilbuds dato : Gyldig til : Vår ref : E-Mail : Deres ref :Lundamo Park - B08/B09 Tlf : Telefon privat : Mobil : Faks : E-Mail : Transport : Lev eringsbet. : Lev eringstid : Betaling :

Kjøkken : Bistro

Utførelse dør : Varmgrå

Utførelse skrog : Hvit laminat Skuffetype : Hvit Valg av glass/metallside designbox : Glas

Tipon skuff : Tipon skuff Av Hylle : Hylle På

Kjøkken (bare skrog) : Skrog

Utførelse dør : Skrog Utførelse direktfaneer : Ingen finering Front : Bistro

Utførelse skrog : Bare dør Høyt skrog (768) tilbehør : Malt Utførelse : Malt varmgrå Sokkel : Malt Skrog : Laminat Utførelse : Laminat hvit

Drømmekjøkkenet laminat std

Benkeplater

: Laminat rett ABS-kant-30 Laminat type : 2256

Pos Kode

1 FR204860116

Beskrivelse Hengsl. Antall Enhet

Dekkside høyskap 2048x601x16 1,000 stk

2 EKYK2016 Høyskap EK, kjøl/frys, H=2048, B=598 Spotlight / type topp = Av Skrog

Utførelse dør Skrog Skuffetype Grå

1,000 stk

2.1 GGJ110MD Hengsel 110 med integrert demping 5,000 stk

2.2 HHSE6KOPV Hylle BS/HS6 koblet vent m. hyllebærere 2,000 stk

2.3 LU764594 Dør 764x594 V 1,000 stk

2.4 LU1276594 Dør 1276x594 V 1,000 stk

35

Elementliste: 3225/2/1

Prosjekt: Lundamo Park - B08/B09

Pos Kode Beskrivelse

Skrevet ut : 12.10.2022 Side 2 (2)

Hengsl. Antall Enhet

Dekkside høyskap 2048x601x16 1,000 stk 4 LU764594 Dør 764x594

3 FR204860116

4.1 OBORR

Bredde = 600, Høyde = 768, Ombygd front 1,000 stk

Døren lev eres UBORRET. 1,000 stk

5 ED6 Oppv askbenkeskap B=598 H 1,000 stk

5.1 FARG50 Flikklakk 50 ml 1,000 stk

6 EC3H2 Benkeskap, 2 hyller, B=298 H 1,000 stk

7 EC10HH2H50 Hjørneskap, høyre, dørbredde 494, B==998 Forskyv ning = 250 V 1,000 stk

7.1 PBS764194

8 EH6634L

10 EK5

Foring-sats 764x194

Bredde = 194, Dybde = 581 2,000 stk

Ovn/Komfyrtopp, 1 skuffe 500 dybde, B=598 1,000 stk 9 EC99HH2 Hjørneskap, 898x898, 2 hyller H 1,000 stk

Overskap EK, H=640, B=498 V 1,000 stk

11 EK5 Overskap EK, H=640, B=498 V 1,000 stk

12 EK5

13 EK6

Overskap EK, H=640, B=498 H 1,000 stk

Overskap EK, H=640, B=598 H 1,000 stk

14 PB20 Foring enkel, 2400x200

Bredde = 54, Høyde = 640, Dybde = 318 1,000 stk

15 RYGGBAR7 Rygg barløsning 16mm finer/malt Bredde = 1513, Høyde = 880 1,513 m

16 VENTGM Ventilationsgitter, malt aluminium 1,000 stk

17 FR87060116 Dekkside benkeskap 870x601x16 1,000 stk

18 EA62RL Benkeskap, 3 skuffer, B=598 1,000 stk

18.1 IF6V55 Bestikkinnlegg 600, hv it plast, D=550 1,000 stk 19 BCX260 BCX 260 - Vask inkl. strainer og v annlås Bredde = 780, Høyde = 180, Dybde = 510 1,000 stk 450 HG830 Håndtak HG-830, rustfritt, cc=128 15,000 stk 500 LBBS610 Benkeplate dybde 610 laminat rett kant Lengde = 1536, Dybde = 610 1,536 m 500.1 LBSKARV90 Hjørnesamling inkl koblingsbeslag Bredde = 610 1,000 stk 500.2 Kutting av "19: Vask" er utført på monteringsstedet

501 LBBS610 Benkeplate dybde 610 laminat rett kant Lengde = 2135, Dybde = 610 2,135 m

501.1 Skjøten er inkludert i "LBSKARV90"!

501.2 Skjøten er inkludert i "LBSKARV90"!

501.3 Kutting av EX677LYV5E er utført på monteringsstedet

502 LBBS1200 Benkeplate dybde 1200 laminat rett kant Lengde = 1523, Dybde = 639 1,523 m

502.1 LBSKARV90 Hjørnesamling inkl koblingsbeslag Bredde = 610 1,000 stk

503 BEN100 Støttebein 100 ink clips, H=95-120 mm 20,000 stk

504 SO102 Sokkel 102, 102x2400x16 3,000 stk

505 SOH102 Sokkelhjørne 102, 102x25x25mm 1,000 stk

36

600

930

201 867 01 085 05 046 051 001 201 0151 0512 0042 0042

16 39

952 2800 250

899

598

Skala: Tilpasset ramme

998

Vår ref: Stenersen, Adrian 1 ( 1 ) EH6634L PB20

Side: EC99HH2 RYGGBAR7 EC10HH2H50 EK6 318

37 Oppriss : 3225/2/1 B09KjøkkenKjøkkenKT4
Prosjekt : Lundamo ParkB08/B09
Skrevet ut: 31.10.2022
MERK: Tegningen er bare retningsgivende. Dybdemål er ekskl. ska pdører. NB: Kontrollmål må foretas

598

498

498

498

Side: ED6

EC3H2 BCX260

650

EK5

EK5

PB20 EC10HH2H50 FR204860116

EK5 LU764594 2354

201 867 046 046 052 201 0151 0512 0042 0042

FR204860116

EK6 EKYK2016 LU764594 LU1276594

298

598

600

16

Vår ref: Stenersen, Adrian 1 ( 1 ) VENTGM

598

Skala: Tilpasset ramme

16

54 4500 1724

38 Oppriss : 3225/2/1 B09KjøkkenKjøkkenKT4
Prosjekt : Lundamo ParkB08/B09
Skrevet ut: 31.10.2022
MERK: Tegningen er bare retningsgivende. Dybdemål er ekskl. ska pdører. NB: Kontrollmål må foretas
39 Perspektivtegning : 3225/2/1 B09KjøkkenKjøkkenKT4 Skrevet ut: 12.10.2022 Prosjekt : Lundamo ParkB08/B09
Tegningen er bare retningsgivende. Vår ref: Side: 1 ( 1 )
MERK:
40 Perspektivtegning : 3225/2/1 B09KjøkkenKjøkkenKT4 Skrevet ut: 12.10.2022 Prosjekt : Lundamo ParkB08/B09 MERK: Tegningen er bare retningsgivende. Vår ref: Side: 1 ( 1 )
41 Plantegning : 3225/2/1 B09KjøkkenKjøkkenKT4
Prosjekt : Lundamo ParkB08/B09
) B09101/102/103 1 4 5 6 FR87060116 RYGGBAR7 VENTGM ED6 05H2HH01CE 2HH99CE EC3H2 EA62RL L4366HE EKYK2016 LU764594 LU1276594 FR204860116 FR204860116 BCX260 EK5 EK5 EK5 EK6 PB20 1724 16 598 16 600 598 298 650 2354 498 498 498 598 54 4500 052 899 895 998 61 93 813 039 006 259 0082
Skrevet ut: 31.10.2022
Skala : Tilpasset ramme MERK: Tegningen er bare retningsgivende. Dybdemål er ekskl. ska pdører. NB: Kontrollmål må foretas Vår ref: Stenersen, Adrian Side: 1 ( 1

Elementliste: 3225/5/1

Prosjekt: Lundamo Park - B08/B09

GLH Trondheim AS, Drømmekjøkkenet Trondheim

Industriveien 1, , 7080 HEIMDAL

Tlf: Mobil: 90647800 Faks: heimdal@dktrondheim.no www.drommekjøkkenet.no Organisasjonsnr.:917 869 529

Bankgiro: Postgiro:

Kundenr.: 1 220 Lundamo Park - B08/B09

Leveringsadresse: Lundamo Park - B08/B09 ,

Tlf : Mobil: Deres ref : Lundamo Park - B08/B09

Skrevet ut : 12.10.2022 Side 1 (1)

Elementliste

Tilbudsnr. :3225/5/1 Tilbuds dato : Gyldig til : Vår ref : E-Mail :

Deres ref :Lundamo Park - B08/B09 Tlf : Telefon privat : Mobil : Faks : E-Mail : Transport : Lev eringsbet. : Lev eringstid : Betaling :

Ballingslöv Bad Bright : Bright Skrog : Hvit Utførelse dør : Hvit Tipon skuff : Tipon skuff AV

Pos Kode Beskrivelse Hengsl. Antall Enhet

1 KO80B Serv antskap KO80 Bright Ombygd front 1,000 stk 2 T80PT Serv ant 80c Thin 1,000 stk 3 BSPL80 Belysningsspeil Line 80, multiwhite,dimmer 1,000 stk 450 HG830B Håndtak Bad HG-830 RF 1,000 stk

42

2 353 084 512 058 994 2 553 0042 0042

500

3 3

Vår ref: Stenersen, Adrian ) KO80B T80PT BSPL80

794

3

1 497

Skala: Tilpasset ramme

Side: 1 ( 0091 2700 900

43 43 Oppriss : 3225/5/1 B09BadBadBT4
Prosjekt : Lundamo ParkB08/B09
Skrevet ut: 31.10.2022
MERK: Tegningen er bare retningsgivende. Dybdemål er ekskl. ska pdører. NB: Kontrollmål må foretas
44 Perspektivtegning : 3225/5/1 B09BadBadBT4 Skrevet ut: 12.10.2022 Prosjekt : Lundamo ParkB08/B09 MERK: Tegningen er bare retningsgivende. Vår ref: Side: 1 ( 1 )

1700 2300

009 005 497 605 0041 008 005 0072

500

21

440

3

1400

440 100

4 B08OK TP08T

08LPSB 500 900 900

2300 002 063 0412 0072

Vår ref: Stenersen, Adrian ( 1 ) B09101/102/103 Bad 1.etg.

Side: 1 1 2

Skala : Tilpasset ramme

45 Plantegning : 3225/5/1 B09BadBadBT4
Prosjekt : Lundamo ParkB08/B09
Skrevet ut: 31.10.2022
MERK: Tegningen er bare retningsgivende. Dybdemål er ekskl. ska pdører. NB: Kontrollmål må foretas

Elementliste: 3225/5/2

Prosjekt: Lundamo Park - B08/B09

GLH Trondheim AS, Drømmekjøkkenet Trondheim

Industriveien 1, , 7080 HEIMDAL

Tlf: Mobil: 90647800 Faks: heimdal@dktrondheim.no www.drommekjøkkenet.no Organisasjonsnr.:917 869 529

Bankgiro: Postgiro:

Kundenr.: 1 220 Lundamo Park - B08/B09

Leveringsadresse: Lundamo Park - B08/B09 ,

Tlf : Mobil: Deres ref : Lundamo Park - B08/B09

Skrevet ut : 12.10.2022 Side 1 (1)

Elementliste

Tilbudsnr. :3225/5/2 Tilbuds dato : Gyldig til : Vår ref : E-Mail :

Deres ref :Lundamo Park - B08/B09 Tlf : Telefon privat : Mobil : Faks : E-Mail : Transport : Lev eringsbet. : Lev eringstid : Betaling :

Ballingslöv Bad Bright : Bright Skrog : Hvit Utførelse dør : Hvit Tipon skuff : Tipon skuff AV

Pos Kode Beskrivelse Hengsl. Antall Enhet

1 KO80B Serv antskap KO80 Bright Ombygd front 1,000 stk 2 T80PT Serv ant 80c Thin 1,000 stk 3 BSPL80 Belysningsspeil Line 80, multiwhite,dimmer 1,000 stk 450 HG830B Håndtak Bad HG-830 RF 1,000 stk

46

052 501 581 592 512 058 005 553 0042 0042

1100

3 3

Vår ref: Stenersen, Adrian ( 1 ) KO80B T80PT BSPL80

794

Skala: Tilpasset ramme

217 3

360

Side: 1 0091 2700 220

47 Oppriss : 3225/5/2 B09BadBadBT5
Prosjekt : Lundamo ParkB08/B09
Skrevet ut: 31.10.2022
MERK: Tegningen er bare retningsgivende. Dybdemål er ekskl. ska pdører. NB: Kontrollmål må foretas
48 Perspektivtegning : 3225/5/2 B09BadBadBT5 Skrevet ut: 12.10.2022 Prosjekt : Lundamo ParkB08/B09 MERK: Tegningen er bare retningsgivende. Vår ref: Side: 1 ( 1 )
49 Plantegning : 3225/5/2 B09BadBadBT5
Prosjekt : Lundamo ParkB08/B09
B09101/102/103 Bad 2.etg. 1 2 3 4 B08OK TP08T 08LPSB 800 440 21 440 100 500 1100 1700 009 0081 0072 100 900 700 1700 022 063 022 497 6011 008 008 0011 0072
Skrevet ut: 31.10.2022
Skala : Tilpasset ramme MERK: Tegningen er bare retningsgivende. Dybdemål er ekskl. ska pdører. NB: Kontrollmål må foretas Vår ref: Stenersen, Adrian Side: 1 ( 1 )

Area Etg. 1

59.3 m² Etg. 2

59.3 m² 118.7 m²

MÅLESTOKK: ARKSTØRRELSE: TEGN.NR: TEGN, INNHOLD: PROSJEKT: ARKITEKT:

117 m² BRA per Etasje Name

REV:

Areal BYA

REV: DATO:

SIGN:

REVISJON:

PLANER OG SNITT 22.06.2020 Berit N. Lysberg

A22.06.2020

DATO:

BNL B23.06.2020

BNL

A501 MELHUS 1 : 100 Snitt A-A

TEGN: 1 : 100 PLAN 1. ETG

Endret til enebolig

Fjernet utv. trapp

1 : 100 B MESTERHUS TRØNDELAG

208/16,214,21 Mosløkkja

KOMMUNE: G.nr/B.nr: MEDLEM: Tlf 74 27 53 60, 7800 Namsos, www.arkplan.no

BNL LUNDAMO PARK, FELT B09 1 : 100 PLAN 2. ETG.

50 6.2 m² Bad 008 A A 5 m² Sportsbod 001 4x21F SGL 8x21 L/F 24x8L/F 8x21 L/F SGL 6400 0 35.2 m² Carport 002 6.2 m² Gang 003 3.9 m² Bod 004 6.8 m² Sov 005 4.7 m² Vask 006 20.1 m² Hagestue/Trapp 010 8.4 m² Sov 009 5x5L 10x21 10x21 G2 720 A 1 50 A 1 50 336815823250 10600 5x5L 15x21 F 8x21 L/F 15x21 F 15X4F15X4F 24x8L/F 8x21 L/F 5x5L 43 m² Kjk/Stue
4.6 m²
42.1 m²
204 2400 2400 5703 6497 7 °
201
Bad 202 10 m² Sov 203
Balkong
©
Denne tegning må ikke kopieres eller benyttes ved foretagender som rettighetshaver ikke medvirker i.
© Vi forbeholder oss retten til å endre på utformin g av bygget dersom det avdekkes forhold som krever det under prosjektering en TILTAKSHAVER: BYGGEPLASS:

© Vi forbeholder oss retten til å endre på utformin g av bygget dersom det avdekkes forhold som krever det under prosjektering en

27 53 60, 7800 Namsos, www.arkplan.no

51
TILTAKSHAVER: BYGGEPLASS: KOMMUNE: G.nr/B.nr: MEDLEM: Tlf 74
REV:DATO:REVISJON: SIGN: MÅLESTOKK: ARKSTØRRELSE: TEGN.NR: TEGN, INNHOLD: PROSJEKT: ARKITEKT: DATO: TEGN: REV: B MESTERHUS
PERSPEKTIV
Berit N. Lysberg BNL A3 LUNDAMO
FELT B09 A505
Endret
© Denne tegning må ikke kopieres eller benyttes ved foretagender som rettighetshaver ikke medvirker i. BNL
TRØNDELAG 208/16,214,21 Mosløkkja
22.06.2020
PARK,
MELHUS A22.06.2020
til enebolig BNL B23.06.2020 Fjernet utv. trapp

© Vi forbeholder oss retten til å endre på utformin g av bygget dersom det avdekkes forhold som krever det under prosjektering en BNL

208/16,214,21

www.arkplan.no

52
TILTAKSHAVER: BYGGEPLASS: KOMMUNE: G.nr/B.nr: MEDLEM: Tlf 74 27 53 60, 7800 Namsos,
REV:DATO:REVISJON: SIGN: MÅLESTOKK: ARKSTØRRELSE: TEGN.NR: TEGN, INNHOLD: PROSJEKT: ARKITEKT: DATO: TEGN: REV: 1 : 100 B MESTERHUS TRØNDELAG
Mosløkkja FASADER 22.06.2020 Berit N. Lysberg BNL A3 LUNDAMO PARK, FELT B09 A506 MELHUS 1 : 100 FASADE 1 1 : 100 FASADE 2 1 : 100 FASADE 3 1 : 100 FASADE 4 A22.06.2020 Endret til enebolig BNL
© Denne tegning må ikke kopieres eller benyttes ved foretagender som rettighetshaver ikke medvirker i. Fjernet utv. trapp
B23.06.2020
53 4.0 6.6 2.2 6.6 2.2 6.6 6 enheter: 4 stk 4 roms stk ca 84,6 kvm 2 stk 3 roms ca 74 kvm carport3eneboligermedunderbalkong 30.0 1.4 12.8 3.6 9.1 1.8 7.5 31 27 29 208/14 208/72 208/188 208/210 208/217 B05 B11 B08 B07 B09 Avfall B10 P02 Avfall 10 carport m. bod 46enheter:stk46kvm,2-3roms2stk42kvm,2-roms carport4eneboligermedunderbalkong 6carport m. bod 2.2 3.0 4.0 9.1 7.5 7.0 7.5 1.5 18.7 8.5 5.0 5.8 12.2 6.5 3.7 6.5 3.7 6.5 3.7 6.5 16.6 8.2 2.1 8.2 2.1 8.2 2.1 8.1 1.6 10.8 6.6 2.2 2.1 8.2 2.9 7.5 7.0 Tiltakshaver: Innhold: Prosjekt: Denne tegning må ikke kopieres eller benyttes ved foretagender som rettighetshaver ikke medvirker i. Dato: Revidert: Situasjonsplan Lundamo Park B08 og B09 23.06.2020 M=1:500 Abel Meyersgt. 22, postboks 172, 7801 Namsos. Tlf. 74 27 53 60 Heimdal Sag Prosjekter Sign: BNL Sign: Målestokk:

Arealoversikt Lundamo Park; B10 Eneboliger

BRA totalt: 158,8

1. etg 59,3 2. etg 59,3 Sportsbod 5,0 Carport 35,2

S-rom totalt: 44,1 Sportsbod 5,0 Carport 35,2

1. etg 3,9 2. etg 0,0

P-rom totalt: 114,7

1. etg 55,4 2. etg 59,3

54
55 ©Norkart 2022 18.11.2022 Målestokk: Dato: Eiendom:
Melhus kommune 208/16 UTM-32 Reguleringsplankart Adresse: Kartet er produsert fra kommunens beste digitale kartbaser for området og inneholder viktige opplysninger om eiendommen og området omkring. Presentasjonen av informasjon er i samsvar med nasjonal standard. Kartet kan inneholde feil, mangler eller avvik i forhold til kravene i oppgitt standard Kartet kan ikke benyttes til andre formål enn det formålet det er utlevert til uten samtykke fra kommunen jf. lov om åndsverk.
1:1500
56 Tegnforklaring

§

Planen er datert: 12.11.17

Bestemmelsene er datert: 12.11.17

Bestemmelsene er revidert den: 08.09.20

Bestemmelsen er revidert etter høringsrunden den 01.10.20

REGULERINGSBESTEMMELSER Til Detaljplan Mosløkkja

OMFATTER GBB 208/16, 208/214 og 208/21 PLANID 2013014, Saksnummer 13/2789-53

12 5, nr 1 BEBYGGELSE OG ANLEGG

• Boligbebyggelse (1110)

• Uteoppholdsareal (1600)

• Lekeplass (1610)

§12

5, nr 2 SAMFERDSEL OG ANLEGG

• Kjøreveg (2011)

• Fortau (2012)

• Annen veggrunn tekniske anlegg (2018)

• Annen veggrunn grøntareal (2019)

• Parkering (2082)

§ 12 5, nr 3

§ 12 6

GRØNNSTRUKTUR

• Vegetasjonsskjerm (3060)

HENSYNSSONER

• Frisikt

• Flomfare

57

Planens intensjon

Formålet med planen er å legge til rette for en tett bebyggelsesstruktur med kombinasjon av eneboliger/rekkehus og leiligheter i 2 etasjer, med åpne og grønne uteareal.

Følgende bestemmelser gjelder for reguleringsformålene:

1. BEBYGGELSE OG ANLEGG

1.1 Felles bestemmelser

Innenfor planområdet, i felt B1 B13, skal det etableres en kombinasjon av eneboliger, kjedehus, rekkehus og lavblokker med tilhørende parkeringsanlegg.

1.1.1 Grad av utnytting

Bebygd areal BYA innenfor planområdet skal ha en samlet utnyttelsesgrad på minimum % BYA=50%. Minimum antall boligenheter for planområdet er 100.

Det tillates ikke etablert nye boligenheter med større bruksareal enn BRA 200m2 inkl. biloppstillingsplasser.

1.1.2

Plassering av planlagt bebyggelse

Bebyggelsen skal plasseres innenfor de viste byggegrensene. Der det ikke er vist byggegrense, gjelder formålsgrense som byggegrense. Garasje /carportanlegg og boder kan plasseres utenfor regulert byggegrense, inntil regulert formålsgrense, der dette er hensiktsmessig og gir bedre kvalitet for brukeren. Dette gjelder ikke fastsatt byggegrense mot veg. Kvalitetskrav kan være bedre frisikt mot veg, bredere parkeringsplasser og generelt bedre tilgjengelighet for bruker.

1.1.3 Høyde på planlagt bebyggelse

Bebyggelsens møne /gesimshøyde skal ikke overstige de kotehøydene som er vist på plankartet.

1.1.4 Utforming av bebyggelsen

Bebyggelsen tillattes oppført i 2 etasjer med maks møne /gesimshøyde som angitt på plankartet. Det tillates ikke oppføring av kjeller.

Bebyggelsen kan ha flate tak og tak med vinkel. Det tillates etablert takterrasse på deler av bebyggelsen.

Det tillates oppført carport/garasje med maks høyde på 3,5 m over ferdig planert terreng. Plassering av carport/garasje må tilpasses slik at inn og utkjøring ikke hindrer trafikk på internveien.

Garasjer tilknyttet den enkelte bolig kan ikke overstige BRA 50 m2.

Carport/garasje kan ha flatt tak, som kan benyttes som uteoppholdsareal. Rekkverk tillates da i høyde maksimum 1 m over regulert høyde.

Garasjer og boder skal tilpasses bolighusets form, takform, materialbruk og farge. Vegger i carporter uten brannkrav skal ha et lett og transparent uttrykk.

58

1.1.5 Privat uteoppholdsareal

Boligene skal ha et privat uterom, balkonger/terrasse på minimum 12m2. Krav til uteoppholdsarealet skal tilfredsstille kravene i Forskrift om tekniske krav til byggverk §8 4, Uteoppholdsareal.

1.1.6 Parkering

Det skal opparbeides minimum 1 parkeringsplass + 0,5 gjesteparkeringsplass pr. boenhet større enn BRA 60m2.

For boenheter mindre enn BRA 60m2, så skal det oppføres minimum 1 parkeringsplass pr boenhet.

For eneboliger, kjedehus og rekkehus skal det opparbeides minimum 2 parkeringsplasser pr boenhet på egen eiendom. For leiligheter skal det opparbeides minimum 1 parkeringsplass på egen eiendom og øvrige parkeringsplasser på felles parkeringsområder i felt f_P1, f_P2 og f_P3.

For Felt B01 tillates at gjesteparkering opprettes på felles parkeringsareal f_P1, men dog maks 4 plasser kan avsettes til dette formålet.

1.1.7 Utforming av utearealer

Det skal etableres nødvendige privatrettslige rettigheter som sikrer mulighet til adkomst for å utføre utvendig vedlikehold av hver bolig.

1.1.8 Beplantning/vegetasjon

Hvis tomtene skal innhegnes, skal dette skje ved lav hekk eller buskplanting. Maks høyde 1m. Ingen tomt må beplantes med trær eller busker som kan være til ulempe for trafikksikkerheten.

1.1.9 Utomhusplan

Det skal utarbeides en utomhusplan som skal vise plassering av uteoppholdsareal, lekeareal, interne veier, parkering, garasjer/carport, container for avfallshåndtering, i henhold til krav i denne plan, denne skal godkjennes av Melhus kommune i forbindelse med byggesaken. Dette kan også gjøres etappevis.

1.2 Energianlegg

Det kan etableres nettstasjon innenfor planområdet. Plassering av nettstasjon opp mot omkringliggende bebyggelse skal følge nettleverandørs retningslinjer og krav til sikkerhetsavstander for brann og strålingsfare, samt sikres god adkomst fra intern kjøreveg. Uteområde rundt nettstasjonen tilpasses vegetasjonen i uteområdet, men må ikke være til hinder for adkomst og vedlikehold.

1.3 Uteoppholdsareal

Uterommet skal ha en utforming som gir mulighet både for opphold og sosialt samkvem, rekreasjon, lek og spill i de ulike årstidene. Opparbeidelse skal være i tråd med gjeldende (ved søknadstidspunkt) norm for uteoppholds og lekeareal for Melhus kommune. Utomhusarealene skal utformes med omfang i samsvar med illustrasjonsplan datert 30.9.2013.

1.4 Lekeplass

59

Lekeareal er felles for alle eiendommene innenfor planområdet. Felles lekeareal skal opparbeides med sandlekeplass og etter prinsippene om universell utforming. Opparbeidelse skal være i tråd med gjeldende (ved søknadstidspunkt) norm for uteoppholds og lekeareal for Melhus kommune. Lundamo Skole sitt idrettsanlegg kan medregnes som nærlekeplass for større barn.

1.5 Grunnvarme

Det kan tilrettelegges for forsyning av vannbåren varme ved utbygging.

2. SAMFERDSEL OG ANLEGG

2.1 Avkjørsler

Det skal etableres to avkjørsler fra o_TR2 (Lundadalsvegen) inn til planområdet. Intern adkomstvei med redusert hastighet innenfor planområdet ivaretar sikker adkomst til boligenhetene.

2.2 Kjøreveg

Kjøreveger og fortau skal opparbeides som vist på plankartet.

TR1 E6

TR1 er regulert til senterlinje med feltbredde 4,0 m (inkl. skulder).

TR2 Lundadalsvegen, FV676

TR2 er regulert til senterlinje med feltbredde 2,75 m (inkl skulder).

TR3 Adkomstvei

Intern adkomstvei utformes med maks 3,5m asfaltert bredde. Regulert bredde kjøreveg 4m. Møteplasser opprettes der veien skifter retning og ved parkeringsfeltene

2.3 Fortau

Det skal etableres fortau fra E6 og langs Lundadalsvegen innenfor planområdet. Regulert bredde 3m med 0,75m buffersone mellom Lundadalsvegen og fortauet.

Fortauet heves fra Lundadalsvegen med kantstein for å hindre biltrafikk inn på fortauet.

2.4 Annen veggrunn teknisk

2.4.1 Avfall

Innenfor planområdet skal det etableres områder for avfallsbeholdere iht Melhus kommunes forskrifter. Disse plasseres på annen veggrunn ved parkeringsfelt f_P1, f_P2 og f_P3. Det skal avsettes plass til 6 avfallsbeholdere med mulighet til utvidelse ved behov. Avfallsbeholdere skal tilrettelegges slik at avfallshåndtering skjer fra internvei.

60

2.4.2 Grøft / snøopplag

Grøftene må være brede, slake og U formet slik at de blant annet har stor kapasitet til å føre bort overflatevann. Regulert bredde 1,2m gir tilstrekkelig areal til snøopplag for en vei på 3,5m.

Grøftene bør tilstrebes å være tilsådde med lav vegetasjon som motvirker erosjon og hindrer inntrykk av forsøpling. Vegetasjonen må ikke være til hinder for sikt og tåle snøopplag på vinteren.

2.5 Annen veggrunn grøntareal

Arealet på sørsiden av Lundadalsvegen reguleres til offentlig grøntareal.

2.6 Parkering

Det skal etableres felles bakkeparkering på parkeringsområde i felt f_P1, f_P2 og f_P3. Minst én parkeringsplass i hvert av de tre parkeringsfeltene skal være tilpasset bevegelseshemmede.

Det tillates bakkeparkering innenfor byggegrensen mot Lundadalsvegen.

Parkeringsområdene skal være felles for hele planområdet.

2.7 Vann/Avløp/Overvann

VA anlegg skal opparbeides av utbygger i h.h.t VA plan som skal godkjennes av Melhus kommune for det kan gis tiltalelse til tiltak innenfor planområde. Anlegget skal utformes i h.h.t godkjent plan og kommunens VA norm.

Det skal lages en egen plan for intern overvannshåndtering i tråd med NVEs anbefaling i konklusjon i notat «Flomsikring, overvann og skred», NVE datert 26.7.2013. Planen skal vise plassering av regnbed på egnede plasser og tilhørende overvannsledninger og skal godkjennes av kommunen før det kan gis tillatelse til tiltak innenfor planområdet.

3. GRØNNSTRUKTUR

3.1 Støy / Vegetasjonsskjerm

Miljøverndepartementets retningslinjer for støy i arealplansaker, T 1442, skal følges for realisering av reguleringsplanen.

På uteoppholdsareal og utenfor vinduer til rom med støyfølsom bruksformål er grenseverdien på støynivå Lden 55 dB. I områder med støynivå på en fasade mellom 55 og 65 dBA skal boligene være gjennomgående.

Innvendig støynivå i boliger skal være lavere enn 30 dBA.

Støynivået innendørs bør tilfredsstille kravene i gjeldende byggteknisk forskrift / NS8175 klasse C. Der det gjøres tiltak på bolig skal støykravene innendørs være tilfredsstilt med de krav til ventilasjon/luftutskiftning som følger av nevnte byggteknisk forskrift.

Mellom felt B01, f_U3 og mot E6 og mellom felt B11, B12, f_P3 og mot Lundadalsvegen skal det etableres et vegetasjonsbelte på minst 4 meter.

61

4. HENSYNSSONER

4.1 Flomfare

Byggverk, interne vegstruktur i planområdet og annen teknisk infrastruktur, skal plasseres, dimensjoneres og/eller sikres mot flom iht. notat «Flomsikring, overvann og skred», NVE datert 26.7.2013

5. VILKÅR FOR GJENNOMFØRING

5.1 Kulturminner

Dersom gjenstander, konstruksjoner eller andre funn oppdages i forbindelse med gravearbeid, skal arbeidet stanses omgående og kulturminnemyndighet underrettes, jmf. Lov om kulturminner, § 8 2. ledd.

5.2 Støy og Anleggstrafikk

Plan for beskyttelse av omgivelsene mot støy og andre ulemper i bygge og anleggsfasen skal følge søknad om igangsetting. Planen skal redegjøre for trafikkavvikling, massetransport, driftstider, trafikksikkerhet for gående og syklende, renhold og støvdemping og støyforhold. Nødvendige beskyttelsestiltak skal være etablert før bygge og anleggsarbeider kan igangsettes.

For å oppnå tilfredsstillende støyforhold i anleggsfasen skal støygrenser som angitt i Miljøverndepartementets Retningslinjer for behandling av støy i arealplanleggingen, T-1442, legges til grunn.

6. REKKEFØLGE KRAV

6.1 Uteoppholdsareal og Lek

Ved søknad om tiltak skal det innsendes utomhusplan for hvert enkelt byggetrinn. Planen skal vise at utomhusareal og lekearealer oppfyller fastsatte krav til: størrelse, kvalitet og prinsipper for universell utforming.

6.2 Samferdsel og anlegg

Fortau langs Lundadalsvegen skal være ferdigstilt før det kan gis ferdigattest til nye boligenheter innenfor planområdet. Før fortau etableres må det etableres privatrettslig avtale mellom utbygger og Statens Vegvesen.

Utbyggingen av VVA anlegg samt grøntstruktur og etablering av regnbed (jfr pkt 2.7) kan skje etappevis etter hvert som delområdene bygges ut. Etappevis utbygging skal godkjennes av Melhus kommune.

Ved søknad om tiltak skal det innsendes utomhusplan for hvert enkelt byggetrinn. Planen skal vise løsning for interne adkomstveier, parkering og garasjer/carport.

6.4 Vegetasjonsskjerm

Vegetasjonsskjerm ved felt B01 og f_U3 skal være opparbeidet før felt B01 og B02 kan tas i bruk. Vegetasjonsskjerm ved felt B11, B12 og f_P3 skal være opparbeidet før felt B11 og B12 kan tas i bruk.

62

7. OFFENTLIG ELLER FELLESAREAL

Følgende arealer skal være felles for boligområdene B01 B13:

- Uteoppholdsareal: f_U01 - f_U06

Lekeareal: f_Lek

Kjøreveg: f_TR3

Annen veigrunn Teknisk

Følgende arealer skal være offentlige:

Kjøreveg: o_TR1 og o_TR2

Fortau: o_Fortau

Annen veigrunn Grøntareal

63

VEDTEKTER FOR

VELFORENINGEN LUNDAMO PARK

Vedtatt: 18.02.2019

§

1 Navn og beliggenhet

Foreningens navn er Velforeningen Lundamo Park, beliggende i Melhus kommune.

Området som omfatter foreningen er inntegnet på eget kart, denne inngår som en del av vedtektene.

§ 2 Formål og eierforhold

Velforeningen skal stå, iht. reguleringsplan, som eier av felles infrastruktur som internveier, parkeringsplasser, grøntarealer og lekearealer på eiendommen gnr. 208, bnr. 16 i Melhus kommune etter at tomter for utbygging av boliger og boligfellesskap blir fradelt. Denne bestemmelsen blir oppdatert til å gjelde de faktiske forhold når området er ferdigstilt. Endring av denne bestemmelsen foretas av forretningsfører uten behandling i årsmøte.

Foreningens formål er å drifte og vedlikeholde eiendommen.

§ 3 Medlemskap

Nåværende og fremtidige eiere av boliger innenfor velforeningens område har rett og plikt til medlemskap i foreningen.

Det skal på alle eiendommene tinglyses pliktig medlem skap i foreningen.

En husstand har ett medlemskap. For eiendommer som eies av en juridisk person, som for eksempel et selskap, en stiftelse eller en sammenslutning, utøves medlemskapet av en representant som innehar retten til å forplikte selskapet/stiftelsen/sammenslutningen iht. firmaattest.

64

Medlemmene er forpliktet til å følge velforeningens vedtekter og vedtak fattet i foreningens styrende organer.

§ 4 Felleskostnader

Medlemmene plikter å delta i drift og vedlikehold av fellesanlegg gjennom innbetaling av felleskostnader fastsatt av styret. Inntekten kan kun benyttes i overensstemmelse med foreningens formål.

Felleskostnadene fastsettes i foreningens budsjett. Felleskostnadene skal fordeles likt per medlem i velforeningen.

Fakturering av felleskostnader skjer en gang årlig, med inntil to terminer. Fakturering til medlemmer i boligselskap innenfor velforeningens område skjer samlet til boligselskapet. Boligselskapene plikter å ta inn diss e inntektene via sine budsjetter. Fakturering til frittstående boliger sendes direkte t il hvert medlem.

I saker som krever felles finansiering ut over ordinær drift og forvaltning, kreves 2/3 flertall av de avgitte stemmer.

§

5 Årsmøte

Foreningens øverste myndighet er årsmøtet. Ordinært årsmøte holdes innen utgangen av juni måned.

Ekstraordinært årsmøte skal avholdes når styret finner det påkrevd eller når minst 10 prosent av medlemmene kommer med skriftlig krav om det.

Styret skal på forhånd varsle sine medlemmer om dato for ordinært årsmøtet og om siste frist for å innlevere saker som ønskes behandlet.

Styret innkaller årsmøtet med et varsel som skal være på minst åtte og høyst tjue dager. Styret kan om nødvendig innkalle til ekstraordinært årsmøte med kortere varsel, men varselet kan aldri være kortere enn tre dager. Årsmøtet kan bare fatte vedtak i de saker som er nevnt i innkallingen.

Varsel om og innkalling til årsmøte sendes styrene i de respektive boligselskapene. Styrene i de respektive boligselskapene plikter deretter å videresende/publisere disse dokumenter til sine medlemmer. De øvrige medlemmene i de frittstående boligene i velforeningen mottar innkallingen direkte.

Varsel og innkalling skjer skriftlig. Som skriftlig regnes også elektronisk kommunikasjon. Varsel og innkalling sendes på e-post eller publiseres i eventuell portalløsning til de med kjent e-post adresse. For de uten e-post vil varsel og innkalling sendes med ordinær postgang.

65 2

Styreleder leder årsmøtet med mindre årsmøtet velger en annen møteleder. Årsmøtet er vedtaksført med det antall medlemmer som møter. Ved avstemninger har medlemmene en stemme pr. husstand .

Årsmøte skal behandle: a) Årsregnskap og eventuell årsberetning b) Gjennomgang av styres budsjett c) Andre saker som er nevnt i innkallingen d) Valg av styremedlemmer

Vedtak i årsmøte og ekstraordinært årsmøte fattes med vanlig flertall av avgitte stemmer. Ved stemmelikhet gjør møtelederens stemme utslaget. Avstemming skjer skriftlig hvis noen ber om det.

§ 6 Medlemsmøter

Medlemsmøter avholdes når styret finner det nødvendig og skal bekjentgjøres minst 8 dager forut.

§ 7 Styret, ansvar og møter

Det velges et styre bestående av en leder og inntil tre styremedlemmer som er foreningens øverste myndighet mellom årsmøtene. Det kan i tillegg velges inntil to varamedlemmer.

Styret kan utvides med flere styremedlemmer etter hvert som boligselskapene innenfor utbyggingsområdet ferdigstilles. Denne vedtektsbestemmelse revideres på det tidspunkt nye medlemmer innlemmes i velforeningen.

Styret skal bestå av styremedlemmer som også innehar slik rolle i eget boligselskap. De frittstående boligene har rett men ikke plikt til å ha medlemmer i styret.

Styret velges av årsmøtet med vanlig flertall av de avgitte stemmer. Styrets leder velges særskilt. Kun fysiske personer kan være styremedlemmer. Årsmøtet kan også velge 2 varamedlemmer til styret.

Styreleder og styremedlemmer velges for 2 år, varamedlemmer velges for 1 år.

Dersom det er valgt varamedlemmer til styret kan de møte på samtlige styremøter. Styrets leder og ett styremedlem forplikter foreningen ved sin underskrift.

Styret skal iverksette årsmøtets vedtak og bestemmelser samt forvalte foreningens eiendeler/eiendom, herunder føre kontroll med foreningens økonomi. Etter behov kan styret oppnevne komiteer eller personer til å løse spesielle oppgaver.

66 3

Styret skal etter beste evne søke å oppfylle foreningens formål etter gjeldende vedtekter og representerer foreningen utad.

Styreleder skal sørge for at det avholdes styremøter så ofte som det trengs. Et flertall av styremedlemmene kan kreve at styret sammenkalles. Styret fører protokoll over saker til behandling og vedtak.

Styret er beslutningsdyktig når flertallet av styremedlemmene, deriblant leder eller nestleder, er til stede. Styrebeslutninger krever vanlig flertall. Ved stemmelikhet har fungerende leder dobbeltstemme.

Styret ansetter forretningsfører som står for innkrevingen av felleskostnader, føring av regnskap, betaling av løpende utgifter til vedlikehold og lignende.

Forretningsfører skal ha anledning til å innkreve gebyr for utgivelse av informasjon/ registrering av eierskifte i forbindelse med salg av boliger innenfor velforeningens område. Behandlingsgebyret betales av kjøper/selger.

Styret kan inngå driftsavtaler for stell og vedlikehold av foreningens eiendom.

§ 8 Avsetning til vedlikehold

Årsmøtet vedtar nødvendigheten av avsetning til dekning av fremtidige vedlikeholdskostnader, påkostninger eller andre fellestiltak på foreningens eiendom.

§ 9 Særlige bestemmelser

Melhus Kommune vil få tinglyst rettighet til vedlikehold av vann- og avløpsledninger på velforeningens eiendom etter at fradelinger og hjemmelsoverdragelse er gjennomført.

§ 10 Mislighold, vedtektsendring, oppløsning, sammenslutning, deling

Ved unnlatelse av å betale pålagte felleskostnader til foreningen, kan foreningen gå til utpanting av den enkelte husstand for å inndrive sitt tilgodehavende pluss omkostninger.

Vedtektsendringer krever 2/3 flertall av de avgitte stemmer og må vedtas på ordinært eller ekstraordinært årsmøte.

Oppløsning av foreningen kan bare behandles på ordinært årsmøte. Blir oppløsning vedtatt med 100% enighet, innkalles ekstraordinært årsmøte 3 måneder senere. For at oppløsning skal skje, må vedtaket gjentas med 100% enighet. Det kan velges et avviklingsstyre som skal forestå avviklingen. Det ordinære styret kan velges til avviklingsstyre sammen med en uavhengig advokat, og får stilling som avviklingsstyre om intet valg foretas.

Foreningens formue skal etter oppløsning og gjeldsavleggelse tilfalle det formål foreningen arbeider for å fremme. Formålet bestemmes av avviklingsstyret. Ingen medlemmer har krav på foreningens midler eller andel av disse.

67 4

Sammenslutning med andre foreninger eller deling av foreningen anses ikke som oppløsning. Vedtak om sammenslutning/deling og nødven dige vedtektsendringer i denne forbindelse treffes i samsvar med bestemmelsene om vedtektsendring. Styret skal i denne forbindelse utarbeide en plan for sammenslutningen/delingen som årsmøtet skal stemme over.

68 5

KJØPETILBUD PÅ PROSJEKTERT Enebolig I Lundamo Park B4eneboliger

Kjøpetilbudet gjelder bolig. nr. .. Undertegnede inngir herved bud på ovennevnte eiendom, kr.______________ + omkostninger. <OUDF DOKTOMTEVERDI>

Omkostningene omfatter: Dokumentavgift 2,5% av tomteverdi kr. 9 000 ,Tinglysingsgebyr skjøte kr. 585 ,Tinglysingsgebyr pantedokument kr. 585 ,Pantattest kr. 172 ,Startkapital velforening Kr. 5 000 ,Totale omkostninger kr. 15 342 ,-

Kjøpesummen blir ikke indeksregulert. Kjøpesummen skal i sin helhet innbetales ved overtagelse av boligen. Kjøpet vil bli finansiert slik: Låneinstitusjon:________________________________Evt.referanse:_______________________

Kjøpsbetingelser / krav til finansiering

Undertegnede er kjent med at budet er bindende for meg/oss når det er kommet til selgers kunnskap. Bindende avtale er regulert iht. Lov om avtaler av 31. mai 1918. Handelen er juridisk bindende for begge parter dersom budet aksepteres innen akseptfristen.

Budet er gitt med bakgrunn i prosjektets standardkontrakt, salgsoppgave med tilhørende deklarasjon, tegninger. Disse dokumenter er lest og akseptert av kjøper.

Undertegnede er kjent med at selger står fritt til å godta eller forkaste ethvert bud.

Dersom budet blir akseptert må kjøper på eget initiativ fremlegge en godkjent finansieringsbekreftelse til megler innen 21 dager etter selgers aksept iht. Bustadoppføringslova § 46 2. ledd. Dersom kjøper innen fristen ikke overholder sin forpliktelse med tilfredsstillende finansieringsbekreftelse iht. prosjektets standardkontrakt, er kjøper allikevel bundet og selger vil kunne påberope avtalen som vesentlig misligholdt og heve avtalen. Kjøper samtykker til at omkostninger knyttet til heving og dekningssalg i så fall dekkes av kjøper.

Heimdal Eiendomsmegling AS | Telefon: 73 87 15 00 | Epost: post@hem.no | hem.no | Orgnr: 976232909

70
______________________________________________________kr.___________________,-
Egenkapital____________________________________________kr.___________________,Eventuelle forbehold:________________________________________________________ Ønskes uforpliktende finansieringstilbud fra Melhusbanken? Ja Nei NÆRVÆRENDE BUD ER BINDENDE FOR UNDERTEGNEDE FREM TIL OG MED DEN____________KL.16.00. (MINIMUM 3 DØGN)

Sted/dato:___________________________________

Navn kjøper 1:____________________________________Signatur:__________________________ Fødsels- og personnr. ______________________ Adresse:__________________________________Tlf.priv.:_____________ mobil:________ Postnr./sted:_________________________________________________________________ E-post: _____________________________________________________________________ ***

Navn kjøper 2:____________________________________Signatur:___________________________ Fødsels- og personnr. ______________________ Adresse:__________________________________Tlf.priv.:_____________ mobil:_________ Postnr./sted:__________________________________________________________________ E-post.: _____________________________________________________________________

Jeg samtykker til at mitt navn, adresse, telefonnummer og e-post deles med nødvendige underleverandører, forretningsfører og samarbeidspartnere i prosjektet for min kjøpte bolig. Kontaktinformasjonen kan bli brukt til å ta kontakt med meg på telefon, e-post eller SMS. Samtykket er gyldig frem til overlevering av boligen.

Fullmakt til å opptre på vegne av en annen: Jeg, ________________________ gir med dette _______________________ fullmakt til å representere meg i budgiving på denne eiendommen. (Sign./dato) Heimdal Eiendomsmegling AS, Vestre Rosten 69, 7072 Heimdal Tlf: 73 87 15 00 E-post: runar.wehn@hem.no SMS: 41 69 74 15

Heimdal Eiendomsmegling AS | Telefon: 73 87 15 00 | Epost: post@hem.no | hem.no | Orgnr: 976232909

71
Tlf.___________________
Megler: ____________________________ SELGERS AKSEPT PÅ NÆRVÆRENDE KJØPETILBUD Sted/dato:_____________________________Klokkeslett_________________
Finansiering sjekket av megler: Dato:________________Kl:_____________Sign:_______________________ Bank:___________________ Kontaktperson:_______________
Kommentar:
For Heimdal sag prosjekter as

IDENTIFIKASJONSSKJEMA

Din/deres identifikasjon

Din/deres signatur

For at megler skal kunne formidle ditt bud, må megler kontrollere din identitet. For enkel identifisering, følg disse stegene:

1.Legg din ID i firkanten (helst ikke bankkort)

2.Signer 3.Ta bilde 4.Send

Innsending av identifikasjonsskjema kan foregå på følgende måter: SMS – Send bildet med signatur til 2077 med kodeord "ID HE"

Alternativt kan du sende på: E-post – Sendes til: runar.wehn@hem.no

Heimdal Eiendomsmegling AS | Telefon: 73 87 15 00 | Epost: post@hem.no | hem.no | Orgnr: 976232909

Heimdal sag prosjekter as 3-22-9024 c/o Heimdal Eiendomsmegling AS Vestre Rosten 69 7072 Heimdal

FINANSIERINGSBEVIS

er innvilget finansiering i vår bank med kjøp av bolig i Melhus kommune. Prosjektet: Lundamo Park B4 - eneboliger, bolignr. .

I følge anmodning fra kjøper, bekreftes herved at kroner (+ omkostninger)

er reservert for utbetaling til Heimdal sag prosjekter as ved Heimdal Eiendomsmegling AS, klientkonto 42305501500, i henhold til bindende avtale mellom partene. Dette finansieringsbeviset er bindende og irreversibelt.

Det forutsettes at Heimdal Eiendomsmegling AS innestår for tinglysing av skjøte i henhold til bindende avtale mellom partene og evt. pantedokument.

Denne bekreftelsen er betinget av at det blir stilt sikkerhet for deres forpliktelser etter kontrakten i henhold til Bustadoppføringslova av 13 juni 1997.

Sted/dato Navn + stempel

Heimdal Eiendomsmegling AS | Telefon: 73 87 15 00 | Epost: post@hem.no | hem.no | Orgnr: 976232909

73
______________________ __________________________
74

KONTAKTINFORMASJON

Kim Roger Laugsand

Tlf. 952 34 892 krl@hem.no

Runar Wehn Tlf. 416 97 415 rw@hem.no

Turn static files into dynamic content formats.

Create a flipbook
Issuu converts static files into: digital portfolios, online yearbooks, online catalogs, digital photo albums and more. Sign up and create your flipbook.