Lundamo Park B4- Leiligheter

Page 1

4. BYGGETRINN B08 LEILIGHETER

Velkommen s. 1 Plantegninger s. 8 Eiendomsopplysninger s. 14 Vedlegg s. 21 Kim
Tlf.
krl@hem.no
Roger Laugsand
952 34 892
Runar Wehn Tlf. 416 97 415 rw@hem.no

LUNDAMO PARK LEGGER TIL RETTE FOR ET ROLIG LIV I FLOTTE, MODERNE BOLIGER SENTRALT PÅ LUNDAMO!

Illustrasjonsbilde. Kan avvike fra endelig leveranse.

VI ØNSKER VELKOMMEN TIL LUNDAMO PARK, OG DETTE ETTERSPURTE PROSJEKTET BELIGGENDE MEGET SENTRALT PÅ LUNDAMO.

Salgssuksessen Lundamo Park fortsetter nå endelig med et nytt byggetrinn. I byggetrinn 4 vil vi kunne tilby en spennende og god miks av boligtyper som vil kunne passe de fleste, uavhengig av alder og preferanser.

Her kommer det alt fra lettstelte leiligheter til store og moderne eneboliger med egen tomt. Det er satt av gode områder til grøntarealer i feltet som vil kunne bygges opp i fin parkmessig stil og skape en god atmosfære i boligfeltet. Velkommen!

1
Lundamo-park.no
2
Illustrasjonsbilde. Kan avvike fra endelig leveranse.

UTEOMRÅDET LEVERES FERDIG OPPARBEIDET MED PLENAREAL, BEPLANTNING OG LEKEAPPARATER, OG SAMEIETS TOMT LEVERES ASFALTERT OG MED FERDIGPLEN.

3

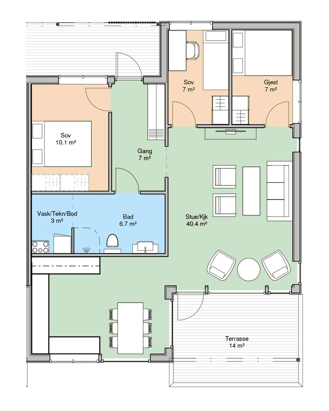
Her kan du finne leiligheter på 74 eller 85 kvm. Det er 4 stk. store 4-roms leiligheter hvorav alle får endebeliggenhet på ca. 85 kvm. De to siste er 3-roms leiligheter i midten på ca. 74 kvm. med terrasse på hele 33 kvm.

4
Illustrasjonsbilde. Kan avvike fra endelig leveranse.
5 Lundamo-park.no

Benkeplaten er 30mm laminat. Vasken er en 1 ½ kum i ypperste stålkvalitet fra Intra. Kummen er underlimt, noe som gjør rengjøringen til en drøm.

Vi har det helt nyeste innen skuffer. 550mm dybde med fulluttrekk og demping. Skuffer fra 70cm bredde tåler en belastning på 70kg. Man kan velge mellom hvit eller grå skuff, med sider i glass eller metall.

KJØKKENET BLIR MODERNE & TIDLØST, OG LEVERES AV DRØMMEKJØKKENET.

6

KJØKKENET ER HUSETS

HJERTE, OG HER ER DET VALGT KJØKKEN FRA DRØMMEKJØKKEN I DEN

TIDLØSE OG POPULÆRE FRONTEN "SOLID".

Vi har valgt den populære og tidløse fronten Solid. Det er en 19mm tykk dør i malt MDF. Våre malt fronter er overflatebehandlet 6-9 ganger, og man kan fritt velge mellom 12 farger som ligger i vårt sortiment.

7
8 101 // 201
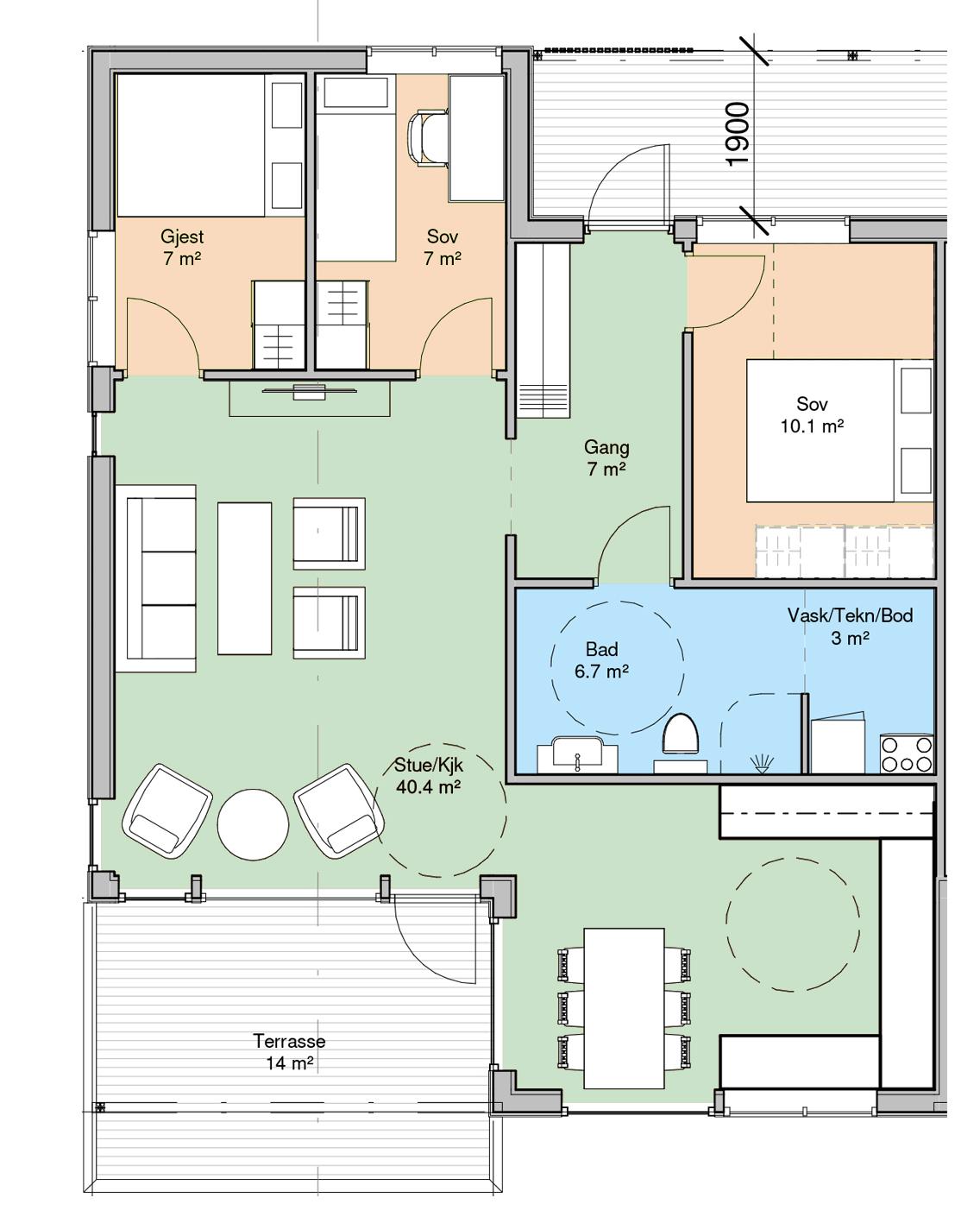
BRA: CA. 84,6 KVM. Soverom x 2, gang, bad og stue/ kjøkken.
201 101 202 102 203 103 B08
I tillegg kommer terrasse/balkong på ca. 14 kvm, carport og egen sportsbod på 5 kvm.
9 Lundamo-park.no
10
BRA: CA. 74 KVM. Soverom x 2, gang, bad og stue/ kjøkken.
102 // 202 201 101 202 102 203 103 B08
I tillegg kommer terrasse/balkong på ca. 33 kvm, carport og egen sportsbod på 5 kvm.
11 Lundamo-park.no

BRA: CA. 84,6 KVM.

Soverom x 3, gang, bad og stue/ kjøkken.

12
103 // 203 201 101 202 102 203 103 B08
I tillegg kommer terrasse/balkong på ca. 14 kvm, carport og egen sportsbod på 5 kvm.
13 Lundamo-park.no

EIENDOMSOPPLYSNIGER

EIENDOMSTYPE

Leilighet

EIERFORM

Eierseksjon

PRIS

3 390 000,- - 3 790 000,- / Fellesutgifter: 2 226,til 2 407 pr. mnd

TOTALPRIS INKLUDERT OMKOSTNINGER

3 390 000,- 3 790 000,-

Omkostninger

585,- (Tingl.gebyr pantedokument)

585,- (Tingl.gebyr skjøte)

172,- (Panteattest)

5 000,- (Startkapital velforeinig)

10 000,- (Startkapital sameie)

2 500,- (Stiftelsesgebyr sameie)

Dokumentavgift:

- 3-roms leilighet 74 kvm: kr 5 870,-

- 4-roms leilighet 84,6 kvm: kr 6 720,-

Totale omkostninger inkl. dok.avgift:

- 3-roms leilighet: kr 24 712,-

- 4-roms leilighet: kr 25 562,-

NB: Regnestykket forutsetter at det kun tinglyses ett pantedokument og at eiendommen selges til prisantydning.

Det tas forbehold om endringer i offentlige avgifter/gebyrer. En slik endring vil bli belastet/ godskrevet kjøper.

Et evt overskytende av stiftelsesgebyr vil bli overført sameiets konto.

KOMMUNALE AVGIFTER

Fastsettes av Melhus kommune etter at eiendommene tas i bruk.

SOVEROM

2 til 3

BYGGEÅR

2024

ADRESSE

Lundamo Park B4 - leiligheter

7232 Lundamo

BETEGNELSE

Gnr. 208 bnr. 244 i Melhus kommune. Leilighetene vil seksjoneres og få tildelt eget seksjonsnummer før overtakelse.

TYPE EIENDOM Leilighet

TOMT Fellestomt

TOMTEBESKRIVELSE

Sameiets tomt vil bli asfaltert og plenarealer vil få ferdigplen.

Grøntarealene leveres ferdig opparbeidet med plenareal, beplantning og lekeapparater. Det er områder avsatt til lekeplasser, og områder avsatt til felles parkeringsplasser. Interne veier, felles parkeringsplasser og adkomst asfalteres.

PARKERING

Parkering i carport i fellesanlegg.

PRISER

Fra kr. 3 390 000,- til kr. 3 790 000,-

FASTE LØPENDE KOSTNADER

Fellesutgiftene er stipulert fra kr 2 226,- til kr 2 407,-.

Estimert inn i felleskostnadene er blant annet drift, løpende vedlikehold,

14

velforeningskontingent, filterskifte, snørydding/ strøing, fellesstrøm, forsikring på bygget og tv/ internett. Se vedlagt budsjett i salgsoppgave.

Da dette er nybygg har selger således ingen informasjon om eiendommens løpende kostnader. Faste kostnader som kjøper bl.a. må påregne er: kommunale avgifter, forsikring, egne strømutgifter og evt. andre tjenester.

VELFORENING

Det vil bli tinglyst pliktig medlemskap i områdets velforening. Kjeldsberg Eiendomsforvaltning AS er forretningsfører. Se vedlagte vedtekter for mer informasjon om velforeningen.

Velforeningskontigenten er inkludert i de månedlige fellesutgiftene.

MEGLERS VURDERING

Velkommen til leilighetene på byggetrinn 4 av populære Lundamo Park!

I dette trinnet byr vi på en flott 6-mannsbolig og 3 romslige eneboliger. Se egen annonse for eneboligene.

6-mannsboligen vil bestå av 4 stk. 4-roms leiligheter og 2 stk. 3-roms leiligheter. 4-roms leilighetene vil få en størrelse på ca. 84,6 kvm, mens 3-roms leilighetene blir på ca. 74 kvm.

Leilighetene planlegges med en gjennomgående god standard. Det blir bl.a. flislagt bad, kvalitetskjøkken med integrerte hvitevarer fra Drømmekjøkkenet, hvitpigmentert eikeparkett på gulv i tørre rom, flislagt gang med varmekabler, malt gips på vegger med mulighet for individuelle fargevalg, balansert ventilasjon m.m.

Du får 5 års nybygg- garanti, og utbygger gir rom for tilvalg slik at du kan tilpasse din bolig etter dine behov og ønsker.

Ingen delinnbetalinger - altså full innbetaling skjer først ved overtagelse.

IKKE NØL - HER ER DET FASTE PRISER OG FØRSTEMANN TIL MØLLA!

Se lundamo-park.no for mer informasjon.

BELIGGENHET

Boligene får en meget attraktiv beliggenhet, tett ved Lundamo sentrum. Her vil du bo i et solrikt boligområde, med gangavstand til nyere barneskole/ungdomskole/barnehage, kunstgressbane, idrettshall, treningsstudio, frisør, butikker, off. transp. m.v. Sammenhengende gang- og sykkelsti til alle fasiliteter. Rikelig med turmuligheter i nærområdet.

Fra Lundamo er det kun ca. 15 min til Melhus, og ca. 30 min til Trondheim.

VISNING

På annonsert tidspunkt eller etter nærmere avtale med megler. Send gjerne tekstmelding, e-post eller ring dersom ikke oppsatt tidspunkt passer for deg. Det vil bli skiltet i regi av Heimdal Eiendomsmegling ved annonsert fellesvisning. Adkomst

Fra Lundamo sentrum; Ta inn Lundadalsvegen rett ovenfor Lundamo Legesenter, og tomta som skal bebygges ligger da på venstre side av veien etter ca. 100 meter.

BYGGEMÅTE

Se leveransebeskrivelse i salgsoppgaven fra utbygger.

INNHOLD

4-ROMS LEILIGHETER: (4 stk.)

BRA: ca. 84,6 kvm.

P-ROM: ca. 81,6 kvm - Soverom x3, gang, bad og stue/kjøkken.

S-ROM: ca. 3 kvm - Innvendig bod.

I tillegg kommer terrasse/balkong på ca. 14 kvm, samt carport og egen sportsbod på ca. 5 kvm.

3-ROMS LEILIGHETER: (2 stk)

BRA: ca. 74 kvm.

P-ROM: ca. 70,3 kvm - Soverom x2, gang, bad og stue/kjøkken.

S-ROM: ca. 3,7 kvm - Innvendig bod.

I tillegg kommer terrasse/balkong på ca. 32,8 kvm, samt carport og egen sportsbod på ca. 5 kvm.

Merknad areal:

Angitte arealer på plantegning er basert på foreløpige beregninger forut for detaljprosjektering, og baserer seg utelukkende på arkitektens beregninger. Da prosjektet ikke er oppført, har megler ikke hatt mulighet

15

til å kontrollmåle areal. Det tas forbehold om mindre avvik for de oppgitte arealer i salgsdokumentene, da beregningene er foretatt på grunnlag av arkitektens tegninger.

STANDARD

- Det leveres balansert ventilasjon med roterende varmegjenvinner

- Alle tørre rom levers med 3-stavs hvitpigmentert eikeparkett

- Flis på gulv og vegg på bad

- Varmekabler i gulv på bad

- Flislagt gulv i gang med varmekabler

- Varmtvannsbereder (200 liter) til tappevann

- På bad leveres fuktmåler koblet sammen med ventilasjonsanlegget

- Kvalitetkjøkken fra Drømmekjøkkenet med intergrerte hvitevarer

- Det leveres seriekoblede røykvarslere til hver bolig, samt ett brannslukkingsapparat

OPPVARMING

Elektrisk ved varmekabler i gulv på bad og i gang.

VEI, VANN OG KLOAKK

Offentlig vei, vann og avløp via private stikkanlegg.

BETALINGSBETINGELSER

Kjøpesum og omkostninger skal være bekreftet innbetalt innen overtakelsesdato. Alle kontraktsinnbetalinger skal skje til: Heimdal Eiendomsmegling AS sin klientkonto nr. 4230.55.01500 i MelhusBanken. Det tas forbehold om eventuell endring av offentlige gebyrer og avgifter. Kjøper aksepterer at eventuelt økning i mva. og andre offentlige avgifter som måtte bli fastsatt etter inngåelse av denne kontrakt kan utlignes på kjøper med den forholdsmessige andel og kun for den del av leveransen som i slikt tilfelle får økte avgifter i henhold til entreprenørens oppstilling. Kjøper er innforstått med at tilfredsstillende finansieringsbekreftelse for hele kjøpesummen skal forelegges megler innen 21 dager etter selgers aksept iht. Bustadoppføringslova § 46 2. ledd.

Disse opplysningene kan bli videre formidlet til utbyggers byggelånsbank. Hvis nåværende bolig skal benyttes helt eller delvis til finansiering av kjøpet kan denne stilles som sikkerhet etter verditakst utført av Heimdal

Eiendomsmegling AS. Handelen er juridisk bindende for begge parter dersom budet aksepteres innen akseptfristen. Dersom kjøper innen fristen ikke overholder sin forpliktelse med tilfredsstillende finansieringsbekreftelse iht. prosjektets standardkontrakt, er kjøper allikevel bundet og selger vil kunne påberope avtalen som vesentlig misligholdt og heve avtalen. Kjøper samtykker til at omkostninger knyttet til heving og dekningssalg i så fall dekkes av kjøper.

OVERTAKELSE

Det er forventet byggestart så snart selgers forbehold for igangsetting er avklart. Disse forbeholdene er avklart pr. 01.02.2023.

Prosjektet er beregnet ferdigstilt 13 - 15 mnd. etter at selgers forbehold er frafalt. Dette gjelder uavhengig av om forbeholdene er innfridd eller ikke. Dersom det oppstår forsinkelse, skal dagmulkt beregnes etter 15 mnd. fra sletting av selgers forbehold.

Kjøper er forpliktet til å overta boligen på det tidspunkt den er ferdigstilt. Endelig overtakelse vil bli varslet med 2 ukers skriftlig varsel. Overtakelse kan ikke finne sted før fullt oppgjør inkludert alle omkostninger og tilleggsavtaler bestilt via utbygger er innbetalt til megler. Det samme gjelder så fremt midlertidig brukstillatelse ikke foreligger. Vi gjør oppmerksom på at det i følge plan- og bygningsloven § 21-10 ikke er tillatt å bebo boligen før slik midlertidig brukstillatelse er på plass. Overtakelse av boligen kan ikke nektes av kjøper selv om utomhusarealer og eventuelt ytre kledning m.m. ikke er ferdigstilt. Uferdig arbeid anmerkes i overtakelsesprotokollen på overtakelsesbefaringen. Alle boliger overtas i ryddig og rengjort stand (byggvask).

SELGERS FORBEHOLD

Selger tar følgende forbehold med tanke på igangsetting av prosjektet:

- Tilstrekkelig salg (70 % av salgsverdien målt i kroner)

- Igangsettingstillatelse gitt fra Plan og bygningsetaten i Melhus kommune.

Disse forbeholdene er avklart pr. 01.02.2023. Selger kan selv velge å igangsette bygging på et lavere forhåndssalg. Hvis forbehold om igangsetting blir gjort gjeldende, har selger intet ansvar overfor kjøper, og begge parter er i sin

16

helhet fri sine forpliktelser etter kontrakten.

Det tas følgende forbehold med tanke på gjennomføring av prosjektet:

- Det kan bli endringer som følge av prosjektering, videre bearbeiding og detaljering av prosjektet ved arkitekt og rådgivere.

- Det kan bli endringer som følge av krav fra offentlige instanser

- Selgeren forbeholder seg retten til å bestemme endelig utforming av utomhusarealer.

- Selger forbeholder seg retten til å bestemme material- og fargevalg på bygningsfasader.

Hvis forbehold om igangsetting blir gjort gjeldende, har selger intet ansvar overfor kjøper, og begge parter er i sin helhet fri sine forpliktelser etter kontrakten.

BRUKSTILLATELSE/ FERDIGATTEST

Utbygger plikter å fremlegge midlertidig brukstillatelse til kjøper og megler før overlevering av boligen. Ferdigattest vil bli utstedt når hele området er ferdigbygd. Det gjøres oppmerksom på at det ifølge plan-og bygningsloven er ulovlig å ta boligen i bruk før midlertidig brukstillatelse er på plass.

TINGLYSTE HEFTELSER/ RETTIGHETER

Heftelser:

1898/900057-1/65 Erklæring/avtale

11.11.1898

Forbud mot næringsvirksomhet

Overført fra: 5028-208/16

Gjelder denne registerenheten med flere

1927/900100-1/65 Bestemmelse om vannrett

22.07.1927

Overført fra: 5028-208/16

Gjelder denne registerenheten med flere

1957/1456-2/65 Bestemmelse om veg

31.07.1957

rettighetshaver:Knr:5028 Gnr:208 Bnr:81

Bestemmelse om vann/kloakkledning

Overført fra: 5028-208/16

Gjelder denne registerenheten med flere

1962/2617-1/65 Bestemmelse om veg

02.11.1962

Vegvesenets betingelser vedtatt

Overført fra: 5028-208/16

Gjelder denne registerenheten med flere

1962/2980-2/65 Bestemmelse om veg

30.11.1962

rettighetshaver:Knr:5028 Gnr:208 Bnr:91

Bestemmelse om vann/kloakkledning

Overført fra: 5028-208/16

Gjelder denne registerenheten med flere

2000/28-1/65 Jordskifte

06.01.2000

Grensegangssak

Overført fra: 5028-208/16

Gjelder denne registerenheten med flere

2019/591584-1/200 Erklæring/avtale

24.05.2019 21:00

Rettighetshaver:MELHUS KOMMUNE

Org.nr: 938726027

Bestemmelse om vedlikehold av anlegg/ ledninger

Adkomstrett for drift og vedlikehold av anlegg/ ledninger/kabler

Bestemmelse om bebyggelse i nærhet av anlegg

Overført fra: 5028-208/16

Gjelder denne registerenheten med flere

2019/591625-1/200 Erklæring/avtale

24.05.2019 21:00

Kan ikke slettes uten samtykke fra:MELHUS

KOMMUNE

Org.nr: 938726027

rettighetshaver:Knr:5028 Gnr:208 Bnr:225

rettighetshaver:Knr:5028 Gnr:208 Bnr:226

rettighetshaver:Knr:5028 Gnr:208 Bnr:227

rettighetshaver:Knr:5028 Gnr:208 Bnr:228

Bestemmelse om rett til vedlikehold av bygning

Overført fra: 5028-208/16

Gjelder denne registerenheten med flere

2019/1347776-1/200 Bestemmelse om jordkabel/jordkabelanlegg

12.11.2019 21:00

Rettighetshaver:TENSIO TS AS

Org.nr: 978631029

Adkomstrett for drift og vedlikehold av anlegg/ ledninger/kabler

Bestemmelse om bebyggelse i nærhet av anlegg

Bestemmelse om (begrensning av) endring i terrenget i nærheten av anlegg

Bestemmelse om vedlikehold av anlegg/ ledninger

Overført fra: 5028-208/16

Gjelder denne registerenheten med flere

17

2019/1347776-2/200 Bestemmelse om nettstasjon

12.11.2019 21:00

Rettighetshaver:TENSIO TS AS

Org.nr: 978631029

Adkomstrett for drift og vedlikehold av anlegg/ ledninger/kabler

Bestemmelse om bebyggelse i nærhet av anlegg

Bestemmelse om (begrensning av) endring i terrenget i nærheten av anlegg

Bestemmelse om vedlikehold av anlegg/ ledninger

Overført fra: 5028-208/16

Gjelder denne registerenheten med flere

2020/3494550-1/200 Erklæring/avtale

16.12.2020 21:00

Rettighetshaver:MELHUS KOMMUNE

Org.nr: 938726027

Rett til å ha liggende, vedlikeholde og oppgradere ledningsanlegg

Adkomsrett til anlegget

Bestemmelse om bebyggelse i nærheten av anlegg/ledninger/kabler

Bestemmelse om endring i terrenget i nærheten av anlegg/ledninger/kabler

Grunndata:

2020/3401987-1/200 Registrering av grunn

27.11.2020 21:00

Denne matrikkelenhet opprettet fra:Knr:5028

Gnr:208 Bnr:16

Rettigheter:

Rettigheter på 5028-208/16

2020/3494391-1/200 Bestemmelse om adkomstrett

16.12.2020 21:00

Kan ikke slettes uten samtykke fra:MELHUS

KOMMUNE

Org.nr: 938726027

rettighetshaver:Knr:5028 Gnr:208 Bnr:244

Adkomstrett for vedlikehold av bygninger

REGULERINGSPLAN

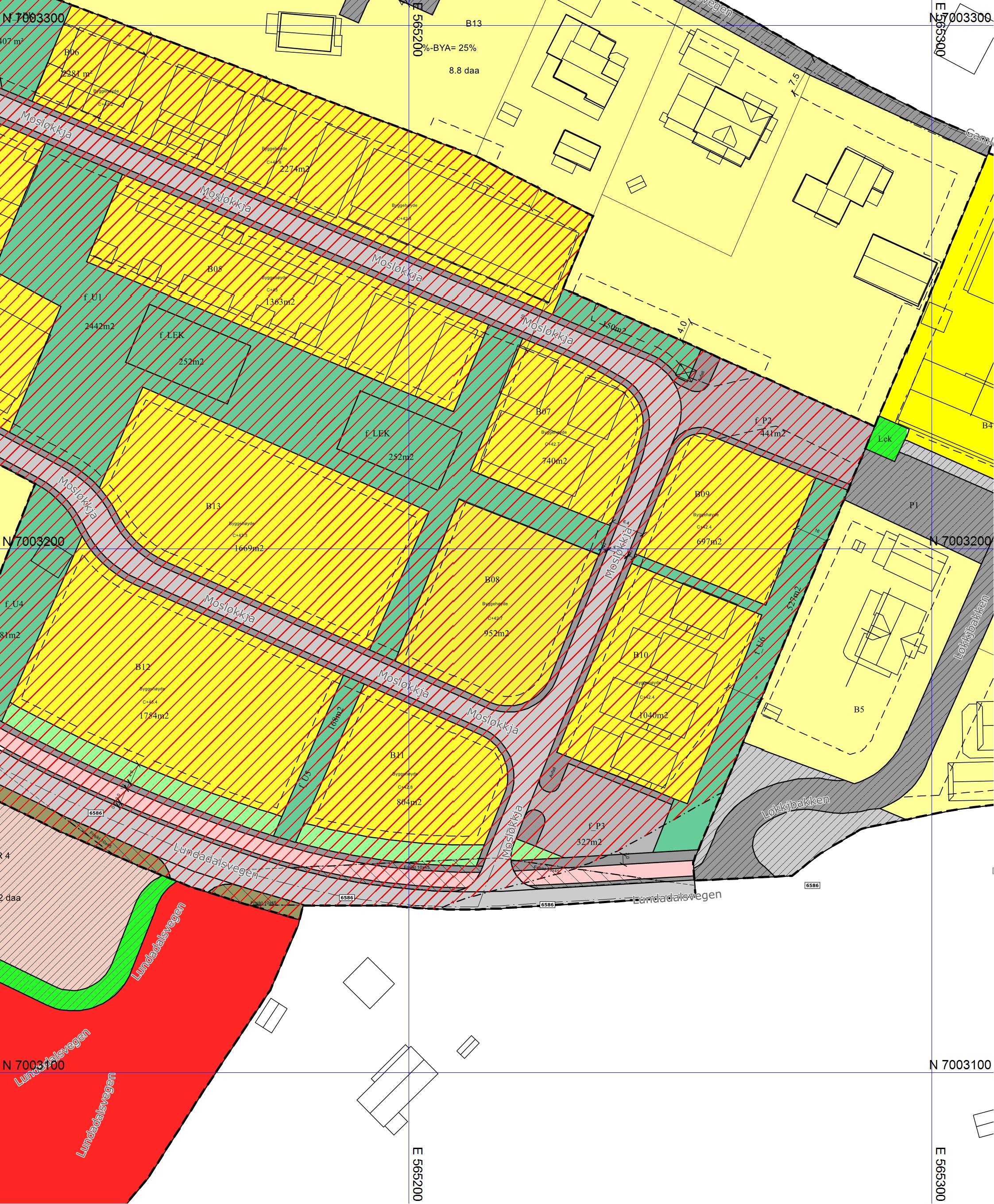
Reguleringsplan Mosløkkja, Lundamo - Området er regulert til boligformål.

Reguleringsbestemmelser til detaljplan Mosløkkja er vedlagt i meglers salgsoppgave.

INFO KOMMUNALE AVGIFTER

Kommunale avgifter vil bli fastsatt av kommunen ved ferdigstillelse av boligene.

FORMUESVERDI

Ligningsverdi vil fastsettes av Skatt Midt-Norge.

ADGANG TIL UTLEIE

Leilighetene/seksjonene kan fritt leies ut for langtidsutleie. Se vedtekter i salgsoppgave for mer informasjon.

Korttidsutleie av hele boligseksjonen i mer enn 90 døgn årlig er ikke tillatt. Med korttidsutleie menes utleie i inntil 30 døgn sammenhengende. Grensen på 90 døgn kan fravikes i vedtektene og kan i så fall settes til mellom 60 og 120 døgn. Slik beslutning krever et flertall på minst to tredjedeler av de avgitte stemmene på årsmøtet. Første til fjerde punktum gjelder ikke for sameier hvor alle bruksenhetene brukes som fritidsboliger.

EIER

Heimdal sag prosjekter as

MEGLERS VEDERLAG

Oppdragsgiver betaler 2% inkl. mva. i meglerprovisjon, samt vederlag for markedsføring med kr. 18 750,- inkl. mva for pr. solgte enhet i prosjektet.

OPPDRAGSANSVARLIG

Kim Roger Laugsand Avd. leder/ Eiendomsmegler 95 23 48 92

Heimdal Eiendomsmegling AS 976232909

Rådhusveien 3 7224 Melhus

GENERELLE FORUTSETNINGER

Avtalen anses inngått når kjøper har levert megler bindende kjøpetilbud, selger har akseptert dette, og aksept er meddelt kjøper. Salgsoppgaven med vedlegg utgjør sammen med akseptbrev og tegninger de samlede avtalevilkårene for kjøp av den aktuelle eiendommen.

DOKUMENTENES RANGORDNING/ LOVVALG

1. Bindende kjøpetilbud

2. Salgsoppgave med vedlegg

3. Tegninger, brosjyremateriell Illustrert perspektiv er ikke å anse som en del

18

av kontraktsgrunnlaget da disse kan avvike fra leveransen. Avtaleforholdet er underlagt bestemmelsene i bustadoppføringslova av 13.juni 1997 nr. 43. Bustadoppføringslova bruker benevnelsene entreprenøren og forbrukeren, noe som tilsvarer selger og kjøper i kontraktdokumentet. Bustadoppføringslova sikrer kjøperen rettigheter som ikke kan innskrenkes i kjøpekontrakten jfr. bustadoppføringslova § 3. Bustadoppføringslova kommer ikke til anvendelse dersom kjøper anses som profesjonell/ investor, eller når leiligheten er ferdigstilt. I slike tilfelles vil handelen i hovedsak reguleres av lov om avhending av fast eiendom av 03.juli 1992 nr.92. Selger kan likevel akseptere å selge etter bustadoppføringslova. Leveransebeskrivelsen beskriver den tekniske standard som inngår i leveransen. Leveransen utføres i henhold til gjeldende forskrifter og standarder. Dersom det ikke er henvist til noe annet gjelder følgende:

- Offentlige lover, forskrifter og standarder med hensyn til krav, utførelse og materialbruk. -Ellers gjelder den til enhver tid gjeldende byggeforskrift for prosjektet. Bustadoppføringslova og avhendingsloven finner man på www.lovdata.no. Ta kontakt med ansvarlig megler om lovteksten ønskes oversendt.

VIDERESALG AV KONTRAKT

Såfremt kjøper er forbruker og skulle ønske å omsette kjøpekontrakten aksepteres dette av selger under forutsetning av at selger får en tilfredsstillende dokumentasjon på at ny kjøper trer inn i kontrakten med de samme rettigheter og forpliktelser som den opprinnelige kjøperen. Den nye kjøperen overtar de inngåtte tilleggsavtaler inngått av den første kjøperen. Ny kjøper må fremlegge finansieringsbevis godkjent av selger iht. prosjektets salgsoppgave. Opprinnelig kjøper vil etter dette være fri fra sitt kontraktsforhold med selger.

Opprinnelig kjøpers eventuelle merverdi i forbindelse med omsetning av kjøpekontrakten utbetales først når hjemmelen er tinglyst på den nye kjøperen. Selger krever et administrasjonsgebyr fra opprinnelig kjøper på kr 50 000,- ved slik omsetning av kjøpekontrakt til ny kjøper. Administrasjonsgebyret vil fremgå av kjøpetilbud og kjøpekontrakt. Ved videresalg av kontrakt vil evt. kostnader til eiendomsmegler

komme i tillegg. For at skjøtet skal utstedes og tinglyses på ny kjøper, må ovennevnte forhold vedrørende kjøpekontrakten være i orden. Hvis disse forholdene ikke er bragt i orden innen overtagelsen, må opprinnelig kjøper oppfylle kontraktsforpliktelsene.

SIKKERHETSSTILLELSE/ GARANTIER

Kjøper skal stille finansieringsbevis godkjent av selger som sikkerhet for kjøpesum og omkostninger. I henhold til bustadoppføringslovas § 12 stiller selger sikkerhet for kontraktsforpliktelsene. Sikkerheten er gjeldene i byggeperioden og frem til 5 år etter overtagelse av boligen. Garantien skal utgjøre 3 % av vederlaget frem til overtagelsen og 5 % av vederlaget etter overtagelsen.

Garanti etter bustadoppføringslova § 12 stilles av selger så snart bindende avtale er inngått. Er det tatt forbehold om åpning av byggelån, salg av et bestemt antall boliger eller igangsettingstillatelse, er det tilstrekkelig at garantien stilles først når forbeholdene er falt bort. Garanti skal uansett stilles før oppstart av byggearbeider.

Dersom det ikke foreligger ferdigattest på overtakelsestidspunktet skal selger stille bankgaranti i form av selvskyldnergaranti som sikkerhet for gjenstående arbeid iht. midlertidig brukstillatelse.

ENDRINGER

Kjøper har mulighet til å gjøre endringer i henhold til prosjektets endringsrutiner. Kjøper kan ikke påregne å gjøre endringer for mer enn 15 % av kjøpesummen. Det vil bli satt opp frister og eventuell priskonsekvens for slike endringsbestillinger.

OPPGJØR

Utbetaling av oppgjør til selger forutsetter at megler har mottatt signert overtagelsesprotokoll, midlertidig brukstillatelse eller ferdigattest, fullt oppgjør er innbetalt, og at hjemmel er overført kjøper. Utbetaling av oppgjør til selger kan imidlertid foretas før hjemmel er overført kjøper under forutsetning av at selger stiller garanti iht. bustadoppføringslovas § 47. Kjøpers innbetaling blir i så fall å betrakte som et forskudd.

MANGLER OG TILBAKEHOLD

Evt. mangler ved overtakelsen skal anmerkes i overtakelsesprotokollen. Kjøper kan kreve

19

tilbakehold av innbetalt beløp frem til hjemmel er overført kjøper. Tilbakeholdet skal stå i forhold til påberopt mangel. Dersom det holdes tilbake et uforholdsmessig beløp kan kjøper komme i betalingsmislighold overfor selger. Kjøper og selger kan også gjøre avtale om deponering av en del av kjøpesummen til en eller flere spesifikke mangler er bragt i orden.

ØKONOMISK RÅDGIVNING

Heimdal Eiendomsmegling AS kan gjennom Melhusbanken tilby økonomisk rådgivning.

DIVERSE OPPLYSNINGER

ENDRINGER:

Kjøper kan endre spesifikasjoner for sin bolig gjennom prosjektets fastsatte endringsrutiner. Det vil bli gitt en frist for endringer.

Alle endringer skal være avtalt i kontraktsform med endring og priskonsekvens. Endringen er først bestilt når det foreligger en skriftlig avtale. Det aksepteres ikke andre leverandører/ entreprenører til boligen i byggetiden, enn de som er valgt for prosjektet.

Dersom forbrukeren avbestiller før det er gitt igangsettingstillatelse betaler forbrukeren avbestillingsgebyr, jfr. Bustadoppføringslova § 54. Avbestillingsgebyr fastsettes til 10% av total kontraktssum inkludert merverdiavgift.

Dersom forbrukeren avbestiller etter at igangsettingstillatelse er gitt, fastsettes selgerens krav på vederlag og erstatning i samsvar med Bustadoppføringslovas §§ 52 og 53. Kjøper bærer all risiko ved avbestilling.

Alle bilder, ute som inne, er kun ment som illustrasjon av boligene, samt danne et "inntrykk" hvordan det kan bli. Hver leilighet og enebolig må vurderes selv ut fra beliggenhet i feltet, utsikt, etc. da bildene er tatt fra kun noen få løsninger. Samme gjelder plassering av kjøkken og bad. Inntegnet utstyr/inventar/etc. som evt. er illustrert, medfølger ikke i handelen.

Ingen kan kjøpe eller på annen måte erverve en boligseksjon hvis ervervet fører til at man blir eier av flere enn to boligseksjoner i eierseksjonssameiet. Første ledd gjelder tilsvarende hvis et erverv av en boligseksjon

eller av aksjer eller andeler i et selskap fører til at flere enn to av boligseksjonene eies av noen som har slik tilknytning til hverandre.

TINGLYSING AV SKJØTE

Det forutsettes at skjøtet tinglyses på ny eier når handelen er sluttet. Hvis kjøper ikke ønsker hjemmelsoverføring av eiendommen til seg, skal det tas forbehold om dette i budskjema.

KJØPER ER UTENLANDSK STATSBORGER

Dersom kjøper er utenlandsk statsborger

kreves det at vedkommende har D-nummer til erstatning for norsk personnummer. Søknad om D-nummer sendes til Kartverket samtidig med innsending av skjøtet for tinglysing.

Kartverket oppbevarer skjøtet inntil kjøper har fått D-nummer av skatteetaten. Skjøtet vil bli tinglyst så snart Kartverket har mottatt kjøpers D-nummer fra Skatteetaten.

Søknad om D-nummer i forbindelse med tinglysing av skjøte kan medføre at oppgjør og utbetaling til selger blir forsinket. Kjøper må i disse tilfellene ta forbehold i bud om at D-nummer blir gitt, samt at dette kan medføre forsinket utbetaling til selger.

Kontakt megler for informasjon før budgivning.

HVITVASKING AV PENGER

I henhold til lov om hvitvasking er megler pliktig å gjennomføre legitimasjonskontroll. Dette innebærer at mistenkelige transaksjoner knyttet til hvitvasking av penger vil bli innrapportert til Økokrim. Ta gjerne kontakt med oss i Heimdal Eiendomsmegling AS hvis du har spørsmål om dette og andre forhold i forbindelse med din bolighandel.

20
21

VEDLEGG

22

Komplett kjøperinformasjon ve d kjøp av prosjektert bolig i prosjektet:

Lundamo Park B4 - leiligheter

Dato: 05.12.2022

INNEHOLDER DATERT:

Leveransebeskrivelse Ikke datert

Romskjema Ikke datert

Kjøkken- og baderomstegninger fra Drømmekjøkkenet og eksempel på flis

12.10.22/31.10.22

Snitt/fasade/plantegninger 17.09.2019

Situasjonsplan 23.06.2020

Arealoppgave Ikke datert

Kartutsnitt med reguleringsbestemmelser

18.11.22/01.10.20

Forslag til driftsbudsjett for sameiet Ikke datert

Forslag til vedtekter sameiet og velforening Ikke datert

Kjøpetilbud Ikke datert

Finansieringsbevis Ikke datert

23

LEVERANSEBESKRIVELSE Lundamo Park, B08

Utvendige overflater

Fasadene vil bestå av stående dobbelfalls med rettkant i royalimpregnert, farge natur. Dragere i tilnærmet royal setersvart (NCS: S 8000-N). Bygget leveres med pulttak med mørk grå papp. Takrenner med takfotbeslag og nedløpsrør i svart, i stål, eller aluminium.

Terrasse, svalgang, trapp og rekkverk

Rekkverk i royalimpregnert setersvart. Dekke i trykkimpregnert virke 28x120 mm. Trappetrinn i strekkmetall.

Vinduer og dører

Vinduer, ytterdør og dør til sportsbod leveres i farge tilnærmet setersvart (NCS: S 8000-N)..

Innvendige dører leveres som glatte dører i hvitt, inkludert hvite karmer (NCS: S 0500-N)

Innvendige overflater

I gang og på badegolv legges 30x60 cm flis (i dusjsonen 5x5 cm flis). I bod/teknisk rom (leil 103/203) flis 30x60 cm med sokkelflis. Golv i alle øvrige rom leveres med 3-stavs hvitpigmentert eikeparkett.

Vegger og tak leveres med sparklet og malt gips. Vegger på bad leveres med 30x60 cm flis.

Listverk

Listverk (golv, tak, vinduer og dører) leveres i hvitmalt utførelse (NCS: S 0500-N) med synlig stifting.

Ventilasjon

Det leveres balansert ventilasjon med roterende varmegjenvinner.

Rørlegger/Sanitærutstyr

Anlegget er komplett fra innvendig stoppkran. Røropplegg (rør-i-rør) for vamt og kaldt vann, avløp og uttak for vaskemaskin og oppvaskmaskin, ettgreps blandebatteri og sanitærutstyr. Sanitærutstyr i hvit utførelse. Veggklosett i hvit utførelse. Varmtvannsbereder (200 liter) til tappevann.

24

Elektriske installasjoner

El-anlegget tilfredsstiller kravene i NEK 400. NEK 400 er en norm utarbeidet av Norsk Elektronisk Komité, og omhandler krav til elektriske lavspenningsinstallasjoner. Komplett levert fram til forbruk, med inntak, jordfeilvarsling, fordelingsskap, overspenningsvern og egen måler, samt egen separat måler for fellesanlegg. På bad leveres fuktmåler koblet sammen med ventilasjonsanlegget.

Kjøkken- og baderomsinnredninger

Innredningene leveres av Drømmekjøkkenet. Se egne tegninger og spesifikasjoner.

Øvrige installasjoner og leveranser

Det leveres seriekoblede røykvarslere til hver bolig, samt ett brannslukkingsapparat.

25

ANNET

Kjøkkeninnredning fra Drømmekjøkkenet med integrerte hvitevarer fra Siemens og Røros Metall. Se egne tegninger og spesifikasjoner.

Baderomsinnredning fra Drømmekjøkkenet. Se egne tegninger og spesifikasjoner. For leil 101, 103, 201 og 203: 6 stykk downlights på bad).Ventilasjonsaggregat.

TAK VVS

Ett greps blandebatteri. Opplegg for oppvaskmaskin med stoppkran.

Vegghengt toalett i hvit utførelse. 90x90 cm rettvinklede dusjvegger som kan svinges inn når dusjnisjen ikke er i bruk. Trykkstyrt dusjbatteri m/dusjgarnityr, ettgreps servantbatteri, opplegg for vaskemaskin, 200 liter VV-bereder, 75 mm golvsluk.

200 VV-bereder, opplegg for vaskemaskin, 75 mm golvsluk. Ventilasjonsaggregat.

VEGG ELEKTRO

Elektrisk varme med termostat i golv. Lampepunkt i tak.

Fiber-/TV punkt komplett. Stikk for taklys ved topp vegg.

Egen kurs til komfyr. Egen kurs til induksjonstopp. Komfyrvakt. Dobbel stikkontakt over kjøkkenbenk. Lampepunkt i tak.

Innfelte downlights (4 stykk). Speil med integrert belysning som del av innredning. Dobbel stikkontakt over/ved vask. Dobbel stikk ved opplegg for vaskemaskin. Fuktføler sammenkoblet med ventilasjonsanlegg. Elekritsk varme med termostat i golv.

Takarmatur. Dobbel stikkontakt.

Sparklet og malt gips

Sparklet og malt gips

Sparklet og malt gips

Sparklet og malt gips

Sparklet og malt gips

Lampepunkt i tak.

Lampepunkt i tak.

Sparklet og malt gips

Sparklet og malt gips

Sparklet og malt gips

Sparklet og malt gips

Parkett eik hvitpigmentert 3stavs

Sparklet og malt gips

Parkett eik hvitpigmentert 3stavs

ROM

Gang

Stue

Kjøkken

Flis 30x60 cm

Flis 30x60 cm. I nedsenket dusjnisje flis 5x5 cm.

Bad/Vask (inkl Tekn/Bod for leil 101, 103, 201 og 203)

Sparklet og malt gips

Sparklet og malt gips

Sparklet og malt gips

Flis 30x60 cm med sokkelflis

Parkett eik hvitpigmentert 3stavs

Parkett eik hvitpigmentert 3stavs

Bod/Tekn (for leil 102 og 202)

Hovedsoverom

Øvrige Soverom

Det vil i deler av boligene bli foret ned for å skjule tekniske føringer. Det vil i disse områdene kunne bli redusert takhøyde.

4 utvendige (felles) kraner.

1 stykk utelampe (2 stk for leil 103/203) med astrour. Dobbel stikkontakt.

28x120 mm trykkimpregnert.

Terrasse

Rekkverk i Royal Setersvart, søyler og dragere i Setersvart. 1 stykk utelampe ved inngangsdør (koblet til astrour) Sportsbod i

Takarmatur.

carport Betong

Asfalt

Takarmatur. Dobbel stikkontakt Carport

Øvrig

26 ROMSKJEMA Lundamo Park B08
GULV
Flis 30x60 cm
Synlig stenderverk
Nedforinger
Utelamper (felles) med astrour på fasader (leilighetsbygget og carportene), samt ifm inngangsparti/trapp.

Heimdal Sag Prosjekter AS

Lundamo Park B08/B09

27

Vi leverer produkter av høyeste kvalitet, med utallige valgmuligheter for kunden.

Vi ønsker å gjøre valg av kjøkken, bad og garderobe til en bekymringsfri opplevelse, med god hjelp og veiledning, for å skreddersy en best mulig løsning som kunden kan være fornøyd med i mange år fremover.

Vi har god erfaring innen håndtering av tilvalg. Her får boligkjøper god hjelp og veiledning til å designe sitt Drømmekjøkken, ut ifra deres ønsker og behov.

28

Kjøkken

Vi har valgt fronten Bistro. Det er en 19mm tykk dør i malt utførelse. Du kan velge mellom 10 ulike farger uten pristillegg.

Med solide maleprosesser i flere lag, og med sjenerøse strøk oppnår vi en slitesterk overflate på fronten som holder i mange, mange år.

Skuffene er av det eksklusive skuffe-systemet Design Box 2.0®. Skuffene er fullt uttrekkbare og med demping. Kunden velger selv om de vil ha skuffen i stilrent hvitt eller i vår trendriktige grå farge, og om de vil ha tette skuffesider eller i klart glass.

Benkeplaten er 30mm laminat. Her kan kunden fritt velge mellom 6 ulike utførelser.

Vasken er en underlimt 1 ½ fra Franke i ypperste stålkvalitet. Noe som gjør renhold til en drøm!

29

HVITEVARER

Fra Siemens

Vi har valgt hvitevarer fra Siemens og Røros Metall. Kjente kvalitetsmerker med god design.

STEKEOVN

Allsidig stekeovn med hurtigstartfunksjon som reduserer steketiden.

3D varmluft byr på en perfekt varmefordeling i ovnsrommet, slik at du får et perfekt bakeresultat.

PLATETOPP

Platetopp med induksjon og innovative funksjoner for mer fleksibilitet under matlagingen.

Med TouchControl -funksjonen kan du aktivere og stille inn kokesonene med et lett fingertrykk.

PowerBoost funksjon opptil 50% kortere oppvarmingstid

30

HVITEVARER

KOMBISKAP

Integrert kombiskap med FreshBox med bølgeformet bunn som gjør at frukt og grønnsaker holder seg friskt lenger.

BigBox: ekstra stor plass for effektiv oppbevaring av store frysevarer.

OPPVASKMASKIN

Variospeed on demand – for opptil 2 ganger raskere oppvasksyklus

Home Connect.

InfoLight projiserer et blått lys på gulvet når programmet kjører.

Fleksibel høyderegulering av overkurven skaper plass for til og med de høyeste tallerkener og gryter.

Autoprogrammer styrer hele oppvaskprosessen med et strålende resultat.

31
Fra Siemens

HVITEVARER

CRYSTALL

Crystall slimline ventilator for integrering under veggskap med uttrekkbar sølvgrå forkantlist.

Energieffektiv LED-belysning. To motorer og tretrinns styring .

B08 102/202

GAIA

Moderne veggmodell i børstet stål, 60 cm. Stålkvaliteten er antifingerprint slik at du slipper fingermerker.

Du kan få hetta lakkert i valgfri NCS-farge uten pristillegg.

B08 101/201/103/203

B09 101/102/103

32
Røros Hetta

Kjøkken illustasjonsbilder

33
B08 – Leilighet 101 og 201 B08 – Leilighet 102 og 202 B08 – Leilighet 103 og 203 B09 – Leilighet 101, 102 og 103

baderom

Vi valgte baderomsinnredningen

Bright Slett i malt utførelse. Skapet har en skuff og en åpen hylle som vist på bildet til høyre.

Servanten er i tynt porselen med myke former og en firkantet kulp med mykt avrundede hjørner.

Skuffen er av høy kvalitet med egen inndeling som gjør det lett å holde orden.

Belysningsspeil er et fint produkt som både gir godt lys og speil i ett. Speilets lyskilde er LED.

34

Tilvalgs muligheter for kunden

Vi har et bredt spekter av kvalitetsfronter i glatt eller profilert utførelse. Frontene er malt, finert eller i heltre. I tillegg til vårt brede kjernesortiment, kan vi også tilby skreddersydd produsering på mål. Vi har løsning for en hver kunde.

Vi forhandler hvitevarer fra de aller fleste anerkjente leverandørene. Vi kan derfor tilby produkter tilpasset kundens behov, og som vi vet står for kvalitet.

Utvalget vårt på benkeplater strekker seg langt. Her kan du velge i over hundre forskjellige plater i materialer som laminat, naturstein, heltre, keramikk, kompositt eller stål.

35

garderobe

Vi kan tilby fleksible og smarte løsninger som vil gjøre hverdagen lettere.

Vi har flere ulike utførelser både når det gjelder innredning og skyvedører.

Skyvedørene kan også brukes som romdeler eller som dører inn til kontoret.

Her er det bare fantasien som setter grenser.

Vi hjelper deg å skreddersy din garderobe til ditt behov.

*Bildene er kun for inspirasjon. Det er ikke priset garderobeløsninger for dette prosjektet.

36

Elementliste: 3225/1/1

Prosjekt: Lundamo Park - B08/B09

GLH Trondheim AS, Drømmekjøkkenet Trondheim

Industriveien 1, , 7080 HEIMDAL

Tlf: Mobil: 90647800 Faks: heimdal@dktrondheim.no www.drommekjøkkenet.no

Organisasjonsnr.:917 869 529

Bankgiro: Postgiro:

Kundenr.: 1 220

Lundamo Park - B08/B09

Leveringsadresse:

Lundamo Park - B08/B09

,

Tlf :

Mobil:

Deres ref : Lundamo Park - B08/B09

Drømmekjøkkenet Kjøkken

Skrevet ut : 12.10.2022 Side 1 (2)

Elementliste

Tilbudsnr. :3225/1/1

Tilbuds dato :

Gyldig til :

Vår ref :

E-Mail :

Deres ref :Lundamo Park - B08/B09

Tlf :

Telefon privat :

Mobil :

Faks :

E-Mail :

Transport :

Lev eringsbet. :

Lev eringstid :

Betaling :

Kjøkken : Bistro

Utførelse dør : Varmgrå

Utførelse skrog : Hvit laminat

Skuffetype : Hvit

Valg av glass/metallside

designbox : Glas

Tipon skuff : Tipon skuff Av

Hylle : Hylle På

Kjøkken (bare skrog) : Skrog

Utførelse dør : Skrog

Utførelse direktfaneer : Ingen finering

Front : Bistro

Utførelse skrog : Bare dør

Høyt skrog (768) tilbehør : Malt

Utførelse : Malt varmgrå

Sokkel : Malt

Skrog : Laminat

Utførelse : Laminat hvit

Drømmekjøkkenet laminat std

Benkeplater : Laminat rett ABS-kant-30

Laminat type : 2256

37
Pos Kode Beskrivelse Hengsl. Antall Enhet 1 FR76860116 Dekkside benkeskap 768x601x16 1,000 stk 2 EA62RL Benkeskap, 3 skuffer, B=598 1,000 stk 2.1 IF6V55 Bestikkinnlegg 600, hv it plast, D=550 1,000 stk 3 EH6634L Ovn/Komfyrtopp, 1 skuffe 500 dybde, B=598 1,000 stk 4 EC10HH2V40 Hjørneskap, v enstre, dørbredde 394, B==998 H 1,000 stk 4.1 PBS764194 Foring-sats 764x194 Bredde = 194, Dybde = 581 2,000 stk 5 EC45H2 Benkeskap, 2 hyller, B=448 V 1,000 stk 6 ED6 Oppv askbenkeskap B=598 V 1,000 stk 6.1 FARG50 Flikklakk 50 ml 1,000 stk

Prosjekt: Lundamo Park - B08/B09

38
Elementliste: 3225/1/1 Skrevet ut : 12.10.2022 Side 2 (2)
Pos Kode Beskrivelse Hengsl. Antall Enhet 7 LU764594 Dør 764x594 Bredde = 600, Høyde = 768, Ombygd front 1,000 stk 7.1 OBORR Døren lev eres UBORRET. 1,000 stk 8 EC4H2 Benkeskap, 2 hyller, B=398 H 1,000 stk 9 FR204860116 Dekkside høyskap 2048x601x16 1,000 stk 10 EKYK2016 Høyskap EK, kjøl/frys, H=2048, B=598 Spotlight / type topp = Av Skrog Utførelse dør Skrog Skuffetype Grå 1,000 stk 10.1 GGJ110MD Hengsel 110 med integrert demping 5,000 stk 10.2 HHSE6KOPV Hylle BS/HS6 koblet vent m. hyllebærere 2,000 stk 10.3 LU764594 Dør 764x594 H 1,000 stk 10.4 LU1276594 Dør 1276x594 H 1,000 stk 11 PB20 Foring enkel, 2400x200 Bredde = 92, Høyde = 2048, Dybde = 581 1,000 stk 12 PB20 Foring enkel, 2400x200 Bredde = 104, Høyde = 640, Dybde = 318 1,000 stk 13 EK6 Overskap EK, H=640, B=598 V 1,000 stk 14 EK5 Overskap EK, H=640, B=498 V 1,000 stk 15 EK5 Overskap EK, H=640, B=498 H 1,000 stk 16 EK5 Overskap EK, H=640, B=498 V 1,000 stk 17 EK5 Overskap EK, H=640, B=498 H 1,000 stk 18 VENTGM Ventilationsgitter, malt aluminium 1,000 stk 19 BCX260 BCX 260 - Vask inkl. strainer og v annlås Bredde = 780, Høyde = 180, Dybde = 510 1,000 stk 450 HG830 Håndtak HG-830, rustfritt, cc=128 16,000 stk 500 LBBS610 Benkeplate dybde 610 laminat rett kant Lengde = 2320, Dybde = 610 2,320 m 500.1 LBSKARV90 Hjørnesamling inkl koblingsbeslag Bredde = 610 1,000 stk 500.2 Utskjæringen er utført på monteringsstedet 501 LBBS610 Benkeplate dybde 610 laminat rett kant Lengde = 2084, Dybde = 610 2,084 m 501.1 Skjøten er inkludert i "LBSKARV90"! 501.2 Kutting av "19: Vask" er utført på monteringsstedet 502 BEN100 Støttebein 100 ink clips, H=95-120 mm 20,000 stk 503 SO102 Sokkel 102, 102x2400x16 3,000 stk 504 SOH102 Sokkelhjørne 102, 102x25x25mm 1,000 stk
39 Oppriss : 3225/1/1 B08KjøkkenKjøkkenKT1 Skrevet ut: 31.10.2022 Prosjekt : Lundamo ParkB08/B09 Skala: Tilpasset ramme MERK: Tegningen er bare retningsgivende. Dybdemål er ekskl. ska pdører. NB: Kontrollmål må foretas Vår ref: Stenersen, Adrian Side: 1 ( 1 ) EH6634L EC10HH2V40 FR76860116 EA62RL EK6 PB20 318 778 600 100 998 598 598 16 201 867 095 05 046 051 001 201 0151 0512 0042 0042
40
3225/1/1 B08KjøkkenKjøkkenKT1 Skrevet ut: 31.10.2022
: Lundamo ParkB08/B09 Skala: Tilpasset ramme MERK: Tegningen er bare retningsgivende. Dybdemål er ekskl. ska pdører. NB: Kontrollmål må foretas Vår ref: Stenersen, Adrian Side: 1 ( 1 ) ED6 EKYK2016 LU764594 LU1276594 FR204860116 VENTGM EC10HH2V40 EC4H2 PB20 EC45H2 BCX260 EK6 PB20 EK5 EK5 EK5 EK5 LU764594 104 598 498 498 498 498 706 3400 650 448 598 600 398 16 598 92 201 867 046 046 052 201 0151 0512 0042 0042
Oppriss :
Prosjekt
41 Perspektivtegning : 3225/1/1 B08KjøkkenKjøkkenKT1 Skrevet ut: 12.10.2022 Prosjekt : Lundamo ParkB08/B09 MERK: Tegningen er bare retningsgivende. Vår ref: Side: 1 ( 1 )

Plantegning : 3225/1/1 B08KjøkkenKjøkkenKT1

MERK: Tegningen er

42
Skrevet ut: 31.10.2022
Tilpasset ramme
Prosjekt : Lundamo ParkB08/B09 Skala :
pdører. NB: Kontrollmål må foretas Vår ref: Stenersen, Adrian Side: 1 ( 1 ) B08101/201 1 2 3 MGTNEV 6DE 2H54CE EA62RL FR76860116 2H4CE EC10HH2V40 EH6634L 02BP 611068402RF 6102KYKE 495467UL 4956721UL 062XCB 5KE 5KE 5KE 5KE 02BP 6KE 16 598 598 998 100 600 778 318 056 844 895 006 893 61 895 29 401 895 894 894 894 894 607 0043 581 700 1700
bare retningsgivende. Dybdemål er ekskl. ska

Elementliste: 3225/1/2

Prosjekt: Lundamo Park - B08/B09

GLH Trondheim AS, Drømmekjøkkenet Trondheim

Industriveien 1, , 7080 HEIMDAL

Tlf: Mobil: 90647800 Faks: heimdal@dktrondheim.no www.drommekjøkkenet.no

Organisasjonsnr.:917 869 529

Bankgiro: Postgiro:

Kundenr.: 1 220

Lundamo Park - B08/B09

Leveringsadresse:

Lundamo Park - B08/B09

,

Tlf :

Mobil: Deres ref : Lundamo Park - B08/B09

Drømmekjøkkenet Kjøkken

Tilbudsnr. :3225/1/2

Tilbuds dato : Gyldig til : Vår ref : E-Mail :

Deres ref :Lundamo Park - B08/B09

Tlf :

Telefon privat :

Mobil :

Faks :

E-Mail :

Transport :

Lev eringsbet. :

Lev eringstid :

Betaling :

Kjøkken : Bistro

Utførelse dør : Varmgrå

Utførelse skrog : Hvit laminat

Skuffetype : Hvit

Valg av glass/metallside

designbox : Glas

Tipon skuff : Tipon skuff Av

Hylle : Hylle På

Kjøkken (bare skrog) : Skrog

Utførelse dør : Skrog

Utførelse direktfaneer : Ingen finering

Front : Bistro

Utførelse skrog : Bare dør

Høyt skrog (768) tilbehør : Malt

Utførelse : Malt varmgrå

Sokkel : Malt

Skrog : Laminat Utførelse : Laminat hvit

Drømmekjøkkenet laminat std

Benkeplater : Laminat rett ABS-kant-30

Laminat type : 2256

43
Skrevet ut : 12.10.2022 Side 1 (2)
Elementliste
Pos Kode Beskrivelse Hengsl. Antall Enhet 1 PB10 Foring enkel 2400x100 Bredde = 54, Høyde = 768, Dybde = 581 1,000 stk 2 EC2 Benkeskap, brikke, B=198 V 1,000 stk 3 LU764594 Dør 764x594 Bredde = 600, Høyde = 768, Ombygd front 1,000 stk 3.1 OBORR Døren lev eres UBORRET. 1,000 stk 4 ED6 Oppv askbenkeskap B=598 H 1,000 stk 4.1 FARG50 Flikklakk 50 ml 1,000 stk 5 EC10HH2H40 Hjørneskap, høyre, dørbredde 394, B==998 V 1,000 stk

Elementliste: 3225/1/2

Prosjekt: Lundamo Park - B08/B09

44
Skrevet
12.10.2022 Side 2 (2)
ut :
Pos Kode Beskrivelse Hengsl. Antall Enhet 5.1 PBS764194 Foring-sats 764x194 Bredde = 194, Dybde = 20 2,000 stk 6 EH6634L Ovn/Komfyrtopp, 1 skuffe 500 dybde, B=598 1,000 stk 7 EA62RL Benkeskap, 3 skuffer, B=598 1,000 stk 7.1 IF6V55 Bestikkinnlegg 600, hv it plast, D=550 1,000 stk 8 FR204860116 Dekkside høyskap 2048x601x16 1,000 stk 9 EKYK2016 Høyskap EK, kjøl/frys, H=2048, B=598 Spotlight / type topp = Av Skrog Utførelse dør Skrog Skuffetype Grå 1,000 stk 9.1 GGJ110MD Hengsel 110 med integrert demping 5,000 stk 9.2 GGJ110MD Hengsel 110 med integrert demping 5,000 stk 9.3 HHSE6KOPV Hylle BS/HS6 koblet vent m. hyllebærere 2,000 stk 9.4 LU764594 Dør 764x594 H 1,000 stk 9.5 LU1276594 Dør 1276x594 H 1,000 stk 10 FR204860116 Dekkside høyskap 2048x601x16 1,000 stk 11 PB10 Foring enkel 2400x100 Bredde = 52, Høyde = 640, Dybde = 318 1,000 stk 12 EK45 Overskap EK, H=640, B=448 V 1,000 stk 13 EK6 Overskap EK, H=640, B=598 V 1,000 stk 14 EK6 Overskap EK, H=640, B=598 H 1,000 stk 15 EK6 Overskap EK, H=640, B=598 H 1,000 stk 16 VENTGM Ventilationsgitter, malt aluminium 1,000 stk 17 BCX260 BCX 260 - Vask inkl. strainer og v annlås Bredde = 780, Høyde = 180, Dybde = 510 1,000 stk 450 HG830 Håndtak HG-830, rustfritt, cc=128 14,000 stk 500 LBBS610 Benkeplate dybde 610 laminat rett kant Lengde = 2150, Dybde = 610 2,150 m 500.1 LBSKARV90 Hjørnesamling inkl koblingsbeslag Bredde = 610 1,000 stk 500.2 Kutting av "17: Vask" er utført på monteringsstedet 501 LBBS610 Benkeplate dybde 610 laminat rett kant Lengde = 1684, Dybde = 610 1,684 m 501.1 Skjøten er inkludert i "LBSKARV90"! 501.2 Kutting av EX675LEC1E er utført på monteringsstedet 502 BEN100 Støttebein 100 ink clips, H=95-120 mm 17,000 stk 503 SO102 Sokkel 102, 102x2400x16 2,000 stk 504 SOH102 Sokkelhjørne 102, 102x25x25mm 1,000 stk
45
: 3225/1/2 B08KjøkkenKjøkkenKT2 Skrevet ut: 31.10.2022
: Lundamo ParkB08/B09
Tilpasset ramme
Oppriss
Prosjekt
Skala:
bare retningsgivende. Dybdemål er ekskl. ska pdører. NB: Kontrollmål må foretas Vår ref: Stenersen, Adrian Side: 1 ( 1 ) ED6 EC10HH2H40 EC2 PB10 EK45 PB10 BCX260 LU764594 1782 318 50 1500 550 2100 54 198 600 598 650 201 867 046 046 052 201 0151 0512 0042 0031 008 003 0042
MERK: Tegningen er
46
: 3225/1/2 B08KjøkkenKjøkkenKT2 Skrevet ut: 31.10.2022 Prosjekt : Lundamo ParkB08/B09 Skala: Tilpasset ramme MERK: Tegningen er bare retningsgivende. Dybdemål er ekskl. ska pdører. NB: Kontrollmål må foretas Vår ref: Stenersen, Adrian Side: 1 ( 1 ) EC10HH2H40 EH6634L EA62RL FR204860116 EKYK2016 LU764594 LU1276594 FR204860116 VENTGM EK6 EK6 EK6 EK45 PB10 52 448 598 598 2 596 1806 4100 100 998 598 598 16 598 16 1176 201 867 995 14 046 052 201 0151 0512 0042 0042
Oppriss
47 47 Perspektivtegning : 3225/1/2 B08KjøkkenKjøkkenKT2 Skrevet ut: 12.10.2022 Prosjekt : Lundamo ParkB08/B09 MERK: Tegningen er bare retningsgivende. Vår ref: Side: 1 ( 1 )

Plantegning : 3225/1/2 B08KjøkkenKjøkkenKT2

Prosjekt : Lundamo ParkB08/B09

MERK: Tegningen er bare retningsgivende. Dybdemål er ekskl. ska

48 48
ut:
Skrevet
31.10.2022
Skala : Tilpasset ramme
pdører. NB: Kontrollmål må foretas Vår ref: Stenersen, Adrian Side: 1 ( 1 ) B08102/202 1 2 3 6 MGTNEV ED6 LR26AE L4366HE PB10 EC2 04H2HH01CE 611068402RF 6102KYKE 495467UL 4956721UL 611068402RF BCX260 01BP 54KE 6KE 6KE 6KE 9152 185 008 05 007 05 0051 0013 54 198 600 598 650 1782 318 50 1500 550 2100 001 899 895 895 61 895 61 25 844 895 895 2 695 1500

Elementliste: 3225/1/3

Prosjekt: Lundamo Park - B08/B09

GLH Trondheim AS, Drømmekjøkkenet Trondheim

Industriveien 1, , 7080 HEIMDAL

Tlf: Mobil: 90647800 Faks: heimdal@dktrondheim.no www.drommekjøkkenet.no

Organisasjonsnr.:917 869 529

Bankgiro: Postgiro:

Kundenr.: 1 220

Lundamo Park - B08/B09

Leveringsadresse:

Lundamo Park - B08/B09

,

Tlf :

Mobil:

Deres ref : Lundamo Park - B08/B09

Drømmekjøkkenet Kjøkken

Skrevet ut : 12.10.2022 Side 1 (2)

Tilbudsnr. :3225/1/3

Tilbuds dato :

Gyldig til :

Vår ref :

E-Mail :

Deres ref :Lundamo Park - B08/B09

Tlf :

Telefon privat :

Mobil :

Faks :

E-Mail :

Transport :

Lev eringsbet. :

Lev eringstid :

Betaling :

Kjøkken : Bistro

Utførelse dør : Varmgrå

Utførelse skrog : Hvit laminat

Skuffetype : Hvit

Valg av glass/metallside

designbox : Glas

Tipon skuff : Tipon skuff Av

Hylle : Hylle På

Kjøkken (bare skrog) : Skrog

Utførelse dør : Skrog

Utførelse direktfaneer : Ingen finering

Front : Bistro

Utførelse skrog : Bare dør

Høyt skrog (768) tilbehør : Malt

Utførelse : Malt varmgrå

Sokkel : Malt

Skrog : Laminat

Utførelse : Laminat hvit

Drømmekjøkkenet laminat std

Benkeplater : Laminat rett ABS-kant-30

Laminat type : 2256

49
Elementliste
Pos Kode Beskrivelse Hengsl. Antall Enhet 1 PB20 Foring enkel, 2400x200 Bredde = 92, Høyde = 2048, Dybde = 581 1,000 stk 2 EKYK2016 Høyskap EK, kjøl/frys, H=2048, B=598 Spotlight / type topp = Av Skrog Utførelse dør Skrog Skuffetype Grå 1,000 stk 2.1 GGJ110MD Hengsel 110 med integrert demping 5,000 stk 2.2 HHSE6KOPV Hylle BS/HS6 koblet vent m. hyllebærere 2,000 stk 2.3 LU764594 Dør 764x594 V 1,000 stk

Elementliste: 3225/1/3

Prosjekt: Lundamo Park - B08/B09

50
Skrevet ut : 12.10.2022 Side 2 (2)
Pos Kode Beskrivelse Hengsl. Antall Enhet 2.4 LU1276594 Dør 1276x594 V 1,000 stk 3 FR204860116 Dekkside høyskap 2048x601x16 1,000 stk 4 EC4H2 Benkeskap, 2 hyller, B=398 V 1,000 stk 5 LU764594 Dør 764x594 Bredde = 600, Høyde = 768, Ombygd front 1,000 stk 5.1 OBORR Døren lev eres UBORRET. 1,000 stk 6 ED6 Oppv askbenkeskap B=598 H 1,000 stk 6.1 FARG50 Flikklakk 50 ml 1,000 stk 7 EC45H2 Benkeskap, 2 hyller, B=448 H 1,000 stk 8 EC10HH2H40 Hjørneskap, høyre, dørbredde 394, B==998 V 1,000 stk 8.1 PBS764194 Foring-sats 764x194 Bredde = 194, Dybde = 581 2,000 stk 9 EH6634L Ovn/Komfyrtopp, 1 skuffe 500 dybde, B=598 1,000 stk 10 EA62RL Benkeskap, 3 skuffer, B=598 1,000 stk 10.1 IF6V55 Bestikkinnlegg 600, hv it plast, D=550 1,000 stk 11 FR76860116 Dekkside benkeskap 768x601x16 1,000 stk 12 EK5 Overskap EK, H=640, B=498 V 1,000 stk 13 EK5 Overskap EK, H=640, B=498 H 1,000 stk 14 EK5 Overskap EK, H=640, B=498 V 1,000 stk 15 EK5 Overskap EK, H=640, B=498 H 1,000 stk 16 EK6 Overskap EK, H=640, B=598 H 1,000 stk 17 PB20 Foring enkel, 2400x200 Bredde = 104, Høyde = 640, Dybde = 318 1,000 stk 18 VENTGM Ventilationsgitter, malt aluminium 1,000 stk 19 BCX260 BCX 260 - Vask inkl. strainer og v annlås Bredde = 780, Høyde = 180, Dybde = 510 1,000 stk 450 HG830 Håndtak HG-830, rustfritt, cc=128 16,000 stk 500 LBBS610 Benkeplate dybde 610 laminat rett kant Lengde = 2084, Dybde = 610 2,084 m 500.1 LBSKARV90 Hjørnesamling inkl koblingsbeslag Bredde = 610 1,000 stk 500.2 Kutting av "19: Vask" er utført på monteringsstedet 501 LBBS610 Benkeplate dybde 610 laminat rett kant Lengde = 2320, Dybde = 610 2,320 m 501.1 Skjøten er inkludert i "LBSKARV90"! 501.2 Kutting av EX675LEC1E er utført på monteringsstedet 502 BEN100 Støttebein 100 ink clips, H=95-120 mm 20,000 stk 503 SO102 Sokkel 102, 102x2400x16 3,000 stk 504 SOH102 Sokkelhjørne 102, 102x25x25mm 1,000 stk
51
3225/1/3 B08
KjøkkenKjøkken
KT3 Skrevet ut: 31.10.2022
Lundamo Park
B08/B09 Skala: Tilpasset ramme MERK: Tegningen er bare retningsgivende. Dybdemål er ekskl. ska pdører. NB: Kontrollmål må foretas Vår ref: Stenersen, Adrian Side: 1 ( 1 ) ED6 EKYK2016 LU764594 LU1276594 FR204860116 VENTGM EC4H2 EK6 PB20 EC45H2 BCX260 EC10HH2H40 PB20 EK5 EK5 EK5 EK5 LU764594 706 498 498 498 498 598 104 3400 92 598 16 398 600 598 448 650 201 867 046 046 052 201 0151 0512 0042 0042
Oppriss :
-
-
Prosjekt :
-
52
: 3225/1/3 B08KjøkkenKjøkkenKT3 Skrevet ut: 31.10.2022
: Lundamo ParkB08/B09 Skala: Tilpasset ramme MERK: Tegningen er bare retningsgivende. Dybdemål er ekskl. ska pdører. NB: Kontrollmål må foretas Vår ref: Stenersen, Adrian Side: 1 ( 1 ) EH6634L FR76860116 EK6 EA62RL EC10HH2H40 PB20 318 780 600 1302 3000 100 998 598 598 16 690 201 867 095 05 046 051 001 201 0151 0512 0042 0042
Oppriss
Prosjekt
53 MERK: Tegningen er bare retningsgivende. Dybdemål er ekskl. ska pdører. NB: Kontrollmål må foretas ( ) Perspektivtegning : 3225/1/3 B08KjøkkenKjøkkenKT3 Skrevet ut: 12.10.2022 Prosjekt : Lundamo ParkB08/B09 MERK: Tegningen er bare retningsgivende. Vår ref: Side: 1 ( 1 )

Plantegning : 3225/1/3 B08KjøkkenKjøkkenKT3

Prosjekt : Lundamo ParkB08/B09

600

598

598

780

998

16 318

100

EA62RL FR76860116 2H4CE

EH6634L 02BP 611068402RF 6102KYKE

Side: 4 MGTNEV 6DE EC10HH2H40 2H54CE

1700 700 29 895 61 893 006 895 844 056 607 894 894 894 894 895 401 0043

Skala : Tilpasset ramme

062XCB 5KE 5KE 5KE 5KE 02BP 6KE 581

Vår ref: Stenersen, Adrian 1 ( 1 ) B08103-203 2 3

495467UL 4956721UL

54
ut:
Skrevet
31.10.2022
MERK: Tegningen er bare retningsgivende. Dybdemål er ekskl. ska pdører. NB: Kontrollmål må foretas

Elementliste: 3225/4/1

Prosjekt: Lundamo Park - B08/B09

GLH Trondheim AS, Drømmekjøkkenet Trondheim

Industriveien 1, , 7080 HEIMDAL

Tlf: Mobil: 90647800 Faks: heimdal@dktrondheim.no www.drommekjøkkenet.no

Organisasjonsnr.:917 869 529

Bankgiro: Postgiro:

Kundenr.: 1 220

Lundamo Park - B08/B09

Leveringsadresse:

Lundamo Park - B08/B09

,

Tlf :

Mobil:

Deres ref : Lundamo Park - B08/B09

Ballingslöv Bad

Skrevet ut : 12.10.2022 Side 1 (1)

Tilbudsnr. :3225/4/1

Tilbuds dato : Gyldig til :

Vår ref

Deres ref :Lundamo Park - B08/B09

Tlf

55
Elementliste
:
: E-Mail
: Mobil :
: E-Mail : Transport :
: Lev eringstid :
:
: Telefon privat
Faks
Lev eringsbet.
Betaling
Bright : Bright Skrog : Hvit Utførelse dør : Hvit Tipon skuff : Tipon skuff AV Pos Kode Beskrivelse Hengsl. Antall Enhet 1 KO80B Serv antskap KO80 Bright Ombygd front 1,000 stk 2 T80PT Serv ant 80c Thin 1,000 stk 3 BSPL80 Belysningsspeil Line 80, multiwhite,dimmer 1,000 stk 450 HG830B Håndtak Bad HG-830 RF 1,000 stk
56
Skrevet
B08/B09
ramme
Oppriss : 3225/4/1 B08BadBadBT1
ut: 31.10.2022 Prosjekt : Lundamo Park -
Skala: Tilpasset
er ekskl. ska pdører. NB: Kontrollmål må foretas Vår ref: Stenersen, Adrian Side: 1 ( 1 ) KO80B T80PT BSPL80 0091 4700 1400 100 900 436 360 507 3 794 3 3 194 2 842 501 581 592 512 058 994 2 553 0042 0042 Belysningsspeil
MERK: Tegningen er bare retningsgivende. Dybdemål
57 Perspektivtegning : 3225/4/1 B08BadBadBT1 Skrevet ut: 12.10.2022 Prosjekt : Lundamo ParkB08/B09 MERK: Tegningen er bare retningsgivende. Vår ref: Side: 1 ( 1 )
58 Plantegning : 3225/4/1 B08BadBadBT1 Skrevet ut: 02.11.2022 Prosjekt : Lundamo ParkB08/B09 Skala : Tilpasset ramme
Tegningen er bare retningsgivende. Dybdemål er ekskl. ska pdører. NB: Kontrollmål må foretas Vår ref: Stenersen, Adrian Side: 1 ( 1 ) B08101/201 1 2 3 4 5 6 KO80B T80PT BSPL80 1500 900 436 360 510 794 200 3706 800 194 1400 100 3200 4700 0012 900 900 2900 4700 0012
MERK:

Elementliste: 3225/4/2

Prosjekt: Lundamo Park - B08/B09

GLH Trondheim AS, Drømmekjøkkenet Trondheim

Industriveien 1, , 7080 HEIMDAL

Tlf: Mobil: 90647800 Faks: heimdal@dktrondheim.no www.drommekjøkkenet.no

Organisasjonsnr.:917 869 529

Bankgiro: Postgiro:

Kundenr.: 1 220

Lundamo Park - B08/B09

Leveringsadresse:

Lundamo Park - B08/B09

,

Tlf :

Mobil:

Deres ref : Lundamo Park - B08/B09

Ballingslöv Bad

Skrevet ut : 12.10.2022 Side 1 (1)

Tilbudsnr. :3225/4/2

Tilbuds dato : Gyldig til

Vår ref

Deres ref :Lundamo Park - B08/B09

59
Elementliste
:
:
: E-Mail
: Mobil :
: E-Mail : Transport : Lev
: Lev eringstid :
:
Tlf : Telefon privat
Faks
eringsbet.
Betaling
Bright : Bright Skrog : Hvit Utførelse dør : Hvit Tipon skuff : Tipon skuff AV Pos Kode Beskrivelse Hengsl. Antall Enhet 1 KO80B Serv antskap KO80 Bright Ombygd front 1,000 stk 2 T80PT Serv ant 80c Thin 1,000 stk 3 BSPL80 Belysningsspeil Line 80, multiwhite,dimmer 1,000 stk 450 HG830B Håndtak Bad HG-830 RF 1,000 stk
60 Oppriss : 3225/4/2 B08BadBadBT2 Skrevet ut: 31.10.2022 Prosjekt : Lundamo ParkB08/B09 Skala: Tilpasset ramme MERK: Tegningen er bare retningsgivende. Dybdemål er ekskl. ska pdører. NB: Kontrollmål må foretas Vår ref: Stenersen, Adrian Side: 1 ( 1 ) KO80B T80PT BSPL80 0091 3000 900 503 3 794 3 3 234 360 200 2 842 501 581 592 512 058 994 2 553 0042 0042
61 Perspektivtegning : 3225/4/2 B08BadBadBT2 Skrevet ut: 12.10.2022 Prosjekt : Lundamo ParkB08/B09 MERK: Tegningen er bare retningsgivende. Vår ref: Side: 1 ( 1 )
62 Plantegning : 3225/4/2 B08BadBadBT2 Skrevet ut: 31.10.2022 Prosjekt : Lundamo ParkB08/B09 Skala : Tilpasset ramme
Tegningen er bare retningsgivende. Dybdemål er ekskl. ska pdører. NB: Kontrollmål må foretas Vår ref: Stenersen, Adrian Side: 1 ( 1 ) B08102/202 1 2 3 4 B08OK TP08T 08LPSB 2000 006 009 0051 0003 1100 440 21 440 2000 009 605 497 042 063 002 6041 008 497 0003
MERK:

Elementliste: 3225/4/3

Prosjekt: Lundamo Park - B08/B09

GLH Trondheim AS, Drømmekjøkkenet Trondheim

Industriveien 1, , 7080 HEIMDAL

Tlf: Mobil: 90647800 Faks: heimdal@dktrondheim.no www.drommekjøkkenet.no

Organisasjonsnr.:917 869 529

Bankgiro: Postgiro:

Kundenr.: 1 220

Lundamo Park - B08/B09

Leveringsadresse:

Lundamo Park - B08/B09

,

Tlf :

Mobil:

Deres ref : Lundamo Park - B08/B09

Ballingslöv Bad

Skrevet ut : 12.10.2022 Side 1 (1)

Tilbudsnr. :3225/4/3

Tilbuds dato : Gyldig til :

Vår ref : E-Mail

Deres ref :Lundamo Park - B08/B09

Tlf

privat

63
Elementliste
:
:
:
: Telefon
: Mobil : Faks : E-Mail : Transport
Lev eringsbet.
Lev eringstid : Betaling :
Bright : Bright Skrog : Hvit Utførelse dør : Hvit Tipon skuff : Tipon skuff AV Pos Kode Beskrivelse Hengsl. Antall Enhet 1 KO80B Serv antskap KO80 Bright Ombygd front 1,000 stk 2 BSPL80 Belysningsspeil Line 80, multiwhite,dimmer 1,000 stk 3 T80PT Serv ant 80c Thin 1,000 stk 450 HG830B Håndtak Bad HG-830 RF 1,000 stk

Skrevet ut: 31.10.2022

Oppriss : 3225/4/3 B08BadBadBT3

Prosjekt : Lundamo ParkB08/B09

Skala: Tilpasset ramme

MERK: Tegningen er bare retningsgivende. Dybdemål er ekskl. ska pdører. NB: Kontrollmål må foretas

64
Vår ref: Stenersen,
Side: 1 ( 1 ) KO80B T80PT BSPL80 0091 4700 194 3 3 794 3 507 360 436 440 21 440 100 1400 2 842 501 581 592 512 058 994 2 553 0042 0042
Adrian
65 Perspektivtegning : 3225/4/3 B08BadBadBT3 Skrevet ut: 12.10.2022 Prosjekt : Lundamo ParkB08/B09 MERK: Tegningen er bare retningsgivende. Vår ref: Side: 1 ( 1 )
66 Plantegning : 3225/4/3 B08BadBadBT3 Skrevet ut: 31.10.2022 Prosjekt : Lundamo ParkB08/B09 Skala : Tilpasset ramme
Tegningen er bare retningsgivende. Dybdemål er ekskl. ska pdører. NB: Kontrollmål må foretas Vår ref: Stenersen, Adrian Side: 1 ( 1 ) B08103/203 1 2 3 4 5 6 KO80B T80PT BSPL80 0012 2900 900 900 4700 0012 200 794 510 360 436 440 21 440 1500 194 800 3706 3200 100 1400 4700
MERK:

BAD

67
Grespor Glade Branco 29,7x59,7 Grespor Glade Branco 5x5 Grespor Glade Cinza 29,7x59,7 Grespor Glade Cinza 5x5 Grespor Minos Ash 29,7x59,7 Grespor Minos Ash 5x5

ENTRE

29,7x59,7

Grespor Glade Cinza 29,7x59,7

Grespor Glade Branco 29,7x59,7

68
Grespor Minos Ash
69 A A 9500 2400 800 4500 5200 10500 1900 7 m² Gang 5.4 m² Gang 8 m² Sov 6 m² Bad 3.7 m² Bod/Tekn 37.2 m² Stue/Kjk 10.8 m² Sov 7 m² Gjest 7 m² Sov 10.1 m² Sov 6.7 m² Bad 3 m² Vask/Tekn/Bod 40.4 m² Stue/Kjk 10.1 m² Sov 7 m² Gang 7 m² Sov 7 m² Gjest 40.4 m² Stue/Kjk 6.7 m² Bad 3 m² Vask/Tekn/Bod 14 m² Terrasse 32.8 m² Terrasse 14 m² Terrasse © Denne tegning må ikke kopieres eller benyttes ved foretagender som rettighetshaver ikke medvirker i. © Vi forbeholder oss retten til å endre på utformin g av bygget dersom det avdekkes forhold som krever det under prosjektering en TILTAKSHAVER: BYGGEPLASS: KOMMUNE: G.nr/B.nr: MEDLEM: Tlf 74 27 53 60, 7800 Namsos, www.arkplan.no REV: DATO: REVISJON: SIGN: MÅLESTOKK: ARKSTØRRELSE: TEGN.NR: TEGN, INNHOLD: PROSJEKT: ARKITEKT: DATO: TEGN: REV: 1 : 100 Heimdal Sag AS 208/16,214,21 MOSLØKKJA FARGEPLAN 1. og 2. etg 17.09.2019 Berit N. Lysberg BNL A3 LUNDAMO PARK, FELT B08 A500 MELHUS Areal BYA 374 m² BRA pr Bruksenhet Leilighet 184.6 m² Leilighet 274 m² Leilighet 384.6 m² Skisse

Denne tegning

70 9500 2400 800 A A 7 m² Gang 5.4 m² Gang 8 m² Sov 6 m² Bad 3.7 m² Bod/Tekn 37.2 m² Stue/Kjk 10.8 m² Sov 7 m² Gjest 7 m² Sov 10.1 m² Sov 6.7 m² Bad 3 m² Vask/Tekn/Bod 40.4 m² Stue/Kjk 10.1 m² Sov 7 m² Gang 7 m² Sov 7 m² Gjest 40.4 m² Stue/Kjk 6.7 m² Bad 3 m² Vask/Tekn/Bod 14 m² Terrasse 32.8 m² Terrasse 14 m² Terrasse 15x13L/F 10x21 15x13L/F 8x21F 8x21 L/F20x21 F 17x21 F 17x21 F 17x12L/F 8x21 L/F 17x13L/F 15x13L/F 15x8 F 17x13L/F 15x13L/F 15x13L/F 8x21F 8x21 L/F 20x21 F 17x21 F 17x21 F 17x12L/F 8x21 L/F 20x21 F 20x21 F 10x21 10x21 10x21 10x21 10x21 10x21 29900 7 ° ©
må ikke kopieres eller benyttes ved foretagender som rettighetshaver ikke medvirker i. © Vi forbeholder oss retten til å endre på utformin g av bygget dersom det avdekkes forhold som krever det under prosjektering en TILTAKSHAVER: BYGGEPLASS: KOMMUNE: G.nr/B.nr: MEDLEM: Tlf 74 27 53 60, 7800 Namsos, www.arkplan.no REV:DATO:REVISJON: SIGN: MÅLESTOKK: ARKSTØRRELSE: TEGN.NR: TEGN, INNHOLD: PROSJEKT: ARKITEKT: DATO: TEGN: REV: 1 : 100 Heimdal Sag AS 208/16,214,21 MOSLØKKJA PLAN 1. og 2. etg, Snitt 17.09.2019 Berit N. Lysberg BNL LUNDAMO PARK, FELT B08 A501 MELHUS 1 : 100 PLAN 1. ETG 1 : 100 Snitt A-A Areal BYA 374 m² BRA pr Bruksenhet Leilighet 184.6 m² Leilighet 274 m² Leilighet 384.6 m² Skisse

© Vi forbeholder oss retten til å endre på utformin g av bygget dersom det avdekkes forhold som krever det under prosjektering en PERSPEKTIV

A3 LUNDAMO PARK, FELT B08

Skisse

BNL

A505 MELHUS

Sag AS 17.09.2019 Berit N. Lysberg

TILTAKSHAVER: BYGGEPLASS: KOMMUNE: G.nr/B.nr: MEDLEM: Tlf 74 27 53 60, 7800 Namsos, www.arkplan.no REV:DATO:REVISJON: SIGN: MÅLESTOKK: ARKSTØRRELSE: TEGN.NR: TEGN, INNHOLD: PROSJEKT: ARKITEKT: DATO: TEGN: REV: Heimdal
© Denne tegning må ikke kopieres eller benyttes ved foretagender som rettighetshaver ikke medvirker i. 208/16,214,21 MOSLØKKJA
72 4.0 6.6 2.2 6.6 2.2 6.6 6 enheter: 4 stk 4 roms stk ca 84,6 kvm 2 stk 3 roms ca 74 kvm carport3eneboligermedunderbalkong 30.0 1.4 12.8 3.6 9.1 1.8 7.5 31 27 29 208/14 208/72 208/188 208/210 208/217 B05 B11 B08 B07 B09 Avfall B10 P02 Avfall 10 carport m. bod 46enheter:stk46kvm,2-3roms2stk42kvm,2-roms carport4eneboligermedunderbalkong 6carport m. bod 2.2 3.0 4.0 9.1 7.5 7.0 7.5 1.5 18.7 8.5 5.0 5.8 12.2 6.5 3.7 6.5 3.7 6.5 3.7 6.5 16.6 8.2 2.1 8.2 2.1 8.2 2.1 8.1 1.6 10.8 6.6 2.2 2.1 8.2 2.9 7.5 7.0 Tiltakshaver: Innhold: Prosjekt: Denne tegning må ikke kopieres eller benyttes ved foretagender som rettighetshaver ikke medvirker i. Dato: Revidert: Situasjonsplan Lundamo Park B08 og B09 23.06.2020 M=1:500 Abel Meyersgt. 22, postboks 172, 7801 Namsos. Tlf. 74 27 53 60 Heimdal Sag ProsjekterSign: BNL Sign:Målestokk:

Arealoversikt Lundamo Park; B08 - Leiligheter

Leilighetstype 1; leilighetsnummer: 101, 103, 201, 203

Leilighetstype 2; leilighetsnummer: 102 og 202

Ad **) Carport og sportsbod på 5,1 m2 kommer i tillegg.

73
Leilighetstype * 1 2 BRA totalt **: 84,6 74,0 Leilighet 84,6 74,0 Sportsbod 0,0 0,0 S-rom totalt: 3,0 3,7 Innvendig bod/teknisk/vask 3,0 3,7 Sportsbod 0,0 0,0 P-rom totalt: 81,6 70,3 Leilighet 81,6 70,3
Ad *)
74
©Norkart 2022 18.11.2022 Målestokk: Dato: Eiendom: 1:1000 Melhus kommune 208/244 UTM-32
Reguleringsplankart Adresse:
Kartet er
produsert fra kommunens beste digitale kartbaser for området og inneholder viktige opplysninger om eiendommen og området omkring. Presentasjonen av informasjon er i samsvar med nasjonal standard. Kartet kan inneholde feil, mangler eller avvik i forhold til kravene i oppgitt standard Kartet kan ikke benyttes til andre formål enn det formålet det er utlevert til uten samtykke fra kommunen jf. lov om åndsverk.
75 Tegnforklaring

Planen er datert: 12.11.17

Bestemmelsene er datert: 12.11.17

Bestemmelsene er revidert den: 08.09.20

Bestemmelsen er revidert etter høringsrunden den 01.10.20

REGULERINGSBESTEMMELSER

Til

Detaljplan Mosløkkja

OMFATTER GBB 208/16, 208/214 og 208/21

PLANID 2013014, Saksnummer 13/2789-53

§ 12-5, nr 1 BEBYGGELSE OG ANLEGG

• Boligbebyggelse (1110)

• Uteoppholdsareal (1600)

• Lekeplass (1610)

§12-5, nr 2 SAMFERDSEL OG ANLEGG

• Kjøreveg (2011)

• Fortau (2012)

• Annen veggrunn - tekniske anlegg (2018)

• Annen veggrunn – grøntareal (2019)

• Parkering (2082)

§ 12-5, nr 3 GRØNNSTRUKTUR

• Vegetasjonsskjerm (3060)

§ 12-6 HENSYNSSONER

• Frisikt

• Flomfare

76

Planens intensjon

Formålet med planen er å legge til rette for en tett bebyggelsesstruktur med kombinasjon av eneboliger/rekkehus og leiligheter i 2 etasjer, med åpne og grønne uteareal.

Følgende bestemmelser gjelder for reguleringsformålene:

1. BEBYGGELSE OG ANLEGG

1.1 Felles bestemmelser

Innenfor planområdet, i felt B1 – B13, skal det etableres en kombinasjon av eneboliger, kjedehus, rekkehus og lavblokker med tilhørende parkeringsanlegg.

1.1.1 Grad av utnytting

Bebygd areal BYA innenfor planområdet skal ha en samlet utnyttelsesgrad på minimum %-BYA=50%. Minimum antall boligenheter for planområdet er 100.

Det tillates ikke etablert nye boligenheter med større bruksareal enn BRA 200m2 inkl. biloppstillingsplasser.

1.1.2 Plassering av planlagt bebyggelse

Bebyggelsen skal plasseres innenfor de viste byggegrensene. Der det ikke er vist byggegrense, gjelder formålsgrense som byggegrense. Garasje-/carportanlegg og boder kan plasseres utenfor regulert byggegrense, inntil regulert formålsgrense, der dette er hensiktsmessig og gir bedre kvalitet for brukeren. Dette gjelder ikke fastsatt byggegrense mot veg. Kvalitetskrav kan være bedre frisikt mot veg, bredere parkeringsplasser og generelt bedre tilgjengelighet for bruker.

1.1.3 Høyde på planlagt bebyggelse

Bebyggelsens møne-/gesimshøyde skal ikke overstige de kotehøydene som er vist på plankartet.

1.1.4 Utforming av bebyggelsen

Bebyggelsen tillattes oppført i 2 etasjer med maks møne-/gesimshøyde som angitt på plankartet. Det tillates ikke oppføring av kjeller.

Bebyggelsen kan ha flate tak og tak med vinkel. Det tillates etablert takterrasse på deler av bebyggelsen. Det tillates oppført carport/garasje med maks høyde på 3,5 m over ferdig planert terreng. Plassering av carport/garasje må tilpasses slik at inn- og utkjøring ikke hindrer trafikk på internveien.

Garasjer tilknyttet den enkelte bolig kan ikke overstige BRA 50 m2.

Carport/garasje kan ha flatt tak, som kan benyttes som uteoppholdsareal. Rekkverk tillates da i høyde maksimum 1 m over regulert høyde.

Garasjer og boder skal tilpasses bolighusets form, takform, materialbruk og farge. Vegger i carporter uten brannkrav skal ha et lett og transparent uttrykk.

77

1.1.5 Privat uteoppholdsareal

Boligene skal ha et privat uterom, balkonger/terrasse på minimum 12m2. Krav til uteoppholdsarealet skal tilfredsstille kravene i Forskrift om tekniske krav til byggverk §8-4, Uteoppholdsareal.

1.1.6 Parkering

Det skal opparbeides minimum 1 parkeringsplass + 0,5 gjesteparkeringsplass pr. boenhet større enn BRA 60m2.

For boenheter mindre enn BRA 60m2, så skal det oppføres minimum 1 parkeringsplass pr boenhet. For eneboliger, kjedehus og rekkehus skal det opparbeides minimum 2 parkeringsplasser pr boenhet på egen eiendom. For leiligheter skal det opparbeides minimum 1 parkeringsplass på egen eiendom og øvrige parkeringsplasser på felles parkeringsområder i felt f_P1, f_P2 og f_P3.

For Felt B01 tillates at gjesteparkering opprettes på felles parkeringsareal f_P1, men dog maks 4 plasser kan avsettes til dette formålet.

1.1.7 Utforming av utearealer

Det skal etableres nødvendige privatrettslige rettigheter som sikrer mulighet til adkomst for å utføre utvendig vedlikehold av hver bolig.

1.1.8 Beplantning/vegetasjon

Hvis tomtene skal innhegnes, skal dette skje ved lav hekk eller buskplanting. Maks høyde 1m. Ingen tomt må beplantes med trær eller busker som kan være til ulempe for trafikksikkerheten.

1.1.9 Utomhusplan

Det skal utarbeides en utomhusplan som skal vise plassering av uteoppholdsareal, lekeareal, interne veier, parkering, garasjer/carport, container for avfallshåndtering, i henhold til krav i denne plan, denne skal godkjennes av Melhus kommune i forbindelse med byggesaken. Dette kan også gjøres etappevis.

1.2 Energianlegg

Det kan etableres nettstasjon innenfor planområdet. Plassering av nettstasjon opp mot omkringliggende bebyggelse skal følge nettleverandørs retningslinjer og krav til sikkerhetsavstander for brann og strålingsfare, samt sikres god adkomst fra intern kjøreveg. Uteområde rundt nettstasjonen tilpasses vegetasjonen i uteområdet, men må ikke være til hinder for adkomst og vedlikehold.

1.3 Uteoppholdsareal

Uterommet skal ha en utforming som gir mulighet både for opphold og sosialt samkvem, rekreasjon, lek og spill i de ulike årstidene. Opparbeidelse skal være i tråd med gjeldende (ved søknadstidspunkt) norm for uteoppholds- og lekeareal for Melhus kommune. Utomhusarealene skal utformes med omfang i samsvar med illustrasjonsplan datert 30.9.2013.

1.4 Lekeplass

78

Lekeareal er felles for alle eiendommene innenfor planområdet. Felles lekeareal skal opparbeides med sandlekeplass og etter prinsippene om universell utforming. Opparbeidelse skal være i tråd med gjeldende (ved søknadstidspunkt) norm for uteoppholds- og lekeareal for Melhus kommune.

Lundamo Skole sitt idrettsanlegg kan medregnes som nærlekeplass for større barn.

1.5 Grunnvarme

Det kan tilrettelegges for forsyning av vannbåren varme ved utbygging.

2. SAMFERDSEL OG ANLEGG

2.1 Avkjørsler

Det skal etableres to avkjørsler fra o_TR2 (Lundadalsvegen) inn til planområdet. Intern adkomstvei med redusert hastighet innenfor planområdet ivaretar sikker adkomst til boligenhetene.

2.2 Kjøreveg

Kjøreveger og fortau skal opparbeides som vist på plankartet.

TR1 – E6

TR1 er regulert til senterlinje med feltbredde 4,0 m (inkl. skulder).

TR2 – Lundadalsvegen, FV676

TR2 er regulert til senterlinje med feltbredde 2,75 m (inkl skulder).

TR3 – Adkomstvei

Intern adkomstvei utformes med maks 3,5m asfaltert bredde. Regulert bredde kjøreveg 4m. Møteplasser opprettes der veien skifter retning og ved parkeringsfeltene

2.3 Fortau

Det skal etableres fortau fra E6 og langs Lundadalsvegen innenfor planområdet.

Regulert bredde 3m med 0,75m buffersone mellom Lundadalsvegen og fortauet.

Fortauet heves fra Lundadalsvegen med kantstein for å hindre biltrafikk inn på fortauet.

2.4 Annen veggrunn – teknisk

2.4.1 Avfall

Innenfor planområdet skal det etableres områder for avfallsbeholdere iht Melhus kommunes forskrifter. Disse plasseres på annen veggrunn ved parkeringsfelt f_P1, f_P2 og f_P3. Det skal avsettes plass til 6 avfallsbeholdere med mulighet til utvidelse ved behov. Avfallsbeholdere skal tilrettelegges slik at avfallshåndtering skjer fra internvei.

79

Grøftene må være brede, slake og U-formet slik at de blant annet har stor kapasitet til å føre bort overflatevann. Regulert bredde 1,2m gir tilstrekkelig areal til snøopplag for en vei på 3,5m.

Grøftene bør tilstrebes å være tilsådde med lav vegetasjon som motvirker erosjon og hindrer inntrykk av forsøpling. Vegetasjonen må ikke være til hinder for sikt og tåle snøopplag på vinteren.

2.5 Annen veggrunn – grøntareal

Arealet på sørsiden av Lundadalsvegen reguleres til offentlig grøntareal.

2.6 Parkering

Det skal etableres felles bakkeparkering på parkeringsområde i felt f_P1, f_P2 og f_P3. Minst én parkeringsplass i hvert av de tre parkeringsfeltene skal være tilpasset bevegelseshemmede.

Det tillates bakkeparkering innenfor byggegrensen mot Lundadalsvegen.

Parkeringsområdene skal være felles for hele planområdet.

2.7 Vann/Avløp/Overvann

VA anlegg skal opparbeides av utbygger i h.h.t VA plan som skal godkjennes av Melhus kommune for det kan gis tiltalelse til tiltak innenfor planområde. Anlegget skal utformes i h.h.t godkjent plan og kommunens VA-norm.

Det skal lages en egen plan for intern overvannshåndtering i tråd med NVEs anbefaling i konklusjon i notat «Flomsikring, overvann og skred», NVE datert 26.7.2013. Planen skal vise plassering av regnbed på egnede plasser og tilhørende overvannsledninger og skal godkjennes av kommunen før det kan gis tillatelse til tiltak innenfor planområdet.

3. GRØNNSTRUKTUR

3.1 Støy / Vegetasjonsskjerm

Miljøverndepartementets retningslinjer for støy i arealplansaker, T-1442, skal følges for realisering av reguleringsplanen.

På uteoppholdsareal og utenfor vinduer til rom med støyfølsom bruksformål er grenseverdien på støynivå Lden 55 dB. I områder med støynivå på en fasade mellom 55 og 65 dBA skal boligene være gjennomgående.

Innvendig støynivå i boliger skal være lavere enn 30 dBA.

Støynivået innendørs bør tilfredsstille kravene i gjeldende byggteknisk forskrift / NS8175 klasse C. Der det gjøres tiltak på bolig skal støykravene innendørs være tilfredsstilt med de krav til ventilasjon/luftutskiftning som følger av nevnte byggteknisk forskrift.

Mellom felt B01, f_U3 og mot E6 og mellom felt B11, B12, f_P3 og mot Lundadalsvegen skal det etableres et vegetasjonsbelte på minst 4 meter.

80
2.4.2 Grøft / snøopplag

4. HENSYNSSONER

4.1

Flomfare

Byggverk, interne vegstruktur i planområdet og annen teknisk infrastruktur, skal plasseres, dimensjoneres og/eller sikres mot flom iht. notat «Flomsikring, overvann og skred», NVE datert 26.7.2013

5. VILKÅR FOR GJENNOMFØRING

5.1

Kulturminner

Dersom gjenstander, konstruksjoner eller andre funn oppdages i forbindelse med gravearbeid, skal arbeidet stanses omgående og kulturminnemyndighet underrettes, jmf. Lov om kulturminner, § 8 2. ledd.

5.2 Støy og Anleggstrafikk

Plan for beskyttelse av omgivelsene mot støy og andre ulemper i bygge- og anleggsfasen skal følge søknad om igangsetting. Planen skal redegjøre for trafikkavvikling, massetransport, driftstider, trafikksikkerhet for gående og syklende, renhold og støvdemping og støyforhold. Nødvendige beskyttelsestiltak skal være etablert før bygge- og anleggsarbeider kan igangsettes.

For å oppnå tilfredsstillende støyforhold i anleggsfasen skal støygrenser som angitt i Miljøverndepartementets Retningslinjer for behandling av støy i arealplanleggingen, T-1442, legges til grunn.

6. REKKEFØLGE KRAV

6.1 Uteoppholdsareal og Lek

Ved søknad om tiltak skal det innsendes utomhusplan for hvert enkelt byggetrinn. Planen skal vise at utomhusareal og lekearealer oppfyller fastsatte krav til: størrelse, kvalitet og prinsipper for universell utforming.

6.2 Samferdsel og anlegg

Fortau langs Lundadalsvegen skal være ferdigstilt før det kan gis ferdigattest til nye boligenheter innenfor planområdet. Før fortau etableres må det etableres privatrettslig avtale mellom utbygger og Statens Vegvesen.

Utbyggingen av VVA anlegg samt grøntstruktur og etablering av regnbed (jfr pkt 2.7) kan skje etappevis etter hvert som delområdene bygges ut. Etappevis utbygging skal godkjennes av Melhus kommune.

Ved søknad om tiltak skal det innsendes utomhusplan for hvert enkelt byggetrinn. Planen skal vise løsning for interne adkomstveier, parkering og garasjer/carport.

6.4 Vegetasjonsskjerm

Vegetasjonsskjerm ved felt B01 og f_U3 skal være opparbeidet før felt B01 og B02 kan tas i bruk.

Vegetasjonsskjerm ved felt B11, B12 og f_P3 skal være opparbeidet før felt B11 og B12 kan tas i bruk.

81

7. OFFENTLIG ELLER FELLESAREAL

Følgende arealer skal være felles for boligområdene B01 – B13:

- Uteoppholdsareal: f_U01 - f_U06

- Lekeareal: f_Lek

- Kjøreveg: f_TR3

- Annen veigrunn Teknisk

Følgende arealer skal være offentlige:

- Kjøreveg: o_TR1 og o_TR2

- Fortau: o_Fortau

- Annen veigrunn Grøntareal

82

Budsjett første driftsår

Sameiet Lundamo Park B05, B07 og B08

Ovennevnte budsjettposter er basert på mottatt informasjon på utarbeidelsestidspunktet.

Det tas forbehold om endringer i behov, innhenting av priser på de ulike tjenestene, prisjusteringer og fremtidige endringer av opplyste arealstørrelser/eierbrøk. Budsjettet revideres før stiftelse.

Budsjettet baserer seg på årskostnader.

Kommunale avgifter belastes den enkelte seksjon direkte fra leverandør.

Det er pliktig medlemsskap i områdets velforening. Velforeningskontingent er inkludert i felleskostnader.

Det tas forbehold om endringer i eierbrøk. Den endelige eierbrøken fastsettes ved tinglysing av seksjoneringsvedtaket.

Det innbetales kr. 10.000,- fra hver seksjon som startskapital til sameiet.

BUDSJETTET GJØRES GJELDENDE FRA OVERTAKELSE OG UT ÅRET

83
Inntekter Budsjett 1. driftsår Oppstartsinntekter 220 000 Inntekter-Fellesutgifter 443 320 Inntekter kommunikasjonspakke 150 480 Sum inntekter 813 800 FordelingsKostnader nøkkel Styrehonorar 20 000Enhet Arbeidsgiveravgift 2 820Enhet Forvaltningshonorar 52 500Enhet Andre honorarer 5 000Enhet Velforeningskontingent 99 000Enhet Adm.kostnader og porto 2 000Enhet Fellesmøter, møteutgifter 2 000Enhet Heis 12 000Annen Mobilt vakthold, nøkkeloppbevaring 2 000Enhet Vaktmester/ driftstilsyn 10 000Eierbrøk Vedlikehold grøntarealer inkl gartner 40 000Eierbrøk Renhold heishus 12 000Annen Diverse drift, utskiftinger, utstyr 50 000Eierbrøk Filterskifte 22 000Enhet Snørydding/ strøing 22 000Eierbrøk Strøm 6 000Eierbrøk Kommunikasjonspakke 150 480Enhet Forsikringspremier 40 000Eierbrøk Avsetning til framtidig vedlikehold 40 000Eierbrøk Bank- og kortgebyr 4 000Enhet Oppstartskostnader 50 000Enhet Sum kostnader 643 800 Resultat 170 000 Antall enheter 22 Sum eierbrøk 1 500

FORDELING MÅNEDLIGE FELLESKOSTNADER

Sameiet Lundamo Park B05, B07 og B08

84
Seksjon Prosjekt nummer Eierbrøk Enhetsfordelte driftskostnader Eierbrøkfordelte driftskostnader Annen fordeling driftskostnader heis Sum driftskostnader Abonnement kabel tv og internett SUM FELLESKOSTNADER 1101.0585 800 kr 978 kr 233 kr 2 011 kr 570 kr 2 581 kr 2102.0560 800 kr 690 kr 165 kr 1 655 kr 570 kr 2 225 kr 3103.0574 800 kr 855 kr 204 kr 1 860 kr 570 kr 2 430 kr 4104.0560 800 kr 690 kr 165 kr 1 655 kr 570 kr 2 225 kr 5105.0585 800 kr 978 kr 233 kr 2 011 kr 570 kr 2 581 kr 6201.0585 800 kr 978 kr 233 kr 2 011 kr 570 kr 2 581 kr 7202.0560 800 kr 690 kr 165 kr 1 655 kr 570 kr 2 225 kr 8203.0574 800 kr 855 kr 204 kr 1 860 kr 570 kr 2 430 kr 9204.0560 800 kr 690 kr 165 kr 1 655 kr 570 kr 2 225 kr 10205.0585 800 kr 978 kr 233 kr 2 011 kr 570 kr 2 581 kr 11101.0746 800 kr 532 kr - kr 1 332 kr 570 kr 1 902 kr 12102.0742 800 kr 485 kr - kr 1 286 kr 570 kr 1 856 kr 13103.0746 800 kr 532 kr - kr 1 332 kr 570 kr 1 902 kr 14201.0746 800 kr 532 kr - kr 1 332 kr 570 kr 1 902 kr 15202.0742 800 kr 485 kr - kr 1 286 kr 570 kr 1 856 kr 16203.0746 800 kr 532 kr - kr 1 332 kr 570 kr 1 902 kr 17101.0890 800 kr 1 037 kr - kr 1 837 kr 570 kr 2 407 kr 18102.0874 800 kr 855 kr - kr 1 656 kr 570 kr 2 226 kr 19103.0890 800 kr 1 037 kr - kr 1 837 kr 570 kr 2 407 kr 20201.0890 800 kr 1 037 kr - kr 1 837 kr 570 kr 2 407 kr 21202.0874 800 kr 855 kr - kr 1 656 kr 570 kr 2 226 kr 22203.0890 800 kr 1 037 kr - kr 1 837 kr 570 kr 2 407 kr

VEDTEKTER FOR SAMEIET LUNDAMO PARK B05, B07 OG B08

Vedtatt i medhold av lov om eierseksjoner 16. juni 2017 nr. 65

Dette er et foreløpig utkast til vedtekter, utarbeidet i forbindelse med salgsstart. Disse er kun ment å gi et bilde av de rettigheter og forpliktelser som følger av sameieforholdet, og det tas forbehold om senere endringer, bl.a. i forbindelse med innsendelse av seksjoneringsbegjæring. Alle tillatelser til deling osv foreligger ikke, og det tas spesielt forbehold om at det kan bli endringer som følge av at planlagt orga nisering av eiendommen ikke godkjennes av kommunen. Endelige vedtekter vedtas på konstituerende årsmøte i sameiet.

INNLEDENDE BESTEMMELSER

§ 1 NAVN OG FORMÅL

Sameiets navn er: Sameiet Lundamo Park B05, B07 og B08.

Sameiet omfatter eiendommen: gnr. xxx, bnr. xxx i Melhus kommune. Eiendommens adresse er Mosløkkja XX, 7232 Lundamo. (Matrikkelnummer og adresse påføres av forretningsfører når tildelt, uten behandling i årsmøte)

Sameiet er iht. seksjoneringsvedtak oppdelt i 22 seksjoner. Seksjonene er seksjonert til boligformål.

Fastsettelse av seksjonens sameiebrøk bygger på bruksenhetens bruksareal fra tegning. Bruksareal fra tegning kan avvike og kan ikke legges til grunn for enhetens faktiske areal. Tomten og deler av bebyggelsen som ikke omfattes av eierseksjoner er fellesareal.

Sameiet har til formål å ivareta seksjonseiernes felles interesser som sameiere. Disse vedtektene regulerer forholdet mellom de enkelte seksjonseiere og foreskriver drift og administrasjon av eiendommen.

Eier av hver seksjon har eksklusiv bruksrett til sin seksjon – hoveddel og tilleggsdeler - i henhold til tinglyst seksjoneringsvedtak.

85

§ 2

Hver seksjonseier plikter å overholde bestemmelsene som følger av seksjoneringsvedtaket, lov om eierseksjoner, disse vedtekter, generelle ordensregler fastsatt av årsmøtet, samt de til enhver tid gjeldende offentlige bestemmelser.

Årsmøtet setter opp ordensregler som blir å respektere av samtlige.

SÆRLIGE BESTEMMELSER

Balkong/markterrasse med tilhørende utvendig bod er tinglyst som tilleggsareal til hver seksjon.

Hver seksjon har en parkeringsplass hver i carport. Denne tinglyses som tilleggsareal til seksjonen. I tillegg har leilighet B05-105 enerett til bruk av 1 parkeringsplass på sameiets tomt.

Det er tilrettelagt for 1 HC plass på sameiets tomt Eier av leilighet B05-105 har enerett til bruk av parkeringsplassen tilrettelagt for HC.

Dersom det hos en eier av boligseksjon eller et medlem av dennes husstand kan dokumenteres behov for parkeringsplass tilpasset HC, har denne seksjonseieren krav på å få tilgang til HC plassen mot et midlertidig bytte av parkeringsplass.

Eier av leilighet B05-105 må kun foreta bytte parkeringsplass tilrettelagt for HC dersom ingen i husstanden har behov for parkeringsplass tilrettelagt for HC og en annen beboer i sameiet kan dokumentere slikt behov. Det er et vilkår at vedkommende med HC behov som krever bytte av parkeringsplass kan dokumentere at han eller hun på grunn av sykdom/funksjonsreduksjon har tillatelse fra kommunen til «parkering for forflytningshemmede» eller annen tilfredsstillende dokumentasjon. Byttet gjelder så lenge beboeren har et dokumentert behov. Plassen byttes tilbake ved salg av seksjonen. I så tilfelle vil eier av leilighet B05-105 ha rett til bruk av den parkeringsplass i carport som beboer med behov for parkeringsplass tilrettelagt for HC i utgangspunktet disponerer. Eventuelle bytter av parkeringsplass iht. dette avsnittet ansees som et midlertidig bytte og vil ikke utløse reseksjonering av eiendommen. Det er sameiets styre som behandler søknader om HC plass og midlertidige bytteordninger etter overtakelsen og har ansvar for å administrere og dokumentere dette på tilfredsstillende måte.

Det tillates at seksjonseiere setter opp strømuttak eller ladepunkt for El-bil/ladbar hybridbil ved seksjonseiers biloppstillingsplass, eller andre steder som styret anviser, etter skriftlig søknad til og godkjenning fra styret. Seksjonseier som ønsker å gjøre bruk av ladepunkt for Elbil/ladbar hybridbil må selv bekoste eget godkjent teknisk anlegg, kabling, uttak, tilknytning til egen strømmåler for forbruk slik at seksjonseieren betaler for forbruket og vedlikehold av det tekniske anlegget. Autorisert installatør skal benyttes, arbeidene skal gjøres forskriftsmessig og styret skal ha kopi av ferdigattest før ladepunktet tas i bruk. Ved overtredelse av disse kravene kan seksjonseier bli holdt ansvarlig for eventuelle kostnader. Styret kan beslutte og er berettiget til å kreve/gjøre endringer på eksisterende anlegg dersom dette er nødvendig av hensyn til sikkerhet, herunder kreve at seksjonseiere benytter felles infrastruktur for lading av biler, dersom slik infrastruktur blir montert.

Dersom en seksjonseier har fått samtykke til å anlegge ladepunkt på en HC-plass uten at seksjonseieren har behov for HC-plass, og denne seksjonseieren deretter må foreta et bytte av parkeringsplass med en seksjonseier med dokumentert behov for HC-plass skal den sistnevnte seksjonseieren dekke kostnadene tilknyttet anleggelse av nytt ladepunkt på den parkeringsplassen som førstnevnte seksjonseier bytter til. Dersom sistnevnte seksjonseier

ikke har behov for eget ladepunkt må førstnevnte seksjonseier selv bekoste dette på den p-

86 2

plass seksjonseieren bytter til. Bestemmelsen forutsetter at det er tilrettelagt for ladepunkt på den p-plass seksjonseieren må bytte til. Dersom det ikke er tilrettelagt for ladepunkt på den p-plass seksjonseieren må bytte til må sameiet dekke kostnadene for dette. Seksjonseier må i begge tilfeller selv dekke kostnad for ladepunktet med tilkobling.

Gjesteparkering skjer på velforeningens tomt og iht. velforeningens bestemmelser.

Det er pliktig medlemskap i områdets velforening.

Det skal ikke kreves felleskostnader for B08 før denne er ferdigstilt og overført til kjøpere. Sameiet vil ikke pådra seg noen kostnader ved drift og vedlikehold før bygget er ferdigstilt og overført til kjøpere.

§ 3 ELEKTRONISK KOMMUNIKASJON

All informasjon til seksjonseier vil bli sendt ut elektronisk per e-post. Den enkelte seksjonseier plikter til enhver tid å sørge for at oppdatert kontaktinformasjon er registrert hos styret og forretningsfører.

Den enkelte seksjonseier kan søke styret om å bli unntatt bestemmelsen i første ledd, og dermed motta all kommunikasjon per ordinær post. Godkjenning kan ikke nektes uten saklig grunn.

§

4 EIERFORHOLD

Både enkeltpersoner og juridiske personer kan eie seksjoner i sameiet. Med en seksjonseier menes i disse vedtekter den som står som eier, eller de som i fellesskap står som eiere av en bestemt seksjon.

Den enkelte seksjonseier står fritt til å selge til den han eller hun måtte ønske. Ingen seksjonseiere eller andre har noen form for forkjøpsrett til seksjoner i sameiet.

Ingen kan erverve mer enn to seksjoner i sameiet.

§

5 HEFTELSESFORM

For felles ansvar og forpliktelser hefter den enkelte seksjonseier i forhold til sin sameiebrøk.

§

6 RÅDERETT

Den enkelte seksjonseier har full rettslig råderett over sin seksjon. Seksjonen kan ikke skilles fra deltakerinteressen i sameiet.

Korttidsutleie av hele boligseksjonen i mer enn 90 døgn årlig er ikke tillatt. Med korttidsutleie menes utleie i inntil 30 døgn sammenhengende.

Seksjonen kan fritt utleies for langtidsutleie. Forpliktelser og rettigheter etter disse vedtekter kan dog ikke skilles fra eierandelen, og er den enkelte seksjonseiers fulle ansvar. Salg og utleie skal varsles styret slik at man har kontroll på hvem som eier/bor i sameiet til enhver tid, dette av sikkerhetsmessige hensyn.

87 3

Den enkelte seksjon samt fellesarealene kan bare nyttes i samsvar med formålet, og må ikke nyttes slik at det er til unødig eller urimelig ulempe for de øvrige seksjonene. Fellesanlegg må ikke nyttes slik at andre brukere unødig eller urimelig hindres i den bruk av anleggene som er avtalt eller forutsatt mellom seksjonseierne. Ved vurderingen av hva som anses som unødig eller urimelig, skal det også tas hensyn til opprinnelig forutsatt bruk av eiendommen og at deler av fellesarealene utelukkende betjener boligarealene mens andre deler utelukkende betjener næringsarealet.

Virksomheten i næringsseksjonene skal drives etter de til enhver tid gjeldende offentlige bestemmelser, herunder bestemmelser om lukketid.

Næringsleietakere skal ha vederlagsfri rett til sedvanlig skilting på fasader med mer. Skilting skal ikke utføres på en måte som hindrer lys og utsikt for boligene.

Næringsseksjonene har rett til å bruke teknisk rom i kjeller for teknisk anlegg tilknyttet næringsvirksomheten.

Boligseksjonene skal kun benyttes til beboelse, og kan ikke – uten sameiestyrets skriftlige godkjennelse brukes til ervervs – eller yrkesmessig virksomhet eller på annen måte som medfører ulempe for de øvrige seksjonseierne/boligenheten. Eventuell næringsdrift tillates bare i den utstrekning at vedkommende leilighet fortsatt i all hovedsak benyttes til boligformål.

§ 7 OM ÅRSMØTET OG INNKALLING

Årsmøtet har den øverste myndigheten i sameiet. Ordinært årsmøte skal holdes hvert år innen utgangen av juni. Ekstraordinært årsmøte skal holdes når styret finner det nødvendig, eller når minst to seksjonseiere som til sammen har minst ti prosent av stemmene, krever det og samtidig oppgir hvilke saker de ønsker behandlet.

Styret innkaller årsmøtet med et skriftlig varsel som skal være på minst åtte og høyst tjue dager. Styret kan om nødvendig innkalle til ekstraordinært årsmøte med kortere varsel, men varselet kan aldri være kortere enn tre dager.

Innkallingen skal tydelig angi de sakene årsmøtet skal behandle.

Skal årsmøtet kunne behandle et forslag som etter loven eller vedtektene må vedtas med minst to tredjedels flertall av de avgitte stemmene, må hovedinnholdet være angitt i innkallingen.

Styret skal på forhånd varsle seksjonseierne om dato for møtet og om siste frist for å innlevere saker som ønskes behandlet. Saker som en seksjonseier ønsker behandlet i det ordinære årsmøtet, skal nevnes i innkallingen når styret har mottatt krav om det før fristen.

Senest en uke før ordinært årsmøte skal regnskap sendes ut til alle seksjonseiere med kjent adresse. Dokumentet skal også være tilgjengelig i årsmøtet.

Blir det ikke innkalt til årsmøte som skal holdes etter loven, vedtektene eller tidligere beslutning på årsmøte, skal tingretten snarest innkalle til årsmøte når det kreves av en seksjonseier, et styremedlem eller forretningsføreren. Kostnadene dekkes som felleskostnader.

88 4

§ 8 SAKER SOM SKAL BEHANDLES PÅ ÅRSMØTE

Årsmøtet skal behandle de sakene som er angitt i innkallingen til møtet.

Uten hensyn til om sakene er nevnt i innkallingen, skal det ordinære årsmøtet

a) Årsberetning fra styret

b) Regnskap for foregående kalenderår i revidert stand

c) Valg av styremedlemmer

d) Andre saker som er nevnt i innkallingen

Sameiets budsjett skal forelegges årsmøtet til orientering, dersom det ikke tidligere er behandlet i ekstraordinært årsmøte.

Bortsett fra saker som skal behandles av ordinært årsmøte kan årsmøtet bare ta beslutning om saker som er angitt i innkallingen til møtet. Hvis alle seksjonseierne er til stede på årsmøtet og stemmer for det, kan årsmøtet også ta beslutning i saker som ikke står i innkallingen. At saken ikke er nevnt i innkallingen, er ikke til hinder for at styret beslutter å innkalle til nytt årsmøte for å avgjøre forslag som er fremsatt i møtet.

§ 9 STEMMERETTSREGLER

I årsmøtet regnes stemmene etter antall boligseksjoner, slik at hver boligseksjon har én stemme.

Ingen kan selv eller ved fullmektig eller som fullmektig delta i avstemning om avtale med seg selv eller nærstående eller som sitt eget eller nærståendes ansvar.

§ 10 MØTELEDELSE OG FLERTALLSKRAV

Styrelederen leder årsmøtet med mindre årsmøtet velger en annen møteleder. Møtelederen behøver ikke å være seksjonseier.

Med de unntak som følger av lov eller vedtektene avgjøres alle saker med vanlig flertall av de avgitte stemmer.

Det kreves et flertall på minst to tredjedeler av de avgitte stemmene på årsmøtet for å ta beslutning om:

• ombygging, påbygging eller andre endringer av bebyggelsen eller tomten som etter forholdene i sameiet går ut over vanlig forvaltning eller vedlikehold

• omgjøring av fellesarealer til nye bruksenheter eller utvidelse av eksisterende bruksenheter

• salg, kjøp, utleie eller leie av fast eiendom, inkludert seksjoner i sameiet som tilhører eller skal tilhøre seksjonseierne i fellesskap, eller andre rettslige disposisjoner over fast eiendom som går ut over vanlig forvaltning

• samtykke til at formålet for én eller flere bruksenheter endres fra boligformål til annet formål eller omvendt

Tiltak som har sammenheng med seksjonseiernes bo- eller bruksinteresser, og som går ut over vanlig forvaltning, og som fører med seg økonomisk ansvar eller utlegg for seksjonseierne i fellesskap på mindre enn fem prosent av de årlige felleskostnadene, besluttes med vanlig flertall av de avgitte stemmene på årsmøtet. Hvis tiltaket fører med seg

89 5

økonomisk ansvar eller utlegg for seksjonseierne i fellesskap på mer enn fem prosent av de årlige felleskostnadene, kreves det et flertall på minst to tredjedeler av de avgitte stemmene på årsmøtet.

Hvis tiltak som har sammenheng med seksjonseiernes bo- eller bruksinteresser fører med seg et samlet økonomisk ansvar eller utlegg for enkelte seksjonseiere på mer enn halvparten av folketrygdens grunnbeløp på det tidspunktet tiltaket besluttes, kan tiltaket bare gjennomføres hvis disse seksjonseierne uttrykkelig sier seg enige.

Alle seksjonseiere må, enten på årsmøtet eller på et annet tidspunkt, uttrykkelig si seg enige hvis sameiet skal kunne ta beslutning om:

• vedtak om salg eller bortfeste av hele eller vesentlige deler av eiendommen

• oppløsning av sameiet

• tiltak som innebærer vesentlige endringer av sameiets karakter og tiltak som går ut over seksjonseiernes bo- eller bruksinteresser, uavhengig av størrelsen på kostnaden som tiltaket medfører, og uavhengig av hvor stort økonomisk ansvar eller utlegg tiltaket medfører for de enkelte seksjonseierne

§ 11 GJENNOMFØRING AV ÅRSMØTET

Alle seksjonseierne har rett til å delta på årsmøtet med forslags-, tale-, og stemmerett.

Ektefelle, samboer eller et annet medlem av husstanden til eieren av boligseksjoner, styremedlemmer, forretningsfører, revisor og leier av boligseksjon har rett til å være til stede og til å uttale seg i årsmøtet.

En seksjonseier kan møte ved fullmektig. Fullmakten kan når som helst tilbakekalles. Seksjonseieren har rett til å ta med en rådgiver til årsmøtet. Rådgiveren har bare rett til å uttale seg dersom et flertall på årsmøtet tillater det.

Møtelederen har ansvar for at det føres protokoll over alle saker som behandles, og alle beslutninger som tas på årsmøtet. Møtelederen og minst én seksjonseier som utpekes av årsmøtet blant dem som er til stede, skal underskrive protokollen.

§ 12 STYRET

Sameiet skal ha et styre med 4 - 6 medlemmer. Styret skal bestå av en leder og inntil fem andre medlemmer. Det kan i tillegg velges to varamedlemmer til styret. Næringsseksjonene har rett, men ikke plikt til å representeres med minst ett styremedlem i sameiets styre.

Årsmøtet skal velge styret med vanlig flertall av de avgitte stemmene. Styrelederen skal velges særskilt.

Styreleder og styremedlemmer velges for to år. Varamedlemmer velges for ett år. Ved første styrevalg velges to styremedlemmer for ett år, dette for å sikre kontinuitet i styret. Kun fysiske personer kan være styremedlemmer.

Når særlige forhold foreligger, har et styremedlem rett til å fratre før tjenestetiden er ute. Styret skal ha et rimelig forhåndsvarsel om fratredelsen. Årsmøtet kan med vanlig flertall beslutte at et medlem av styret skal fratre.

90 6

§ 13 STYREARBEIDET

Styret skal sørge for vedlikehold og drift av eiendommen og ellers sørge for forvaltningen av sameiets anliggender i samsvar med lov, vedtekter og beslutninger på årsmøtet.

Styret skal ta alle beslutninger som ikke i loven eller vedtektene er lagt til andre organer. Beslutninger som kan tas med et vanlig flertall på årsmøtet, kan også tas av styret om ikke annet følger av lov, vedtekter eller årsmøtets beslutning i det enkelte tilfelle.

Styret kan ikke ta beslutninger eller handle på en måte som er egnet til å gi noen seksjonseiere eller utenforstående en urimelig fordel på andre seksjonseieres bekostning.

Årsmøtet kan trekke opp nærmere retningslinjer for styrets arbeid. Styreleder og ett styremedlem i fellesskap forplikter sameiet og tegner sameiets navn. Styret kan gi prokura.

§ 14 OM STYREMØTET

Styrelederen skal sørge for at styret møtes så ofte som det trengs. Et styremedlem eller forretningsføreren kan kreve at styret sammenkalles.

Styremøtet skal ledes av styrelederen. Er ikke styrelederen til stede, og det ikke er valgt noen nestleder, skal styret velge en møteleder.

Styret er beslutningsdyktig når mer enn halvparten av alle styremedlemmene er til stede. Beslutninger kan treffes med mer enn halvparten av de avgitte stemmene. Står stemmene likt, gjør møtelederens stemme utslaget. De som stemmer for en beslutning, må likevel utgjøre mer enn en tredjedel av alle styremedlemmene.

Et styremedlem kan ikke delta i behandlingen eller avgjørelsen av noe spørsmål som medlemmet selv eller dennes nærstående har en fremtredende personlig eller økonomisk særinteresse i.

Styret skal føre protokoll fra styremøtene. Alle de fremmøtte styremedlemmene skal undertegne protokollen.

§ 15 HABILITETSREGLER FOR ÅRSMØTE OG STYRE

Ingen kan selv eller ved fullmektig eller som fullmektig delta i avstemning om avtale med seg selv eller nærstående eller om sitt eget eller nærståendes ansvar. Det samme gjelder for avstemning om pålegg om salg eller krav om fravikelse etter esl. §§ 38 og 39. Styremedlem eller forretningsfører må ikke delta i behandlingen eller avgjørelsen av noen spørsmål som vedkommende selv eller nærstående har en fremtredende personlig eller økonomisk særinteresse i.

§ 16 REGISTRERING AV SEKSJONSEIERE

Erverver og leier av seksjon må meldes til styret og forretningsfører for registrering.

91 7

§ 17

REVISJON OG REGNSKAP

Sameiets revisor velges av årsmøtet og tjenestegjør inntil ny revisor velges. Revisor skal være statsautorisert eller registrert.

Styret skal sørge for ordentlig og tilstrekkelig regnskapsførsel.

§ 18

FORRETNINGSFØRER

Årsmøtet kan med vanlig flertall vedta at sameiet skal ha en forretningsfører.

Det hører inn under styret å ansette forretningsfører og andre funksjonærer, gi instruks for dem, fastsette deres lønn, føre tilsyn med at de oppfyller sine plikter samt si dem opp eller gi dem avskjed.

Ansettelsen kan bare skje på oppsigelse med en oppsigelsesfrist som ikke må overstige seks måneder.

Med 2/3 flertall kan årsmøtet samtykke i at avtale om forretningsførsel gjøres uoppsigelig fra sameiets side for et lengre tidsrom, men ikke for mer enn fem år. Forretningsfører har anledning til å innkreve gebyr for utgivelse av informasjon/registrering av eierskifte i forbindelse med salg.

§ 19 FORSIKRING

Eiendommen skal til enhver tid holdes betryggende forsikret i godkjent selskap. Styret er ansvarlig for at forsikring tegnes og at forsikringspremie betales.

Påkostninger på den enkelte bruksenhet som ikke omfattes av sameiets fellesforsikring, må den enkelte seksjonseier selv forsikre på betryggende måte. Innboforsikring må tegnes av den enkelte seksjonseier.

Ved skade på bruksenhet som dekkes av sameiets forsikring, skal seksjonseier betale egenandelen. Ved utvendig skade, eller ved skade på bruksenhet som skyldes ytre forhold, eller ved skade for øvrig på sameiets eiendom, skal sameiet dekke egenandelen.

Om en seksjonseier påfører skade på fellesarealer og/eller andre bruksenheter, kan styret pålegge denne eieren å betale forsikringens egenandel helt eller delvis. Seksjonseiers ansvar inkluderer leietaker og/eller besøkende.

§ 20 VEDLIKEHOLD

Seksjonseieren skal vedlikeholde bruksenheten slik at skader på fellesarealene og andre bruksenheter forebygges, og slik at de øvrige seksjonseierne slipper ulemper. Vedlikeholdsplikten omfatter også eventuelle tilleggsdeler til bruksenheten.

Seksjonseierens vedlikeholdsplikt omfatter slikt som

a) inventar

b) utstyr, som vannklosett, varmtvannsbereder, badekar og vasker

c) apparater, for eksempel brannslukningsapparat

d) skap, benker, innvendige dører med karmer

e) listverk, skillevegger, tapet

92 8

f) gulvbelegg, varmekabler, membran og sluk

g) vegg-, gulv- og himlingsplater

h) rør, ledninger, sikringsskap fra og med første hovedsikring eller inntakssikring

i) vinduer og ytterdører

j) balkong og terrasse ol. som inngår i seksjonens hoveddel

Seksjonseieren skal vedlikeholde våtrom slik at lekkasjer unngås.

Seksjonseieren skal rense sluk og holde avløpsrør åpne frem til fellesledningen. Dette gjelder også sluk på balkong eller lignende som ligger til bruksenheten.

Seksjonseieren skal holde seksjonen fri for insekter og skadedyr. Dersom insekter eller skadedyr oppdages, eller spor etter at slike har vært tilstede, plikter seksjonseieren å varsle styret umiddelbart.

Vedlikeholdsplikten omfatter også nødvendig reparasjon og utskifting av det som er nevnt i annet, tredje og fjerde ledd, men ikke fasademaling, utskifting av sluk, vinduer, ytterdører og balkonger/terrasser ol.

Vedlikeholdsplikten omfatter ikke reparasjon eller utskifting av tak, bjelkelag, bærende veggkonstruksjoner og rør eller ledninger som er bygget inn i bærende konstruksjoner.

Vedlikeholdsplikten omfatter også utbedring av tilfeldige skader, for eksempel skader som er forårsaket av uvær, innbrudd eller hærverk.

Etter et eierskifte har den nye seksjonseieren plikt til å utføre vedlikehold, inkludert reparasjoner og utskifting, etter denne paragrafen. Denne plikten gjelder selv om vedlikeholdet skulle ha vært utført av den tidligere seksjonseieren.

Den enkelte seksjonseier har plikt til å varsle styret skriftlig dersom det avdekkes behov for større vedlikehold eller utbedring av bygningsmassen.

Det påhviler seksjonseierne rett og plikt til bruk og vedlikehold av fellesareal, kjøre- og gangveier, lekeplasser, veibelysning samt de vann- og avløpsledninger som ikke er offentlige.

Sameiet skal holde utvendige og innvendige fellesarealer, inkludert bygningen og felles installasjoner, forsvarlig ved like. Vedlikeholdet skal utføres slik at skader på fellesarealene og de enkelte bruksenhetene forebygges, og slik at seksjonseierne slipper ulemper. Vedlikeholdsplikten omfatter alt som ikke faller inn under den enkelte seksjonseierens vedlikeholdsplikt. Vedlikeholdsplikten omfatter også reparasjon og utskifting når det er nødvendig, og utbedring av tilfeldige skader.

Sameiets vedlikeholdsplikt omfatter også felles installasjoner som går gjennom bruksenheter, slik som rør, ledninger og kanaler. Sameiet har rett til å føre nye slike installasjoner gjennom bruksenhetene hvis det ikke skaper vesentlig ulempe for den aktuelle seksjonseieren. Seksjonseieren skal gi sameiet adgang til bruksenheten for å vedlikeholde, installere og kontrollere installasjoner som nevnt i første og annet punktum. Kontroll og arbeid i bruksenhetene skal varsles i rimelig tid og gjennomføres slik at det ikke skaper unødvendig ulempe for seksjonseieren eller andre brukere.

Spesielt brann- eller eksplosjonsfarlige, etsende eller andre farlige stoffer tillates ikke oppbevart verken i leiligheten, boder eller andre fellesrom, eller utendørs på eiendommen,

93 9

§ 21

med unntak av gassbeholder for gassgrill som tillates oppbevart på balkong eller forsvarlig i kjellerbod.

BYGNINGSMESSIGE ARBEIDER

Utvendige arrangement på bygningen er ikke tillatt uten styrets og bygningsmyndighetenes godkjenning. Det påhviler den enkelte seksjonseier å vedlikeholde alle egne, utvendige arrangementer også av hensyn til eiendommens utseende.

Utskifting av vinduer og utvendige dører, oppsetting av markiser, endring av fasadekledning, endring av utvendige farger o.l. skal skje etter en samlet plan for bygningene etter vedtak i årsmøtet.

Ved vesentlige bygningsmessige endringer/arbeider innen den enkelte seksjon, skal styret skriftlig orienteres på forhånd. Styret har rett til å kreve dokumentasjon fra seksjonseier på at arbeidene ikke vil medføre bygningsmessig skade/fare for bygningsmessig skade på eiendommen. Styret kan i mangel av slik dokumentasjon stanse bygningsarbeidene.

§ 22

FELLESKOSTNADER

Kostnader med eiendommen som ikke knytter seg til den enkelte bruksenhet, er felleskostnader. Felleskostnader skal fordeles mellom seksjonseierne etter sameiebrøken. Dersom særlige grunner taler for det, kan kostnadene fordeles etter nytten for den enkelte bruksenhet eller etter forbruk.

Kostnader skal skilles mellom bolig- og næringsseksjoner slik at kostnader som knyttes direkte til næringsseksjoner skal bæres av disse og kostnader som knyttes direkte til boligseksjoner bæres av disse.

På grunnlag av årsbudsjett utarbeidet og vedtatt av styret, skal det betales et månedlig forskuddsbeløp til dekning av disse kostnader.

Ekstraordinære kostnader som påløper på grunnlag av gyldige vedtak i årsmøtet, skal i den utstrekning de ikke dekkes over det ordinære budsjettet, utlignes etter samme fordeling som de ordinære månedsbeløp som nevnt ovenfor. Unnlatelse av å betale de utlignede felleskostnader etter påkrav anses som vesentlig mislighold.

De andre seksjonseierne har lovbestemt panterett i seksjonen for krav mot seksjonseieren som følger av sameieforholdet. Pantekravet kan ikke overstige et beløp som for hver bruksenhet svarer til to ganger folketrygdens grunnbeløp på det tidspunkt da tvangsdekning besluttes gjennomført.

Panteretten faller bort dersom det ikke senest to år etter at pantekravet skulle ha vært betalt, kommer inn begjæring til namsmyndigheten om tvangsdekning, eller dersom dekningen ikke gjennomføres uten unødig opphold.

§ 23 AVSETNING TIL VEDLIKEHOLD

Årsmøtet vedtar avsetning til dekning av fremtidige vedlikeholdskostnader, påkostninger eller andre fellestiltak på eiendommen. De beløp seksjonseierne skal innbetale innkreves i den månedlige betalingen til dekning av felleskostnadene.

94 10

§ 24

MISLIGHOLD OG FRAVIKELSE

Dersom seksjonseieren ikke oppfyller sine plikter etter lov og vedtekter, og dette skyldes uaktsomhet fra seksjonseiers side, vil seksjonseieren kunne bli erstatningsansvarlig for det tap som oppstår på grunn av misligholdet. Dette gjelder likevel ikke dersom seksjonseieren kan godtgjøre at misligholdet skyldes hindring utenfor hans kontroll og det ikke er rimelig at seksjonseieren oppdaget eller forhindret denne hindringen.

Hvis seksjonseierens oppførsel medfører fare for ødeleggelse eller vesentlig forringelse av eiendommen, eller seksjonseierens oppførsel er til alvorlig plage eller sjenanse for eiendommens øvrige brukere, kan styret kreve fravikelse av bruksenheten etter tvangsfullbyrdelsesloven kapittel 13 jfr. Lov om eierseksjoner § 39. Fravikelse kan også kreves overfor en bruker som ikke er seksjonseier.

§ 25

ENDRINGER I VEDTEKTENE

Endringer i sameiets vedtekter kan besluttes av årsmøtet med minst 2/3 av de avgitte stemmer om ikke loven stiller strengere krav.

§ 26

FORHOLDET TIL EIERSEKSJONSLOVEN

Der hvor ikke annet følger av disse vedtekter kommer lov om eierseksjoner av 16. juni 2017 nr. 65 til anvendelse.

95 11

VEDTEKTER FOR VELFORENINGEN LUNDAMO PARK

Vedtatt: 18.02.2019

§ 1 Navn og beliggenhet

Foreningens navn er Velforeningen Lundamo Park, beliggende i Melhus kommune.

Området som omfatter foreningen er inntegnet på eget kart, denne inngår som en del av vedtektene.

§ 2 Formål og eierforhold

Velforeningen skal stå, iht. reguleringsplan, som eier av felles infrastruktur som internveier, parkeringsplasser, grøntarealer og lekearealer på eiendommen gnr. 208, bnr. 16 i Melhus kommune etter at tomter for utbygging av boliger og boligfellesskap blir fradelt. Denne bestemmelsen blir oppdatert til å gjelde de faktiske forhold når området er ferdigstilt. Endring av denne bestemmelsen foretas av forretningsfører uten behandling i årsmøte.

Foreningens formål er å drifte og vedlikeholde eiendommen.

§ 3 Medlemskap

Nåværende og fremtidige eiere av boliger innenfor velforeningens område har rett og plikt til medlemskap i foreningen.

Det skal på alle eiendommene tinglyses pliktig medlem skap i foreningen.

En husstand har ett medlemskap. For eiendommer som eies av en juridisk person, som for eksempel et selskap, en stiftelse eller en sammenslutning, utøves medlemskapet av en representant som innehar retten til å forplikte selskapet/stiftelsen/sammenslutningen iht. firmaattest.

96

Medlemmene er forpliktet til å følge velforeningens vedtekter og vedtak fattet i foreningens styrende organer.

§ 4 Felleskostnader

Medlemmene plikter å delta i drift og vedlikehold av fellesanlegg gjennom innbetaling av felleskostnader fastsatt av styret. Inntekten kan kun benyttes i overensstemmelse med foreningens formål.

Felleskostnadene fastsettes i foreningens budsjett. Felleskostnadene skal fordeles likt per medlem i velforeningen.

Fakturering av felleskostnader skjer en gang årlig, med inntil to terminer. Fakturering til medlemmer i boligselskap innenfor velforeningens område skjer samlet til boligselskapet. Boligselskapene plikter å ta inn diss e inntektene via sine budsjetter. Fakturering til frittstående boliger sendes direkte t il hvert medlem.

I saker som krever felles finansiering ut over ordinær drift og forvaltning, kreves 2/3 flertall av de avgitte stemmer.

§ 5 Årsmøte

Foreningens øverste myndighet er årsmøtet. Ordinært årsmøte holdes innen utgangen av juni måned.

Ekstraordinært årsmøte skal avholdes når styret finner det påkrevd eller når minst 10 prosent av medlemmene kommer med skriftlig krav om det.

Styret skal på forhånd varsle sine medlemmer om dato for ordinært årsmøtet og om siste frist for å innlevere saker som ønskes behandlet.

Styret innkaller årsmøtet med et varsel som skal være på minst åtte og høyst tjue dager. Styret kan om nødvendig innkalle til ekstraordinært årsmøte med kortere varsel, men varselet kan aldri være kortere enn tre dager. Årsmøtet kan bare fatte vedtak i de saker som er nevnt i innkallingen.

Varsel om og innkalling til årsmøte sendes styrene i de respektive boligselskapene. Styrene i de respektive boligselskapene plikter deretter å videresende/publisere disse dokumenter til sine medlemmer.

De øvrige medlemmene i de frittstående boligene i velforeningen mottar innkallingen direkte.

Varsel og innkalling skjer skriftlig. Som skriftlig regnes også elektronisk kommunikasjon. Varsel og innkalling sendes på e-post eller publiseres i eventuell portalløsning til de med kjent e-post adresse. For de uten e-post vil varsel og innkalling sendes med ordinær postgang.

97 2

Styreleder leder årsmøtet med mindre årsmøtet velger en annen møteleder. Årsmøtet er vedtaksført med det antall medlemmer som møter. Ved avstemninger har medlemmene en stemme pr. husstand

Årsmøte skal behandle:

a) Årsregnskap og eventuell årsberetning

b) Gjennomgang av styres budsjett

c) Andre saker som er nevnt i innkallingen

d) Valg av styremedlemmer

Vedtak i årsmøte og ekstraordinært årsmøte fattes med vanlig flertall av avgitte stemmer. Ved stemmelikhet gjør møtelederens stemme utslaget. Avstemming skjer skriftlig hvis noen ber om det.

Medlemsmøter avholdes når styret finner det nødvendig og skal bekjentgjøres minst 8 dager forut.

Det velges et styre bestående av en leder og inntil tre styremedlemmer som er foreningens øverste myndighet mellom årsmøtene. Det kan i tillegg velges inntil to varamedlemmer.

Styret kan utvides med flere styremedlemmer etter hvert som boligselskapene innenfor utbyggingsområdet ferdigstilles. Denne vedtektsbestemmelse revideres på det tidspunkt nye medlemmer innlemmes i velforeningen.

Styret skal bestå av styremedlemmer som også innehar slik rolle i eget boligselskap. De frittstående boligene har rett men ikke plikt til å ha medlemmer i styret.

Styret velges av årsmøtet med vanlig flertall av de avgitte stemmer. Styrets leder velges særskilt. Kun fysiske personer kan være styremedlemmer. Årsmøtet kan også velge 2 varamedlemmer til styret.

Styreleder og styremedlemmer velges for 2 år, varamedlemmer velges for 1 år.

Dersom det er valgt varamedlemmer til styret kan de møte på samtlige styremøter.

Styrets leder og ett styremedlem forplikter foreningen ved sin underskrift.

Styret skal iverksette årsmøtets vedtak og bestemmelser samt forvalte foreningens eiendeler/eiendom, herunder føre kontroll med foreningens økonomi. Etter behov kan styret oppnevne komiteer eller personer til å løse spesielle oppgaver.

98 3
§ 6 Medlemsmøter § 7 Styret, ansvar og møter

Styret skal etter beste evne søke å oppfylle foreningens formål etter gjeldende vedtekter og representerer foreningen utad.

Styreleder skal sørge for at det avholdes styremøter så ofte som det trengs. Et flertall av styremedlemmene kan kreve at styret sammenkalles. Styret fører protokoll over saker til behandling og vedtak.

Styret er beslutningsdyktig når flertallet av styremedlemmene, deriblant leder eller nestleder, er til stede. Styrebeslutninger krever vanlig flertall. Ved stemmelikhet har fungerende leder dobbeltstemme.

Styret ansetter forretningsfører som står for innkrevingen av felleskostnader, føring av regnskap, betaling av løpende utgifter til vedlikehold og lignende. Forretningsfører skal ha anledning til å innkreve gebyr for utgivelse av informasjon/ registrering av eierskifte i forbindelse med salg av boliger innenfor velforeningens område. Behandlingsgebyret betales av kjøper/selger.

Styret kan inngå driftsavtaler for stell og vedlikehold av foreningens eiendom.

§ 8 Avsetning til vedlikehold

Årsmøtet vedtar nødvendigheten av avsetning til dekning av fremtidige vedlikeholdskostnader, påkostninger eller andre fellestiltak på foreningens eiendom.

§ 9 Særlige bestemmelser

Melhus Kommune vil få tinglyst rettighet til vedlikehold av vann- og avløpsledninger på velforeningens eiendom etter at fradelinger og hjemmelsoverdragelse er gjennomført.

§ 10 Mislighold, vedtektsendring, oppløsning, sammenslutning, deling

Ved unnlatelse av å betale pålagte felleskostnader til foreningen, kan foreningen gå til utpanting av den enkelte husstand for å inndrive sitt tilgodehavende pluss omkostninger.

Vedtektsendringer krever 2/3 flertall av de avgitte stemmer og må vedtas på ordinært eller ekstraordinært årsmøte.

Oppløsning av foreningen kan bare behandles på ordinært årsmøte. Blir oppløsning vedtatt med 100% enighet, innkalles ekstraordinært årsmøte 3 måneder senere. For at oppløsning skal skje, må vedtaket gjentas med 100% enighet. Det kan velges et avviklingsstyre som skal forestå avviklingen. Det ordinære styret kan velges til avviklingsstyre sammen med en uavhengig advokat, og får stilling som avviklingsstyre om intet valg foretas.

Foreningens formue skal etter oppløsning og gjeldsavleggelse tilfalle det formål foreningen arbeider for å fremme. Formålet bestemmes av avviklingsstyret. Ingen medlemmer har krav på foreningens midler eller andel av disse.

99 4

Sammenslutning med andre foreninger eller deling av foreningen anses ikke som oppløsning. Vedtak om sammenslutning/deling og nødven dige vedtektsendringer i denne forbindelse treffes i samsvar med bestemmelsene om vedtektsendring. Styret skal i denne forbindelse utarbeide en plan for sammenslutningen/delingen som årsmøtet skal stemme over.

100 5

KJØPETILBUD PÅ PROSJEKTERT Leilighet I Lundamo Park B4 - leiligheter

Kjøpetilbudet gjelder bolig. nr. ..

Undertegnede inngir herved bud på ovennevnte eiendom, kr.______________ + omkostninger.

<OUDF DOKTOMTEVERDI>

Omkostningene omfatter:

Dokumentavgift 2,5% av tomteverdi kr. 0 ,-*

Tinglysingsgebyr skjøte kr. 585 ,-

Tinglysingsgebyr pantedokument kr. 585 ,-

Pantattest kr. 172 ,-

Oppstartskapital velforening kr. 5 000 ,-

Oppstartskapital sameie kr. 10 000 ,-

Stiftelsesgebyr sameie kr. 2 500 ,-

Totale omkostninger kr. ,-

I tillegg kommer dokumentavgift på kr. 79,67 pr.kvm. Se prisliste

Kjøpesummen blir ikke indeksregulert. Kjøpesummen skal i sin helhet innbetales ved overtagelse av boligen.

Kjøpet vil bli finansiert slik:

Låneinstitusjon:________________________________Evt.referanse:_______________________

Eventuelle forbehold:________________________________________________________

Ønskes uforpliktende finansieringstilbud fra Melhusbanken? Ja Nei

NÆRVÆRENDE BUD ER BINDENDE FOR UNDERTEGNEDE FREM TIL OG MED DEN____________KL.16.00. (MINIMUM 3 DØGN)

Kjøpsbetingelser / krav til finansiering

Undertegnede er kjent med at budet er bindende for meg/oss når det er kommet til selgers kunnskap. Bindende avtale er regulert iht. Lov om avtaler av 31. mai 1918. Handelen er juridisk bindende for begge parter dersom budet aksepteres innen akseptfristen.

Budet er gitt med bakgrunn i prosjektets standardkontrakt, salgsoppgave med tilhørende deklarasjon, tegninger. Disse dokumenter er lest og akseptert av kjøper.

Undertegnede er kjent med at selger står fritt til å godta eller forkaste ethvert bud.

Dersom budet blir akseptert må kjøper på eget initiativ fremlegge en godkjent finansieringsbekreftelse til megler innen 21 dager etter selgers aksept iht. Bustadoppføringslova § 46 2. ledd. Dersom kjøper innen fristen ikke overholder sin forpliktelse med tilfredsstillende finansieringsbekreftelse iht. prosjektets standardkontrakt, er kjøper allikevel bundet og selger vil kunne påberope avtalen som vesentlig misligholdt og heve avtalen. Kjøper samtykker til at omkostninger knyttet til heving og dekningssalg i så fall dekkes av kjøper.

102 Heimdal Eiendomsmegling AS | Telefon: 73 87 15 00 | Epost: post@hem.no | hem.no | Orgnr: 976232909
______________________________________________________kr.___________________,Egenkapital____________________________________________kr.___________________,-

Sted/dato:___________________________________

Navn kjøper 1:____________________________________Signatur:__________________________

Fødsels- og personnr. ______________________

Adresse:__________________________________Tlf.priv.:_____________ mobil:________

Postnr./sted:_________________________________________________________________

E-post: _____________________________________________________________________

***

Navn kjøper 2:____________________________________Signatur:___________________________

Fødsels- og personnr. ______________________

Adresse:__________________________________Tlf.priv.:_____________ mobil:_________

Postnr./sted:__________________________________________________________________

E-post.: _____________________________________________________________________

Jeg samtykker til at mitt navn, adresse, telefonnummer og e-post deles med nødvendige underleverandører, forretningsfører og samarbeidspartnere i prosjektet for min kjøpte bolig. Kontaktinformasjonen kan bli brukt til å ta kontakt med meg på telefon, e-post eller SMS. Samtykket er gyldig frem til overlevering av boligen.

Fullmakt til å opptre på vegne av en annen: Jeg, ________________________ gir med dette _______________________ fullmakt til å representere meg i budgiving på denne eiendommen.

(Sign./dato)

Heimdal Eiendomsmegling AS, Vestre Rosten 69, 7072 Heimdal Tlf: 73 87 15 00

E-post: runar.wehn@hem.no SMS: 41 69 74 15

Finansiering sjekket av megler: Dato:________________Kl:_____________Sign:_______________________

Bank:___________________ Kontaktperson:_______________ Tlf.___________________

Kommentar:

Megler: ____________________________

SELGERS AKSEPT PÅ NÆRVÆRENDE KJØPETILBUD

Sted/dato:_____________________________Klokkeslett_________________

For Heimdal sag prosjekter as

103 Heimdal Eiendomsmegling AS | Telefon: 73 87 15 00 | Epost: post@hem.no | hem.no | Orgnr: 976232909

IDENTIFIKASJONSSKJEMA

Din/deres identifikasjon

Din/deres signatur

For at megler skal kunne formidle ditt bud, må megler kontrollere din identitet. For enkel identifisering, følg disse stegene:

1.Legg din ID i firkanten (helst ikke bankkort)

2.Signer

3.Ta bilde

4.Send

Innsending av identifikasjonsskjema kan foregå på følgende måter:

SMS – Send bildet med signatur til 2077 med kodeord "ID HE"

Alternativt kan du sende på:

E-post – Sendes til: runar.wehn@hem.no

104 Heimdal Eiendomsmegling AS | Telefon: 73 87 15 00 | Epost: post@hem.no | hem.no | Orgnr: 976232909

Heimdal sag prosjekter as 3-22-9023

c/o Heimdal Eiendomsmegling AS

Vestre Rosten 69

7072 Heimdal

FINANSIERINGSBEVIS

er innvilget finansiering i vår bank med kjøp av bolig i Melhus kommune. Prosjektet: Lundamo Park B4 - leiligheter, leil.nr. .

I følge anmodning fra kjøper, bekreftes herved at kroner (+ omkostninger)

er reservert for utbetaling til Heimdal sag prosjekter as ved Heimdal Eiendomsmegling AS, klientkonto 42305501500, i henhold til bindende avtale mellom partene. Dette finansieringsbeviset er bindende og irreversibelt.

Det forutsettes at Heimdal Eiendomsmegling AS innestår for tinglysing av skjøte i henhold til bindende avtale mellom partene og evt. pantedokument.

Denne bekreftelsen er betinget av at det blir stilt sikkerhet for deres forpliktelser etter kontrakten i henhold til Bustadoppføringslova av 13 juni 1997.

Sted/dato Navn + stempel

105 Heimdal Eiendomsmegling AS | Telefon: 73 87 15 00 | Epost: post@hem.no | hem.no | Orgnr: 976232909
______________________ __________________________
106
KONTAKTINFORMASJON Kim Roger Laugsand Tlf. 952 34 892 krl@hem.no Runar Wehn Tlf. 416 97 415 rw@hem.no

Turn static files into dynamic content formats.

Create a flipbook
Issuu converts static files into: digital portfolios, online yearbooks, online catalogs, digital photo albums and more. Sign up and create your flipbook.