Skip to main content

CAT + Caterpillar G3520C Generator Set Operation & Maintenance Manual

Page 1


Product:GENERATORSET

Model:G3520CGENERATORSETGZA

Configuration:G3520CGeneratorSetGZA00001-UP

OperationandMaintenanceManual G3500GeneratorSets

MediaNumber-SEBU7681-24PublicationDate-01/10/2014DateUpdated-16/02/2018

Foreword

CaliforniaProposition65Warning

DieselengineexhaustandsomeofitsconstituentsareknowntotheStateofCaliforniato causecancer,birthdefects,andotherreproductiveharm.

WARNING-Thisproductcanexpose youtochemicalsincludingethylene glycol,whichisknowntotheStateof Californiatocausebirthdefectsorother reproductiveharm.Formoreinformation goto:

www.P65Warnings.ca.gov

Donotingestthischemical.Washhandsafterhandlingtoavoidincidentalingestion.

WARNING-Thisproductcanexpose youtochemicalsincludingleadandlead compounds,whichareknowntothe StateofCaliforniatocausecancer,birth defects,orotherreproductiveharm.For moreinformationgoto:

www.P65Warnings.ca.gov

Washhandsafterhandlingcomponentsthatmaycontainlead.

LiteratureInformation

s03548137

Thismanualcontainssafety,operationinstructions,lubrication,andmaintenanceinformation. Thismanualshouldbestoredinorneartheengineareainaliteratureholderorliteraturestorage area.Read,study,andkeepitwiththeliteratureandengineinformation.

EnglishistheprimarylanguageforallCatpublications.TheEnglishusedfacilitatestranslation andconsistencyinelectronicmediadelivery.

Somephotographsorillustrationsinthismanualshowdetailsorattachmentsthatmaybedifferent fromyourengine.Guardsandcoversmayhavebeenremovedforillustrativepurposes.

Continuingimprovementandadvancementofproductdesignmayhavecausedchangestoyour enginewhicharenotincludedinthismanualWheneveraquestionarisesregardingyourengine, orthismanual,pleaseconsultwithyourCatdealerforthelatestavailableinformation.

Safety

Thissafetysectionlistsbasicsafetyprecautions.Inaddition,thissectionidentifieshazardous, warningsituations.Readandunderstandthebasicprecautionslistedinthesafetysectionbefore operatingorperforminglubrication,maintenance,andrepaironthisproduct.

Operation

Operatingtechniquesoutlinedinthismanualarebasic.Theyassistwithdevelopingtheskillsand techniquesrequiredtooperatetheenginemoreefficientlyandeconomically.Skillandtechniques developastheoperatorgainsknowledgeoftheengineanditscapabilities.

Theoperationsectionisareferenceforoperators.Photographsandillustrationsguidetheoperator throughproceduresofinspecting,starting,operating,andstoppingtheengine.Thissectionalso includesadiscussionofelectronicdiagnosticinformation.

Maintenance

Themaintenancesectionisaguidetoenginecare.Theillustrated,step-by-stepinstructionsare groupedbyfuelconsumption,servicehoursand/orcalendartimemaintenanceintervals.Itemsin themaintenanceschedulearereferencedtodetailedinstructionsthatfollow.

Usefuelconsumptionorservicehourstodetermineintervals.Calendarintervalsshown(daily, annually,etc.)maybeusedinsteadofservicemeterintervalsiftheyprovidemoreconvenient schedulesandapproximatetheindicatedservicemeterreading.

Recommendedserviceshouldbeperformedattheappropriateintervalsasindicatedinthe MaintenanceIntervalSchedule.Theactualoperatingenvironmentoftheenginealsogovernsthe MaintenanceIntervalSchedule.Therefore,undersevere,dusty,wet,orfreezingcoldoperating conditions,morefrequentlubrication,andmaintenancethanisspecifiedintheMaintenance IntervalSchedulemaybenecessary.

Themaintenancescheduleitemsareorganizedforapreventivemaintenancemanagement program.Ifthepreventivemaintenanceprogramisfollowed,aperiodictune-upisnotrequired. Theimplementationofapreventivemaintenancemanagementprogramshouldminimize operatingcoststhroughcostavoidancesresultingfromreductionsinunscheduleddowntimeand failures.

MaintenanceIntervals

Performmaintenanceonitemsatmultiplesoftheoriginalrequirement.Eachleveland/or individualitemsineachlevelshouldbeshiftedaheadorbackdependinguponyourspecific maintenancepractices,operation,andapplication.Werecommendthatthemaintenanceschedules bereproducedanddisplayedneartheengineasaconvenientreminder.Wealsorecommendthata maintenancerecordbemaintainedaspartoftheengine'spermanentrecord.

SeethesectionintheOperationandMaintenanceManual,"MaintenanceRecords"forinformation regardingdocumentsthatareacceptedasproofofmaintenanceorrepair.YourauthorizedCat dealercanassistyouinadjustingyourmaintenancescheduletomeettheneedsofyouroperating environment.

Overhaul

MajorengineoverhauldetailsarenotcoveredintheOperationandMaintenanceManualexcept fortheintervalandthemaintenanceitemsinthatinterval.Majorrepairsarebestlefttotrained personneloranauthorizedCatdealer.YourCatdealeroffersvariousoptionsregardingoverhaul programs.Ifyouexperienceamajorenginefailure,therearealsonumerousafterfailureoverhaul optionsavailablefromyourCatdealer.Consultwithyourdealerforinformationregardingthese options.

Copyright1993-2025CaterpillarInc. AllRightsReserved. PrivateNetworkForSISLicensees.

SatMay1003:52:07UTC+05302025

This is the sample of the manual if you need complete manual Click Here to download

Product:GENERATORSET

Model:G3520CGENERATORSETGZA

Configuration:G3520CGeneratorSetGZA00001-UP

OperationandMaintenanceManual G3500GeneratorSets

MediaNumber-SEBU7681-24PublicationDate-01/10/2014DateUpdated-16/02/2018 i01721862

AftercoolerCondensation-Drain

SMCS-1063

Theair/fuelmixturethatiscompressedandwarmedbytheturbochargercompressorisdirected throughtheaftercoolercore.Theair/fuelmixtureiscooledintheaftercooler.

Condensationcanforminthehousingoftheaftercooler.Adrainplugisprovidedfordrainingthe condensation.

Note:Anautomaticdrainisavailableforusewith32°C(90°F)separatecircuitaftercoolers. ConsultyourCaterpillardealerfordetails.

Removethedrainplugs(1)fromtheendsoftheplenum.Drainthemoistureintoasuitable container.Reinstalltheplugs.

Product:GENERATORSET

Model:G3520CGENERATORSETGZA

Configuration:G3520CGeneratorSetGZA00001-UP

OperationandMaintenanceManual G3500GeneratorSets

MediaNumber-SEBU7681-24PublicationDate-01/10/2014DateUpdated-16/02/2018

AirTankMoistureandSediment-Drain

SMCS-1466-543-M&S

Moistureandsedimentintheairstartingsystemcancausethefollowingconditions:

•Freezing

•Corrosionofinternalparts

•Malfunctionoftheairstartingsystem

Whenopeningthedrainvalve,wearprotectivegloves,aprotectiveface shield,protectiveclothing,andprotectiveshoes.Pressurizedaircould causedebristobeblownandresultinpersonalinjury.

NOTICE

Caremustbetakentoensurethatfluidsarecontainedduring performanceofinspection,maintenance,testing,adjusting,andrepair oftheproduct.Bepreparedtocollectthefluidwithsuitablecontainers beforeopeninganycompartmentordisassemblinganycomponent containingfluids.

RefertoSpecialPublication,NENG2500,"CatDealerServiceTool Catalog"orrefertoSpecialPublication,PECJ0003,"CatShop SuppliesandToolsCatalog"fortoolsandsuppliessuitabletocollect andcontainfluidsonCatproducts.

Disposeofallfluidsaccordingtolocalregulationsandmandates.

1.Openthedrainvalvethatisonthebottomoftheairtank.Allowthemoistureandsediment todrain.

2.Closethedrainvalve.

Copyright1993-2025CaterpillarInc. AllRightsReserved. PrivateNetworkForSISLicensees.

SatMay1004:18:54UTC+05302025

Product:GENERATORSET

Model:G3520CGENERATORSETGZA

Configuration:G3520CGeneratorSetGZA00001-UP

OperationandMaintenanceManual G3500GeneratorSets

MediaNumber-SEBU7681-24PublicationDate-01/10/2014DateUpdated-16/02/2018

Alternator-Inspect

SMCS-1405-040

Inspectthealternatorforthefollowingconditions:

•Properconnections

•Cleanportsforcoolingairflow

•Properchargingofthebattery

i04342909

Observetheammeterduringengineoperationinordertoensureproperbatteryperformance and/orproperperformanceoftheelectricalsystem.

Makerepairs,ifnecessary.SeetheServiceManualforserviceprocedures.ConsultyourCat dealerforassistance.

Copyright1993-2025CaterpillarInc. AllRightsReserved. PrivateNetworkForSISLicensees.

SatMay1004:19:06UTC+05302025

Product:GENERATORSET

Model:G3520CGENERATORSETGZA

Configuration:G3520CGeneratorSetGZA00001-UP

OperationandMaintenanceManual G3500GeneratorSets

MediaNumber-SEBU7681-24PublicationDate-01/10/2014DateUpdated-16/02/2018

AutomaticStart/Stop-Inspect

SMCS-4462

i01942284

Thegeneratorsetmustbereadytooperateunderaloadatanytime.Afterperformingmaintenance onthegeneratorset,inspectthepositionofthecontrolswitches.Ensurethefollowingconditions:

•Thestartingsystemisenabled.

•Thecontrolswitchesareinthecorrectpositionforautomaticstarting.

•Theswitchgearandtheautomatictransferswitchesthatareassociatedwiththegeneratorare enabled.

Copyright1993-2025CaterpillarInc. AllRightsReserved. PrivateNetworkForSISLicensees.

SatMay1004:19:20UTC+05302025

Product:GENERATORSET

Model:G3520CGENERATORSETGZA

Configuration:G3520CGeneratorSetGZA00001-UP

OperationandMaintenanceManual G3500GeneratorSets

MediaNumber-SEBU7681-24PublicationDate-01/10/2014DateUpdated-16/02/2018

Battery-Recycle

SMCS-1401-510;1401-535;1401-561;1401-005

Alwaysrecycleabattery.Neverdiscardabattery.Returnusedbatteriestooneofthefollowing locations:

•Abatterysupplier

•Anauthorizedbatterycollectionfacility

•Arecyclingfacility

Copyright1993-2025CaterpillarInc. AllRightsReserved. PrivateNetworkForSISLicensees.

SatMay1004:19:32UTC+05302025

i02039199

Product:GENERATORSET

Model:G3520CGENERATORSETGZA

Configuration:G3520CGeneratorSetGZA00001-UP

OperationandMaintenanceManual

G3500GeneratorSets

MediaNumber-SEBU7681-24PublicationDate-01/10/2014DateUpdated-16/02/2018

Battery-Replace

SMCS-1401-510

Batteriesgiveoffcombustiblegaseswhichcanexplode.Asparkcan causethecombustiblegasestoignite.Thiscanresultinseverepersonal injuryordeath.

Ensureproperventilationforbatteriesthatareinanenclosure.Follow theproperproceduresinordertohelppreventelectricalarcsand/or sparksnearbatteries.Donotsmokewhenbatteriesareserviced.

Thebatterycablesorthebatteriesshouldnotberemovedwiththe batterycoverinplace.Thebatterycovershouldberemovedbeforeany servicingisattempted.

Removingthebatterycablesorthebatterieswiththecoverinplacemay causeabatteryexplosionresultinginpersonalinjury.

1.Ensurethattheengineisstopped.Refertothismanual,"StoppingtheEngine".Ensurethat allelectricalloadsareremoved.

2.Turnoffanybatterychargers.Disconnectanybatterychargers.

i02710714

3.RemovetheNEGATIVE"-"terminalconnectiononthebattery.Ensurethattheterminal cannotcontacttheterminalonthebattery.

4.RemovethePOSITIVE"+"terminalconnectiononthebattery.

Note:Alwaysrecycleabattery.Neverdiscardabattery.Returnusedbatteriestoan appropriaterecyclingfacility.

5.Removetheusedbattery.

6.Installthenewbattery.

Note:Beforetheterminalconnectionsareconnected,ensurethattheenginestartswitchis OFF.

7.ConnectthePOSITIVE"+"connectiontothePOSITIVE"+"terminalonthebattery.

8.ConnecttheNEGATIVE"-"terminalconnectiontotheNEGATIVE"-"terminalonthe battery.

Copyright1993-2025CaterpillarInc. AllRightsReserved. PrivateNetworkForSISLicensees.

SatMay1004:19:41UTC+05302025

Product:GENERATORSET

Model:G3520CGENERATORSETGZA

Configuration:G3520CGeneratorSetGZA00001-UP

OperationandMaintenanceManual G3500GeneratorSets

MediaNumber-SEBU7681-24PublicationDate-01/10/2014DateUpdated-16/02/2018

BatteryElectrolyteLevel-Check

SMCS-1401-535-FLV

Whentheenginehasnotrunforlongorshortperiodsoftime,thebatteriesmaynotfullyrecharge. Ensureafullchargetohelppreventthebatteryfromfreezing.

Inwarmerclimates,checktheelectrolytelevelmorefrequently.

Ensurethattheelectrolytelevelis13mm(0.5inch)abovethetopoftheseparators.

Alllead-acidbatteriescontainsulfuricacidwhichcanburntheskinand clothing.Alwayswearafaceshieldandprotectiveclothingwhen workingonornearbatteries.

1.Removethefillercaps.Maintaintheelectrolyteleveltothe"FULL"markonthebattery.

Iftheadditionofwaterisnecessary,usedistilledwater.Ifdistilledwaterisnotavailable, usecleanwaterthatislowinminerals.Donotuseartificiallysoftenedwater.

2.Checktheconditionoftheelectrolytewiththe245-5829CoolantBatteryTester Refractometer.

3.Keepthebatteriesclean.

Cleanthebatterycasewithoneofthefollowingcleaningsolutions:

Amixtureof0.1kg(0.2lb)ofbakingsodaand1L(1qt)ofcleanwater

Amixtureof0.1L(0.11qt)ofammoniaand1L(1qt)ofcleanwater

Thoroughlyrinsethebatterycasewithcleanwater.

i07185134

Usethe1U-9921BatteryServiceTooltocleanthebatteryterminals.Useawirebrushto cleanthecableclamps.Cleantheitemsuntilthesurfacesarebrightorshiny.DONOT removematerialexcessively.Excessiveremovalofmaterialcancausetheclampstofit improperly.Coattheclampsandtheterminalswith5N-5561SiliconeLubricant,petroleum jellyorMPGM.

Copyright1993-2025CaterpillarInc. AllRightsReserved. PrivateNetworkForSISLicensees.

SatMay1004:19:52UTC+05302025

Product:GENERATORSET

Model:G3520CGENERATORSETGZA

Configuration:G3520CGeneratorSetGZA00001-UP

OperationandMaintenanceManual G3500GeneratorSets

MediaNumber-SEBU7681-24PublicationDate-01/10/2014DateUpdated-16/02/2018

BatteryorBatteryCable-Disconnect

SMCS-1401;1402-029

Thebatterycablesorthebatteriesshouldnotberemovedwiththe batterycoverinplace.Thebatterycovershouldberemovedbeforeany servicingisattempted.

Removingthebatterycablesorthebatterieswiththecoverinplacemay causeabatteryexplosionresultinginpersonalinjury.

1.TurnthestartswitchtotheOFFposition.Turntheignitionswitch(ifequipped)totheOFF positionandremovethekeyandallelectricalloads.

2.Turnoffanybatterychargers.Disconnectanybatterychargers.

3.Disconnectthenegativebatteryterminalatthebatterythatgoestothestartswitch.Ensure thatthecablecannotcontacttheterminal.Whenfour12voltbatteriesareinvolved,the negativesideoftwobatteriesmustbedisconnected.

4.Tapetheleadsinordertohelppreventaccidentalstarting.

5.Proceedwithnecessarysystemrepairs.Reversethestepsinordertoreconnectallofthe cables.

Copyright1993-2025CaterpillarInc. AllRightsReserved. PrivateNetworkForSISLicensees.

SatMay1004:20:07UTC+05302025

i02857256

Product:GENERATORSET

Model:G3520CGENERATORSETGZA

Configuration:G3520CGeneratorSetGZA00001-UP

OperationandMaintenanceManual

G3500GeneratorSets

MediaNumber-SEBU7681-24PublicationDate-01/10/2014DateUpdated-16/02/2018

Belts-Inspect/Adjust/Replace

SMCS-1357-025;1357-040;1357-510

Inspection

i06581592

Inspectthealternatorbeltandthefandrivebeltsforwearandforcracking.Replacethebeltsifthe beltsarenotingoodcondition.

CheckthebelttensionaccordingtotheinformationintheServiceManual,"Specifications".

Slippageofloosebeltscanreducetheefficiencyofthedrivencomponents.Vibrationofloose beltscancauseunnecessarywearonthefollowingcomponents:

•Belts

•Pulleys

•Bearings

Ifthebeltsaretootight,unnecessarystressisplacedonthecomponents.Beltsthataretootight reducestheservicelifeofthecomponents.

AdjustingtheAlternatorBelt

Illustration1g01092641

Typicalalternator (1)Mountingbolt (2)Adjustingnuts (3)Mountingbolt

1.Loosenmountingbolt(1),adjustingnuts(2)andmountingbolt(3).

2.Turnadjustingnuts(2)toincreaseordecreasethedrivebelttension.

3.Tightenadjustingnuts(2).Tightenmountingbolt(3).Tightenmountingbolt(1).Forthe propertorque,seetheServiceManual,"Specifications"module.

Note:Ifnewdrivebeltsareinstalled,checkthedrivebelttensionagainafter30minutesof engineoperationattheratedrpm.

4.Stoptheengine.

5.Usethe491-2178Belttensionmetertooltocheckthetensionwiththealternatorguard installed.

Note:Thecurrentguarddesignallowsforinspectionofthebelttensionwithoutremovalof theguard.

AdjustingtheFanDriveBelt

1.Loosenthemountingboltforthepulley.

2.Loosentheadjustingnutforthepulley.

3.Movethepulleytoadjustthebelttension.

4.Tightentheadjustingnuttothepropertorque.

5.Tightenthemountingbolttothepropertorque.

Forthepropertorquespecifications,refertotheServiceManual,"Specifications"module.

Replacement

Forapplicationsthatrequiremultipledrivebelts,replacethedrivebeltsinmatchedsets. Replacingonedrivebeltofamatchedsetwillcausethenewdrivebelttocarrymoreloadbecause theolderdrivebeltsarestretched.Theadditionalloadonthenewdrivebeltcouldcausethenew drivebelttofail.

Copyright1993-2025CaterpillarInc. AllRightsReserved. PrivateNetworkForSISLicensees.

SatMay1004:20:18UTC+05302025

Product:GENERATORSET

Model:G3520CGENERATORSETGZA

Configuration:G3520CGeneratorSetGZA00001-UP

OperationandMaintenanceManual

G3500GeneratorSets

MediaNumber-SEBU7681-24PublicationDate-01/10/2014DateUpdated-16/02/2018 i02904927

CarburetorAir/FuelRatio-Check/Adjust

SMCS-1266-535;1266

Anenginefailuremayoccuriftheair/fuelratioisnotappropriateforthefuelandfortheoperating conditions.Theservicelifeoftheturbocharger,ofthevalves,andoftheothercomponentsmaybe reduced.

RefertotheSystemsOperation,TestingandAdjustingforthecorrectprocedure.

Copyright1993-2025CaterpillarInc. AllRightsReserved. PrivateNetworkForSISLicensees.

SatMay1004:20:33UTC+05302025

Product:GENERATORSET

Model:G3520CGENERATORSETGZA

Configuration:G3520CGeneratorSetGZA00001-UP

OperationandMaintenanceManual

G3500GeneratorSets

MediaNumber-SEBU7681-24PublicationDate-01/10/2014DateUpdated-16/02/2018 i02896718

CompressorBypass-Check

SMCS-1050-535

Illustration1g01340674

Hydraulicallyoperatedvalve

Checkforleaks.Ifnecessary,removetheactuatoraccordingtotheinstructionsintheService Manual,"DisassemblyandAssembly"manual.Inspectthethroatforwearmarks.Checkforfree movementofthebutterflyvalve.Ifnecessary,replacethevalve.

Inspectthegasketsforwearordamage.Ifnecessary,replacethegaskets.Reinstalltheactuator accordingtotheinstructionsintheServiceManual,"DisassemblyandAssembly"manual.

Inspectthecouplingforthecompressorbypassforwearandplay.Ifnecessary,replacethe coupling.Excessivewearinthecouplingcancauselowpowerorinstabilityintheengine.

Product:GENERATORSET

Model:G3520CGENERATORSETGZA

Configuration:G3520CGeneratorSetGZA00001-UP

OperationandMaintenanceManual G3500GeneratorSets

MediaNumber-SEBU7681-24PublicationDate-01/10/2014DateUpdated-16/02/2018

Coolant(NGEC)-Change

SMCS-1350-044

Cleanthecoolingsystembeforetherecommendedmaintenanceintervalifthefollowing conditionsexist:

•Theengineoverheatsfrequently.

•Foamingisobserved.

•Theoilhasenteredthecoolingsystemandthecoolantiscontaminated.

•Coolantanalysisindicatesthatthecoolanthasbrokendown.

DrainingtheCoolingSystem

NOTICE

Caremustbetakentoensurethatfluidsarecontainedduring performanceofinspection,maintenance,testing,adjustingandrepair oftheproduct.Bepreparedtocollectthefluidwithsuitablecontainers beforeopeninganycompartmentordisassemblinganycomponent containingfluids.

RefertoSpecialPublication,NENG2500,"CaterpillarDealerService ToolCatalog"fortoolsandsuppliessuitabletocollectandcontain fluidsonCaterpillarproducts.

Disposeofallfluidsaccordingtolocalregulationsandmandates.

Stoptheengineandallowtheenginetocool.Ensurethattheenginewillnotstartwhenthe coolingsystemisdrained.

i03906355

Forinformationregardingthedisposalandtherecyclingofusedcoolant,consultyourCaterpillar dealerorconsultCaterpillarDealerServiceToolsGroup:

OutsideIllinois:1-800-542-TOOLInsideIllinois:1-800-541-TOOLCanada:1-800-523-TOOL

NOTICE

Disposeofusedenginecoolantproperlyorrecycle.Variousmethods havebeenproposedtoreclaimusedcoolantforreuseinenginecooling systems.Thefulldistillationprocedureistheonlymethodacceptable byCaterpillartoreclaimtheusedcoolant.

DrainingtheJacketWater

1.Loosenthecoolingsystemfillercapslowlyinordertorelieveanypressure.Removethe coolingsystemfillercap.

(1)Coolantoutlet

(2)Aftercoolerdrainplug

(3)Oilcoolerdrainplug

(4)Engineblockdrainplug

(5)Drainplugfortheadapter

2.Removetheventplugfromcoolantoutlet(1).Opendrain(2).Removedrainplugs(3),(4), and(5).

DrainingtheSeparateCircuit

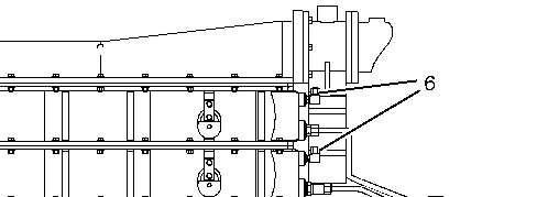
Illustration2g01445599

1.Removeventplugs(6).

2.Opencoolantdrainvalve(7).

Useofcommerciallyavailablecoolingsystemcleanersmaycause damagetocoolingsystemcomponents.Useonlycoolingsystem cleanersthatareapprovedforCaterpillarengines.

1.Afterthecoolingsystemhasbeendrained,flushthecoolingsystemwithcleanwaterin ordertoremoveanydebris.

2.Closethecoolingsystemdrainvalves.Cleanthedrainplugsandinstallthedrainplugs.

NOTICE

Fillthecoolingsystemnofasterthan19L(5USgal)perminuteto avoidairlocks.

NOTICE

Iftheaftercoolercircuithasbeendrained,theventplugmustbe openedtoallowtheaftercoolertofillproperly.Failuretodothiswill causeanairlockresultinginenginedamage.

3.Whentheseparatecircuitisfilled,besuretoremovetheventplug.

4.FillthecoolingsystemwithamixtureofcleanwaterandCaterpillarFastActingCooling SystemCleaner.Add0.5L(1pt)ofcleanerper15L(4USgal)ofthecoolingsystem capacity.Installthecoolingsystemfillercap.Installventplugs(1).

5.Starttheengine.Operatetheengineforaminimumof30minuteswithacoolant temperatureofatleast82°C(180°F).

6.Stoptheengineandallowtheenginetocool.Forthejacketwaterandtheseparatecircuit, loosenthecoolingsystemfillercapslowlyinordertorelieveanypressure.Removethe coolingsystemfillercap.Openthecoolingsystemdrainvalvesandremovethedrainplugs. Removetheventplugs.Allowthecleaningsolutiontodrain.

NOTICE

Improperorincompleterinsingofthecoolingsystemcanresultin damagetocopperandothermetalcomponents.

Toavoiddamagetothecoolingsystem,makesuretocompletelyflush thecoolingsystemwithclearwater.Continuetoflushthesystemuntil allsignsofthecleaningagentaregone.

7.Flushthecoolingsystemwithcleanwateruntilthewaterthatdrainsisclean.Closethe coolingsystemdrainvalves.Cleanthedrainplugsandinstallthedrainplugs.

This is the sample of the manual if you need complete manual Click Here to download

Turn static files into dynamic content formats.

Create a flipbook