Skip to main content

Portfolio | Clubhouse Prototyping

Page 1


Heather Stapleton

As a designer with over 20 years of experience, I partner with clients, architects, and consultants to bring hospitality-driven multifamily environments from concept through completion. My team work on clubhouse prototyping centers on creating cohesive, scalable amenity environments that balance strong brand identity with operational efficiency across portfolios.

Through fully coordinated, multi-trade drawing sets, standardized floor plans, and repeatable design elements, I assisted with development of comprehensive finish, specification, and furniture packages that allow clubhouse concepts to be implemented consistently across multiple properties. From FF&E selections to detailed layouts and documentation, I help bring clarity, precision, and design intent to every phase—ensuring each prototype feels distinctive while remaining easy to execute and replicate.

Clubhouse Prototype:

Prototyping Nationwide, USA

The Offset Sacramento, CA**

Palomino Reno, NV** Corsair Grand Prairie, TX*

Las Vegas, NV* Santé Henderson, NV* Halogen Phoenix, AZ

Prototyping: Clubhouses

Integrated design and coordination of multifamily clubhouses, encompassing leasing, coworking, conferencing, social gathering, lounging, mailroom, and fitness functions. This resulted in refined and fully coordinated standardized templates for both medium and large clubhouse architecture and interior design. Large clubhouses included a large dome ”pod” element and a reduced half dome “pod” element were developed for the smaller scale of the medium clubhouse. Comprehensive finish, lighting, and plumbing specification packages were developed and tailored to the specific context and location of each property.

Lobby: Large Clubhouse Prototype (LVB, Las Vegas, NV)
PROCESS: Lobby Prototype Rendering: Large Clubhouse, LVB, Las Vegas, NV

Prototyping: Large Clubhouse | Dome

Development of the dome “pod” to fit within the lobby space as a stand-alone element, intended for flexible coworking and semi-private meeting space, included working closely with the manufacturer to provide a barrier free design within and around the dome. The placement is coordinated within the space to accommodate lighting fixtures and provide power for coworking needs. FF&E elements were then standardized with consideration of accessibility and to support flexible meeting and coworking needs.

POD A
Dome Prototype: Large Clubhouse (Corsair, Grand Prarie TX)
PROCESS: Dome FF&E Elements Prototype, The Offset, Sacramento, CA
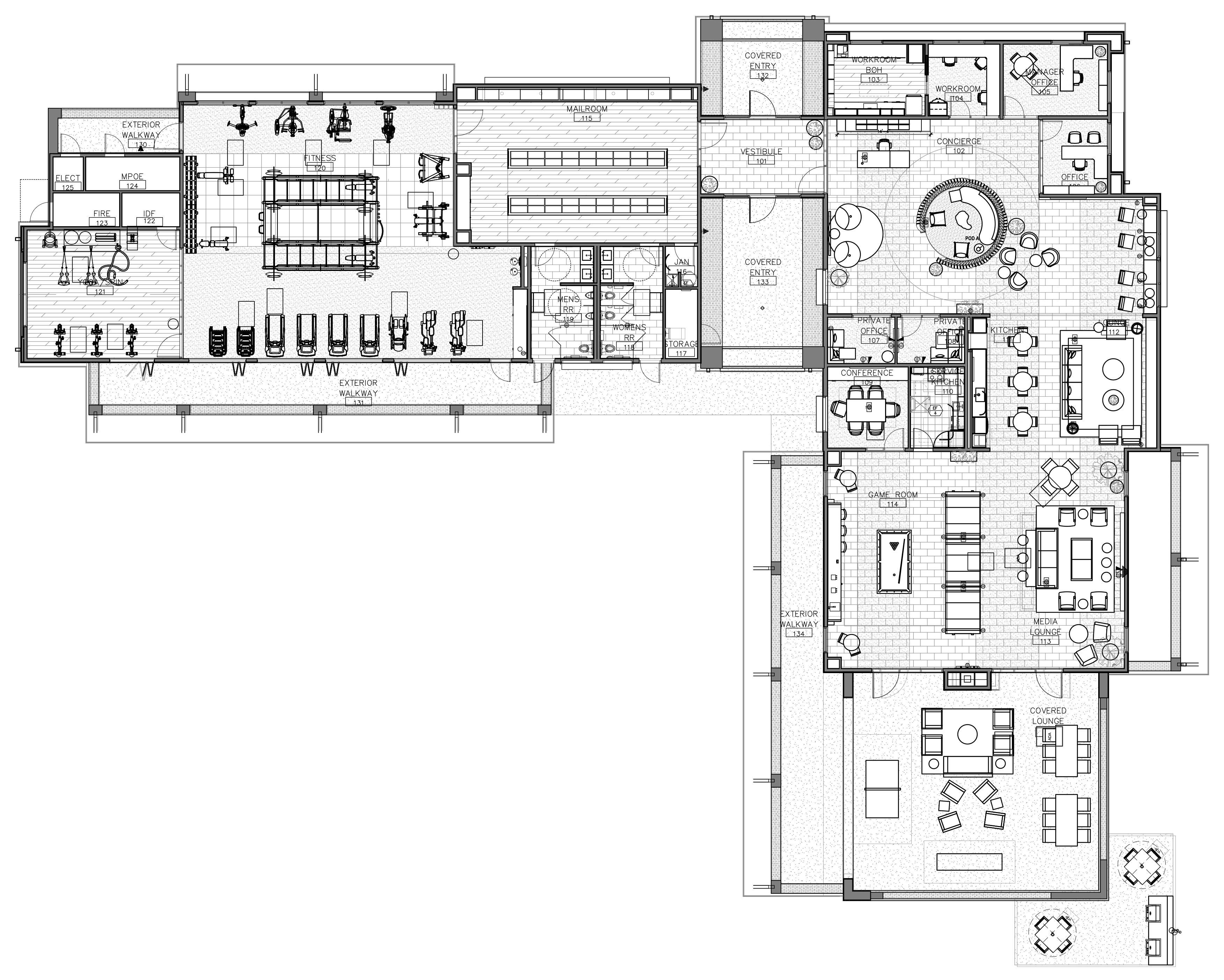
Lobby Floor Plan

Prototyping: Medium Clubhouse | Modified Dome

Medium clubhouse prototypes retain the robust programming and spatial organization of the large clubhouses, reinterpreted at a more intimate scale. The signature dome “pod” was adapted for the medium lobby through a reduced footprint and and angled form to meet height clearances. Suspended, lighted ceiling “drums” create a more intimate atmosphere within the dome and ad.jacent nook, while preserving the openness of the space

Heather Stapleton
Ceiling Drums
Ceiling Drum Detail
Modified Dome: Medium Clubhouse Prototype, Santé, Henderson, NV
Dome Prototype: Large Clubhouse PROCESS: Modified Dome Cut Angle Study

Prototyping: Clubhouse | Social Spaces

The clubhouse interiors are activated with a mix of functional lounge and social spaces for gathering, entertaining and collaborating with standardized programming, MEP and FF&E layouts.

Heather Stapleton
Fireplace Louge: Medium Clubhouse Prototype, Santé, Henderson, NV
Media Louge: Large Clubhouse Prototype, Palomino, Reno, NV
Social Kitchen: Large Clubhouse Prototype, LVB, Las Vegas, NV
Game Room: Large Clubhouse Prototype, Corsair, Grand Prairie, TX

Prototyping: Clubhouse | Coworking

Flexible coworking spaces, ranging from public, semi-private and private, are woven into the clubhouse programming to support diverse personalities and work styles, enhanced by integrated acoustic and technology considerations.

Heather Stapleton
Conference: Large Clubhouse Prototype, Palomino, Reno, NV
Private Office: Medium Clubhouse Prototype, Halogen, Phoenix, AZ
Private Offices: Large Clubhouse Prototype, LVB, Las Vegas, NV
Cowork Booths: Large Clubhouse Prototype, Filament, Garland, TX

Prototyping: Clubhouse | Ancillary Spaces

Elevated ancillary spaces carry each property’s distinctive vibe throughout the clubhouse. Exteriors spaces are activated through a lively FF&E program, creating places to play, relax and recharge.

Spin/Yoga: Large Clubhouse Prototype, Corsair, Grand Prarie, TX
Fitness: Medium Clubhouse Prototype, Santé, Henderson, NV
Mailroom: Large Clubhouse Prototype, LVB, Las Vegas, NV
Pool: Large Clubhouse Prototype, The Offest, Sacramento, CA
Outdoor Lounge: Large Clubhouse Prototype, Corsair, Grand Prarie, TX
Outdoor Lounge: Large Clubhouse Prototype, The Offest, Sacramento, CA

Clubhouse Prototype: The Offset

*NAHBPillarsoftheIndustrySilverAwardBestGardenApartmentCommunity

*FeaturedinPhoenixBusinessJournal’sBookOfListsMultifamily

Location: Sacramento, CA

Project Type: Multifamily, Market Rate

Building: New Construction Large Clubhouse Prototype 12,774 SF

Scope: Construction Administration, FF&E Selections & Procurement Services

Fireplace Louge Cowork Private Office
Lobby Dome and Cowork Private Office Storefronts Conference
Social Kitchen and Lobby Dome Meeting Pod (Beyond)
Heather Stapleton
Bar Detail Billiards Bar and Cowork Booths
Media Lounge and Cowork Booths
Outdoor Lounge
Mailroom
Firness
Billiards Bar Pool

Clubhouse Prototype: Palomino

*NAIOPCREAwardsWinner:MultifamilyProjectoftheYear

*PCBCGoldNuggetAwardofMerit:BestMultifamilyHousingCommunity

Location: Reno, NV

Project Type: Multifamily, Market Rate

Building: New Construction Large Clubhouse Prototype 12,774 SF

Scope: Construction Administration, FF&E Selections & Procurement Services

Fireplace Lounge
Lobby and Dome
Social Kitchen to Lobby
Social Kitchen to Cowork Booths
Heather Stapleton
Media Lounge
Billiards Bar Conference
Mailroom Packages Private Office
Heather Stapleton
Yoga/Spin Outdoor

Clubhouse Prototype: Corsair

*PCBC GoldNuggetAwardofMerit:BestMultifamilyHousingCommunity

Location: Grand Prairie, TX

Project Type: Multifamily, Market Rate

Building: New Construction Large Clubhouse Prototype 12,774 SF

Scope: Comprehensive Interiors, FF&E, and Procurement Services

Fireplace Louge
Conference
Private Offices
Social Kitchen
Lobby and Dome
Heather Stapleton
Billiards Bar
Media Lounge
Outdoor Lounge
Mailroom Fitness
Yoga/Spin

Clubhouse Prototype: LVB

*NVSAAJewelAwards:BestNewCommunityDesignMultifamilyDevelopment

Location: Las Vegas, NV

Project Type: Multifamily, Market Rate

Building: New Construction Large Clubhouse Prototype 12,774 SF

Scope: Comprehensive Interiors, FF&E, and Procurement Services

Heather Stapleton
Billiards Bar and Cowork Booths
Fireplace Louge
Billiards Bar
Social Kitchen
Media Lounge
Media Lounge
Fitness Yoga/Spin
Mailroom
Conference
Cowork Private Offices
Lobby and Dome
Pool
Fireplace Louge
Media Lounge
Outdoor Lounge
Outdoor Lounge

Clubhouse Prototype: Santé

*NVSAAJewelAward,Finalist:BestNewCommunityDesign

Location: Henderson, NV

Project Type: Multifamily, Market Rate

Building: New Construction Medium Clubhouse Prototype 7,956 SF

Scope: Comprehensive Interiors, FF&E, and Procurement Services

Fireplace Louge
Conference
Social Kitchen
Social Kitchen
Cowork Pod and Nook (Beyond)
Heather Stapleton
Mailroom
Media Lounge
Pool
Outdoor Lounge
Billiards Bar

Clubhouse Prototype: Halogen

Location: Phoenix, AZ

Project Type: Multifamily, Market Rate

Building: New Construction Medium Clubhouse Prototype 7,956 SF

Scope: Comprehensive Interiors, FF&E, and Procurement Services

Add:AdaptiveReuseofsalvagedelementsfromthesite’sformermovietheater

Heather Stapleton
Cowork Pod and Nook (Beyond)
Cowork Private Office Conference
Fireplace Lounge to Lobby (Beyond)
Social Kitchen
PROCESS: Adaptive Reuse of Salvaged Movie Theater Poster Boxes
AdaptedasBacklitGraphicsMural
SalvagedMoviePosterBoxes
SketchupRendering
PodiumRendering
Heather Stapleton
Billiards Bar
Outdoor Lounge Outdoor Lounge Pool
Media Lounge
Heather Stapleton
PROCESS: Adaptive Reuse of Salvaged Movie Theater Spotligts
PROCESS: Podium Rendering, Adaptive Reuse of Salvaged Movie Theater Letters
Fitness
Exterior Movie Theater Lights
Mailroom
Heather Stapleton

Turn static files into dynamic content formats.

Create a flipbook