Skip to main content

Portfolio | Complete Works

Page 1


Heather Stapleton

As a seasoned designer with over 20 years of experience across hospitality and multifamily projects, I partner closely with clients, architects, and consultants to bring ideas from concept through completion. I specialize in hospitality-driven multifamily environments nationwide, creating spaces that strengthen both brand identity and everyday living.

For more than a decade, I’ve worked in a remote, highly collaborative way that keeps the focus on the work and allows projects to move forward effciently. This fexible model supports longterm partnerships and is ideal for teams seeking senior-level design support without the need for full-time staffng.

I’m passionate about shaping thoughtful, functional spaces, with a strong eye for both overall composition and the smallest details. Fluent in the tools needed for modeling, drawing sets, specifcations, and cross-trade coordination, I bring clarity, reliability, and care to every phase of a project—helping turn a shared vision into something that’s beautifully realized.

Multifamily:

The Pomeroy Mesa, AZ*

The 1846 Fredericksburg, TX

Allez Redmond, WA**

Amano Murrieta, CA

Filament Garland, TX*

Property Repositioning:

Preserve at Marin Corte Madera, CA

Sakura Crossing Little Tokyo, Los Angeles, CA

Domain WeHo West Hollywood, Los Angeles, CA

Clubhouse Prototype:

Prototyping Nationwide, USA

The Offset Sacramento, CA**

Palomino Reno, NV**

Corsair Grand Prairie, TX*

LVB Las Vegas, NV*

Santé Henderson, NV*

Halogen Phoenix, AZ

Multifamily: The Pomeroy

LEEDSilverCertifcation

Location: Mesa, AZ

Project Type: Multifamily, Market Rate

Building: New Construction, 8,534 SF in scope

Scope: Comprehensive Interiors, FF&E, and Procurement Services of Key Spaces

The project was transferred mid-construction, prompting a strategic reenvisioning of key amenity spaces to create a more open, connected, and hospitality-driven experience. Drawing inspiration from the desert setting and the original Asian-infuenced concept, the design weaves both into a cohesive new vision. By adapting the existing foor plan in close coordination with all trades—and integrating already-purchased fnishes and lighting—the team delivered the transformation on time and within budget while preserving the project’s LEED certifcation goals.

Heather Stapleton
Lobby Seating and Leasing Offce (Beyond)
Lobby into Clubroom Media Lounge (Beyond)
PROCESS: Lobby and Leasing Offces
Lobby into Clubroom (Beyond)
Heather Stapleton
PROCESS: Clubroom Social Kitchen
PROCESS: Clubroom Media Lounge
BEFORE: Clubroom Social Kitchen
Clubroom Media Lounge
Clubroom Social Kitchen
Heather Stapleton
Sports Bar Banquette
Sports Bar
Heather Stapleton
PROCESS: Cowork Booths to Private Offces and Coffee Bar (Beyond)
PROCESS: Cowork Entry
BEFORE: Cowork
Cowork Entry
Cowork Coffee Bar
Cowork Booths
Cowork Booths and Highback Seating (Private Offces Beyond)
Conference
Cowork Private Offces

Multifamily: The 1846

Location: Fredericksburg, TX

Project Type: Multifamily, Market Rate

Building: New Construction, 8,198 SF in scope

Scope: Comprehensive Interiors and FF&E of Key Spaces

Transferred mid-development, the project required a design-forward intervention within an already established foor plan. Sculptural focal moments were introduced into the spatial programming, supported by comprehensive fnish, lighting and plumbing packages. Drawing from the region, locally inspired materials, fnishes and furnishings were sourced to reinforce a modern Texas Hill Country aesthetic.

Heather Stapleton
Cowork Private Offce
Coffee Bar Lobby
Heather Stapleton
PROCESS: Podium Rendering of Clubhouse Fitness
Clubhouse Kitchen
Clubhouse Billiards
Clubhouse Kitchen
Clubhouse Fireplace Lounge
Clubhouse Lounge & Kitchen

Multifamily: Allez

*NAIOPNightofStars,DevelopmentoftheYear BuiltGreenCertifcation

Location: Redmond, WA

Project Type: Multifamily, Market Rate

Building: New Construction, 234,000 SF

Scope: Comprehensive Interiors, FF&E, and Procurement Services with Integrated Design Team of Architecture, Interiors and Landscape Architecture

Responding to the site’s adjacency to the Sammamish River trail, the oxbow became the guiding concept for extending the river experience into the project. This fowing form moves through the site and culminates in the lobby stair, where the language of natural erosion – shifting, stacking, and cantilevering – shapes the interior architecture. As if carved by water over time, these gestures transform the stair into a sculptural extension of the landscape and a central expression of the project’s concept.

Heather Stapleton
PROCESS: Oxbow Lobby Stair Development
Heather Stapleton
Vue Lounge
Vue Lounge Outdoor Bbq at Vue Lounge Outdoor Seating
Vue Lounge

Multifamily: Amano

Location: Murrieta, CA

Project Type: Multifamily, Market Rate

Building: New Construction Clubhouse 9,680 SF

Scope: Construction Administration, FF&E Selections & Procurement Services

Heather Stapleton
Fireplace Lounge and Social Kitchen (Beyond)
Fireplace Lounge Social Kitchen
Heather Stapleton
Cowork Private Offce
Conference
Cowork Nook
Lobby & Cowork Pod
Billiards Bar
Media Lounge
Billiards Bar & Cowork Booths

Multifamily: Filament

*NAHBBestinAmericanLivingFinalist:BestGardenApartmentCommunity

Location: Garland, TX

Project Type: Multifamily, Market Rate

Building: New Construction Clubhouse 9,116 SF

Scope: Construction Administration, FF&E Selections & Procurement Services

Social Kitchen Lobby Dome
Fireplace Lounge
Fireplace Lounge
Heather Stapleton
Media Lounge Cowork Booths Conference
Outdoor Lounge
Billiards Bar and Cowork Pods
PROCESS: FF&E Selections

Property Repositioning: Preserve at Marin

Location: Corte Madera, CA

Project Type: Multifamily, Property Repositioning Building: New Construction Clubhouse, 5,000 SF | Complete Repositioning of Existing Residential Buildings, 7 Buildings, 126 Units

Scope: Comprehensive Interior Architectural Design as part of an Integrated Design Team of Architecture, Interiors and Landscape Architecture Phases: Visioning, Schematic, Design Development, Construction Documentation, and Consulting through Construction Admin Phase

Clubhouse Fitness
Clubhouse Fitness
Clubhouse Lounge
Clubhouse Wine Room
Clubhouse Lounge to Wine Room (Beyond)
Clubhouse Pool
Clubhouse Outdoor Bbq
Clubhouse, Pool and Outdoor Bbq
New Clubhouse and Pool Overview
BEFORE: Clubhouse
BEFORE: Pool
PROCESS: Design Development (all project documentation done in Sketchup and Sketchup Layout)
PROCESS: New Floor Plan Renderinig
PROCESS: New Kitchen Renderinig
PROCESS: New Living/Dining Renderinig
PROCESS: Primary Bath Renderinig

Property Repositioning: Sakura Crossing

Location: Little Tokyo, Los Angeles, CA

Project Type: Multifamily, Property Repositioning Building: Repositioning of Key Spaces at Street Level of Mid-Rise Building Scope: Comprehensive Interiors, FF&E, and Procurement Services of Key Spaces

Blending Japanese and urban infuences to shape a dynamic, highly functional environment encompassing the lobby, reception and concierge, mailroom, elevator lobbies, and the transformation of the business center into dedicated conference and coworking spaces.

Heather Stapleton
PROCESS: Lobby Entry Podium Rendering
PROCESS: Lobby Lounge and Reception Podium Rendering
PROCESS: Lobby Banquette and Corridor (Beyond) Podium Rendering
PROCESS: Lobby Scope Plan Perspective
BEFORE: Reception
BEFORE: Lobby
PROCESS: Lobby Scope Demo Plan
PROCESS: Finish Palette
Heather Stapleton
PROCESS: from Field Direction Package BEFORE: Business Center
PROCESS: New Conference and Cowork Plan
PROCESS: Cowork and Conference Rooms Podium Rendering
PROCESS: Corridor Podium Rendering
PROCESS: Elevator Lobby Podium Rendering
PROCESS: Mailroom Podium Rendering
BEFORE: Mailroom
BEFORE: Elevator Lobby
BEFORE: Corridor

Property Repositioning: Domain WeHo

Location: West Hollywood, Los Angeles, CA

Project Type: Multifamily, Property Repositioning Building: Repositioning of Key Spaces at Street Level in Mid-rise Building Scope: Comprehensive Interiors, FF&E, and Procurement Services of Key Spaces

Infused the property’s vibrant pop-art identity into a refresh of the original Jonathan Adler–designed lobby, creating an immediate expression of the building’s energy and character. The space was reprogrammed to accommodate an enclosed package room through the relocation of the coffee bar and leasing functions. A curved coffee-bar hub was introduced to wrap a central column and support clear circulation, while consolidating the security and leasing desks created space for a focal wall, place for leasing presentation and a more fexible seating layout.

BEFORE: Lobby

Heather Stapleton
1. Lobby Entry towards Leasing Reception and Coffee Bar (Leasing offce beyond)
4. Mailroom and Lobby Banquette
3. Lobby Entry towards Coffee Bar and Leasing Offce
2. Lobby towards Coffee bar, Lounge and Banquette Seating (Mailroom beyond)
5. New Package Room
Lobby Floor Plan
PROCESS: FF&E Selections
PROCESS: Branded Inspiration
PROCESS: Visioning
PROCESS: Finish Palette

Prototyping: Clubhouses

Integrated design and coordination of multifamily clubhouses, encompassing leasing, coworking, conferencing, social gathering, lounging, mailroom, and ftness functions. This resulted in refned and fully coordinated standardized templates for both medium and large clubhouse architecture and interior design. Large clubhouses included a large dome ”pod” element and a reduced half dome “pod” element were developed for the smaller scale of the medium clubhouse. Comprehensive fnish, lighting, and plumbing specifcation packages were developed and tailored to the specifc context and location of each property.

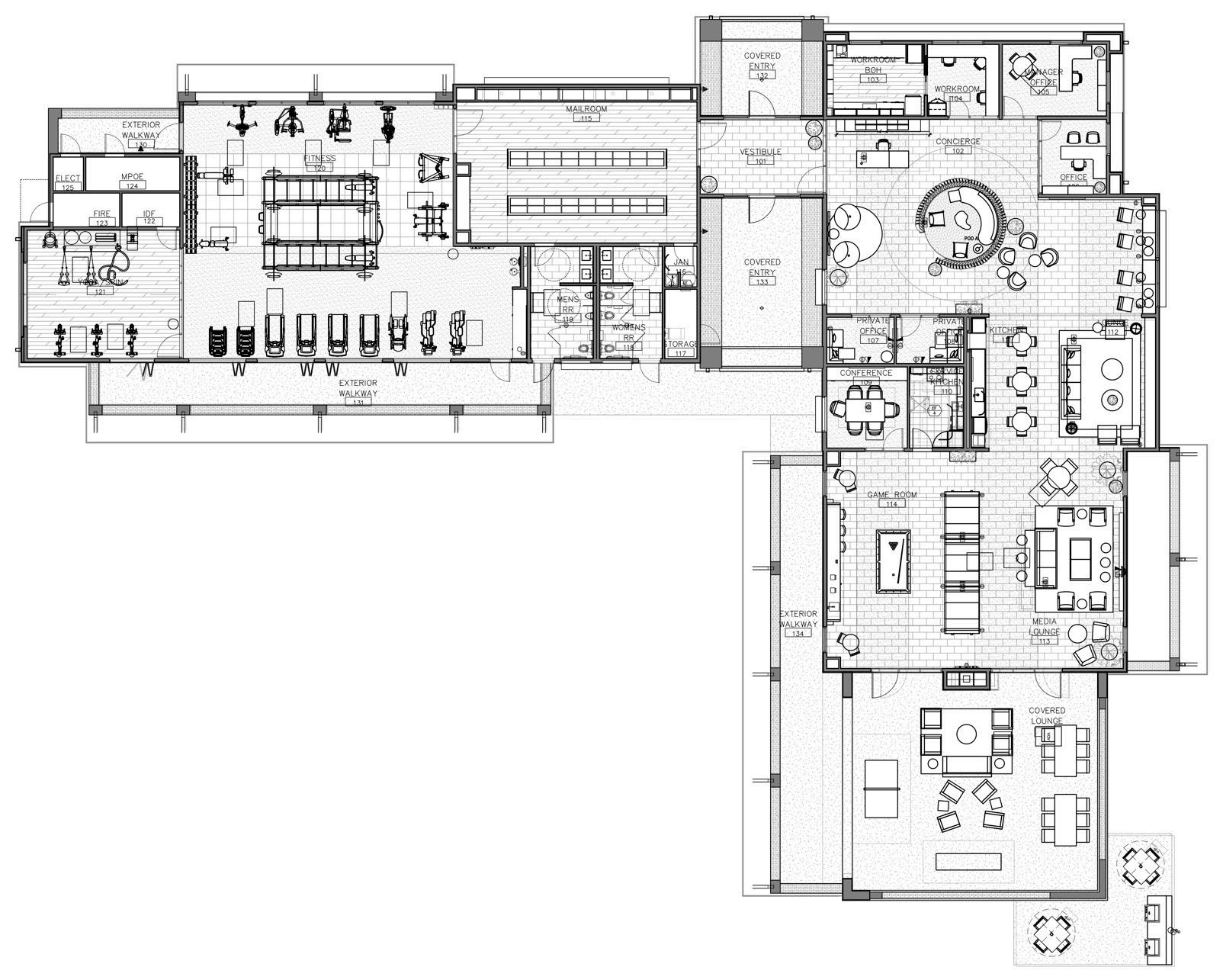
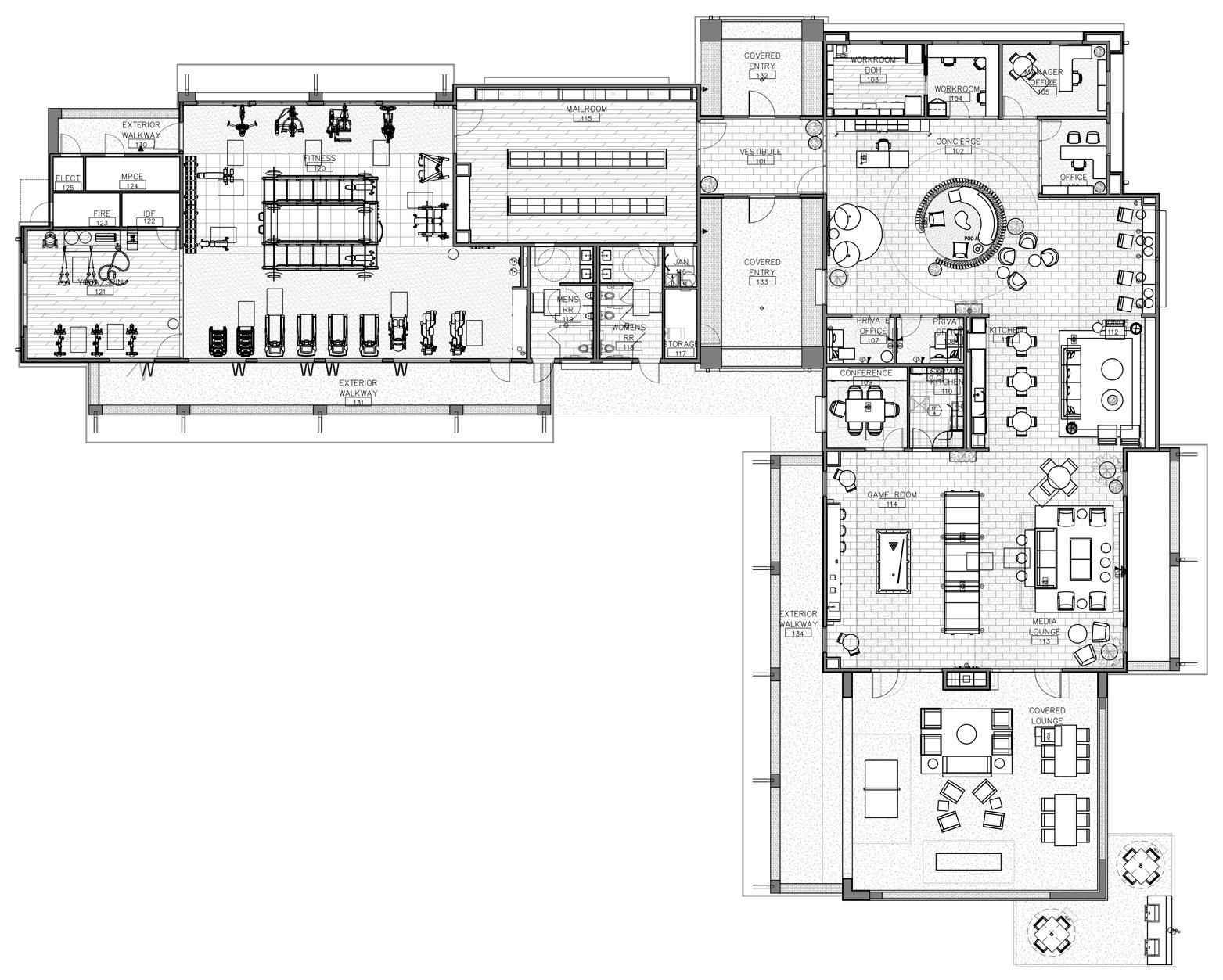
Lobby: Large Clubhouse Prototype (LVB, Las Vegas, NV)
PROCESS: Lobby Prototype Rendering: Large Clubhouse, LVB, Las Vegas, NV

Prototyping: Large Clubhouse | Dome

Development of the dome “pod” to ft within the lobby space as a stand-alone element, intended for fexible coworking and semi-private meeting space, included working closely with the manufacturer to provide a barrier free design within and around the dome. The placement is coordinated within the space to accommodate lighting fxtures and provide power for coworking needs. FF&E elements were then standardized with consideration of accessibility and to support fexible meeting and coworking needs.

POD A
Dome Prototype: Large Clubhouse (Corsair, Grand Prarie TX)
PROCESS: Dome FF&E Elements Prototype, The Offset, Sacramento, CA
Lobby Floor Plan

Prototyping: Medium Clubhouse | Modifed Dome

Medium clubhouse prototypes retain the robust programming and spatial organization of the large clubhouses, reinterpreted at a more intimate scale. The signature dome “pod” was adapted for the medium lobby through a reduced footprint and and angled form to meet height clearances. Suspended, lighted ceiling “drums” create a more intimate atmosphere within the dome and ad.jacent nook, while preserving the openness of the space

Ceiling Drums
Ceiling Drum Detail
Modifed Dome: Medium Clubhouse Prototype, Santé, Henderson, NV
Dome Prototype: Large Clubhouse PROCESS: Modifed Dome Cut Angle Study

Prototyping: Clubhouse | Social Spaces

The clubhouse interiors are activated with a mix of functional lounge and social spaces for gathering, entertaining and collaborating with standardized programming, MEP and FF&E layouts.

Fireplace Louge: Medium Clubhouse Prototype, Santé, Henderson, NV
Media Louge: Large Clubhouse Prototype, Palomino, Reno, NV
Social Kitchen: Large Clubhouse Prototype, LVB, Las Vegas, NV
Game Room: Large Clubhouse Prototype, Corsair, Grand Prairie, TX

Prototyping: Clubhouse | Coworking

Flexible coworking spaces, ranging from public, semi-private and private, are woven into the clubhouse programming to support diverse personalities and work styles, enhanced by integrated acoustic and technology considerations.

Heather Stapleton
Conference: Large Clubhouse Prototype, Palomino, Reno, NV
Private Offce: Medium Clubhouse Prototype, Halogen, Phoenix, AZ
Private Offces: Large Clubhouse Prototype, LVB, Las Vegas, NV
Cowork Booths: Large Clubhouse Prototype, Filament, Garland, TX

Prototyping: Clubhouse | Ancillary Spaces

Elevated ancillary spaces carry each property’s distinctive vibe throughout the clubhouse. Exteriors spaces are activated through a lively FF&E program, creating places to play, relax and recharge.

Spin/Yoga: Large Clubhouse Prototype, Corsair, Grand Prarie, TX
Fitness: Medium Clubhouse Prototype, Santé, Henderson, NV
Mailroom: Large Clubhouse Prototype, LVB, Las Vegas, NV
Pool: Large Clubhouse Prototype, The Offest, Sacramento, CA
Outdoor Lounge: Large Clubhouse Prototype, Corsair, Grand Prarie, TX
Outdoor Lounge: Large Clubhouse Prototype, The Offest, Sacramento, CA

Clubhouse Prototype: The Offset

*NAHBPillarsoftheIndustrySilverAwardBestGardenApartmentCommunity

*FeaturedinPhoenixBusinessJournal’sBookOfListsMultifamily

Location: Sacramento, CA

Project Type: Multifamily, Market Rate

Building: New Construction Large Clubhouse Prototype 12,774 SF

Scope: Construction Administration, FF&E Selections & Procurement Services

Fireplace Louge Cowork Private Offce
Lobby Dome and Cowork Private Offce Storefronts Conference
Social Kitchen and Lobby Dome Meeting Pod (Beyond)
Heather Stapleton
Bar Detail Billiards Bar and Cowork Booths
Media Lounge and Cowork Booths
Outdoor Lounge
Mailroom
Firness
Billiards Bar Pool

Clubhouse Prototype: Palomino

*NAIOPCREAwardsWinner:MultifamilyProjectoftheYear

*PCBCGoldNuggetAwardofMerit:BestMultifamilyHousingCommunity

Location: Reno, NV

Project Type: Multifamily, Market Rate

Building: New Construction Large Clubhouse Prototype 12,774 SF

Scope: Construction Administration, FF&E Selections & Procurement Services

Fireplace Lounge
Lobby and Dome
Social Kitchen to Lobby
Social Kitchen to Cowork Booths
Heather Stapleton
Media Lounge
Billiards Bar Conference
Mailroom Packages Private Offce
Heather Stapleton

Clubhouse

Prototype: Corsair

*PCBC GoldNuggetAwardofMerit:BestMultifamilyHousingCommunity

Location: Grand Prairie, TX

Project Type: Multifamily, Market Rate

Building: New Construction Large Clubhouse Prototype 12,774 SF

Scope: Comprehensive Interiors, FF&E, and Procurement Services

Fireplace Louge
Conference
Private Offces
Social Kitchen
Lobby and Dome
Heather Stapleton
Billiards Bar
Media Lounge
Outdoor Lounge
Mailroom Fitness
Yoga/Spin

Clubhouse Prototype: LVB

*NVSAAJewelAwards:BestNewCommunityDesignMultifamilyDevelopment

Location: Las Vegas, NV

Project Type: Multifamily, Market Rate

Building: New Construction Large Clubhouse Prototype 12,774 SF

Scope: Comprehensive Interiors, FF&E, and Procurement Services

Heather Stapleton
Billiards Bar and Cowork Booths
Fireplace Louge
Billiards Bar
Social Kitchen
Media Lounge
Media Lounge
Fitness Yoga/Spin
Mailroom
Conference
Cowork Private Offces
Lobby and Dome
Pool
Fireplace Louge
Media Lounge
Outdoor Lounge
Outdoor Lounge

Clubhouse Prototype: Santé

*NVSAAJewelAward,Finalist:BestNewCommunityDesign

Location: Henderson, NV

Project Type: Multifamily, Market Rate

Building: New Construction Medium Clubhouse Prototype 7,956 SF

Scope: Comprehensive Interiors, FF&E, and Procurement Services

Fireplace Louge
Conference
Social Kitchen
Social Kitchen
Cowork Pod and Nook (Beyond)
Heather Stapleton
Mailroom
Media Lounge
Pool
Outdoor Lounge
Billiards Bar

Clubhouse Prototype: Halogen

Location: Phoenix, AZ

Project Type: Multifamily, Market Rate

Building: New Construction Medium Clubhouse Prototype 7,956 SF

Scope: Comprehensive Interiors, FF&E, and Procurement Services

Add:AdaptiveReuseofsalvagedelementsfromthesite’sformermovietheater

Cowork Pod and Nook (Beyond)
Cowork Private Offce Conference
Fireplace Lounge to Lobby (Beyond)
Social Kitchen
PROCESS: Adaptive Reuse of Salvaged Movie Theater Poster Boxes
AdaptedasBacklitGraphicsMural
SalvagedMoviePosterBoxes
SketchupRendering
PodiumRendering
Heather Stapleton
Billiards Bar
Outdoor Lounge Outdoor Lounge Pool
Media Lounge
Heather Stapleton
PROCESS: Adaptive Reuse of Salvaged Movie Theater Spotligts
PROCESS: Podium Rendering, Adaptive Reuse of Salvaged Movie Theater Letters
Fitness
Exterior Movie Theater Lights
Mailroom
Heather Stapleton

Senior Living: Sagewood at Daybreak

*NAHB Winner:Bestof55+Housing

*PCBCGoldNuggetAwardofMerit:BestSeniorHousingCommunity

Location:SouthJordan,UT

ProjectType:MultifamilySeniorLiving|Independent,AssistedandMemoryCare Building:NewConstruction238,315SF

Scope:ComprehensiveInteriorArchitecturalDesignaspartofanIntegrated DesignTeamofArchitecture,InteriorsandLandscapeArchitecture

Heather Stapleton
Dining Room
Great Room

Affordable Housing: August Wilson Place

EvergreenSustainableDevelopmentStandardCertifcation

Location: Bellevue, WA

Project Type: Multifamily, Affordable Housing

Building: New Construction 52,107 SF

Scope: Comprehensive Interior Architectural Design

Community Room Fireplace and Kid Playroom (Beyond)

Development: Via de Lerry Condominiums

Location: Cabo San Lucas, Baja California Sur, Mexico

Project Type: Multifamily Condominium

Building: 18,500 SF

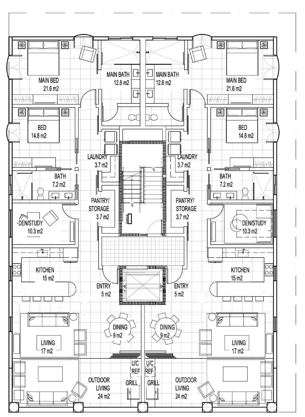
Scope: Developed conceptual architecture and unit foor plans, along with a rooftop amenity vision and interior and exterior fnish concepts, supported by zoning and regulatory research for a developer investor marketing package.

Residential Levels 2-4
Buidling Development Overview
Rooftop Elements Visioning
Residential Interiors Visioning
Architectural Elements Visioning

Development: Airport Bungalows

Location: San Jose del Cabo, Baja California Sur, Mexico

Project Type: Hospitality / Multifamily

Site and Building: 10,000 SF

Scope: Developed a site planning concept that integrates the existing residence with new communal outdoor spaces, alongside unit layouts and conceptual designs for private short-term rental residences to support a developer investment package

Heather Stapleton
Site and New Development Overview

Exterior Colorization: Canyon Woods

Location: San Ramon, CA

Project Type: Multifamily, Property Colorization

Scope: Infused a refreshed mountain-oasis identity into the exterior color palette and signage, creating intuitive wayfnding and unifying a previously disjointed community set against a golf course and surrounding mountain landscape.

BEFORE: Buildings
BEFORE: Bulding Entry
BEFORE: Clubhouse and Signage

Exterior Colorization: Living at Santa Monica

Location: Santa Monica, CA

Project Type: Multifamily, Property Colorization

Scope: Exterior refresh of an architecturally eclectic collection of properties in the heart of Santa Monica, California. Color palettes and material applications drew inspiration from the local context and coastal vibe, and tailored to each property’s unique architecture and branding.

Stapleton
PROCESS: Concept
BEFORE: Building Exterior
Rendered Elevation
AFTER: Building Exterior

Exterior Colorization: Living at Santa Monica

Location: Santa Monica, CA

Project Type: Multifamily, Property Colorization

Scope: Exterior refresh of an architecturally eclectic collection of properties in the heart of Santa Monica, California. Color palettes and material applications drew inspiration from the local context and coastal vibe, and tailored to each property’s unique architecture and branding.

Heather Stapleton
Rendered Elevation
PROCESS: Concept BEFORE: Building Exterior
AFTER: Building Exterior

Exterior Colorization: Living at Santa Monica

Location: Santa Monica, CA

Project Type: Multifamily, Property Colorization

Scope: Exterior refresh of an architecturally eclectic collection of properties in the heart of Santa Monica, California. Color palettes and material applications drew inspiration from the local context and coastal vibe, and tailored to each property’s unique architecture and branding.

Heather Stapleton
Rendered Elevation
PROCESS: Concept
Building Exterior
AFTER: Building Exterior

Exterior Colorization: Living at Santa Monica

Location: Santa Monica, CA

Project Type: Multifamily, Property Colorization

Scope: Exterior refresh of an architecturally eclectic collection of properties in the heart of Santa Monica, California. Color palettes and material applications drew inspiration from the local context and coastal vibe, and tailored to each property’s unique architecture and branding.

Heather Stapleton
PROCESS: Concept
Rendered Elevation
BEFORE: Building Exterior
AFTER: Building Exterior

Exterior Colorization: Living at Santa Monica

Location: Santa Monica, CA

Project Type: Multifamily, Property Colorization

Scope: Exterior refresh of an architecturally eclectic collection of properties in the heart of Santa Monica, California. Color palettes and material applications drew inspiration from the local context and coastal vibe, and tailored to each property’s unique architecture and branding.

Heather Stapleton
PROCESS: Concept
Rendered Elevation
BEFORE: Building Exterior
AFTER: Building Exterior

Exterior Colorization: Living at Santa Monica

Location: Santa Monica, CA

Project Type: Multifamily, Property Colorization

Scope: Exterior refresh of an architecturally eclectic collection of properties in the heart of Santa Monica, California. Color palettes and material applications drew inspiration from the local context and coastal vibe, and tailored to each property’s unique architecture and branding.

Heather Stapleton
PROCESS: Concept
Rendered Elevation
BEFORE: Building Exterior
AFTER: Verona towards Livorno Building Exterior

Wine Cabinets & Cellars: Hospitality

Development of designs, 3D models, and coordinated shop drawings for custom refrigerated wine displays and wine cellars in collaboration with leading hospitality and high-end residential design frms, supporting fabrication and installation.

Kimpton Santo, San Antonio, TX
Champagne & Caviar Bar at RH Guesthouse, New York City, NY
Alla Vita, Chicago, IL
Dean’s Steakhouse, JW Marriott, Charlotte, NC
Resident Wine Vault, St Regis, Chicago, IL
Ci Siamo, New York City, NY

Wine Cabinets & Cellars: Residential

Development of designs, 3D models, and coordinated shop drawings for custom refrigerated wine displays and wine cellars in collaboration with leading hospitality and high-end residential design frms, supporting fabrication and installation.

Turn static files into dynamic content formats.

Create a flipbook