Skip to main content

Wendell Falls, Lot 2234

Page 1

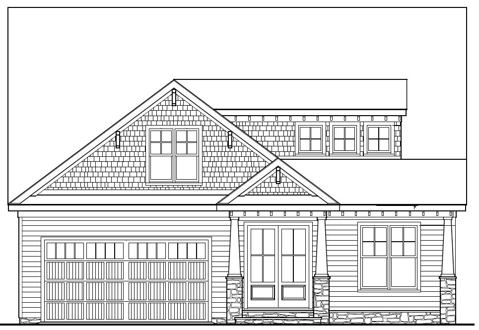
WENDELL FALLS

CONCORD | LOT 2234

SELECTIONS

Please understand the actual colors of your selections may vary slightly from your monitor and these pictures. We cannot guarantee that the color you see accurately portrays the true color or texture of the product

sw

7652mineraldeposit SIDING

sw

9165gossamerveil TRIM

sw

7044amazinggray FRONTDOOR

exterior
c | lot
wendell falls | concord
2234
Handleset Roof Stone

Please understand the actual colors of your selections may vary slightly from your monitor and these pictures. We cannot guarantee that the color you see accurately portrays the true color or texture of the product

Flooring: RevWood
Carpet Interior Doors sw 7035aestheticwhite BALANCE|TRIM interior
sw 9168elephantear G R E ATROOMBEAMS
Fireplace Tile - 5x5
SELECTIONS
wendell falls |
c | lot 2234
concord

Preliminary Cabinet Drawings

SELECTIONS kitchen

Please understand the actual colors of your selections may vary slightly from your monitor and these pictures. We cannot guarantee that the color you see accurately portrays the true color or texture of the product

Perimeter

Tops, Quartz: Miami White

Backsplash: 3x12

Install Pattern: Bricked

Faucet

Cabinet Doors: Preston in Glacier
wendell falls | concord c | lot 2234
Island Cabinet Doors: Preston in River Rock

Please understand the actual colors of your selections may vary slightly from your monitor and these pictures. We cannot guarantee that the color you see accurately portrays the true color or texture of the product

SELECTIONS Tops, Quartz: Miami Vena Cabinet Doors: Preston in Gray Mist Floor Tile: 12x24 Install Pattern: 1/3 Offset Perpendicular to Door
laundry room
Cabinet Drawings
falls | concord c | lot 2234
Preliminary
wendell

Please understand the actual colors of your selections may vary slightly from your monitor and these pictures. We cannot guarantee that the color you see accurately portrays the true color or texture of the product

Tops, Quartz: Miami Vena Floor Tile: 12x24 Install Pattern:1/3 Offset Perpendicular to Door Shower Floor Tile: 1” Hex Shower Wall Tile: 4x16 Install Pattern: 1/3 Offset Cabinet Doors: Preston in River Rock Preliminary Cabinet Drawings
owner’s bathroom SELECTIONS
wendell falls | concord c | lot 2234

Preliminary Cabinet Drawings

1st floor primary bath

SELECTIONS

wendell falls | concord c | lot 2234

Please understand the actual colors of your selections may vary slightly from your monitor and these pictures. We cannot guarantee that the color you see accurately portrays the true color or texture of the product

Mirror

Cabinet Doors: Preston in River Rock

Tops, Quartz: Miami Vena

Flooring: RevWood

Shower Wall Tile: 13x13

Install Pattern: Straight

bathroom 3 SELECTIONS

Please understand the actual colors of your selections may vary slightly from your monitor and these pictures. We cannot guarantee that the color you see accurately portrays the true color or texture of the product

Tops, Quartz: Miami Vena Floor Tile: 12x24 Install Pattern: Straight, Perpendicular to Door Cabinet Doors:Preston in Glacier
Preliminary Cabinet Drawings
wendell
falls | concord c | lot 2234

preliminary lighting SELECTIONS COMING SOON

wendell falls | concord c | lot 2234

Turn static files into dynamic content formats.

Create a flipbook