Hiren Khare Architecture BA Portfolio

Page 1


Hiren KHARE Portfolio

Building Design (Axonometric/Elevation/Section drawing, Modelling, Texture and Skin

Observational Sketching, Life Drawing - Cathedral and HKU/CUHK summer course

Modelling (Quick paper/cardboard, Scaled card, Sketchup, CAD, plaster/clay, stone carving)

AHospitable Retreat (Revit)

A hospital inspired by the warm tropical climate of Sri Lanka and delivered by its proud colours and microclimate driven structural components.

Detailed cladding whose elements come together with windows and horizontal fins for sunlight control

Open plan layout originally and is now closed by a stainless steel glass-cased roof trapezoid.

Development models created to show the exoskeleton or “skin” of the facade

Initial fixtures, plan and facade views.

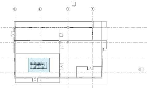
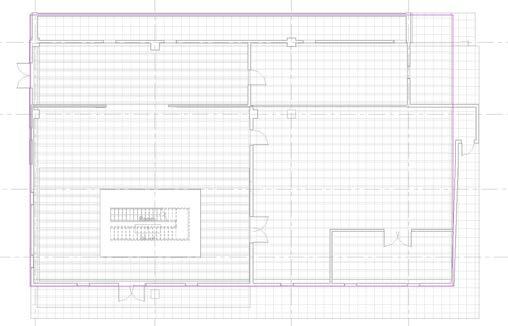
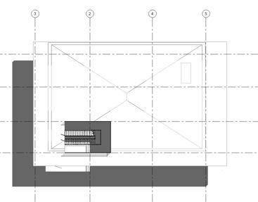
Here are a few process layout sections of the hospital in the North-West side.

Working out the summer and winter solstice using Revit and focusing particularly on how the sun daylights the environment and how the natural lighting improves balance inside.

Building Design

Through developing a site plan, I was set to work with my shape and discover ways to best utilise this space.

Constant changes and improvements were first completed by plan in order to create the subsequent models and axonometrics.

Model view - South
Model view North East
Model view West

Spaces on a Bridge

Site Planning

The importance in site planning involved me evaluating the site space during field trips, creating grids and sorting where each area is and what function each area serves. I decided to evaluate the climate as well, specifically where the sun and wind were affecting the space from and using that information to help me to create shapes and forms and sections to inform how a space in this area is used.

Stairs Elevation Stairs Plan

Cordwainer Institute Section

Texture and Skin

Mineral wool for the Insulation (0.037 W/mk) Between studs or cavity

Plasterboard

Cordwainers’Institute Sketchup Model

Cordwainers’Institute Twinmotion Render Model

At my time in the LWK studio, I explored different solutions for the first floor canteen and main entrance circulations. By attempting various sketches, I was able to discuss the advantages and disadvantages of each solution. This challenged me to contextualise and conceptualise the space using AutoCAD software and sketchup.

software: Plan idea of factory

Due to our clients from China that invested in our project, they required office spaces in the factory for workers and visitors. Hence, I used hatching techniques to create a sense of contour in the structure. Conceptualizing the setting helped me develop the structure, interior and exterior of the final factory model, using AutoCAD.

Landscape in Okinawa, Japan

Onna Island, Cape Manzamo

Plan scale 1:2500

Observational

I use cocktail sticks with some strapped bandages to show the renovation of shattered buildings in Happy Valley, Hong Kong being reconstructed using bamboo scaffolding technique.s

Oil pastel A Summer Ride Sketch Lippo Centre

By using darker tones through shading, I was able to create a sense of dimension or depth to the structure. This helped me inform a better sense of scale and proportion. Lighter tones help to add contrast and put attention to the facade. Paul Rudolph’s design of the facade has been believed to resemble koala bears climbing a tree trunk.

Through studying horses, I came across various opportunities to focus on the tone, shadow and depth using oil pastel colours.

This is an observational sketch of the modernist style of the lippo centre. I used charcoal and sketch pencils.

Acrylic Painting Skull Island and the Escape Cave

A Glowing Treehouse

The vision behind this came from Tana Toraja, “The Land of the Dead”. Being renowned for their elaborate funeral rites and wood carvings by rocky cliffs, the Torajans celebrated death.

The inspiration behind this came from the Golden Moon exhibition. This painting required detailing and underpainting techniques to represent the concept of a Chinese lamp.

Canterbury Cathedral Life Drawing

Rhino Software

SHOES PROJECT

I created various type of lamp shades using cardboard, hardened clay and balsa sticks to test lighting effects. The purpose of this project was for me to understand and see how light sources deflected and bounced of different types of designs.

PHYSICALMODELSAND CAD

These are different types of models (lego, vacuum forming, wood, CAD) I used for landscapes and for product design.

A journey to Rome had revealed some of the world’s most exciting architecture. By researching 14th-15th century style architecture, in Renaissance period, I discovered symmetry & proportion. I incorporated various structural elements and knife/line techniques to create arches, ionic columns, corinthian entablatures, and studied the doric order from ancient temples of 7th century BC.

A Crystal Wave

Gerrit Rietveld Schroder house incorporates the ideals of De Stijl to organise a sequence of clever, flexible coloured spatial separations. Fundamentally, it comes down to its modernist ‘style’, decorative geometric lines, abstruse proportion and flexibility of open spaces. An example of this can be seen from sliding doors connecting various floor levels while wooden window panels with shutters within it simultaneously protect against the cold winters.

Inside Athens’ Hephaestus
Schroder House

3D Printer Filament Case Project

This project was based on focusing towards creating a final printer case product that I could deliver for production in a manufacturing company. I used Autodesk Fusion 360 in order to help me to create my ideas from previous design ideas and sketch models. From there, I learned how to create and incorporate engineering part and assembly construction drawings.

Turn static files into dynamic content formats.

Create a flipbook
Issuu converts static files into: digital portfolios, online yearbooks, online catalogs, digital photo albums and more. Sign up and create your flipbook.