LIFE FERRY BEYOND LIFE Narrative Garden Design for a Hospice [Graduate work | University of Edinbur

Page 1


Design Archive OF THE GARDEN LIFE FERRY BEYOND LIFE

IT IS NOT A BROOK , BUT IT CAN FETTY , IT ONLY EXIST , BECAUSE YOU NEED IT.

Yixuan Zhang S2558500

Group member(s):Siruo Qu,Wenting Shi,Mingjun Liu [team of4]

Tutor(s): Chris Rankin, Hazel Mei

1 LANDING ( p1-4 )

2 GROUNDING ( p5-9 )

3 FINDING ( p10-12 )

4 FOUNDING &MY DESIGN PROGRESS ( p13-30 )

1. On first arrival, the site is surrounded by the shadow of huge trees
3. First impressions of the site[ line drawing by groupmate]
4. Pulling the thread intuitively indicates visual perception.
2. Whenever one enters, one is confused about the path to the garden.

I visited several old people inside and outside the nursing home, and they answered my questions sincerely and kindly.

The interview was one-on-one, and I recorded all the questions asked for inspiration.

The elderly who lived a regular life enjoyed hiding in those happy memories in the early morning sunshine of the canteen.

When I interviewed elderly people in the nursing home, I was almost shaken to my core by what one of them said during the interview.

Why use the word ''hide in good memorise'', too scared to know the truth about death or endless furture?

He says he is now well clothed, well fed and surrounded by people who care and look after him. But what he misses most as he goes through his day is the vibrant laughter, so different from the atmosphere at home.

Physiological death is only a matter of time; people fear it because of the unknown and tend to run away from it; death itself is an everyman event; passing away is not the end, but ferry to the next journey.

Each of us was an experimental recorder and operator, feeling, measuring, approaching, touching like a blank piece of paper, claiming nature for ourselves and experiencing it.

See how the two walls combined. Watching birds to see what they ate.

Wall watching,bugs finging,walking along the old wall.

We were like detectives , looking for clues, pulling the threads...

2 GROUNDING Humanistic Research

Throughout my team's interviews and research, I felt the humanity that this place brings, the warmth of the charity's care is people centred, which prompted me to develop a great interest in humanity landscapes, and in particular places that care for special groups

Compared to the neighbourhood parks and public spaces around the site, this spot is different in that it is frequented by a specific group of people (the elderly and those who like to be quiet and alone) and it has a great deal of potential functionality that has yet to be exploited, and is currently still in a private and reserved stage.

Interpersonal relationship showcase

Old people and volunteers get together in front of the building to have a meeting

Volunteers of many ages help to build together

Children often come to drink coffee, waiting for parents to pick them up

Volunteers help to prune fruit trees

History Researches

On Ferry Road

Ferry Road is one of the major roads of Edinburgh, Scotland, deriving its name from being the road from Queensferry to Leith.

On The Old Road Inside Ashbrook

The adventurous spirit of former ports is deeply intertwined with the nation's maritime history, exploration.

This explains why there is a break in the height of the trees in the jungle, like a gap.

Clue Collation

NAMES & USES:

1-3:In site all trees details information [Including all the original positions of the site]=for future design maintainess and remove

4: PH of soil=Conducive to the creation of soil environment,Select tree species.

5:Height and position of trees=helps in design space longitudinal reference.

6: 5 ~ 15 Years

Extrapolation of tree crowns=Spatial reference.

7:Impact of trees on noise=In design spatial arrangement.

Shadow Range Measurement Method

Section Of The Site

We chose to record the location of site shadows at fixed points throughout the day.

Contour Line Valuation Method

The plan was refined and organised to facilitate the subsequent design of the site. We chose to use the heights of the people in the framed photographs as a reference.We calculated the height of each point on the site and plotted the contour lines.

The Meaning Of Ashbrook

The two ways out represent the spirit of adventure, and the meaning of ferry has always been there.

Symbolically, entering the entire site, there is a feeling of an island closed off, each person caught in their own cycle, cocooned.

Like the old man being interviewed, hiding in his own sunny memories, not thinking about the gloom, running away, afraid of his own old age.

Mapping Showing The Spirit

The site carries a special character as the junction of two important transport hubs and a place of care for special groups, but being in such a closed and isolated state, we need to open it up and connect it, turning it into a place that carries our spiritual power and represents more of a spirit that will never die.

Ashbrook
Railway
Ferry Road

My Reflections

The red thread represents a person's long journey through life, we are all wandering in a woven web, and the knots made by the thread prove that there are memorable moments in our lives.

My Main Topic

Mental health problems can contribute to feelings of emptiness and despair.As people age, they may engage in existential reflections on life, purpose and mortality. For some, this process can lead to contemplation of death and what it means for their own lives, and conditions such as depression and anxiety are not uncommon among older people. The following design will start from the idea of exploring and solving the ultimate problem of death, how to better live in the present, understand this topic that everyone avoids, and heal and relieve the anxiety of people, especially the elderly.

Unwrap the cocoon, discuss life, and unravel the spiritual dilemma

Threading the major nodes with lines to form the original route.

Garden accessibility is hidden,we need a more direct entrance.

Traction lines represent paths in the model.

Square gardens are too directional and the paths in them are too straight, so as not to spoil his beauty, the paths are used to pass through the centre.(left)

From the first viewpoint, the straight path gives a strong visual impact, leading us in.

N 5m

Gained from group study

The fence needs to be removed, obstructing pedestrian traffic

The original plant planting is around the old path,To avoid removing too many tree species,The jungle path is built on the basis of the original. road

Jungle exploration area

After illumination analysis,Make rational use of sunny places.

Sensory Flower

Ecosystems around stone walls in different ages,So that the children will be interested,Add fun to jungle exploration.

Some trees get sick and die. Considering the rational use of its location

After sound analysis,,The area with strong noise like the party area site is placed on the outside.

MODIFIED ITEMS

Transplanted trees and Transferred facilities

Trees cut down and removed facilities

5 The rebirth of death

4 The choice of no option

A better attitude towards life will come from knowing that there is an end to one's life, but death is not the end, the end of all life is the beginning of a new life. Dive into death's embrace—no evasion. Talk, feel, understand, and let its essence flow through you. Geometric laws VS disorganisation, flower bed patterns

3 The certainty of uncertainty

2 The possibility of impossible

1 The begining of the end

Feelings : Dizzy,darkness , blocked,squeezed, anxiety, shocked,fear. Surrounded by vines,Seeing a direct way down to the end.

End=the other side=demise, begining=doorway= start life journey

Feelings:Like a maze,absurd,confused,finding ways out.

Wooden structure with curved words.

Possibility=Different options of ways Impossible= Lose in the woods

Choice Of No Option

Feelings: Exploring,doubtfully, the road not much taken. The hidden road in the shade.

Certainty=The road you choose=Firmly

Uncertainty=Not much people chose

Feelings: Exploring,doubtfully, the road not much taken. The hidden road in the

Certainty=The road you choose=Firmly Uncertainty=Not much people chose

5 The Rebirth Of Death

Feelings:mirror,interact,reflection,surpri sed,brightened. The dead wood is full of vitality. Rebirth=still ways to go=beyond Death =dead end= the ultimate question

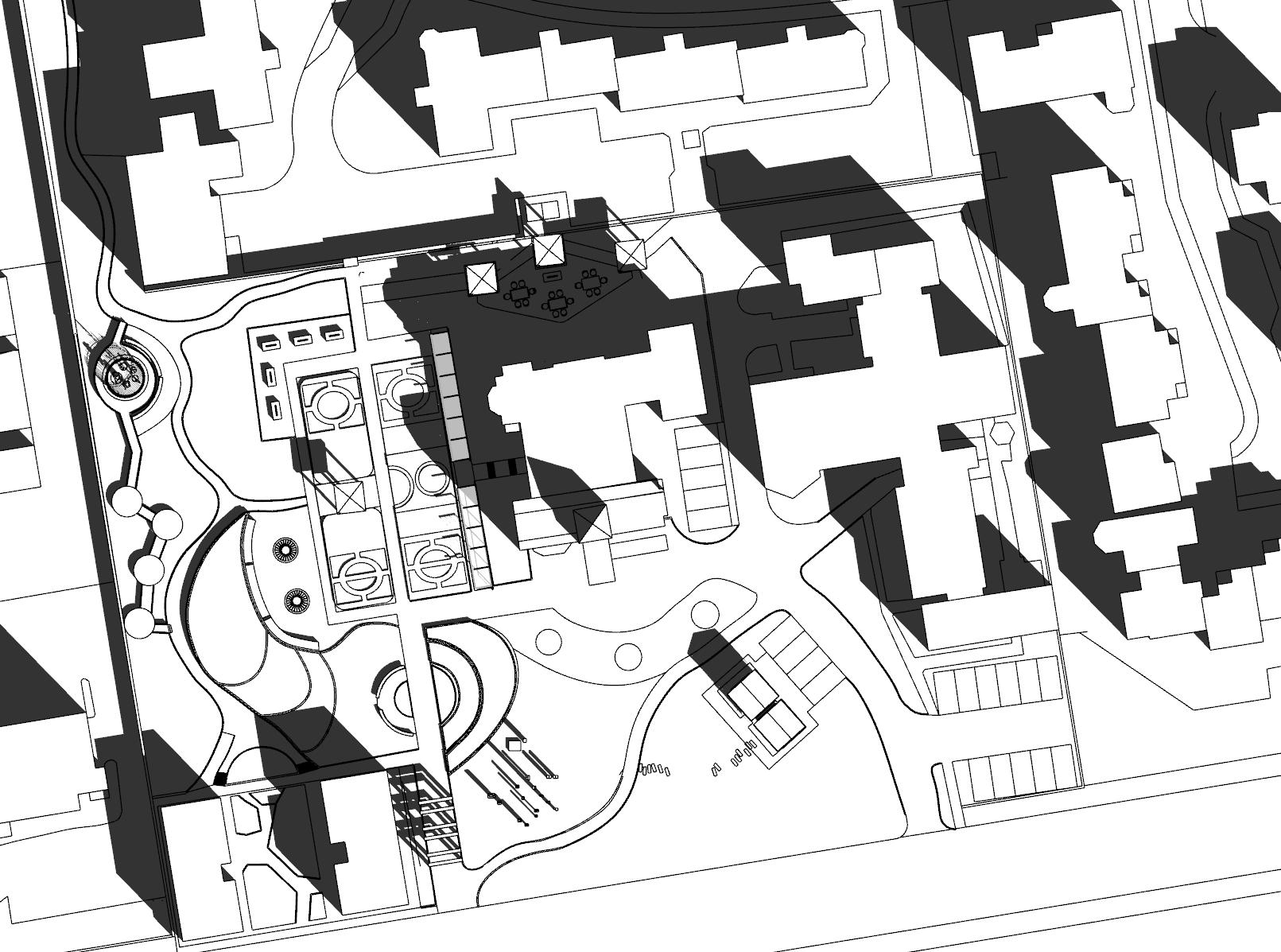
EXPLOSION DIAGRAM OF FUNCTIONAL ANALYSIS

Bird's-eye

METHODS OF PUBLICIZING THEMES AND EXPAND CHARITY

Packet of seeds with Theme printed on. Seeds charity shops near the parkinglot

SKETCH AND MANUAL DISPLAY OF SEED BAG

Quick and easy to grow

To promote the concept(like:Chiltern Seeds)

Representation of special meaning easy to spot

Visit any time(like: wild daffodil)

Sow seeds ,in irregular flower beds

Dry ,mixed seeds

Wrapped in degradable paper

As:Inspire children to be interested in;grown-ups’ motional sustenance

Leveling the seeds Packaging

Print theme on it

A complete package of seeds with leaflets printed on it,For people to read

Sensory Flower Bed

The Certainty Of Uncertainty Position

Experience your senses.

Explore the path you choose.

Touchable height when walking.

Bird watching area

The certainty of uncertainty:Experience the process of exploring yourself on this unknown road,every step is very firm .

Bird watching area details display

Fruit picking area

Just like the fruitful results on the road of life,to feel life full of surprises.

A bumper autumn

Adequate rest area

The Rebirth Of Death

Observe the vitality of a rotten wood at close range.Reflect yourself in the water.

Tree detail display

A fan trained Fagus sylvatica

It is the end of a road,But it is the beginning of the other two roads.

Self-sown seeds

The Choice Of No Option

Feel half freedom on the road of life under the rules that have been made.

Regular maintenance and prescribed planting

Because there are so many rainy and cloudy days,I designed specific shelters.

You can also enjoy sufficient light on rainy days.

Rain shelter
Wind and sun shading shelter

THANK YOU FOR READING We HOPE TO BREATHE SOUL INTO THIS SITE.

Turn static files into dynamic content formats.

Create a flipbook
Issuu converts static files into: digital portfolios, online yearbooks, online catalogs, digital photo albums and more. Sign up and create your flipbook.
LIFE FERRY BEYOND LIFE Narrative Garden Design for a Hospice [Graduate work | University of Edinbur by Kitty Zhang - Issuu