
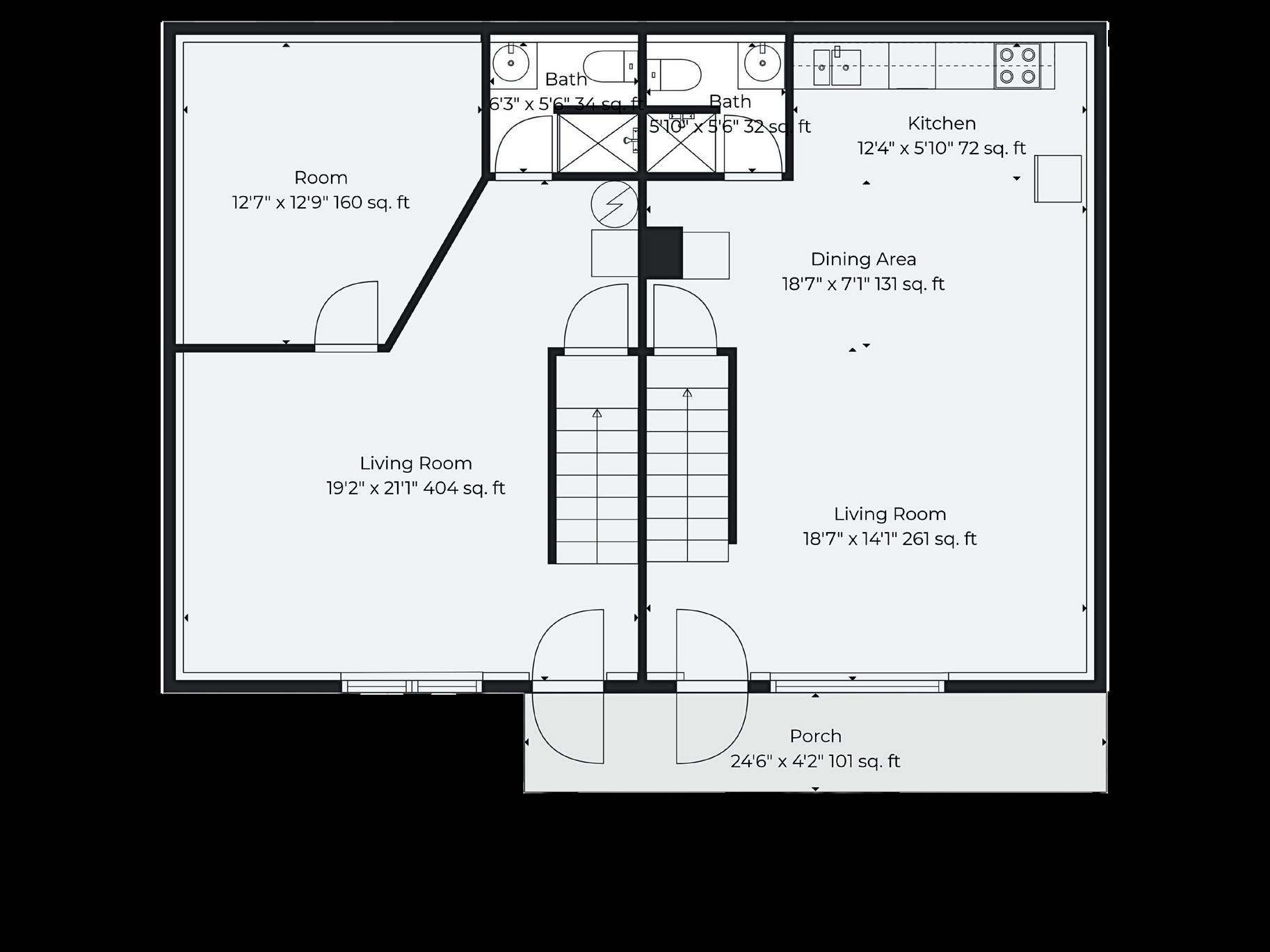
Units A+B Duplex: 2 Beds, 3 baths each Unit C off garage (w/lift): 1 Bed, 1 bath apt. 2.27 acres including direct access to Melendy’s Pond, covered bridge to oversized barn, and even a mini waterfall



























PROPERTY DISCLOSURE - RESIDENTIAL ONLY
New Hampshire Association of REALTORS® Standard Form TO BE COMPLETED BY SELLER

The following answers and explanations are true and complete to the best of SELLER'S knowledge. This statement has been prepared to assist prospective BUYERS in evaluating SELLER'S property. This disclosure is not a warranty of any kind by the SELLER, or any real estate FIRM representing the SELLER, and is not a substitute for any inspection by the BUYER. SELLERS authorize FIRM in this transaction to disclose the information in this statement to other real estate agents and to prospective buyers of this property.
NOTICE TO SELLER(S): COMPLETE ALL INFORMATION AND STATE NOT APPLICABLE OR UNKNOWN AS APPROPRIATE. IF ANY OF THE INFORMATION IN THIS PROPERTY DISCLOSURE FORM CHANGES FROM THE DATE OF COMPLETION, YOU ARE TO NOTIFY THE LISTING FIRM PROMPTLY IN WRITING.
Kelly Wisnosky and Kevin Wisnosky 12 Melendy Road, Hudson, NH 03051
WATER SUPPLY
Please answer all questions regardless of type of water supply.
a. TYPE OF SYSTEM: Public Private Seasonal Unknown Drilled Dug Other
b. INSTALLATION: Location:
Installed By:
What is the source of your information?
Town of Hudson
Date of Installation:
c. USE: Number of persons currently using the system: Does system supply water for more than one household? Yes No
d. MALFUNCTIONS: Are you aware of or have you experienced any malfunctions with the (public/private/other) water systems?
Pump: Yes No N/A
Quantity: Yes No
Quality: Yes No Unknown If YES to any question, please explain in Comments below or with attachment.
e. WATER TEST: Have you had the water tested? Yes No Date of most recent test IF YES to any question, please explain in Comments below or with attachment. Are you aware of any test results reported as unsatisfactory or satisfactory with notations? Yes No IF YES, are test results available? Yes No What steps were taken to remedy the problem? COMMENTS:
6.
SEWAGE DISPOSAL SYSTEM
a. TYPE OF SYSTEM: Public: Yes No Community/Shared: Yes No Private: Yes No Unknown Septic Design Available: Yes No
b. IF PUBLIC OR COMMUNITY/SHARED
Have you experienced any problems such as line or other malfunctions? Yes No What steps were taken to remedy the problem?
c. IF PRIVATE:
TANK: Septic Tank Holding Tank Cesspool Unknown Other
Tank Size Gal. Unknown Other
Tank Type Concrete Metal Unknown Other
Location: Location Unknown Date of Installation:
Date of Last Servicing: Name of Company Servicing Tank:
Have you experienced any malfunctions? Yes No COMMENTS:
INITIALS /
INITIALS /
PROPERTY DISCLOSURE - RESIDENTIAL ONLY
New Hampshire Association of REALTORS® Standard Form
TO BE COMPLETED BY SELLER PROPERTY LOCATION:
12 Melendy Road, Hudson, NH 03051
d. LEACH FIELD: Yes No Other
IF YES, Location:

Size: Unknown
Date of installation of leach field: Installed By:
Have you experienced any malfunctions? Yes No
Comments:
e. IS SYSTEM LOCATED ON “DEVELOPED WATERFRONT” as described in RSA 485-A? Yes No
Unknown IF YES, has a septic system evaluation been done within 180 days? Yes No Unknown
Date of Evaluation:
Comments:
FOR ADDITIONAL INFORMATION THE BUYER IS ENCOURAGED TO CONTACT THE NH DEPARTMENT OF ENVIRONMENTAL SERVICES SUBSURFACE SYSTEMS BUREAU, 603-271-3501
7. INSULATION LOCATION Yes No Unknown If YES, Type Amount Unknown
Attic or Cap Crawl Space
Exterior Walls Floors
8. HAZARDOUS MATERIAL
a. UNDERGROUND STORAGE TANKS - Current or previously existing:
Are you aware of any past or present underground storage tanks on your property? Yes No
Unknown IF YES: Are tanks currently in use? Yes No IF NO: How long have tank(s) been out of service?
What materials are, or were, stored in the tank(s)?
Age of tank(s): Size of tank(s):
Location:
Are you aware of any past or present problems such as leakage, etc? Yes No
Comments: If tanks are no longer in use, have the tanks been removed? Yes No Unknown Comments:
b. ASBESTOS - Current or previously existing:
As insulation on the heating system pipes or ducts? Yes No Unknown In the siding? Yes No Unknown In the roofing shingles? Yes No Unknown In flooring tiles? Yes No Unknown Other Yes No Unknown If YES, Source of information:
Comments:
c. RADON/AIR - Current or previously existing:
Has the property been tested? Yes No Unknown If YES: Date: By:
Results: If applicable, what remedial steps were taken? Has the property been tested since remedial steps? Yes No Are test results available? Yes No Comments:
TO BE COMPLETED BY SELLER
New Hampshire Association of REALTORS® Standard Form

PROPERTY LOCATION:
12 Melendy Road, Hudson, NH 03051
d. RADON/WATER - Current or previously existing: Has the property been tested? Yes No Unknown If YES: Date: By: Results: If applicable, what remedial steps were taken? Has the property been tested since remedial steps? Yes No Are test results available? Yes No Comments:
e. LEAD-BASED PAINT - Current or previously existing: Are you aware of lead-based paint on this property? Yes No If YES: Source of information:
Are you aware of any cracking, peeling, or flaking lead-based paint? Yes No Comments:
f. Are you aware of any other hazardous materials? Yes No If YES: Source of information: Comments:
9. GENERAL INFORMATION
a. Is this property subject to liens, encroachments, easements, rights-of-way, leases, restrictive covenants, attachments, life estates, or right of first refusal? Yes No Unknown If YES, Explain: What is your source of information?
b. Is this property subject to special assessments, betterment fees, association fees, or any other transferable fees? Yes No Unknown If YES, Explain: What is your source of information?
c. Are you aware of any onsite landfills or any other factors, such as soil, flooding, drainage, etc? Yes No If YES, Explain:
d. Are you aware of any problems with other buildings on the property? Yes No If YES, Explain:
e. Are you receiving a tax exemption or reduction for this property for any reason including but not limited to current use, land conservation, etc.? Yes No Unknown If YES, Explain:
f. Is this property located in a Federally Designated Flood Hazard Zone? Yes No Unknown Comments:
g. Has the property been surveyed? Yes No Unknown If YES, By: If YES, is survey available? Yes No Unknown
h. How is the property zoned?
i. Heating System Age: Type: Fuel: Tank Location:
Owner of Tank:
Annual Fuel Consumption: Price: Gallons: Date system was last serviced and by whom?
Secondary Heat Systems: Comments:
j. Roof Age: Type of Roof Covering: Moisture or leakage: Comments:
New Hampshire Association of REALTORS® Standard Form
TO BE COMPLETED BY SELLER PROPERTY LOCATION:
k. Foundation/Basement Full Partial Other: Type: Moisture or leakage: Comments:

l. Chimney(s) How Many? Lined? Last Cleaned: Problems? Comments:
m. Plumbing Type: Age: Comments:
n. Domestic Hot Water Age: Type: Gallons:
o. Electrical System # of Amps Circuit Breakers Fuses Comments: Solar Panels: Leased Owned If leased, explain terms of agreement: Comments:
p. Modifications: Are you aware of any modifications or repairs made without the necessary permits? Yes No If Yes, please explain:
q. Pest Infestation: Are you aware of any past or present pest infestations? Yes No Type: Comments:
r. Methamphetamine Production Do you have knowledge of methamphetamine production ever occurring on the property? (Per RSA 477:4-g) Yes No If YES, please explain:
s. Air Conditioning Type: Age: Date Last Serviced and by whom: Comments:
t. Pool Age: Heated: Yes No Type: Last Date of Service: By Whom:
u. Generator Portable: Yes No Whole House: Yes No Kw/Size: Last Date of Service: If Portable: Included Negotiable Comments:
v. Internet Type Currently Used at Property:
w. Other (e.g. Alarm System, Irrigation System, etc.) Comments:
NOTICE TO PURCHASER(S): PRIOR TO SETTLEMENT YOU SHOULD EXERCISE WHATEVER DUE DILIGENCE YOU DEEM NECESSARY WITH RESPECT TO ADJACENT PARCELS IN ACCORDANCE WITH THE TERMS AND CONDITIONS AS MAY BE CONTAINED IN PURCHASE AND SALES AGREEMENT AND DEPOSIT RECEIPT. YOU SHOULD EXERCISE WHATEVER DUE DILIGENCE YOU DEEM NECESSARY WITH RESPECT TO INFORMATION ON ANY SEXUAL OFFENDERS REGISTERED UNDER NH RSA CHAPTER 651-B. SUCH INFORMATION MAY BE OBTAINED BY CONTACTING THE LOCAL POLICE DEPARTMENT.
PROPERTY DISCLOSURE - RESIDENTIAL ONLY
New Hampshire Association of REALTORS® Standard Form TO BE COMPLETED BY SELLER
PROPERTY LOCATION:
12 Melendy Road, Hudson, NH 03051
10. ADDITIONAL INFORMATION

a. ATTACHMENT EXPLAINING CURRENT PROBLEMS, PAST REPAIRS, OR ADDITIONAL INFORMATION? Yes No
b. ADDITIONAL COMMENTS:
ACKNOWLEDGEMENTS:
SELLER ACKNOWLEDGES THAT HE/SHE HAS PROVIDED THE ABOVE INFORMATION AND THAT SUCH INFORMATION IS ACCURATE, TRUE AND COMPLETE TO THE BEST OF HIS/HER KNOWLEDGE. SELLER AUTHORIZES THE LISTING BROKER TO DISCLOSE THE INFORMATION CONTAINED HEREIN TO OTHER BROKERS AND PROSPECTIVE PURCHASERS.
SELLER(S) MAY BE RESPONSIBLE AND LIABLE FOR ANY FAILURE TO PROVIDE KNOWN INFORMATION TO BUYER(S).
BUYER ACKNOWLEDGES RECEIPT OF THIS PROPERTY DISCLOSURE RIDER AND HEREBY UNDERSTANDS THE PRECEDING INFORMATION WAS PROVIDED BY SELLER AND IS NOT GUARANTEED BY BROKER/AGENT. THIS DISCLOSURE STATEMENT IS NOT A REPRESENTATION, WARRANTY OR GUARANTY AS TO THE CONDITION OF THE PROPERTY BY EITHER SELLER OR BROKER. BUYER IS ENCOURAGED TO UNDERTAKE HIS/HER OWN INSPECTIONS AND INVESTIGATIONS VIA LEGAL COUNSEL, HOME, STRUCTURAL OR OTHER PROFESSIONAL AND QUALIFIED ADVISORS AND TO INDEPENDENTLY VERIFY INFORMATION DIRECTLY WITH THE TOWN OR MUNICIPALITY.
INITIALS /
INITIALS /

New Hampshire Association of REALTORS® Standard Form
Wisnosky and Kevin Wisnosky
3.
GENERAL INFORMATION:
a.Number of city/town approved units:
b.Number and type of appliances included in sale:
c. Number and location of washer / dryer hookups:
d.Number and type of electrical service entrances:
e.Number and type of heating systems (note ages):
f. Any rented water heaters, burners or other equipment or appliances? Yes No If yes, please explain:
g. Any other leases or contracts for services on the building? Yes No If yes, please specify:
h. Is a municipal certificate of compliance required? Yes No If yes, list date of expiration:
i. Are there any outstanding state or local lead based paint abatement orders or code enforcement orders? If yes, please explain:
j. Smoke detectors: Locations Hard-wired? Yes No
4. RENT
SCHEDULE:
Monthly Rent: If vacant please enter most recent rent.
H = Heat, HW = Hot Water, E = Electric, W = Water, S = Sewer
Have any tenants given notice or have you served notices to quit or started eviction proceedings against any
MULTIFAMILY PROPERTY DISCLOSURE RIDER
(To be used in conjunction with Property Disclosure - Residential)
New Hampshire Association of REALTORS® Standard Form

6. EXPENSE INFORMATION:
a.Annual real estate taxes and year:
b.Annual hazard insurance:
c. Annual snow removal expense:
d.Annual lawn mowing, yard maintenance expense:
e.Annual fuel consumption paid by landlord: # Gallons, cu.ft:
f. Annual electric costs paid by landlord:
g.Annual trash removal expense:
h. Annual water/sewer expenses paid by landlord:
i. Other expenses: 7. ADDITIONAL INFORMATION:
a. Attachment regarding expenses, rents, lease information or additional information? Yes No
b.Additional comments:
BUYER ACKNOWLEDGES RECEIPT OF THIS PROPERTY DISCLOSURE RIDER AND HEREBY UNDERSTANDS THE PRECEDING INFORMATION WAS PROVIDED BY SELLER AND IS NOT GUARANTEED BY BROKER/AGENT. THIS DISCLOSURE STATEMENT IS NOT A REPRESENTATION, WARRANTY OR GUARANTY AS TO THE CONDITION OF THE PROPERTY BY EITHER SELLER OR BROKER. BUYER IS ENCOURAGED TO UNDERTAKE HIS/HER OWN INSPECTIONS AND INVESTIGATIONS VIA LEGAL COUNSEL, HOME, STRUCTURAL OR OTHER PROFESSIONAL AND QUALIFIED ADVISORS AND TO INDEPENDENTLY VERIFY INFORMATION DIRECTLY WITH THE TOWN OR MUNICIPALITY. PROPERTY LOCATION:
SELLER ACKNOWLEDGES THAT HE/SHE HAS PROVIDED THE ABOVE INFORMATION AND THAT SUCH INFORMATION IS ACCURATE, TRUE AND COMPLETE TO THE BEST OF HIS/HER KNOWLEDGE. SELLER AUTHORIZES THE LISTING BROKER TO DISCLOSE THE INFORMATION CONTAINED HEREIN TO OTHER BROKERS AND PROSPECTIVE PURCHASERS.

C: 508-413-0077
O: 603-883-8400 Morgan@haynesrealtygroup.com www.morgan.findsouthernnewhampshirehomes.com





