Skip to main content

Hayley Hanson Portfolio | Spring 2026

Page 1


Selected Works | Volume II

HAYLEY HANSON
Florida State University | Interior Architecture & Design Student

CONTACT

HayleyHansonInteriors@gmail.com

641.629.6820

L inkedIn.com/in/HayleyHanson

SKILLS

Adobe InDesign

Adobe Photoshop

Adobe Illustrator

Revit

Procreate

Enscape

Hand Rendering

FF&E Selection

Craftsmanship-Oriented Design

Social Media Strategy

Graphic Design

Branding

Organization

Styling

Photography

Content Curation

AWARDS

Outstanding Undergraduate

Studio Performance, 3rd Year Spring 2025

Selected Work Exhibited as Exemplary for CIDA Accreditation

Fall 2024 - Spring 2025

Presidential Scholar Fall 2022 - Spring 2025

EDUCATION

Expected May 2026

Bachelor of Science, Interior Design, Minor in Business

The Florida State University, Tallahassee, FL

Department of Interior Architecture and Design (IAD)

GPA: 3.98

Jun 2024 - Jul 2024

Study Abroad Experience

The Florida State University International Programs, Valencia, Spain

GPA: 4.00

EXPERIENCE

May 2025 - Aug 2025

Interior Design Intern

Champalimaud Design, New York, NY

Aug 2021 - May 2022

Interior Design Intern

Elizabeth Erin Designs, Des Moines, IA

INVOLVEMENT

Aug 2025 - Present

Social Media Chair

FSU Interior Design Student Organization (IDSO), Tallahassee, FL

Jan 2024 - Dec 2024

Graphic Design & Merchandise Chair (PACE)

Alpha Chi Omega, Public Relations and Marketing Committee, Tallahassee, FL

Jan 2024 - Dec 2024

Sisterhood Support & Retreat Chair

Alpha Chi Omega, Membership Programming Committee, Tallahassee, FL

Soon:

The Lark & The Ledger

Simpson's Tavern St. Michael Cornhill
Birchin Lane
Exisiting Facade

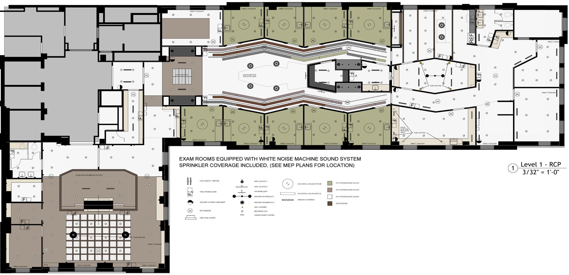
Entry/Vestibule12002000.96%A-3(Accessory)Entry/Vestibule11201200.58%M

Reception/Registration15505502.64%BSales1140014006.73%M

Concierge12002000.96%BPOS12002000.96%M Queue11501500.72%A-3(Accessory)Storage12502501.20%S-1/S-2

PrimarySocialLounge1170017008.17%A-3Office11001000.48%B

IntimateWaiting/Lounge14504502.16%A-3Breakarea11001000.48%B(Accessory)

BusinessCenter13003001.44%B Totals 62170217010.43% 70%

PublicRestrooms24509004.33%Accessory

MonumentalStair17507503.61%Accessory

Circulation13500350016.83%Accessory

Level 1 Back of House

Room TypeTagQTYUnit SFTotal SF% of LevelOccu.

Elevator22004001.92%AccessoryEmployeeLockerRm22505002.40%B(Accessory)

Totals 138450910043.75% 70%EmployeeRR22004001.92%Accessory EmployeeBreakRm15005002.40%B(Accessory)

Level 1 Tavern ManagerOffice11501500.72%B

Room TypeTagQTYUnit SFTotal SF% of LevelOccu. Offices21202401.15%B

Entry11501500.72%A-2Elevator22004001.92%Accessory

Host/Hostess11501500.72%A-2EgressStairs23507003.37%Accessory

OpenLoungeAreas21200240011.54%A-2Circulation1180018008.65%Accessory

PrivateLounges23006002.88%A-2 Totals 123570469022.55% 30%

Bar1100010004.81%A-2

Wait/POSStations21002000.96%Accessory

TapRoom12002000.96%Accessory

LiquorStorage11501500.72%S-2(Accessory) Totals 113250485023.32% 30%

Level SF 20,800 Used20810

Room TypeTagQTYUnit SFTotal SF% of LevelOccu. TavernDining11600160029.63%A-2

LoungeSeating180080014.81%A-2

WaitStaffCirculation13003005.56%Accessory

GeneralCirculation180080014.81%Accessory

GardenLounge11500150027.78%A-3

FlexZone14004007.41%A-3 Totals 654005400100.00% 30%

LARK & LEDGER

The Lark & The Ledger is a boutique hotel & residence concept in London’s Square Mile centering on the balance between architectural order and human warmth. Drawing from the district’s financial legacy, the ledger informs clear spatial hierarchy, disciplined geometry, and quiet authority. In contrast, the lark introduces softness and lift through avian and botanical references, tactile materials, and layered detail. Public spaces transition from civic formality to intimate, residentially scaled refuge, supporting both connection and retreat. Appealing to sophisticated, design-savvy professionals, Lark & Ledger establishes a composed yet inviting atmosphere that tempers precision with grace.

HAYLEY HANSON

Bluebird Lane

THE BLUEBIRD'S SONG

The Williamses’ Atlanta residence draws inspiration from the Eastern Bluebird, a native symbol of joy, family, and continuity. Guided by research and universal design principles, the home balances longevity with expressive elegance, allowing accessibility to exist seamlessly within a refined aesthetic. Traditional architectural references are layered with modern restraint, while contrast in color, material, and form supports clarity and visual comfort. A Bluebird-inspired palette and natural materials reflect the couple’s love for gardening, quilting, and music, creating a home designed to evolve with their lifestyle.

HAYLEY HANSON

Living Spaces

KITCHEN, SEWING & PRIMARY BEDROOM

The primary living spaces are designed to honor daily ritual and personal craft with quiet intention. A combined sewing and guest room celebrates Mrs. Williams’ quilting through custom builtins, while the kitchen and primary bedroom integrate accessible features with restraint. Together, these spaces support long-term comfort while maintaining a composed and gracious residential atmosphere.

The primary bathroom balances aging-in-place considerations with an elevated aesthetic through integrated support features, generous clearances, and a calm material palette inspired by the Eastern Bluebird. Natural stone, warm wood tones, and refined metal accents extend to the rear patio, where a sheltered outdoor space supports gathering, gardening, and quiet retreat.

KITCHEN
Sewing & Guest Room
Primary Bedroom

Relaxing Retreats

Primary Bathroom Elevation

A. 60” Turning Radius

B. 30” x 48” Clearance

C. Roll-Under Sink

D. Grab Bars

E. Comfort Height Toilet

F. Roll-In-Shower

G. Shower Bench

H. Linear Drain

I. Non-Slip Ceramic Tile

J. Handshower Package

K. 28” AFF Vanity

L.

Swivel Tissue Holder
Primary Suite FF&E
Rear Patio

Threadwell Care

SPECIAL INTERESTS

Rural Fragmentation

Visual Affordances

Person-Environment Fit

SIZE

5,900 sf

DURATION

12 weeks

SECTOR COMPLETED November 2025

TEAM MEMBER

Sabrina Iverson

*Renderings by H. Hanson unless noted otherwise.

STITCHING RENEWAL

Stitching Renewal responds to the dispersed community of Whitefish, Montana by weaving Threadwell Community Care into the town’s social and environmental fabric, creating a place of connection, care, and shared renewal. Circulation unfolds along converging paths that interlace community while reinforcing clarity and trust. Intimate enclaves and sensory-adaptable waiting areas offer refuge, comfort, and a sense of being known. Distinct colors, natural light, tactile materials, and warm layered textures restore vitality and cultivate hope, confidence, and optimism. Local craft and landscape references root the clinic in its setting, forming a stitched landscape of health, renewal, and belonging.

Floor Finishes & Design Goals
HAYLEY HANSON
Cultivate Hope Spark Authenticity Interlace Community Restore Vitality Create Refuge

Grounded Greeting

Reception Desk

WELCOME TO THREADWELL

Guided by Person–Environment Fit and Visual Affordance Theory, the patient-centered zones pictured prioritize clarity, refuge, and emotional ease. A landmark reception desk establishes intuitive wayfinding and immediate human connection, while a light-filled waiting area draws upon natural materiality, a central stone hearth, & acoustic baffles to ease stress and percieved wait time. An adjacent half-wall family zone with integrated children’s play provides separation without isolation or loss of supervision abilities.

RECEPTION
Bespoke
IVERSON

Woven Connection

LAYERED LIGHTING

Custom pendants and wall sconces draw inspiration from the rhythm of stitching, establishing a warm, continuous lighting language that supports intuitive wayfinding and spatial hierarchy. Layered illumination softens circulation, highlights moments of pause, and reduces visual fatigue.

HALL & CARE DESK
SOUTH HALL
Bespoke Sconce
Bespoke Pendant

Guided by Visual Affordance Theory and the project’s goals of clarity, trust, and cultivation of care, the primary corridor organizes movement through clear sightlines and softened transitions. The centrally positioned care desk supports intuitive access and ongoing patient reassurance, while custom pendants and wall sconces establish a warm, recognizable lighting rhythm that reinforces wayfinding, reduces anxiety, and humanizes the clinical environment.

HALL & CARE DESK
HALL ALCOVES
HAYLEY HANSON

Staff Support

RECIPROCAL CARE

Designed to restore vitality and cultivate hope, the staff lounge serves as a quiet counterpoint to clinical intensity. Warm materials & natural light support decompression, privacy, and peer connection, reinforcing care as a reciprocal practice. A dining alcove allows for prospect-refuge benefits, while local artwork strengthens place attachment.

EAST HALL
STAFF LOUNGE
LOUNGE ALCOVE

Care Suites

SPARK AUTHENTICITY:

Interactive technology allows providers to educate patients on conditions and solutions.

SMART SHADES:

Optimizes suite’s daylight management & allows user control for comfort.

INTERLACE COMMUNITY:

Comfortable, hygenic seating for patient and family members promotes connection for both parties.

BRUSHED BRASS HARDWARE:

RESTORE VITALITY:

Mountain mural draws upon the biphilic design pattern of Nature in the Space: Visual Connection With Nature.

Alludes to residential influences & elevates care suite from sterile to classy.

Plan & Zoning Map

CULTIVATE HOPE:

Light & colorful palette creates an uplifting environment for the patient.

CARE SUITE
Englarged

Dark Matter Office

SECTOR

Workplace

SPECIAL INTEREST

Neurodivergence Support

Personalization Theory

SIZE

16,000 sf

DURATION

12 weeks

COMPLETED

Orbital Rhythms

ORBITAL RHYTHMS

Orbital Rhythms defines Dark Matter

Coffee’s new Chicago-based corporate workplace as a creative nucleus guided by counter-cultural expression. Inspired by the brand’s interstellar fusion of coffee, music, and experimentation, circular flow facilitates an orbit between collective energy and focused retreat. Analog sound and cosmic movement are referenced through materiality & an emphasis on vertical height and circular forms, embodying DMC’s mission of being “transcendent between the worlds of science and creativity while simultaneously traversing a culinary vision quest as our guide” (DMC Manifesto).

HAYLEY HANSON

Arrival & Ascension

TAKEOFF

The reception serves as the ‘launch point’ of the headquarters, guiding staff and visitors into the workspace with clarity and intrigue. Deep finishes evoke a sense of drama which is further empahsized by the chrome finishes, circular motifs, custom reception desk, and sculptural lighting fixture, highlighting DMC’s bold, experimental brand identity.

Collaboration Zones

TEAM SPACES

A variety of collaboration based spaces are present through the HQ. On Level 7, a media production room equipped with a sound booth supports the growth of Dark Matter Coffee’s music label, artist spotlights, and more. Luxe, client & investorfacing conference rooms are located near the entrance of each floor with optimal views, while causal meeting rooms equipped with mobile furntiure, technologoy, and whiteboards are ideal for group work.

“Phase Shift” Custom Pendant
HAYLEY HANSON

CHOICE & USER CONTROL

Organized within relevant teams, each office neighborhood includes assigned desks with adjustable lighting, lockable storage, and semi private dividers to accoomodae personalization needs for employs. Each zone is also adjacent to breakout team rooms, private work booths, and casual huddle clusters. Level 06 hosts three private offices for management, given the sensitive information being handled.

Workstation Cluster
Private Office FF&E Selections PRIVATE OFFICES
HAYLEY HANSON

Vertical Exploration

ZERO GRAVITY BAR

Zero Gravity is the experimental and collaborative heart of DMC HQ, designed to inspire creativity & innovation. A skylight adorned with sculptural light fixtures fills the space with natural light, while the bar functions as a test space by day and supports events by night, extending the work café’s versatility. Open circulation and visual connectivity from bar to skylight embody the brand’s ethos of innovation, reminding guests & employees alike that the sky is truly the limit.

FF&E IN ORBIT

The FF&E channels the spirit of 1970s music culture: curved forms, chrome accents, and rich, layered textures, while embracing an interstellar experimental edge inspired by Dark Matter Coffee.

FF&E Selections
HAYLEY HANSON

A Coffee Bar is Never Far

COFFEE BARS

Anchoring each floor in DMC’s origins, the coffee bars pulse as social hubs, with finishes evoking the bold spirit of Dark Matter Coffee. Curved forms and reflective surfaces catch light in fluid, rhythmic arcs. These spaces invite spontaneous connection & creative exchange, grounded in the everyday ritual of coffee to bring a vibrant buzz into the office.

Cafe FF&E Selections
LEVEL 07 COFFEE BAR LEVEL 06 COFFEE BAR

SECTOR

Adaptive Reuse

SPECIAL INTEREST

Biophilic Design

SIZE

11,500 sf

DURATION

5 Days

COMPLETED

January 2026

TEAM MEMBERS

India Skipper, Asia Bennett & Lucia Salvato

*Renderings by H. Hanson unless noted otherwise.

LIVING ROOM | RENDERING BY I. SKIPPER

RESTORATION FOR ALL

Oasis imagines the EV charging station as a future refuge where travel slows and energy is honored. Inspired by the drape and quiet resilience of Spanish moss, the landscape unfolds in gentle curves, shaded paths, and moments of rest and connection. Solar canopies filter light and gather power as charging infrastructure recedes, allowing nature and human presence to lead. What was once a pause becomes a sanctuary, restoring body, spirit, and the journey itself.

YOGA TERRACE
ROOFTOP DINING

Garden Whispers

SECTOR

Furniture Design

SPECIAL INTEREST

Aging-in-Place

SCOPE

3 Piece Furniture Collection

DURATION weeks

COMPLETED

October 2024

FIT FOR A FAIRY

The collection consists of a side chair, café table, and bookcase, each designed to translate the magic of a secret garden into functional, child-scaled form. Engraved vine patterns, scalloped edges, and gentle curves introduce a sense of rhythm & whimsy.

Keyhole Maker’s Mark

THE PROCESS

The collection is informed by the layered beauty of Maclay Gardens, which feautres historic Chippendale furniture, Persian rugs, and lush plants. These references were refined & iterated through AutoCAD drafting and precise digital modeling, translating engraved vine motifs and scalloped details into laser-cut files executed using Aspire.

A GARDEN OF HER OWN

Inspired by the quiet magic of a secret garden, this collection reimagines fairytale motifs through a lens of structure and craftsmanship. Curvilinear forms, engraved botanical patterns, and a warm, naturedriven palette balance whimsy with order, allowing imagination to feel grounded rather than ornamental. The result is a collection that remains functional while captures the spirit of wonder characteristic of such gardens.

AutoCad File
The Fairy Chair — Iterative Models
Mood Board

Hundred Acre Health

SECTOR

Healthcare

SPECIAL INTERESTS

Future Casting

Modular Clinics

SIZE

14,600 sf/module

DURATION

2 Weeks

COMPLETED

October 2025

TEAM MEMBERS

Allison Kaminski, Hattaway Butler

*Renderings by H. Hanson unless noted otherwise.

ADULT INPATIENT SUITE | RENDERING BY A. KAMINSKI

STORYBOOK SONDER

Storybook Sonder reimagines a modular healthcare tower as a living storybook, where every patient, caregiver, and family member contributes a chapter to a shared journey of healing. Inspired by the warmth and wonder of illustrated childhood tales, each modular room offers comfort, adaptability, and emotional support, while addressing the challenge of designing a resilient tower that functions seamlessly under normal conditions and can rapidly reconfigure during crises. Grounded in evidence-based principles, the design transforms clinical routines into meaningful, human-centered, and adaptable experiences for patients, families, and staff.

HAYLEY HANSON
Modular Scalability Narrative Driven Evidence-Based Care Human-Centered Comfort Evoke Playfulness

Inpatient Suites

MODULAR INPATIENT SUITES

Patient rooms are thoughtfully tailored to different age groups to inspire comfort and a sense of belonging. Child rooms feature soft forms, pastel tones, and an inboard toilet layout, with a sky ceiling mural that whisks children away from the typical hospital environment. Adult rooms use neutral finishes accented with yellows, dusty blues, and vibrant greens, while built-in casework allows personal items to make the space feel like home. Older adult rooms emphasize calming yellows, warm wood tones, and mid-century modern architectural details, evoking the design styles of their childhood and creating a familiar, soothing atmosphere.

Conceptual Facade
RENDERING BY A. KAMINSKI
RENDERING BY H. BUTLER

Zoning Diagram

STAFF & SUPPORT

Patient, Child

Patient, Adult

Patient, Older Adult

Staff Support

Nursing & Staff

Family & Visitors

Support & Logistics

A TALE FOR ALL

The axonometric floor plan shows the 3D layout and watercolor blocks indicating each space and their connections. The staff lounge offers private booths and tables, with forest mosaics and hanging vines creating a storybook-like retreat. Similarly, the nurse station balances function and comfort with gentle colors and natural textures, crafting a welcoming, restorative environment.

PATIENT ZONES
STAFF LOUNGE | RENDERING BY H. BUTLER
NURSE STATION | RENDERING BY A. KAMINSKI

Green MarketCity

ROOTED PRESENCE

Inspired by the process of fermentation, the new Green City Market retail experience in Chicago reframes grocery shopping through education, sustainability, engagement, and connection. A seamless AI-and-robotsupported system operates behind the scenes to shift the in-person focus from purchase to people. The store exclusively features fermented goods, celebrating patience, process, and restoration within a fast-paced society. Interactive vendor stalls offer year-round presence with integrated digital storytelling, while a corner store provides 24/7 access to fresh produce. Organic forms, natural materials, and winding circulation reinforce the slow, cyclical rhythms of fermentation.

HAYLEY HANSON

Preserving Process

TAKE THE LONG WAY

Organic circulation guides visitors through interactive vendor stalls, highlighting fermented goods and storytelling. Materials & forms inspired by root vegetables reflect slow, cyclical rhythms, creating an engaging & human-centered shopping experience.

Concept Sketch
| RENDERING BY S. IVERSON MONUMNETAL STAIR,

A dedicated corner store ensures continuous access to fresh produce and fermented products, extending community connection beyond standard hours and seasons, given the market’s Chicago-based location that typically limits operations to summer months. Designed for convenience without compromising transparency, education, or the immersive experience of the main market.

24/7 MARKET
24/7 MARKET
Stall Displays

LinkedIn.com/in/HayleyHanson Instagram.com/HayleyHansonStudio

Turn static files into dynamic content formats.

Create a flipbook