“We do not want merely to see beauty… we want something else which can hardly be put into words— to be united with the beauty we see.”
— C.S. Lewis







![]()
“We do not want merely to see beauty… we want something else which can hardly be put into words— to be united with the beauty we see.”
— C.S. Lewis







Key Project Skills: AutoCAD, Sketchup, FF&E, Universal Design
TERM: FALL 2024
CLIENT: MR. AND MRS. WILLIAMS
LOCATION: ATLANTA, GA
SIZE: 1,960 SQFT
TIMELINE: 10 WEEKS
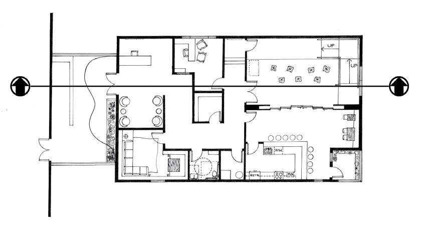
The design for Randy and Valerie Williamses’ Atlanta residence is inspired by the concept of the Atlanta-native Eastern Bluebird, symbolizing joy, family, and legacy. Rooted in research, the home integrates universal and aging-in-place design principles. A refined blend of traditional and modern elements achieve the bold elegance the client desires, while and an emphasis on contrast creates functional harmony. A rich, Bluebird-inspired palette and incorporations of natural materials throughout reflect the couple’s love for gardening, quilting, and live music. Ultimately, the home is a retreat that will evolve with the Williamses’ lifestyle, allowing them to host, celebrate their heritage, and embrace life’s next chapter with comfort and grace.



The single-story home’s facade features classical, Georgian-inspired design principles that reflect the concept and blend with the local vernacular. Clad in locally-sourced white brick and ornamented with black shutters and an inviting blue front door that visually signify its importance, the home’s exterior is just a taste of what lies inside.


This North-facing elevation highlights key design considerations, such as an accessible, Frenchdoor style oven, integrated grab bar, roll-under sink, drawer-style ADA-compliant dishwasher, and access to natural and task lighting for visual functionality. The contrast between planes supports potential visual decline while embracing the elegantly bold style defined by the concept.


Inspired by the colors, motifs, and textures of the Eastern Bluebird, this space serves as a comforting place for the client and their loved ones to gather on any occasion. The archway is an ode to classic closed-plans that allows the function of clear pathways to remain, while the wainscoting includes a supportive chair rail in addition to its stylistic contributions.


The primary bathroom embodies practical luxury, accommodating for aging-in-place and accessibility needs while maintaining an elevated aesthetic.



Primary Bathroom Finishes


A. 60” Turning Radius
B. 30” x 48” Clearance
C. Roll-Under Sink
D. Grab Bars
E. Comfort Height Toilet
F. Roll-In-Shower
G. Shower Bench
H. Linear Drain
I. Non-Slip Ceramic Tile
J. Handshower Package
K. 28” AFF Vanity
L. Swivel Tissue Holder

With a soothing palette and displays of Mrs. William’s quilts, personal touches and elevated design choices fuse together to create a restorative retreat for the couple.
This multipurpose space features twin beds to host the client’s grandchildren, while also including a custom, builtin sewing desk and display style storage to celebrate Mrs. Williams’ incredible talent for quilting. Providing proper storage, work-surface, and lighting minimizes unnecessary hazards as the client ages, so that life’s joys can take priority.


Key Project Skills: AutoCAD, Sketchup, FF&E, Biophilic Design
TERM: FALL 2024
CLIENT: MR. & MRS. WILLIAMS
LOCATION: ATLANTA, GA
SIZE: 950 SQFT
TIMELINE: 5 WEEKS
The rear patio design for Randy and Valerie Williamses’ Atlanta residence transforms their outdoor space into a refined living oasis, inspired by the Eastern Bluebird’s symbolism of joy, music, and legacy. Prioritizing comfort and accessibility, the design integrates universal and aging-in-place principles with intuitive indoor-outdoor transitions. A luxury outdoor kitchen, dining for eight, a private retreat, and lounge seating support both intimate relaxation and lively gatherings, while raised garden beds and an open stage with integrated sound system encourage the couple’s passions for gardening and music. Thoughtfully selected natural materials and a softened color palette create a timeless, elegant atmosphere, ensuring yearround enjoyment through climate-conscious features that embrace Atlanta’s seasonal shifts.
Featured Left: Schumacher




Located directly adjacent to the Primary Suite, an easily accessible lounge allows the Williamses to seamlessly incorporate time outdoors into their daily routine, reaping its many benefits on health and wellbeing. This secluded oasis is perfect for quiet mornings or unwinding under the stars.


Dynamic and diffused lighting are simulated through the use of gas lanterns, wall lighting, accent lighting, and task lighting. Additionally, the custom privacy trellis on the patio’s west side interacts with natural sunlight to create dynamic fractal patterns.


Driven by the client’s love for cookouts and live music, the rear patio’s hospitality zone features a luxury outdoor kitchen equipped with top-ofthe-line appliances, a buffet counter, a bar, dining for 8, and an integrated entertainment stage. The flow between zones, covered areas, and classic design choices set the stage for graceful gatherings year round.

Key Project Skills: Space Planning, Revit, Construction Document Sets, Enscape
TERM: FALL 2024
CLIENT: SMITH CONSULTING
LOCATION: TALLAHASSEE, FL
SIZE: 17,000 SQFT
TIMELINE: 12 WEEKS
The Argonaut Building is a newly designed two-story commercial office space for prominent lobbyist Mrs. Smith. The project focuses on Revit-based construction documentation, including core and shell development, partition plans, furniture layouts, reflected ceiling plans, power plans, and ADA-compliant detailing, all while adhering to Florida building codes. Inspired by the mythological journey of the Argonauts, the material palette reflects themes of navigation and resilience. The design scope encompasses the first-floor office spaces and the secondfloor elevator lobby and restrooms. Following the space planning phase, a comprehensive construction document set was developed. The project demonstrates expertise in translating conceptual design into technically sound, code-compliant documentation.














Reflected Ceiling Plan
Staircase Shed Roofs
Building Flat Roof Roof
Level Two
ADA Restrooms
Elevator Hall
Open to Lobby

North & South Stairs
Level One
Vestibule Lobby
Volunteer Bull Pen
Resource Room
11 Private Offices
Intern Workspace
Kitchen/Break Room
ADA Restrooms
Elevator Hall
North & South Stairs


The Argonaut’s exterior showcases the buildings lobby, which features wood paneling, a curtain wall system, and a vestibule leading to the monumental staircase and custom modeled reception desk.




As the centerpiece of the reception area, this desk is carefully detailed to balance aesthetics and functionality. By illustrating key dimensions, joinery, and structural elements, the drawings translate the design into a buildable, real-world feature.



Desk & Reception Finishes




TERM: FALL 2023
CLIENT: THE SECULAR HUMANIST COMMUNITY
LOCATION: STATUE OF LIBERTY COMPLEX, NEW YORK, NY
SIZE: 2,000 SQFT
TIMELINE: 5 WEEKS
Together, Hand in Hand is a conceptual spiritual retreat center designed as a place of gathering, learning, and reflection for individuals who align with Secular Humanist values. Rather than serving as a place of worship, this space fosters intellectual growth, creativity, and communitybuilding through social, educational, and humanitarian events. Originally conceived as a shrine within the Statue of Liberty complex, this hand-rendered project highlights the intersection of logic, connection, and growth, both in philosophy and spatial design.




The concept is infused into the circulation of the space plan which follows that of the human digestive system. The retreat center offers a library for connection and contemplation, folding leaf walls that embody unity, and a food pantry highlighting the organization’s community service efforts, all while remaining ADA-accessible in key areas. Equipped with a stage and ramp, alongside an office and breakout spaces, the center encourages logic and intellect.


This hand-rendered perspective offers a glimpse into the center’s ADA-accessible kitchen, which serves as a socialization hub and fosters the organization’s key value of connection. Shown below, the center features textures, materials, and motifs inspired by the human body to ground the space.



The facade and approach demonstrates the importance of growth through a community garden located on the path the entry. This garden, alongside the accessible food pantry, supports the organization’s humanitarian and sustainability efforts.


Looking North, this East-West Section view highlights the gradual accession that occurs within the ceiling and floor planes as users progress through the space, showing the journey from the outside world to the final landing in the presentation room where the most in-depth intellectual explorations occur.


Key Project Skills: Hybrid Rendering, Graphic Techniques, Photoshop, Procreate
TERM: SPRING 2024
CLIENT: PERSONAL FAMILY TRIBUTE
LOCATION: CONCEPTUAL MUSEUM GALLERY
SIZE: 750 SQFT
TIMELINE: 3 WEEKS
As an exploration in graphic techniques, this exhibit transforms the concept of sisterhood into an immersive spatial experience, celebrating the strength, warmth, and joy found in these relationships. Drawing from generations of familial and chosen sisters, the design reflects shared traditions, intimate moments, and the comforts of home. Soft, organic forms, layered textures, and a sentimental color palette create a sense of nostalgia and connection. The kitchen showcases meaningful family recipes, the lounge offers a cozy retreat for conversation and reflection, and a Cherry Blossom wishing tree symbolizes lifelong bonds. Through interactive storytelling and curated design elements, Sister, Sister honors the deep connections that shape identity and belonging.



The floor plan is thoughtfully organized to create a fluid and immersive experience, guiding visitors through interconnected spaces that evoke the warmth and intimacy of sisterhood. Defined zones, including the kitchen, breakfast nook, lounge, and wishing tree—balance openness with moments of enclosure, encouraging both personal reflection and shared interaction.


Through an arched opening, the kitchen unfolds in soft blues and greens. A beautifully arranged spread of treats reflects treasured family recipes and friendships, inviting guests to indulge in the sweetness of sisterhood. Nearby, a Cherry Blossom tree stands as a symbol of magic, softness, and the deep-rooted connections that define the space.
An intimate nook offers a place to pause, enveloped by vertical rhythms and organic shapes that echo the elegance and care embodied by the strong women in the designer’s life. Warm woods and layered textures create a space that invites guests to savor the luxuries of good design, great food, and meaningful conversations.
The Vanity, Kitchen, and wishing tree can be seen in this view. Through the archway, the soft forms, pastel tones, and pink quartz counter tops of the vanity can be scene, creating a sense of harmony. The walls are lined with a dreamy, feminine wallpaper that features sparrows, a significant bird among the sisters, and paying homage to our family tree. In the kitchen, Tones of blues and greens signify my mom’s favorite colors, and a spread of delicious food allows guests to indulge in a variety of treats that I associate with different female figures in my life. From the Dutch Letters I grew up getting from Jaarsma’s Bakery with my sister after school, and the Monkey Bread I make with my Grandma and cousins each holiday, to the sticky buns my aunt has perfected and the bagels I get with my Jersey-native best friend, each dish immerses guests more fully in the sweetness of sisterhood. The wishing tree is a Cherry Blossom, a tree that never fails to remind me of one of my best friends who has truly become a sister. Filled with magic, softness, and joy, the unity, asymmetrical balance, texture, nature motifs, and rhythm of the space express the feelings I am blessed to know because of my sisters.
A dreamlike interplay of color, pattern, and playful lighting defines the lounge, where guests can sink into comfort, reminisce, and celebrate the moments that make sisterhood so special. A framed photo of the designer and their sister offers a personal touch, while the adjacent photo booth captures new memories, filling the space with the joy and laughter that sisterhood inspires.
In this view, the contents of the gallery’s north wall can be seen, featuring the breakfast nook, lounge, and photo booth. Each of these spaces feature elements of rhythm, pattern, and organic form, and rely heavily on texture and color to continue the ethereal, dreamy sense exuded throughout the gallery. A sprinkling of warm wood tones ground the space, while fun lighting fixtures, colors, and wallpapers keep the spaces airy and fun. Each room is centered on the guest’s experience, sharing a feeling that the strong female relationships in my life have provided, from enjoying a meal in the breakfast nook or looking in awe out the window, to a good conversation or a cozy movie night in the lounge, which features little details such as a frame picture of my little sister and I, to the laughter and fun of the photo booth.






Key Project Skills: Furniture Design, AutoCAD, Aspire, Laser Cutting
TERM: SPRING 2024
CLIENT: THE SECULAR HUMANIST COMMUNITY
LOCATION: DESIGNED FOR A CHILD’S BEDROOM
SIZE: THREE-PIECE RESIDENTIAL FURNITURE COLLECTION
TIMELINE: 3 WEEKS
This furniture collection embraces the whimsy and enchantment of a secret garden, translating fairytale-inspired motifs into functional, child-friendly pieces. A Garden of Her Own includes a side chair, café table, and bookcase, each designed with delicate details, floral patterns, and curvilinear forms that evoke the charm of hidden gardens and storybook adventures. Warm, earthy tones and honey-stained wood enhance the collection’s nostalgic and playful spirit. Engraved vine patterns, scalloped edges, and symmetrical elements reinforce a sense of rhythm and harmony, while thoughtful joinery ensures stability and craftsmanship. The pieces invite moments of imagination, whether enjoying a tea party, reading a favorite book, or embracing the magic of childhood within a space designed for creativity and wonder.
Featured Left: Morris & Co. Pimpernel Wallpaper in Bullrush/Russet



The enchanting landscapes of a Sunday spent under the sun of local Maclay Gardens, with its historic Chippendale furniture, Persian rugs, and lush floral scenery, served as the foundation for this collection. The interplay of structured symmetry and organic beauty within the gardens directly influenced the furniture’s delicate patterns, flowing lines, and timeless aesthetic.




The final AutoCAD file refines each design detail, incorporating engraved vine motifs, scalloped trims, and structural enhancements for stability. Precise digital modeling ensures seamless fabrication, bringing the collection to life with a laser cutter through an iterative design process.


The complete collection features the Fit for a Fairy chair, with its delicate scalloped details and bowshaped backrest, the A Table for Tea, Please! café table, adorned with floral-inspired legs and a carved tabletop, and the Wonder Shelf, a charming bookcase with engraved vine motifs and a scalloped trim. Each piece balances storybook enchantment with functional design, creating a space that fosters imagination, play, and quiet moments of wonder.



Designed for a child’s bedroom, the collection transforms the space into a fairytale retreat, incorporating warm wood tones, soft colors, and nature-inspired elements to evoke the magic of a secret garden.
LinkedIn.com/in/HayleyHanson