











![]()












MASTERPLANNING





















LOW-RISE
COLCHESTER BORDER GARDEN COMMUNITY
GARDNER CLOSE
HACKNEY NEW HOMES PROGRAMME
IROKO, COIN STREET
L&G HOUSE, KINGSWOOD, SURREY
MEETING HOUSE LANE
OSCO, BAYCLIFF GARDENS, LIVERPOOL
PEMBROKE COLLEGE, CAMBRIDGE
SNAPE MALTINGS, SUFFOLK
MID-RISE
CANADA WATER
CHOBHAM MANOR
COWLEAZE ROAD
CUSTOM HOUSE
EAST VILLAGE
FINCHLEY MEMORIAL
FISH ISLAND VILLAGE
GASCOIGNE WEST PHASE 3
GREENHILL CENTRE
HARTREE, CAMBRIDGE
HALLSVILLE QUARTER
JERICHO WHARF, OXFORD
LAMPTON 360
LIVERPOOL ONE, LIVERPOOL
NEWINGTON GREEN
PEABODY AVENUE
PIER ROAD
REYNARDSON COURT
SILCHESTER ESTATE
SOMERLEYTON ROAD
STEAD STREET
HIGH-RISE
ATLIP GARDENS
AYLESBURY ESTATE
BLACKWALL REACH
CENTRAL MIDDLESEX HOSPITAL
CHELTENHAM ESTATE
EARLS COURT
MAYDEW HOUSE AND BEDE SITE REDEVELOPMENT
NETWORK HOUSING
WEMBLEY NORTH EAST LANDS
WOOD STREET



















































































































































































































































4.



























Existing O ce Layout



Colchester, 250 Homes, Heritage Public Realm 5.27 ILLUSTRATIVE MASTERPLAN





































































































Haworth Tompkins have consistently been responsive, collaborative and have proven adept in working within the Council’s budget and e ciency constraints whilst making buildings and places of a quality that we believe will make a significant and positive contribution to the Borough
Ken Rorrison, Head of Regeneration Strategic Design, Hackney Council




Walthamstow, London




































Bridgewater Triangle Masterplan, 702 homes
PROJECT TYPE
RESIDENTIAL-LED MASTERPLAN WITH SOME RETAIL AND COMMUNITY SPACE USES
CLIENT BALLYMORE & LLDC CONSTRUCTION COST TBC COMPLETION DATE ANTICIPATED 2030
















Fish Island Village
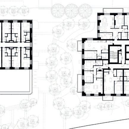
Hackney Wick, London, 500 homes and 56 commercial units
“No doubt about it, the people moving in to these homes are the winners: this coherent, civic and walkable new neighbourhood will be an attractive place to live ” Veronica Simpson, Blueprint











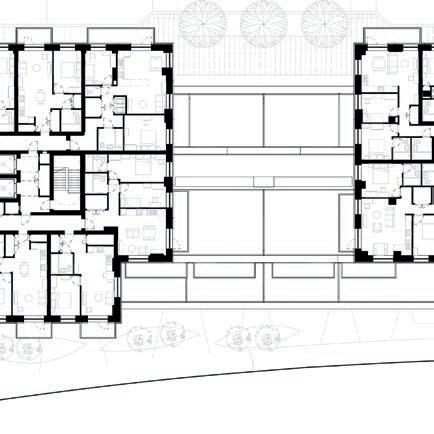
Poplar, London, 135 homes








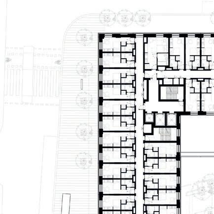
Wembley, London, 769 homes

“Haworth Tompkins have embraced innovation, in particular around o -site prefabrication solutions, to facilitate the requirements for programme, quality and cost assurance. The HT team have good senior leadership and work well with our supply chain and our Client Quintain.”
Daniel Mackell, Director, Sisk





GEA = 42 627 sqm
GIA = 39 131 sqm
NIA (Residential only) = 27168 sqm
NIA (All buildings) = 28 485 sqm
GEA : GIA = 91.8%
GIA : NIA = 72.8% (All buildings)
GIA : NIA = 69.4% (Residential Only)
GIA : NIA = 77% (Typical Floor)

322 no. Private Balconies @ 5.2sqm per balcony 1674.4 8 no. Private Terraces serving units facing onto the podium 41.6 Communal Outdoor Amenity (podiums, roof terraces and other spaces) 2488 Communal Indoor Amenity (Quintain Living Social, Fitness Room)

Studios 6920.9%37‐3939 (37*) 1 Bed (2P)14844.8%5150
2 Bed (3P‐4P)9629.1%63‐7261‐70
Total: 282 Flats
3 Bed (5P)175.2%91‐9286
Total 330
GEA = 25184 sqm GIA = 23,442 sqm
1 Beds W.A16 56 2 Beds W.A17



NIA (Residential only) = 15,682 sqm
NIA (All buildings) = 16,105 sqm
GEA : GIA = 93%
GIA : NIA = 67% (All buildings)
GIA : NIA = 67% (Residential Only)
GIA : NIA = 74% (Typical Floor)




















































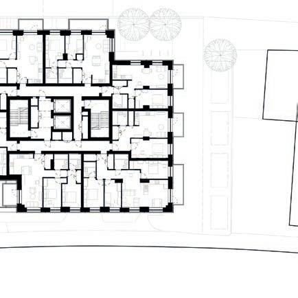
South London , 220 homes, Gateway 2































































