

Planning permission granted
2,100 sq ft home
Cotswold stone design
Three double bedrooms

2 Reception Rooms
Garage & Driveway parking
Idyllic village setting
Rare opportunity
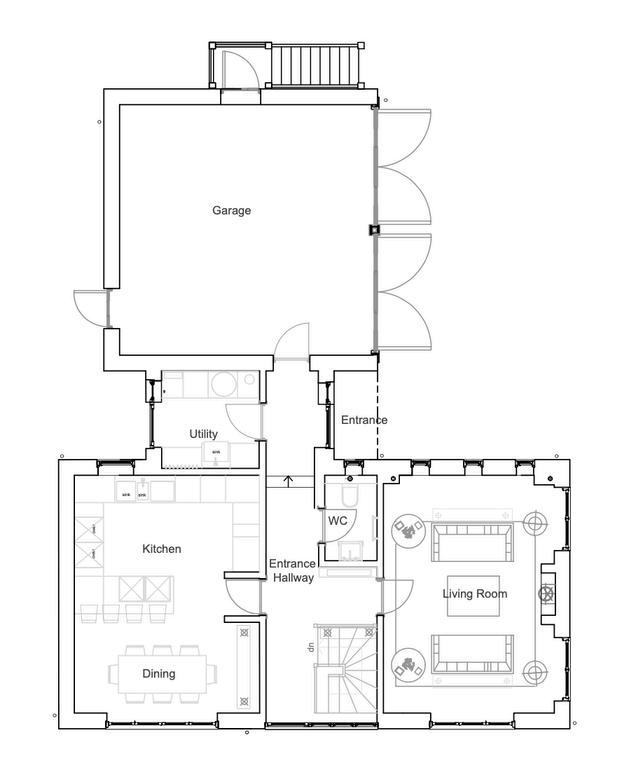
This is a rare chance to build a bespoke family home within the heart of Milton-under-Wychwood. Planning permission has been granted (25/00744/FUL) for an elegant 2,100 sq ft detached house, designed in natural Cotswold stone to reflect the character of the village. The approved scheme offers three double bedrooms and generous, flexible living accommodation, alongside a garage and driveway parking. An exceptional opportunity for purchasers seeking to create a high-quality home in one of the Cotswolds’ most desirable village settings.
Milton-under-Wychwood is a thriving and well-connected Cotswold village, prized for its community atmosphere, village amenities and access to unspoilt countryside. Shops, public houses and local services are all close at hand, while open fields and walking routes begin just moments from the doorstep. The village offers excellent connectivity to nearby market towns and rail links to Oxford and London, making it ideal for both full-time living and those commuting or working flexibly. Please note that the owners of the property are employees of Harvey Holland Ltd.
Daylesford Organic Farm 6.7 miles
Soho Farmhouse 8 miles
Estelle Manor 11.3 miles
Charlbury Railway Station 7.2 miles (Trains to Paddington 1hr 15 mins)
Kitebrook Prep School 11.3 miles
Tudor Hall School 18.7 miles
Bloxham School 17 miles
Windrush Valley School 3.5 miles































Gross internal area: 2100 sq ft, 195 m2
Sizes and dimension are approximate, actual may vary Floors may not be shown their actual location.
that all property images are computer-generated (CGI) and are provided for illustrative purposes only. Mood boards are intended as style guidance and inspiration Final layouts, specifications, and finishes are yet to be confirmed and may vary.
