
5,554 sq ft bespoke detached residence
Elevated position with panoramic countryside views
Generous half-acre plot with substantial frontage

Five ensuite bedrooms, including principal suite with dressing room
Double garage with ensuite bedroom above
A rare and compelling development opportunity set on Westhall Hill, one of the area ’ s most desirable addresses, enjoying far-reaching countryside views towards Burford and surrounded by substantial neighbouring homes, a setting that truly merits the exceptional plans already approved The generous plot currently hosts a sizeable bungalow and offers superb flexibility to refurbish, extend or redevelop. Planning permission has been granted for an impressive 5,554 sq ft detached residence, designed to create a striking and substantial family home befitting its elevated position and rural outlook.
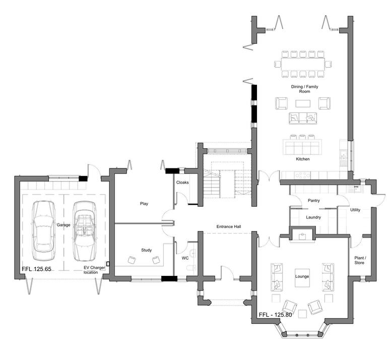
The approved scheme provides for a five-bedroom, five-bathroom home including a principal bedroom suite, four further ensuite bedrooms and extensive living accommodation. The layout features a large open-plan kitchen, dining and family room, together with a drawing room, playroom, office, utility room and an impressive entrance hall. A garage with an additional bedroom suite above completes the design. The existing bungalow extends to approximately 1,300 sq ft and already benefits from spectacular views across the valley towards Burford, offering immediate accommodation or potential interim use. The plot extends to approximately half an acre and offers excellent frontage. Subject to the necessary consents, there is also scope for a purchaser to pursue an alternative bespoke design.
Positioned on a quiet lane on the edge of Fulbrook, the property enjoys a peaceful setting while remaining highly convenient. Burford High Street is approximately a 15-minute walk, providing easy access to the town’s wellregarded shops, cafés and amenities.
Daylesford Organic Farm 9.3 miles
Soho Farmhouse 16.9 miles
Estelle Manor 11.3 miles
Charlbury Railway Station 8.9 miles
(Trains to Paddington 1hr 15 mins)
Kitebrook Prep School 15.9 miles
Tudor Hall School 21.9 miles
Bloxham School 21 miles
Windrush Valley School 5.6 miles





























Local Authority West Oxfordshire District Council


Gross
Ground Floor 3,071sq ft, 285 sqm¡
First floor 2,483sq ft, 231sqm
Total area: 5,554 sq ft, 516 sqm
Sizes and dimensions are approximate, actual may vary.
Floors may not be shown within their location

Please note that all property images are computer-generated (CGI) and are provided for illustrative purposes only. Mood boards are intended as style guidance and inspiration. Final layouts, specifications, and finishes are yet to be confirmed and may vary
