




![]()





An exceptional opportunity to own a beautifully updated townhome in one of Atlanta’s most coveted gated communities—just steps from the beloved Duck Pond. This sophisticated residence offers a thoughtfully designed open floor plan with spacious living and dining areas, perfect for entertaining or everyday living. The stunning library on the main level features custom floor-toceiling bookshelves, and with a full bath nearby, it easily transforms into an additional bedroom if desired.
At the heart of the home is a gourmet kitchen with high-end appliances, ample cabinetry, and elegant finishes throughout—ideal for the modern chef. Step out onto the charming terrace just off the living room, a serene space for morning coffee or evening relaxation.
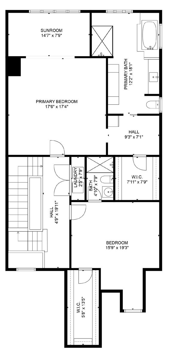
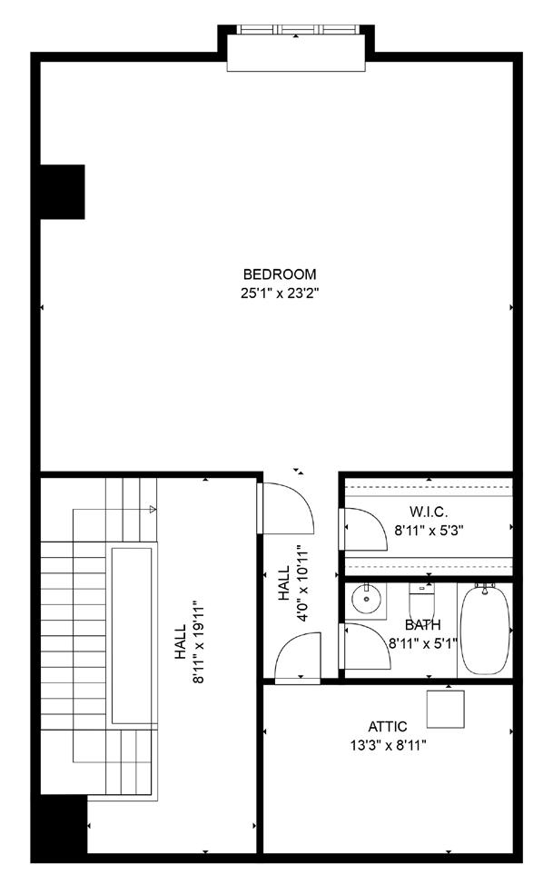
Upstairs, the expansive primary suite features a sunlit sitting area or office with treetop views, a luxurious bath, and a generous walk-in closet. A second spacious en suite bedroom is also located on this level. The third floor offers remarkable flexibility with a full bath and ample space for a guest suite, media room, or playroom.
The lower level includes a two-car garage and abundant storage space. While there is no elevator currently, there is a designated space ideal for future installation. With timeless elegance, refined finishes, and an unbeatable location near Buckhead’s finest shopping, dining, and lifestyle amenities, this home is a true gem. Don’t miss the chance to make it your own!

























GROUND FLOOR THIRD FLOOR



