Camila Guedes, Laura Assunção e Juliana Vieira

![]()
Camila Guedes, Laura Assunção e Juliana Vieira


Universidade Federal de Goiás Arquitetura e Urbanismo
Projeto Arquitetônico II
3° Período - Turma IX
ME.





































Este volume foi desenvolvido pela turma IX do 3º período do curso de Arquitetura e Urbanismo, da Universidade Federal de Goiás - Campus Goiás, sob orientação docentes Me. Haroldo Dias
Flauzino Neto e Me. Marcos Vinicius Cortes
Ferreira da disciplina de Projeto Arquitetônico II no semestre de 2024.1. O objetivo é desenvolver um projeto arquitetônico contemporâneo de média complexidade para uso cultural, respeitando as características físicas, sociais, culturais, históricas e ambientais do local. O terreno está situado na Cidade de Goiás, reconhecida como Patrimônio
Mundial pela UNESCO (Organização das Nações
Unidas para a Educação, a Ciência e a Cultura). A presente edição da revista foi inspirada na coleção da "Revista PRJT2" da disciplina de Projeto Arquitetônico, do 3º período, do curso de Arquitetura e Urbanismo da Universidade Estadual de Goiás (UEG), proposta pelos docentes: Ana Paula Silva da Costa, Fernando Camargo Chapadeiro e Rodrigo Santana Alves.
Durante o processo projetual, os elementos como LUGAR, PROGRAMA, VOLUME, CIRCULAÇÃO, ESTRUTURA e MATERIALIDADE foram abordados em sala de aula através de orientações. Isso permitiu uma compreensão aprofundada das etapas que um projeto arquitetônico deve seguir até sua execução final, utilizando maquetes de estudo como suporte. Além disso, para expor as
ideias geradas pela proposta, foram desenvolvidos diagramas de conceito e partido, destacando os elementos mencionados anteriormente.
Para alcançar os objetivos propostos pela disciplina, foi essencial integrar conteúdos de outras disciplinas, como Oficina de Expressão e Representação III e Sistemas Estruturais II. Essa intersecção de conhecimentos permitiu uma abordagem mais abrangente e detalhada, enriquecendo o processo de aprendizagem e aprimorando a qualidade do projeto arquitetônico desenvolvido.
O processo de projeto com desenhos e maquetes nas disciplinas iniciais do curso de Arquitetura é de fundamental importância para a formação dos futuros arquitetos. Essas ferramentas permitem aos estudantes visualizar e experimentar espacialmente suas ideias, facilitando a compreensão das relações tridimensionais e das proporções dos elementos arquitetônicos. Além disso, o uso de desenhos e maquetes estimula a criatividade, aprimora a habilidade de representação gráfica e promove uma melhor comunicação das propostas. Esse processo prático e visual também auxilia o corpo discente a identificar e solucionar problemas de design de forma mais eficaz, preparando-os para enfrentar os desafios mais complexos das etapas avançadas do curso e da prática profissional.

A construção de um centro cultural é enriquecedor para os visitantes turistas e moradores do lugar em que ele está implantado.
Como forma de agregar ao entorno foi projetada uma Galeria de Artes que tem por fim proporcionar formas de expressão, conhecimento e lazer, dando voz e oportunidades aos artistas locais, já que não há variedade de ambientes em que estes possam expor suas obras na Cidade de Goiás.
Logo, encontra se na edificação salas fixas e temporárias, diversificando a gama cultural e não restringindo a exposição de somente alguns artistas, contando com pinturas, esculturas, cinematografia e também apresentações, por exemplo musicais, uma vez que o segundo andar possui um palco com este objetivo.

A edificação se encontra no meio da malha urbana da Cidade de Goiás, conhecida pelo turismo e importância histórica para o estado de Goiás. Com forte envolvimento cultural, a cidade realiza festivais, como o FICA, Festival Internacional de Cinema e Vídeo Ambiental, e celebrações religiosas, como o Fogaréu, atraindo milhares de pessoas durante todo o ano.
Foi fundada em 1727, no contexto de ocupação e colonização do Brasil Central. A cidade foi a capital do estado de Goiás desde a sua fundação até o ano de 1937. Em 2001, foi reconhecida como Patrimônio Cultural Mundial pela Unesco, fazendo jus à história, arquitetura e cultura do primeiro núcleo urbano fundado no território goiano. Atualmente possui cerca de 22 mil habitantes.
O projeto tem como foco a construção de uma Galeria de Arte no bairro Araguary, região próxima a Praça de Eventos, local que eventualmente acontece festas culturais.
O terreno tem cerca de 5.000 m2 e se situa em uma região predominantemente residencial, possuindo alguns comércios, um centro religioso e algumas instituições de ensino, localizado por volta de 500 metros do centro histórico da cidade.









Legenda Construção
Edificação
Vazio




A topografia do local possui declividade moderada apesar da passagem de 4 curvas de nível por sua delimitação, no entanto, devido a sua ampla extensão a inclinação do terreno é atenuada de certa forma. Os ventos mais frequentes de 20/02 a 28/10 vem do leste, com porcentagem máxima de 65% em 21 de junho; e no período entre 28/10 a 20/02 vem do norte, com porcentagem máxima de 41% em 1 de janeiro. Há também a passagem do Rio vermelho, contornando parte do terreno.
A vegetação existente no lote são gramíneas e algumas árvores de grande porte que serão todas mantidas, de maneira que o edifício é projetado com intuito de preservar as características e elementos do terreno escolhido, valorizando o paisagismo e a vegetação do cerrado.
As vias da região são todas coletoras tendo um cul de sac - ruas sem saída.
Estudando o entorno foi observado referente ao uso e ocupação do solo, majoritariamente terrenos privados, residenciais e parcelas destinadas a serviço, comércio ou institucional, como Igrejas, Escola de Música e Pluricultural, todos com altura da edificação em até 2 pavimentos. E também uma quantidade considerável de áreas vazias, subutilizadas e nenhum local em construção, o que indica que não há indivíduos sendo atraídos para o bairro e os donos de lotes sem interesse em construir ali. Apesar da presença de praças e lugar visitado por turistas, analisa se pouca infraestrutura urbana, reduzida quantidade de lixeiras, bancos, caixas de correio e ausência de pontos de ônibus, reduzindo a qualidade de vida dos moradores. Logo a implantação da galeria de artes irá valorizar a região.









Semi-Público







A proposta projetual é criar uma galeria de artes onde os artistas regionais possam ter liberdade e autonomia para expor suas obras, com salas de exposição temporárias e fixas para pinturas, esculturas e audiovisual. Na galeria também existe um espaço para reflexão das artes no centro dos prédios, contemplando também o paisagismo regional e o contato com a natureza.
A galeria também conta com um restaurante especializado em comidas típicas do cerrado brasileiro, e palco para apresentação de artistas, fornecendo assim uma experiência gastronômica e cultural para os clientes interessados.
A localização próxima ao famoso e turístico centro histórico de goiás atrai tanto as pessoas da cidade quanto os visitantes.









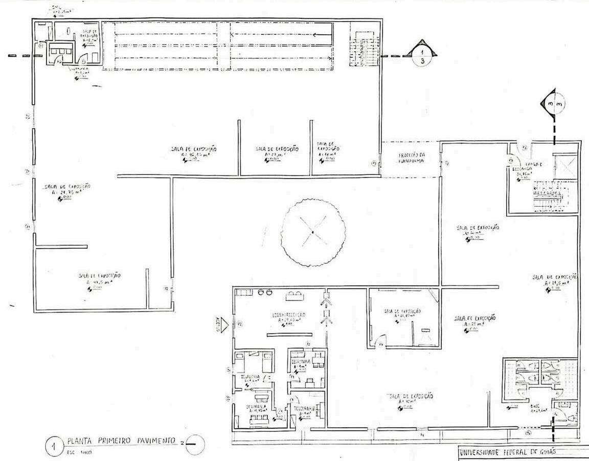
O programa de uma galeria de artes deve ser composto principalmente pelo espaço público-convivência, que depende de áreas administrativas importantes como a curadoria. Nesse espaço, o público alvo tem acesso a uma vasta disponibilidade de obras, em exposições fixas e temporárias, que proporcionam um repertório rico a todos que usufruem desse espaço.
. Além disso, toda a estrutura que envolve o restaurante, no segundo pavimento, depende de áreas de serviço como a cozinha industrial, principalmente. Nesse bloco, o restaurante proporciona uma importante experiência gastronômica goiana aos frequentadores da galeria, de forma a trazer aos moradores locais um sentimento de pertencimento, e aos turistas da cidade, uma introdução a culinária local bastante rica do centro oeste.
Por fim, as outras áreas de serviço/administrativo são áreas comuns as estruturas de centro cultural, como a secretária, recepção, segurança entre outros; que formam uma conjunção de logística do edifício.


A obra se localiza nas redondezas da Praça de Eventos e foi concebida com o objetivo de integrar o paisagismo existente, tendo a árvore como elemento central. Sendo assim, é possível harmonizar os dois elementos principais da galeria: a arte e a natureza, afinal, a arte é uma expressão da própria natureza.
Por isso, optou-se por um formato em ‘’L’’ duplo para desempenhar essa função de maneira eficaz, considerando que a galeria é o foco principal da edificação, a vegetação foi implantação não apenas para proporcionar o conforto térmico, mas também proporcionar o conforto térmico.

A ideia inicial era manter o dois blocos igualados e alinhados, mas optamos por rotacionar de acordo com o projeto devido questões projetuais. Logo, ficou igual a logo do projeto:

Como árvore central, optamos pelo ipê amarelo, já que queríamos combinar todos os elementos da obra típicas do cerrado.

Nas esquadrias do projeto foi pensado de forma a combinar com o estilo da cidade, seguindo nessa linha de características típicas do centro oeste. Por isso, optamos por uma proposta colonial de janelas
Também nos inspiramos na
Praça das Artes para os tamanhos irregulares das janelas, que foram posicionadas de forma que o peitoril da maioria tivesse tamanhos diferentes.
Referência


Referência

Praça das Artes, SP

Galeria Entrelaço, Cidade de Goiás
























