portfolio 2024

Page 1

Por olio Selected works from 2018-2023 haoruiyin@gmail.com

Content

Project 01: Public Transit Sta on

Project 02: Hyperloop Campus

Project 03: Interna onal Housing

Project 04: Wetland Park and Recrea on Center

Project 05: Co-working and Living Complex

Project 06: GreenHouse

Other Works

2

Project 01 Bus Terminal

Academic: Individual

Loca on: Chicago, Illinois

Media: Rhino, Vray, Photoshop, Illustrator

Date: 2019/09-2019/10

The largest bus terminal in downtown Chicago is designed to alleviate conges on at the central terminal and serve an area radia ng 40-120 miles around the city. Notably, the terminal features a unique curved roof facing Lake Michigan, providing passengers with a picturesque view while wai ng for their buses.

The building showcases eight dis nct blade-like structures with undula ng forms, allowing for ample natural light and enhancing the interior space. To maximize the view of Lake Michigan, the rear of the building is elevated, while the front is lowered, allowing people to walk on the roof and immerse themselves in the expansive lake view.

Inspired by the stunning Lake Michigan scenery, the terminal’s exterior is clad in silver metal, reminiscent of Chicago’s iconic landmark, “the bean.” This design approach harmonizes the terminal with the city’s architectural iden ty while offering travelers a memorable and aesthe cally pleasing transporta on experience.parency is important for the design. I want to create that kind of nothing, that kind of void through the material.” In order to ensure ligh ng, generally, the greenhouse theme material is glass, I want to reduce some of the transparency by using wood to ensure top ligh ng.

3
4
5
6

Site Analysis

7
Form Genera on
8
9

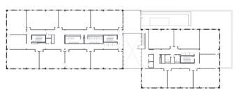
The internal func on division is designed according to the movement of passengers: entry- cket checking-waiting-boarding. The internal func ons are mainly divided into func onal services, office func ons, commercial func ons and wai ng func ons.

10
11 1 cket office 5 wai ng hall 9 caffe shop 13 sta on staff room 17 leader room 21 baggage room 25 infirmary 29 broadcas ng room 2 halls 6 cket gate 10 post office 14 stores 18 cket library 22 restroom 26 finance room 27 shi room 3 subway sta on exit 7 supermarket 11 supermarket 19 cket office 23 mee ng room 24 public security office 31 driver’s office 4 security check 8 restroom 12 restaurant 16 drink shop 20 consignment hall 24 data room 28 flight a endant room
12

Project 02 Hyperloop Campus

Compe on: Individual

Loca on: Las Vegas, US

Date: 2020/09

Media: Rhino, Enscape, Photoshop, Illustrator

The flora conservancy community gardens and greenhouse is located in the forest park in Saint Louis. This exercise of the semester aims to bring together the learning objecves of the previous assignments to test the crea vity rela ve to site documenta on, analysis, design; structural solu ons and tectonics; and environmental responsibility. Students design a greenhouse and community garden in Forest Park and develop a series of conceptual models, site strategies, structural bays, and final building proposals.

The design is inspired by Kengo Kuma’s projects. In this design, the floor plan is composed of 8 rectangles of 25’*12’6”, every four corners are supported by pillars, two of which are considered as a Bay. We explore the various possibili es of the structure on a fixed plane, Kengo Kuma said, “Darkness is important, minimalness is important, transparency is important for the design. I want to create that kind of nothing, that kind of void through the material.” In order to ensure ligh ng, generally, the greenhouse theme material is glass, I want to reduce some of the transparency by using wood to ensure top ligh ng.

13
14
15
16
17
18
19
20

Project 03 Interna onal Housing

Academic: Individual

Loca on: Barcelona, Spain

Date: 2022/09-2022/12

Instructor: Emiliano Lopez

Media: Rhino, Enscape, Photoshop, Illustrator

The design incorporates the typical Galleria-style balcony of Barceloneto, but with a modern twist on the open window design. The ver cal full panel serves as an exterior window to regulate sunlight and privacy in the room, while also shielding the interior from intense sunlight in Barceloneta. The communal and ground floor spaces are designed to be as transparent and open as possible, featuring numerous pa os to allow in natural light. These pa os can also serve as division of spaces, offering communal areas for residents’ personal use.

The threshold is the key to the transi on and connec on between spaces, and essen ally, the spa al condi on for the mee ng and dialogue between areas of different orders.To accommodate life and work of so many people from different backgrounds. Project should deal with the social situa ons and historical situa on in a way made the design reflect on the society.

21
22 Site
Plan

Threshold Physical Model

23
24
25
26
27

Threshold Model

28

Threshold Physical Model

29
30

Project 04 Wetland Park and Recrea on Center

Academic: Individual

Loca on, Saint Louis, Missouri

Media: Rhino, Vray, Photoshop, Illustrator

Date: 2023/03-2023/05

The Ferguson County Wetland Park and Recrea on Center project is a mul faceted ini a ve designed to address flooding issues in southern Ferguson County. It involves conver ng an exis ng sports park into a wetland park to alleviate flooding concerns and enhance the natural environment. Addi onally, a network of greenways will connect Forestwood Park, Wayside Park, the golf course, and a new creek-side greenway, providing accessible public corridors.

A central aspect of the project is construc ng a recrea on center within Forestwood Park, offering affordable access to gym facili es, mee ng rooms, and services for the elderly. Site enhancements include looping paths, permeable driveways, stormwater management ponds, and a sustainable water collec on roof system. Exis ng sports facili es like tennis courts will be integrated, and a basketball court will be added. Pedestrian trails passing under bridges will improve park connec vity. The building design draws inspira on from a Japanese museum, featuring shell concrete roofing, museum columns for support, and solid bearing walls, blending with the surrounding trails. In sum, the Ferguson County Wetland Park and Recrea on Center project aims to create a resilient and invi ng park and recrea on space, mee ng the diverse needs of the community while mi ga ng flooding.

31
32
33
34
35
36
37
38

Project 05 Co-working and Living Complex

Academic: Individual

Loca on, Madrid, Spain

Date: 2023/01-2023/05

Instructor: Garcia-German, Javier

Media: Rhino, Vray, Photoshop, Illustrator

Our project, the Co-Living and Working Complex in Madrid, represents a groundbreaking approach to sustainable and climate-responsive urban living. By deeply understanding how the human body interacts with different environmental condi ons, we have craed a design that adapts seamlessly to Madrid’s local climate. This innova ve complex features strategically placed summer and winter gardens, ensuring comfort year-round while op mizing energy efficiency. Our commitment to flexible spaces and communal living fosters a sense of community, promo ng well-being and sustainability in the heart of Madrid.

The essence of our project lies in its climate-conscious design. We leverage psychometric charts and wind rose charts to harness natural elements, posi oning summer gardens at the bo om for cooling during hot summers and winter gardens at the top to capture warmth in the colder months. This approach not only enhances comfort but also minimizes energy consump on. The complex’s adaptability, sustainable prac ces, and communal ethos make it a testament to modern urban living, where residents and workers thrive in harmony with the environment and each other.Wetland Park and Recrea on Center project aspires to create a resilient and invi ng park and recrea on space that meets the diverse needs of the local community while mi ga ng flooding concerns.

39
40
41

Case Studies

42
43

Winter and Summer Diagram

44

Aggregra on

45
46
Phototype Eleva ons and Floorplans
47 Site
Plan
48
Detail Sec onMaterials
49
Sec on
50
Aggregra on Floorplan

Project 06 Greenhouse

Academic: Individual

Loca on: Saint Louis, US

Date: 2021/10-2021/12

Instructor: Bruce Lindsey, Jonathan S telman Media: Rhino, Enscape, Photoshop, Illustrator

The flora conservancy community gardens and greenhouse is located in the forest park in Saint Louis. This exercise of the semester aims to bring together the learning objec ves of the previous assignments to test the crea vity rela ve to site documenta on, analysis, design; structural solu ons and tectonics; and environmental responsibility. Students design a greenhouse and community garden in Forest Park and develop a series of conceptual models, site strategies, structural bays, and final building proposals.

The design is inspired by Kengo Kuma’s projects. In this design, the floor plan is composed of 8 rectangles of 25’*12’6”, every four corners are supported by pillars, two of which are considered as a Bay. We explore the various possibili es of the structure on a fixed plane, Kengo Kuma said, “Darkness is important, minimalness is important, transparency is important for the design. I want to create that kind of nothing, that kind of void through the material.” In order to ensure ligh ng, generally, the greenhouse theme material is glass, I want to reduce some of the transparency by using wood to ensure top ligh ng.

51

The design is inspired by the architect of kengo kuma. In this project, the pla is composed of 8 rectangles of 25’*12 four corners are supported by pillars, which are a Bay. We explore the vario sibili es of the structure on a fixed pla Kengo Kuma said, “Darkness is import minimalness is important, transparen is important for the design. I want to ate that kind of nothing, that kind of v through the material.” In order to ens ligh ng, generally the green house th material is glass , I want to reduce som the transparency by using wood to en top ligh ng. Regarding the sec on, the shape of th is inspired by Japanese Farm House. I past, this kind of roof can not only kee warm, but also ensure good ligh ng. I typical example of energy saving and ronmental protec on. As you can see picture, the sec on cut shows the dou screens of the outside structure. Mor can be placed in the interior space, an there are more automa c rota ng spr of almost the same width, and the to the T column is located in the middle facade. It can be seen in the model th X-shaped intersec on of the facade is bedded on the outer screen, and this ture is more stable than non-embedd

52

ture ane

2’6”, two of us posane, tant, cy crevoid ure eme me of nsure he roof n the ep It is a enviin the uble e plots nd rinklers op of of the hat the emstruced.

Simula on tool:Ladybug

Daylight is a crucial parameter in designing an energy-efficient greenhouse. Various daylight during a year of the building was improved by designing a kine c shading system with independent units parametrically responding to sunlight through 3D rota on (around the centers of the units) and 2D movement (on the surface of the shading system).

53
54 Sect

For the structure, I want to reduce some of the transparency by using wood. Also to ensure top ligh ng at the same me. With this idea, in terms of structure, double-layer wooden slats are used in the middle to be supported by T-shaped columns of almost the same width, and the top of the T column is located in the middle of the facade. It can be seen in the model that the X-shaped intersec on of the facade is embedded on the outer screen, and this structure is more stable than non-embedded.

55
ion

Site Plan

56
57
Sec on East Eleva on

first semester project

Architectural inves ga on of a tectonic explora on tower

AI Rendering for Design Thinking class

58 Other

Second Semester Design Firesta on

59 Works

aeGeen Architecture, 2020

Building System and E Group

60
Vertical Terra Cotta Tile Soil Substructure Aluminum Extrusion 7/8” Terra Fastening Alumimum Clip Aluminum Angle Drainage Clt Floor(5 Ply) Clt +Wall (3ply) Wood Panel Thermal Layer Glulam Beam Concrete Flooring Concrete Footing Kingspan 24" Below Grade(Min) Plants Glulam Column Stone Pedestal System Wood Floor Insulation Thermal Layer Insulation Triple Glazed Window Metal Roof Cladding Pebbles Tapered Roof Insulation Membrane Air Barrier Level 3 Roof scale: 1’ = 2” scale: 1’ = 2” scale: 1’ = 2” scale: 1’ = 2” le: 1’ = 1”

Environmental System Project

61 26’-0” 2ND FLOOR 13’-0” 1ST FLOOR 6” VERTICAL LOUVER RAIL TYP. 5/8” EXTERIOR GRADE CARPET BOX HEADER CURTAIN WALL ATTACHMENT 6” MTL. STUD WALL SECTION 1/2” = 1’-0” N.T.S. PLAN DETAIL STL. COLUMN SEE STRUCT. 4” INSULATED WALL PANEL
62 Sketc
63 ches
64 Internship Projects a

at Hok and Gensler

65

Turn static files into dynamic content formats.

Create a flipbook
Issuu converts static files into: digital portfolios, online yearbooks, online catalogs, digital photo albums and more. Sign up and create your flipbook.