
Zhao Selected Works 2020-2025










![]()

Zhao Selected Works 2020-2025










Academic Work
Spring 2025
Cornell M.Arch Core Studio II
In Collaboration with Kerui Zhang and Xuanzhi Zhang Drawing (80%), Modeling (50%), Physical Model (33%)
Instructors: Martin Miller, Andrew Lucia, Iroha Ito
Location: Philadelphia, Pennsylvania, US
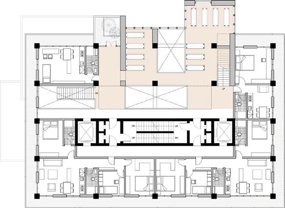
Located next to the University of Pennsylvania Hospital, Urban Umbrella addresses a flood-prone site fragmented by two freight lines and one rail corridor that disconnect surrounding sports parks and playing fields. A concrete spanning structure covers the freight tracks, transforming infrastructure into a continuous public ground that reconnects the landscape and supports a roof garden and open-air amphitheater above. Elevated on a CLT structural system, the primary volume rises above the flood zone, forming a protective canopy. Within this lifted structure, curved vertical voids conceived as spatial extensions of the umbrella shape continuous surfaces that guide movement and light, integrating rehab patient rooms, physical therapy areas, and plant-based healing spaces into a cohesive environment where infrastructure, recovery, and public life operate as one.









This typological study explores how a carved vertical void within a continuous surface can organize space and movement. By shifting scale and depth, the spatial logic generates different rehab space.












This process begins with a free-form SubD surface to explore spatial curvature and void relationships. Through Grasshopper, the surface is analyzed and rationalized by extracting principal directions and converting curved geometry into straight-line axes suitable for CLT panels and beams.










Individual Academic Work
Spring 2024
TU Delft MSc2 Studio: High-Rise Culture
Instructor: Paul Kuitenbrouwer
Location: Kabeldistrict, Delft, The Netherlands
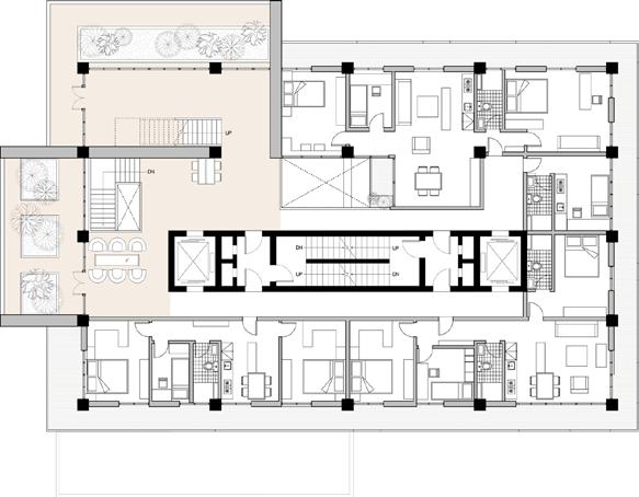
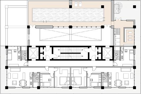
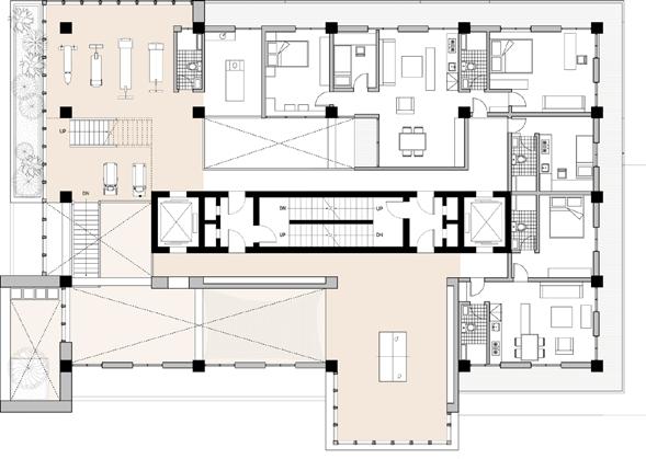
Life In-Between is located in the Kabeldistrict in Delft and rethinks the spatial and social logic of high-rise housing. The project proposes a continuous spiraling volume that extends community life from the ground to the 26th floor, challenging the conventional separation of stacked floors and redefining connectivity within vertical living. A concrete base and core provide structural stability, while an upper CLT system enables a lighter, more sustainable construction and allows spatial flexibility, reinforcing the relationship between structure and form.
Shared programs, including a community center, theater, public kitchen, library, and wellness facilities, are embedded along the spiral, encouraging daily interaction and collective life. Vertical fissures introduce light, air, and urban ecology into the building, creating habitats for birds and enhancing biodiversity. A central atrium organizes circulation and visual connections, drawing natural light deep into the interior. As a high-rise housing prototype, the project responds to urban density by proposing a community-driven and ecologically integrated model for vertical living.













































Individual Academic Work
Winter 2024, Cornell M.Arch Core Studio I
Instructors: Zachary Leazer, Leslie Lok
Location: Mundy Wildflower Garden, Ithaca, New York, US
The raccoon rehabilitation center draws inspiration from the way raccoons appropriate human spaces, often adapting to urban environments. In this design, primary spaces are allocated for human use, while raccoons occupy adjacent “inhabited walls” that weave through and around the human areas. This spatial interconnection allows for coexistence and interaction without direct disturbance. The roof extends the surrounding landscape, integrating the building with its natural context. Courtyards provide natural light to the interior and serve as rehabilitation zones for raccoons, ensuring a safe and stimulating recovery environment. The design emphasizes a harmonious relationship between humans and raccoons, blurring habitat boundaries to create a balanced, shared space.







Concept 1: Raccoons Living in Inhabited Walls
Concept 2: Human Occupying Main Space










Section A-A': Entrance
Section B-B': Educational Space

Section C-C': Media Room














Work Independently in Fall 2022
In Collaboration with Jennifer Zhu in Winter 2023
TMU Integrative Studio
Drawing (80%), Modeling (90%), Physical Models (80%)
Instructors: Michelle Grant & John Circa
Location: Dufferin Grove, Toronto, Canada
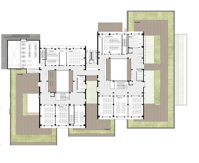
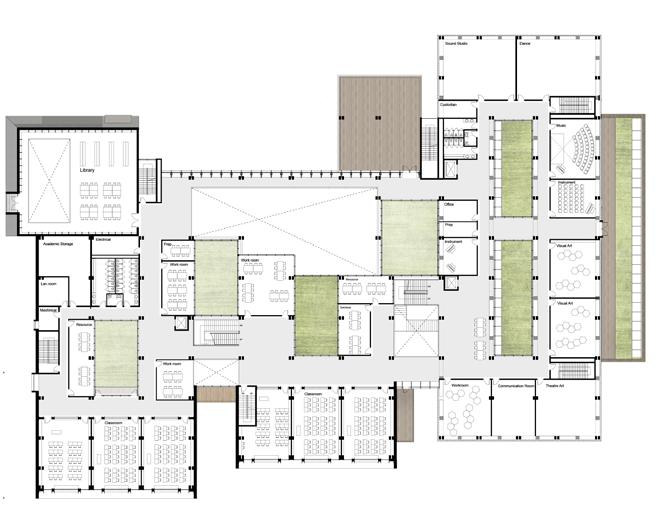
Dufferin Grove Alternative High School is envisioned as a "vessel of light," serving as a community link to foster a transparent interface for flexible learning spaces and community programs. The design features teaching volumes above the ground floor, stacked like building blocks around a courtyard. As one moves through the school, the interplay of solid and void between the buildings and gardens crafts dynamic pathways, lighting conditions, and scenarios. This design brings students into closer contact with elements like wind, rain, plants, and seeds, turning nature into an extracurricular textbook that sparks their curiosity and imagination.




































Mass Timber Structure of the Gym Gym Section Model

Exterior Sheathing: translucent polycarbonate wall sheet, 60/1500 mm
Glazing Support: Glued laminated-timber horizontal rail, 70/170 mm
Glazing: double glazing, 31 mm (in 50/200 mm softwood frame)
Exterior Cladding: vertical softwood/fir boarding, 30/100 mm
Cladding Support: horizontal wood battens with ventilated cavity, 60/90 mm
Vapour Barrier: moisture-diffusing fac. membrane
Cladding Support: medium density fiberboard, 16 mm
Thermal Insulation: mineral wool, 200 mm (in-between 60/200mm studs)
Cladding Support: oriented-strand board, 15 mm
lath grating, 40/60 mm
Interior Finish: softwood/fir cladding, 60/120 mm
Glued laminated timber beam, 300/1500 mm
Glued laminated timber column, 300/900 mm










Academic Work
Fall 2025
Cornell M.Arch Structural Systems Model
In Collaboration with Kerui Zhang and Guanyu Feng
Modeling (33%), Physical Model (33%)
Instructors: Mark R. Cruvellier
Architect: Ackermann und Partner















