Selected Work 2024_Mohd Hamza Azmi

Page 1


Wooven School

Awards: Runner-up (Re-School 2021); Mention (Ethical Architecture Award 2023)

Type: social/educational

Kind: competition

Location: Brahmaputra Floodplains, Assam, India

Category: teamwork Year: 2021

[tri-loo-gy]

Publication: 16th (Top 50), Little Big Loo Rethinking Public Toilets 2020 (VolZero) Type: social/public toilet Kind: competition

Location: Dharavi, Mumbai, India

Category: teamwork Year: 2020

the JUNGLE BOOK

Type: social/public library Kind: competition

Location: Mandi, Uttarakhand, India Category: teamwork Year: 2020

Kaira Looro

Type: social/educational

Kind: competition

Location: Seleki village, Ziguinchor Region, Senegal, Africa Category: teamwork Year: 2023

SOCIAL WAREHOUSE

Type: cultural+performing arts centre Kind: academic design studio

Location: Dwarka Sector-11, Delhi, India Category: INDIVIDUAL Year: 2022

internship/project

Type: documentation/conservation

Funding Agency: Ministry of Housing & Urban Affairs, Government of India

Location: Baoli at Feroz Shah, New Delhi

Category: teamwork Year: 2022

Aarambh

skill-based tinkering campus

Type: studios/workshops/exhibition/educational/industrial/innovation

Kind: academic thesis

Category: INDIVIDUAL

Location: Tughlakabad, New Delhi Year: 2023

<industrial habitat>

Type: residence

Kind: academic design studio

Category: INDIVIDUAL

Location: Mujeeb Bagh, Okhla, New Delhi Year: 2020

[confluence]

Kolkata the Edible Urban Realm

Type: riverfront/urban farming/urban intervention/public realm

Kind: competition

Category: teamwork

Location: Kolkata CBD (Central Business District) Year: 2021

drawings

+ steel connections

+ steel trusses

Type: art installation Kind: competition

Location: Chandni Chowk, Delhi, India

Category: teamwork (Lead) Year: 2022

miscellaneous

+ PHOTOGRAPHY + SKETCHES

Type: long span pavillion/placemaking

Kind: academic design studio

Location: Jwalapur, Haridwar, Uttarakhand, India

Category: INDIVIDUAL Year: 2022

wooven school

Year: 2021 International Awards:

Runner-Up, Re-School 2021 (VolZero)

Honourable Mention, Ethical Architecture Award 2023

Type: social/educational

Kind: competition

Location: Brahmaputra Floodplains, Assam, India

Category: teamwork

Softwares: Rhino, Revit, Vray, Photoshop

JURY: Anna Lacaton | Kazuyo Sejima | Anupamaa Kundoo | Raul Pantaleo | Vincenzo Manes

Prototype of locally weaved panels
Hosting flags for different activities
Hosting flags for school
Hosting flags for emergency relief camp
Learning & creating Gram panchayat
Employment generation
Festivals

[tri-loo-gy]

Year: 2020

Publication: 16th (Top 50), Little Big Loo Rethinking Public Toilets 2020 (VolZero)

Type: social/public toilet

Kind: competition

Location: Dharavi, Mumbai, India

Category: teamwork

Softwares: Revit, 3ds Max, Vray, Photoshop

the JUNGLE BOOK

Year: 2020

Type: social/public library

Kind: competition

Location: Mandi, Uttarakhand, India

Category: teamwork

Softwares: Revit, Vray, Photoshop

DESCRIPTION

The design is envisioned as a space which generates an aura of serenity in the middle of a forest. The tiny library is designed at a place which is cut off from hustle & bustle of the city, at a remote area. The motive is to create a resting place for the strollers & locals, which can hold public meetings/ workshops. A true sense of living together with nature shall be experienced by the users. A learning space around trees clearly reminds of Louis Kahn who often spoke of his notion that, “the first school probably began with a man under a tree, and around him the listeners to the words of his mind.”

DESIGN

Carved out of forest, this library portrays sensibility, timelessness and discipline in design. In the form of cylinders, embracing an open space with a connecting staircase are arranged in the lap of nature. The Library is made with Cross Laminated Timber as the structural element. The aim of using Wood as a basic material was to bring interiors in total synergy with exteriors. Hidden deep in the dense vegetation, it is designed to have minimal impact on its stunning surroundings. It should incorporate a variety of spaces and areas that support readers’ comfort and most importantly, bring the community together for shared experiences. The fundamental rule is that a simple shape is much more sustainable than a complex shape. Hence, cylindrical spaces are introduced that uses Wood as main material for construction. To ensure interaction of community, all the 3 trees supporting cylinders are interconnected with stairs that form a complex within.

CLT for Construction

The production and use of cement is responsible for approximately 8% of the world’s CO2 emissions, which will continue to increase if current construction trend prolonged. One of the most effective and eco-friendly alternative is CLT, which can save an average of 45 tons (40 tonnes) of CO2 per dwelling. CLT allows us to construct lighter, better quality buildings, more quickly, with reduced foundation. These timber must be extracted from sustainably grown forest.

Kaira Looro

Year: 2023

Type: social/educational

Kind: competition

Location: Seleki village, Ziguinchor Region, Senegal, Africa

Category: teamwork (Lead)

Softwares: Rhino, Vray, Photoshop

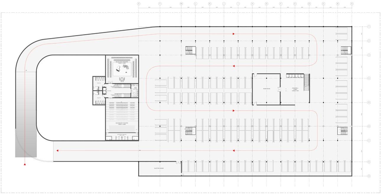
SOCIAL WAREHOUSE

Year: 2022

Type: cultural+performing arts centre

Kind: academic design studio

Location: Dwarka Sector-11, Delhi

Category: INDIVIDUAL

Guide: Ar. Ramya Kuchhal

Softwares: Revit, Rhino+Grasshopper, Vray, Photoshop

The aim regarding this site is to make the pedestrianization

Type: art installation Category: teamwork (Lead) Location: Chandni Chowk, Delhi Kind: competition Softwares: Rhino, Vray, Photoshop Year: 2022

Jahanara Begum, daughter of Shah Jahan, established Chandni Chowk in the 17th Century.
In 2020,Chandni chowk continued to be relevant in Delhi despite being well recognised for its mismanagement.
In 2021, Chandni Chowk was pedestrianised, bringing back its former beauty however foot traffic and congestion here is still an issue today.
The clock tower, built by the British right infront of the town hall, stood here till the 1950s.

Yoga & Meditation Centre

CONCEPT + SITE DEVELOPMENT

The physical characteristics of the existing built context paves way for a permeation of the ghats on the banks of upper ganga canal via the national highway road to our primary site. An interesting set of visual axes derives pragmatic response with respect to the zoning of the site. The eastern projection of the site is chosen as the vehicle parking area for an estimated footfall of 200-300 personall for the project.

Further, the zones are demarcated for a free flowing site plan as envisoned by a tri-partite approach of generating a sensual conciousness traversing through the mind, body and soul of human beings. The project tries to rejunuvate and engages self introspection among it’s stakeholders with respect to the natural blend of the built environment and landscape.

Geometric engagement with ‘randomized surroundings’ describes the overall design paradigm being explored.

Year: 2022

Type: long span pavillion/placemaking

Kind: academic design studio

Location: Jwalapur, Haridwar, Uttarakhand

Guide: Ar. Nomaan Khan

Category: INDIVIDUAL

Softwares: Rhino, Vray, Photoshop

internship/project

Year: 2022

Type: Documentation/Conservation

Funding Agency: Ministry of Housing & Urban Affairs (MoHUA), Government of India (GoI)

Location: Baoli at Feroz Shah, New Delhi

Category: teamwork

Softwares: Rhino, Vray, Photoshop, AutoCAD

Aarambh skill based tinkering campus

Year: 2023

Type: studios/workshops/exhibition/educational/industrial/innovation

Kind: Academic Thesis

Guide: Ar. Mohd Juned

Category: individual

Location: Tughlakabad, New Delhi

<industrial habitat>

Year: 2020

Type: Residence Design

Kind: Academic Design Studio

Category: INDIVIDUAL

Location: Mujeeb Bagh, Okhla, New Delhi

Softwares: Rhino+Grasshopper, Vray, Photoshop; + Manually Drafted

[confluence]

Year: 2021

Type: Urban Farming/Urban Intervention/Public Realm

Kind: Competition

Category: teamwork

Location: Kolkata CBD (Central Business District)

Softwares: SketchUp, Revit, Photoshop, AutoCAD

Kolkata the Edible Urban Realm

Turn static files into dynamic content formats.

Create a flipbook
Issuu converts static files into: digital portfolios, online yearbooks, online catalogs, digital photo albums and more. Sign up and create your flipbook.
Selected Work 2024_Mohd Hamza Azmi by Hamza Azmi - Issuu