ABSICHT UND ZIELSETZUNG
Text: Robin Neuhaus
Die historischen Hotelbauten in Seelisberg, direkt über dem Rütli am Vierwaldstättersee, sollen mit einer neuen Positionierung zum Leben erweckt werden. Im Zentrum der Entwicklung des Gebäudekomplexes rund um das Grandhotel Sonnenberg und das Kurhotel Kulm stehen die Revitalisierung und Identitätsstärkung der massiv sanierungsbedürftigen historischen Bauten – mit dem Ziel, ihre grosse Bedeutsamkeit für den Standort wieder aufleben zu lassen. Die erneuerte Hotelanlage wird durch sorgfältig platzierte Wohnbauten ergänzt, die infrastrukturelle Synergien zum Tourismusbetrieb bilden und gleichzeitig die wirtschaftliche Machbarkeit des Projekts sicherstellen. Das Bauvorhaben wird in Zusammenarbeit mit den lokalen Schlüsselpersonen und -organisationen entwickelt. Es bietet der Gemeinde Seelisberg und dem Kanton Uri eine einmalige Perspektive und ist von enormer regionaler volkswirtschaftlicher Bedeutung.
EINE ANSPRUCHSVOLLE AUFGABE AN EINEM SENSIBLEN ORT
Die Entwicklung befindet sich eingebettet in eine charakterstarke, einmalige Landschaft und an einem Ort mit hohem kulturhistorischem Wert. In unmittelbarer Nähe stehen unzählige Zeitzeugen des Schweizer Pioniergeistes, in die sich die beiden Hotelgebäude in Seelisberg stolz einreihen. Das Grandhotel Sonnenberg mit Baujahr 1875 befindet sich unter Denkmalschutz mit regionaler Bedeutung. Die gleich angrenzende Wallfahrtskapelle Maria Sonnenberg mit Kaplanenhaus aus dem späten 17. Jahrhundert ist ebenfalls ein Kultureinzelobjekt von regionaler Bedeutung. Das Gebiet ist im Bundesinventar der Landschaften und Naturdenkmäler von nationaler Bedeutung und im kantonalen Schutzinventar für Kulturgebiete eingetragen. Teile davon befinden sich auch im Inventar historischer Verkehrswege der Schweiz. Diese Ausgangslage stellt sehr hohe Ansprüche an die Ausarbeitung eines Projektvorschlages und das Projektteam. Eine sorgfältige Abwägung aller Interessen und eine tiefgründige Auseinandersetzung mit dem Ort, den Gebäuden und den zukünftigen Bedürfnissen der Gäste, Bewohnerinnen und Besucher ist unabdingbar.
In den folgenden Kapiteln nehmen wir Sie mit auf eine kompakte, kurzweilige Reise durch die Themenbereiche, die den am Ende präsentierten Projektvorschlag massgeblich beeinflusst haben. Alle wesentlichen Rahmenbedingungen werden erläutert und die städtebaulichen, (landschafts-)architektonischen, denkmalpflegerisch- sowie nutzungsrelevanten Absichten ausführlich hergeleitet, dargelegt und begründet. →
«Im Zentrum stehen die Revitalisierung und Identitätsstärkung der Hotelbauten, um die Bedeutsamkeit des Standortes wieder aufleben zu lassen.»
Robin Neuhaus
WEITERENTWICKLUNG DER MEHR ALS 150-JÄHRIGEN GESCHICHTE
Der ausgearbeitete Projektvorschlag besticht durch seine Einbettung in die sensible Landschaft und seine feinfühlige Auseinandersetzung mit dem historischen Gebäude-Ensemble samt Gartenanlage sowie der prägenden direkten Umgebung. Er führt die über 150-jährige Entwicklungsgeschichte dieses Ortes mit einer aus der Historik heraus entwickelten Logik weiter und schafft die wirtschaftliche Basis für einen nachhaltigen Hotelbetrieb unter sorgfältiger Berücksichtigung der herausfordernden Rahmenbedingungen.
Mit ihrer architektonischen Zuordnung und der weitgehend öffentlichen Nutzung ist die Sonnenberg-Anlage ein historischer und hotelgeschichtlicher Zeitzeuge der hochdynamischen kulturellen Entwicklung im 19. und 20. Jahrhundert.
HISTORIK
Text: Roland Flückiger-Seiler
Die Biografie von Seelisberg lässt sich bis ins 16. Jahrhundert zurückverfolgen. Die Felsenterrasse mit ihrer Kapelle Maria Sonnenberg diente seit dieser Zeit vielen Pilgerinnen und Pilgern als Wallfahrtsort, obwohl man bis zur Erstellung der ersten Gaststätten im 19. Jahrhundert nur auf grossen Umwegen dorthin gelangte.
Ab 1852 prägte der einheimische Tourismus- und Hotelpionier Michael Truttmann-Borsinger (1833–1905) die bauliche Entwicklung des Sonnenbergs. Er errichtete bereits zwei Jahre nach dem Kauf der alten Anlage sein erstes Kurhaus, wodurch die Zahl der Besuchenden stark anstieg. 1859/60 liess Truttmann durch den bekannten Architekten Ferdinand Stadler 1 aus Zürich (1813–1870) eine Erweiterung des Gebäudes mit zwei seitlichen Flügeln und einem kleinen Türmchen auf dem Mitteltrakt erstellen. Der dreiteilige Bau war damals prägend für die immer noch abgelegene Hotelanlage.
Gerne hätte er sich auch auf der Rütliwiese verwirklicht, wo er mit dem Bau eines Hotels begann. Dieses Areal wurde ihm aber 1859 nach einer gross angelegten Geldsammlung durch die Schweizerische Gemeinnützige Gesellschaft (SGG) abgekauft und ins Eigentum der Eidgenossenschaft überführt. Die bereits erstellten Mauern des geplanten Hotels wurden beim Bau des Chalets auf der Wiese entfernt. Auch der junge Bayernkönig Ludwig II. kam zu spät. Als glühender Verehrer der Sage von Wilhelm Tell fand er bei seinem Besuch 1865 am Rütli grossen Gefallen und hätte in der romantischen Abgeschiedenheit dieses Ortes gern ein Schloss erstellt. 2
1 Der Zürcher Ferdinand Stadler (1813–1870) entwarf in den späten 1850er-Jahren einige Hotelprojekte am Vierwaldstättersee: während seiner Professur am Polytechnikum in Zürich 1856/57 das Hotel Regina Montium auf Rigi-Kulm, kurz darauf zwei Projekte für den Bau des Hotels Waldstätterhof in Brunnen, das ein Jahrzehnt später vom Architekten Johann Meyer ausgeführt wurde. Flückiger-Seiler 2001 (2005), S. 136, und Flückiger-Seiler 2003 (2005), S. 46 f.
2 Beyer (1898), S. 15–25; www.blog.nationalmuseum. ch/2019/07/der-bayernkoenig-war-ein-ruetlifan, aufgerufen im April 2023.
3 Pläne: Gasser 1986, S. 439, und Staatsarchiv Uri, Dossier: R-400-13/ Gasser 360-11.
Der grosse Erfolg führte Truttmann zu einer nächsten Erweiterung seiner Anlage. So entstand bis 1866, als er auch als Regierungsrat im Kanton Uri wirkte, die «English Pension», der erste Steinbau in Seelisberg. Dieser bildet den Mittelpunkt der späteren dreiteiligen Hotelanlage, die unter dem Namen «Kurhotel Kulm» bekannt wurde und noch heute zum Bestand gehört.
DAS GRANDHOTEL SONNENBERG
Die Wirtschaftskrise in den frühen 1870er-Jahren beeindruckte Truttmann offenbar wenig, denn genau in dieser Zeit liess er sein neues Grandhotel planen und erstellen. Die Pläne 3 stammten vom damaligen Hotelbauspezialisten, dem Architekten Horace Edouard Davinet (1839–1922). Dieser führte als gebürtiger Franzose und ohne Architekturstudium zusammen mit seinem Schwager Friedrich Studer, dem Architekten unter anderem des Bundesratshauses, heute Bundeshaus-West, ein erfolgreiches Entwurfsbüro in Bern und Interlaken. 4
4 Ecclesia 2021. →
[A]
Das erste nachgewiesene Gasthaus im Ort Sonnenberg auf Seelisberg.
[B]
Das erste Kurhaus von Truttmann, eröffnet 1854.
[C]
Die Erweiterung zum dreiteiligen Bau im Jahr 1860.
[D]
Ansicht der Anlage nach dem Bau mit der «English Pension».
[E]
Pläne des Architekten
Horace Edouard Davinet beim Bau des Grandhotels.
[C1]
[B2]
[B3]
[A]
[C2]
[C3]
[B1]
[D1]
[D2] [E1]
Auf die Idee zum Bau eines Grandhotels kam Truttmann, weil er die Konkurrenz im gegenüberliegenden Axenstein und auch auf der Rigi sah, wo grosse, schöne Hotels entstanden. So müsse auch er daran denken, «etwas für die Fremden zu tun». Zuerst plante er nur eine Vergrösserung des Speisesaals, dann entschloss er sich zu einem vollständigen Neubau mit einem grossen Saal und komfortablen Zimmern. Inspiriert wurde Truttmann offenbar von der Planung und dem Bau für die Gebrüder Schreiber auf Rigi-Kulm. Diese hatten ihn zur Überzeugung geführt, mit dem Architekten Davinet aus dem Kanton Bern den richtigen Entwerfer für seinen neuen, grossen Bau zu finden. Architekt Davinet aus dem fernen Interlaken war also fast zeitgleich am Entwurf der beiden Bauten an der Rigi und in Seelisberg beteiligt, ein an sich einmaliger Vorgang in einer noch kaum erschlossenen und vernetzten Zeitepoche. Die Bauleitung übertrug Truttmann am 8. August 1873 dem Baumeister-Architekten Karl Hürlimann aus Brunnen (1848–1925) 5. Nach seinen Erinnerungen überarbeitete dieser die Pläne «in der Anordnung der Räumlichkeiten, in den Grundrissen sowie in den Fassaden auf Wunsch von Truttmann». Er übernahm also die Gestaltung der definitiven Pläne sowie die Ausführung der Arbeiten mit der Bauführung. Bis Ende November 1874 war der Bau bis auf die Höhe des zweiten Stockwerks aufgemauert, im Januar 1875 der Dachstuhl aufgerichtet und das Dach eingedeckt, sodass der forsche Bauleiter an die Fertigstellung bis zur Hochsaison dachte 6. Diesen Termin konnte er einhalten, denn bereits am 20. Juli 1875 fand im Speisesaal eine erste «table d’hôtes» (gemeinschaftlicher Esstisch für die Hotelgäste) statt. Bei der Eröffnung in der zweiten Saison 1876 fiel die Ankündigung, dass das «schon letztes Jahr benutzte neue Hotel nun vollendet und den heutigen Anforderungen entsprechend ausgestattet ist». 7
5 Karl Hürlimann stammte aus Brunnen, absolvierte Ende der 1860er-Jahre ein Architekturstudium an der jungen ETH in Zürich, wo er die Vorlesungen bei Gottfried Semper und Ernst Gladbach besonders genoss, wie er schrieb. Anschliessend engagierte er sich als Architekt und Bauführer in etlichen Bauaufgaben. In Andermatt lernte er dabei seine spätere Frau Rosalia Camenzind kennen, die ihm anschliessend tatkräftig zur Seite stand. Er schrieb als späterer Gründer einer Zementfabrik in Brunnen interessante Lebenserinnerungen, die von der Familie 2002 publiziert wurden: Hürlimann 1982.
6 Hürlimann 1982, S. 82–85.
7 Erstmals in der Zeitung «Der Bund» am 29. April 1876 angekündigt, dann mehrmals wiederholt.
8 Flückiger-Seiler 2003 (2005), S. 16.
9 Hier ist nach dem ersten Bericht der Firma Synaxis eine genaue statische Untersuchung notwendig.
ARCHITEKTONISCHE PIONIERARBEIT
Der Neubau des Grandhotels Seelisberg war in zweierlei Hinsicht für die Schweizer Hotelgeschichte einmalig. Zum einen entwarf Architekt Davinet nach dem heutigen Forschungsstand erstmals bei einem Schweizer Hotelbau über einem zentralen Turm eine Dachkuppel, die dann auch erstellt wurde. Beinahe zeitgleich hatte er auf der Rigi noch eine kleine Kuppel auf einem Turm an der Rückseite der V-förmigen Anlage errichtet. Das fast zur selben Zeit von ihm entworfene und erbaute Hotel Giessbach am Brienzersee erhielt noch die für ihn typischen kleinen Seitentürme mit Kuppeln. 8
Ein weiteres Novum war der Bau des Saales, mit 46 Metern Länge und 15 Metern Breite einer der grössten Räume ohne Abstützung. 9 An die Ausführung von solchen grossen Saalanlagen wagten sich damals noch kaum Baufachleute. Karl Hürlimann war als Architekt mit Vorlesungen in Konstruktion an der ETH einer der Ersten, die ein solches Unterfangen vornahmen. Er schrieb im Buch seiner Lebenserinnerungen: «Im Speisesaal wollte
«Der Neubau des Grandhotels mit der Dachkuppel über dem zentralen Turm und dem stützenfreien Saal war für die Schweizer Hotelgeschichte ein Novum.»
Roland Flückiger-Seiler
Herr Truttmann keinerlei Säulen haben, sodass alle (darüberliegenden) Stockwerke mit Eisenkonstruktionen auf die Pfeiler in den Umfassungsmauern abgestützt werden mussten (…).» 10 Vergleichbare Säle dieser Grösse kamen erst gegen Ende des 19. Jahrhunderts in den Palaces und Grandhotels zur Ausführung. 11 In Locarno entstand ein weiteres Beispiel mit dem ebenfalls 1875 eröffneten Grandhotel nach Plänen des Tessiner Architekten Francesco Galli (1822–1889) 12. Dort wurde aber nur ein 26 Meter langer und 9 Meter breiter Speisesaal ohne Abstützung erstellt. Dieser sah im noch unfertigen Zustand im Dezember 1874 die Eröffnungsfeier für die Eisenbahnlinie Bellinzona – Locarno. Für die dort im Oktober 1925 durchgeführte Friedenskonferenz des Ersten Weltkrieges erhielt der Saal die reiche, noch heute vorhandene Ausmalung. 13
10
Hürlimann 1982, S. 83.
11
Flückiger-Seiler 2003 (2005), S. 15–21.
12
Eine Biografie von Francesco Galli, der im Architektenlexikon nicht vorgestellt wird, ist nicht bekannt.
13
Flückiger-Seiler 2003 (2005), S. 46, 146 f.
14
Cuonz, Niederberger 1998.
15
«Der Bund», Nr. 308 vom 8. November 1886; «Schweizerische Bauzeitung» Bd. 69/70, Heft 11/12, 1917.
16
«Der Bund», Nr. 21 vom 21. Dezember 1886.
17
Die touristische Entwicklung gedieh in Seelisberg offenbar immer besser, denn 1886 hatten die beiden Unternehmer Bucher und Durrer aus Kägiswil, 14 unter anderem die Erbauer der Anlagen auf dem Bürgenstock, dem Bund ein Konzessionsgesuch für eine Drahtseilbahn von der Schiffstation Rütli auf den Seelisberg eingereicht. 15 Auf Widerstand der SGG und sogar der Gemeinde Seelisberg wurde das Gesuch aber zurückgezogen. 16 1893 beantragte ein Komitee unter der Präsidentschaft von Michael Truttmann eine Konzession für «eine elektrische Zahnradbahn von der Schiffstation Treib über Seelisberg nach Beckenried zur Bedienung der Gebiete mit den vielen Hotels». 17 1901/02 erfolgte ein weiterer Ausbau der bereits erstaunlich grossen Hotelanlage. Truttmann liess die «English Pension» von 1866 um zwei Seitenflügel erweitern. Der vorwiegend im Kirchenbau und als Spezialist für Bauten des Historismus tätige Architekt August Hardegger (1858–1927) mit Büro in St. Gallen 18 erweiterte den Steinbau mit zwei leicht abgewinkelten, symmetrischen Flügeln, die an beiden Enden zwei runde Ecktürme mit Kegeldächern erhielten. Im Innern erfolgte im Erdgeschoss die Installation eines «Hydrotherapeutischen Institutes». Kurz nach 1900 waren die Bauten in Seelisberg also grösstenteils in ihrer heutigen Form vorhanden. 19
Staatsarchiv Uri: Dossier R-720-12/101; «Der Bund», Nr. 198 vom 19. Juli 1893; «Der Bund», Nr. 95 vom 6. April 1895.
18
«Architektenlexikon der Schweiz» 19./20. Jahrhundert, Basel 1998, S. 252.
19
«Hotel Sonnenberg & Kurhaus Seelisberg». Faltprospekt mit Plan «Hydrotherapeutisches Institut». Seelisberg ca. 1914. Nationalbibliothek: V UR 19485.
20 «Urner Wochenblatt» 1905, Nr. 10.
21
DER TOD TRUTTMANNS UND WIRTSCHAFTLICHE ZÄSUR
1905 verstarb der unermüdliche Initiant Michael Truttmann, der viele Jahre als Landrat im Urner Parlament getagt und von 1858 bis 1878 sogar als Regierungsrat im Kanton Uri gewirkt hatte. Bis zu seinem Tod blieb er im Kurort Seelisberg aktiv. 20 Nach seinem Ableben begann eine schwierige Zeit für das Unternehmen Kuretablissement Sonnenberg auf Seelisberg AG, bevor der Erste Weltkrieg wie in allen touristischen Gebieten der Schweiz eine grosse wirtschaftliche Zäsur brachte. 1910 musste das Unternehmen saniert werden, 1914 ging es in Konkurs. Mit der Generalversammlung am 7. Juli 1915 wurden die Statuten einer neuen AG, Grand Hotel & Kurhaus Seelisberg (Sonnenberg), genehmigt. 21 Die von Truttmann sehnlichst herbeigewünschte
Schweizerisches Wirtschaftsarchiv Basel. CH SWA H + IE 79. →
[F]
Die von Davinet beinahe gleichzeitig entworfenen
Hotelbauten:
[F1]
Hotel Schreiber Rigi-Kulm, eröffnet im Juni 1875.
[F2]
Grandhotel Seelisberg, eröffnet im Juli 1875.
[F3]
Hotel Giessbach, eröffnet im Juli 1875.
[G] Grandhotel in Locarno mit einem 26 Meter langen und 9 Meter breiten Speisesaal.
[F1]
[F2]
[F3]
[G1]
[G2]
[G3]
Bahnverbindung von Seelisberg zum Vierwaldstättersee entstand erst ein Jahrzehnt nach seinem Tod. 22
In den 1920er-Jahren begann für die Hotelanlage in Seelisberg eine finanziell schwierige Zeit mit teilweise grossen Betriebsverlusten. Nach der Reduktion des Aktienkapitals 1937 von 171 500 auf 34 300 Franken und einer Wiedererhöhung auf 60 000 Franken wurden vor dem Zweiten Weltkrieg wiederum bescheidene Betriebsgewinne erarbeitet. 23
UMNUTZUNGEN DES EHEMALIGEN GRANDHOTELS UND KURHAUSES
Nach den schwierigen Kriegszeiten kam die AG 1963 in den Besitz von Andrea Reinhard-Gander, welche die Anlage fortan als Familienbetrieb führte. 1971 begann ein unerwartetes Kapitel in Seelisberg. In diesem Jahr logierte im Grandhotel erstmals Maharishi Mahesh Yogi, der sanfte Guru der transzendentalen Meditation, einer alten indischen Lehre. Der kanonische Meister kaufte im selben Jahr die beiden Hotels und errichtete im Sonnenberg den Hauptsitz seiner «Weltregierung des Zeitalters der Erleuchtung». Nach einer Verschlechterung des Verhältnisses zu den (Steuer-)Behörden und auch zu den Einheimischen verschob die Organisation 1992 ihren Weltsitz in ein ehemaliges Franziskanerkloster im steuergünstigen niederländischen Vlodrop und schliesslich nach Indien.
Seit 2022 engagiert sich die Halter AG als Immobilienentwicklerin für den Standort und wird der Revitalisierung des historischen Werts sowie der architekturhistorischen Geschichte Rechnung tragen.
[H]
Grundriss des «Hydrotherapeutisches Instituts» in der Publikation «Hotel Sonnenberg & Kurhaus Seelisberg».
[I]
Ansicht nach 1902 mit dem neuen Grandhotel Sonnenberg und dem davorliegenden Kurhotel Kulm mit den beiden 1901/02 von Architekt August Hardegger angebauten Seitenflügeln, in denen das «Hydrotherapeutische Institut» untergebracht war.
[J]
Plan der Anlage mit dem 1874/75 erbauten Grandhotel, davor die «English Pension» von 1866 mit dem beidseitigen Anbau von Architekt August Hardegger 1902. Der dreiteilige Bau diente als «Hydrotherapeutisches Institut».
[K]
Die 1916 erst nach dem Tod von Michael Truttmann eröffnete Drahtseilbahn von Treib nach Seelisberg.
[K]
[J]
[H]
[I]
Seelisberg gilt es, in seinem Charakter zu erhalten. Dazu gehört die ungeschmälerte Wahrung der kulturhistorisch und touristisch wertvollen Bauten und ihrer Umgebung.
Eine sinnvolle Verdichtung des Dorfes ist daneben möglich und anzustreben.
ORT
Text: Eduard Müller
Die erste Nennung des Ortes weist ins Mittelalter zurück: Seelisberg hiess ursprünglich Zingel und erscheint erstmals 1262 (Huencingle). Die Zehntenpflicht an die Fraumünsterabtei in Zürich belegt, dass Seelisberg bereits 853 zum «pagellus Uroniae» gehörte, wobei dem Ort aufgrund seiner Grenzsituation und der topografischen Lage seit dem frühen 14. Jahrhundert fortifikatorische Aufgaben zugekommen sein könnten. 24 Von der «Kirche» von Zingel ist schon 1270 die Rede 25; ihre Einkünfte gehörten der Äbtissin von Fraumünster. Infolge der abgelegenen und gleichzeitig zentralen Lage wurde Seelisberg schon im ausgehenden 13. Jahrhundert als Ort für Zusammenkünfte der Verbündeten aus Uri, Schwyz und Unterwalden gewählt. Seelisberg ist lange ein bäuerliches Dorf aus Holzbauten geblieben, von denen die meisten im Streusiedlungsgebiet ausserhalb des historischen Zentrums lagen und zum Teil heute noch liegen. Erst im 19. Jahrhundert begann sich Seelisberg entlang der Dorfstrasse zu entwickeln. Bauliche Schwerpunkte entstanden um den Tanzplatz und weiter nördlich um die Pfarrkirche. Zudem entwickelte sich ein touristisches Zentrum bei der Wallfahrtskirche Maria Sonnenberg, dessen Höhepunkt zu Beginn des 20. Jahrhunderts mit den Bauten der Hotelanlagen Sonnenberg und Kulm sowie der Gartenanlage erreicht wurde. Ein weiteres Zentrum entstand nach dem Bau der Treib-SeelisbergBahn im Umfeld der Bergstation.
DIE KAPELLE MARIA SONNENBERG
Die Kapelle Maria Sonnenberg mit ihrem markanten Dachreiter ist ein Wallfahrtsort, der in der ersten Hälfte des 17. Jahrhunderts aufkam. Zuerst stand an der Stelle, an der im 16. Jahrhundert ein Hirtenknabe im Wald ein Marienbildnis entdeckt haben soll, ein Bildstock, später wurde eine zunächst hölzerne Kapelle gebaut. Die heutige Kapelle stammt aus dem 17. Jahrhundert, die verehrte Madonnenfigur im Hochaltar ist spätgotisch. Zahlreiche Exvotos zeugen von der Wallfahrt. Die hohe Bedeutung des Sakralbaus besteht aber nicht nur in der Wallfahrtsgeschichte und der kunsthistorisch weltvollen Ausstattung, sondern auch in der aussichtsreichen Lage auf einem Sporn hoch über dem Urnersee. Das Schutzziel der Kapelle Maria Sonnenberg umfasst die uneingeschränkte Erhaltung ihrer Substanz und der ländlich anmutenden Umgebung, zu der sowohl der gepflasterte Verkehrsweg (IVS Objekt UR 11.0.6) als auch der einfache hölzerne Bau des Kaplanenhauses gehören.
24 Gasser 1986, 359, 360.
25 Gasser 1986, 374.
DER HISTORISCHE VERKEHRSWEG
Der historische Verkehrsweg von nationaler Bedeutung UR 11.0.6 mit Substanz verbindet das Chilendorf mit der Kapelle und dem Hotel Sonnenberg. Er besteht aus zwei Teilbereichen, da er mittig von der später entstandenen Dorfstrasse unterbrochen wird. Diese umfährt den Chor der Kapelle Maria Sonnenberg östlich, während der südliche Wegabschnitt des IVS-Objekts 11.0.6, ein mit unregelmässig gebrochenen Steinen und Platten gepflasterter Fussweg, westlich der Wallfahrtskapelle vorbeiführt. Das Vorzeichen der Kapelle schliesst den Weg mit ein. Auf den letzten Metern, bevor der Weg vor dem Hotel Sonnenberg in die Dorfstrasse mündet, fehlt die Pflästerung. Der Weg ist dort asphaltiert und als Fahrweg ausgebaut.
Das Schutzziel des IVS-Objekts UR 11.0.6 besteht in der Wahrung des Wegverlaufs und der aktuellen Breite als Fussweg, aber auch in der ungeschmälerten Erhaltung der charakteristischen Pflästerung. Wo sie fehlt, ist eine Wiederherstellung der Pflästerung anzustreben. Entsprechende Gespräche mit den Grundeigentümern werden aufgenommen.
DAS BLN-OBJEKT VIERWALDSTÄTTERSEE
Das sehr grosse BLN-Objekt 1606, Vierwaldstättersee mit Kernwald, Bürgenstock und Rigi, wird im Inventar wie folgt beschrieben: «Der Vierwaldstättersee hat eine Einzugsfläche von 2140 Quadratkilometern, eine Seefläche von 114 Quadratkilometern und eine Uferlänge von 144 Kilometern. Er ist Teil des Flussgebietes der Reuss. Diese entspringt im Gotthardmassiv, mündet bei Flüelen in den See und verlässt ihn bei Luzern wieder.
Der Vierwaldstättersee verbindet das Mittelland mit dem Alpenraum, einerseits als Wasserfläche, die im Süden als schmales, fjordartiges Seebecken zwischen hohen Felswänden beginnt und im Nordwesten mit seinen kreuzförmigen Becken zwischen sanften Hügeln vor Luzern endet. Andererseits war er jahrhundertelang bedeutend als wichtigster Verkehrsweg zwischen den Siedlungen auf den verschiedenen Seeseiten und als Transit- und Transportweg des Gotthardhandels zwischen Luzern und Seedorf. Erst ab 1865 ermöglichte der Bau der Axenstrasse durch schroffes und unwegsames Gelände eine landseitige Alternative.
Der Vierwaldstättersee und seine Umgebung sind, vor allem in den alpennahen Seebecken, weitgehend ursprünglich und natürlich. Bewaldete, steile Hänge und senkrechte Felswände mit verfalteten Gesteinsschichten, die direkt in den See abfallen, begrenzen die gestaltete und genutzte Kulturlandschaft auf inselartige, hoch über dem See gelegenen Terrassen und auf die wenigen ebenen Flächen der Bachdeltas bei den Einmündungen der Seitentäler. Streusiedlungen finden sich traditionell an den weniger steilen und offenen Hängen, so am Bürgenberg oder am Beckenrieder Berg.
Der See mit seinen Uferlandschaften und den Bergen ist eine der bedeutendsten Erholungsregionen der Schweiz und des gesamten Alpenraumes. Auf dem Bürgenstock steht eine am Ende des
«In Seelisberg entwickelte sich ein touristisches Zentrum bei der Wallfahrtskirche Maria Sonnenberg, dessen Höhepunkt zu Beginn des 20. Jahrhunderts mit den Bauten der Hotelanlagen Sonnenberg und Kulm sowie der Gartenanlage erreicht wurde.»
Eduard Müller
[L]
Seelisberg ist Teil des BLN-Objektes Vierwaldstättersee, eines Gebietes, das mit seinen Uferlandschaften und den Bergen eine der bedeutendsten Erholungsregionen der Schweiz ist.
[M]
Das Schutzziel der Kapelle Maria Sonnenberg umfasst die uneingeschränkte Erhaltung ihrer Substanz und der ländlich anmutenden Umgebung.
[N]
Das Schutzziel des IVS-Objekts UR 11.0.6 sieht die ungeschmälerte Erhaltung der charakteristischen Pflästerung des historischen Verkehrsweges vor.
[L]
[M]
[N]
19. Jahrhunderts erbaute und gastronomisch-historisch bedeutende Hotelanlage. Der Hammetschwand-Lift verbindet den hoch über dem See in der Felswand angelegten Felsenweg mit dem Gipfelbereich des Bergrückens.» 26
Anderes etwa als das nidwaldnerische Emmetten gehört Seelisberg zu jenen kleinen Dörfern, die vom BLN nicht ausgenommen sind. Einige Dorfpartien hoch über dem Vierwaldstättersee haben eine grosse Fernwirkung. Das Bundesinventar der Landschaften und Naturdenkmäler von nationaler Bedeutung (BLN) benennt die folgenden Schutzziele:
3.1 Die Silhouetten der Berge und Hügelzüge um den See erhalten und das Relief der Gebirgslandschaft ungestört erhalten.
3.2 Die vielfältige Seen- und Berglandschaft in ihrer Authentizität erhalten.
3.3 Das in weiten Teilen ungestörte Zusammenspiel zwischen offener Seefläche, sanften Ufergebieten und schroffen Felswänden erhalten.
3.4 Die Geotope und typischen Fels- und Geländeformen erhalten.
3.5 Das Mosaik aus gestalteten und genutzten Landschaften und natürlichen Lebensräumen erhalten.
3.6 Die Feucht- und Trockenlebensräume in ihrer Qualität sowie ökologischen Funktion und mit ihren charakteristischen Pflanzen- und Tierarten erhalten.
3.7 Die Gewässer und ihre Lebensräume in einem natürlichen und naturnahen Zustand erhalten.
3.8 Die natürlichen Seeufer, die Flachwasserzonen und die Unterwasserwiesen mit ihren charakteristischen Pflanzen- und Tierarten erhalten.
3.9 Die Wälder, insbesondere die seltenen Waldgesellschaften, in ihrer Vielfalt und Qualität sowie mit den charakteristischen Arten erhalten.
3.10 Die ökologische Vernetzung der Lebensräume erhalten.
3.11 Die standortangepasste land- und alpwirtschaftliche Nutzung erhalten und ihre Entwicklung zulassen.
3.12 Die standorttypischen Strukturelemente der Kulturlandschaft wie Alpgebäude, Hecken, Einzelbäume, Obstgärten und Trockensteinmauern erhalten.
3.13 Die wertvollen Ortsbilder mit ihren prägenden Elementen und mit ihrem Umfeld erhalten.
3.14 Die kulturhistorisch wertvollen touristischen Ensembles, Bauten und Anlagen mit ihrem Umfeld erhalten.
3.15 Die historischen Verkehrswege in ihrer Substanz und ihrer Einbettung in die Landschaft erhalten.
im Juni 2023.
Für das aktuelle Projekt sind insbesondere die Schutzziele 3.1, 3.2, 3.3, 3.5, 3.12, 3.13, 3.14 und 3.15 wichtig. Sie müssen uneingeschränkt berücksichtigt werden.
Sonnenberg und Kulm sitzen wie ein Adlerhorst auf einem schmalen Felsplateau über dem Rütli. Die exponierte Lage und markante Naturund Freiraumelemente verleihen diesem Ort seine einzigartige Persönlichkeit.
FREIRAUM
Text: Stefan Rotzler
Der Landschaftsraum des Urnersees verfügt über einen hohen geologischen, hydrologischen und botanischen Reichtum. Das Gebiet geniesst deshalb zu Recht eine grosse Wertschätzung als attraktiver Erholungsraum. Seelisberg prägt diesen Landschaftsraum als optischer Fokuspunkt. Der Blick hinauf und hinüber und in umgekehrter Richtung von Seelisberg aus über dieses gesamte Naturreich ist einfach magisch.
DURCHBROCHENE WÄLDER
Die Landschaft im Seelisberger Raum ist geprägt von Wald und Waldfragmenten. Im Mittelalter durchlebte der ursprünglich zusammenhängende Wald im Schweizer Mittelland den Landesausbau 27, einen europaweiten Prozess, in dem mittels Rodung und Urbarisierung neue Siedlungsräume und landwirtschaftliche Produktionsflächen geschaffen wurden. Die Wälder wurden dort gerodet, wo das Gelände flacher war und sich deshalb für eine Bewirtschaftung oder Beweidung eignete. Ein gutes Beispiel hierfür ist das Rütli, das seiner Wortabstammung nach ein «gereuteter» (veraltet für «gerodet») Bereich ist. Wir würden es heute eine Waldlichtung nennen.
SCHROFFE FELSLANDSCHAFT
Die markante Felswand vor der Sonnenberg-Anlage fällt über 300 Meter steil zum Rütli hinab. Sie ist weitgehend mit lockerem Wald bestockt. Auch die Rückseite des Sonnenbergs wird von einer Felswand geprägt. Sie ist vermutlich in den 1870er-Jahren – zumindest teilweise – aus dem Felsen gesprengt worden und verschmilzt mit dem Sockel des Hotelbaus. Das ausgebrochene Material wurde Richtung Rütli verschoben und zur heutigen Promenadenterrasse aufgeschüttet.
Bergseits, oberhalb des Hotels Kulm, begleitet eine weitere Felsformation den Strassenraum. Sie schafft eine physische und optische Trennkulisse zum oberen Plateau des Sonnenbergs, auf dem bis in die 1990er-Jahre der Badebereich situiert war. Die genannten Felsformationen sind mehrheitlich mit Bäumen bewachsen und bilden in der frontalen Ansicht eine dreifach gestaffelte Waldkulisse. Diese gilt es als identitätsbildendes Moment zu respektieren und in ihrer räumlichen Wirkung auszunützen: als Vorder- und Hintergrund beziehungsweise als «grüner Vorhang», der die räumliche Wirkung des Bauvorhabens mildert.
27 «Historisches Lexikon der Schweiz», Seite Landesausbau, www.hls-dhs-dss.ch, aufgerufen im Juli 2023.
GRÜN UMSÄUMTE AUSSENRÄUME
Das historische Bildmaterial belegt die räumliche Wirkung und Funktion der Promenadenebene. Wie eine Wasserwaage liegt sie vor dem Hotelkomplex und verbindet die einzelnen Bauten miteinander. Hier wurde getafelt und in fast «grossstädtischem» Ambiente an erhabener Lage flaniert. Seit ihrer Erstellung war die Terrasse mit einer Doppelreihe von Bäumen bepflanzt. Deren Abschlüsse in westlicher und östlicher Richtung haben sich mehrfach geändert. Von der ursprünglichen Bepflanzung sind im Osten noch wenige einzelne Kastanien erhalten. Die nicht originalen, geschnittenen Platanen im Mittelbereich prägen heute die räumliche Stimmung der gekiesten Terrasse. Das Wasserbecken mit Springbrunnen ist in Spuren im Gelände noch ablesbar und bleibt eine Option als Highlight für die künftige gartendenkmalpflegerische Sanierung der Terrasse. Die oben beschriebenen Mittel der Landschaftsarchitektur haben auf dem Sonnenberg zweifache Bedeutung: Zum einen schaffen sie eine tragende Gesamtstimmung, einen «grünen Kitt», der die einzelnen Teile der Anlage zu einem Gesamtorganismus zusammenbindet. Zum anderen prägen sie als identitätsbildende Momente die unterschiedlichen Teilbereiche der Anlage. Insgesamt ist es für die Freiraumplanung ein selbstverständliches Anliegen, mit dem Bestand sorgfältig umzugehen, historische Spuren auf dem ganzen Areal zu erhalten und sie in die künftige Gestaltung zu integrieren.
EINORDNUNG DER LANDSCHAFTSARCHITEKTUR IN DIE FREIRAUMPLANUNG
Umgang mit Waldbestand: Die festgesetzten Waldflächen und die dazugehörenden Waldabstandslinien bestimmen die baulichen Entwicklungsmöglichkeiten auf dem Seelisberg, schränken sie aber auch stark ein. Das Planungsteam schlägt deshalb einen Projektansatz vor, der nebst den landschaftsschützerischen und denkmalpflegerischen Aspekten einen respektvollen Umgang mit den Waldfestsetzungslinien sowie den gewachsenen Baumbeständen vor Ort anstrebt.
Die in die Felswand eingelassenen Räume unterhalb des Hotels Kulm geniessen durch die Waldbäume hindurch ihre atemberaubende Sicht auf den Urnersee und die gestaffelte Kulisse der Hügel und Gebirgsketten. Hier ist eine «forstliche Kuratierung» der Aussichtsmomente (Sichtfenster) anzustreben.
Situierung der Parkierung: Das Projekt soll sich in die vorhandene Topografie und Kammerung des Geländes integrieren. Eine besondere Herausforderung ist die Situierung der notwendigen Parkierungsanlage in der delikaten geografischen Örtlichkeit. Es bietet sich eine kompakte unterirdische Tiefgarage an, die unter dem oberen Plateau hinter der strassenbegleitenden Felskulisse vis à vis dem Hotel Kulm liegt. Sie entlastet die Oberfläche fast vollständig von Autos und ermöglicht mit ihrer Höhenlage eine horizontale Fussgängeranbindung auf dem Strassen- und Eingangsniveau. →
«In
der frontalen Ansicht bilden die Felsformationen und die Waldkulisse ein identitätsbildendes Moment, das es zu respektieren gilt und das die räumliche Wirkung des Bauvorhabens mildert.»
Stefan Rotzler
Die Sonnenberg-Anlage ist umgeben von schroffer Felslandschaft, die mit Wald bestockt ist. Zum Rütli fällt eine Felswand 300 Meter tief beinahe vertikal ab.
Die prägende Promenade bildet den Vordergrund für die «English Pension» und die Stadler-Bauten, die später rückgebaut wurden.
Die Wandelpromenade ist das Kernelement der historischen Parkanlage und soll in Anlehnung an die historische Vorlage wieder aufleben.
[O]
[P]
[Q]
[Q]
[O]
[P]
Orte des öffentlichen Lebens: Die Wandelpromenade ist das Kernelement der historischen Parkanlage und soll in Anlehnung an die historische Vorlage wieder aufleben. Sei dies als Ort des Sehens und GesehenWerdens oder als Balkon des Staunens und des Betrachtens der Landschaft. Der ursprüngliche Springbrunnen lässt sich reaktivieren und avanciert so zu einem Highlight der Anlage. Die detaillierte Gestaltung der Hotelterrasse kann in einer späteren Projektphase und in Abstimmung mit den dannzumaligen funktionalen Bedürfnissen erfolgen.
Gartendenkmalpflegerische Sorgfaltspflicht: Im ganzen Wirkungsbereich der baulichen Eingriffe gilt eine gartendenkmalpflegerische Sorgfaltspflicht. Diese bezieht sich auf die Erhaltung der konstituierenden Elemente der Anlage und auf den sorgfältigen Umgang mit dem vorhandenen Baumbestand, Spuren, Reminiszenzen sowie Fragmenten. Des Weiteren sind gartendenkmalpflegerisch adäquate Beläge und Bepflanzungen der Zierrabatten zu wählen, der talseitige Abschluss der Promenadenterrasse mit einem historischen oder historisch nachempfundenen, sicherheitstauglichen Geländer zu versehen und die künftigen Pflegemassnahmen im Rahmen eines Parkpflegewerkes zu regulieren.
Der Entwurf besteht einerseits aus der Erhaltung sowie Stärkung der Hotels Sonnenberg und Kulm, andererseits aus dem zeitgenössischen Weiterbauen im Dorfkontext mit Respekt zum Urbestand.
STÄDTEBAULICHES, ARCHITEKTONISCHES UND DENKMAL
PFLEGERISCHES KONZEPT
Text: Iwan Bühler und Eduard Müller
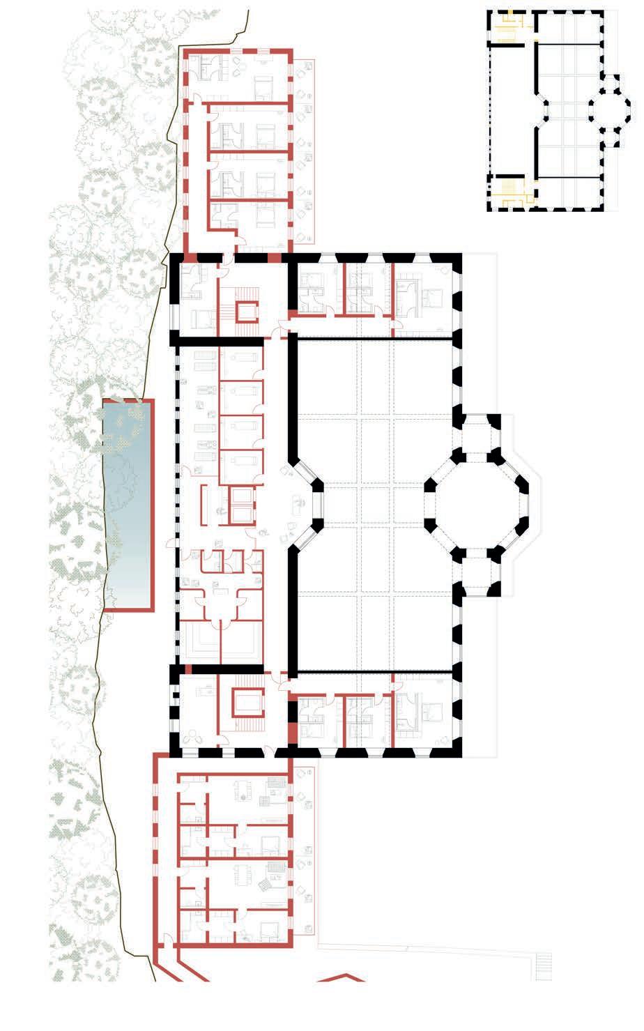
Die historische Hotelanlage, die sich im 19. Jahrhundert südlich der Kapelle Maria Sonnenberg schrittweise entwickelt hat, besitzt einen hohen architektur- und tourismusgeschichtlichen Wert, den es zu erhalten und weiterzuentwickeln gilt. Das Konzept einer Inwertsetzung und Neuausrichtung des aktuellen Hotelkomplexes, der aus dem Hotel Sonnenberg, Hotel Kulm sowie der Gartenanlage besteht, geht von einer integralen Substanzerhaltung und Aufwertung des Kernbaus des Hotels Sonnenberg aus. Störende, das Hotel Sonnenberg in seiner Bedeutung schwächende Bestandsbauten werden deshalb entfernt und subtil wie feinfühlig durch rückwärtige Neubauten ersetzt. Die neuen Gebäude erfüllen die heutigen Anforderungen eines Hotelbetriebs in architektonisch ästhetischer sowie technischer Hinsicht und entsprechen den Vorgaben des Bauherrn [R][S]. Durch diese Massnahme erhalten zudem die Wallfahrtskirche Maria Sonnenberg mit Kaplanenhaus und der historische Verkehrsweg, der an ihr vorbeiführt, den Stellenwert zurück, der ihnen gebührt.
Das repräsentative Äussere und die wesentliche innere Struktur im Hotel Sonnenberg bleiben vollumfänglich erhalten, insbesondere die Empfangsräume im Erdgeschoss, die zweiläufige Treppe hinauf zum Piano nobile und der stützenlose Saal, der das eigentliche Kernstück des Baus darstellt. In den darüberliegenden Zimmergeschossen soll die Struktur beibehalten werden. Alle nutzungsbedingten und technischen Anforderungen an einen zeitgemässen Hotelbetrieb wie Nottreppen, Liftanlagen, Steigzonen und Lüftungsschächte sowie die gesamte Haustechnik werden im rückwärtigen, architekturhistorisch weniger bedeutenden Teil des bestehenden Hauptgebäudes sowie in den dem Hotel untergeordneten Neubauten untergebracht.
Sorgfältige Abklärungen durch Restauratoren können Auskunft über die Frage nach der originalen Farbigkeit geben, die wieder hergestellt wird. Nach heutigem Wissensstand waren die Fassaden des Hotels Sonnenberg ursprünglich weiss gefasst und harmonierten so ausgezeichnet mit den grünen Eisengeländern.
BEWAHRUNG DER EINZIGARTIGEN FERNWIRKUNG
Das Hotel Kulm wird in seiner Grundsubstanz und in seiner äusseren Erscheinung erhalten. Es ist, obschon vom Kanton schon vor Jahren wegen seines baulich weniger guten Zustands aus dem Schutz →
entlassen, von grosser Bedeutung für das touristische Ensemble und hat eine hervorragende Fernwirkung, die kein Neubau zu ersetzen vermag. Im Gebäude entstehen unter Wahrung der bestehenden Primärstruktur Wohnungen.
Das bestehende mittige Dachgeschoss wird um ein Geschoss erhöht, weil es die Mittelpartie des Gebäudes zusammen mit seinen zwei Ecktürmen stärken und mehr akzentuieren soll. Das Erdgeschoss dient einer halböffentlichen Nutzung mit einem Satellitenrestaurant und Gartenterrasse.
Im Jahr 1980 wurde das zum See orientierte Untergeschoss des Hotels Kulm um einen Raum von 200 Quadratmetern mit grandioser Aussicht auf die Umgebung für das «yogische Fliegen» erweitert. Mit der gleichen Massnahme, dem zusätzlichen Unterbauen des vorgelagerten Untergeschosses direkt in die bestehende Felswand, ist es möglich, die von der Bauherrschaft geforderten Apartments für den Hotelbetrieb so zu positionieren, dass sie vom See her oder im Dorf Seelisberg nicht in Erscheinung treten – ein wesentliches Anliegen des Entwerfers. Die den Zimmern vorgelagerten Loggien verhindern das unangenehme Reflektieren der Fensterglasfronten zum See.
Als weit sichtbares Element des touristischen Ensembles kommt auch der Inwertsetzung der attraktiven Gartenanlage an der Felskante über dem See grosse Bedeutung zu. Deshalb bleibt sie mit ihren Spazierwegen, Sitzgelegenheiten unter Bäumen und der wunderbaren Aussicht der Öffentlichkeit erhalten. Eine unterirdische Strassenquerung stellt die für den Hotelbetrieb notwendige Verbindung der beiden Hotels Kulm und Sonnenberg sowie der Einstellhalle sicher.
BAULICHE VERDICHTUNG
Das Hotel Sonnenberg hatte seinen Gästen damals auf einer erhöhten Plattform südlich des Hotels echte Attraktionen zu bieten: ein wunderschön situiertes Aussenschwimmbad und einen Tennisplatz. Versteckt hinter Bäumen oberhalb der Dorfstrasse konnte man sich frei im und am Pool bewegen und die Sonne geniessen. Jetzt liegt hier der ideale Ort, um die geforderte Anzahl Wohnungen zu realisieren. Die in dunklem Material gehaltenen zwei Gebäude, die in ihrer Formgebung an vom Berg gefallene Felsbrocken erinnern, verfügen über klar geschnittene Hausflächen und innenliegende Loggias. Sie ergänzen das bestehende Ensemble der Hotels Sonnenberg und Kulm. Unter den Wohnbauten befindet sich eine von aussen nicht sichtbare, mehrgeschossige Einstellhalle, die von den Hotelgästen und den Wohnungseigentümern benutzt werden kann und unterirdisch direkt mit den Hotelbauten verbunden ist. [U] Im Norden des Grundstücks sind anstelle des in unmittelbarer Nähe der Wallfahrtskirche Maria Sonnenberg liegenden ehemaligen Hotels Waldhaus Rütli und des Bestandsgebäudes neue, massvoll gehaltene Punktbauten geplant, die sich in Bezug auf Volumina und Gestaltung an den bestehenden Wohnbauten in Seelisberg orientieren und die spektakuläre Aussicht auf See und Berge geniessen. Die Neubauten →
Freistellen Grand Hotel Sonnenberg
Freistellen Kapelle Maria Sonnenberg
1
Anbauten Grand Hotel Sonnenberg 1
2
2
Freistellen Kapelle Maria Sonnenberg
Anbauten Grand Hotel Sonnenberg
Freistellen Kapelle Maria Sonnenberg
Freistellen Grand Hotel Sonnenberg
Freistellen Grand
Freistellen Grand
[R] Freistellen des Grandhotels Sonnenberg.
[S] Anbauten des Grandhotels Sonnenberg.
[T] Freistellen der Kapelle Maria Sonnenberg.
[U] Punktbauten auf dem Baufeld Nord.
[V] Punktbauten auf dem Baufeld Süd.
50 m 10
Punktbauten Baufeld Nord 3 4 5
3 4 5
Punktbauten Baufeld Nord
50 m 10
Wohnbauten Baufeld Süd
Legende
Abbruch
Neubau
Punktbauten Baufeld Nord 3 4 5
Legende
Anbauten Grand Hotel Sonnenberg 1 2
Anbauten Grand Hote 1 2
Anbauten Grand Hote 1 2
Wohnbauten Baufeld Süd
Abbruch Neubau
Wohnbauten Baufeld Süd
Legende
Legende Abbruch Neubau
integrieren sich sehr gut in die Bestandssituation. Ihre Erschliessung beziehungsweise die Parkierung erfolgt unterirdisch über die Dorfstrasse, damit der «Weg der Schweiz» nicht tangiert wird. [T][V]
Die gewachsene Umgebung, die Bäume, der Wald und die den Ort prägenden Felswände sowie die bestehende Waldfestsetzungslinie bleiben selbstverständlich uneingeschränkt bestehen.
«Die integrale Substanzerhaltung und Aufwertung des Hotels Sonnenberg ist für die Inwertsetzung und Neuausrichtung der gesamten Anlage von zentraler Bedeutung.»
Iwan Bühler und Eduard Müller
Projekt mit Freiraum und Landschaft.
Bestand mit Freiraum und Landschaft.
Ansicht Ost des Projektes.
Ansicht Ost des Bestandes: Schnitt durch Kantonsstrasse.
HOTELKONZEPT
Text: Mark von Weissenfluh
Besonders ab dem 19. Jahrhundert reisten unzählige Touristen aus aller Welt in unser Land. Durch die rasant voranschreitende Industrialisierung entstand die Sehnsucht nach Erholung an Orten mit reiner Luft, sauberem Wasser und eindrücklichen Landschaftsbildern. Diese Sehnsucht wird bis heute auf dem Boden unseres Landes und in Seelisberg gestillt. Die immer noch beinahe unveränderte historische Anlage der Hotels Sonnenberg und Kulm mit Blick auf See und Alpen demonstriert auf imposante Weise, was mit dem Begriff «Genius loci» gemeint ist. Direkt oberhalb der sagenumwobenen Rütliwiese gelegen, erfordert diese als wahrscheinlich eine der letzten grossen inaktiven Hotelliegenschaften unseres Landes eine besondere Sorgfalt bei der nachhaltigen Entwicklung für ihre Zukunft. Davon ausgehend spielen neben der Gemeinde Seelisberg und dem Kanton Uri auch der Bund bei der Reaktivierung und Rückführung in den Gesellschafts- und Wirtschaftskreislauf eine tragende Partnerrolle für das hehre Wiederinstandstellungsmomentum. Denn wir befinden uns auf dem Hotelgelände inmitten der «Wiege der Schweiz», die auch auf dem gleichnamigen Landschaftsgemälde des bekannten Genfer Malers Charles Giron, entstanden 1899 bis 1901 im Nationalratssaal des Bundeshauses in Bern, abgebildet ist. Aufgrund der vorgenannten Gegebenheiten und der Aufnahme der Projektentwicklung durch eine ebenfalls traditionsreiche Schweizer Familienunternehmung werden die Chancen und Rahmenbedingungen für die künftige Nutzung umfassend analysiert und nachhaltig in die Marktrealität umgesetzt. Dies unter anderem durch die Fokussierung auf verschiedene Schwerpunkte für die herkunftsgeprägte Hotellerie. Mit dem Leistungspotenzial der historisch bedeutenden Hotelanlage sowie deren Arealentwicklung wird ein starker touristischer Attraktionspunkt in unserem Land wieder in den längst verdienten Wert zurückgeführt. Dies geschieht mit unternehmerischem Feingefühl, starkem Bezug zu unserer Landesgeschichte sowie der Stärkung der touristisch nachgewiesenen Tradition und Nutzung einer der letzten Chancen, unsere Pionierzeit und Werte erfolgreich in den Bereichen Tourismus und Gastgewerbe wieder aufleben zu lassen. Aufrichtig engagiert wird der Fokus auf umfassende Nachhaltigkeit, Traditionsbewahrung und Herkunftsbezug mit Innovation vervollständigt.
POSITIONIERUNG ALS GANZJÄHRIGER HOTELBETRIEB
IM MITTELKLASSE-SEGMENT
Geplant ist der ganzjährige Betrieb der Hotelanlage. Damit entwickelt sich die Sonnenberg-Anlage wieder zu einem wichtigen Sozial-, Tourismus- und Wirtschaftspartner für die Schweiz.
Die Klassifikationseinstufung im Rahmen des Branchenverbandes für die Schweizer Beherbergungsbetriebe hotelleriesiusse.ch soll im 3- bis 4-Sterne-Bereich liegen. Wobei der 4-Sterne-Bereich als Hauptziel avisiert wird. Damit setzt die Sonnenberg-Anlage anders als bei vielen bisher revitalisierten Hotellerie-Objekten bewusst nicht auf herkömmlichen Luxus. Der Hotelbetrieb soll sich ohne Hemmschwellen und trotz dem geschichtlich bestehenden Attribut «Grandhotel» einer sehr breit gefächerten Gästeschaft zugänglich präsentieren. An diesem derart geschichts- und kulturträchtigen Standort bietet der Beherbergungs- und Gastronomiebetrieb vor allem Offenheit, Herzlichkeit und echt gelebtes Gastgebertum. Dieses wird gepaart mit perfekt in die Landschaft und den Standort integrierter Architektur und hochwertiger Dienstleistungsbereitschaft – stets mit starkem Bezug zum Standort und Liebe zum Detail. Im Alltag werden Kulinarik, Brauchtum, Kultur, Freizeit- und Sportangebote sowie gesellschaftlich relevante Sozialprojekte konsequent aufgebaut und gepflegt. Aus dieser stetig wachsenden Perspektive darf die Hotelanlage zu einem eigentlichen Reiseziel – anstelle einer geografisch gewählten Destination – entwickelt werden, was seit fast 20 Jahren in der Trendforschung der Hospitality-Branche als Schwerpunkt erkannt wird.
ZIELGRUPPEN UND DEREN BEDÜRFNISSE
Bei der Spezialisierung des Hotelbetriebs können neben dem zentralen Thema «Historisches Hotel» vor allem die Schwerpunkte Natur, Kultur, Erholung, Gesundheit und Nachhaltigkeit als Vermarktungsbotschaften definiert werden. Die Produkttransparenz fördert den Zugang zu Kampagnen bei Schweiz Tourismus sowie kantonalen und regionalen Tourismusorganisationen. Zudem zieht die 4-Sterne-Hotellerie eine anspruchsvolle und sehr breit gefächerte Zielgruppenkundschaft an, die exakt diese Reisemotive aufweist. Über allem steht der stark mitentscheidende Anspruch, alle möglichen Schwellenängste abzubauen oder zu vermeiden. So wird praktisch allen Gästen aus dem In- und Ausland das touristische Gesamtangebot auf und rund um den Seelisberg mit einem herzlichen Willkommensgefühl nähergebracht. Insbesondere letzteres Motiv führt zunehmend zur Entscheidungsfindung des Reiseziels. Das nachhaltige Reisen wird durch die Bewusstseinsförderung und Landeskampagne Swisstainable von Schweiz Tourismus und die 2021 gegründete Kampagne der Responsible Hotels of Switzerland gefördert. Während der letzten Jahre haben vor allem die Ferienhotellerie und insbesondere der Zusammenschluss der Swiss Historic Hotels in der Schweiz trotz Krisen und grossen Herausforderungen erfolgreiche Zahlen geschrieben. Auch die wiedererwachende Hotellerie auf dem Seelisberg verfolgt das Ziel der gelebten Nachhaltigkeit in sämtlichen Bereichen. Neben der Sicherstellung der ökonomischen Werte stehen vor allem die soziale und ökologische Nachhaltigkeit durchgängig im Fokus. Der Betrieb baut hierzu langjährige Partnerschaften auf.
«Mit
dem ganzjährigen Betrieb eines 4-Sterne-Hotels entwickelt sich die Sonnenberg-Anlage wieder zu einem wichtigen Sozial-, Tourismus- und Wirtschaftspartner für die Schweiz.»
Mark von Weissenfluh
Die Gasthäuser Kulm und Grandhotel stehen auch betreffend der Gastronomieleistung für die Umsetzung stringent nachhaltiger Konzepte. So wird den Tagesgästen neben dem eigentlichen Hotelbetrieb mit Frühstücks- und Abendservice auch Tagesrestauration angeboten. Vom Tagesausflugs-, Kiosk- und Picknick-Gast bis hin zum anspruchsvolleren naturverbundenen, erholungssuchenden Reisenden erleben die Restaurantgäste in den wieder zum Leben erweckten Gasthäusern eine authentische, liebevolle und nachhaltig geprägte Gastronomie mit Fokus auf Standort und Geschichte sowie dem regionalen Zuliefermarkt. Brauchtum, Tradition und somit starker Bezug zum Standort Seelisberg, Uri und der Schweiz werden bewusst und ohne Anbiederung stilvoll als «Genuss mit Herkunft» gepflegt, gelebt und ständig weiterentwickelt. Die Herkunft nimmt bei der Entscheidung für ein Reiseziel eine immer grösser werdende Rolle ein. Nostalgie stellt seit Längerem den stärksten Trend in der Hospitality dar 28. So beeinflussen nostalgische Gefühle bei Gästen bis zu 84 Prozent der Buchungsentscheidungen 29. In einer sich immer rasanter entwickelnden Gesellschaft wird das Verlangen nach Ruhe, Erholung, traditionellen Werten und Nostalgiegefühlen immer stärker. Das Motto könnte lauten «Besinnung statt Bespassung». Und so wächst die ungebändigte Sehnsucht nach dem Vertrauten und nicht digitalen Rückzugsort, nach der Heimat, dem Gefühl, bei Freunden zu Gast zu sein. Dies sollen die Gäste auf dem Seelisberg in wenigen Jahren erleben dürfen.

IWAN BÜHLER
Iwan Bühler diplomierte 1987 bei Professor Dolf Schnebli an der ETH Zürich als Architekt. 1990 gründete er sein eigenes Architekturbüro in Luzern, mit dem er eine Vielzahl an unterschiedlichsten Projekten im In- und Ausland erfolgreich umsetzen konnte. Nebst vielen anderen Themenbereichen eignete sich Iwan Bühler insbesondere im Umgang mit denkmalgeschützter Bausubstanz einen beachtenswerten Wissensfundus an. Die gelungene Anwendung und Umsetzung dessen konnte er zuletzt mit der Fertigstellung der Umbauprojekte für die historischen Grandhotels «Titlis Palace» in Engelberg und «Palace» in Luzern unter Beweis stellen. → S. 34–39
DR. ROLAND FLÜCKIGER-SEILER
Roland Flückiger-Seiler ist diplomierter Architekt und Architekturhistoriker. Er war langjährig als Denkmalpfleger in Kanton und Stadt Bern sowie als Forschungsleiter auf dem Gebiet der schweizerischen Architektur- und Kulturgeschichte tätig. Zu seinen Werken zählen umfangreiche Publikationen zur Schweizer Architektur- und Hotelgeschichte. Er hatte mehrere Lehraufträge an Universitäten und Fachhochschulen im In- und Ausland inne und ist Initiator und Jurypräsident der Auszeichnung «Das historische Hotel / Restaurant des Jahres». Flückiger-Seiler ist Mitglied mehrerer Fachorganisationen im Bereich Hotellerie und Tourismus, unter anderem Stiftungspräsident von Swiss Tourism Heritage Hotelarchiv.
→ S. 12–21
DR. EDUARD MÜLLER
Eduard Müller ist Kunsthistoriker und Germanist. Er war drei Jahrzehnte als Denkmalpfleger des Kantons Uri tätig. Eduard Müller unterrichtete das Fach «Praktische Denkmalpflege» an der Berner Fachschule (Nachdiplomstudium Denkmalpflege), war Mitglied der Eidg. Kommission für Denkmalpflege sowie der Eidg. Natur- und Heimatschutzkommission und Präsident von ICOMOS Suisse. Heute leitet er ein Beratungsbüro zu Fragen der Denkmalpflege und des Ortsbildschutzes. Zu diesen Themen veröffentlicht er zahlreiche Publikationen und hält Vorträge in der Schweiz und im Ausland. Zudem nimmt er Expertenmandate für das Bundesamt für Kultur wahr.
→ S. 22–27, 34–39
ROBIN NEUHAUS MRICS
Robin Neuhaus ist verantwortlicher Projektleiter für das Projekt Sonnenberg Seelisberg bei der Halter AG. Er absolvierte eine Lehre als Hochbauzeichner. Im Anschluss liess er sich in Burgdorf zum Dipl. Ing. FH in Bauprozessmanagement ausbilden. Er ist seit 2007 in der Projektentwicklung und im Portfolio Management von Immobilien tätig. Berufsbegleitend absolvierte er in den Jahren 2014/2015 das CUREM (Center for Urban & Real Estate Management) an der Universität Zürich und erwarb darauf die Mitgliedschaft im Royal Institution of Chartered Surveyors (RICS). Er hat einen Lehrauftrag an der Hochschule Luzern (HSLU).
→ S. 6–11
STEFAN ROTZLER
Stefan Rotzler ist Landschaftsarchitekt BSLA. Nach dem Studium der Kunstgeschichte absolvierte er eine Gärtnerlehre und die Ausbildung zum Landschaftsarchitekten. Bis 2014 war er bei Rotzler Krebs Partner Landschaftsarchitekten in Winterthur tätig. Seither übernimmt er Beratungs-, Jurymandate und strategische Planungen in der Deutschschweiz sowie im Tessin. An der Beschäftigung mit Landschaft und Freiraum faszinieren ihn die zeitliche und die soziale Komponente sowie die Tatsache, dass Landschaft immer einer Zuneigung bedarf – eines kummerlosen Kümmerers, einer pflegenden Hand.
→ S. 28–33
MARK VON WEISSENFLUH
Mark von Weissenfluh verfügt über 30 Jahre Erfahrung in der Führung und Entwicklung von Hotel-, Dienstleistungs- und Tourismusunternehmen. Nach Kader- und Direktionspositionen in der 3- bis 5-Sterne-Hotellerie in der Schweiz und den USA engagiert er sich seit über 20 Jahren als Berater, Beirat, Verwaltungsrat und Vorstandsmitglied in diversen Hotel- und Tourismusunternehmungen. Seine Erfahrung bringt er gleichzeitig als Jurymitglied und Gutachter für Schweiz Tourismus, den Branchenverband hotelleriesuisse.ch sowie ICOMOS Suisse ein. Das letztgenannte Mandat zeigt sein grosses Herzblut für historische Gasthäuser in unserem Land. So begleitete und prägte er mit seinem Team unter anderem die Grimselwelt der Kraftwerke Oberhasli AG und das Grandhotel Giessbach als Direktor und Berater im Konzept-, Strategie- und Turnaround-Prozess.
→ S. 82–87
QUELLENVERZEICHNIS
ABBILDUNGEN
→ S. 14 und 15
Gasser 1986,
Privatarchiv Andreas Deuber
→ S. 19
Privatarchiv Roland Flückiger-Seiler
→ S. 21
Privatarchiv Roland Flückiger-Seiler, Ansichtskarten, NB: UR 19485, ETH-Bildarchiv
→ S. 26
Tend AG; Roland Zumbühl, Wikipedia; Eduard Müller
→ S. 32
Tend AG, Ansichtskarten
→ S. 37
Pläne: Iwan Bühler Architekten
→ S. 40–78
Pläne: Iwan Bühler Architekten
→ S. 80 und 81
Visualisierungen: Tend AG